


![]()



Tarification préférentielle | Service prioritaire | Réseau solide




Planifiez et faites installer
Découvrez le service expert de conception et d'installation de Rona, pour un projet réalisé avec précision et souci du détail.
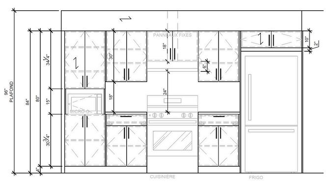
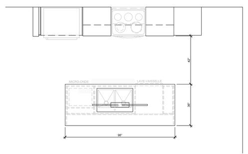
Cuisine option 1
Découvrez notre première configuration de cuisine : un mélange de fonctionnalité et de design intemporel.
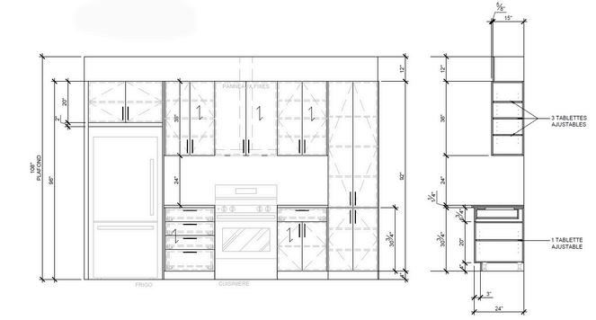
Cuisine option 2
Découvrez notre deuxième configuration de cuisine : une esthétique moderne alliée à la praticité.
02 03 05 07
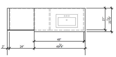
Salle de bain option 1
Découvrez notre aménagement de salle de bain : une harmonie entre luxe et confort au quotidien.

Découvrez les spécifications détaillées pour la fabrication des caissons.


Armoires variées
Découvrez notre large gamme d’armoires, alliant style et polyvalence dans chaque design
13
Découvrez notre sélection de finis pour comptoirs et portes, alliant style et fonctionnalité pour convenir à tous les goûts.

14
Découvrez notre sélection soignée d’électroménagers et d’accessoires, alliant fonctionnalité et style pour sublimer chaque configuration de cuisine.
Découvrez notre gamme d’armoires de cuisine et d’aménagements
Pour des rénovations de cuisine ou de salle de bain, ou pour planifier, acheter et installer des éléments de cuisine, des appareils, des accessoires ou de la quincaillerie pour vos logements locatifs, explorez notre gamme d’armoires de cuisine et d’ aménagements. Offerte dans un vaste choix de matériaux, de styles et de finis, notre sélection allie fonctionnalité et esthétique.
Solutions prêtes à l’emploi pour vos projets de rénovation
Chez Rona, nous proposons des armoires et vanités prêtes à installer pour lavabos, tiroirs et autres meubles de rangement, parfaitement adaptées à vos projets
Faites votre choix parmi des panneaux en mélamine ou à effet bois, des comptoirs offerts dans une vaste gamme de couleurs et de finis, une large sélection de matériaux, ainsi que des électroménagers exclusifs à Rona

Un accompagnement à chaque étape

Services complets adaptés à vos besoins
Que vous optiez pour notre programme complet d’assistance en design et aménagement Rona Pro ou pour des services à la carte, Rona prend en charge chaque détail, de la planification à la réalisation. Notre service d’accompagnement en design vous aide à créer des espaces adaptés à votre style, à votre budget et aux besoins spécifiques de vos clients ou locataires, selon la nature de votre projet de construction ou de rénovation.
Pour en savoir plus sur les étapes de création de votre prochaine cuisine ou salle de bain, ou pour obtenir des détails sur nos services d’installation et nos garanties, communiquez avec votre gestionnaire de compte Rona Pro ou rencontrez l’ un de nos cuisinistes en magasin


Des installateurs qualifiés et professionnels Travaux garantis Crédit disponible



Un aménagement de cuisine moderne et intemporel, conçu pour le confort et la fonctionnalité au quotidien. Mettant en valeur une riche combinaison de tons de bois clairs et de finis épurés, ce style allie élégance et simplicité.
*Veuillez vous référer à la page 16 pour obtenir tous les détails sur les finis des matériaux (quartz, mélamine)


Bordée de Neige TAFISA


Tombée du Jour TAFISA


GARDE-MANGER
AVEC MICRO-ONDES

ARMOIRE DE BASE AVEC UNE PORTE
ARMOIRE MURALE


ARMOIRE DE BASE AVEC UNE PORTE



ARMOIRE MURALE AU-DESSUS DU FOUR

ARMOIRE MURALE AU-DESSUS DU RÉFRIGÉRATEUR


ARMOIRE BASSE À DEUX PORTES

ARMOIRE BASSE À DEUX PORTES ET UN TIROIR



COMPTOIRS
Un concept de cuisine épuré et moderne qui marie des tons neutres doux à des textures audacieuses, pour un rendu à la fois raffiné et chaleureux
*Veuillez consulter la page 16 pour tous les détails sur les finis de matériaux (quartz, mélamine)
Finis

Sel de Mer

TAFISA
Sucré-Salé

TAFISA
Rosée du Matin



GARDE-MANGER À QUATRE PORTES ARMOIRE MURALE


ARMOIRE MURALE AU-DESSUS DU RÉFRIGÉRATEUR


ARMOIRE BASSE À QUATRE TIROIRS

ARMOIRE BASSE À UNE PORTE

ARMOIRE BASSE À DEUX PORTES

ARMOIRE BASSE À DEUX PORTES ET UN TIROIR

ARMOIRE BASSE AVEC MICRO-ONDES



Un design de salle de bain apaisant qui marie des tons clairs et naturels à des accents de bois chaleureux Les lignes épurées, les finis mats et les détails soignés offrent un équilibre parfait entre élégance et fonctionnalité
*Veuillez vous référer à la page 16 pour obtenir tous les détails sur les finis des matériaux (quartz, mélamine).
Finis
ARBORITE

Nuvolato Crema

TAFISA
Bordée de Neige

TAFISA
Sucré-Salé


ARMOIRE À LINGE À QUATRE PORTES

OIRE BASSE EUX PORTES

ARMOIRE BASSE À QUATRE TIROIRS

Nos armoires sont conçues pour répondre aux standards professionnels de durabilité, de précision et de facilité d’installation Des panneaux arrière pleins aux systèmes de fermeture douce, chaque composant est pensé pour optimiser votre travail et garantir une qualité durable
Matériau : Mélamine canadienne de 5/8 po (noyau de particules), incluant l’arrière
Assemblage : Rainure et languette ou caisson assemblé avec chevilles solides et colle; prêt à installer
Coulisses de tiroirs : Coulisses dissimulées sous le tiroir avec fermeture en douceur
Tablettes pleine profondeur dans les armoires de base
Emballage conçu pour protéger les coins et les rebords
Garantie du fabricant
Panneaux arrière pleine épaisseur (5/8 po)
Assurent une installation sécuritaire et une solidité structurale, permettant de visser directement dans les murs pour une pose facile et stable
Tiroirs à parois
métalliques
Une alternative économique et durable aux tiroirs en mélamine
Assemblage à chevilles
Moins coûteux et plus rapide à assembler, idéal pour les projets de grande envergure tout en offrant une solidité adéquate * ou
*Selon la demande
Assemblage à rainure et languette
Assemblages solides et durables, idéals pour les projets haut de gamme *
Construction actuelle des tiroirs
Tiroirs robustes en mélamine 5 pièces *ou en métal, avec fonds épais et coulisses haut de gamme

Charnières à fermeture en douceur
Les portes sont munies de charnières dissimulées et ajustables avec fermeture en douceur
Mélamine 5 pièces *ou métal, assemblage à rainure et languette *ou à chevilles, fond de 5/8 po d’épaisseur, coulisses dissimulées sous le tiroir avec garantie à vie
Thermoplastique sur MDF ¾ po / Mélamine

15" L x 15" P x 15" H
18" L x 15" P x 15" H
15" L x 15" P x 20" H
18" L x 15" P x 20" H
24" L x 15" P x 20" H
12" L x 15" P x 30" H
15" L x 15" P x 30" H
18" L x 15" P x 30" H
21" L x 15" P x 30" H
24" L x 15" P x 30" H
12" L x 15" P x 36" H
15" L x 15" P x 36" H
18" L x 15" P x 36" H
21" L x 15" P x 36" H
ARMOIRE MURALE AU-DESSUS DU RÉFRIGÉRATEUR
36" L x 24" P x 10" H
24" L x 24" P x 15" H
30" L x 24" P x 15" H
36" L x 24" P x 15" H
30" L x 24" P x 20" H
36" L x 24" P x 20" H
**AUCUNE TABLETTE POUR UNE HAUTEUR INFÉRIEURE À 10 PO
24"W X 15"D X 36"H
12"W X 15"D X 40"H
15"W X 15"D X 40"H
18"W X 15"D X 40"H
21"W X 15"D X 40"H
24"W X 15"D X 40"H
*UNDER 24"L ONLY USE 1 DOOR INCLUDING 24"AND OVER USE 2 DOORS



9" L x 24" P x 30 ¾" H
12" L x 24" P x 30 ¾" H
15" L x 24" P x 30 ¾" H
18" L x 24" P x 30 ¾" H
24" L x 24" P x 30 ¾" H
30" L x 24" P x 30 ¾" H
36" L x 24" P x 30 ¾" H
**POUR LES MODÈLES DE MOINS DE 24" L, UTILISER 1 PORTE
POUR LES MODÈLES DE 24" L ET PLUS, UTILISER 2 PORTES

ARMOIRE BASSE AVEC TIROIRS
DIMENSIONS
15" L x 24" P x 30 ¾" H
18" L x 24" P x 30 ¾" H
24" L x 24" P x 30 ¾" H
30" L x 24" P x 30 ¾" H
36" L x 24" P x 30 ¾" H

ARMOIRE BASSE AVEC TIROIRS
DIMENSIONS
24" L x 24" P x 30 ¾" H
ARMOIRE BASSE AVEC TIROIRS
15" L x 24" P x 30 ¾" H
18" L x 24" P x 30 ¾" H
24" L x 24" P x 30 ¾" H
30" L x 24" P x 30 ¾" H
36" L x 24" P x 30 ¾" H

ARMOIRE BASSE AVEC PORTES
DIMENSIONS
15" L x 24" P x 30 ¾" H
18" L x 24" P x 30 ¾" H
24" L x 24" P x 30 ¾" H
30" L x 24" P x 30 ¾" H
36" L x 24" P x 30 ¾" H



ARMOIRE BASSE AVEC TIROIRS
DIMENSIONS
18" L x 24" P x 80" H
21" L x 24" P x 80" H
24" L x 24" P x 80" H
**POUR LES MODÈLES DE MOINS DE 24" L, UTILISER 1 PORTE
POUR LES MODÈLES DE 24" L ET PLUS, UTILISER 2 PORTES
24" L x 24" P x 80" H
24" L x 24" P x 90" H
24" L x 24" P x 92" H DIMENSIONS



Tous les matériaux ont été soigneusement sélectionnés par notre équipe de design pour leur durabilité, leur polyvalence esthétique et leur facilité d’intégration sur le chantier Cette sélection raffinée de finis pour comptoirs et portes d’armoires assure cohérence, qualité et design intemporel pour vos projets de cuisine et de salle de bain


ARBORITE

PANORAMA COLLECTION
Château P1023 BT

ARBORITE

PANORAMA COLLECTION
BLIZZARD CAESARSTONE 2141

TAFISA

BORDÉE DE NEIGE
L105 (C) Crystalite
TAFISA

BEAUTÉ NATURELLE

L581(K) Karisma
TAFISA

ROSÉE DU MATIN
TAFISA

SUCRÉ-SALÉ
Nuvolato Crema P1024 PT
FORMICA

SEL DE MER 9529-43
Artisan TM Finish
ORGANIC WHITE CAESARSTONE 4600

L763 (C) Crystalite
L588 (K) Karisma
SLEEK CONCRETE
CAESARSTONE 4003

TAFISA
TOMBÉE DU JOUR
L768 (C) Crystalite


Tous les électroménagers présentés ont été soigneusement sélectionnés pour leur fiabilité, leur efficacité énergétique e Chaque modèle s ’intègre harmonieusement à assurant une installation simplifiée et une satis


Voici une sélection d’électroménagers intégrés à nos concepts de design. Chaque appareil a été choisi avec soin pour sa performance supérieure, ses fonctionnalités innovantes et son design élégant, garantissant que nos aménagements allient fonctionnalité et esthétisme.

Article #09095136
Modèle #BXT130WWC
Format 30" -270CFM

Article #330844655
Modèle #74139

Article #05115805
Modèle #LCH190A36BK
Format 36"

Article #30895450
Modèle #LDFC3532S
Format 23.75x33.62x24.62"

Article #10355746
Modèle #FCRE306CAS
Format 30x47.75x26"

Article #38525019
Modèle #RB17A2CSE
Format 31.1x67.7x27.3"
Nous croyons qu’offrir des armoires ne suffit pas, nous livrons aussi l’expertise, la fiabilité et un soutien de premier ordre pour aider les entrepreneurs à se démarquer et à réussir.
Conçues pour durer, fabriquées au Canada.
Nos armoires sont fièrement fabriquées au Canada à partir de matériaux de qualité, avec un souci de durabilité et de responsabilité environnementale Chaque unité est pensée pour offrir une efficacité optimale sur le chantier et une satisfaction durable auprès de la clientèle
Un soutien sur mesure pour les Pros.
Grâce au Programme Cuisines et Salles de bain de RONA, les entrepreneurs bénéficient de consultations personnalisées en design, de lignes de produits exclusives et d’un service de qualité professionnelle sans frais supplémentaires.
Un design intelligent, pensé pour la réalité du terrain.
Des finis tendance aux configurations conçues pour maximiser le rangement et la fonctionnalité, nos cuisines et salles de bain sont développées en tenant compte de l’utilisation réelle et de l’installation sur le chantier.


Trouvez un RONA près de chez vous !
1 866 283-2239 www.rona.ca support@vip-pro.ca CONTACTEZ-NOUS