mercado para todos

Page 1

DAU VI UN MERCADO PARA TODOS

SANTIAGO VACA & ESTEFANO SAMBUCCI

Pontificia Univeridad Católica del Ecuador Diseño Urbano y Arquitectonico VI Tutor: María Mercedes Andrade
2023
Santiago Vaca & Estefano Sambucci
UN MERCADO PARA TODOS
v 03 02 01 CONTEXTO MEMORIA IMPLANTACIÓN
Contenidos

PLANOS MATERIAL GRÁFICO REFERENTES

v 04 05 06

CONTEXTO

Un terreno desaprovechado y abandonado, ubicado entre las calles Manuel Larrea y Versalles, con extensión hacia la calle Caracas, se encuentra actualmente cerrado. Esta área representa una oportunidad para un proyecto de revitalización urbana, dada su ubicación exclusiva y el potencial para mejorar el entorno

Los terrenos adyacentes presentan una disposición contigua en relación con la línea de propiedad. Estos terrenos exhiben una configuración que coloca sus estructuras de espaldas al lote en cuestión, generando así una pared central dentro de la manzana. Esta disposición no solo carece de atractivo estético, sino que también constituye un aspecto a abordar y resolver en el marco del proyecto propuesto

01

MEMORIA 01

Diagrama de Implantación

de Intenciones

Diagrama

IMPLANTACIÓN ESC 1:500

04

PLANTAS 04

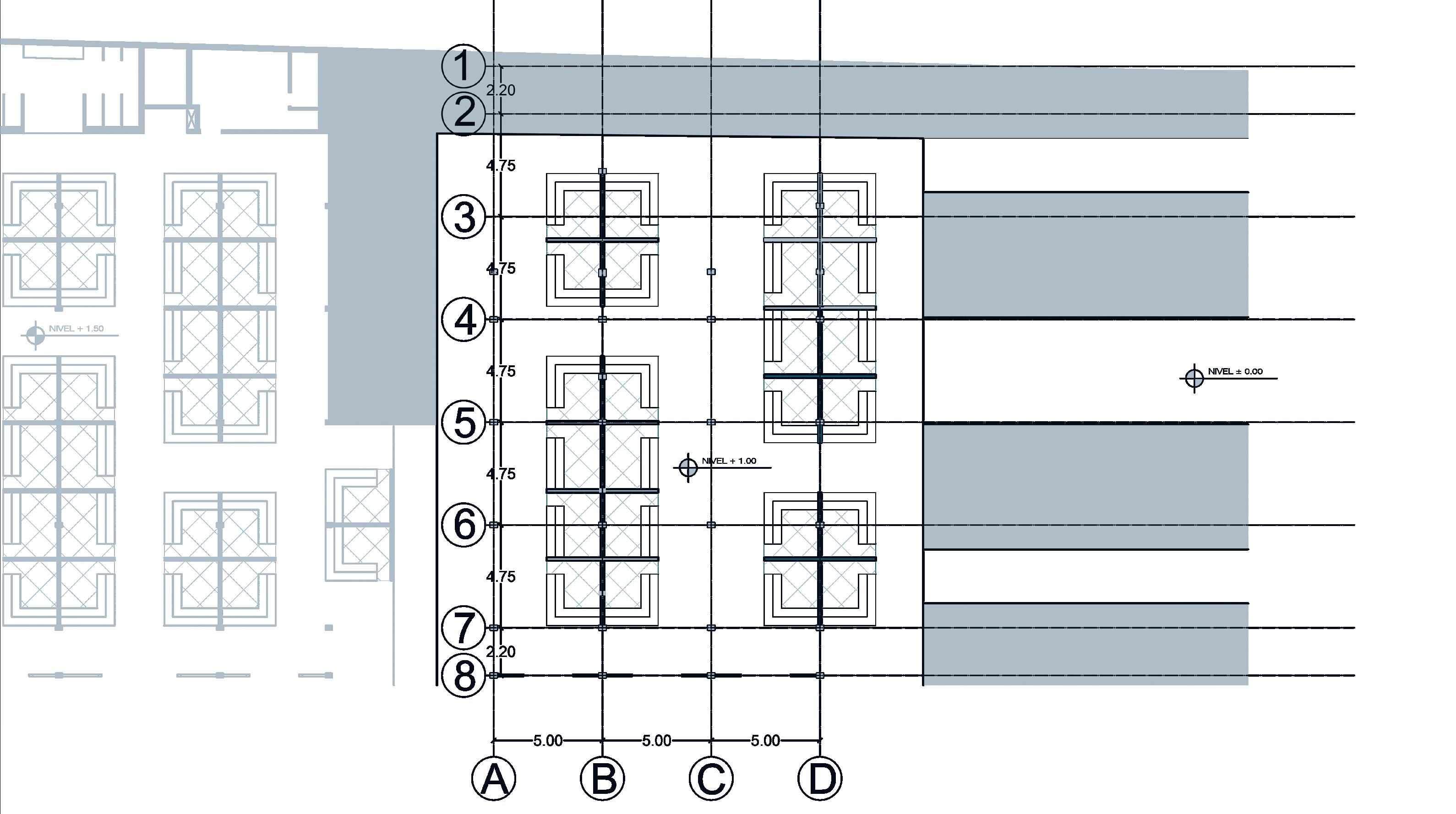
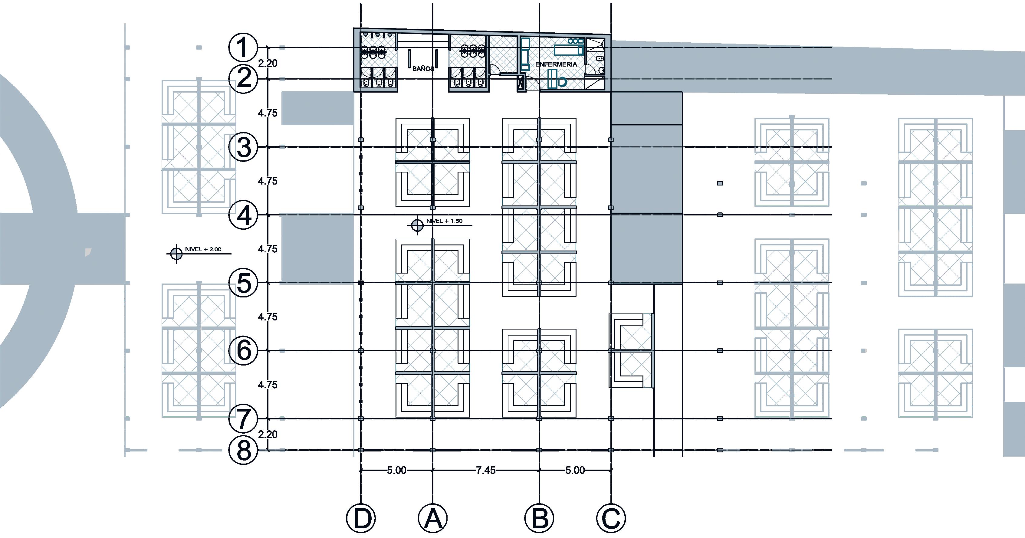
Planta NIVEL + 2.00

Esc - 1:250

Planta NIVEL + 1.50

Esc - 1:250

Planta NIVEL + 1.00

Esc - 1:250

FACHADAS 04

Fachada principal oeste

Esc - 1:150

Fachada fronta oestel

Esc - 1:250

Corte A - A’

Esc - 1:250

Corte B -B’

Esc - 1:250

04
CORTES

ESPACIALIDAD 05

ESPACIALIDAD

05

REFERENTES

Mercado municipal de Mollet - Serra, vives CartagenaBarcelona, España - 1996

Meraco San Miguel - Alonso

Dubé y DiezMadrid, España 1916

El gran Bazar de EstambulMehmed - Estambul, Turquía 1864

Meraco de barcelona - José Mas Vila - Barcelona, España 1940

06
Pontificia Univeridad Católica del Ecuador Diseño Urbano y Arquitectonico VI Tutor: María Mercedes Andrade
2023
Santiago Vaca & Estefano Sambucci

Turn static files into dynamic content formats.

Create a flipbook
Issuu converts static files into: digital portfolios, online yearbooks, online catalogs, digital photo albums and more. Sign up and create your flipbook.
mercado para todos by Carmita López - Issuu