portafolio
Carlos Daniel Naquiche Yesquen
Diseño de interiores
Bachiller de Arquitectura


![]()
Carlos Daniel Naquiche Yesquen
Diseño de interiores
Bachiller de Arquitectura


Bachiller en Arquitectura - Diseñador de interiores
+51 936 335 404
naquiche.daniel.28@gmail.com
Los Olivos, Lima - Perú LinkedIn
Con interés en la Arquitectura sostenible, social y el diseño de interiores Con la idea de que la Arquitectura comprende más que 4 paredes. Con actitud proactiva y de compromiso constante, con el propósito de aportar nuevas ideas que ayuden al desarrollo de soluciones creativas trabajando en equipo lo cual pueda permitirme ser un profesional en distintas áreas.
Asistente de diseño e interiores
INAR Diseño y Arquitectura/ Jun, 2024
- DibujanteCADdeplanimetríaarquitectónica
- Levantamientodeinformacióndecampoytoma
- demedidas.
- Levantamiento2Dy3Ddeproyectosdeinteriores
- Propuesta de diseño de interiores de espacios residenciales
- Planodedetallesyarmadoenpiezasdemobiliario
Anfitrión - Lab Studio
F. Arqdis - Casacor 2023 / Jun, 2023 - Jul, 2023
- DaraconocerelespaciodiseñadoporelArq. FernandoÁlvarez
- Mostrarelconceptoaplicadoencadaáreadelespacio
- Exhibicióndematerialesyproveedoresaplicadoseneldiseño
Trabajos Independientes
Autónomo / Ago, 2023 - Sep, 2023 – Diseñador de interiores
- Propuestadediseñointerior-cocina
- Planimetríadeproyecto-cocina
- Modeladoyvisualizacióninterior-cocina
Autónomo / Abr, 2023 – Diseñador de interiores
- Propuestadediseñointerior-Sala
- Planimetríadeproyecto-Sala
- Modeladoyvisualizacióninterior-Sala
Zsport / Ene, 2023 – Modelador 3D
- PropuestadeMobiliarioInterior
- Modeladoyvisualizacióninterior
- Renderizaciónyrecorridovirtual
Modelador 3D FreeLancer
Simpplex Design / Nov, 2022 – Dic, 2022
- ModeladodeMobiliarioparacatálogovirtual - Diseñodeespaciosconmueblesdetienda
- Diseñoysimulaciónconmueblespredeterminados
Asistente de Arquitectura
Arq. Center E.I.R.L / Mar, 2021 – Jul, 2021
- DibujanteCADdeplanimetríaarquitectónica
- ElaboracióndeProyectosaniveldeexpedientetécnico
- Levantamiento2Dy3Ddeunidadesdevivienda
- ReplanteoyDiseñodeProyectosdecomplejidadmedia
Auxiliar / Consultor de Ventas y Servicios
Promart Homecenter / Feb, 2019 – Mar, 2021
- AtenciónalCliente
- Asesoramiento en diversas áreas de tienda (Materiales– Pisos–Jardinería–construcción)
- MultifuncionaleneláreadeCajasycobranzas
2017 – 2022 UniversidadPrivadadelNorte – UPN Bachiller
CERTIFICACIONES
2022 Vimod – Arquitectura y Construcción Software
Archicad25–Lumion10–Photoshop2022
2019 TrazzoVisualArquitectura
Software
SketchUPpro–Photoshop2019–Vraynext–Lumionpro
SOFTWARES
AutoCAD 2D
SketchUp
Archicad Photoshop Lumion Enscape V-Ray
Illustrator
1
PROYECTO COCINA NR
2
PROYECTO SALA/COMEDOR
3
DORMITORIO SAN MIGUEL
4 5
ANTEPROYECTO SALA
VISUALIZACIÓN DORMITORIO
RESIDENCIAL
7.56 M2
LOS OLIVOS - LIMA 2023
CLIENTE: FAMILIA NR
















La propuesta de materiales fue consultados y acordados según la preferencia de los clientes Acordado también que los elementos decorativos no están inscritos en el presupuesto y entrega de proyecto de remodelación y ejecución
RESIDENCIAL 15.30 M2 SAN MIGUEL- LIMA 2024
CLIENTE: RUTH PARODI

PISO CLICK SPC



PINTURA
AMERICAN COLORS
BLANCO HUMO
WALL PANEL PISOPAK GRIS MEDIO
PINTURA
AMERICAN COLORS GRIS MEDIO





CORTE ARQUITECTÓNICO1
REMODELACIÓN SALA / COMEDOR


CORTE ARQUITECTÓNICO2
REMODELACIÓN SALA / COMEDOR


COMEDOR - PROYECTO SALA/COMEDOR




LATERAL DERECHO


LATERAL IZQUIEERDO ISOMETRÍA

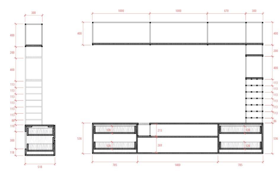
DETALLE MÓDULOS

CORTE 1



LATERAL DERECHO

LATERAL IZQUIEERDO



15.30 M2
SAN MIGUEL- LIMA 2024
CLIENTE: RUTH PARODI





Para el presente proyecto, se propone un estilo contemporáneo con tendencia al estilo clásico, trabajaremos con materiales de madera, pero con acentos de colores cálidos para generar un ambiente acogedor







9 M2
CLIENTE: FAMILIA NY


DISEÑO Y VISUALIZACIÓN DE SALA


10 M2
CARABAYLLO- LIMA 2023
CLIENTE: FAMILIA GT





# 51 (1) 936335404 contacto
naquiche.daniel.28@gmail.com
carlos.naquiche28@gmail.com