CARLOS_NAQUICHE_PORTAFOLIO

Page 1


_ISOMETRÍA

Ambientes casa aviv

- primer nivel

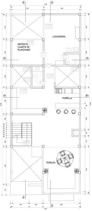
_plano - primer nivel

_plano - semisótano

_plano
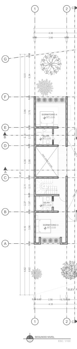
_planta 2do y 4to nivel
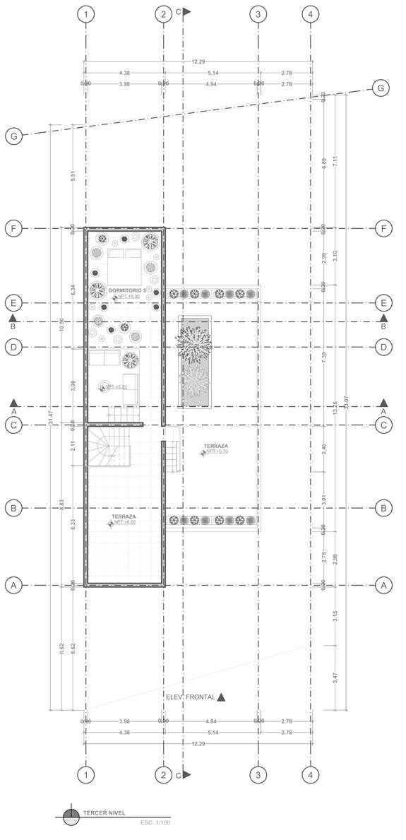
_planta 3er nivel
_plano 5to nivel

_estado de vías

_estado viviendas

_corredor verde
_propuesta vias de acceso 1

_propuesta vías de circulación _áreas para la comunidad

_vista exterior

Turn static files into dynamic content formats.

Create a flipbook
Issuu converts static files into: digital portfolios, online yearbooks, online catalogs, digital photo albums and more. Sign up and create your flipbook.