centro cultural dorina nowill - camile viana [diplô 2]

Page 1

c e n t r o c u l t u r a l

d o r i n a n o w i l l

camile viana de azambuja - 170007626

universidade de brasília

faculdade de arquitetura e urbanismo - FAU/UNB

orientador: oscar luis ferreira

professora convidada FAU: maria cecília filgueiras

convidada externa: paula lelis rabelo albala

0 2

a g r a d e c i m e n t o s

Primeiramente, agradeço ao meu Senhor Jesus, que me deu forças para chegar até aqui, que ouviu minhas orações e foi meu sustento até hoje e que certamente o será pelo resto dos meus dias.

À minha família, minha mãe, pai e irmão que me amaram e me compreenderam em um dos momentos mais desafiadores da minha vida.

Obrigada por me apoiarem nas noites em claro concluindo não somente esse trabalho mas inúmeros outros da faculdade e por acreditarem em mim e no meu sucesso.

Ao meu professor orientador, Oscar Luis Ferreira, que teve paciência e dedicação para me ajudar a concluir esse trabalho. Pelas sábias orientações e atenção com os detalhes.

Aos meus professores, que moldaram meu saber, me ensinaram, estiveram comigo durante toda essa jornada acadêmica e me ajudaram a ver o mundo além do que eu jamais um dia imaginei conhecer.

Às amigas de curso, com quem vivi intensamente nesses últimos anos, foram minhas companhias de filas e filas no RU, impressões no amarelinho, lanchinhos no udfinho e ceubinho. Sou imensamente grata pela amizade e por ter dividido meus dias com vocês.

Por fim, à todos aqueles que contribuíram de alguma forma no desenvolvimento desse trabalho, amigos, colegas de curso que participaram direta ou indiretamente no processo de estudo e pesquisa. Obrigada.

0 3

" t h e r e a r e o n l y t w o t y p e s o f p e o p l e , t h o s e w i t h d i s a b i l i t i e s a n d t h o s e t h a t h a v e n ' t q u i t e f o u n d t h e i r s y e t . "

C H R I S D O W N E Y - D E S I G N I N G W I T H T H E B L I N D I N M I N D

s u m á r i o i n t r o d u ç ã o p a n o r a m a g e r a l r e f e r e n c i a l t e ó r i c o r e f e r e n c i a l d e p r o j e t o

0 5 0 6 p r o p o s t a

1 0 1 4 2 1 d e s e n h o s d e p r o j e t o 2 6 b i b l i o g r a f i a 4 5

0 4

Para Palasmaa (2005), o corpo é a principal forma que nos relacionamos e interagimos com e no mundo. É um complexo e aprimorado sistema, dotado de nervos, pele, ossos, articulações que nos permite ter sensações únicas e diárias. É o que nos permite nos relacionar com outros entes e o que nos faz sermos únicos. Dessa forma, ele defende que a arquitetura deve ser algo que experienciamos com todo o corpo, não somente focada na visão, mas deve ser projetada de forma que desenvolva todos os sentidos.

De fato, não é fácil desenvencilhar a concepção de que a arquitetura deva ser algo em primazia visualmente belo. Visto que é uma ideia que tanto nossa sociedade quanto arquitetos vêm consolidando há anos. Mas reduzir a apreensão da arquitetura a somente o campo da visão é limitar a experiência estética da arquitetura como um todo. No que se refere à memória, lembramos muito mais de um espaço quando ele nos remete a mais de um sentido. A lembrança da casa de nossas avós geralmente vem acompanhada da lembrança do cheiro da comida que ela fazia. Assim como a lembrança de um lugar no qual não desejamos voltar envolve sensações provenientes da má arquitetura do local, seja por ser muito escuro, ser muito aberto e passarmos frio, ou não haver uma boa cobertura e ficarmos expostos ao sol.

Dessa forma, acredita-se que uma boa arquitetura não envolve somente o campo da visão, mas envolve elementos multissensoriais que façam com que o usuário vivencie o espaço de forma positiva. É com o entendimento de desvelamento multissensorial que Palasmaa defende que a concepção arquitetônica pode ser algo que sobrepõe os anseios da visão e que engloba fatores que farão com que o corpo por inteiro seja acomodado nos espaços projetados.

A discussão a respeito da arquitetura multissensorial abre portas também para a questão de espaços que corroborem para o bem-estar de pessoas que possuem deficiências sensoriais. Apesar da visão ser o sentido principal de pessoas com visão, pessoas com deficiências visuais também tem suas próprias experiências nos espaços utilizando-se de outros sentidos. Toda experiência arquitetônica envolve vários sentidos. O toque, os sons, a emoção, o frio-na-barriga são sensações tão importantes para a compreensão da arquitetura quanto a visão e nos ajudam a compreender a estética e funcionalidade de um edifício (Ryhl, 2010).

Assim, a concepção de espaços multi-sensoriais visa a integração das pessoas com o ambiente construído de uma forma mais harmônica e que abrace as deficiências e particularidades da nossa diversidade social.

Em conclusão, o presente trabalho busca propor um centro cultural acessível e inclusivo que promova através dos sentidos uma vivência positiva para deficientes sensoriais, propondo dentro do espaço abrigar uma casa modelo para deficientes visuais. Entendendo que a casa é o local em que mais buscamos conforto devemos construir, enquanto arquitetos, casas acessíveis e sensoriais desde a concepção de projeto.

0 5
1 . i n t r o d u ç ã o

c o n t e x t o d a d e f i c i ê n c i a n o B r a s i l e m u n d o

No ano de 1980, a OMS (Organização Mundial da Saúde) estabeleceu um sistema de classificação das deficiências intitulado Classificação Internacional de Deficiências, Incapacidades e Desvantagens (CIDID), o qual permite uma classificação mais ampla das deficiências permitindo assim uma linguagem, pesquisa e prática clínica universal. Segundo a CIDID:

"Uma deficiência é qualquer perda ou anormalidade da estrutura ou função psicológica, fisiológica ou anatômica. Representa a exteriorização de um estado patológico e, em princípio, reflete distúrbios no nível do órgão"

Mais tarde, no ano de 2001, a OMS revisou as classificações expostas na CIDID, após polêmicas incoerências da publicação, e estabeleceu a Classificação Internacional de Funcionalidade, Incapacidade e Saúde (CIF). A CIF é uma classificação mais atual e coerente, levando em conta também questões ambientais como as barreiras arquitetônicas. Atualmente, a deficiência visual pode ser caracterizada como:

"(...) a perda total ou parcial, congênita ou adquirida, da visão"

(Fundação Dorina Nowill)

Em relação ao nível de acuidade da visão pode ser ainda dividida em dois grupos:

"Cegueira – há perda total da visão ou pouquíssima capacidade de enxergar, o que leva a pessoa a necessitar do Sistema Braille como meio de leitura e escrita.

Baixa visão ou visão subnormal – caracteriza-se pelo comprometimento do funcionamento visual dos olhos, mesmo após tratamento ou correção. As pessoas com baixa visão podem ler textos impressos ampliados ou com uso de recursos óticos especiais."

(Fundação Dorina Nowill)

Uma grande parcela da população brasileira hoje possui algum tipo de deficiência*. De acordo com os dados apurados no censo do Instituto Brasileiro de Geografia e Estatística (IBGE 2010), mais de 45 milhões de brasileiros possuem alguma dificuldade para ver, ouvir, física ou intelectual. Essa parcela representa 23,9% ou quase um quarto da população. Desse número, o mais expressivo é o de pessoas que declaram ter deficiência visual. São quase 7 milhões de pessoas sendo 6 milhões de pessoas com baixa visão e 582 mil cegos.

Para se ter uma ideia, se o Brasil tivesse 100 pessoas, aproximadamente 7 delas teriam deficiência motora, 5 teriam deficiência auditiva e 19 teriam deficiência visual" (IBGE,2010).

1 0 p e s q u s o u s e a p e s s o a e r a p o r t a d o r a d e d e f i c ê n c a v s u a a u d t v a o u m o t o r a p o r m e o d a a v a a ç ã o f e t a p e l a p r ó p r a p e s s o a , d o s e u g r a u d e n c a p a c d a d e F o i p e s q u s a d o t a m b é m s e a p e s s o a e r a p o r t a d o r a d e d e f c ê n c a m e n t a / n t e l e c t u a N ã o s e c o n s d e r o u c o m o d e f c ê n c a m e n t a a s p e r t u r b a ç õ e s o u d o e n ç a s m e n t a s c o m o a u t s m o , n e u r o s e e s q u z o f r e n a e p s i c o s e

2 . p a n o r a m a g e r a l 0 6
* O C e n s o d e m o g r á f c o 2 0

Segundo o estudo das projeções mundiais para cegueira publicadas na revista The Lancet Global Health com o aumento da exposição das pessoas às telas, envelhecimento da população e barreiras socioeconômicas ao acesso de tratamentos de saúde adequados a expectativa é que o número de pessoas que apresentam cegueira e deficiência visual aumente ainda mais nas próximas décadas. Dessa forma, é observado o quanto se torna essencial o amparo da lei a essa população em constante crescimento.

No Brasil, temos a Lei Brasileira de Inclusão da Pessoa com Deficiência, a qual estabelece:

Art. 1o É instituída a Lei Brasileira de Inclusão da Pessoa com Deficiência (Estatuto da Pessoa com Deficiência), destinada a assegurar e a promover, em condições de igualdade, o exercício dos direitos e das liberdades fundamentais por pessoa com deficiência, visando à sua inclusão social e cidadania.

Apesar da lei, o dia-a-dia das pessoas com deficiência no Brasil no âmbito urbano ainda é extremamente difícil, e a garantia dos direitos dessa população nem sempre é satisfatoriamente atingida. As ruas desniveladas, falta de sinalização sonora e braile, falta de rampas e acessos simplificados tornam atividades cotidianas como ir às compras, passear no bairro ou se nortear no espaço verdadeiros desafios.

Populaçãosemdeficiênciasdecaradas 761% Popuaçãocomagumtipodedeficiênca 239% ( G R Á F C O F O N T E A U T O R A L F E T O A P A R T R D E D A D O S D O B G E 2 0 1 0 ) Pessoassem Defciêncas 68 PessoascomDeficência Vsua 19 PessoascomDefciênca Motora 7 PessoascomDefciênca Auditva 5 PessoascomDeficência Menta 1 s
p
d
( G R Á F C O 2 F O N T E A U T O R A L F E T O A P A R T R D E D A D O S D O B G E 2 0 1 0 )
e o B r a s i l t i v e s s e 1 0 0 p e s s o a s . . .
o p u l a ç ã o b r a s i l e i r a ( p o r c e n t a g e m
e p e s s o a s c o m e s e m d e f i c i ê n c i a s )
0 7

O que é observado nas grandes cidades brasileiras é que existe pouca ou nenhuma sinalização tátil, sonora, rampas que corroborem para uma melhor caminhabilidade e uso dos espaços urbanos por aqueles com deficiências. Quando existentes encontram-se deterioradas pela falta de manutenção ou obstruídas por outros impecilhos. Através do levantamento realizado na cidade de São Paulo pela Rede Nossa São Paulo e Ibope Inteligência, foi apontado que 90% dos paulistas classificaram as ruas como regulares, ruins ou péssimas quanto a acessibilidade para pessoas com deficiências. Tais dificuldades prejudicam o pleno exercício da cidadania e refletem um meio urbano que não foi projetado pensando-se na acessibilidade e inclusão social.

Em consonância com os apontamentos abordados acerca das dificuldades de locomoção no meio urbano, as moradias também apresentam inúmeros desafios pois não são adequadas para a plena vivência daqueles com deficiências em geral.

Casas que não estão adaptadas às limitações visuais dos cegos, pessoas com baixa visão, idosos ou pessoas com problemas visuais temporários são empecilhos para o sentimento de bem estar e descanso que procuramos quando estamos em nossos lares.

Com a tendência do foco na estética vemos que a arquitetura das residências está cada vez mais limitada para o apelo visual do que para o conforto do corpo como um todo no espaço o que dificulta a interação e sentimento de pertencimento daqueles com deficiência visual nesses espaços. Além disso, as questões socioeconômicas estão intrinsicamente ligadas à má qualidade das habitações brasileiras se tornando também impedimentos físicos para os deficientes visuais desempenharem suas atividades sociais.

o d e f i c i e n t e n o m e i o u r b a n o F G U R A 1 - A P E R C E P Ç Ã O D O P S O T Á T L É D F C U L T A D A P O R C A U S A D O B U R A C O N A C A L Ç A D AF O N T E S T E h t t p s / / w w w c a m p o g r a n d e n e w s c o m b r / c d a d e s / c a p t a / c a p t a - n a o - t e m - e s p a c o - a c e s s v e - et o t a m e n t e - s e m - b a r r e r a s - a - d e f c e n t e s A C E S S O E M 1 / 0 7 / 2 0 2 2 F G U R A 2 - C A L Ç A D A S N Ã O P O S S U E M A L A R G U R A N E C E S S Á R A P A R A A P A S S A G E M D E C A D E R A N T E S F O N T E S T E h t t p s / / w w w o r n a t e r c e r a v a c o m b r / 2 0 1 9 / 0 7 / 0 7 / a c e s s b d a d e - q u e - n n g u e m - v e / A C E S S O E M 1 2 / 0 7 / 2 0 2 2 0 8
F G U R A 3 - C A M N H O P R E C Á R O P E R C O R R D O P O R D E F C E N T E V S U A L A O S A R D E C A S A - F O N T E S T E h t t p s / / w w w d e f c e n t e c e n t e c o m b r / e s t u d a n t e - c e g oe n f r e n t a - f a t a - d e - e s t r u t u r a - e m - u n v e r s d a d e - n op a h t m A C E S S O E M 2 / 0 7 / 2 0 2 2 F G U R A 4 - A M B E N T E D A C A S A D O D E F C E N T E V S U A L S E M E S T R U T U R A A D E Q U A D A P A R A O E S T U D O - F O N T E S T E h t t p s / / w w w d e f c e n t e c e n t e c o m b r / e s t u d a n t e - c e g oe n f r e n t a - f a t a - d e - e s t r u t u r a - e m - u n v e r s d a d e - n op a h t m A C E S S O E M 1 2 / 0 7 / 2 0 2 2
o d e f i c i e n t e n a s m o r a d i a s

" m e s m o c o m t e c n o l o g i a a s s i s t i v a d i s p o n í v e l , o d e s e n v o l v i m e n t o d e a t i v i d a d e s d i á r i a s n o a m b i e n t e f a m i l i a r r e q u e r ó t i m a s c a p a c i d a d e s f í s i c a s e m e n t a i s d e u m a p e s s o a c o m d e f i c i ê n c i a s e n s o r i a l . I s s o i n c l u i o a m b i e n t e f a m i l i a r d e s u a p r ó p r i a c a s a , o n d e o s r e c u r s o s n e c e s s á r i o s p a r a e x e r c e r t a i s a t i v i d a d e s s ã o m e n t a l m e n t e e x t e n u a n t e s e m u m n í v e l i m p o s s í v e l d e s e c o m p a r a r a u m a p e s s o a s e m d e f i c i ê n c i a . "

T R A D U Ç Ã O L I V R E ( R Y H L A P U D K A R L S S O N , 1 9 9 9 )

0 9

- a a c e s s i b i l i d a d e

A acessibilidade pode ser definida como:

"(...) numa acepção mais ampla, a acessibilidade é condição de possibilidade para a transposição dos entraves que representam as barreiras para a efetiva participação de pessoas nos vários âmbitos da vida social".

Algumas das estratégias e parâmetros da norma são demonstrados a seguir, a partir das figuras.

A acessibilidade também está ligada em sua raiz etimológica com o conceito de livre acesso e aproximação. Nesse sentido, podemos inferir que a acessibilidade é o que conecta, aproxima e permite trocas entre pessoas. No Brasil, a acessibilidade é normatizada pela ABNT NBR 90:50, norma técnica para a acessibilidade a edificações, mobiliário, espaços e equipamentos urbanos, a qual foi elaborada pelo Comitê Brasileiro de Acessibilidade. Em nota, a ABNT NBR 90:50 afirma que:

"Para serem considerados acessíveis, todos os espaços, edificações, mobiliários e equipamentos urbanos que vierem a ser projetados, construídos, montados ou implantados, bem como as reformas e ampliações de edificações e equipamentos urbanos, atendem ao disposto nesta Norma"

A norma abrange além de parâmetros antropométricos para referencial, ferramentas de acessibilidade para projetos arquitetônicos. Os quais podem ser elencados como; placas sinalizadoras, as quais devem ter design exclusivo e em braille, corrimão, mapa e piso tátil, calçadas regulares, rampas e sanitários adequados.

1 0 3
. 1
( F O N T E P o r t a d a U F C - U n v e r s d a d e F e d e r a d o C e a r á - C o n c e t o d e A c e s s b d a d e )
F G U R A 6 - A R R A N J O G E O M É T R C O D O S P O N T O S E M B R A L L E - F O N T E A B N T N B R 9 0 5 0 F G U R A 5 - D M E N S Õ E S R E F E R E N C A S P A R A D E S L O C A M E N T O D E P E S S O A E M P É - F O N T E A B N T N B R 9 0 5 0 3 . r e f e r e n c i a l t e ó r i c o

Observando esse conceito percebemos que a acessibilidade é um direito inegável a qualquer ser humano, e que, a garantia desse direito é a garantia de espaços que cada vez mais respeitam a diversidade humana. Porém, muito mais do que transpor as barreiras que limitam o acesso daqueles com deficiências, a arquitetura pode proporcionar experiências positivas e que ficarão guardadas na memória das pessoas nos espaços que frequentaram. Entendendo que os espaços não devem se limitar a somente serem acessíveis mas acessíveis sensorialmente. Conceito que Camilla Ryhl traz em seu texto Architecture for the senses:

"A acessibilidade sensorial acomoda a deficiência sensorial e descreve requisitos de projeto arquitetônico necessários para garantir acesso a experiências sensoriais e qualidade arquitetônica a um dado espaço.

Enquanto o existente conceito de acessibilidade garante acesso físico a um dado espaço, a acessibilidade sensorial garante que todos podem ficar no espaço e ser capazes de participar, desfrutar e experimentar."

Nesse âmbito, vemos a necessidade de se construir espaços sensoriais desde a concepção de projeto. Ambientes pensados para aguçar todos os sentidos e não somente a visão, que garantam a plena vivência do usuário respeitando as particularidades de cada um.

No texto Acessibility and sensory experiences: designing dwellings for the visually and hearing impaired, Ryhl expõe os resultados obtidos através de uma pesquisa qualitativa arquitetônica para deficiências sensoriais e acessibilidade. Na pesquisa, cinco grupos participantes passariam de 30 a 40 minutos em cinco habitações projetadas em escala 1:1 com diferentes características arquitetônicas que os participantes deveriam sentir e discutir a respeito durante os testes.

Após o teste, cada pessoa era entrevistada individualmente em perguntas do tipo abertas qualitativas que abrangiam a percepção individual dos entrevistados a respeito dos materiais, design e sentidos usados na experiência. Alguns exemplos das perguntas que eram feitas foram retirados do texto de Ryhl e estão a seguir:

O que o som no espaço significa para você?

Quais dos seus sentidos você considera que foram mais afetados pelo som no espaço - e como?

Algum tipo de som afeta a sua experiência no espaço?

Algum outro fator afeta a sua experiência do som no espaço?

Vemos que o conceito da acessibilidade sensorial abrange um espectro mais universal do que a acessibilidade, pois não é algo voltado somente para o deficiente sensorial, mas algo para todos os que utilizarão o espaço.

No texto, Ryhl aborda a percepção de que todos, em algum dado momento, terão experiências em que terão dificuldades em ouvir ou enxergar, seja pelo avanço da idade, um problema temporário na visão ou escuta, locomoção ou mesmo teremos familiares passando por essa situação.

Dessa forma, o design integrado à acessibilidade sensorial se faz como uma necessidade para a qualidade de vida não somente de uma minoria, mas de todas as pessoas.

Os resultados dos testes e entrevistas trouxeram conclusões importantes acerca de recursos arquitetônicos mais desejáveis e menos desejáveis para a boa qualidade sensorial e acessibilidade dos edifícios.

Uma lista-resumo com os apontamentos dos testes está exposta a seguir, classificada em apontamentos feitos pelos participantes cegos da pesquisa e apontamentos feitos pelos participantes com baixa-visão da pesquisa. Os resultados dos dois grupos foram bastante semelhantes, apesar das conclusões dos que possuíam baixa-visão conterem mais detalhes pela possibilidade de usar o sentido remanescente da visão nos testes.

1 1 3 . 2 - a a c e s s i b i l i d a d e s e n s o r i a l
( T R A D U Ç Ã O L V R E - R Y H L 2 0 0 9 P 0 5 )

p a r a o s c e g o s r e c u r s o s a r q u i t e t ô n i c o s m a i s d e s e j á v e i s : b o a a c ú s t i c a p o n t o d e r e f e r ê n c i a r e c u r s o s a r q u i t e t ô n i c o s a v a l i a d o s c o m o p o s i t i v o s n o s t e s t e s : l u z d o s o l f i l t r a d a a b e r t u r a s h o r i z o n t a i s á r e a s s e m d e s n í v e i s a c ú s t c a c o e r e n t e c o m o e s p a ç o t e m p o d e r e v e r b e r a ç ã o d o s o m a b a i x o d e 0 , 7 s e g u n d o s n o a m b i e n t e p o n t o s d e r e f e r ê n c i a p é - d i r e i t o m a i s b a x o t e t o n c l i n a d o F G U R A 7 - A M B E N T E M

p a r a o s c o m b a i x a - v i s ã o

r e c u r s o s a r q u i t e t ô n i c o s m a i s d e s e j á v e i s :

b o a a c ú s t i c a l u z d o d i a r e c u r s o s

a r q u i t e t ô n i c o s

a v a l i a d o s c o m o

p o s i t i v o s n o s t e s t e s :

t e m p o d e r e v e r b e r a ç ã o d o s o m n o e s p a ç o e n t r e 0 , 5 e 0 , 7 s e g u n d o s

c l a r a b o i a s t r a z e m

c o n t r a s t e q u e a j u d a n a

n a v e g a ç ã o n o e s p a ç o

c o n e x õ e s d o i n t e r i o r c o m

á r e a s e x t e r n a s

a j a r d i n a d a s

á r e a s s e m d e s n í v e i s l u z d o d i a c o n t r a s t e s d e l u z m a i s s u a v e s

p é - d i r e i t o m a i s b a i x o

a c ú s t i c a c o e r e n t e c o m o

e s p a ç o

1 2
1
1 5 )
E L H O R B E M A V A L A D O P E L O S P A R T C P A N T E S C E G O S N O S T E S T E S 1 1 - F O N T E R Y H L C A M L A ( 2 0
0 P
F G U R A 8 - A M B E N T E M E L H O R B E M A V A L A D O P E L O S P A R T C P A N T E S C O M B A X A - V S Ã O N O S T E S T E S 1 1 - F O N T E R Y H L C A M L A ( 2 0 0 P 1 5 )

Os resultados obtidos puderam levar à conclusão de que, tanto para cegos quanto para os que possuem baixa-visão, as características da arquitetura; acústica, aberturas e proporções espaciais influenciam bastante na qualidade de vida daqueles que possuem deficiências visuais (Ryhl, 2010).

Camila Ryhl enfatiza ainda que a acessibilidade sensorial não pode ser tratada como um reparo pós ocupação pois não se trata de mudanças fáceis de serem feitas. As decisões de utilizar mecanismos do design ligados à qualidade de vida dos que possuem deficiência sensorial deve ser algo pensado desde a concepção de projeto, caso o objetivo seja construir um ambiente acessível sensorialmente a todos.

1 3

a l d e p r o j e t o

A casa MAC é uma casa desenvolvida pelo escritório So & So Studio para uma mulher cega em Thiene, Itália. Segundo a equipe a intenção era projetar um espaço inteligente, elegante e intuitivo para que a cliente pudesse circular confortavelmente por toda a casa.

Para isso, a equipe de projeto criou um piso com uma linguagem gráfica simples de diferentes texturas que pudessem servir de guia através da casa. Dentro da paginação do piso de madeira, peças de pedra indicam para a cliente onde é necessário parar, continuar, os locais onde há uma conexão funcional entre os espaços e onde há indicadores de direção.

É possível notar também a grande disponibilidade de janelas na casa, garantindo o acesso da luz natural em abundância. Tal fator é fundamental para a orientação do deficiente visual.

Além do piso, a planta foi criada a partir de um corredor central único, para evitar o efeito labiríntico dentro da casa e ajudar no processo de compreensão do novo espaço pela cliente, facilitando suas atividades diárias. O corredor central liga do quarto à cozinha passando pelo quarto de hóspedes, banheiro e sala de estar.

( F G U R A 9 - C A S A M A C / S O & S O S T U D O F O N T E h t t p s / / w w w p a t a f o r m a a r q u t e c t u r a c / c / 9 0 1 0 1 5 / d s e n a n d o - u nn u e v o - h o g a r - p a r a - u n - c e n t e - c e g o - s o - a n d - s o - s t u d o ? a d m e d u m = g a e r y )

( F G U R A 1 0 - C A S A M A C / S O & S O S T U D O F O N T E h t t p s / / w w w p a t a f o r m a a r q u t e c t u r a c / c / 9 0 1 0 1 5 / d s e n a n d ou n - n u e v o - h o g a r - p a r a - u n - c e n t e - c e g o - s o - a n d - s o - s t u d o ? a d m e d u m g a e r y )

s e n a n d o - u n - n u e v o - h o g a r - p a r a - u n - c e n t e - c e g os o - a n d - s o - s t u d o ? a d m e d u m g a e r y

4 . 1 - c a s a M A C
/ S o & S o S t u d i o
( F G U R A 7 - C A S A M A C / S O & S O S T U D O F O N T E h t t p s / / w w w p a t a f o r m a a r q u t e c t u r a c / c / 9 0 1 0 5 / d s e n a n d ou n - n u e v o - h o g a r - p a r a - u n - c e n t e - c e g o - s o - a n d - s o - s t u d o ? a d m e d u m g a e r y ) 4 .
r e f e r e n c i
( F G U R A 1 1 - C A S A M A C / S O & S O S T U D O F O N T E
c / 9 0 0 5 /
1 4
h t t p s / / w w w p a t a f o r m a a r q u t e c t u r a c /
d
)

Dentro do processo de projeto, a equipe da So & So Studio teve que buscar soluções criativas para que cada detalhe do interior da casa fosse construído em conjunto com a cliente a fim de entender seus hábitos e rotas mais comuns dentro da antiga casa e otimizar sua rotina na nova. Inclusive, para a apresentação do projeto, em que a equipe não apenas desenvolveu imagens, como é comum ser feito nos escritórios de arquitetura, mas construiu maquetes a fim de discutir com a cliente quaisquer alterações no design.

( F G U R A 1 2 - C A S A M A C / S O & S O S T U D O F O N T E h t t p s / / w w w p a t a f o r m a a r q u t e c t u r a c / c / 9 0 1 0 1 5 / d s e n a n d o - u n - n u e v o - h o g a r - p a r a - u n - c e n t e - c e g o - s oa n d - s o - s t u d o ? a d m e d u m = g a e r y ) ( F G U R A 1 3 - C A S A M A C / S O & S O S T U D O F O N T E h t t p s / / w w w p a t a f o r m a a r q u t e c t u r a c / c / 9 0 1 0 1 5 / d s e n a n d o - u n - n u e v o - h o g a r - p a r a - u n - c e n t e - c e g o - s oa n d - s o - s t u d o ? a d m e d u m = g a e r y ) ( F G U R A 1 4 - C A S A M A C / S O & S O S T U D O F O N T E h t t p s / / w w w p a t a f o r m a a r q u t e c t u r a c / c / 9 0 1 0 1 5 / d s e n a n d o - u n - n u e v o - h o g a r - p a r a - u n - c e n t ec e g o - s o - a n d - s o - s t u d o ? a d m e d u m g a e r y ) 1 5

A Residência dos Três Pátios é uma casa desenvolvida baseada no método arquitetônico indiano Vastu, no qual o ambiente da casa é organizado buscando a harmonia através da construção e da arquitetura. A intenção é proporcionar uma melhor conexão entre o interior e o exterior trazendo mais energia de vida para os moradores.

O conceito principal do projeto é desenvolvido através de experiências com diferentes temas para os usuários através da disposição dos ambientes, principalmente dos três pátios da casa. Cada pátio tem um tema diferente ligado aos elementos da natureza; luz, terra e água.

A experiência da luz no projeto é sentida através do pátio Puja, no qual a intensidade de luz e sombras provocadas pelo pergolado vão mudando conforme passa o dia. O ambiente pode ir de sombras mais marcadas e dramáticas a sombras suaves que evocam tranquilidade.

Já, no pátio Árvore, os moradores podem ter a experiência da terra. A terra é um elemento muito importante dentro da filosofia Vastu, pois é ligada aos nossos 5 sentidos. O pátio Árvore é um ambiente de pé direito duplo localizado no centro da residência, de onde todos os outros ambientes conseguem ter visualização dele fazendo-o um ponto focal da casa. A intenção é trazer os espaços verdes para o interior da casa e não somente limitá-los ao exterior.

Um espelho d'água próximo à entrada da residência traz as experiências da água. A intenção é que os moradores tenham um momento de pausa antes de adentrar os outros ambientes. A água é um elemento ligado à paz e pureza, além de tradicionalmente estar ligada à harmonia e magia.

g e - a r c h t e c t u r e - s t u d o ? a d s o u r c e s e a r c h & a d m e d u m p r o e c t s t a b )

d o s - t r e s - p a t o s - c o a g e - a r c h t e c t u r e - s t u d o ? a d s o u r c e s e a r c h & a d m e d u m p r o e c t s t a b )

n

4 . 2 - R e s i d ê n c i a d o s T r ê s P á t i o s / C o l l a g e A r c h i t e c t u r e S t u d i o
( F G U R A 1 5 - R E S D Ê N C A D O S T R Ê S P Á T O S / C O L L A G E A R C H T E C T U R E S T U D O F O N T E h t t p s / / w w w a r c h d a y c o m b r / b r / 9 3 9 9 6 8 / r e s d e n c a - d o s - t r e s - p a t o s - c o a g e - a r c h t e c t u r e - s t u d o ? a d s o u r c e = s e a r c h & a d m e d u m = p r o e c t s t a b ) ( F G U R A 1 6 - R E S D Ê N C A D O S T R Ê S P Á T O S / C O L L A G E A R C H T E C T U R E S T U D O F O N T E h t t p s / / w w w a r c h d a y c o m b r / b r / 9 3 9 9 6 8 / r e s d e n c a - d o s - t r e s - p a t o s - c
( F G U R A 1 7 - R E S D Ê N C A D O S T R Ê S P Á T O S / C O L L A G E A R C H T E C T U R E S T U D O F O N T E h t t p s / / w
a
b
/ 9 3 9 9 6 8 / r e s d
1 6
o a
w w
r c h d a y c o m b r /
r
e
c a -

Além dos três pátios, toda a casa foi pensada para trazer elementos físicos que trouxessem experiências sensoriais positivas para os moradores. Fatores climatológicos, os materiais, design, água, luz, céu, terra, vegetação se unem para criar um espaço único, aconchegante e moderno.

T O S / C O L L A G E A R C H T E C T U R E S T U D O F O N T E h t t p s / / w w w a r c h d a y c o m b r / b r / 9 3 9 9 6 8 / r e s d e n c a - d o st r e s - p a t o s - c o a g e - a r c h t e c t u r e - s t u d o ? a d s o u r c e = s e a r c h & a d m e d u m = p r o e c t s t a b )

( F G U R A 1 8 - R E S D Ê N C A D O S T R Ê S P Á T O S / C O L L A G E A R C H T E C T U R E S T U D O F O N T E h t t p s / / w w w a r c h d a y c o m b r / b r / 9 3 9 9 6 8 / r e s d e n c a - d o s - t r e sp a t o s - c o a g e - a r c h t e c t u r e - s t u d o ? a d s o u r c e s e a r c h & a d m e d u m p r o e c t s t a b ) 1 7 ( F G U R A 1 9 - R E S D Ê N C A D O S T R Ê S P Á
( F G U R A 2 0 - R E S D Ê N C A D O S T R Ê S P Á T O S / C O L L A G E A R C H T E C T U R E S T U D O F O N T E h t t p s / / w w w a r c h d a y c o m b r / b r / 9 3 9 9 6 8 / r e s d e n c a - d o st r e s - p
s - c o a g e - a r c h t e c t u r e - s t u d o ? a d s o u r c e = s e a r c h & a d m e d u m = p r o e c t s t a b )
a t o

. 3 - E s c o l a p a r a C r i a n ç a s C e g a s e D e f i c i e n t e s V i s u a i s / S E A l a b

A escola, localizada em Gandhinagar, Índia, é uma escola projetada especialmente se pensando nos alunos cegos e deficientes visuais. Desde a concepção do projeto os alunos participaram ativamente das decisões de design do edifício para que melhor se adaptasse às suas necessidades. A escola busca levar os alunos a usarem todos os 5 sentidos através das vivências no edifício.

A tipologia simples do edifício permite que os alunos criem um mapa mental da escola, as paredes possuem texturas diferentes para ajudar na identificação dos ambientes, os volumes, formatos e diferentes entradas de luz ajudam também a facilitar a identificação dos ambientes. A relação com o pátio externo e os espaços ao ar livre são muito importantes para a garantia de entrada de

corretas.

Visão - os alunos com baixa visão são amparados por claraboias e aberturas específicas que criam um contraste de luz e sombra que os ajudam a se guiar. Pés direitos duplos, cores contrastantes na porta, móveis e equipamentos específicos ajudam os estudantes a fazerem distinções com mais clareza.

Audição - os ambientes possuem alturas e larguras diferentes para que as crianças os reconheçam pelo som do eco dos seus passos e vozes. A qualidade sonora é fundamental para que os cegos e deficientes visuais saibam facilmente se chegaram à sala de aula ou se acabaram de passar pelo hall de entrada da escola.

Olfato - a escola possui árvores e plantas aromáticas nas varandas das salas de aulas e que se conectam aos corredores. Assim, pelo olfato, as crianças podem se situar melhor pelo edifício.

A S C E G A S E D E F C E N T E S V S U A S / S E A L A B F O N T E h t t p s / / w w w p a t a f o r m a a r q u t e c t u r a c / c / 9 0 1 0 1 5 / d s e n a n d o - u nn u e v o - h o g a r - p a r a - u n - c e n t e - c e g o - s o - a n d - s o - s t u d o ? a d m e d u m g a e r y )

s e n a n d o - u n - n u e v o - h o g a r - p a r a

c e n t e - c e g o - s o

1 8
4
iluminação e ventilação
( F G U R A 2 1 - E S C O L A P A R A C R A N Ç A S C E G A S E D E F C E N T E S V S U A S / S E A L A B F O N T E h t t p s / / w w w p a t a f o r m a a r q u t e c t u r a c / c / 9 0 1 0 1 5 / d s e n a n d o - u n - n u e v oh o g a r - p a r a - u n - c e n t e - c e g o - s o - a n d - s o - s t u d o ? a d m e d u m = g a e r y ) ( F G U R A 2 2 - E S C O L A P A R A C R A N Ç
( F G U R A 2 3 - E S C O L A P A R A C R A N Ç A S C E G A S E D E F C E N T E S V S U A S / S E A L A B F O N T E h t t p s / / w w w p a t a f o r m a a r q u t e c t u r a c / c / 9 0 1 0 5 /
-
-
a d m e
d
- u n
- a n d - s o
s t u d o ?
d u m g a e r y )

Tato - cinco diferentes texturas das paredes, de superfícies mais lisas às superfícies mais ásperas, ajudam os estudantes a se guiarem pelo edifício. Segundo a equipe de projeto:

"Os dois lados mais compridos da circulação têm texturas horizontais, enquanto o lado mais curto tem texturas verticais. Isto ajuda os estudantes a identificar quais faces do corredor estão percorrendo. O pátio central tem uma textura semicircular, enquanto a superfície externa do edifício em geral é de gesso cartonado." T R E C H O R E T R A D O D A D E S C R Ç Ã O D O P R O J E T O E M h t t p s / / w w w a r c h d a y c o m b r / b r / 9 8 5 0 3 1 / e s c o a - p a r a - c r a n c a s - c e g a s - e - d e f c e n t e sv s u a s - s e a a b ? a d s o u r c e = s e a r c h & a d m e d u m = p r o e c t s t a b

Piso - o piso da escola também orienta os alunos através da mudança de textura da pedra Kota utilizada em todo o projeto. A pedra Kota em acabamento áspero marca a entrada da sala de aula, enquanto a pedra em acabamento liso está presente nos demais espaços.

( F G U R A 2 5 - E S C O L A P A R A C R A N Ç A S C E G A S E D E F C E N T E S V S U A S / S E A L A B F O N T E h t t p s / / w w w p a t a f o r m a a r q u t e c t u r a c / c / 9 0 1 0 1 5 / d s e n a n d o - u n - n u e v oh o g a r - p a r a - u n - c e n t e - c e g o - s o - a n d - s o - s t u d o ? a d m e d u m g a e r y )

( F G U R A 2 6 - E S C O L A P A R A C R A N Ç A S C E G A S E D E F C E N T E S V S U A S / S E A L A B F O N T E h t t p s / / w w w p a t a f o r m a a r q u t e c t u r a c / c / 9 0 1 0 1 5 / d s e n a n d o - u n - n u e v oh o g a r - p a r a - u n - c e n t e - c e g o - s o - a n d - s o - s t u d o ? a d m e d u m = g a e r y )

( F G U R A 2 4 - E S C O L A P A R A C R A N Ç A S C E G A S E D E F C E N T E S V S U A S / S E A L A B F O N T E h t t p s / / w w w p a t a f o r m a a r q u t e c t u r a c / c / 9 0 1 0 1 5 / d s e n a n d o - u n - n u e v oh o g a r - p a r a - u n - c e n t e - c e g o - s
- a
-
-
m
m =
)
o
n d
s o
s t u d o ? a d
e d u
g a e r y
1 9

Hof Van Duivenvoorde é um centro de visitantes localizado na cidade de Voorschoten, Países Baixos. O centro foi solicitado aos arquitetos pela fundação Duivenvoorde para o lote do Castelo Duivenvoorde, monumento nacional da cidade. A ideia era que parecesse um celeiro, porém de forma que transmitisse acolhimento e conexão com o Castelo e entorno.

A fachada é toda de madeira ripada, com janelas e portas móveis. Tal escolha de projeto resultou em um desafio a parte para os arquitetos e a solução final uniu criatividade e tecnologia. As janelas acontecem de forma ritmada, porém com alturas de peitoril diferentes, o que provoca uma dança na fachada, melhor vista ainda à noite com as luzes internas acesas. As janelas sobem até a cobertura trazendo a luz para dentro da edificação por cima e fazendo conexão com o ambiente externo com uma bela vista do céu.

O programa inclui um restaurante, um museu e um espaço para os voluntários que levam os visitantes em visitas guiadas ao Castelo.

Apesar de pequeno, o centro de visitantes tem tamanho de 6X30 metros, Hof van Duivenvoorde aparenta ser grande pela extensão de seu espaço para a área externa e integração visual com o exterior.

( F G U R A 2 9 - H O F V O N D U V E N V O O R D E / 7 0 F A R C H T E C T U R E F O N T E h t t p s / / w w w a r c h d a y c o m b r / b r / 8 9 1 4 9 5 / h o f - v a nd u v e n v o o r d e - 7 0 f - a r c h t e c t u r e ? a d s o u r c e s e a r c h & a d m e d u m p r o e c t s t a b )

- 7 0 f - a r c h t e c t u r e ? a d s o u r c e s e a r c h & a d m e d u m p r o e c t s t a b )

F O N T E h t t p s / / w w w a r c h d a y c o m b r / b r / 8 9 1 4 9 5 / h o f - v a nd u v e n v o o r d e - 7 0 f - a r c h t e c t u r e ? a d s o u r c e s e a r c h & a d m e d u m p r o e c t s t a b )

h t t p s / / w w w a r c h d a y c o m b r

nd u v e n v o o r d e - 7 0 f - a r c h t e c t u r e ? a d s o u r c e s e a r c h & a d m e d u m p r o e c t s t a b )

4 . 4 - H o f v a n D u i v e n v o o r d e / 7 0 F a r c h i t e c t u r e
( F G U R A 2 7 - H O F V O N D U V E N V O O R D E / 7 0 F A R C H T E C T U R E F O N T E h t t p s / / w w w a r c h d a y c o m b r / b r / 8 9 1 4 9 5 / h o f - v a nd u v e n v o o r d e - 7 0 f - a r c h t e c t u r e ? a d s o u r
&
t a b ) ( F G U R A 2 8 - H O F V O N D U V E N V O O R D E / 7 0 F A R C H T E C T U R E F O N T E h t t p s / / w w w a r c h d a y c o m b r / b r / 8 9 1 4 9 5 / h o f - v a nd u v e n v o o r d e
c e s e a r c h
a d m e d u m p r o e c t s
0
H O F V O N D U V E N V O O R D E / 7 0 F A R C H T E C T U R E
( F G U R A 3 1 - H O F V O N D U V E N V O O R D E / 7 0 F A R C H T E C T U R E F O N T E
/ b r / 8 9 1 4 9 5 / h o f -
2 0
( F G U R A 3
-
v a

Foi escolhido o lote do Espaço Cultural de Taguatinga, ECT, para o terreno do projeto do centro cultural para deficientes visuais, apropriando-se de um bolsão de estacionamento no interior do lote. A escolha do terreno foi feita a partir da centralidade na RA, acessibilidade ao transporte público, comércio, equipamentos de cultura, lazer, características socioeconômicas da região e a proximidade com a Biblioteca Braille Dorina Nowill.

Taguatinga é um centro dinâmico e consolidado de muita importância no Distrito Federal. É um pólo de cultura, lazer, comércio e mercado de trabalho independente e em crescimento. É a quarta maior Região Administrativa do DF, segundo dados da PDAD 2021, com uma população de 208.177 habitantes. Dentro da PDAD foram levantados dados acerca das deficiências da população, os quais estão expostos no gráfico 3 a seguir.

2 1 5 . 1 - e s c o l h a d o l o c a l 5 . p r o p o s t a
( G R Á F C O 3 F O N T E C O D E P L A N / D E P S / G E R E P S / P D A D 2 0 2 ) M A P A C O M R E C O R T E D E T A G U A T N G A S E M E S C A L A F O N T E M A P A A U T O R A L F E T O A P A R T R D E D A D O S G E O R R E F E R E N C A D O S M A P A D O D F S E M E S C A L A F O N T E M A P A A U T O R A L F E T O A P A R T R D E D A D O S G E O R R E F E R E N C A D O S

Analisando os gráficos é percebido uma demanda dentro da RA na questão da acessibilidade visual, de infraestruturas que atendam à essa comunidade com imparidade visual em Taguatinga. Nesse sentido, é possível apontar benefícios futuros advindos da implantação do projeto do centro cultural na RA.

No sentido da acessibilidade a localização do terreno favorece o deficiente visual por se situar no ponto de maior circulação de toda a cidade, o Setor Central, ou Taguatinga Centro. Nele estão os principais cruzamentos que interligam as demais regiões da cidade, avenida Elmo Serejo e avenida Samdu. Locais de maior oferta de linhas de ônibus, além de um forte comércio, com grande movimentação de pessoas e parte dos órgãos institucionais. É próximo à Praça do Relógio, símbolo da cidade, da Administração Regional e da estação de metrô Praça do Relógio.

Em especial, a proximidade com a Biblioteca Braille Dorina Norwill, foi fator crucial para a escolha do lote de implantação do projeto. Ela é a única biblioteca pública com acervo especialmente voltado para o deficiente visual no DF. Acredita-se que a inserção do centro cultural acessível e sensorial no lote contribuirá positivamente para a comunidade com deficiência visual, assim como toda a comunidade que acessa o Espaço Cultural de Taguatinga.

i o t e c a b r a i l l e d o r i n a n o w i l l

Fundada em 17 de Maio de 1995 o espaço da biblioteca braille conta com a presença de vários públicos, com predomínio de idosos e adultos. Dinorá Couto, a fundadora do espaço, conta em entrevista para o MEC que o espaço se tornou uma referência por seu acervo braille e também pela socialização. Sendo a única biblioteca pública, as pessoas naturalmente a procuram quando necessitam de um espaço inclusivo e educativo. Além dos idosos e adultos, crianças e jovens também procuram o espaço diariamente, voluntários se oferecem para prestar serviços e ajudar no funcionamento da biblioteca.

Nesse sentido, apesar da devida relevância do espaço para a comunidade brasiliense a biblioteca ainda conta com um espaço pequeno frente às demandas do público que a frequenta.

2 2
Ç S E M E S C A L A F O N T E M A P A A U T O R A L F E T O A P A R T R D E M A G E M D O G O O G L E M A P S AV. ELMO SEREJO PRAÇA DO RELÓGIO ESPAÇO CULTURAL DE TAGUAT NGA A V . S A M D U EIT 5
. 2 - b i b l
( F G U R A 3 2 - B B L O T E C A B R A L L E D O R N A N O W L L F O N T E F O T O T R A D A P E L A A U T O R A ( F G U R A 3 3 - B B L O T E C A B R A L L E D O R N A N O W L L F O N T E F O T O T R A D A P E L A A U T O R A

O entorno do Espaço Cultural de Taguatinga é bastante movimentado e diverso. A avenida Comercial, que se encontra na fachada principal do Espaço, tem um caráter bastante comercial com diversas lojas de variedades, roupas, comidas e tem um fluxo intenso de carros e pessoas. Faz ligação com a avenida Elmo Serejo e a Praça do Relógio. A avenida das Palmeiras, à norte do terreno tem um fluxo de carros moderado, nela se encontram algumas lojas, porém o caráter residencial predomina com lotes de residências multifamiliares de 11 pavimentos e lotes de residências unifamiliares de até 2 pavimentos. À sul do terreno encontra-se a rua do Corpo de Bombeiros, via de conexão da avenida Samdu com a avenida Comercial. Nela predominam lotes de uso misto. Na fronteira oeste do terreno encontra-se a Escola Industrial de Taguatinga, EIT. Segundo a LUOS, o lote do ECT e da EIT são um só, porém atualmente uma grade separa a escola do espaço cultural.

Dentro do Espaço Cultural de Taguatinga encontram-se os edifícios de grande relevância cultural e histórica para a comunidade; o Teatro da Praça, que antes era o auditório da EIT mas através do sonho e inquietações de alunos e artistas se tornou um espaço destinado unicamente à produção de arte, a Biblioteca Machado de Assis, única biblioteca pública de Taguatinga, a Academia Taguatinguense de Letras, a qual exerce um grande trabalho em prol da cultura com doações de livros à escolas e bibliotecas públicas, organização de saraus e recitais de música e poesia, e a Biblioteca Braille Dorina Nowill, a qual veio transferida de uma pequena sala da Escola Classe 06 para uma área maior no Espaço Cultural, abrigando hoje 2 mil exemplares, com 800 títulos. Outras funções que ocorrem na biblioteca é a organização de rodas de leitura, saraus de música ou simplesmente encontro de pessoas da comunidade frequentadora do espaço.

2 3 5 . 3 - a n á l i s e d o t e r r e n o e e n t o r n o
E S C O L A T É C N C A D E T A G U A T N G A E S P A Ç O C U L T U R A L D E T A G U A T N G A B B L O T E C A M A C H A D O D E A S S S A C A D E M A T A G U A T N G U E N S E D E L E T R A S B B L O T E C A B R A L L E D O R N A N O W L L T E A T R O D A P R A Ç A S A L A S D A C O O R D E N A Ç Ã O D A E I T

t o p o g r a f i a e r u í d o s e x t e r n o s

2 4 A V C O M E R C I A L AV DO CORPO DE BOMBEIROS AV DAS PALMEIRAS
r n o F L U X O D E Á G U A S P L U V A S
v i s u a i s d o e n t o

Segundo a tabela de destinações da Lei de Uso e Ocupação do Solo - LUOS, o lote se classifica como Institucional Equipamento Público - Inst EP. Sobre essa classificação de lote, a lei dispõe:

Art. 5º [...] IX - UOS Inst EP - Institucional Equipamento Público, onde são desenvolvidas atividades inerentes às políticas públicas setoriais, constituindo lote de propriedade do poder público que abrigue, de forma simultânea ou não, equipamentos urbanos ou comunitários;

Art.11° [...] § 2º Os lotes de UOS Inst EP podem ser compartilhados por 2 ou mais equipamentos urbanos ou comunitários. (Acrescido(a) pelo(a) Lei Complementar 1007 de 28/04/2022)

Uma tabela resumo dos parâmetros expostos no texto da LUOS são demonstrados a seguir:

L O C A L D E I M P L A N T A Ç Ã O D O P R O J E T O e s t u d o b i o c l i m á t i c o 2 5 CFA B CFA M TX OCUP (%) TX PERM (%) ALT MAX SUBSOLO 9,00 9,00 80 20 12,00 PERMITIDO - TIPO 1
T R E C H O R E T R A D O D A L U O S

6 . 1 - d i r e t r i z e s d e p r o j e t o

Após cuidadosa análise do embasamento teórico e dos referenciais foi possível chegar à conceitos fundamentais que guiarão a tomada de decisões do projeto que, se seguidos corretamente, nos levará ao proposto: um espaço cultural para uma casa modelo acessível e sensorial para deficientes visuais.

Dentro do conjunto de diretrizes deste projeto estão; a promoção de um espaço cultural e de ensino que exponha para a comunidade as possibilidades para moradia em que o usuário deficiente visual possa desfrutar de livre acessibilidade, e que o espaço arquitetônico promova experiências sensoriais que aprimorarão e trarão maior qualidade de vida à vivência desse usuário.

Em outras palavras, é permitido ao deficiente visual romper as barreiras das limitações físicas e dar a ele a autonomia de experimentar de uma vida cotidiana cercada de estímulos sensoriais agradáveis e utilitários a ele através da exploração dos recursos arquitetônicos destinados à construção de uma casa.

d i r e t r i z e s :

a c e s s i b i l i d a d e e x p e r i ê n c i a s s e n s o r i a i s c o n f o r t o t é r m i c o i n t e g r a ç ã o i n t e r n o - e x t e r n o c o n f o r t o s e n s o r i a l a o u s u á r i o

programa de necessidades

Recepcionar os visitantes e os funcionários do espaço com balcão de atendimento e sofás para espera.

Espaço para que os grupos de visitantes do centro cultural possam aguardar de forma confortável o guia que conduzirá a visita

pessoal dos visitantes do espaço adaptado para pessoas com deficiência

refeições eves, snacks, lanches e que comporte espaço para mesas e cadeiras.

6 .
d e s e n h o s d e p r o j e t o
Recepção / Lobby
Setor Público Objetivo Qtd Área Mínima Área Total
1 94m²
Espera
1 34m² 34m² Sanitários
4 18m² 71m² Café Proporcionar
1 9m²
Auditório Audtório
1 96m² 96m²
94m²
Higiene
9m²
para palestras e seminários que comportem até 60 pessoas.
2 6

Espaço destnado ao ensino da comunidade através da promoção de oficnas, aulas, exposições

5 48m² 260m²

Administração

Á r e a t o t a l S e t o r P ú b l i c o = 5 6 4 m ² Setor de

Sala de trabalho dos funcionários da administração do centro cultural

Espaço para ensino prático da arquitetura com acessiblidade sensoral através de breve vivência da comundade à casa modelo

1 219m² 219m²

Recepcionar o público

autorizado a acessar a administração com espaço para mesa da recepção e bancos para a espera

Á r e a t o t a l S e t o r d e E n s i n o P r á t i c o =

1 9 m ²

1 13m² 13m²

1 24m² 24m² Sala de reunões

Espaço para reuniões dos funcionários da administração

1 22m² 22m²

Segurança

Sala de monitoramento das câmeras de segurança do espaço e espaço dos vigilantes

1 21m² 21m²

Diretoria Sala do administrador do espaço 1 14m² 14m²

Copa Espaço de aimentação dos funcionários da administração 1 13m² 13m² Á r e a t o t a l S e t o r A d m i n i s t r a t i v o = 1 0 7 m ²

Á r e a t o t a l C e n t r o C u l t u r a l = 8 9 0 m ²

Setor Administrat
Área Mínima Área Total Recepção
vo Objetivo Qtd
/ Espera
2 7
Salas Multiuso / Oficinas
Ensino Prático
Área Mínima Área Total
Objetivo Qtd
Casa Modelo para Deficientes Vsuais
2

nova marcação dos limites da cerca

novo desenho de praça para mehor acesso de pedestres

demolir prédio subutilizado e remanejar uso para edificação a ser construída próxima à EIT

edificação a ser construída para acomodar usos da EIT

planta baixa

implantação - atual

escala 1: 750

2 8

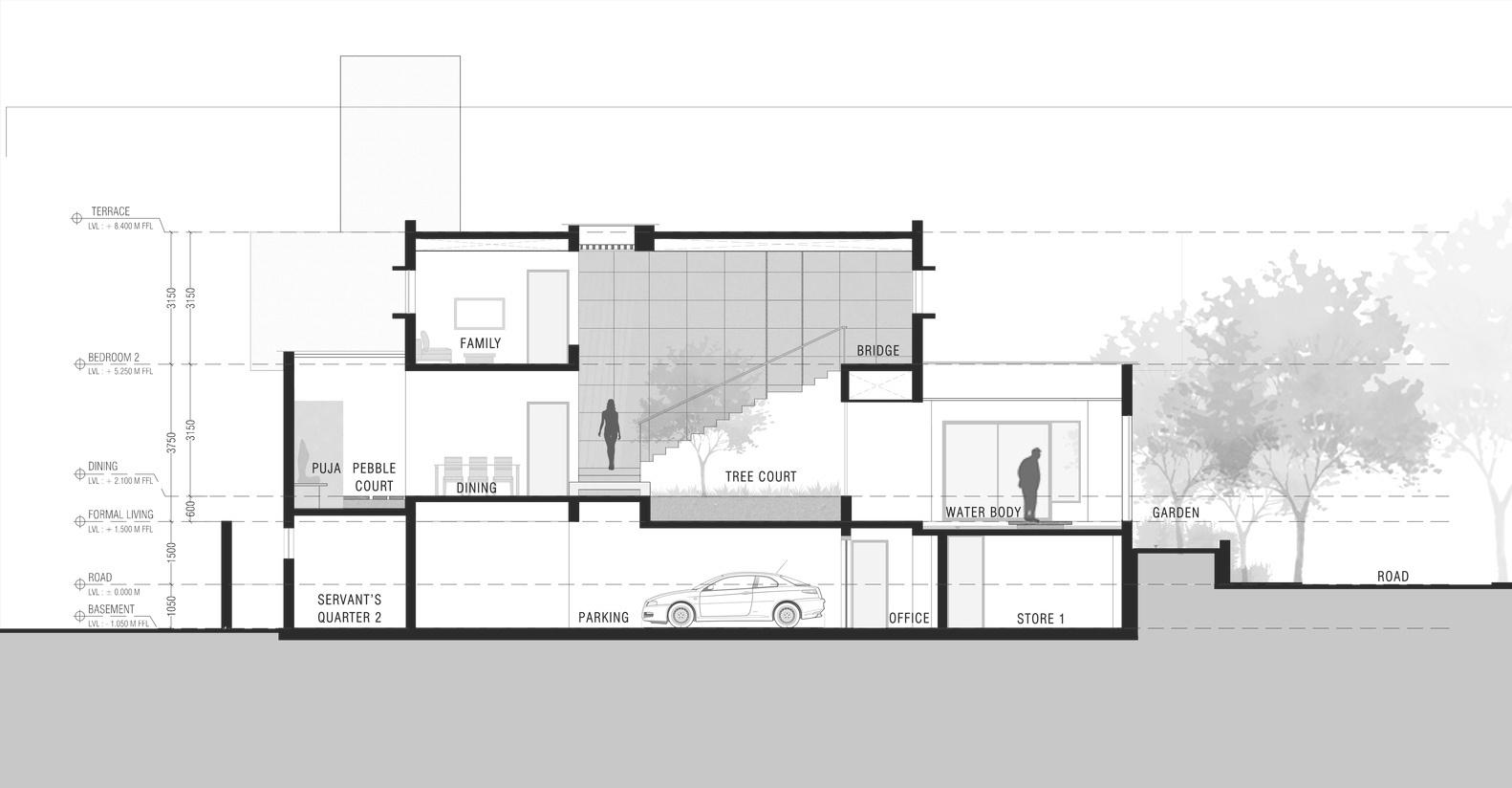
A partir da necessidade de construir um volume em que os setores do centro cultural pudessem ter conexão entre si, garantir o contato dos visitantes com a arborização interna e permitir uma circulação confortável entre os espaços que foi proposta uma volumetria com pátio interno central e fachadas valorizando a conexão com as ruas e avenidas próximas, locais de circulação e chegada para os visitantes. O programa dessa forma foi otimizado, com dimensões mais coerentes com a escala do centro cultural.

A cobertura central guia os visitantes no percurso pelo edifício o que permite uma locomoção facilitada e desimpedida evitando o efeito labiríntico que dificulta a locomoção dos deficientes visuais.

planta baixa

implantação - proposta

escala 1: 750

1 - ponto de ônibus

2 - área de praça

3 - acesso de pedestres

4 - academia taguatnguense de etras

5 - bibioteca machado de assis

6 -teatro da praça

7- acesso de carros

8 - escola ndustrial de taguatnga

9 - páto interno

3 2 6 4 5 8 7 1 9
2 9 > >

planta baixa térreo

escala 1: 300

1 - foyer / recepção

2 - espera

3 - ate ê de pntura

4 - ate ê de teatro

5 - ate ê de músca

6 - banheros

7 - saa de convvência / café

8 - saas mutuso

9 - auditóro

10 - páto nterno / ardm sensora

11 - casa modeo para defcentes visuas

12 - recepção admnstração

13 - saa da admnstração

14 - sala de reuniões

15 - saa da segurança

16 - copa

17 - amoxerfado

18 - saa do admnistrador

19 - bb oteca bra e dorna now

2 3 4 5 6 7 8 9 0 2 3 1 5 6 7 8 6 6 9 8
3 0

planta baixa

1° pavimento

escala 1: 300

1 - páto nterno / ardm sensora

2 - casa modeo para defcentes vsuas

2 3 1

O centro de Taguatinga é uma área com grandes comércios e diversos equipamentos de uso cotidiano como escolas, igrejas, administração pública e etc, o que torna o fluxo de pessoas, principalmente de carro bastante intenso e as vagas para estacionar raras. Nesse sentido com a implantação do centro cultural na área, prover espaço para estacionamento de carros dentro do centro cultural se tornou uma necessidade de projeto. O estacionamento subsolo do centro cultural dorina nowill além de acomodar o uso dos frequentadores funciona também como fonte de renda para a manutenção e funcionamento do espaço através do aluguel das vagas de estacionamento em dias de espetáculo no teatro da praça, que fica ao lado do centro cultural.

Para a adequada ventilação do subsolo foi proposto um sistema de ventilação mecânica através de exaustores que conduzem o ar viciado para fora.

planta técnica subsolo

escala 1: 300

3 2
1 - depósto

estratégiassensoriaisedeacessibilidade

jardiminternosensorial

A proposta para o jardim interno sensorial é que ele estimule as pessoas a desenvolverem sensações e sentimentos únicos através da vivência no jardim, seja ouvindo o som dos pássaros, sentindo o perfume das flores, tocar as texturas de pedra, grama, madeira ou simplesmente descansando a mente.

Geralmente não paramos para notar os cinco sentidos no nosso cotidiano agitado, mas quando um desses sentidos nos falta começamos a notar seu valor, nesse âmbito o jardim trás sensibilização para os visitantes além de proporcionar a inclusão social através da acessibilidade.

Para garantir a acessibilidade sensorial foram pensadas em estratégias como plantas em alturas diferentes, mais baixas e altas para que as pessoas com dificuldade de acesso e locomoção pudessem tocá-las e senti-las, circulação ampla e sem desníveis, pontos de referência claros para que pessoas com deficiência visual possam se locomover com mais facilidade.

As estratégias para desenvolvimento dos cinco sentidos no jardim são descritas a seguir:

olfato

Para desenvolver o olfato foram escolhidas ervas aromáticas como tomilho, erva doce, manjericão, alecrim e flores como gardênias, jasmins e capim limão.

paladar

Para o paladar as ervas aromáticas acima também são ótimos estímulos além de frutas e frutos de pequeno porte e fácil acesso, como a acerola.

tato

Para o tato plantas de toque aveludado são essenciais, como as suculentas.

visão

Plantas e flores coloridas são ótimos estímulos visuais, para isso, flores com cores vibrantes foram inseridas no projeto como girassóis e orquídeas.

audição

A audição é estimulada no jardim pelo barulho das folhas ao vento, o som dos pássaros que são atraídos pelas plantas do jardim, como o beija-flor .

3 3

paisagismo

espéciesdevegetaçãosugeridas

árvores

n° nome popular nome científico florada

1 Ipê-amarelo-do-cerrado

Handroanthus ochraceus

JulhoSetembr o

2 Acerola Malpighia emarginata Ano todo

3 Aroeira Schinus terebinthifolia MaioJulho

aromáticas

4

Capim-cidreira ou Capimlimão Cymbopogon citratus -

5 Mini Gardênia Gardenia augusta -

6 Tomilho Thymus vulgaris L

primave ra, verão e outono

flores

7 Orquídea Bambu

Arundina Bambusifolia

Primave ra e Verão

8 Girassol

Helianthus annuus Prmaver a e Verão

folhagens 9 Capim do Texas Verde Pennisetum setaceum Ano todo

1 2 3 4 5 6 7 8 9

pisotátil

O piso tátil é essencial para a locomoção com segurança de pessoas com deficiência visual, dessa forma ele encontra-se por todo o centro cultural. Apesar de todo o projeto contemplar pontos claros de referência para o deficiente visual além de um percurso simples e continuado o piso tátil ainda assim é indispensável.

O piso tátil é marcado no próprio piso, fazendo parte da paginação do piso do centro cultural e obedece aos parâmetros estabelecidos pela NBR 90:50.

corrimãotátil

As escadas do centro cultural dorina nowill foram pensadas para serem estímulos para adaptação dos deficientes visuais. Elas contam com degraus sinalizados e sem recuos que possam fazer com que o pé fique preso e causar acidentes e também contam com corrimão tátil para auxiliar a navegação do deficiente visual através da escada. Através do sistema braille impresso no corrimão é possível que o deficiente visual seja informado de diferenças de piso e de quantos degraus faltam para completar a subida. Dessa forma, a diferença de piso não precisa ser algo que segregue o deficiente visual mas pode ser algo que o inclua e o promova, basta que haja projeto direcionado a isso. O centro cultural oferece, além das escadas, elevadores para condução de pessoas com dificuldade de locomoção.

( F G U R A 3 3 - P S O T Á T L P R O P O S T O P A R A Á R E A E X T E R N A P S O D E C O N C R E T O F O N T E h t t p s / / w w w b a u n e t z d e / m e d u n g e n / M e d u n g e nC h p p e r f e d A r c h t e c t s u e b e r g e b e n J a m e s - S m o nG a e r e 5 5 6 2 7 6 3 h t m F G U R A 3 4 - P S O T Á T L P R O P O S T O P A R A Á R E A N T E R N A F O N T E h t t p s / / p n m g c o m / o r g n a s / 8 c / 3 6 / c 6 / 8 c 3 6 c 6 8 f 3 e 6 c c 6 3 3 d f 8 6 b 4 d 0 4 1 6 f c 2 6 p g
F G U R A 3 - C O R R M Ã O T Á T L P R O P O S T O P A R A A S E S C A D A S F O N T E h t t p s / / w w w t u v e c o m / b r a e - s t a r c a s eh a n d r a - t o - n a v g a t e - v s u a y - m p a r e d - p e o p ew h e - o n - w a k n g - u p - o r - d o w n - s t a r s / 3 5

telhas cerâmicas

astro de cascaho membrana de betume po mérco

paca de soamento de fbra de madera 360mm

membrana de controe de vapor nte gente resistente a ntempéries

CLT 145mm (5 camadas)

DET ESQUEMÁTICO

planta baixa cobertura

escala 1: 300

cobertura plana em CLT
3 6

CAMADAS(deforapradentro): revestmentoamaderado rpasparasstemavent ado pacade soamentodefbrademadera CLT montantedemadera revestmentodedrywa

escala 1: 300

p ares em MLC 24x24cm

vgas em MLC

p aretes em madera 10x10cm

planta técnica estrutura
3 7
DET. ESQUEMÁTCO - PAREDE DE CLT TELHADO PAREDE EXTERNA

detalhesconstrutivos

3

4 - esquadrias

5 - fechamentos nternos e externos em panéis de CLT

6 - piso em painés de CLT

1 2 3 4 5 6 7
1 - cobertura de teha cerâmca i=35% 2- cobertura plana de MLC + piares seção quadrada 10x10cm - pórtico triartcuado em MLC com seção metálica
7 - fundação em lae radier
3 8 fonte magens catáogostécncosCrossameReWood
cortes escala 1: 300 01 subsoo -400 02 térreo 0 5 03 cobertura 500 corte 2 01 subsoo -400 02 térreo 015 03 pavmento 300 03 cobertura 800 3 9
escala 1: 300 corte 3 01 subsoo -400 02 térreo 015 03 cobertura 500 4 0
cortes
0 subsoo -400 02 térreo 015 03 1 pavmento 300
escala 1: 300 corte B 04 cobertura 800 0 subsoo -400 02 térreo 015 03 cobertura 500 corte A 4 1
cortes
escala 1: 300 0 subsoo -400 02 térreo 015 03 cobertura 500 corte C 4 2
cortes

elevações

escala 1: 200

4 3

elevações

escala 1: 200

4 4

ARCHDAILY. Você sempre desejou …? / M@ STUDIO Architects" [Haven’t you always wanted …? / M@ STUDIO Architects] 06 Mai 2017 ArchDaily Brasil Acessado 12 Jul 2022

<https://www.archdaily.com.br/br/870577/voce-sempre-desejou-m-at-studio-architects>

ISSN 07198906

ARCHDAILY. María Francisca González. "Arquitetura para deficientes visuais: espaços acessíveis e intuitivos" [Arquitectura para no videntes: espacios accesibles e intuitivos] 13 Set 2020 ArchDaily Brasil. (Trad. Libardoni, Vinicius) Acessado 25 Jul 2022.

<https://www archdaily com br/br/923102/arquitetura-inclusiva-a-intuitividade-invisivel-do-espaco>

ISSN 0719-8906

ARCHDAILY Residência dos Três Pátios / Collage Architecture Studio" [Story of Three Courts Residence / Collage Architecture Studio] 20 Mai 2020. ArchDaily Brasil. Acessado 25 Jul 2022.

<https://www archdaily com br/br/939968/residencia-dos-tres-patios-collage-architecture-studio>

ISSN 0719-8906

ARCHDAILY. Projetando uma nova casa para um cliente cego / So & So Studio" 01 Set 2018. Plataforma de Arquitetura. Acesso em 22 de jul 2022.

<https://www plataformaarquitectura cl/cl/901015/disenando-un-nuevo-hogar-para-un-clienteciego-so-and-so-studio> ISSN 0719-8914

ARCHDAILY. Escola para Crianças Cegas e Deficientes Visuais / SEAlab" [School for Blind and Visually Impaired Children / SEAlab] 12 Jul 2022. ArchDaily Brasil. Acessado 22 Jul 2022.

<https://www archdaily com br/br/985031/escola-para-criancas-cegas-e-deficientes-visuaissealab> ISSN 0719-8906

CAMPO GRANDE NEWS. Capital não tem espaço acessível e totalmente sem barreiras a deficientes. CAMPO GRANDE NEWS, 2015. Disponível em:

<https://www campograndenews com br/cidades/capital/capital-nao-tem-espaco-acessivel-etotalmente-sem-barreiras-a-deficientes>. Acesso em: 15/07/2022.

IBGE. CONCLA, 2010. Disponível em: <https://cnae.ibge.gov.br/en/component/content/article/957a12/7a12-vamos-conhecer-o-brasil/nosso-povo/16066-pessoas-comdeficiencia html#:~:text=S%C3%A3o%20mais%20de%2045%20milh%C3%B5es,e%2019%20teriam%20 defici%C3%AAncia%20visual>. Acesso em: 13/07/2022.

LOUIS BRAILLE. Estatísticas sobre deficiência visual no Brasil e no Mundo. Louis Braille, 2020. Disponível em: <https://louisbraille org br/portal/2020/04/13/> Acesso em 13/07/2022

LUOS. LEI COMPLEMENTAR Nº 948, DE 16 DE JANEIRO DE 2019. SINJ.DF,2019. Disponível em: <http://www sinj df gov br/sinj/Norma/fdab09844f754a998dea87e64a4b4d54/Lei Complementar 948 16 01 2019.html>. Acesso em: 13/07/2022.

MINISTÉRIO DA SAÚDE. Saúde da Pessoa com Deficiência. GOV.BR, 2020. Disponível em: <https://www gov br/saude/pt-br/assuntos/saude-de-a-a-z/s/saude-da-pessoa-comdeficiencia/saude-da-pessoa-com-deficiencia> Acesso em 13/07/2022

MINISTÉRIO DA SAÚDE. Censo Demográfico de 2020 e o mapeamento das pessoas com deficiência no Brasil. GOV.BR, 2019. Disponível em: <https://www2.camara.leg.br/atividadelegislativa/comissoes/comissoes-permanentes/cpd/arquivos/cinthia-ministerio-da-saude> Acesso em 13/07/2022.

PALLASMAA, Juhani. Os olhos da pele. A arquitetura e os sentidos. 1a edição, Porto Alegre, Bookman, 2011.

RYHL, Camila Inclusive Buildings, Products and Services - Challenges in Universal Design Tapir Academic Press, Trondheim, 2009.

UNIVERSIDADE FEDERAL DO CEARÁ. Conceito de acessibilidade. UFC, 2010. Disponível em: <https://www.ufc.br/acessibilidade/conceito-deacessibilidade#:~:text=No%20senso%20comum%2C%20acessibilidade%20parece%20evidenciar%20os%2 0aspectos,de%20pessoas%20nos%20v%C3%A1rios%20%C3%A2mbitos%20da%20vida%20social>. Acesso em 13/07/2022

7 . b i b l i o g r a f i a
4 5
o b r i g a d a !

Turn static files into dynamic content formats.

Create a flipbook
Issuu converts static files into: digital portfolios, online yearbooks, online catalogs, digital photo albums and more. Sign up and create your flipbook.