PORTA FO LIO


![]()


01. 02. 03.
Trabajos universitarios
Museo Memorial del Terrorismo en Ayacucho Proyecto final de carrera
Centro gastronómico Misturímac, Rímac Taller VI
Centro cultural, Rímac Taller V
Edificio Multifamiliar en Chacarilla, Surco AyD Inmobiliaria
Infraestructura temporal y modular Lima 2019, Juegos Panamericanos
Habitación principal en Ficus, San Isidro. Wait n´rest. 04. 05. 06. 07. Lounge de sleeping pods para el Pearson airport, Toronto, Canadá. Wait n´rest.
08. Sleeping pods para el International Miami airport, Miami, EEUU. Wait n´rest.
Año: 2020 - 2022
Autores: Camila Burneo y Andrea Guzman
Temáticas: terrorismo, paisajismo, landart, memorial, museo, espacio público.
Softwares: AutoCAD, Sketchup, Archicad, twinmotion, Illustrator, Photoshop.

Proyecto final de carrera (tesis) - Sanuario de la Memoria en La Hoyada, Ayacucho
El proyecto se basa en generar una grieta en la tierra, una abertura en el suelo que simboliza la herida abierta dejada por el terrorismo entre los años 1980 y 2000 en la ciudad de Ayacucho, Perú. Una brecha social y cultural, así como una apertura en el espacio - tiempo que permite al visitante viajar al pasado estando en el presente, pero siempre pensando en el futuro. El proyecto pretende generar un impacto tanto urbano como memorial, ser un hito importante en la ciudad, generar sentido de pertenencia e identidad, y promover el desarrollo de la memoria colectiva; con el objetivo de buscar en los ayacuchanos la conciencia, la reflexión, la inclusión y, sobre todo, la reconciliación “para que no vuelva a ocurrir”.

La experiencia del recorrido supone el antes, durante y después del período de violencia; entrando al proyecto desde las exhumaciones, continuando por las exposiciones con un constante juego de luces y sombras, cambios de escalas y vacíos que acompañan la atmósfera de cada sala y, culminando en un gran mirador hacia el entorno natural del exterior de la ciudad de Ayacucho que permite al visitante tener un momento de contemplación de la vida y reconciliación con su historia.


Al ubicarnos en un importante lugar de memoria (Santuario de la Memoria: La Hoyada) ; tomamos la decisión de generar un proyecto que complemente el sitio sin opacarlo, que dialoge con su entorno, lo respete y lo potencie. Por ello, proponemos un edificio subterráneo de carácter monolítico y lenguaje brutalista, que modifica la pendiente natural del cerro, se adapta a su entorno y responde a los principios del Land Art. El proyecto pretende generar un impacto tanto urbano como memorial, ser un hito importante en la ciudad, generar sentido de pertenencia e identidad, y promover el desarrollo de la memoria colectiva; con el objetivo de buscar en los ayacuchanos la conciencia, la reflexión, la inclusión y, sobre todo, la reconciliación “para que no vuelva a ocurrir”.





Proyecto de taller VI espacio público.

Ubicación: Rimac, Lima, Perú
Autor: Camila Burneo
Temática: Espacio Público
Softwares: AutoCAD, Sketchup, Illustrator, Photoshop.





El encargo era intervenir una manzana con equipamiento público, para lo que se planteó un centro gastronómico. Se tuvo en cuenta la irregularidad del terreno, el contexto urbano y el encargo de hacer un espacio público. Por lo tanto, la intención principal fue generar un sistema de plazas con un programa público a través de la arquitectura modular, generar un nivel semipúblico y también generar un nivel más privado para talleres o clases. El concepto de la propuesta se basa en un postre típico limeño que son las galletas/turrón de miel. Ya que están formados por muchas capas, al igual que el proyecto. Al igual que la galleta, existen 2 plataformas (terrazas con espacios públicos) y el relleno (espacios cerrados).










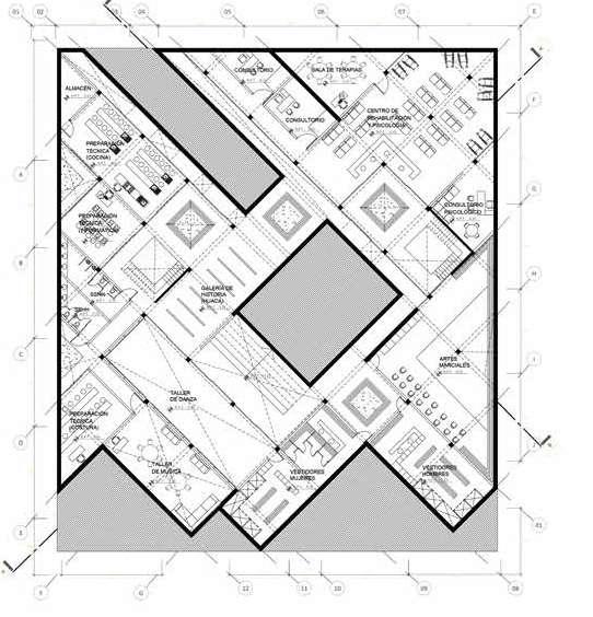
Proyecto de taller V, equipamiento cultural
El encargo era intervenir un terreno cuyo contexto urbano era muy importante ya que constaba de 2 fachadas, una estaba frente a una huaca, por lo que el proyecto debía darle valor y potenciarla.
La intención del proyecto fue poner en valor la Huaca a través de la conexión visual y física del parque ubicado frente a la otra fachada a la Huaca misma. Por ello, se decidió dividir el volumen en 2, jugar con las alturas, las fachadas clásicas de la zona y generar un pasaje del parque a la huaca con una escala peatonal que brindara una experiencia única al usuario.
Ubicación: Rimac, Lima, Perú
Autor: Camila Burneo
Temática: Equipamiento cultural
Softwares: AutoCAD, Illustrator, Photoshop.

Detalle de cocina, planos as built, edificio Conde de La Vega 159


Ubicación: Conde de la Vega 159, Batallón Callao Sur 352, Córdoba 134
Chacarilla, Surco
Empresa: AyD Inmobiliaria
Cargo: Arquitecta junior
Encargos: Detalles, planos as built, diseño de interiores, Diseño de muebles, planos comerciales, compatibilización, coordinación, supervisión de acabados.
Softwares: AutoCAD, Photoshop CRM Hubspot, Excel
Detalle del Lobby, edificio Conde de La Vega 159
Estuve involucrada en el área de arquitectura, post - venta y venta, siempre fui muy proactiva y de rápido aprendizaje. En arquitectura apoyé en cuanto a los planos as - built en la obra en etapa de acabados, también hice propuestas de áreas como la cocina para los clientes. Realicé detalles, diseño de muebles como el lobby, compatibilización de planos, coordinación directa con clientes (venta y post - venta) y con los operarios para la correcta ejecución de la obra.

Empresa: Lima 2019, Juegos Panamericanos y Parapanamericanos.
Cargo: Asistente de arquitectura
Encargos: Detalles, diseño de flujos, coordinación con contratistas y áreas funcionales en inglés, compatibilización de planos.
Softwares: AutoCAD, Sketchup, Illustrator, Photoshop, Word y Excel.
Estuve involucrada en el área de Overlay (Infraestructura temporal de los Panamericanos y Parapanamericanos Lima 2019.Trabajé junto a ARUP y el MTC. Estuve como asistente de arquitectura y como arquitecta junior en el Cluster de sedes de ceremonias y entrenamiento. Apoyé con levantamientos de las sedes existentes, compatibilización de planos, diseño de flujos y distribución modular, cortes, plantas, elevaciones, detalles, y planos para la municipalidad.

Boceto del Panam park en el Parque de la Exposición
2A Catering Storage / Almacén de Catering
2B Hydra�on / Hidratación
3 Recinto de Limpieza Y Residuos Sólidos / Clean and Waste Compound
4 Recinto de Logís�ca / Logis�cs Compound
6 Ambulancia Atletas / Athletes Ambulance
6A
Plano de la primer planta de la sede de Videna (Flujos y distribución)

Ubicación: Ficus, San Isidro.
Cargo: Arquitecta
Encargo: Diseño de habitación principal de una vivienda antigua
Softwares: sketchup, vray
Diseño de interiores para habitación principal
El encargo fue diseñar una habitación principal para remodelar parte de una vivienda antigua en San Isidro. El cliente era una pareja adulta con hijos mayores. Querían capturar la mayor cantidad de luz, por lo que se eligieron tonalidades neutras y claras. Querían una cama Queen, espejos para cada uno, quería aprovechar la zona de la ventana, además de agregar un escritorio/tocador, una iluminación artificial elegante y un mueble de entretenimiento minimalista y funcional.




Vista hacia espacio distribuidor de la sede que consta de un snack point polivalente
Local 2



El encargo fue el diseño interior de las 2 sedes propuestas para la licitación con el Pearson Airport en Toronto, Canadá. Se diseñó el exterior de las cabinas de descanso, así como otros espcios de la sede, como por ejemplo, el espacio distribuidor que consta de un snackpoint. Se tuvo de referencia e inspiración al arquitecto canadiense Frank Ghery, así como también a la arquitectura futurista que tiene Canadá.
Ubicación: Toronto, Canadá.
Cargo: Arquitecta
Encargo: Diseño del interior de los 2 locales
Softwares: sketchup, vray
El encargo fue el diseño interior de las cabinas de descanso (sleeping pods) de las sedes propuestas para la licitación con el aeropuerto de Miami. Se tuvo la intención de hacer varios diseños y que cada uno sea temático, inspirado en partes de Miami: Miami Beach y Wynwood.
Ubicación: Miami, EEUU
Cargo: Arquitecta
Encargo: Diseño del interior de las cabinas de descanso.
Softwares: sketchup, vray










