PORTAFOLIO 2025_ENG_ABR-comprimido

Page 1


PORT FO LIO

Camila Burneo Hesse
Licensed Architect 2O25

University Projects

Museum of Memory of Terrorism in Ayacucho

Final Degree Project

Misturímac Gastronomic Center, Rímac

Studio VI

Studio V 01. 02. 03.

Cultural Center, Rímac

Work Experience

Multifamily Building in Chacarilla, Surco A&D Real State

Temporary and Modular Infrastructure Lima 2019 Pan American Games

Master Bedroom, Ficus, San Isidro

Wait n'rest.

Sleeping Pod Lounge for Pearson Airport, Toronto, Canada

Wait n'rest

Sleeping Pods for Miami International Airport, Miami, USA

Wait n'rest

Year: 2020 – 2022

Authors: Camila Burneo & Andrea Guzman

Themes: Terrorism, Landscape Design, Land Art, Memorial, Museum, Public Space

Software: AutoCAD, SketchUp, ArchiCAD, Twinmotion, Illustrator, Photoshop

01 MEMORIAL MUSEUM OF TERRORISM IN AYACUCHO

Memorial Sanctuary – Final Degree Thesis La Hoyada, Ayacucho

The project is based on the idea of creating a crack in the earth — an opening in the ground that symbolizes the deep wound left by terrorism between 1980 and 2000 in the city of Ayacucho, Peru. It represents a social and cultural fracture, as well as a rupture in space and time that allows visitors to travel to the past while standing in the present, always with the future in mind.

This project aims to generate both urban and memorial impact, becoming a significant landmark in the city — one that fosters a sense of belonging and identity, and promotes the development of collective memory. Its ultimate goal is to awaken awareness, reflection, inclusion, and, above all, reconciliation among the people of Ayacucho — “so that it may never happen again.”

The experience of the journey encompasses the before, during, and after of the period of violence. The visitor enters the project through the exhumations, continues through the exhibitions with a constant play of light and shadows, changes in scale, and voids that accompany the atmosphere of each room. It culminates in a large viewpoint overlooking the natural surroundings outside the city of Ayacucho, offering the visitor a moment of contemplation of life and reconciliation with history and the past.

Situated in a significant place of memory (Memorial Sanctuary: La Hoyada), we made the decision to create a project that complements the site without overshadowing it — one that engages in dialogue with its surroundings, respects them, and enhances them.

Therefore, we propose an underground building with a monolithic character and brutalist language, which modifies the natural slope of the hill, adapts to its environment, and responds to the principles of Land Art. The project aims to generate both urban and memorial impact, becoming an important landmark in the city. It seeks to foster a sense of belonging and identity, promote the development of collective memory, and encourage awareness, reflection, inclusion, and above all, reconciliation among the people of Ayacucho

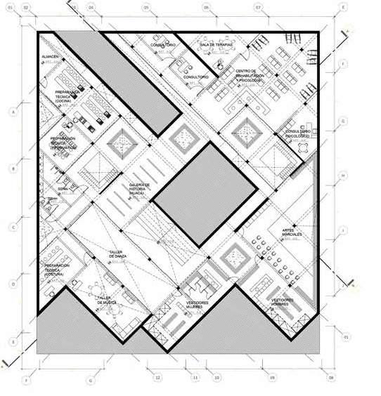
02 MISTURIMAC GASTRONOMIC CENTER

Location: Rímac, Lima, Peru

Author: Camila Burneo

Theme: Public Space

Software: AutoCAD, SketchUp, Illustrator, Photoshop

The brief was to intervene in a city block with public equipment, for which a gastronomic center was proposed. The irregularity of the land, the urban context, and the requirement to create a public space were all taken into account. Therefore, the main intention was to generate a system of plazas with a public program through modular architecture, creating a semi-public level as well as a more private level for workshops or classes.

The concept of the proposal is based on a typical limeño dessert — honey cookies/turrón. These are made up of many layers, just like the project. Similar to the cookie, there are two platforms (terraces with public spaces) and the filling (enclosed spaces).

03 CULTURAL CENTER

Studio V Project, Cultural Equipment

Location: Rímac, Lima, Peru

Author: Camila Burneo

Theme: Cultural Equipment

Software: AutoCAD, Illustrator, Photoshop.

The brief was to intervene in a plot of land where the urban context was very important, as it had two facades. One faced a huaca, meaning the project had to enhance and give value to it.

The intention of the project was to highlight the huaca through both the visual and physical connection to the park located in front of the other facade, opposite the huaca itself. Therefore, the decision was made to divide the volume into two, playing with the heights, the classical facades of the area, and creating a passage from the park to the huaca with a pedestrian scale that would provide a unique experience for the user..

Kitchen Detail, As-Built Plans, Conde de La Vega 159 Building

I was involved in the areas of architecture, post-sale, and sales, always being proactive and a fast learner. In architecture, I supported the as-built plans during the finishing stage of the project, and also made proposals for areas such as the kitchen for the clients. I created details, designed furniture such as the lobby, coordinated plans, and worked directly with clients (sales and post-sale) and with the workers to ensure the correct execution of the project.

Location: Conde de la Vega 159, Batallón Callao Sur 352, Córdoba 134, Chacarilla, Surco

Company: AyD Inmobiliaria

Position: Junior Architect

Responsibilities: Details, as-built plans, interior design, furniture design, commercial plans, plan coordination, supervision of finishes.

Software: AutoCAD, Photoshop CRM: Hubspot, Excel

04 RESIDENTIAL BUILDING

Lobby Detail, Conde de La Vega 159 Building

05 TEMPORARY INFRASTRUC

TURE

I was involved in the Overlay area (Temporary Infrastructure for the Lima 2019 Pan American and Parapan American Games). I worked alongside ARUP and the Ministry of Transport and Communications (MTC).

I worked as an architectural assistant and as a junior architect in the Cluster of Ceremony and Training Venues. I supported the survey of existing venues, plan coordination, design of flows and modular distribution, sections, floor plans, elevations, details, and plans for the municipality.

Company: Lima 2019, Pan American and Parapan American Games

Position: Architectural

Assistant

Responsibilities: Details, flow design, coordination with contractors and functional areas in English, plan coordination.

Software: AutoCAD, SketchUp, Illustrator, Photoshop, Word, and Excel

Facade Detail of the Broadcast Center, Located at the Lima Convention Center
Sketch of the Panam Park at the Parque de la Exposición

2A Catering Storage / Almacén de Catering

2B Hydra�on / Hidratación

3 Recinto de Limpieza Y Residuos Sólidos / Clean and Waste Compound

4 Recinto de Logís�ca / Logis�cs Compound

6 Ambulancia Atletas / Athletes Ambulance

6A

Location: Ficus, San Isidro

Position: Architect

Responsibility: Design of the master bedroom in an old house

Software: SketchUp, V-Ray

Interior Design for Master Bedroom

06 MASTER BEDROOM

The brief was to design a master bedroom to remodel part of an old house in San Isidro. The clients were an older couple with grown children. They wanted to capture as much natural light as possible, so neutral and light tones were chosen. They requested a Queen-sized bed, mirrors for each person, and wanted to make the most of the window area. Additionally, they wanted to add a desk/vanity, elegant artificial lighting, and a minimalist, functional entertainment unit.

Location: Toronto, Canada

Position: Architect

Responsibility: Interior Design of the 2 stores

Software: SketchUp, V-Ray

The brief was the interior design of the two proposed venues for the tender with Pearson Airport in Toronto, Canada.

The design included the exterior of the rest cabins, as well as other spaces within the venue, such as the distributor space, which includes a snack point.

The work was inspired by Canadian architect Frank Gehry, as well as the futuristic architecture characteristic of Canada.

07

SLEEPING POD LOUNGE

WAIT N' REST VENUES CANADA

View

The brief was the interior design of the rest cabins (sleeping pods) for the proposed venues for the tender with Miami Airport. The intention was to create several designs, each with its own theme, inspired by different parts of Miami: Miami Beach and Wynwood district.

Location: Miami, USA

Position: Architect

Responsibility: Interior Design of the Rest Cabins

Software: SketchUp, V-Ray

08 SLEEPING PODS WAIT N' REST VENUES

MIAMI

Views of the Interior of the Cabins Wynwood Pod
Views of the Interior of the Cabins
Views of the Interior of the Cabins

Turn static files into dynamic content formats.

Create a flipbook
Issuu converts static files into: digital portfolios, online yearbooks, online catalogs, digital photo albums and more. Sign up and create your flipbook.
PORTAFOLIO 2025_ENG_ABR-comprimido by Camila - Issuu