Education Design

Page 1


Education Design

BVH Architecture is a purpose-driven design practice committed to an immersive and collaborative creative process. We seek to create architecture which enhances and inspires the community in which it serves.

BVH got its start in 1968 and from the beginning we’ve had a focus on, and passion for, education. Schools are the heart of our communities, and research, knowledge sharing, and community conversations are what help propel the future of education forward. We wanted to share some of that with you—projects we’ve worked on, places we’ve visited, people we’ve met.

In the following pages you’ll see some of our favorite work. We hope you enjoy it and that perhaps it will help you think about your own education spaces.

While many at BVH are involved in our education work, our core team is composed of Principal and Education Design Lead, Cleve Reeves, Interior Designer, Cynthia Ray, and our Colorado K-12 Leader, Brooke Schubert. If you have any questions, or want to talk further about anything you find in these pages, don’t hesitate to reach out.

Cleve Reeves AIA, ALEP Architect / Principal creeves@bvh.com 402.325.1509

Cynthia Ray NCIDQ, WELL AP Interior Designer cray@bvh.com 402.905.9743

Brooke Schubert AIA, NCARB, LEED AP BD+C K-12 Leader, Architect bschubert@bvh.com 303.586.2191 ext. 179

The Philosophy of Learning.

At BVH, we believe in the power of architecture to enhance learning outcomes. Over the past five decades, BVH has built a strong reputation for Pre K–12 work because we see each project as a unique opportunity to serve students and teachers alike. Each project is an opportunity to improve the learning environment and experiences for generations to come. Our team of designers and education thought leaders strive to give specialized attention to what’s most important to each school for both teachers and students in moving education forward.

Understanding the Problem

The success of any learning environment rides on a holistic understanding of the educational goals and needs of the students and teachers. We aim to get at the heart of these needs through rigorous exploration—we ask deep questions, research cultural trends, challenge entrenched assumptions, gather data from student polls, and study alternative possibilities. The goal is not to reinvent school, but to make it more effective in bringing up future generations.

Identifying the Tools

Our physical surroundings have an enormous effect on our ability to focus, comprehend, retain, and synthesize new information. As designers of the built environment, we have a responsibility to equip our students and faculty with the best possible tools to give students the best chance at learning. Simple environmental factors within our purview such as daylight, fresh air, accurate temperature control, acoustics, and views can have a profound impact on teaching and learning environments.

Designing the Solution

Trends come and go. We focus on the overriding needs of teachers and learners while implementing proven best practices. We are able to utilize the knowledge gained through decades of successful collaborations with educators to bring each new facility to life. We help guide every type of education project—Pre-K, K-12, Learning Centers, Career & Technical education, renovations, additions, and new builds—through each phase of development to achieve the best design solution.

Learn more at BVH.com

The Process of Design.

We take our responsibility as designers of the built environment very seriously. Backed by a conviction to design better educational environments, we utilize a simple but powerful collaborative process to guide each project to completion.

Inquiry

Our process begins with rigorous inquiry and careful listening to understand your project, goals, challenges and opportunities. We dig deep into each project, looking for patterns and insights that provide context to solve your design problem. We challenge status quo solutions, and rely on proven data to guide insights and intuition. We also collaborate heavily at this stage with our clients to ensure we’re seeing the problem from every angle.

Exploration

This phase of the process leverages the knowledge gained through research, creating solutions to test and scrutinize through the lens of the project’s goals. As a result, your project rightly responds to the specifics of site, place, material and time. We utilize our expertise in performance-based design to test the developing concepts. The intent of this iterative process is to utilize research and real data to narrow our focus onto a single solution.

Resolution

Here, the design comes to life. Our process of inquiry and exploration culminates in a unique design suited perfectly to your project, responding to each need and opportunity to create the best solution possible. We carry the design from inception to completion, through each phase of design and documentation and finally to construction and post-occupancy, to ensure everything is done right.

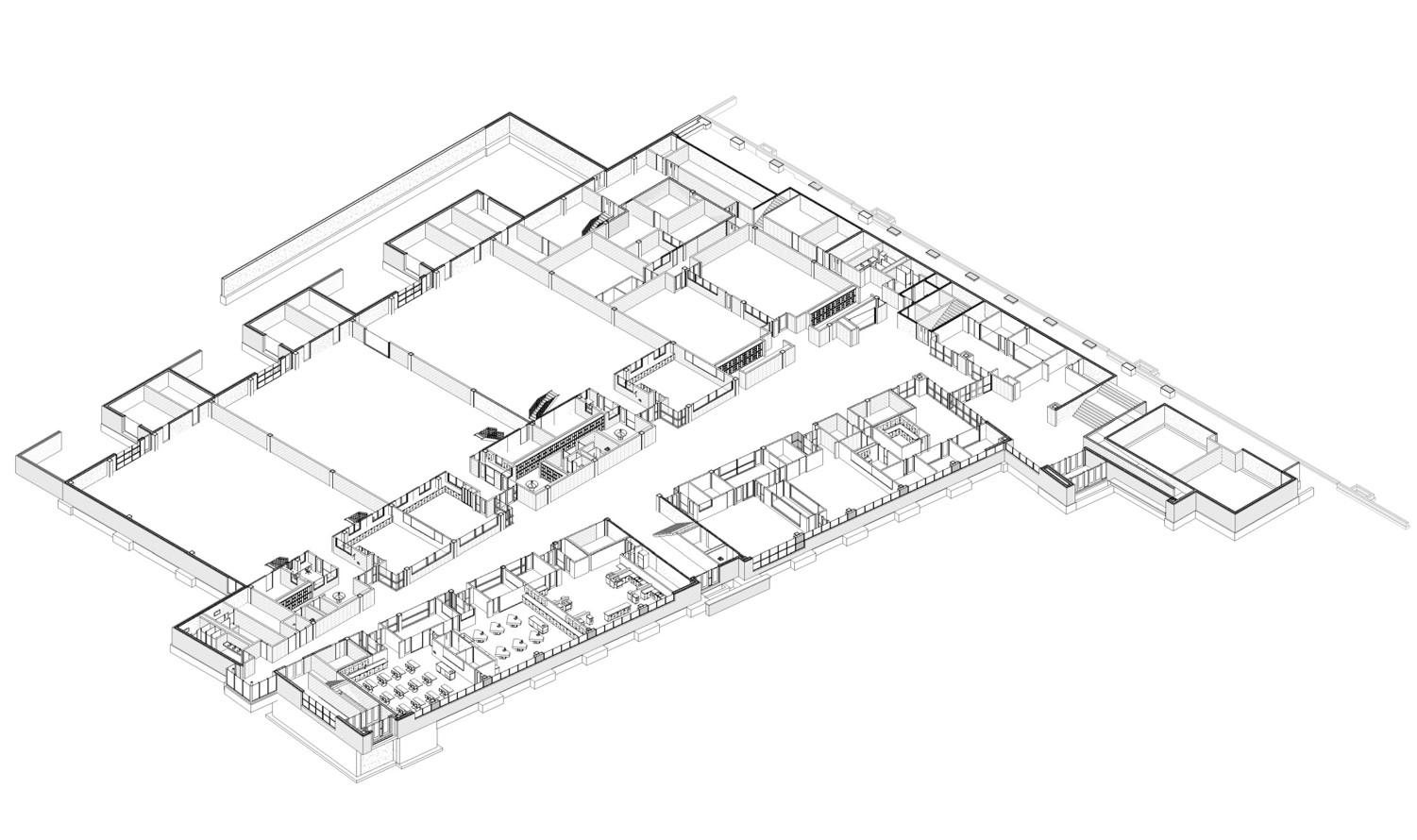
Wisner–Pilger School

Location

Wisner, NE

53,000 sf Addition Awards

2019 Wood Design Regional Excellence Award

2018 AIA NE Architectural Honor Award

2018 Education Design Showcase Project of Distinction

After twin tornados devastated the small town of Pilger, Nebraska, in 2014, BVH Architecture defined an educational strategy to recover the 5th & 6th grade campus. From our process, a PK-6 model emerged, creating an accessible and adaptable core of specialized education spaces to compliment surrounding classrooms. This model was inspired by the specific educational approach Wisner-Pilger utilizes.

The building itself has been designed as an educational tool, complete with daylighting, supervision and acoustics balanced against views and accessibilities. The exterior blends with the existing building’s character while elevating the campus experience with outdoor gathering spaces that commemorate local history.

Inside, upper elementary classrooms feature break-out spaces to allow dynamic class settings to merge with adjacent student groups. Unique core spaces are highlighted with materials that add visual texture and depth, as well as opportunities for displaying student work. Several metal panels are laser cut with designs inspired by language, math, local topography and the solar system.

The result is a cutting-edge, 21st Century invigorated learning environment that creates opportunities for students to learn first-hand from the built environment.

The Environment as Teacher

Wisner-Pilger School

Interpretive Corridors

The unique opportunities presented in school design reach beyond serving base needs such as space use, programming, and environmental comfort. What if the building itself could teach? How can intelligent material use and innovative space design actually help students learn?

By reorienting the classrooms away from the traditional ‘egg-crate’ design into a resource-centric model, the new design created flexible learning spaces along the central corridor. These rooms, shared by all classes, provided the perfect opportunity for interpretive learning spaces. Using simple materials—wood, glass, and metal— the core subjects are brought to life throughout the most widely-used yet under-utilized space: the hallway.

Clad in punched and embossed steel, five walls interpret math, language, geography, science, and the arts through abstraction, geometry, and scale. The walls encourage physical touch, they excite visually, and offer new information with multiple interactions. In effect, students are taught even as they move from class to class.

1 / Science

A scale model solar system showing proportional size and distance of all major bodies, as well as visible constellations.

2 / Geography

Topographical map of Wisner, Pilger, and the surrounding farmlands affected by the 2014 tornados.

3 / Language

Graphic representation of the top 50 languages spoken globally, with frequency indicating ranking.

4 / Math

A simple visual representation of mathematical operations—addition and multiplication are blind embossed, while subtraction and division are extraced.

5 / Arts

A braille transcription of sheet music for the school’s fight song, Entry of the Gladiators, using embossed and punched metal.

Westside Middle School

Location

Omaha, NE

Year 2018

Size

148,000 sf Renovation 22,250 sf Addition

BVH Architecture, in partnership with Gould Evans, remodeled the Westside Middle School from a departmental junior high model to a collaborative learning team model. Eight Learning Teams span 7th8th grade in a reconfigured facility that centralizes common resource spaces and creates highly flexible Learning Commons at the heart of each Learning Team. Each Learning team was uniquely branded to create both a sense of team identity as well as aid with way-finding in the 50+ year old facility.

Classrooms can now open and flow into the Learning Commons through garage doors which when closed off control sight and sound as needed. The flexibility allows both teachers and students the ability to adjust the environment for situational needs. A wide variety of furniture options provides voice and choice in shaping the setting and facilitates an assortment of activities from traditional to nontraditional.

The Career Academy

Location

Lincoln, NE

Year 2015

Size

114,000 sf

The Career Academy is a joint venture between Lincoln Public Schools and Southeast Community College that provides 550 high school juniors and seniors the opportunity to pursue studies in 16 different career pathways. The 115,000 sf facility is located on the SCC campus where students attend either morning or afternoon sessions unique to their individual career pathways apart from their home high school coursework.

The two-story building is organized around an open naturally day-lit commons that emulates the main street marketplace with each career pathway having store frontage on the commons.

This arrangement encourages students to explore collaborative opportunities in a project-based interdisciplinary environment that models the marketplace that they will ultimately find themselves working in.

The Commons also functions as a presentation, exposition and break out collaboration space. The building is designed such that each of the career pathway spaces are able to be switched out over a summer break as new emerging career pathways arise.

Nebraska Center for Advanced Professional Studies

Location

Sandy Creek High School, Fairfield, NE

Year 2018

Size

40,000 sf Addition

Taking design cues from contemporary workspaces, the Nebraska Center for Advanced Professional Studies (NCAPS) offers 40,000 sf of co-active and flexible educational spaces to support the school’s linked learning curriculum, while providing students with key moments of engagement with teachers and peers.

Programming needs are activity-based rather than subject-based: multifunctional labs replace traditional math and science rooms; large-group spaces provide classrooms and collaboration studios; small group spaces provide break-out areas for focused learning. Areas are both defined and interconnected by glass walls, partitions and furniture groupings—a delineation of space that allows each area to remain, both physically and visually, a part of the overall whole.

The NCAPS facility maintains a refinedraw aesthetic, treating the building as a workshop for learning. Sealed concrete floors and exposed structural steel are contrasted by the warmth of natural wood, creating a space that’s both productive and inviting.

The facility utilizes research-driven solutions such as ample natural daylighting, choice of space and increased density to achieve this new culture of collaboration. By increasing density and layering core curriculum, students are exposed to much more energetic and lively education experience. As a result the school will provide an important creative, collaborative and malleable learning environment that encourages studentled learning within a facility capable of supporting and growing with students’ needs.

A New Path to Education

NCAPS Education Pathways

The Nebraska Center for Advanced Professional Studies looks to advance the concept of the partnership school. The facility marries the traditional high school with the career academy, creating a more versatile education platform which aligns students with their passions and connects them to careers within their community. The design process uncovered a unique problem: the need for a new kind of curriculum program that would accommodate this vast number of potential career paths made available to students, while providing them the freedom to change direction or combine paths. The BVH design team, in conjunction with school officials, adopted the Career Path system. This unique and flexible programming allows students to easily ‘pivot’ within their career path while still fulfilling the necessary credits for graduation. It also provides key moments of interaction between students and classes on different career paths, creating important opportunities for cross-pollination and collaboration.

1 / Curriculum Pathways

Students are encouraged to choose their career path at the start of the term. Rather than be locked into this decision, however, they are given the chance at the start of each new term to ‘pivot’ to a new career path. This may be due to interest in a related field, to fulfill requirements for their chosen path, or to simply try something new.

All pathways fulfill state requirements for education. Unique to this system, however, is the link back to available jobs in the community. Curriculum easily adjusts to accommodate new technology, practices, and jobs available to students upon graduation. Students also learn the skills they need to be successful in their chosen field, while learning how to gain and apply new skills to better equip them for the future global workforce.

2 / Space Programming

The vast amount of choice given to students is reinforced by the physical proximity and overlay of spaces. Classrooms provide views into labs, with adjacent lounge and public spaces giving room for personal and group study. This layering of space provides numerous opportunities for ‘chance encounters’—unplanned interactions that initiate new thinking, expose students to new or divergent interests, and help build new skills through crosspollination.

Cross County Community School

Location

Stromsburg, NE

Size

112,500 sf

The Cross County Community School is a new PK-12 Facility for 450 students. BVH designed the campus with four distinct teaching zones—elementary, middle school, high school and shared spaces including media center, family consumer science, vocational education, art and computer labs. Activity and community access spaces are zoned separately around a central commons ‘spine’ with gymnasiums, kitchen/ servery, auditorium, administrative offices and a central commons. Individual entrances separate traffic flows on the site as well as keeping younger students from the middle and high school areas.

The project was completed under a fasttrack construction manager delivery process. Pre-cast concrete was utilized for the structural system to expedite composing the exterior shell for interior work to commence. Traditional masonry was included to retain a human scale to the overall facility. The site development included a full track and field complex as well as parking for academic and events uses.

Since completing the original 2009 project, BVH was retained to add a vocational agriculture and industrial technology addition in 2013 and a 2016 specialized education renovation to facilitate the implementation of new SPED programs.

Omaha Public School’s Transition Program

Location

Omaha, NE Year

Size

14,500 sf

The Omaha Public School’s Transition Program has found a new home via a complete tenant improvement of a former fabric store. This training facility helps teach special education and disabled young adults, aged 18-21, the life skills needed as they transition from a school setting to post-school life. The building is an existing singlestory space, approximately 14,500 sf, and required the demolition of existing walls, ceilings, flooring, and restrooms, including all associated mechanical, electrical, and plumbing.

The new space is home to training rooms, daily-living apartment spaces, open flex or commons areas, office and conference rooms, staff work areas, restrooms, locker rooms, a sensory room, an exercise room, storage, cafeteria, and food service. Several of the training rooms have hardened walls and ceiling assemblies to act as a safe room. The design includes engineering for structural, mechanical, plumbing, electrical, fire protection, telecommunications, access control and security.

Gerald W. Kirn Middle School

Location

Council Bluffs, IA

Year 2021

Size

165,000 sf

BVH has worked with the Council Bluffs Community School District the past few years to design and implement additions and renovations at two middle schools, and to transform a former retail building into a swing site while each facility is under construction. Work recently completed at Kirn Middle School saw the improvement of learning environments for each grade— including expanded commons, increased classroom sizes, additional natural daylighting, and coordinated material and color palettes for each grade.

Unused auditoriums and lecture halls have been transformed into flexible learning spaces, including an additional practice gymnasium.

Improvements to safety and security provide direct visuals of the main entry points as well as code-mandated upgrades to restrooms, smoke separation walls, exit paths and hardware. Accessibility has also been improved with a more clear traffic flow, removal of existing barrier steps, and full access to all building areas. Building systems and energy efficiency has been addressed with new and upgraded mechanical systems, upgraded plumbing systems, and upgraded electric and lighting systems.

Additional Experience

Lincoln Public Schools / Lincoln, NE

Aviation Focus Program Addition

Philip J. Schoo Middle School & Fallbrook YMCA

Fredstrom Elementary School

Roper Elementary School

Clinton Elementary

Dawes Middle School

Southwest High School

Northstar High School

Lincoln Children’s Zoo, Zoo School / Lincoln, NE

Lincoln Pius X High School Stadium / Lincoln, NE

St. Peters Catholic Church & School / Lincoln, NE

Westside Community Schools / Omaha, NE

Westbrook Elementary

Loveland Elementary

Paddock Road Elementary

Council Bluffs Community School District / Council Bluffs, IA

Pre-Kindergarten Facility

Kirn & Wilson Middle Schools

Titan Hill Intermediate School / Council Bluffs, IA

Athletic Building

Titan Hill High School

Middle School Auditorium

Fremont Public Schools / Fremont, NE

Johnson Crossing Academic Center

Bell Field Elementary

Clarmar Elementary and Linden Elementary

Howard Elementary

Grant Elementary

Fremont Middle School

Fremont High School

Lexington Public Schools / Lexington, NE

High School

YMCA/Middle School

Majestic Theater

Madison Public Schools / Madison, NE

Pender Public Schools / Pender, NE

Holdrege Public Schools / Holdrege, NE

McCook Public Schools / McCook, NE

Centennial Public Schools / Utica, NE

Norfolk Public Schools / Norfolk, NE

Bel Air Elementary

Grant Elementary

Jefferson Elementary

Lincoln Elementary

Northern Hills Elementary

Washington Elementary

Westside Elementary

Woodland Park Elementary

Norfolk Middle School

Norfolk Jr. High and High School

South Sarpy Public Schools / Springfield, NE

Whittier School Building / Lincoln, NE

Omaha Hearing School / Omaha, NE

Gibbon Public Schools / Gibbon, NE

Norris Public School Weight & Fitness Room / Firth, NE

Faith Christian School & Gymnasium, Kearney / NE

St. Joseph’s Catholic Church and School / Beatrice, NE

Johnson-Brock Public School Addition / Johnson, NE

Early Childhood Learning Center / Council Bluffs, IA

Lewis Central Community Schools / Council Bluffs, IA

Woodbine Community Schools / Woodbine, IA

Fremont Trinity Lutheran Schools / Fremont, NE

Johnson Brock Public Schools / Johnson, NE

Fort Calhoun Junior/Senior High School / Fort Calhoun, NE

Walthill Senior High & Gymnasium / Walthill, NE

Wynot Public Schools / Wynot, NE

Omaha Nation School / Macy, NE

St. Albert’s Catholic Church & School / Omaha, NE

Turn static files into dynamic content formats.

Create a flipbook
Issuu converts static files into: digital portfolios, online yearbooks, online catalogs, digital photo albums and more. Sign up and create your flipbook.