School Portfolio

Page 1

architecture portfolio

email: bgilmer80@gmail.com

phone #: 716-400-8896

brendan gilmer
3 table of contents 4 housing competition 14 architecture firm 20 wellness center 24 threshold model 26 residency for architecture and arts foundation 32 raimund abraham drawings 34 glenn falls chapel 38 urban winery wellness center sketches

housing competition

Fall2016

This project was to design a housing project in downtown Buffalo. Working in pairs we came up with a proposal for how to engage the public on the street leve and to increase the density of housing in the area. My partner and I’s proposal revolved around the idea creating a self contained work+play center for a tech company. The prject was divided into 3 levels; public program (an on demand grocery store and plaza) on the bottom, the office in the midde, and the housing on top. The housing units would be pre-fabricated and stacked on site. The efficienct factory aesthetic of the pre-fab system is continued throughout the rest of the building and how the tech company functions. This project ended with us creating competition boards about the project.

4
public office housing
6 0 15 N ground floor office floor
mezzanine
8
podium roof typical housing plan 1 typical housing plan 2
10 Unit Plans Typical 1 Bed Studio 3 bed 1 Bed ‘Executive’ Attached shared space Wet Riser HVAC Interior Render Interior Elevation
12 mechanized l i v i n g N Typical Housing P an 1 Typical Housing Plan 2 POdium Roof with Bar + Weight Room Office Mezzanine Office Ground Floor with food trucks + Con ainer Incubators Site PLan PUBLIC PROGRAM: Bar and weight room on podium roof. Incubator and on-demand store on ground level. HOUSING: prefabricated micro-units OFFICE: open office plan with upper mezanine Concept N 30 60 The objective of this design is to incorporate all of a working person’s needs into one structure. The concept for this building is to be a live+work ecosystem for a tech company like Google or hooli. The occupants of this building will be able to eat, sleep, work, and enjoy themselves all in one place. From the underground parking garage filled with company cars, to the micro housing units atop the podium, this building is designed to accommodate the young adults in the tech industry that live here. Since this design is meant to be considered a ‘machine’ it is intentional that the employees would have all of their basic needs taken care of right on site. They would be able to wake up in the morning, walk downstairs to their desk, after enjoying a nice breakfast atop the podium, and start their work day. After which they would be able to go to the ground floor, pick up groceries for dinner that they ordered online, and go back upstairs to enjoy a meal while looking out at the surroundings from their floor to ceiling windows. The building engages the public at the ground floor by having incubator spaces in shipping containers as well as having the on-demand store and food truck plaza open to everyone. wan st. Pearl st. Main st. Water A r HVAC Egress Pre-fab Units Unit Plans Executive Unit Family Unit Standard Unit 10 The housing is made up of pre-fabricated units that would be constructed in a shipping container facotry using standard shipping container dimensions as base parapeters (40’L x 8‘W x 10’H) to ensure easy tranportation. Each unit is made up of two halves that would get shipped to the site seperately. The units on the ends of each housing tower have a 20’ can add on that either provides public accomodations or expands a unit for an exucutive or family of up to three. The egress exists in the two towers on the east and west sides of the building that exit to the ground floor. As well as central stair that only provides access to the office and podium levels. The HVAC systems are located on three floors. The basement, the ground floor, and the podium. A vertical chase is located next to the east side elevator. The air circulation will go through the mechanical rooms, into the chase, and run along the catwalks on the back side of the building. Where it will enter the units from the top and provide hot/cold air from three seperate vents in the unit. Much like the air, the water will also move through the mechanical rooms into the chase where the pipes will run across the top catwalk and into the wet wall of the unit located at the bathroom of the unit where the two halves split.
13

architecture studio spring2016

The project was an architecture studio in the Allentown neighborhood of Buffalo, NY. Used a geometric field system based on scaling and inversion to create the form of the building.

14
16 South Elevation East Elevation Basement Level Ground Level 2nd Level 3rd Level
18 West Elevation Section 1 Section 2

wellness center

Fall2015

The assignment for this project was to design a ‘Wellness Center’ which would be located at the corner of Summer/Best St. and Main St. in downtown Buffalo, New York. This would include incorporating a fitness center, a health/medical center, and a market. Because its location sits on a divide between two very different communities and features a metro station, a large part of this project was centered around creating com munal space to bring together the neighborhood.

20
N Main St. Main ST. Dodge St. BestSt. Summer St.
22 Ground Level 2nd Level North Section East Section

threshold model

Fall2015

The first part of this project involved creating an abstract model about a threshold condition which could then be incorporated into the Wellness Center. For my threshold project, I focused on recreating the high variance and ‘randomness’ of a park through the use of a grid. I developed my threshold model by using a system of scaling, subtraction and layering, and then used this system in my Wellness Center to connect all the interstitial spaces between the outside and the inside. This creates a parklike setting on the interior that serves as a communal space. I also used it to help create the atrium structure over the public spaces which mimicked the freeflowing space below it.

24

residency for architecture and arts foundation

Spring2015

The focus of this project involved creating form out of a ‘field diagram’. We were assigned a Palladian Villa to analyze and create a diagram from by indentifying an underlying design logic in the Villa. I studied the Villa Barbaro and created a diagram that focused on the scaling and repetition patterns that define the Villa’s layout in plan. From there I created a 3 dimensional model that used the same ideas about scaling and repetition to create the base form for the residency and research center I designed next to the Villa.

26
3 4 13 10 13/10 3/4
28 plan 1: Lower Level plan 2: Mid Level plan 3: Upper Level plan plan plan Lower Level plan 2: Mid Level plan 3: Upper Level plan plan site plan south east section south west section N 1/16” = 1’
30

raimund abraham drawings

Fall 2015

A rendering exercise based on creating 3 dimensional images based on pencil drawings by architect Raimund Abraham.

32
“Haus mit Blumenwänden”, 1972 “The Last House”, 1984

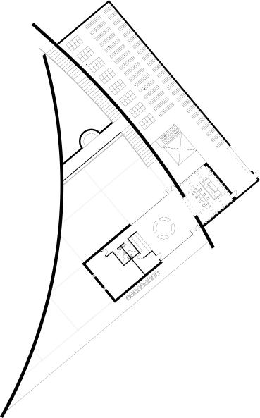
glenn park chapel

Fall2014

For this project, I was assigned to design a chapel in Glen Falls Park, Williamsville, NY. The building also had to include classroom spaces, a library, dormitories and a cafeteria. The site we were given featured a steep incline. Using this incline and the park below, I designed the chapel using cantilevers so that there could be usable space underneath the chapel. The angle of the cantilever was used for the chapel seating and creates an amplifier for the performance space below. To make the form of the building, I studied sliding planes past each other in order to create apetures for lighting.

34
site plan main floor Gilmer p26
35
36 south elevation west elevation north elevation north section west section

urban winery

Spring2014

We were assigned to design a winery that would be built on a site in North Philadelphia. An important aspect of my project and other wineries in general is their dual function of wine production and being a social gathering place. Because the winery’s site is in a heavily urbanized area I wanted my project to provide shelter from the dirty industrial neighborhood around it. In order to do this I cut the building into the landscape so that the open gathering spaces were cut off visually and audibly from the city around it. I also completely seperated the the production and public areas by building the gathering space on top of the wine making facilities and having there be differnent entrances.

plans

38
site plan GreenlandDr.
roof plan with contours 1/8” = 1’ N lower level rst level
39
40 perspectives elevations and sections south sec on west sec on west eleva on

Turn static files into dynamic content formats.

Create a flipbook
Issuu converts static files into: digital portfolios, online yearbooks, online catalogs, digital photo albums and more. Sign up and create your flipbook.
School Portfolio by Brendan GIlmer - Issuu