Myrna Eussen - van 0 tot 100

Page 1

van 0 tot 100

samen leven, samen leren

2

Master of Architecture Academie van Bouwkunst Mentor Hans Hammink Commissieleden Elsbeth Falk Wouter Kroeze

Toegevoegde leden t.b.v. tentamen Saša Radenovic Jochem Heijmans Juli 2022 Myrna Eussen

3
4
5
“Opvoeding en democratie zijn broertje en zusje, omdat de vrijheid een mogelijkheid is die in het samenleven met anderen geleerd moet worden.”

Inhoudsopgave

INTRODUCTIE

AFFECTIE MET HET ONDERWIJS HET ONDERWIJSGEBOUW IN NEDERLAND HET ONDERWIJS IN NEDERLAND KEES BOEKE DE KINDERWERKPLAATS MAATSCHAPPELIJK BELANG ALMERE PAMPUS ADAPTIEF EN FLEXIBEL

CONSTRUCTIEVE UITGANGSPUNTEN KOPPELING MET DE MAATSCHAPPIJ

SITUATIE TEKENIN PLATTEGRONDEN DOORSNEDE CKV-MIDDELBARE SCHOOL KINDEROPVANG BASISSCHOOL MIDDELBARE SCHOOL MIDDENSCHOOL MEDERWERKER DETAILLERING SCHOOL VENTILATIE UITGANGSPUNTEN

DOORSNEDE MIDDENSCHOOL-MAATSCHAPPIJ BIBLIOTHEEK & BUURTHUB ATELIERS & SCIENCE DETAILLERING MAATSCHAPPELIJ

DOORSNEDE SCHOOL-MAATSCH-CKV CKV THEATER SPORTZAAL DETAILLERING CKV VENTILATIE UITGANGSPUNTEN CKV

ISOMETRIE TOTAAL SLOTWOORD DANKWOORD

7
09 11 13 15 19 21 25 31 37 39 43 45 53 55 59 63 67 71 73 77 79 83 85 89 93 95 97 99 101 105 107 113 115

Plattegrond van mijn eerste basisschool montessori onderwijs

Plattegrond van mijn tweede basisschool Klassikaal christelijk

Net als anderen, heb ik affiniteit met het beroep van mijn ouders. Vanaf jongs af kwam ik met het onderwijs in aanraking. Thuis luisterde ik naar de verhalen van mijn grootouders en ouders over het onderwijsbeleid of over de leerlingen in hun klas. Wat ik meegenomen heb uit deze verhalen en andere ervaringen, is dat er verschillende opvattingen over het onderwijs leven. Dat oordelen en onderwijsopvattingen verschillen per individu, per tijdsgeest en per cultuur. Dat maakt dat het onderwijs continu aan verandering onderhevig is. Door de gesprekken met mijn familie en eigen ervaringen heb ik kunnen zien dat het onderwijs onder spanning staat, verschillende problematieken komen naar voren. Mijn expertise ligt in het ontwerpen van gebouwen,

“de kennis en het netwerk van mijn ouders kan ik inzetten om via een onderwijsvisie een gebouw te ontwerpen dat hier op reflecteert.”

Binnen onze 21e eeuw gaan veranderingen razendsnel. Het onderwijsbeleid past zich hier op aan. Daarom volgt de ene onderwijsinnovatie de ander op. Hoe snel passen wij onze schoolgebouwen hierop aan? Zijn deze niet achterhaald en hoe ziet het schoolgebouw van morgen eruit?

De eerste associatie die gelegd wordt bij schoolgebouwen zijn vaak klaslokalen, met een docent aan de voorkant van het lokaal die vertelt wat er gebeuren moet. Vanaf je geboorte tot en met 25e jaar wordt je onderwezen om te functioneren- en jouw

rol te vinden binnen onze samenleving. Een schoolgebouw heeft veel impact op jouw toekomst, het is iets wat de rest van je leven zal blijven herinneren, je brengt er immers veel van je eerste jaren door. Toch kan je jezelf de vraag stellen, wat heeft jouw onderwijs gebouw, jou geleerd?

Mijn onderwijsgebouwen waren veelal gang en halscholen, de ontmoeting werd matig gestimuleerd en de materialisatie in de gebouwen waren veelal hetzelfde. De klaslokalen waren traditioneel en soms duurden de dagen oneindig lang.

Architectuur heeft het ontwerpen van scholen steeds weinig kritisch benaderd. Het lijkt erop dat architecten steeds braaf hun programma’s van eisen volgden en zich vooral bezig hielden met formelere uiterlijkheden, zonder zich druk te maken over de ruimtelijke mogelijkheden die zouden kunnen leiden tot beter onderwijs en de rol die zij daarin kunnen spelen. Weinig gebouwtypen zijn de afgelopen honder jaar zo weinig geëvolueerd als juist scholen. Pas de laatste tien jaar van de vorige eeuw verschenen afwijkingen van het sinds mensenheugenis gelijkte type. Uitsluitend de vorm, vooral van de buitenkant, ging met zijn tijd mee, de organisatie leek onaantastbaar. “Ruimte en Leren, Herman Hertzberger”.

Tijdens dit afstuderen wil ik een ode geven aan het schoolgebouw

9 Introductie

“Op mijn school heb ik nergens een rustige werkplek waar ik ongestoord mijn nakijkwerk kan doen. Door het steeds wisselen van werkplek voel mij vaker gast in een overheidsgebouw.. ”

“Visie op onderwijs is voortdurend in ontwikkeling. In mijn werk zie ik dat de huisvesting van het onderwijs niet altijd aansluit op laatste ontwikkelingen. Dit is een uitdaging. Visie en strategie ontwikkeling is de eerste stap, daarna worden de eisen aan huisvesting geformuleerd. Veranderingen aan gebouwen vragen tijd en leggen een groot beslag op de financiering van het onderwijs”

“Door razendsnelle ontwikkelingen bestaat een lineaire carriere niet meer, maar moet je je als individu levenslang ontwikkelen. Opleiden voor een carriere van de toekomst betekent meer aandacht voor talent, mentaliteit, weerbaarheid, flexibiliteit en (maatschappelijke) verantwoordelijkheid. Ik ben benieuwd hoe een schoolgebouw een bijdrage kan leveren aan zo’n optimaal leerklimaat, waarin op een gezonde manier het uiterste van de hersenen gevraagd kan worden,om kinderen voor te bereiden op de toekomst”

10

Zoals eerder genoemd, kom ik uit een onderwijsgezin, mijn vader is docent, hij geeft geschiedenis lessen, maar ook M&O. Vaak vertelt hij hoe hij zich verloren voelt in het onderwijsgebouw en dat hij moeilijk plekken kan vinden waar hij zich terug kan trekken om na te kijken, ook vertelt hij over de slechte akoestiek en ventilatie in de gebouwen, zeker tijdens de corona periode kwam dit sterk naar voren. Hij reflecteert op zijn eigen schoolgebouwen van vroeger, hoe mooi die waren en ruim, kloosterscholen, ruime gangen, hoge ruimtes, veel licht. Momenteel in zijn school zijn het lage ruimtes en is het schoolgebouw functioneel ingericht maar voldoet niet meer aan de eisen van deze tijd.

Mijn moeder is ook docent geweest en schrijft nu onderwijsbeleid. Vroeger heeft ze op verschillende oude scholen in Amsterdam en Amstelveen les gegeven, ook deze scholen hadden mooie brede gangen met hoge ruimtes. Waar je niet direct naar buiten kan kijken als je zit, maar wel een enorme licht inval is van de grote ramen. Dit vinden mijn beide ouders een grote kwaliteit voor het onderwijs die in de huidige gebouwen vaak wegbezuinigd wo rdt. Juist omdat zij in het onderwijsbeleid zit ziet ze hoe snel het onderwijs verandert, de schoolgebouwen zijn dan al vaak snel gedateerd en passen zich niet aan het onderwijsbeleid.

Affectie met het onderwijs

Mijn zus heeft onderwijskunde gestudeerd en houdt zich bezig met de ontwikkeling van het kind maar ook daarna. Levenslang ontwikkelen. Een term die we de laatste tijd steeds vaker voorbij horen komen. Wat gebeurt er na school en hoe bereiden we kinderen voor op de toekomst?

11

Gemiddelde leeftijd van een schoolgebouw is 40 jaar, daarom is het belangrijk dat de huisvesting niet alleen op het moment van bouwen voldoet, maar ook de 40 jaar erna.

Op dit moment is het algemene beeld is dat de kwaliteit van de onderwijshuisvesting niet voldoet. Het binnenklimaat van 80 procent van de scholen is matig tot slecht en gebouwen zijn niet meer toegerust op moderne toepassingen.

Leraren in het basisonderwijs geven volgens een onderzoek van de PO raad hun schoolgebouw dan ook gemiddeld slechts een 5,7.

Het is vanuit financieel oogpunt niet eenvoudig om een schoolgebouw voor Primair onderwijs (po) en voortgezet onderwijs (vo) te bouwen of snel aan te passen aan de veranderende eisen uit het onderwijs. Enerzijds komt dit omdat de schoolbesturen van het po en het voanders dan bij schoolbesturen van het mbo, hbo en universiteiten- de nieuwbouw en verbouw niet als van- zelfsprekend in eigen beheer hebben. De gemeente is hiervoor verantwoordelijk. Anderzijds is er weinig geld. In 2015 is de wet veranderd waardoor er een deel van de financiën voor onderwijshuisvesting van het gemeentefonds naar de schoolbesturen gaat. De taken van de gemeenten zijn op dat moment echter niet overgedragen aan de schoolbesturen.

Het onderwijs gebouw in Nederland

De gemeenten blijven verantwoordelijk voor de nieuwbouw, vervanging, uitbreiding en tijdelijke huisvesting van het po en het vo. Het schoolbestuur is verantwoordelijk voor het binnen- en buitenonderhoud. De lokale over- heid financiert de nieuwbouw en vanaf 2015 met minder geld. Uiteenlopende belangen leiden tot compromissen en dit leidt bij een beperkt budget vaak tot inefficiënte bestedingen, bezuinigingen en repetitie.

Sommige schoolbesturen voor po kiezen ervoor om het hele proces van nieuwbouw over te laten aan de gemeenten. Ander schoolbesturen trekken de regie over de nieuwbouw - in overleg met de gemeenten –naar zich toe.

Er is geen richtlijn of regelgeving waaraan een gebouw moet voldoen dat goed onderwijs onder- steunt. Een schoolgebouw moet net als andere gebouwen voldoen aan het bouwbesluit het ge- bruiksbesluit (brandveiligheid), de Arbowet en de bouwverordening van de gemeente. Het bouw- besluit stamt uit 2015 en deze regelgeving richt zich niet op het bouwen van een goede school die past bij het onderwijsconcept van de school. Het bouwbesluit beperkt de mogelijkheden om flexibel te ontwerpen. Ook het gebruikersbesluit, de arbowet en de bouwverordening van de gemeen- ten geven geen richting aan het bouwen van een goed onderwijsgebouw. Het geeft alleen inzicht of het gebouw aan de eisen voldoet.

13
14

Uit mijn voorgaande geschreven papers aan de Academie van Bouwkunst, de verhalen van mijn ouders en de ontwikkelingen binnen politiek/samenleving zijn er 3 punten onderbelicht in het onderwijs.

Het huidige onderwijs is net als de samenleving vaak gericht op de individuele leerling. De docent bepaalt wat er geleerd wordt en het kind wordt beloond op basis van zijn of haar prestatie. De echte kennismaking met de samenleving en leren samenleven is onderbelicht.

De ontdekkingstocht naar de eigen mogelijkheden en de mogelijkheden binnen de maatschappij en kennismaken met de beroepsmogelijkheden is beperkt in het onderwijs en in het schoolgebouw. Des al niet te min worden kinderen op jonge leeftijd verplicht een keuze te maken die grote invloed kan hebben op hun verdere toekomst.

Leerlingen van 0-18 jaar gaan vaak naar verschillende gebouwen om te leren en volwassenen leren op een andere plek dan hun kinderen. Het samen leren met verschillende leeftijdsgroepen en een leven lang ontwikkelen wordt door de sterk veranderende samenleving steeds belangrijker.

Schoolgebouwen zijn open als de leerlingen er zijn en daarna zijn de gebouwen dicht en worden de ruimtes niet benut. Het schoolgebouw kan daardoor de rol in de samenleving niet goed oppakken

Het onderwijs in Nederland

Na enig onderzoek blijken deze vragen niet alleen mijn vragen te zijn, maar vragen die op allerlei plaatsen en met verschillende woorden gesteld worden.

En niet alleen in de samenleving, maar ook in de politiek. In het huidige coalitie akkoord wordt hier ook over geschreven. In dit akkoord wordt geschreven over een rijke schooldag. Een rijke schooldag wil zeggen dat de gebouwen ook na 15 uur ingezet worden voor de combinatie van opvang en onderwijs. In het coalitieakkoord zijn ook afspraken vastgelegd over een betere overgang van primair onderwijs naar het voortgezet onderwijs en het inzetten van maatschappelijke diensttijd, waarbij kinderen een kans krijgen om bij te dragen aan de samenleving.

15
16
17

Kees Boeke De Kinderwerkplaats

Natuurlijk zijn er onderwijsvormen en gebouwen die vernieuwend zijn. Één van de vele die ik tijdens mijn afstuderen heb bezocht is de kindergemeenschap de Werkplaats van Kees Boeke. Het is een familie, met zo´n 600 leden een bijzonder grote familie. Wat begon als lesgeven aan eigen kinderen is uitgegroeid tot een even uitzonderlijk als succesvol onderwijsconcept dat gek genoeg alleen te vinden is in Bilthoven.

“De reden waarom ik de naam Werkplaats gekozen heb, is dat ik bij ‘school’ altijd geneigd ben te denken aan iemand die ‘geschoold wordt’ en het mijn bedoeling juist is de kinderen niet te ‘scholen’ maar hun de gelegenheid te geven door allerlei soort werk zich naar hun eigen aard en aanleg te ontwikkelen…. Wat ik dus wilde trachten te vormen was inderdaad een plaats om te werken, vandaar de naam” Kees Boeke

Plattegrond de kinderwerkplaats VOORTGEZET ONDERWIJS SPORT EN RECREATIE VO SPORT EN RECREATIE PO BIO LAB SPORT PARKEREN BASISSCHOOL KINDERBOEDERIJ NOOD GEBOUW KLEUTER SCHOOL KINDEROPVANG

Kees Boeke was een idealist, een wereldverbeteraar die opgroeide tussen de twee wereldoor- logen. Het ideaal beeld van Kees Boeke was om via onderwijs tot wereldvrede te komen. Kees Boeke stelde in 1935 het is niet mijn bedoeling de kinderen te scholen, maar hun de gelegenheid te geven door allerlei werk zich naar hun aard en aanleg te ontwikkelen. Als het werk blijft groeien zullen er ingrijpende veranderingen van vorm ontstaan. Vorm, inhoud en werkwijze zullen niet onveranderd voorbestaan. Kees Boeke kreeg met zijn visie meerdere kinderen onder zijn hoede, dat bracht hem ertoe in 1926 de werkplaats op te richten, “De werkplaats kindergemeenschap is een stichting met basis onderwijs en voorgezet onderwijs” de kern van het onderwijs is hier werken kinderen en volwassenen met hoofd, hart en handen aan een wereld met mogelijkheden. Gelijk-

Het gebouw is ontworpen op basis van de visie op leren van Kees Boeke, de ligging van het gebouw is fantastisch, aan de rand van het lommerrijke Bilt- hoven in het groen van heide park en ridderoordse bos, op de werkplaats zelf is een grote moestuin, kinderboederij en groot sportveld. Het moest een open en uitnodigend zijn en tegelijkertijd plekken voor intimiteit hebben. Er zijn geen af te sluiten plekken en kinderen beslissen zelf om te zitten waar zij behoefte aan hebben. De kinderen raken juist minder snel afgeleid doordat ze de open ruimtes gewend zijn.

Een aantal problemen in de huidige samenleving wordt toegeschreven aan de individualisering, zoals de afname van sociale cohesie. Cijfers blijken uit dat in 2016 43% van de bevolking een- zaam is (19 jaar en ouder). Onderwijsvormen als die van Kees Boeke of de Vrije school kunnen bijdrage leveren aan het voorkomen van vereenzaaming.

De wereldoorlog was een van de startpunten toen Kees Boeke een nieuwe onderwijsvorm bedacht. Momenteel zitten we ook in een crisis, mensen worden steeds individualistischer terwijl we tegelijkertijd met grote problemen rondom het milieu kampen. Samenwerken is hiervoor essentieel. Het ideaal beeld van Kees Boeke was om via onderwijs tot wereldvrede te komen, kan je via het schoolgebouw ook een andere visie krijgen op de wereld, en toewerken naar een betere toekomst?

19
“Opvoeding en democratie zijn broertje en zusje, omdat de vrijheid een mogelijkheid is die in het samenleven met anderen geleerd moet worden.” Kees Boeke
20 kinder opvang basisschool middenschool middelbare school één school + het kind het kinddocent docent de maatschappij de maatschappij

Maatschappelijk belang

Het gebouw in Bilthoven van de Werkplaats is het uitgangspunt voor mijn ontwerp omdat het schoolsysteem aansluit bij de uitkomsten van mijn onderzoek.

Binnen de Werkplaats worden kinderen niet uitsluitend als individu benaderend, maar er is veel aandacht voor het leren samenleven. Kinderen worden uitgedaagd om de mogelijkheden van de maatschappij en hun rol binnen de samenleving te ontdekken en kinderen van de kinderopvang, primair onderwijs en voortgezet onderwijs leren er samen. Er wordt geleerd in verschillende groepen van verschillende samenstelling en grootte.

In het gebouw van de Werkplaats ontbreekt de directe confrontatie met de maatschappij, de school ligt ver van de stad in een parkachtige omgeving hierdoor is de woonwijk en de wereld van mensen die werken niet verbonden met het onderwijs.

In de kinderwerkplaats is nog geen sprake van een leven lang leren. Daarnaast sluit deze school net als andere scholen na schooltijd de deuren.

De Werkplaats van Kees Boeke bestaat uit 3 scholen. Een kinderopvang, een basisschool en een middelbare school.

In de politiek ontstaat de laatste tijd consensus over de introductie van de middenschool als overgang van het primair onderwijs naar het voortgezet onderwijs . Dit om de vroege niveau keuze uit te stellen. Om aan te sluiten bij deze ontwikkelingen komt in dit ontwerp ook een middenschool.

Gezien de huidige ontwikkelingen is de middenschool niet meer uit te sluiten.

De gebouwen van de Werkplaats liggen als paviljoentjes verspreid in het landschap. In dit ontwerp is er één gebouw met een duidelijke onderlinge verbinding.

Er ontbreekt in mijn ogen wezenlijke onderdelen bij de Werkplaats van Kees Boeke.

Leren samenleven is erg belangrijk en dat stopt niet na het halen van je diploma van het voortgezet onderwijs. Als de kinderen van de Werkplaats hun diploma gehaald hebben verlaten ze het gebouw en komen er niet meer terug. Leven lang leren is belangrijk en is een wezenlijk onderdeel van dit ontwerp.

Dat betekent dat de maatschappij onderdeel is van het gebouw.

Dat betekent dat je je kind naar school brengt en er zelf ook blijft om je te ontwikkelen.

De school is dus niet meer een onderwijsgebouw, maar onderdeel van de maatschappij.

21

grid

22flexibel en aanpasbaar
23
24 100 meter NU 2030 2040 2050 dijkprofiel -3,7 m 0 m 6 m + 2,4 m

Almere Pampus

Almere Pampus is de nog te ontwikkelen wijk van Almere en krijgt een verbinding met Amsterdam.

Het is de bedoeling om in 10 jaar net als in Almere Poort 25.000 woningen te gaan bouwen. Almere Pampus en Poort worden verbonden door het stadspark Almere Hout en het Cascadepark. Daarnaast is het de bedoeling dat er een metroverbinding komt naar Amsterdam en uiteindelijk zoals het plan van Bakema beschrijft zelfs verder door te bouwen op het water. Het Cascade park kent onderwijsfuncties zoals de internationale school, de agrarische school, het klokhuis gebouw en diverse sport en spel functies. Het park wordt uitgebreid door het Stadspark Almere Hout. Vanwege de verbinding tussen de twee stadsdelen en de twee steden Almere en Amsterdam zie ik dit als de uitgelezen locatie voor mijn afstudeerontwerp. Het gebouw ligt naast een dichtbebouwd gebied in de natuur

Het gebouw is gesitueerd aan de rand van het park waardoor er een duidelijke verbinding ontstaat tussen stad en natuur. De locatie verbindt daarnaast de drie elementen van de polder. Het polderlandschap, de dijk en de natuur.

De dijk van het Markermeer ligt op ongeveer op 100 meter afstand.

25
verbindingen cascadepark polder eigenschappen

en aanpasbaar grid

30flexibel

Het onderwijs is dynamisch en verandert razendsnel en schoolgebouwen zijn vaak statisch en zijn moeilijk aan te passen aan de veranderende eisen, dit is een bekend probleem. Dat betekent dat het gebouw dynamisch en adaptief zou moeten zijn. Het gebouw van de Werkplaats van Kees Boeke past bij zijn visie op onderwijs. Kinderopvang, basisonderwijs en voorgezet onderwijs zijn in verbinding met elkaar gehuisvest. Dit is een goed uitgangspunt voor het ontwerp. Het gebouw is echter net als andere schoolgebouwen statisch en moeilijk aan te passen als de visie op onderwijs verandert.

Gezien de ontwikkelingen in het onderwijs en de noodzaak om duurzaam te bouwen zou een onderwijsgebouw adaptief moeten zijn en eenvoudig aan te passen aan verschillende onderwijssystemen.

Na onderzoek is de ideale maat om een onderwijsgebouw adaptief te maken 9 meter bij 9 meter. Hierbij kan ook makkelijk een onderwijsgebouw gecombineerd worden met maatschappelijke functie’s. In deze maat introduceer ik de Kees Boeke school, maar elke onderwijssysteem past.

VERLEDEN, ca. 40 leerlingen, smalle en hoge ruim te (4m) met hoge ramen. Stoelen en bankjes per 2 leerlingen. ca 50 m² per lokaal

VERLEDEN, ca. 40 leerlingen, smalle en hoge ruimte (4m) met hoge ramen. Stoelen en bankjes per 2 leer lingen. ca 50 m2 per lokaal

Adaptief en flexibel

Als je kijkt naar de lokalen van vroeger waren het vaak hoge lokalen, deze lokalen werden vaak als prettig ervaren en ontstonden behagelijke ruimtes. Momenteel zijn het lage lokalen met minder ruimte. De lokalen werken niet goed.

Na onderzoek ben ik tot de conclusie gekomen dat je met een 1,8 x 1,8 grid een lokaal kan vormen van 9 x 9 meter dat net als vroeger 4,4 meter hoog is. In deze maat zijn verschillende ruimtes mogelijk, van klaslokaal tot atelier ruimtes.

Door de hoge ruimte is het mogelijk om een mezzanine te introduceren in de lokalen en kunnen de modules variëren.

Gezien duurzaamheidsambities in dit plan introduceer ik een houten module, die uitbreidbaar en aanpasbaar is. De module is behalve de fundering volledig uit hout en wordt in losse elementen aangebracht op de bouwplaats en met schroeven in elkaar gezet.

NU lage ruimtes (minimale eis bouwbesluit 2,6 meter) lage ramen en tot knie hoogte, ca 25 tot 30 leerlingen. 50 tot 56 m² per klaslokaal

NU lage ruimtes (minimale eis bouwbesluit 2,6 me ter) lage ramen en tot knie hoogte, ca 25 tot 30 leerlingen. 50 tot 56 m2 per klaslokaal

31

overzicht module plattegronden van lokaal tot kantoor

32 9 mete r
33
34voorbeelden van 9 x 9 modules
35

dikte vloer 300 mm installatie in vloer

betonnen met

balk 4400 x 600 x 350 mm kolom 4400 x 350 x 350 mm 500 mm van maaiveld

betonnen poeren met staal

Constructieve uitgangspunten

38 bibliotheek lab ruimtes restaurant/aula/buurthub kookruimtes zang ruimtes podia makersspace experiment tribunes kinder boederij dans ruimtes sport en spel ateliers sportzalen

Koppeling met de Maatschappij

Zoals eerder besproken is het essentieel om de verbinding met de maatschappij te leggen. Er zijn 3 thema’s die een school en maatschappij altijd gemeen hebben. Dit is Sport, Science en Cultuur. De leerlingen gebruiken deze ruimtes tijdens lesuren en de samenleving gebruikt de ruimtes als de leerlingen ze niet gebruiken. Zo komt er een bibliotheek, theater, sportzaal, atelierruimtes, buurthub en maak/science ruimtes.

De schoolgebouwen zijn gesitueerd in een carrévormig gebouw zodat er altijd onderling verbinding zal zijn, intern en extern. Hierdoor ontstaat net als bij kloostergebouwen een binnentuin als hart van de gemeenschap.

In dit hart zullen alle leeftijden altijd samen komen.

In de school zijn de gebouwen van de maatschappij opgenomen, maar onderscheiden zich in architectuur.

Aan de stad kant ligt het CKV gebouw met een groot theater, lesruimtes en sport faciliteiten.

De aula / buurthub opent zich in de binnentuin zodat iedereen elkaar kan vinden en zien.

De atelierruimtes liggen in de binnentuin zodat de scholen een duidelijke verbinding hebben met de ruimtes.

De maak- en labruimtes liggen aan de landschap kant, tevens de zuidkant en maken een verbinding met het groen.

Alle gebouwen krijgen hun eigen entree en worden omsloten door de binnentuin Op de daken komt sport en spel. Het gebouw is opgebouwd uit modules en is altijd uit te breiden en aanpasbaar.

De bibliotheek ligt ook aan de stad kant en creëert een plein en verbinding naar het binnengebied. scholen in kloostervorm

toekomst bestendig

39
KO VO PO MO toekomstige buurt stadspark toekomstige buurt stadspark

SPORT MS

CKV

AT

stadspark

40

stadspark

Gebouw verdeling

toekomstige buurt

41
fietsen
fietsen kinder boederij
speel pleinspeel bos
sport
voedselbos
wrak wateropvang pierenbadje schaatsbaan

Almere Pampus plein fietsen

parkeren open speelveld

de kiem

stadspark
voedselbos voedselbos voedselbos voedselbos
Begane grond 1:500
1e verdieping 1:500
2e verdieping 1:500

verdieping

50 3e
1:500
51 4e verdieping 1:500 5e verdieping 1:500

Doorsnede middelbare school

CKV gebouw

Kinderopvang

De kinderopvang ligt op de hoek, als een eilandje aan de parkzijde.

Aan de kant van de binnentuin verblijven de oudere kinderen en aan de kant van het park de kleine kinderen. De twee worden verbonden door een gemeenschappelijke keuken. Waarachter onder de tussenvloer slaapvertrekken, wasruimtes, opslag en toiletten zijn. Aan de kant van de binnentuin is een omheinde speelplek.

De twee architecturen komen hier samen, waarbij links het restaurant is. (Groot)Ouders kunnen hier een broodje eten en hun (klein) kind zien. Als zij door de kinderopvang heen kijken hebben zij uitzicht op het landschap.

55
56
57

Basisschool

De basisschool is gelegen aan de oostkant. Bij de ingang bevindt zich de huiskamer van de school waar sport en spel is en het toilet en de berging zich bevinden.

Alle instructieruimtes en open leerpleinen bevinden zich aan de landschappelijke waar het rustig is en kinderen zich kunnen concentreren.

Er zijn 3 soorten leerpleinen, in de gangen, in een kleine individuele en een groot leerplein. Allemaal hebben ze een eigen kwaliteit.

De kleuters hebben direct toegang tot het schoolplein maar hebben ook een eigen patio met een trap die naar het speeldak leidt.

In het midden van de school is nog een patio met een ronde trap die ze naar het dak leidt. Binnen en buiten is heel belangrijk in dit ontwerp.

De docenten bevinden zich aan de stad kant waar vergaderd kan worden. Aan de linkerkant is de buurhub en kunnen de kinderen ook kookles krijgen, aan de andere kant is de bibliotheek.

Het speeldak ligt op de 2e verdieping er is ruimte voor speelattributen, het is een veilige private tweede speelplein.

59
60
61

Middenschool

Aan de stad kant ligt de overgang van de basisschool naar het voortgezet onderwijs; de middenschool.

In de middenschool krijgen de leerlingen de kans om zich verder te ontwikkelen alvorens ze de keuze maken voor het niveau en richting van het voortgezet onderwijs.

De middenschool heeft meer open werkplekken en ruimtes. De kinderen zijn ook zelfstandiger. De docenten hebben hun eigen plek.

Beneden zijn openwerkplekken waar juist de verbinding met de maatschappij wordt gelegd zodat de kinderen goed worden klaargestoomd voor het juiste keuze pakket.

Boven zijn werkplekken en wordt instructie gegeven en is er ruimte om in rust te werken.

63
64
65

Middelbare school

De school voor voortgezet onderwijs heeft grote dubbelhoge entree met een grote trap die de leerlingen naar hun domein leiden, er zijn 4 domeinen in het schoolgebouw voor de 4 niveaus, vmbo, havo, vwo en gymnasium.

De entree is riant en daar is de balie van de conciërges te vinden. Links is een patio te zien die naar het sport en spel dak leidt.

De domeinen bestaan uit leerpleinen, een huiskamer met daaronder opslag en toiletten, altijd een plek voor de docenten. 2 instructie ruimtes en een patio die naar het dak gaat.

Op het dak is een landschappelijk plan waar de leerlingen samen met de bezoekers van de ateliers en CKV ruimtes kunnen chillen en sporten.

67
68
69

Medewerker

Mijn vader voelt zich vaak gast in een overheidsgebouw, daarom is er tijdens het afstuderen altijd oog geweest voor de “medewerker / docent”.

De docent krijgt zijn eigen eiland met eigen ontsluiting waar alle docenten van de school samen kunnen vergaderen. Hier zijn tevens ruimtes voor studentbegeleiding, kinderpsycholoog en ICT ruimtes. De kinderen kunnen op het eiland terecht komen door de eigen ontsluiting.

De directie van de scholen bevindt zich midden in de school, op de tweede verdieping van de school voor voortgezet onderwijs.

Alle domeinen en scholen zijn voorzien van ruimtes voor docenten.

Daarnaast hebben de docenten altijd plek voor nakijkwerk, bijvoorbeeld in de bibliotheek of in de thuiswerk plekken.

71

Gevel scholen

De scholen kennen een zachte en warme architectuur waarbij er hout wordt gebruikt. Daarnaast is het materiaal licht, zodat het gemakkelijk verplaatst kan worden (met het oog op het demontabele systeem)

Het gebouw wordt 500 mm opgetild van het maaiveld, zodat er zo min mogelijk beton toegepast hoeft te worden en het gebouw zo flexibel mogelijk blijft.

Aan het uiteinde van de vloeren is een koppelingsblokje toegepast dat ook flexibel in te zetten is, zo draagt deze de gevel, de vloer, de fundering maar ook de dakrand.

De verbinding tussen binnen en buiten is in dit ontwerp erg belangrijk. De lokalen zijn aan de landschap kant. Om hier een goede overgang te maken komt er een promenade langs de gevel. De verlenging van het gebouw creëert een rustige omloop, net als bij de kloosters vroeger. Anders dan bij een klooster is de binnentuin levendig en omloop aan de buitenrand rustig.

De omloop zorgt voor rust en hier kan nagedacht wordt, maar is ook functioneel om het zonlicht buiten te houden.

De gevel wordt voorzien van houten latten, deze houten latten kunnen gedraaid worden. Ze kennen 3 standen, open, gedraaid en dicht. Deze worden mechanisch aan gestuurd. Zo kan de docent zelf kiezen hoeveel licht er die dag het lokaal in moet stromen.

De kolommen en liggers worden gemaakt van verzinkt staal, deze dienen als verbinding met de maatschappelijke gebouwen.

73
76

Ventilatie en installatie

Schoolgebouwen hebben veel ventilatie nodig, maar liever natuurlijke dan mechanische ventilatie systemen. Het is niet mogelijk om het gebouw volledig te ventileren met natuurlijke ventilatie.

Het gebouw is ontworpen met modules en de ventilatie is ook modulair opgezet.

Elke module krijgt de mogelijkheid om een pijp toe te passen op het dak die individuele afzuiging heeft. De klaslokalen heb dan kasten die overdruk creëren waar de frisse lucht naar binnen wordt gezogen en weer wordt afgezogen. De overige ruimte van de kasten worden gebruikt als opbergruimte.

Bij de ramen is ook een verwarming installatie om de lucht te verwarmen. Alle lokalen krijgen een verlaagd plafond om de lucht te kunnen verdelen.

77
Doorsnede middenschool atelier ruimtes en science hub
80
81

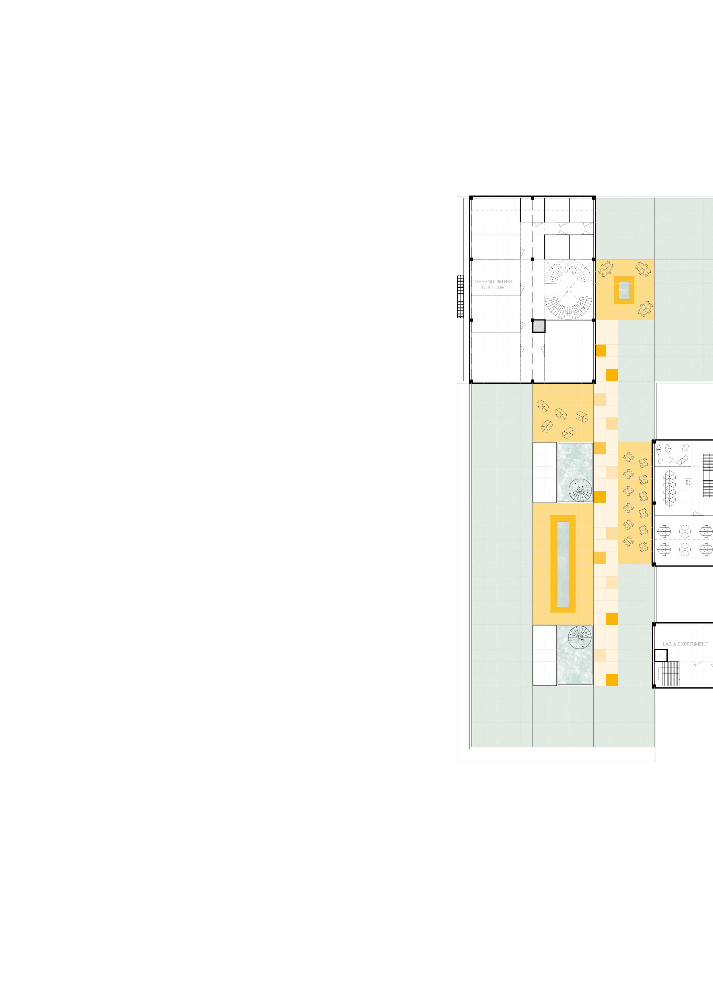
Bibliotheek & Buurthub

Aan de stadskant komt bibliotheek te liggen. Het gebouw creëert door zijn ligging een plein.

Op de begane grond is er een kleine bibliotheek voor het lenen van boeken. Op de eerste verdieping zijn individuele werkplekken. Op de bovenste verdieping is een grote ruimte voor lesruimtes, voor bijvoorbeeld taallessen.

De buurthub ligt midden in het hart van het gebouw en opent zich naar de binnentuin. De binnentuin loopt door in het eerste deel van het gebouw en de gevel kan ook helemaal openstaan. De buurthub is voorzien van een grote tribune trap, een restaurant/aula met grote keuken waar de buurt kan koken en de kinderen kunnen koken. Er zijn te verhuren ruimtes voor congressen/teambuilding dagen.

Boven de tribune zijn er individuele werkplekken voor eventuele thuiswerkers of voor ouders die willen werken op de locatie waar hun kind naar school gaat.

83

Atelier ruimtes & Science hub

De atelierruimtes liggen ook in het hart van de binnentuin zodat de leerlingen in de school in verbinding staan met verschillende beroepen. In de ateliers kunnen de ruimtes door verschillende bedrijven gehuurd worden. Op de 2e verdieping is een gemeenschappelijke keuken die toegang heeft tot het spel & chill dak dat ook wordt gebruikt door de leerlingen

Aan de parkzijde op het zuiden ligt het science blokje, hier is ruimte om experimenten uit te voeren. Op de begane grond is een grote techniekruimte waar de leerlingen les krijgen maar in het weekend de buurman zijn fiets aan het repareren is. Op de 1e en 2e verdieping zijn scheikunde/kookruimtes.

85
86
87

Gevel maatschappij

De gevel van de maatschappelijke blokken onderscheiden zich van de gevel van de school. De maatschappelijke blokken landen in de scholen architectuur en wordt voorzien van een polycarbornaten gevel.

De blokken lichten in de avond op, en krijgen hierdoor een duidelijke verbinding met de twee omliggende buurten.

5 panelen in het gebouw kunnen per stramien draaien, deze panelen zijn van glas. De panelen kunnen draaien door middel van een scharnier die wordt aangestuurd met een ketting die er langs loopt. De ketting wordt manueel bestuurd met behulp van groot wiel aan het eind van de module.

Door de panelen te openen wordt een soort openluchtschool gecreëerd, waardoor de gebruikers vanaf de verdieping een verbinding met het landschap aan kunnen gaan.

Ook in dit detail zijn de koppelingsblokjes te zien die de gevel, en fundering dragen.

89
91

Doorsnede basisschool, bibliotheek, middenschool & CKV gebuw

CKV
96

Als hart in het CKV gebouw op de 4e verdieping is een theaterruimte met plek voor 250 bezoekers. Het theater opent zich naar de polder een gaat een verbinding aan met het polderlandschap.

In de theaterzaal kijkt de gebruiker over de uitgestrekte polderlandschappen en het Markermeer.

Het theater wordt op een verdieping lager voorzien van een foyer waarnaast nog een kleiner theater is. Een verdieping hoger is ruimte voor installaties en de voorzieningen voor de artiesten.

97 Theater
98

Sportzaal

Op de begane grond naast de entree van het CKV gebouw is een sportruimte, waar overdag wordt gesport door de kinderen en ‘s avonds door bewoners van de wijk, De ruimte is voorzien van een klimmuur en gaat ook een duidelijke verbinding aan met het landschap. De sportvelden lopen door naar buiten en ook buiten kan gesport worden.

Voor de grotere sportzalen van het voortgezet onderwijs moeten de leerlingen naar een andere nabij gelegen locatie.

99

Gevel

De gevel van het CKV gebouw onderscheidt zich op een subtiele manier van de maatschappelijke blokken. Door de polycarbornaatpanelen van 900 mm naar 450 mm te brengen.

Het CKV gebouw heeft de hoofdingang aan de stad kant.

Het gebouw krijgt een offset van 1,8 meter aan de parkzijde om aan te sluiten aan de gevel van de scholen. Deze dient tevens als vluchtroute.

Aan deze zijde kunnen alle polycarbonaatpanelen in één keer draaien. Deze worden mechanisch aangestuurd. De panelen worden aangestuurd door een ketting.

101
CKV

De gevel wordt voorzien van in elkaar geklikt polycarobornaten delen van 450 mm breed. Achter de panelen komst een verstevigings constructie.

De vloerbanden zijn van verzinkt staal en maken een verbinding met de architectuur van de schoolgebouwen

103 Gevel CKV
104

Ventilatie

Door de offset van 1,8 meter loopt de gevel door van de maatschappij. Deze dubbele gevel kan functioneren als opwarmsysteem voor het CKV gebouw zodat het een natuurlijk ventilatie systeem krijgt.

Als de panelen gesloten zijn warmt de ruimte op en wordt het door overdruk naar het grote atrium gezogen waarbij de warme lucht zich verspreid over het gebouw. De warme lucht stijgt op en gaat door een groot dakraam naar buiten.

Door de panelen open te zetten kan het gebouw koelen, dit werkt op dezelfde manier.

105
107
112

Slot woord

Het schoolgebouw is in mijn opinie een van de belangrijkste gebouwen van je leven, maar wat heeft jouw schoolgebouw jou gegeven?

Dit schoolgebouw is een voorbeeld voor de scholen architectuur in Nederland met name voor scholen in Almere.

Het schoolgebouw brengt mensen samen en daardoor zal er minder segregatie zijn in onze verbrokkelende samenleving.

Mensen moeten weer leren samenleven en samenwerken. De Kees Boeke werkplaats in Bilthoven is een goed startpunt, maar ook deze school mist nog belangrijke elementen.

Met dit afstuderen heb ik laten zien dat de architectuur van een schoolgebouw een belangrijke bijdrage levert aan de kwaliteit van het onderwijs.

Het schoolgebouw is adaptief en geeft de mogelijkheid tot verandering en aanpassing, waardoor het een toekomstbestendig en duurzaam gebouw wordt.

Door de architectuur past het gebouw in de omgeving en verbindt de bebouwde omgeving met de natuur.

Niet alleen de leerlingen, maar ook de docenten staan centraal in dit gebouw, zodat zij zich geen gast meer voelen in hun school.

Door de indeling van het gebouw verschuift de focus op IK naar de focus op WIJ.

Zo is dit geen school die na schooltijd zijn deuren sluit, maar ook na schooltijd leeft en oplicht.

Waarbij de leerlingen altijd geconfronteerd worden met alle beroepen, dus ook maak en kantoorberoepen. Zodat ze op de juiste manier worden voorbereid op hun toekomst.

Waarbij er levenslange ontwikkeling mogelijk is en iedereen mag komen om zich verder te ontplooien, wat uiteindelijk eenzaamheid tegengaat en verbinding bevordert.

Mag dit de eerste stap zijn naar hoe we onze kinderen stimuleren om zich te ontwikkelen en een voorbeeld zijn voor de toekomst van de scholen in Nederland.

113
114

Dank woord

Een afstudeer project komt niet zomaar van de grond. Samen met comissieleden, experts, vrienden, familie en collega’s is dit afstudeer project tot stand gekomen.

Graag wil ik Hans Hammink, Elsbeth Falk en Wouter Kroeze danken voor het begeleiden en verscherpen van dit afstudeer project. Ik heb het als een zeer inspirerende en aangename reis ervaren.

Daarnaast wil ik mijn familie bedanken, met in het bijzonder mijn vader die mij uren in het maquette hok heeft bijgestaan.

Natuurlijk mijn atelier genootjes, Jesse Stortelder, Anne-Roos Demilt, Evie Lentjes, Bart Jonkers, Esther Bentvelsen en Alfonso Gomez.

Ook mijn collega’s hebben mij steeds weer moed en motivatie ingepraat, dank allen. Met in het bijzonder Mark Spijkerman, Joris Korbee en Martijn van Gameren.

En niet te vergeten, degene die er elke dag bij was Vito Timmerman.

115
116
117
118

Turn static files into dynamic content formats.

Create a flipbook
Issuu converts static files into: digital portfolios, online yearbooks, online catalogs, digital photo albums and more. Sign up and create your flipbook.