Second Semester Portfolio with VisCom

Page 1

Evan Black

Second Semester Portfolio

Detroit Mercy Architecture

Table of Contents

01) Abstract Interpretation 02) Precedent Diagrams 03) Artist Studio
2
05) Joint Project 04) Music Center

This semester was based on using music to create pieces of art then translating that later to designing buildings. Architecture - like music - has the capacity to speak to us in a non-linguistic way. With out first prompt, we were to choose one song from a provided playlist and create twodimensional compositions that best represents the quality of the song. The song I picked was Superstar by Lauryn Hill. When studying this song I felt structure in the backtrack but flow in the way she sung. I used the feeling of warmth that the song made me feel and formed my color palette around this feeling. We then had to compare another one of our artists’ song to our selected song and compare the two and create a piece representing that song

01) Abstract
Interpretation

I created this piece by tapping my finger to the beat of the entire song. I wanted to really emphasize the heaviness and structure that held the song together

This piece represents the heavy, yet organic structure of the bass and how it ties in with the colorful and melodic feelings heard in her voice

4

Representation of Lauryn’s voice expelling out of the heavy structure while maintaining a constant steady spiraling flow

A showcase of the melodic talent that Lauryn has and the variety of different tones heard in her voice.

I created this painting showcasing all of the parts of the song blending into one another and working together to create one composition

“Gotta Find Peace of Mind” in comparison to “Superstar” has similar qualities of structure and blending but was a lot more peaceful which in turn called for a calming color pallet

6

From here, we were to transform our two-dimensional pieces and create three-dimensional abstract structures that best represent the song. In this process, I was inspired mostly by three of my painted pieces. I took my concepts of blending, structure, and warmth and created multiple study models.

8

01) Abstract Interpretation Final

I created a sculpture that represented the structure, warmth, blending, and melodic aspects that have always been prevalent throughout my process. With the use of warm toned wooden beads I was able to produce a successful representational model of Lauryn Hills, “Superstar”.

10

02) Precedent Diagrams

This section was an intermission for us to learn how to create different types of diagrams based on a chosen precedent building. We were put into pairs and were to create a series of diagrams that provided knowledge of a building that that we could then provide to others to showcase how the building was operated, built, designed, etc. Tying in with the music based semester we were given performance spaces around the country. My precedent building was TheWildBeast located on California Institute of the Arts campus. For my diagrams, I created a topographical diagram to show the building was cutting into earth, I also produced a series of floor plans with different seating layouts representing the many ways the space can be set up, the third diagram I produced was of a design element inside of the room. The architects designed refurbished drum panels used to deflect sound. In addition to the building precedent diagrams we created similar diagrams for City Modern in Detroit which was then used as a segway into out final project

12

A space for composing, experimenting, rehearsing, and relaxing were the main goals for our next project. For this project we were to design a building that was multipurpose for our selected artist from the first project to be located in Eastern Market downtown Detroit. The main space and main purpose for the building is to provide a place for your artists to work collaboratively, both informally to create new material, and to rehearse established pieces. With this project it was important for me to use the same concepts of warmth and structure in my building design. I achieved this by creating a building with a centralized glowing orange glass structure with upward spiraling ramp with extruded rooms made from brown copper like material. This Building represents the warm organic style of Lauryn Hills music.

03) Music Studio
14
16
18

04) Music Center

For our last project, we designed a small music cultural center on a site in Brush Park Detroit neighboring the City Modern Development– a place for study, performance, and celebration of a particular genre of music. The genre we were to design the space for was based on the original song we picked for project one which for me was R&B. Throughout the semester I was heavily focused on structure and warmth of Lauryn Hills music in which I created a selective color palette. For this project I needed to create a space for R&B, so I broadened my palette by exploring R&B concert sets that I have attended. These concert precedents led me to explore deeper than just the colors of lighting but the hazy, dreamlike environment people are put in that attend these concerts. With this exploration I found the concept of my building and created a color palette that I incorporated by lighting glass facades for interior and exterior experience as well as a double skinned ceiling in the performance space that diffuses the harsh artificial lighting through a frosted glass to recreate the atmosphere that is represented in all R&B concert sets

20

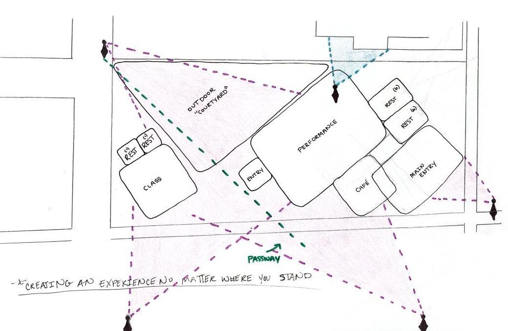
With my programing diagrams I was playing with the orientation of my building to create the

best connection with the City Modern Development which then helped me to understand where the glass facade would be on the building and where the light would escape from.

+ =
22
3/32” = 1’
CROSS SECTION
24
1’
LONGITUDINAL SECTION 3/32” =
WEST ELEVATION 3/32” = 1’
26

For this Visual Communication class project we had to create a working joint that was not held together by any hardware or glue. For my project I created a shelf-like table with panels of whiteboard and chalkboard and bathroom floor tiles. For my joint I wanted to get the shelf table form and I did this by creating notches in the side of these panels to slide that tiles into.

I wanted to keep the color palette of the physical object neutral with the black and white look to provide emphasis on the drawings and other décor that could potentially be placed on these shelves.

03)
Joint Project
28
Panel Assembly Floor Plan
Shelf Assembly
Panel Elevation

Chalk Board Pieces

White Board Pieces

30
32

Turn static files into dynamic content formats.

Create a flipbook
Issuu converts static files into: digital portfolios, online yearbooks, online catalogs, digital photo albums and more. Sign up and create your flipbook.