



![]()




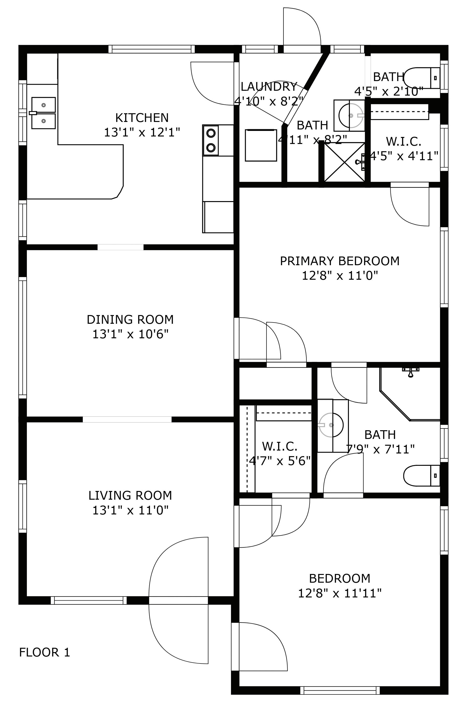
Introducing 1421 Bath Street, a well-maintained multi-unit property that has been owned by the same family for 50 years. The property boasts a charming 1910 single family front house that is 1,400 sq feet with two bedrooms, two baths, a front porch, and rear deck. A back structure permitted as a legal duplex in 1970 currently houses 4 units including two 1+1’s, two studios, and a communal laundry room. In addition to the multiple units, the generous 7,840 sq ft lot provides 5 off-street parking spaces. The property has a new roof, was recently tented, and offers a unique opportunity to own an admired Santa Barbara asset with three vacant units close to downtown shops, Cottage Hospital, and the freeway. Perfect as a dual living scenario or as an investment, don’t miss seeing this property!



Nestled along the picturesque California coastline, downtown Santa Barbara embodies the quintessential charm of coastal living fused with cultural richness. With its iconic red-tiled roofs, Spanish Colonial architecture, and palm-lined streets, this vibrant district offers a unique blend of history and modernity. From boutique shops to world-class dining experiences, downtown Santa Barbara caters to every taste and preference. Residents revel in the convenience of urban living, with an array of amenities just steps away from their doorstep. Moreover, the area’s proximity to stunning beaches and recreational opportunities ensures a coveted lifestyle for those seeking the perfect balance between leisure and luxury. Whether you’re drawn to the vibrant arts scene, the bustling Farmer’s Market, or simply crave the laid-back coastal vide, downtown Santa Barbara captivates hearts and minds, making it a prime destination for both residents and visitors alike.






UNIT A: GROUND FLOOR 1 BEDROOM UNIT
UNIT D: DOWNSTAIRS STUDIO


UNIT B: UPSTAIRS 1 BEDROOM UNIT
UNIT C: UPSTAIRS STUDIO

My highest value is to provide exceptional service to every client. I am a Wharton School graduate, a CPA, and a Broker Associate with over a decade of hands-on property renovation and sale experience. My background, combined with access to Berkshire Hathaway’s advanced marketing tools and vast network of resources, makes me perfectly suited to guide clients through a variety of property transactions. All while prioritizing trust, integrity, and client satisfaction.
When not working I enjoy Santa Barbara’s wonderful outdoors including pickleball, hiking, beach yoga, and strolling down State Street. I am a SB Newcomers Board Member, a Women’s Fund member, a volunteer with the Santa Barbara Food Bank and the Friendship Center, and attend Santa Barbara Community Church.
If there is any way that I may assist you, please do not hesitate to reach out to me.
