5407-5417 Laurendeau, Montreal

Page 1


unité

s quartiers prisés de nus de 6 logements solide. Entièrement le 5407-5417 rue vestissement clé en , de qualité et de e bâtiment abrite 6 urations variées : 2 eux niveaux (6½ et ements de type 3½ ar une disposition onfort adapté aux ers de bois, cuisines rale et abondante e et l’excellent taux cet actif L’adresse ulement 1,2 km du es, des commerces

Unité #5407 - 6 ½ sur 2 niveaux (RDC + SS)

Unité #5409 - 7 ½ sur 2 niveaux (RDC + SS +

Unité #5411 - 3 ½

Unité #5413 - 4 ½

Unité #5417 - 4 ½

Plans de l’immeuble

Plans de l’unité #5407

Sous-sol
RDC

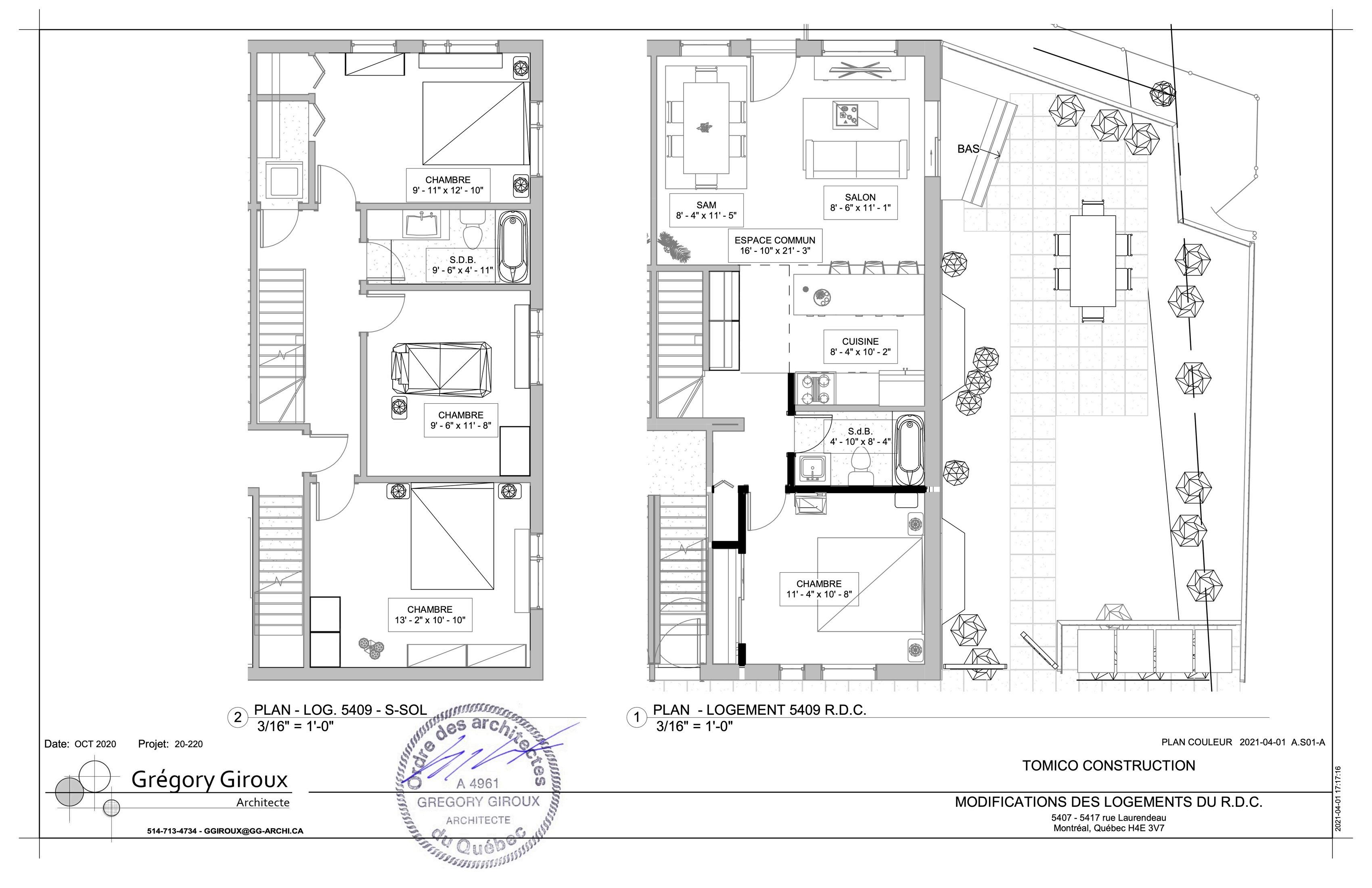
Plans de l’unité #5409

Sous-sol
RDC

Plans des unités #5411-5417

Certificat de localisation

Caractéristiques

LOT ET ZONAGE

Lot : 1 573 607

Zonage : 0200

Usage : Résidentiel (H1-3)

SUPERFICIES

Bâtiment : 1,589 pc

Terrain : 2,113 pc

DÉPENSES

Taxes municipales : 10 109$

Taxe scolaire : 1,289$

Assurance : 4,308$

Hydro : 445$

ÉVALUATION MUNICIPALE

Année : 2026-2027-2028

Terrain : 147,200$

Bâtiment : 1,405,600$

Total : 1,552,800$

Analyse financière

Mots du propriétaire

Ce bâtiment a été construit avec une vision à long terme. En tant qu'entrepreneurs en construction avec une compagnie de renom, nous avons construit plusieurs immeubles que nous avons conservés pour agrandir notre parc immobilier. Ce projet particulier ne fait pas exception. Nous avions même l'intention d'y habiter à une certaine époque, d'où la présence d'un appartement spacieux de plus de 2000 pieds carrés, comprenant 4 chambres à coucher et 2 salles de bain complètes. Cet appartement dispose également d'un accès à une cour privée, offrant un espace extérieur tranquille et agréable.

Qu’est-ce qui vous a motivé à construire cet immeuble plutôt qu’à en acheter un existant?

En tant qu'entrepreneur en construction depuis 20 ans, nous avons accumulé une vaste expérience dans le domaine de la construction neuve, les projets de rénovation majeur et l'enveloppe du bâtiment. Notre passion pour la construction et notre souci du détail nous ont poussés, il y a 10 ans, à nous lancer dans la construction de notre propre parc immobilier neuf. Nous croyons fermement en l'importance de la qualité et de la fiabilité, c'est pourquoi nous préférons faire confiance à nos propres techniques de construction plutôt qu'à celles d'autres entrepreneurs.

Quelles précautions avez-vous prises pour assurer la durabilité et la facilité d’entretien?

Tous les éléments métalliques extérieurs, comme les balcons, les escaliers et la marquise ont été galvanisés pour prolonger leur durée de vie.

Avez-vous travaillé avec un architecte ou un ingénieur particulier pour optimiser la structure ou l’efficacité du bâtiment?

Un architecte nous a produit les plans de construction et nous avons eu un ingénieur en structure qui a fait le suivi pour la charpente et les fondations.

Quel type d’entretien est nécessaire à court et moyen terme?

Le bâtiment est encore considéré comme neuf, l’entretien est très minime

Quelles sont les principales caractéristiques techniques (isolation, chauffage, ventilation, plomberie, électricité) dont vous êtes le plus fier?

L’immeuble se distingue par une excellente insonorisation et une isolation de qualité, qui assurent à la fois une meilleure efficacité énergétique, réduisant ainsi les coûts de chauffage, et un grand confort acoustique, offrant plus d’intimité et de tranquillité à chaque locataire.

Qu’est-ce qui rend ce quartier ou cette municipalité particulièrement attrayante?

Il y a beaucoup de commodité près de l’immeuble : école, pharmacie, épicerie, métro, canal de Lachine, marché Atwater...

Comment décririez-vous l’ambiance du voisinage?

C’est une rue peu passante et il y a beaucoup de stationnements dans la rue.

Pouvez-vous décrire les choix de matériaux ou de finitions qui, selon vous, distinguent l’immeuble des autres?

Lorsque nous avons conçu cet immeuble, nous avons mis un point d'honneur à sélectionner des matériaux de qualité supérieure afin d'assurer non seulement une durabilité à long terme, mais également un esthétisme moderne et élégant.

Nous avons opté pour un mélange de briques et d’éléments métalliques pour la façade, ce qui confère au bâtiment une allure intemporelle et robuste. Les fenêtres en PVC avec un vitrage performant offrent une isolation thermique et acoustique optimale, tout en maintenant une esthétique épurée. Nous avons porté une attention particulière à l’isolation des murs extérieurs en utilisant une membrane VPstick de Soprema à l’extérieur et une isolation à l’uréthane de 5 pouces à l’intérieur.

Nous avons également construit deux murs indépendants entre les logements pour assurer une insonorisation supérieure.

À l'intérieur, nous avons choisi des planchers en bois franc pour leur résistance et leur beauté. Les cuisines spacieuses avec un îlot dans chaque appartement apportent une touche moderne et fonctionnelle.

Photos de construction

Le quartier du Sud-Ouest à Montréal

Au sud du centre-ville, entre les rives paisibles du canal de Lachine et les quartiers historiques de SaintHenri, Pointe-Saint-Charles et Ville-Émard, le SudOuest de Montréal incarne à merveille l’esprit de renouveau de la métropole. Longtemps marqué par son passé industriel, le secteur s ’est transformé au fil des dernières décennies pour devenir l’un des milieux de vie les plus attractifs et les plus inspirants de la ville

Aujourd’hui, il séduit par son authenticité, son effervescence et son équilibre entre énergie urbaine et douceur de vivre. On y retrouve une riche diversité architecturale maisons centenaires, lofts réhabilités, constructions modernes qui témoigne de son évolution constante. Ses rues bordées d’arbres, ses marchés de quartier, ses cafés indépendants et ses restaurants prisés créent une atmosphère conviviale et branchée, tout en conservant une âme profondément montréalaise

Grâce à sa proximité du centre-ville, de plusieurs stations de métro et des grands axes routiers, le SudOuest offre une accessibilité remarquable. Sa population, jeune et créative, participe à un véritable bouillonnement culturel et économique Ce quartier à échelle humaine, en pleine valorisation, représente aujourd’hui un investissement sûr et un cadre de vie envié là où patrimoine, modernité et art de vivre se rencontrent harmonieusement.

https://montreal.ca/le-sud-ouest

Carte du territoir

À propos de Benoit

Je suis déterminé par l’idée de faire une différence, de m’impliquer et de faire croître les projets dans lesquels je m ’ engage. Je crois aux relations respectueuses, au travail bien fait et en l’atteinte de résultats

Cumulant bientôt 20 ans d’expérience et étant affilié à l’agence immobilière la plus réputée au monde, je peux affirmer être un atout précieux à quiconque voulant faire une transaction immobilière Mes clients sont soigneusement sélectionnés et j'accorde une grande importance à bâtir des relations d'affaires durables. Ma connaissance du marché ainsi que mes analyses, complètes et transparentes, facilitent grandement la prise de décision

« Je m’engage à ce qu’aucune transaction ne soit le fruit du hasard et que les retours sur investissement prévus soient respectés. »
- Benoit Sansoucy

Mes implications professionnelles sont la preuve de ma grande passion pour le courtage immobilier et j’ai à coeur de participer à son évolution.

TITRES

2007àauj-CourtierimmobilieragrééethypothécairechezEngel&Volkers

2011àauj-Piloted’avionprofessionnel

2023àauj-Piloted’hélicoptèreprofessionnel

IMPLICATIONSPROFESSIONELLES

2014-2019-Membreduregroupementcommercialdel’APCIQ*

2020à2024-Membreducomitédespratiquesducourtagedel’APCIQ*

2020à2025-AdministrateurauCAdeCentris.ca

2020àauj-AdministrateurauCAduCollègedel’immobilier(président2023+)

2023àauj-MembreCAconsultatifdeEngel&VolkersMontreal

*AssociationprofessionnelleducourtageimmobilierduQuébec

IMPLICATIONSPERSONNELLES

2013-2015-Sociétécan.delascléroseenplaques

2015àauj-OrganismeGrandsFrèresGrandesSoeurs

2022-FondationimmobilièredeMontréalpourlesjeunesFIMJ

2024àauj-Fondationdel’InstitutCardiologiquedeMontréal

2024àauj-FondationCharles-Bruno-Vold’unsurvivantàl’autre

2025àauj-FondationMuséeMcCord

FORMATIONS

2007-2008-Formationdecourtierimmobilieraffilié&agréé

2009-2011-Formationdepiloteprofessionnel-TransportCanada

2013-2014-Programmeémergence(G1)-Écoled’entrepreneurshipdeBeauce

2015-SéminaireBusinessMastery-TonyRobbins

2021-Obtentiond’unelicencedepilotedeligne-TransportCanada

2021-Certificatengestionimmobilière-UniversitéConcordia

2024-Certificatengestionettransfertd'entreprise-Institutdeleadership

2024-2025-Certificatengouvernance-Collègedesadministrateursdesociétés

2025-LeadershipenIA-Institutquébécoisd’intelligenceartificielle(MILA)

Turn static files into dynamic content formats.

Create a flipbook
Issuu converts static files into: digital portfolios, online yearbooks, online catalogs, digital photo albums and more. Sign up and create your flipbook.
5407-5417 Laurendeau, Montreal by Benoit Sansoucy, courtier immobilier agréé chez Engel & Volkers - Issuu