B PORTAFOLIO 2CRT_BAYRON RODRIGUEZ ESTRADA

Page 1

UBICACIÓN

Pasto-Nariño

Comuna1,CentrohistóricodelaciudaddePasto.

BarrioSantiago

Se presenta desequilibrio entre el espacio p cual genera una marcada desconexión vial, qu a la ocupación, invasión masiva (vehícul desorden en el espacio público, exce contaminación visual y auditiva. Además, se grado de inseguridad, dado la escases interacción social.

Sin embargo, el sector cuenta con una local

DENSIFICACIÓN

- Reestructurar la zona residencial del séctor a partir de la creación y organización de una súper manzana con densificación en altura

Propuestainteg

CONEXIÓN - Creación de tres ejes arteriales.

Eje comercial: Ampliación de vías principales y avenidas.

Pazoetas-Sueloduro

Zonaverdepropuesta-Sueoblando

Senderos-Sueosemiblando

Densficación-Usoresidencial

Densficación-Usomxto

Equipamientospropuestos

Eje educativo: Apertura del parque privado, generación de recorridos peatonales y vehiculares (menores) que vinculen los equipamientos educativos.

Eje centro histórico: Ampliación de calzadas y creación de recorridos peatonales que vinculen el centro histórico de la ciudad con la interioridad del sector.

PÚBLICO - Creación de nuevo espacio público y zonas verdes.. Generación de pasajes vegetativos a interior de la manzana.

AV OACÁ C A R R E R A 2 3 CARERRA 2 1 C A R R E R A 2 2 C A R R E R A 2 2 A CAE3 CALLE14A CAE3 CALLE15
CORTE LONGITUDINAL CORTE TRANSVERSAL ESPACIO

EQUIPAMIENTO EDUCATIVO TECNOLÓGICO

CARÁCTER: Semiprivado

USUARIOS: Niños y jóvenes interesados por la práctica y aprendizaje de la robótica y actividades tecnológicas.

CONCEPTO FORMAL

CONTINUIDADYDINAMISMO

Uso del círculo como geometría y unidad espacial de continuidad.

El juego de alturas (escalonamiento) permiten dinámicos de ejes ra

Jerarquía

Radialidad Fluidez

Fragmenta Sime

CONCEPTOURBANO:CONEXIÓN

Relación directa del equipamiento con su espacio público inmediato. No posee elementos estructurales que lo desvinculen de su exterior inmediato. El espacio publico y equipamiento actúan como una totalidad.

El espacio público complementa al equipamiento: Aproximación, marcación de accesos, recorridos principales, redirige las visuales, genera áreas de interacción social.

CONTEXTO: - Generación de recorridos de familiaridad geométrica uniforme al equipamiento que redirigen al usuario al edificio.

-Relación codependiente entre espacio público y equipamiento

-Su contexto inmediato vincula al equipamiento con el séctor, ubicándolo dentro del eje educativo.

CORTETRANS CORTELONGITUDINAL

FACHADA SUR FACHADA NORTE

CONTINUIDADYDINAMISMO

FACHADA ORIENTE

FACHADA OCCIDENTE

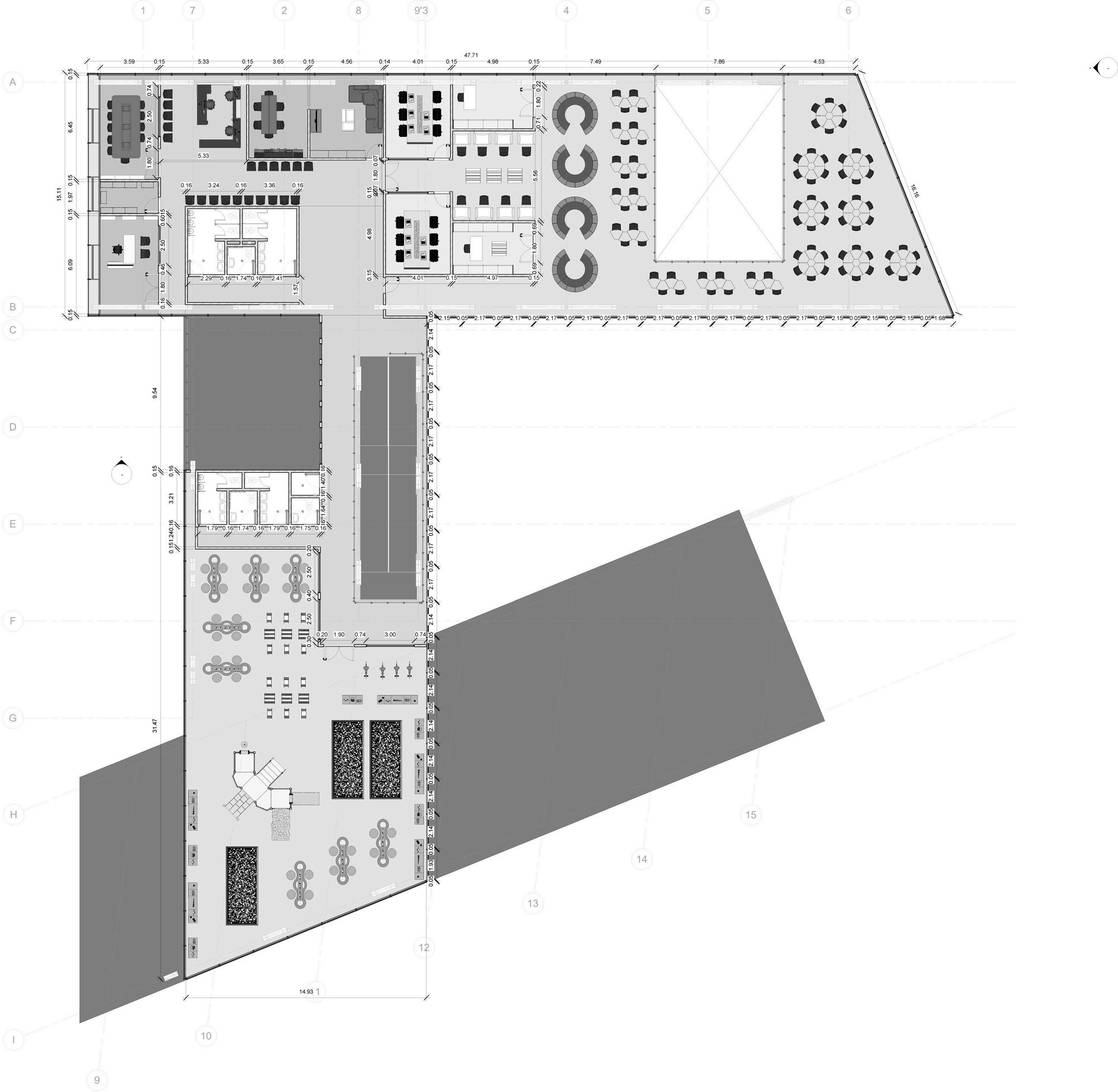
P L A N I M E T R I A
/ 4

Nivel 1. Relación interior - exterior

Recorridosprincipales

Permanencias-Plazas

Recorridossecundarios

Zonadeparqueo

Calzada

Zonaverde

Planta de cubiertas

PLANIMETRIA

Nivel 2.
Nivel 3.
/4

CORTE A-A'

Sistema estructural

Sección activa: funciona por medio de columnas circulares en acero de 30 cm de diámetro y muros pantalla que dirigen las cargas horizontales de las vigas IPE 500 y cerchas de la cubiertas hasta las zaptas aisladas.

CORTE B-B'

Descripción

El proyecto esta en medio del corredor ambiental y el de equipamientos educativos, por lo que este se vuelve muy permeable e induce al peatón a recorrerlo, con ello logramos articular por medio de las zonas publicas, equipamientos, parques y plazoletas a los diferentes zona residencial, comercial y deportiva del sector, para lograr una mejor sinergia entre cada uno por lo que la creación de la biblioteca polivalentes busca añadir mas actividades culturales y de recreación que ayuden a generar otro tipo de ambientes mas interactivos que permitan el disfrute de cada uno de los usuarios.

BIBLIOTECA CULTURAL CHILE /5

UBICACIÓN

Pasto-Nariño

Comuna2-4-5,SectoravenidaChile

Barriolasvioletas

Tratamiento de conservación

Tratamientoderenovación

Desarrollointegral

Tratamientodeconsolidación

Centro de Salud Las Violetas

Espacio público

Recorridos peatonales

Zonas duras

Zonas blandas

Parqueaderos

Sendero ecológico

Vías arteriales

Vías secundarias

Cicloruta

Densificación

Propuestaintegral

Articulación - Creación Eje ambiental

El sector tiene un fuerte carácter comercial e industrial que produce una gran congestión en el tema de movilidad, que invade parte de la ronda hídrica y altera la morfología de la zona residencial por lo que se propone; un corredor ambiental que abarque todo el eje del rio generando espacios verdes que mejoren la circulación peatonal sobre la vial, la conexión de equipamientos, la ampliación y protección de espacio públicos para la zona residencial.

Escue a Julian Bucheli

BIBLIOTECA

CULTURAL CHILES

CARÁCTER: Semiprivado

USUARIOS: capacidad de 1100 personas para menores desde los 5 años y adultos .

Área Bruta 7591 m2

Área Cesión 2795 m2

m2

CONCEPTO FORMAL

Equilibrio

El equipamiento busca ser un espacio de encuentro, intercambio de información y lúdico que incorpore actividades culturales y recreativas, por lo que desde su exterior se busco tener amplias zonas publicas con diversas plazoletas , que tuvieran diferentes recorridos y permanencias que puedan servir como transición a los espacios internos del proyecto.

2877 m2

CONCEPTO FUNCIONAL

INTEGRACION

La forma consta de tres prismas que responden a la dirección de las principales vias de acceso y de relación con el contexto, estos se cargan entre si para generar la sensación de suspensión.

Por medio de la topografía se busca relacionarse en diferentes niveles al contexto, con una relación interior-exterior en el que exista una circulación permanente en su acceso principal y del cual se continua escalonado a las diferentes ambientes internos que apoyan el concepto global de tener varias actividades educativas, culturales, de recreación y ocio.

6
919
0
pación
m2
m2
EQUIPAMIENTO
Permear Equilibrio Cargar Acoger Axialidad Acceso Recorridos

Biblioteca cultural chiles

PLANIMETRIA

SecciónA-A’

Asoleamiento

PLANIMETRIA

mediato

Vías principales

Vias secundarias

Vías propuestas

Espacio público

Recorridos peatonales

Zonas duras

Zonas blandas

Sendero ecológico

Biblioteca cultural chiles
Nivel2

SISTEMA ESTRUCTURAL

VECTOR ACTIVO

Por el nivel freático se recomienda usar cimentación profunda con 6 pilotes en cada uno de las zapatas en concreto, que soportan cada una de las columnas de los sótanos que a su vez trasmiten las cargas de cada columna diagonal en acero y todo el trmado de las losas aligeradas.

El sector de estudio no presenta flujos de piroplastos o es corredor de riesgo volcánico. Amenaza volcánica baja.

VIVIENDA RURAL OBONUCO

Descripción

Dada la ubicación y dinámica del lugar, se plantea la creación de un complejo residencial que incluya viviendas de estilo campestre. Estas viviendas estarán formadas por módulos de uso mixto, que permitirán la integración de actividades agrícolas y comerciales autosustentables. La distribución de los módulos se realizará según las necesidades de cada usuario, y se incluirán espacios comunes con finas culturales.

/6

Turn static files into dynamic content formats.

Create a flipbook
Issuu converts static files into: digital portfolios, online yearbooks, online catalogs, digital photo albums and more. Sign up and create your flipbook.
B PORTAFOLIO 2CRT_BAYRON RODRIGUEZ ESTRADA by bayron rodriguez - Issuu