PRECEDENT - The ANATOMY of PAVILIONS: Research and Analyse_Design Studio 1b_2022-23

Page 1

RECEDENT Studio Dizajn 1b

Hulumtim
ANALIZË
BANUSH SHYQERIU
dhe
ANATOMIA E PAVIJONEV
Prishnë, 2022

PRECEDENT

Studio Dizajn 1b

ANATOMIA E PAVIJONEVE

Hulumtim dhe ANALIZË

UBTPRESS
Copyright © 2022 Banush Shyqeriu and UBTPRESS.

Dizajn 1b

BANUSH SHYQERIU
PRECEDENT
Studio
ANATOMIA E PAVIJONEVE Hulumtim dhe ANALIZË

Aspektet përmbajtësore për Hulumtim dheAnalizë ................................................................... IV

Lista e Projekteve – PAVIJONEVE - për Hulumtim dheAnalizë .............................................. V

Arkitektët | foto-kolazh VII Studentët | foto-kolazh ...... VIII

Adriatik Tërpëza 15-Minutes Community Meta-Box/Tongji University + Fab-UnionTechnology, 2021 1

Argjira Qehaja Bamboo Bamboo, Canopy and Pavilions / IILab., China,2020 ............................................ 9

Arta Llapjani Barcelona Pavilion / Mies van der Rohe,Barcelon, 1929 ............................................ 17

Aurela Salihu The Brazilian Pavilion / Oscar Niemeyer, New York’s World Fair 1939 ............................................ 25

Bleron Shabani CommonAirRea / Studio Cloud-floor, Bangkok, 2014 ............................................ 33

Blinë Krasniqi Container Stack Pavilion / People’s Architecture, China, 2015 ............................................ 41

Donjeta Imeraj Egaligilo Pavilion / Broissin, Mexico, 2019 49

Edona Shala Floriade Pavilion -The Voice of Urban Nature / Overtreders W, 2022 57

PËRMBAJTJA I HYRJE........................................................................................................................................ III

Ema Blakqori Helsinki Biennial Pavilion / Verstas Architects\2020

Erjona Pllana Japan Pavilion Expo 92’byTadaoAndo Architect

Festë Berisha Meditation Space for Creation / Jun Murata / JAM, China, 2019

............................................ 65

............................................ 73

............................................ 81

Gentina Ukaj Pavilhão DaÁgua / Water Pavilion, EXPO 98 Lisbon /A. BurmesterArquitectosAss. ............................................ 89

Malsore Lajqi Serpentine Gallery/ Studio Snohetta, London, England, 2007 97

Njomza Thaqi Serpentine Gallery Pavilion 2011 / Peter Zumthor ............................................ 105

Poema Doli Serpentine Pavilion / BIG, London, 2016 ............................................ 113

Rinesa Haziraj Serpentine Pavilion 2018/ Frida Escobedo ............................................ 121

Urata Preteni Spanish Pavilion at the Universal Expo Dubai 2020 129

Yllka Krasniqi Swiss Sound Pavilion / Peter Zumthor, Germany, 2000 ............................................ 137

II

HYRJE

Studimi i precedentëve është esencial për zhvillimin e arkitekteve të rijnë. Ekspozimi ndaj një variete të mënyrave te të menduarit rreth ambient të ndërtuar dërgon në një bazë më të zgjeruar të dijeve nga e cila mund të përthithim gjatë zhvillimit profesional. Në vend të ekzaminimit sipërfaqësor të imazheve, studentët duhet të eskavojnë mësime krike nga rastet studimore; vetëm imazhet sqarojnë shumë pak se çka ka për të ofruar një precedent si rast studimor. Në vend të kësaj, studimet duhet të fokusohen në analizimin e; SI funksionon një projekt, si i PËRGJIGJET dhe si NDËRVEPRON(forma,funksioni,lokacioni/ambien).

Studentët e arkitekturës mund të ngurrojnë të merren me studime të precedentëve sepse ata "besojnë se origjinalite dhe madhësha e tyre do të përparojnë më së miri duke izoluar gjenialiten e tyre krijues nga" korrupsioni "nga idetë dhe arritjet e të tjerëve", por në realitet, "si zhvillimi evolucionar po ashtu edhe revolucioni kontradiktor varet nga të kuptuarit e asaj që ka kaluar më parë.” Precedentët ofrojnë mësime kryesore që mund të nxirren, zgjerohen dhe përdoren si një themel për procesin e dizajnit. Vizami nga analiza e një vepre arkitekturore është thjesht kopjim vetëm kur ajo që merret është sipërfaqësore. Nëse në vend të kësaj mësimet e j krikemarrëdhënia e komponentëve, sistemeve të rregullit hapësinor, mjeteve të lidhjes, diagramet konceptuale, për të përmendur vetëm disa - shqyrtohen dhe përdoren si blloqe ndërmi për të ndihmuarkrijiminenjëarkitekturetëre,atëherëprecedenbëhetnjëshkëndijëfrymëzimi.

PërkufizimiitermitPRECEDENT:

1: një dukuri e hershme e diçkaje të ngjashme;

2a: diçka e bërë ose e thënë që mund të shërbejë si një shembull ose rregull për të autorizuar ose jusfikuar një veprim pasues të të njëjt apo një lloj analog;

b: konventa e krijuar nga një precedent i llë ose nga një prakkë e gjatë;

3: mënyra se si është bërë diçka në të kaluarën që tregon se është mënyra e saktë për t'u bërë;

4: një person ose një gjë që shërben si model.

Shih termet: me precedent, i pa precedent, precedent i keq, etj. Shih sinonimet: model, shembull, mostër, ekzemplar, paradigm, standard, i mëparshëm, etj.

- Precedent: studimi i veprave arkitekturale të kaluara për qëllim të inspirimit për projektet e ardhshme (i.e. Pavijon).

III

PRECEDENT | Anatomia e Pavijoneve - Hulumm dhe Analizë

Aspektet përmbajtësore për Hulumm dhe Analizë:

1. HYRJE (Informata dhe fakte, projek, arkitek, vendi, vi i zhvillimit...).

2. Konteks dhe Lokacionit + Fakte (Pozicioni global i vendit / Shtet, dispozita e Pavijonit në lokacionin gjegjës, konteks – p.sh. qytet, rrethine qyte - infrastruktura, qasja...

3. Qëllimi, Temaka dhe Koncep (Për çfarë qëllimi është zhvilluar Pavijoni, çfarë temake reprezanton, si është Konceptuar: Analogjitë, Metaforat, Konfigurimi, Kompozicioni... si prezanm grafik dhe tekstual ... ).

4. Funksioni / Funksionet + Zonimi (Planimetritë, prerjet, dukjet + legjendat, imazhet e jashtme dhe të brendshme + përshkrim i shkurtër; prezanmi kromak i zonave dhe grupacioneve funksionale).

5. Parteri / Dizajni Peizazhor (idenfikimi dhe prezanmi i mostrave, elementeve dhe përmbajtjeve peizazhore në zonën e Pavijonit si relacion me konteksn dhe vet hapësirën / hapësirat e brendshme),

6. Kompozicioni dhe Gjeometria (Idenfikimi dhe prezanmi i logjikës kompozicionale 2D dhe 3D, Gjeometria – Dizajni Operav).

7. Konfigurimi (skemat e konfigurimit, sistemi i komunikimit dhe elementet; shkallet, rampat, galeritë, hollët, korridoret, ashensorët, eskalatorët...).

8. Luksi / Ndriçimi Natyral (elementet dhe sistemet të cilat sjellin ndriçimin natyral në Pavijon, prezanmi skemak i ndriçimit në bazë dhe prerje).

9. Struktura, Konstruksioni dhe Tektonika (Idenfikimi, ekstrakmi dhe prezanmi analik i sistemit struktural, konstrukv dhe tektonika e Pavijonit me aspektet materiale dhe reprezentave të mbështjellësit).

10.Ekspresioni – Simbolika dhe Reagimi Emocional (Prezanmi i elementeve dhe komponentëve që sendërtojnë Ekspresionin e Projekt si dhe Simbolika që dërgon gjerë në një reagim të caktuar Emocional të shikuesit apo vizitorit, në këtë rast edhe tuajin në pozitën e Analist).

11.Epilogu Personal (Një përmbledhje personale me skica dhe përshkrim të shkurtër se cilat janë paret e projekt që u kanë lënë mbresa, por edhe e kundërta, pare, qasje apo zgjidhje të arkitekt që ju ndjeheni krik...)

12.Burimet dhe Referencat* (Burimet nga janë marrë të gjitha informacionet për hulumm dhe prezanm analik të Projekt; linçet nga interne, revistat, librat dhe punimet shkencore).

IV

Lista e Projekteve për Hulumtim dhe Analizë

Lista e Projekteve – PAVIJONEVE - për Hulumm dhe Analizë

1. Barcelona Pavilion, Barcelona, Mies van der Rohe, 1929

2. Floriade Pavilion - The Voice of Urban Nature / Overtreders W, 2022

3. Mpavilion 2021 The Lightcatcher / MAP Studio Magnani Pelzel Archite Associa, 2021

4. Ágora Valencia Pavilion / Miguel Arraiz + Arqueha, 2022

5. Xi Hall / say architects, China, 2021

6. Art Pavilion M / Studio Ossidiana, 2021

7. The Forest Pavilion / IDS, South Korea, 2021

8. Pavilion for the Kingdom of Bahrain Expo 2020 Dubai / Chrisan Kerez

9. The Straw Pavilion / MIA Design Studio, Vietnam, 2021

10. Brazilian Pavilion Expo Dubai 2020 / MMBB Arquitetos + Ben-Avid + JPG.ARQ

11. German Pavilion Expo 2020 Dubai / LAVA

12. The Green Arch Belgian Pavilion Expo 2020 Dubai / Vincent Callebaut Architectures + assar architects

13. Themac Districts Expo Dubai 2020 / Hopkins Architects

14. Laje Parque Pavilion – ArtRio 2021 / Evora Arquitetura

15. Urban Park Micro Renovaon / Atelier cnS + School of Architecture, South China University of Technology, 2021

16. Port Pavilion Roerdam / MoederscheimMoonen Architects, 2021

17. 15-Minutes Community Meta-Box / Tongji University + Fab-Union Technology, 2021

18. Spanish Pavilion at the Universal Expo Dubai 2020 / amann-canovas-maruri

19. Egaligilo Pavilion / Broissin, Mexico, 2019

20. Common Air rea / Cloudfloor, Thailand, 2021

21. Helsinki Biennial Pavilion / Verstas Architects, 2020

22. Pavilion of the Future / NOVOE, Russia, 2019

23. Block West Pavilion / Automated Architecture (AUAR) Labs, UK, 2020 24. Hardman Square Pavilion / Sheppard Robson, UK, 2018

25. Bamboo Bamboo, Canopy and Pavilions / IILab., China, 2020

26. Meditaon Space for Creaon / Jun Murata / JAM, China, 2019

27. Ashui Pavilion / MIA Design Studio, Vietnam, 2020

28. Dragon Mountain Landmark Pavilion / Aurelien Chen, China, 2019

29. Shanghai Garden, the Beijing Horcultural Exhibion 2019 / Arcplus Architectural Decoraon & Landscape Design Research Instute

30. The Dulwich Pavilion / IF_DO, UK, 2017

31. INBAR Garden Pavilion / Studio Cardenas Conscious Design, China, 2019

32. Pool Pavilion / GLUCK+, UK, 2009

33. People's Pavilion / bureau SLA + Overtreders W, 2017

34. Chile Pavilion at Expo Milan 2015 / Undurraga Devés Arquitectos 35. “Future Space” Pavilion Salone del Mobile 2018 / Peter Pichler Architecture 36. The Exchange / Oyler Wu Collaborave, USA, 2017 37. Pavilion of Reflecons / Studio Tom Emerson, Switzerland, 2016 38. Container Stack Pavilion / People's Architecture, China, 2015

V

38. Container Stack Pavilion / People's Architecture, China, 2015 39. ICD-ITKE Research Pavilion 2015-16 / ICD-ITKE University of Stugart 40. The Waterfront Pavilion – Australian Naonal Marime Museum / FJMT Studio, 2015 41. Around Pavilion / Chrisansen Andersen, Denmark, 42. Pavilion for the City Jubilee / J. Mayer H. Architects, Germany, 2015 43. Vietnam Pavilion - Milan Expo 2015 / VTN Architects 44. Slovenia Pavilion – Milan Expo 2015 / SoNo Arhitek 45. Austria Pavilion – Milan Expo 2015 / team.breathe.austria

46. Brazil Pavilion – Milan Expo 2015 / Atelier Marko Brajovic + Studio Arthur Casas 47. China Pavilion - Milan Expo 2015 / Tsinghua University + Studio Link-Arc

48. Spanish Pavilion Expo Zaragoza 2008 / Francisco Mangado 49. Denmark Pavilion, Shanghai Expo 2010 / BIG 50. Public Pavilion of New Zoological Park La Garenne / LOCALARCHITECTURE, Switzerland, 2016

51. Serpenne Pavilion / BIG, London, 2016

52. Swiss Sound Pavilion / Peter Zumthor, Germany, 2000

53. Spanish Pavilion for Expo Shanghai 2010 / Miralles Tagliabue EMBT

54. Japan Pavilion Expo 92ʹ by Tadao Ando - Architect

55. Salt Water Pavilion / kas oosterhuis, Netherlands, 1997

56. Pavilhão Da Água / Water Pavilion, EXPO 98 Lisbon / A. Burmester Arquitectos Associados Lda.

57. Digital Water Pavilion, Expo Zaragoza 2008 / Walter Nicolino, Carlo Ra, Claudio Bonicco and Maeo Lai

58. Bubble / Franken Architekten, Germany, 1999

59. BMW Dynaform Hall / Franken Architekten, Germany, 2001

60. Finnish Pavilion, Dubai Expo 2020 / JKMM Architecs

61. French Pavilion, Dubai Expo 2020 / Atelier du Prado and Celnikier & Grabli

62. Singapore Pavilion, Dubai Expo 2020 / WOHA

63. Finnish Pavilion, Paris Internaonal Exhibion 1937 / Alvar Aalto

64. Brazilian Pavilion, New York World Fare 1939 / Oscar Niemeyer

65. Spanish Pavilion, Paris Internaonal Exhibion 1937 / Jose Luis Sert

66. One Ocean Themac Pavilion, EXPO 2012 / SOMA

67. Serpenne Gallery Pavilion 2007 / Snøhea

68. Serpenne Pavilion 2002 / Balmond Studio and Toyo Io

69. Serpenne Gallery Pavilion 2010 / Jean Nouvel

70. Serpenne Pavilion 2018 / Frida Escobedo

71. Serpenne Gallery Pavilion 2005 / Alvaro Siza and Eduardo Souto de Moura, Arup

72. Serpenne Gallery Pavilion 2011 / Peter Zumthor

73. Serpenne Pavilion 2019 / Junya Ishigami

74. Serpenne Gallery Pavilion, 2012 / Herzog & de Meuron with Ai Weiwei

75. The Cloud Pavilion / Schmidt Hammer Lassen Architects, Shanghai, 2015

76. The Porsche Pavilion / HENN Architects, Germany, 2012

77. UAE Pavilion, Expo 2020 Dubai / Sanago Calatrava

VI

Arkitektët | foto-kolazh

VII
Susan Tang Sydner IILab. L. Mies van der Rohe Oscar Niemeyer People’s Architecture Office Gerardo Broissin Hester van Dijk & Reinder Bakker Verstas Architects Tadao Ando Jun Murata Alexandre Burmester Snøhea Kjel Traedal Thorsen Peter Zumthor Bjarke Ingels Group BIG Frida Escobedo Amman-CánovasMaruri Peter Zumthor

Studentët | foto-kolazh

VIII
AdriatikTërpeza Argjira Qehaja Arta Llapjani Aurela Salihu Bleron Shabani Blinë Krasniqi Donjeta Imeraj Edona Shala Ema Blakqori Erjona Pllana Festë Berisha Genna Ukaj Malsore Lajqi Njomza Thaqi Poema Doli Rinesa Haziraj Urata Preteni Yllka Krasniqi

AdriatikTërpeza

-Interesat : Familja Shënde Shkollimi

Arkitektura -Hobi : Futbolli Skijimi Vizami

Arkitektura : Shfrytëzim I hapësir -ave

1. HYRJE – informatat bazike të Projekt dhe Arkitekt:

SUSAS organizohet prej Susan Tang Sydner në vin 2021, nga byroja e burimeve natyrore dhe pushte lokal I Shanghait. Tema e kryesore e trajtuar në këtë vit është "Rrethi i jetës së komunitet 15 minuta- qyte i njerëzve". Axhenda kryesore është përmirësimi dhe riakvizimi i hapësirës së komunitet përmes ekspozitës pop-up. Ky pavilion është një model vlerësimi të përshtatjes së popullsisë së objekt të shërbimit të infrastrukturës 15 min-CLC dhe përfundon një studim ras duke përdorur Shangain si një qytet pik, për të përmirësuar kuadrin ekzistues të kërkimit 15 min-CLC, dhe për të ofruar opinione referimi për zhvillimin e qëndrueshëm të qyteteve dhe promovimin e qyteteve inteligjente.[1]

Biografia : Susan Tang punon si arkitekte në Snyder Architects, e cila është një kompani e Arkitekturës, Inxhinierisë dhe Dizajnit me rreth 17 punonjës dhe themeluar në vin 1980. Susan është e përfshirë në mënyrë akve në projekmin e koncept, zhvillimin e projekmit dhe fazat e dokumenteve të ndërmit të projekteve të qëndrueshme akademike të firmës. Ajo sjell ndjeshmëri dhe njohuri në dizajn dhe i ndihmon klientët të vizualizojnë ndërtesat e tyre me teknologjinë më të fundit të medias.[2]

-Punon në firmën e arkitekturës Snyder Architects

- Karikaturiste - Pëlqen të skicojë udhëmet

15-Minutes Community Meta-Box /Tongji University + Fab-UnionTechnology, 2021 SusanTangSydner
1

2. Konteks dhe Lokacioni: Makro

Konteks global Kina Konteks shtetëror

Shanghai

Fakte:

Ky pavilion ka vegjetacion të mirë prapa saj, dhe gjithashtu me fontanën para saj, I jep pavilionit një pamje të bukur. [5]

Lokacioni I pavilionit

Pavilioni SUSAS

Fakte:

-Kina ndodhet në Azinë Juglind -ore përgjatë vijës bregdetare të Oqeanit Paqësor. Ka një sipërfaqe prej 9.6 milion km2. [3]

-Qyte Shanghai ka një sipërfaqe totale prej 6340 km2, me 16 rrethe komunale. [4]

Mikro

2

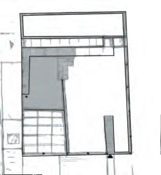
3. Qëllimi, Temaka dhe Koncep : 4. Funksioni / Funksionet + Zonimi:

Tema e ekspozitës përbëhet nga tre sektorë: "Rrethi I jetës së komunitet 15 minuta Qyte I Popullit", "Komunite Meta-hapësira" dhe "Plani i qelizave NënMarrëdhëniet".[6]

Profesor Philip F. Yuan nga Universite Tongji, së bashku me ekipin e ndërmit dixhital nga Fab-Union Technologies dhe ekipin e ekspozitës dixhitale nga Shanghai Fengyuzhu Culture&Technology, ka krijuar gjashtë meta-ku të komunitet brenda vetëm 20 ditëve. Këto ku quhen "Communicate","Connect", "Cycling", "Comfort", "Culture" dhe "Cloud", janë module hapësinore fleksibël për përdorime të ndryshme publike.[7]

Legjenda : 1. Hapësirë mulfunksionale 2. Trotuar 3. Peisazh ujor

Legjenda : 1. Hapësira për ekspozita për vepra ar që inkurajojnë pjesëmarrjen e publikut 2. Trotuar

3

Funksioni: Zonimi :

“Community”- Komunikoni

Dukje

Diagrami kromak

Diagrami kromak me flluska

Diagrami kromak

Diagrami kromak me flluska

Prerje Prerje Comfort & Culture 4

Format gjeometrikeme kuba/drejtëkëndësha

Forma gjeometrike prej lart si fasadë e pestë

3.Koncepti: 5. Parteri / Dizajni Peizazhor : 6. Kompozicioni: Gjeometria:
1C 2C
5

3.Koncepti: 7. Konfigurimi:

Kua “Communicate”.”Komunikoni”

Konfigurimi Linear/Kompozit

Kua “Connect”

8. Luksi / Ndriçimi Natyral:

Kua “Comfort”

6

3.Koncepti: 9. Struktura, Konstruksioni dhe Tektonika :

Kua “Communicate”,”Komunikoni”

Tektonika

Druri I çasë Struktura e trajeve te drurit Muri Shtyllat metalike

Tektonika Stereotomika

Dyshemeja

7

3.Koncepti: 10. Ekspresioni - Simbolika dhe Reagimi Emocional:

Ky pavilion I cili për funksion më së shum ka hapësirat mulfunksionale përmban një dritare të etur e printuar me 3D fut dritën e xhamit në brendësi për të udhëhequr vizitorët nëpër hapësirë, dhe për ta pasur një komunikim më të lehtë.

11. Epilogu personal:

12. Burimet dhe Referencat:

Ky pavilion më ka lënë mbresa që komunikimi brenda

6 kuav është shumë I shpëjtë brenda 15 minutash mund të vizitoni shumë hapësira publike dhe mulfunksionale të cilat përdoren për të punuar, mësuar, argëtuar dhe komunikuar. Por një gjë e cila më ka tërhjekur më shumë është fasada e lakuar përballë sheshit e cila është e deformuar për të qenë stenda, duke hapur një dialog hapësinor midis konteksteve përreth.

1.hps://www.archdaily.com/969729/15-minutes -community-meta-box-tongji-university-plus-fabunion-technology

2. hps://journals.plos.org/plosone/arcle?id=10.1 371/journal.pone.0256904

3. hps://en.wikipedia.org/wiki/China

4. hps://en.wikipedia.org/wiki/Shanghai

5. hp://snyderarchitects.ca/staff/susan-tang/

8

Pasione: -Leximi -Vizami

Hobi: -Akvite fizik

-Bale

Interesa: -Arkitektura

Dëshira: -Të vizitoj botën

1. HYRJE – informatat bazike të Projekt dhe Arkitekt:

Studioja kineze e arkitekturës LLLab përdori bambu të endur për të krijuar një tendë dhe një grup pavijonesh të për të strehuar vizitorët në një shfaqje me dritë të vendosur midis maleve dramake gëlqerore të Guilin.Tashmë është në vin e15-të të funksionimit. Aktualisht, grupe të mëdha bambush mbulojnë pjesën më të madhe të zonës, duke krijuar struktura tubash dhe gjethesh të përziera. Një seri fenerësh të endur prej bambuje rreshtojnë një shteg që i drejton vizitorët nga hyrja më tej në vend. Fenerët rriten gradualisht në përmasa derisa të bëhen pavijone aq të mëdha sa të mund të futesh brenda tyre. [1]

LLab. është një studio dizajni me qendër në Shangai, Porto, Toronto dhe Shtutgart që operon në fushat e arkitekturës, dizajnit, art, urbanizmit, kërkimit dhe zhvillimit. Studio drejtohet nga katër partnerë Hanxiao Liu, Luís Ricardo, David Correa dhe Taichi Kuma. Puna e tyre fokusohet në përdorimin e dizajnit si një mjet për të përmirësuar jetën sociale dhe kulturore përmes shkallëve të ndryshme, nga projektet urbane te mikro-arkitektura apo instalimet. [2]

llLab.

Projektet kryesore përfshijnë fshan San Sa Hapësirën Nostalgjike San She [4]

LLab. projektet janë publikuar gjerësisht në shtypin ndërkombëtar duke përfshirë Architectural Record[4]

Argjira Qehaja Bamboo Bamboo, Canopy and Pavilions / IILab., China, 2020
9

2. Konteks dhe Lokacioni: Makro

Fakte: Fakte: Yangshuo, Guilin, China

Sanjie Liu, Yangshuo, Guilin ndodhet në një nga peizazhet më dramake në Kinë. Gjelbërimi I pafund rrethon vendin duke mbushur hapësirën midis kullave të mëdha karske të shkëmbinjve. [3]

E shtrirë 140 metra përgjatë skajit të shullit, tenda është projektuar që t'i ngjajë një peizazhi të përmbysur që zbret dhe ngrihet lart përgjatë gjatësisë së j. [1]

Mikro

10

3. Qëllimi, Temaka dhe Koncep : 4. Funksioni / Funksionet + Zonimi:

Dizajni i LLLab synon të akvizojë zonën e përdorur më parë për shfaqjen e drejtuar nga regjisori Zhang Yimou midis hyrjes dhe skenës kryesore. [1]

Përveç sigurimit të strehës nga shiu, tenda vepron si një mbulesë dielli, me sipërfaqen e saj të valëzuar që krijon efekte të ndryshme hije pasi drita e zbehtë depërton në strukturë nga lart.[1]

Përdoret si një pikë experience kulturore dhe krijuese e hapësirës pushimit për të përjetuar përshtypjen e kulturës Liu Sanjie përpara se të hyni në vend. [3]

LEGJENDA:

1.Hyrja, Pagoda

2.Skena Kryesore

3.Hapësirë pushimi (guacka prej bambuje)

4.Shtegu per ecje

11

Funksioni:

12

3.Koncepti: 5. Parteri / Dizajni Peizazhor :

Pemët e bambusë Guackat prej bambuje Gurë 13

Ndarëset e zonave prej bambusë

6. Kompozicioni: Gjeometria:

3.Koncepti: 7. Konfigurimi:

8. Luksi / Ndriçimi Natyral:

Mbulesa prej bambusë krijon një hapësirë permeabile, duke lënë rrezet e diellit të depërtojnë edhe nga lartë.

14

3.Koncepti: 9. Struktura, Konstruksioni dhe Tektonika :

Mënyra e konstruksionit të bambusë me lidhje dhe ndërhyrje tek njëra-tjetra.

15

- Puna e dorës - Vizitori mund të marrë një ndjenjë të bukurisë së rastësishme që mund të krijohet vetëm kur diçka është ndërtuar vërtet me dorë.

Origjina e arkitekturës - Natyra- Synimi që rezulton do të thotë të magjepsësh, ndërkohë që vazhdon të mbizotërojë gjendja natyrore e lokacionit.

11. Epilogu personal: 12. Burimet dhe Referencat: 1.hps://www.dezeen.com/2021/06/09/bamb oo-canopy-lllab-china-architecture-pavilion/ 2.hps://www.goldtrezzini.ru/en/nominees/ba mboo-bamboo-canopy/ 3.hps://www.dezeen.com/awards/2021/winn ers/bamboo-bamboo-canopy-and-pavilions/ 4.hps://www.chinese-architects.com/lllabsha nghai (24.10.2022)

3.Koncepti: 10. Ekspresioni - Simbolika dhe Reagimi Emocional:
16

Fakte: - Pasione Dituria - Hobi Leximi, Vizami, Gami. - Interesa Njohurit e reja - Dëshira Profesionalizmi.

1. HYRJE – informatat bazike të Projekt dhe Arkitekt:

Pavijoni i Barcelonës u projektua nga Ludwig Mies van der Rohe dhe Lilly Reich si Pavijoni Gjerman për Ekspozitën Ndërkombëtare të Barcelonës, të mbajtur në Montjuïc. Pavijoni i Barcelonës, një vepër emblemae e Lëvizjes Moderne, është studiuar dhe interpretuar në mënyrë shteruese, si dhe ka frymëzuar veprën e disa brezave të arkitektëve.

Ai u projektua nga Ludwig Mies van der Rohe dhe Lilly Reich si pavijon kombëtar gjerman për Ekspozitën Ndërkombëtare të Barcelonës 1929. I ndërtuar nga qelqi, çeliku dhe lloje të ndryshme mermeri, Pavijoni u konceptua për të akomoduar pritjen zyrtare të kryesuar nga mbretërit e Spanjës Alfonso XIII dhe Victoria Eugenia së bashku me autoritetet gjermane. Ludwig Mies van der Rohe lindi më 27 mars 1886 në Aachen, i biri i Jakob Mies (një tregtar mermeri) dhe Amalia Rohe. Në vin 1913, ai u tansfferua me gruan e j Ada Bruhn në erder (në periferi të Berlinit).Gjatë pjesëmarrjes së j në e spozitën e banesave Weissenhof në Shtutgart, midis 1925 dhe 1927, Mies krijoi një marrëdhënie me dizajneren e brendshme Lilly Reich që do të zgjaste deri në vin 1939. ta punuan së bashku në Glassraum (dhomë qelqi) për ekspozitën e Shtutgart të vit 1927, nëavioni i Barcelonës, në shtëpinë Tugendhat në Brno midis 1928 dhe 1930 dhe në shtëpinë që ata prezantuan në ekspozitën e Berlinit të vit 1931. (1)

Ludwig Mies van der Rohe

I lindur:27 Mars 1886,Aachen,Gjer mani.

Vdiq:17 Gusht 1969, Chicago,U.S.) Ark. Modern

Barcelona Pavilion / Mies van der Rohe,Barcelon, 1929
17

2. Konteks dhe Lo acioni: Makro

Fakte:

Në vin 1980 Oriol Bohigas, si kreu i Departament ë Planifikimit Urban në Këshillin Bashkiak të Barcelonës, vuri në lëvizje projekn, due caktuar arkitektët Ignasi de SolàMorales, Crisan Cirici dhe Fernando Ramos për të hulumtuar, projektuar dhe mbikëqyrur rindërmin e Pavijonit. Puna filloi në 1983 dhe ndërtesa e re u hap në vendin e saj origjinal në 1986. (3)

Fakte:

Montjuïc i Barcelonës është një kodër e gjerë e cekët me një majë relavis t të sheshtë me pamje nga por, në jugperëndim të qendrës së qytet. Ana lindore e kodrës është pothuajse një shkëmb I thellë. Maja e kodrës (një lartësi prej 184.8 m) ishte vendi i disa forfikim e, më e fundit prej të cilave (Kështjella e Montjuïc) ka mbetur edhe sot. (2)

Mikro

Montjuïc, Barcelona, Spain
18

3. Qëllimi, Tema a dhe KKoncep : 4. Funksioni / Funksionet + Zonimi:

Pavijoni duhej të përfaqësonte Gjermaninë e re të Vajmarit: demokrae, përparimtare kulturore, prosperuese dhe tërësisht pacifiste; një autoportret përmes arkitekturës. Komisioneri, Georg von Schnitzler tha se duhet t'i japë "zë frymës së një epoke të re". Ky koncept u realizua me realizimin e “Planit Falas” dhe “Dhomës Lundruese”. (4)

Situacioni

Koncep gj të projekkmitë kësaj ndërtese ishte "Më pak është më shumë", që do të thotë se komponentët e përdorur në ndërm ishin ë kufizuara, por ato janë të dobishme për qëllimin e ndërtesës. Funksioni kryesor i hapësirave ishte akomodimi i Mbret dhe Mbretëreshës së Spanjës, pasi ata nënshkruan "Librin e Artë" në hapjen zyrtare të ekspozitës. Dizajni i pavijonit bazohet në një sistem rrje ormulaik të zhvilluar nga vetë Mies.

Sistemi shërben jo vetëm si "shtruar travern", por edhe si një kornizë bazë në mënyrë që sistemet e mureve të mund të funksionojnë brenda. Meqenëse pavijoni ka një orienm ë ulët horizontal që theksohet nga çaa e ulët e shes të që duket se noton si në pjesën e jashtme ashtu edhe në atë të brendshme.

Ai e mori këtë ide nga i moshuari i j Fank Lloyd Wright, i cili u bë rreth njëzet vjet më herët se pavijoni, kështu që ai mendoi të përdorte hapësira drejtvizore në mënyrë që ato të formonin një plan të hapur.

Ky plan i j do ë thotë që pjesa e brendshme dhe e jashtme dukeshin të ngjashme për ta bërë punën të dukej minimaliste. (5)

Plani

19

Fasadat,Dukjet

Funksioni: Prerjet 20

3.Koncepti: 5. Parteri / Dizajni Peizazhor :

Shgjet Gjelberimi

Shkallet për hyrje në parter Pishina

6. Kompozicioni: Gjeometria:

21

3.Koncepti: 7. Konfigurimi:

8. Luksi / Ndriçimi Natyral:

22

3.Koncepti: 9. Struktura, Konstruksioni dhe Tektonika :

I gjithë kompleksi qëndron në një podium 1.3 metra të lartë, i veshur me travern omak, i cili “ngre” ndërtesën mbi tokë dhe krijon një tarracë të ngritur, një element që e shohim në projekte të tjera të arkitekt gjerman, si Neue Naonal alerie. në Berlin. Dy ndërtesat janë të mbuluara nga dy ça ë hollë të sheshtë; Struktura e çaasë kesore të pavijonit përbëhet nga trarët I të mbështetur nga tetë kolona çeliku në formë kryqi, të mbyllura në një xhaketë çeliku të veshur me krom dhe nga disa kolona çeliku drejtkëndëshe të fshehura brenda mureve. Ky dizajn, së bashku me ngjyrën e bardhë të lyerjes së pllakës së çasë, e bën aanëë duket sikur "lundron" pa asnjë mbështetje. (6)

Një mur i veshur me ar-oniks është vendosur gjatësore në mes të pavijonit kryesor. Në të vërtetë, Mies kundërpeshon thjeshtësinë e dukshme të ndërtesës me materiale luksoze që theksojnë gjeometrinë dhe esteën e saj, duke ndjekur kështu shembullin e Adolf Loos. Së bashku me oniksin dhe travernin revi, arkitekk pdori dy lloje mermeri jeshil, dikur nxirrej në Alpet e Luginës Aosta dhe tjetri në Tros, Greqi. Gjithashtu, xhami i panelit me xham ka ngjyra dhe finitura të ndryshme, nga e bardha e pastër në të tymosur, nga jeshilja e shisheve deri tek xhami i zi i pasqyrës së fundit të pishinës së brendshme. (6)

23

3.Koncepti: 10. Ekspresioni - Simbolika dhe Reagimi Emocional:

Simbolika: -Relacioni me njeriun: shtyllat dhe muret -Relacioni me tokën: rrafshi dhe vëllimi -Relacioni me qiellin: qelqi.

Reagimi emocional: -vazhdimsia -qetësia\paqja -ngrohtësia/afirmite

11. Epilogu personal: 12. Burimet dhe Referencat:

(1)h s://miesbcn.com/the-pavilion/ (2)(3)h s://en.wikipedia.org/wiki/Montju%C3%AFc (4)h s://architectuul.com/architecture/barcelonapavilion#:~:text=Concept,spirit%20of%20a%20new%20 era%22. (5)h s://barcelonapavilion.weebly.com/context.html (6)h s://www.inexhibit.com/mymuseum/the-germanpavilion-in-barcelona-by-mies-van-der-rohe/

Nje arkitekt dhe nje objekt me shume vlera, ka qene nje frymezim per pavilionin qe do te projektoj dhe me ka bere te mesoj shume gjera te kem nje kendveshtrim me ndryshe per objekte te cilat ne shikim te pare duken te thjeshta por ne te vertet kane shume vlera dhe kupme ashte sic thot dhe Mies: Me pak eshte eshte shume.

24

- Pasione: Shkrimi

- Hobi: No, leximi

- Interesa: Letërsia, ar

- Dëshira: Të botohen librat e mia

1. HYRJE – informatat bazike të Projekt dhe Arkitekt:

Arkitektura moderne braziliane pa debumin e saj ndërkombëtar në mediat arkitekturore me pavijonin e vit 1939 në anairin Botëror të New York-ut. Përmes kësaj u bë prezanmi i Brazilit ashtu siç ishte me të gjitha paet e saj, të dyja gjeografike dhe historike, si dhe kulturore dhe ekonomike. Poashtu u treguan arritjet e saj dhe fushat tërheqëse për invesmin e kapitalit nga e gjithë bota.[1]

Biografia: Oscar Niemeyer lindi më 15 dhjetor 1907 dhe vdiç më 5 dhjetor 2012. Ishte eksponent i hershëm i arkitekturës moderne në Amerikën Lane, veçanërisht i shquar për punën e j në Basília, kryeqyte i Brazilit. Niemeyer studioi arkitekturë në Shkollën Kombëtare të Arteve të Bukura, Rio de Janeiro. Pak para se të diplomohej në vin 1934, ai u angazhua në zyrën e Lúcio Costa, një udhëheqës i lëvizjes Moderniste në arkitekturën braziliane. Ai punoi me Costa-n nga vi 1937 deri në 1943 në pojekkmin e ndëesës së Ministrisë së Arsimit dhe Shëndetësisë, e konsideruar nga shumë si kryevepra e parë e arkitekturës moderne e Brazilit. Dizajni zbulon ndikimin e arkitekt fancez me origjinë zvicerane Le Corbusier. Niemeyer gjithashtu punoi me Costa-n në planet për pavijonin brazilian në Panairin Botëror të New York-ut 1939–40.[2]

Oscar Niemeyer Arkitek bazilian e përmbledh në mënyrë të përsosur marrëdhënien e j me arkitekturën moderne duke përmbysur moton e lëvizjes 'forma ndjek funksionin'.[3]

Aurela Salihu The Brazilian Pavilion / Oscar Niemeyer, New York’ s World Fair 1939
25

2. Konteks dhe Lo acioni:

Fakte:

Në vin 1935, në kulmin e Depresionit të Madh, një grup biznesmenësh të qytet ë Nju Jorkut vendosën të krijonin një ekspozitë ndërkombëtare për të ndihmuar në nxjerrjen e qytet dhe vendit nga problemet e j ekonomike.[4]

Fakte:

Projek duhej ë nxirrte në pah uniten, origjinaliten dhe dinamizmin i kulturës braziliane dhe pasurinë e saj agrokulturore dhe minerale, që ishin baza për rolin e vendit si eksportues dhe turizëm.[5]

Pamje të New York World’s Fair ku ishte i vendosur ky pavijon Pamje të Pavijonit Brazilian
26

3. Qëllimi, Temaka dhe Koncep : 4. Funksioni / Funksionet + Zonimi:

Karakterisë e Niemeyer ishte përdorimi I L-shape, për format e ndërtesave të j.

Formën L, ai e krahasonte me format femërore.

Qëllimi dhe temaka: Ky pavijon dhe përmbajtja e j ishin një ombinim i orkestruar strategjik i atyre që supozohej se ishin forma universale dhe imazhe kombëtare, në një përpjekje për të përfaqësuar Brazilin si tropikal dhe modern, duke dëshmuar se këto terma nuk ishin reciprokisht ekskluzive.[6] Legjenda:

2.Bar 3.Kuzhina
4.Coffee
5.Ekspozita 6.Recepsioni 7.
8.Depo 9.Pellgu
10.
11.
12.
13.
14.
15.
1.Resaturant
doracake
bar
Hapësira për zogjë
me Zambak Uji
Kopsh I orkide e
Akuariumi
Zyre
Auditorium
Diorama
Terrasa Përdhesa Ka I arë Ka I M zaninit
27

Funksioni:

Zona e shërbimeve Zona kolek e Zona e komunikimit ver al Zona e ndërmjetme Zona peizazhore

Ka I arë

Prerjet dhe perspekva e brendshme Galeria Galeria e mineraleve Vesbuli Shëorja- Esplanade
28
Përdhesa

3.Koncepti: 5. Parteri / Dizajni Peizazhor :

6. Kompozicioni: Gjeometria:

29

3.Koncepti: 7. Konfigurimi:

Konfigurimi linear dhe qarkullimi brenda planimetrive

8. Luksi / Ndriçimi Natyral:

Prezanmi semaak I ndriçimit tyral në bazë

Prezanmi semaak I ndriçimit tyral në prerje

30

3.Koncepti: 9. Struktura, Konstruksioni dhe Tektonika :

Ka i parë Përdhesa

Ka i mezaninit

Panele qelqi Shtyllat-trajet çelik Pllaka Beton I Armuar Themele shiritore

Tektonika Stereotonika

31

3.Koncepti: 10. Ekspresioni - Simbolika dhe Reagimi Emocional:

Ekspresioni:

Simbolika: Relacioni me njeriun (shtyllat) Relacioni me token (rrafshi dhe vëllimi) Relacioni me qiellin (qelqi)

Reagimi emocional: - modesa / thjeshtësia - transparenca / afërsia - solidite / fuqia

11. Epilogu personal: 12. Burimet dhe Referencat:

Arkitektura e Oscar Niemeyer është shembulli i përkryer I shkrirjes të së vjetrës me modernen, njëkohësisht duke ndërlidhur karakteriskat braziliane në të gjitha veprat e j. Këto ve të jë bënë që ai dhe krijimtmtaria e j t’i bëjnë ballë kohës dhe krikave të pashmangshme. Me përdorimin e formave të veçanta, bukuria mbizotëroi mbi kufizimet e logjikës konstruk

1.hps://arquitecturaviva.com/works/pabellon-debrasil-nueva-york-

2. hps://en.wikipedia.org/wiki/Oscar_Niemeyer

3. hps://modernism101.com/products-page/ architecture/niemeyer-oscar

4.

hps://en.wikipedia.org/wiki/1939_New_York_ World%27s_Fair

5.hp://modern-b azil-architecture.blogspot.com/ 2010/02/brazilian-pavilion-at-new-york-worlds.html

6. hps://www.academia.edu/8657771/OSCAR_ NIEMEYER_OF_GLASS_AND_CONCRETE_2011

7. Carlos Eduardo Comas “New York World’s Fair of 1939 and the Brazilian Pavilion”

E hapur / uese E rëndë / pesha- toka Vija (shtyllat)- rrafshi (pllaka)vëllimi (masa) 32

Pasion: -Ar -Leximi -Matemaka

Hobi: -Muzika -Spor -Video-lojërat

1. HYRJE – informatat bazike të Projekt dhe Arkitekt:

Common Air rea

Common Air rea / Cloudfloor është një pavijon i ndërtuar në vin 2021 me një sipërfaqe prej 150 m2. Ky pavijon është i ndertuar në Tajlandë në qyten e Bangkokit.Aryseja kryesore pse ky pavijon u ndërtua në këtë vend ishte problemi me ajrin e ndotur dhe për këtë arsye në cdo cep të këj objek mund të vërejmë rëndësinë që i kanë kushtuar ekologjisë, ku mund të vërejmë gjelbrim çdokund, përdorimin e paneleve solare, filterave të ndryshëm për pastrim të ajrit etj. [1]

Studio Cloud-floor Cloudfloor është studio që merret me arkitketurën, arn dhe urbanizmin. Ajo gjendet në Bangkokun e Tajlandës dhe është e përbërë nga 2 arkitektë kryesore:

Donlaporn Chanachai dhe Natapong Phaaanagosai. Ata bëjnë implemenmin e ideve në një vend specifik me kushte unike klimake, topografike dhe vegjetacioni. Qëllimi i tyre është të krijojnë diçka që është zgjidhje globale dhe jo e një vendi. Kjo studio ishte krijuar në vin 2014 dhe që nga ky vit numërojnë qindra projekte (shumica prej tyre ekologjike), ku prej më unikët janë: -Empty, Party,BWE K'lar Playscape,Common Air rea,Tales of Samyan... [2]

E krijuar më 2014 Gjendet në Tajlandë, në kryeqytet, Bangkok. Cloud-floor është një Studio e përbërë nga 2 arkitektë kryesorë: Donlaporn Chanachai dhe Nattapong Phattanagosai. [3]

Bleron Shabani Common Air Rea / Studio Cloud-floor, Bangkok, 2014
33

2. Konteks dhe Lokacioni:

Fakte:

-Bangkok është qyte me emrin më të gjatë në botë, emri Bangkok është vetëm një shkurtesë. [4]

-Bangkok është “shtëpia” e Red Bull. Për herë të parë është prodhuar aty. [5]

Fakte:

-7 milionë vdekje për do vit nga ç sëmundjet e shkaktuara nga ajri i ndotur. [6] -Bangkok njihet edhe si qyte më i ngrohtë në botë. [7]

ndryshe

Lokacioni i Pavijonit
34
[9]

3.Koncepti: 5. Parteri / Dizajni Peizazhor :

Struktural Stabil Stak

6. Kompozicioni: Gjeometria:

I njej kompozicion e përcjellë gjithë objekn duke marrë parasysh nivelin

[4]
35

3. Qëllimi, Tema a dhe Koncep : 4. Funksioni / Funksionet + Zonimi:

Nevoja për një ndërm si Common Air Rea u bë urgjente, kur në Bangkok PM arri në një shifër më të vogël sesa 2.5 mikrone që e bënë një ndër qytetet me ajrin më të ndotur në botë. Për të sfiduar këtë Cloud-floor ndërtoi Common Air rea që kishte për qëllim që vizitorët të kenë një hapësirë, ku mund te thithnin ajër më të pastërt. Ky nderm fillimisht u përdor si një pikë-takim dhe një hapësirë pushimi prej të pranishmëve që ishin në evenn “Bangkok Design Week në vin 2021. Më vonë ajo u perdor edhe si ndërm eksperimental për një mekanizëm hibrid, duke përdorur energjinë solare në një lidhje me energjinë elektrike. [9]

Koncep i shpjeguar përmes disa hapave, ku forma fillestare është një drejtëkëndësh i cili vazhdohet përmes logjikës së diagonaleve. Logjikë e cila nxjerrë trekëndësha jashtë, të cilet në bazë të nivelit secili prej tyre largohet në mënyrë të përsëritur.

Baza e përdhesës

Baza e kulmit [10]

Dukja lindore dhe jugore

Ngrisim objektin

Pamje aksonometrike e pavijonit nga jashtë

[8]
Legjenda: 1. Hyrja 2. Recepsion 3. Pushimore 1 2 3 3 3
36

Funksioni:

Zona e përbashkët

Zona lidhëse

Zona shërbyese

2 Pamje brenda pavijonit

Prerje tërthore

Prerje gjatësore

Funksioni: Diagrami si funksionon pavijoni

Zona shërbyese

Zona e përbashkët

Zona lidhëse

[11]
37

3.Koncepti: 7. Konfigurimi:

Funksionimi i planimetrisë është më shumë qendror, pasiqë mendohet që nga qendra të vazhdohet në secilën kthinë të pavijonit. Pavijoni ynë “Common Air rea” i njohur edhe si Cloud-floor ka vetëm përdhesën. Pra është pavijon që nuk i nevojiten shkallët,ashensorët apo eskalatorët. Në foto është e paraqitur vetëm lidhja e kthinave Konfigurim linear

8. Luksi / Ndriçimi Natyral: Ndriçimi në prerje

2 prerje skemake, ku ngjyra e verdhë tregon se ku depërton ndriçimi natyral

38

3.Koncepti: 9. Struktura, Konstruksioni dhe Tektonika :

Ekstrakmi i sistemit struktural nga planimetria Sistemi struktural

[12]

Metal me përqindje të vogël të transparencës

Konstruksion metalik [13] Thuajse i gjithë konstruksioni është i ndërtuar prej 2 elementeve metalike të thjeshta: profileve me forma të ndryshme dhe kapriatave metalike. -Kapriata metalike -Profilet metalike

-Detal i lidhjes së dyshemesë me themelin te konstruksioni metalik

Themel pllakë

Panela solare Dyshemeja me material të drurit të recikluar

[14]
39

3.Koncepti: 10. Ekspresioni - Simbolika dhe Reagimi Emocional:

-E mbyllur / private -Lidhja me natyrën -Trekëndëshi shpreh procese të përsëritshme / reciklueshme (lindja,rritja,vdekja / e kaluara, e tashmja, e ardhmja).

11. Epilogu personal:

-E bardha simbolizon pafajësi, pastëtri, paqe.

-Gjelbrimi dhe panelet solare simbolizojnë vend ekologjikë të pastërt, të freskët.

Reagimi emocional: -Pa derë-> uese dhe e hapur në çdo moment. -E hapur 24/7-> Thjeshtësia brenda objekt (materiale/objekte jo-luksoze)

12. Burimet dhe Referencat:

Mbresa: Përdorimi i teknologjisë që edhe pse nuk ka pengesë (derë) në hyrje bllokon hyrjen e ajrit nga jashtë dhe daljen jashtë e ajrit të filtruar të objekkt. - Relacioni i madhësisë me objektet tjera përreth (shfrytëzimi i hapësirës sikur të ishte një stacion i autobusëve).

Krikë: përdorimi i materialit të mbështjellësit mund të ishte më i qëlluar. -Hapësirë e vogël për vizitorë dhe shfrytëzimi i kthinave mund të ishte edhe për funksione tjera.

1. hps://www.archdaily.com/966163/common-airrea-cloud?oor (accessed: 24/10/2022)

2. hps://www.cloud-?oor.com/ (accessed: 24/10/2022)

.

3. hps://images.google.com/ (accessed: 24/10/2022).

4. hps://www.holidify.com/pages/facts-aboutbangkok-1447.html (accessed: 24/10/2022). 5,6,7, po aty.

8. hps://www.archdaily.com/966163/common-airrea-cloud?oor ( accessed: 24/10/2022)

. 40

9. hps://images.google.com/ (accessed: 24/10/2022).

10. Po aty.

11. hps://adaymagazine.com/common-air-rea/ (accessed: 8/11/2022).

12. hps://www.archdaily.com/966163/common-air.

13. hps://images.google.com/ (accessed: 8/11/2022).

14. Po aty.

Blinë Krasniqi

-Pasione: Ar -Hobi: Fotografia -Interesa: Arkitektura -Dëshira: Karriera e suksesshme

Container Stack Pavilion / People’s Architecture, China, 2015

1. HYRJE – informatat bazike të Projekt dhe Arkitekt:

Arkitek: People's Architecture Office

Vendi: TAIYUAN SHI,CHINA, Dongshan, Taiyuan, Shanxi, China

Vi i zhvillimit: 2015

People's Architecture Office drejtohet nga arkitektët He Zhe, James Shen dhe Zang Feng.

Ata kanë përdorur 12 kontejnerë transpor për të ndërtuar një pavijon të përkohshëm, të kuq dhe të verdhë në një qytet me rritje të shpejtë në provincën Shanxi të Kinës. Studioja e arkitekturës me bazë në Pekin grumbulloi kontejnerë në dy rreshta me kënde të kundërta për të krijuar një ndërtesë që krenohet me skajet zigzage, tarracat e projektuara të çasë dhe mbikalimet e konsolit. Një ku konsol 7,5 metra është pika e hyrjes në tarracë të çasë së ndërtesës. Pavijoni është konceptuar si një strukturë e përkohshme që mund të çmontohet lehtësisht dhe të zhvendoset lehtësisht në vende të tjera.(1)

People’s Architecture Office

PAO është prakka e parë e arkitekturës në Azi e çerfikuar si B-Corporaon dhe shërben si model për sipërmarrjen sociale.(2)

41

Fakte:

PAO projektoi ndërtesën për Taiyuan, një qytet që u lidh së fundmi me Pekinin me hekurudhë me shpejtësi të lartë dhe që do të marrë një metro të re në vin 2020.(4)

Fakte: -Taiyuan është qytet lashtë i me më shumë se 2500 vjet histori urbane. Vendndodhja e j strategjike dhe historia e pasur e bëjnë Taiyuan një nga qendrat ekonomike, polike, ushtarake dhe kulturore të Kinës Veriore.(3)

(6)

Taiyuan shtrihet në lumin Fen në veri të pellgut të saj të sipërm pjellor. Qyte ndodhet në qendër të provincës me një hapësirë lindje-perëndim prej 144 km (89 mi) dhe një hapësirë veri-jug prej 107 km (66 mi).Ai komandon rrugën veri-jug përmes provincës, si dhe linja të rëndësishme natyrore të transport përmes maleve Taihang në Hebei në lindje dhe në Shaanxi veriore në perëndim. (3)

(5)

2. Konteks dhe Lokacioni: Makro Mikro

42

3. Qëllimi, Temaka dhe Koncep : 4. Funksioni / Funksionet + Zonimi:

Forma e saj e pazakontë u krijua për të ofruar një shumëllojshmëri hapësirash të ndryshme për akvitetet e kompanisë. Kontenjeret e transport të grumbulluar dhe të zhvendosura në plan,të shtresuara në lartësi maksimizojnë pamjet e qasë dhe zonat publike me hije në tokë në Pavijonin Stack Container. (4)

Përdhesa Ka 1 Baza e kulmit

1. Hyrje 2. Pishinë 3. Recepsion 4. Modeli 5. Konsulm 6. Depo 7. Plaormë

8. Zyrë

1. Plaormë 2. Bar 3. Këndi i leximit 4. Konsulm 5. Atrium 6. Zyrë

1. Dritare në kulm 2. Kuvertë në kulm 3. Plaormë e jashtme

(7) 43

Funksioni:

Prerja 1-1

Prerja 2-2

Fasada juglindore

Fasada veriperëndimore

Zona e hyrjes

Zona kolekve

Zona shërbyese

Komunikimi

Zona e jashtme

Zona private

Fasada jugperëndimore

Fasada verilindore

Pamja aksonometrike

(7) (7) 44

3.Koncepti: 5. Parteri / Dizajni Peizazhor :

6. Kompozicioni: Gjeometria:

45

3.Koncepti: 7. Konfigurimi:

Përdhesa Ka 1

8. Luksi / Ndriçimi Natyral:

Përdhesa Baza e kulmit Prerja 1-1

Prerja 2-2

Ka 1

(7) (7) 46
(7)

3.Koncepti: 9. Struktura, Konstruksioni dhe Tektonika :

Kontenjeri

Përdhesa Ka 1

Pavioni Stack Container është një strukturë e përkohshme që mund të çmontohet dhe të zhvendoset në vende të tjera.(7) Nuk ka themele te thella, per kete arsye nuk ka as nivel stereotomik e as tektonik.

Kontejnerët e transport u krijuan fillimisht për t'i mbijetuar shtrirjeve të gjata në det, prandaj, ndërsa kontejnerët bëhen struktura të ripërdorura, ato përfitojnë në mënyrë të ngjashme nga një forcë dhe qëndrueshmëri e qenësishme. Me ndihmën e modifikimeve, kontejnerët mund t'i rezistojnë erërave të ashpra dhe klimave intensive duke ruajtur kushte të sigurta.(8)

Struktura e një kontenjeri të transport

(9) 47

3.Koncepti: 10. Ekspresioni - Simbolika dhe Reagimi Emocional:

Mikpritës. Përveq që përdoret nga stafi, Pavijoni është i hapur që të përdoret nga çdo kush si rrethit për hije po ashtu edhe brenda.

11. Epilogu personal: 12. Burimet dhe Referencat:

Këta arkitektë nuk janë arkitektët e parë që eksperimentojnë me kontejnerët e transport. Por jan disa projekte ku kontejnerët vendosen me sukses në drejme të ndryshme – pasi këto struktura janë shumë më të forta kur vendosen në rrjeta të rregullta.

(1)hps://www.archdaily.com/790522/container-stackpavilion-peoples-architecture

(2)hp://www.peoples-architecture.com/pao/en/ (3)hps://en.wikipedia.org/wiki/Taiyuan (4)hps://www.dezeen.com/ (5)hps://maps.google.com/ (6)hps://www.google.com/imghp?hl=en&tab=ri&ogb l

(7)hps://archello.com/project/container-stackpavilion

(8)hps://www.falconstructures.com/blog/shippingcontainer-architecture (9)hp://www.ccearch.com/shipping-containers--physical-characteriscs.html

E hapur, publike, lidhshmeria me natyren. Skajet e çdo kontejneri janë të mbuluara me dritare me lartësi të plotë, duke lejuar pamjet në të gjithë ndërtesën. 48

Fakte: - Pasione formula 1...

- Hobi: leximi, vizami, hiking...

Egaligilo Pavilion / Broissin, Mexico, 2019

- Interesa ar, fiilm, udhëmi...

1. HYRJE – informatat bazike të Projekt dhe Arkitek:

Gerardo Broissin është një arkitekt meksikan që drejton arkitektët Broissin, një firmë me bazë në qyten e Meksikës. Puna e j arkitekturore u bë e rëndësishme kur në vin 2007 ai mori çmimin Design Vanguard, dhënë nga Revista Architectural Record New York Magazine. Sli i j arkitektonik shquhet për propopozimet e j inovatore që përfshijnë një gamë të gjerë formash, tekstesh dhe ideologjish.[1]

Arkitek meksikan Gerardo Broissin, me rasn e javës së Dizajnit Mexico 2019, ka projektuar pavijonin shumë elegant Egaligilo, i vendosur pranë Muzeut Tamayo, një instucion i rëndësishëm i art bashëohor në Mexico City.

Fjala "egaligilo" do të thotë "barazues" dhe është krijuar për të shprehur potencialin e kësaj hapësire jo vetëm të bukur, por edhe funksionale. Muret në formë enigme të pavijonit janë rregulluar në një kornizë çeliku të zbukuruar me llamba betoni me formë tërheqëse, por pari kryesor i pavijonit është hapja rrethore në mur, e cila zbulon një kopsht të mirëmbajtur. Dizajni vepron si një barazues i forcave midis arkitekturës racionale dhe parametrike duke ruajtur një mjedis natyror brenda.[2]

Gerardo Broissin

- Në vi 2007 u nderua me cmimin “Design Vanguard” si një nga 10 arkitektet me te avancuar ne bote.

- Karakterizohet per zhvillimin dhe kontribun e propozimeve inovave.

-”Graffiti është diçka e vëshrë për t'u çrrënjosur” -Broissin

Donjeta Imeraj
49

2. Konteks dhe Lokacioni:

Meksika ne hartën globale

Fakte:

-Meksika është shtëpia e piramidës më të madhe në botë.

-Meksika është qyte i dytë në botë me numrin më të madh të muzeve.

-Qyte I Meksikës u ndërtua mbi një liqen, qyte fundoset rreth 12 cm në vit.[3]

Fakte: Egaligilo ndodhet pranë Museo Tamayo në Mexico City. Vepron si një barazues i forcave midis arkitekturës racionale dhe parametrike duke ruajtur një mjedis natyror brenda.[5] Egaligilo krijon mikroklimëne vet duke ruajtur një sërë kushtesh atmosferike të nevojshme për të mbajtur një pyll të vogël resh brenda pavijonit duke lejuar dritën dhe shiun të depërtojnë brenda nga të dy lëkurat, duke i mbajtur bimët gjallë.[4]

Meksika në hartën e Amerikës Egaligilo në qyten e Meksikës në Amerikë
50

3. Qëllimi, Temaka dhe Koncep : 4. Funksioni / Funksionet + Zonimi:

Objekvi i j është të nxisë potencialin e dizajnit dhe arkitekturës si një agjent ndryshimi, si një mjet për të përballuar sfidat globale dhe për të gjeneruar zgjidhje për të përmirësuar cilësinë e jetesës.[6]

Analogjia = PUZZLE

First concept design

Struktura e jashtme e Egaligilo mbetet e lehtë dhe shfaq kontraste formash. Hapjet midis lëkurave të mbivendosura dhe efektet e ndriçimit arficial, krijojnë skenarë të ndryshëm gjatë gjithë ditës, duke e uar spektatorin të hyjë në pavijon duke ripërcaktuar kufirin e ngushtë midis brenda dhe jashtë. [7]

Egaligilo është integrimi i përsosur i natyrës dhe arficiales dhe ështtë një shembull i shkëlqyer i arkitekturës së riciklueshme. Prandaj mund të çmontohet lehtësisht dhe do të përdoret si klasë për studentët në të ardhmen![8]

Kompozicioni
51

Funksioni:

Funksioni i pvailionit si kopsht dhe shndërrimi i j në klasë në rast nevoje.

52

3.Koncepti: 5. Parteri / Dizajni Peizazhor :

Prezanmi i diajnit peiazhor përmes fotografive.

6. Kompozicioni:

Gjeometria:

53

3.Koncepti: 7. Konfigurimi:

8. Luksi / Ndriçimi Natyral:

Prezanmi skemak i ndriçimit natyral në bazë

Prezanmi skemak i ndriçimit natyral në prerje

54

3.Koncepti: 9. Struktura, Konstruksioni dhe Tektonika :

Muret e këj pavijoni në Mexico City nga arkitek vendas Gerardo Broissin janë bërë nga panele betoni të bashkuara së bashku si një enigmë.

Muret si enigmë të pavijonit janë të vendosura përgjatë një kornize çeliku dhe të shënuar nga një seri vëllimesh bulboze me rrathë të vegjël të bardhë të modeluar nëpër to.

Një hapje rrethore është futur gjithashtu në mur për të zbuluar një kopsht të mbjellë me shkurre të harlisura dhe bimë brenda.

Broissin krijoi pjesën e jashtme të shpuar për të lejuar që rrezet e diellit, oksigjeni dhe shiu të hyjnë në pavijon dhe të lejojnë që bimët të lulëzojnë. [9]

55
Detaje

3.Koncepti: 10. Ekspresioni - Simbolika dhe Reagimi Emocional:

Struktura e jashtme e Egaligilos është shumë e lehtë dhe me forma të kundërta, ajo strehon një oazë të gjallë brenda, në të cilin simbolika lartësohet dhe i jep vizitorit aësinë për të marrë një rol të ri, për të rishpikur veten. Së fundi, ai kërkon të rrisë ndërgjegjësimin për riciklimin e strukturave kalimtare dhe qëllimin maksimal të arkitekturës: përfimin e njerëzimit.

11. Epilogu personal: 12. Burimet dhe Referencat:

Pavijoni Egaligilo, në kopshtet e Muzeut Tamayo, është një hapësirë që në shikim të parë mund të lexohet si një tension midis arkitekturës tradicionale moderne dhe parametrike; një arkitekturë komunikimi dhe jo hapësirë, megjithëse më parë si strukturë ishte inekzistente.

Pra Broissin u jep formë dhe integritet materialeve të ndryshme, krijon forma që mund të quhen "forma të gjalla" si pasojë e marrëdhënies midis pjesëve të tyre. Ku përmes këj pavijoni Broissin ka shprehur një kupm modernist të hapësirave funksionale.

1.hps://en.wikipedia.org/wiki/Gerardo_Broissin

2. hps://www.collater.al/en/egaligilo-gerardobroissin/

3. hps://wmp.mx/en/10-surprising-facts-aboutmexico/

4.hps://www.archdaily.com/966195/egaligilopavilion-broissin

5. 6. Po aty

7. hps://www.gooood.cn/egaligilo-pavilionbroissin.htm

8. hps://archizer.com/projects/archdays-pavillionegaligilo/

9.hps://www.dezeen.com/2019/10/23/gerardobroissin-design-week-mexico-pavilion/

56

W, 2022

Pasione: Interior Design

Muzika Hobi: DIY Sport Interesa: Historia Leximi Dëshira: I try to create homes,not houses

HYRJE - Informatat bazike të Projekt dhe Arkiektëve

Studio Holandeze “Overtreders W” është studio e projekmi hapësinor themeluar në vin 2006 nga Reinder Bakker dhe Hester van Dijk me iden për të dizajnuar me zero mbetje në materiale[1]

Dizajnuan “ The Voice of Urban “ për qyten e Almerisë dhe Amsterdamit. Pavijoni, kopsh dhe ekspozita janë dizajnuar si një hapësirë e integruar.Pavijoni shtrihet në gjith hapësiren dhe paraqet në mënyra të ndryshme se si natyra dhe njeriu mund të punojn mes ve dhe sa relacion I fuqishëm mund të jetë. Overtreders kanë dashur të rrethojnë gjith hapësirën në një kopsht të mbyllur ashtu që duke i’u afruar Pavijonit fillimisht do duket I mbyllur me hapje minimale, por ata që do hyjnë do të përjetojnë dritën dhe një kopsht, natyrë të qetë përtej mureve. Ndërtesa është 100% me bazë bio, që do të thotë cdo gjë aty e përdorur është e riciklueshme dhe bioorganike. Materiale të përdorura, kompozite druri te ricikluara janë marrur nga projekte të demoluara në Amsterdam, Almere dhe Zwolle. Kompozitat e drurit janë vendosur në korniza të drurit të ngjyrosura me të zezë të marrura nga vaji I farave të lirit që rritej në fushat përreth Schiphol dhe poashtu kompozitet janë të ngjyrosura me ngjyrë natyrale rozë për t’i dhënë një frymë më bashkëkohore. Pavijoni është implementuar në vin 2022, që ës të plotësisht I çmontueshëm. Pas ekspozitës një pjesë do të zhvendoset në qyten e Almeriesë dhe një pjesë në Amterdam. [2]

Overtreders W, (trespassers/ shkelësit). Studio holandeze e projekmit ë hapësirave, themeluar më vin 2006. Të nominuar në disa çmime, fitues të “Frame Award” 2018 në dy projekte. [3]

Edona Shala Hester van Dijk & Reinder Bakker Floriade Pavilion - The Voice of Urban Nature / Overtreders
57

2. Konteks dhe Lokacioni: Makro

Fakte:

“The voice of Urban Nature” është ndërtuar 100% nga produkte me bazë organike dhe lokale, të kombinuar nga kompozita të ndryshme të drurit të ricikluar.

Lëndet e para u morën sa më shumë që të ishte e mundur në rrethinë të Amsterdamit dhe Almerës që të jetë sa më autoktonë [5]

Fakte:

Pas lufës së dytë botërore, kanë filluar plane për zhvillimin e qytet të Almerës, ku shtëpia e ptarë është ndërtuar në vin 1976 dhe zyrtarisht u bë komunë më 1984.

Si qyte më i ri në Holandë, Almere ndodhet në tokë të krijuar nga liqeni Ijsselmeer. [4]

Pozita e Almeres në provincën Flevoland

Mikro

58
Provinca Flevoland Holanda

3. Qëllimi, Temaka dhe Koncep : 4. Funksioni / Funksionet + Zonimi:

Overtreders kanë dashur të rrethojnë gjith hapësirën në një kopsht të mbyllur ashtu që duke i’u afruar Pavijonit fillimisht do duket I mbyllur me hapje minimale, por ata që do hyjnë do të përjetojnë dritën dhe një natyrë të qetë përtej mureve, të pershkoj ndjenjën e madhëshsë ndërsa si temak paaqet në mënyra të ndryshme se si natyra dhe njeriu mund të punojn mes ve dhe sa elacion I fuqishëm mund të jetë [6]

Cdo gjë ka filluar inspirimë 100% nga natyra. Nga bota bimore- Flora.

Nga kercylli I luleve janë marrë format e drejta këndore, që janë bë kornizat, nga petalet e luleve janë marrë pigmente të tyre njashtu edhe në menyrë fizike ashtu që të jetë bio 100% [7] “Pink is my new obssesion”

Informacione 2.Ekspozita Hapësirë
1 2 59
1.Hyrja
medituese
Funksioni: Prerja A1 Prerja A2 A1 A2 Zonë e përbashkëtEkspozitë Hapësirë medituese Informacione Hyrja Hapësirë e përbashkët ‘ Zonë e shërbimeve Zonë e përbashkët Toalet Toalet 60

[8]

3.Koncepti: 5. Parteri / Dizajni Peizazhor : 6. Kompozicioni: Gjeometria: 61

3.Koncepti: 7. Konfigurimi:

8. Luksi / Ndriçimi Natyral:

62

3.Koncepti: 9. Struktura, Konstruksioni dhe Tektonika :

Mure

Kapriatë e thjesht

Kapriatë Dru i lyer me vaj të zi organik

Profile metalike Shtylla

Themeli Beton Arme

Dru i ricikluar I ngjyrosur me ngjyrë natyrale

Dysheme

Tektonik

Stereotomik

63

3.Koncepti: 10. Ekspresioni - Simbolika dhe Reagimi Emocional:

Relacioni tredimensionale Njeriu, Flora dhe Fauna. Relacioni me njeriun (Panelat e drurit)

Relacioni me Floren (Ndarjet) Relacioni me Faunen (Hapjet)

Simbolika Emocionet

madhesh / thjes tësi pafundësi / qetësi pikëllim / frustërim E hapur / uese E hapur - natyra E mbyllur- njeriu

11. Epilogu personal: 12. Burimet dhe Referencat:

hps://www.dezeen.com/2022/08/22/the-voice -of-urban-nature-floriade-overtreders-w/ [1] 13/11/2022 hps://showcased.io/entry/ 13/11/2022 voice-of-urban-nature-sustainable-pavilion/ [2] 20/11/2022

hps://www.overtreders-w.nl/en [3]16/11/2022 hps://amsterdamcoffeeshoptours.com/almere -history/ [4] 16/11/2022

hps://floriade.com/content/uploads/2022/10/ batch-04-13-07-2022-fl22003-plaaegrond-website -1921-x-1080px.pdf [5]05/12/2022

hps://www.archdaily.cl/cl/989054/floriade-pavilion -the-voice-of-urban-nature-overtreders-w/ 6320c9eeddd930016eac9e24-floriade-pavilion-thevoice-of-urban-nature-overtreders-w-exploded-view [6], [7]05/1/2022 hps://floriade.com/en/ [8] 29/11/2022

64
Simetria , thjeshtësia , minimalizëm në materiale. Nga shumë pak të bëhet diqka mbresëlënëse

Ema Blakqori

Muzika

Palestra

Fakte: - Pasione - Hobi - Interesa - Dëshira

Animacionet Eksperienca sfiduese

1. HYRJE – informatat bazike të Projekt dhe Arkitekt:

Pavijoni I Bienales u projektua nga Jussi Palva ; Riina Palva; Väinö Nikkilä; Ilkka Salminen në vin 2020nëPornJugortëHelsinkit,qytettëFinlandës.Mesipërfaqeprej1200m2.[1] .Forma e Pavijoni merr frymëzim nga jeta e oqeanit me guaska dhe molusqe e ishullit Vallisaari. Me përdorimi I drurit si material i përdorur tradicionalisht për ndërtesat në arkipelag merr formënenjëeneprejdruri,[2]

Pavijoni i Bienales së Helsinkit shërben si pikë hyrëse për zbarkimin e traget nga ku mund të hipninëvarkënqëçonvizitorëtnëFesvalineritëartevedyvjeçarenëishullinVallisaari.[3] Për Verstas Architects, krijimi i vendeve me hapësira thjesht të rehatshme dhe paqësore është i rëndësishëm. “Kjo vlen si për hapësirat e brendshme ashtu edhe për ato të jashtme,prandaj pavijoni konvertohet gjatë gjithë vit sepse ofron një mundësi për të pushuar për të shijuar praninëedetnëzemërtëqytet.[4]

Verstas Architects

Studio arkitekturale e themeluar nga Väinö Nikkilä, Jussi Palva, Riina Palva dhe Ilkka Salminen në 2004.[5]

Ata jan të përkushtuar në projekmin e hapësirave që i rezistojnë kohës.[6]

Helsinki Biennial Pavilion / Verstas Architects\2020
65

Fakte:

Makro Analizat

Fakte:

Pavijoni frekuentohet vazhdimisht sepse gjendet në porn në të cilin qarkullojnë anijet nga Fesvali i ri i arteve në ishullin Vallisaari.

2. Konteks dhe Lokacioni: MikroAnalizat

Helsinki është kryeqyte, primat dhe qyte më i populluar I Finlandës. Qyte i Helsinkit ka Muzeun e Art të Helsinkit, me rreth 200 vepra të art publik .Dhe Muzeu Kombëtar I Finlandës., [7]

66
Evropa

3. Qëllimi, Temaka dhe Koncep : 4. Funksioni / Funksionet + Zonimi:

Pavijoni Bienal i Helsinkit shërben si pikë hyrëse për zbarkimin e traget nga ku mund të hipni në varkën që i çon vizitorët në fesvalin e ri të arteve dyvjeçare në ishullin Vallisaari. Mund të shfrytëzohet hapësira e pjerrët kërkojë strehë nën çanë e ngjashme me çadrën e mbështetur nga korniza trekëndore prej druri.

Funksjoni I këj pavijoni është hapsirë pritëse në porn detar të Helsinkit nga i cili anijet zbarkojnë ne Fesvalin e ri të arteve në ishullin Vallisaari.

Koncep:

Forma rrethore është një tërheqje ndaj pellgjeve të Vallisaarit dhe formacioneve të gropave të "kazanëve gjigantë", ndërsa muret prej druri kanë për qëllim të kujtojnë shkëmbinjtë e ishullit si dhe bykat e anijeve të vjetra prej druri, Bienalja është një dëshmi jo vetëm e fuqisë së Helsinkit si qytet ar dhe kulturor, por edhe e vendosmërisë dhe ambicieve të j, të cilat e drejtuan organizimin e ngjarjes në rrethana të jashtëzakonshme.

67

Legjenda: Hyrja Recepsioni (informacioni) Qendrimi Ditore Kuverta Oborri

Zona
Zona
Zonimi: Kuverta Recepsioni Grumbullimi
e sherbimeve
e perbashket Zona e nderrmjetme
68
3.Koncepti: 6.
Gjeometria: 5.
1C 2C 3C 69
Kompozicioni:
Parteri / Dizajni Peizazhor :

7. Konfigurimi:

8. Luksi / Ndriçimi Natyral:

70

3.Koncepti: 9. Struktura, Konstruksioni dhe Tektonika :

Pavijoni është prej druri, një material i përdorur tradicionalisht

Modulet përbëhen nga korniza druri të laminuara me ngjitës dhe lidhëse çeliku, të veshura me lëndë druri rimeso të laminuar dhe të veshura me shufra pishe të sharruara të imta, të ngjyrosura në errësirë me një përzierje katrani dhe vaji liri.

Dru Pishe rërë të bardhë kuarci.

Pisha finlandeze është një pemë që mund të përballojë edhe kushtet më të vëshra. Është një i mbijetuar i ashpër dhe i fortë që mund të lulëzojë pothuajse kudo. Është në gjendje t'i rezistojë ngricave të forta, nxehtësisë së madhe dhe mungesës së lëndëve ushqyese. Tektonika Sterotonika

71

3.Koncepti: 10. Ekspresioni - Simbolika dhe Reagimi Emocional:

Mobius Band: Unitet, modes,

Ekspresioni: E hapur / Ftuese Ajrosje Panorame E Mbyllur/ Izoluese Mbrojtje

Pavijoni u krijua për të siguruar një pikë ankorimi për ngjarjen në qytet. Ky Pavijon është hyrja në Bienalen e Helsinkit, një fesval ar që zhvillohet në ishullin Vallisaari.

Ofron një vend ku njerëzit të takohen dhe të presin tragen,ka gjithashtu hapësirë publike të dhomës së ndenjes urbane në ajër të hapur, ku mund të ndaleni dhe të shijoni praninë e det. Ka formën e një “enë” qe të kujton shkëmbinjtë e Vallisaarit.

Simbolika:

Relacioni me njeriun (shtyllat)

Relacioni me token (rrafshi Relacioni me qiellin (Hapsira e hapur)

11. Epilogu personal: 12. Burimet

Çdo gjërreth këj pavijoni të lë përshtypje,duke filluar nga forma e një enë që përfaqson shkëmbinjet e Vallisaarit,ndërmi nga druri qe është material kyq në Finland e deri te funksioni si port detar për në Fesvalin e arteve në ishullin Vallisaari.

dhe Referencat:

1]hps://www.archdaily.com/962336/helsinkibiennial-pavilion-verstas-architects

[2] Po aty

[3] Po aty

[4]hps://scanmagazine.co.uk/verstas-architectsdesigning-meaningful-and-memorable-places/ [5] Po aty

[6] Po aty

[7]hps://en.wikipedia.org/wiki/Helsinki

72

-Pasioni Rock muzika Dokumentar -Hobi Piktura Volejbolli -Interesat Arkitektura goke

1. HYRJE – informatat bazike të Projekt dhe Arkitekt:

-E projektuar nga Tadao Ando, Japan Pavilion Expo 92 është një ndërtesë 4-katëshe e ndërtuar me lloje të ndryshme druri sjellë nga pjesë të ndryshme të botës, është një nga ndërmet më të mëdha prej druri të ndërtuara pas Lues së Dyte Bot rore, e cila është bazuar në koncepn “Kinar ”- një term pik i kulturës japoneze që i referohet bukurisë natyrore të materialeve, pa dekorime apo trajme. -Qëllimi i pavijonit ishte të njihte njerëzit me esteekn tradicionale të Japonise, një estetkië bazuar në thjeshtësinë e pa zbukuruar. [1]

ë

Tadao Ando

-Arkitekt japonez autodidakt. -Në vin 1968 krijoi studion e j Tadao Ando Architects. and Associates -Fitues i çmimit Pritzker 1995.

Erjona Pllana Japan Pavilion Expo 92' by Tadao Ando - Architect
- Biografia- Tadao Ando lindi më 13 shtator 1941,Osaka, Japoni.Qysh prej moshës 2-vjecare jetoi me stërgjyshin e j. Ai ushtroi boksin para se të merrej me profesionin e arkitekturës.I impresionuar nga Hotel Imperial (F.Ll.Wright) në një udhm në Tokio si student, ai përfundimisht i jepi fund karrierës së boksit për të vazhduar arkitekurën. Ai vizitoi ndërtesat e projektura nga arkitektët si Le Corbusier, F.Ll.Wright dhe L.Kahn të cilët e inspiruan për hapjen e studios së j në Tokio.[2] 73

Fakte:

2. Konteks dhe Loacioni: Makro

Fakte:

Pavijoni japonez ndodhet në kryqëzimin e rrugëve si “L.D.Vinci” dhe “Ch.Darwin”. -Japonezët investuan deri në 1500 milione pesos (valutë spanjolle) për ndërmin e pavijonit.

Seville, Spain

Pavijoni gjendet në Seville të Spanjës, ky qytet njihet si shtëpia e katedrales më të madhe goke në boë. -Seville gjithashtu njihet edhe si atraksion i madhë turisk në Spanjë.

LOKACIONI: Isla de la Curtuja

Seville, SPAIN

Sipërfaqja: 5.660 m²

Vi: 1989-1992

Mikro

74

3. Qëllimi, Temaka dhe Koncep : 4. Funksioni / Funksionet + Zonimi:

Qëllimi i këj projek në gjithësi ishte të riinterpretonte arkitekturën e drurit me teknologjinë moderne dhe të krijonte një ndërtesë që mëshironte traditën dhe moderniten teknologjinë dhe kulturën.

Baza e kat 3

[3] [4]

Baza e kat 2

ura Taiko-Bashi e përdorur si metaforë për të reprezentatuar pavijonin, për shkak të idesë konceptuale dhe asaj mesazhore që këto të dy ndërtesa përcjellin.

-Pavioni , i ashtu quajtur edhe taikobashi përdoret si një metaforë e dyfishtë për të simbolizuar kalimin nga realitetet e jetës në botën imagjinare si dhe lidhjen midis Lindjes dhe Perëndimit.[5]

1 2 2

3

1 2

Baza e kat 1

1.Hyrja. 2.Galeritë.

1 2 p rdhes së ë

1.Hapësirë e përbashkët. 2.Nyjet sanitare. 1.Hapësirë e përbashkët 2.Depo. 3.Galeri.

Baza e

Forma kryesore e pavijonit është krijuar nga forma e rregullt gjeometrike kuboidi, të cilit iu janë rafinuar skajet në formë harkore, ndërsa pjesa hyrëse e pavijonit është e inspiruar nga 75

Funksioni:

Zonimi

Prerja

Fasada veriore -Hyrja -Zona kolek e -Zona e sherbimeve -Galerite

-Kthinat sanitare

-Hyrja -Gr.ekonomik dhe teknik

-Zona e sherbimeve-Hollet -Zonat e perbashketa

Pamje brenda Pavijonit
76

Pjesa e dizajnit peisazhor është kryesisht e hapur, e cila i lë hapësirë vizitorëve për një percepm më e mirë të ndertësës.

Parteri është i pasur gjithashtu me një hapësirë mirëpritëse të përbashkët në të cilën gjenden ulëse për vizitorët.

Në parter të pavilijonit gjendeshin edhe ekspodita të vogla, lojëra për vizitorë hapësira relaksuese për t'iu shmangur të nxeht.

Kompozicioni 3d

Gjeometria 2d Gjeometria 3d

3.Koncepti: 5. Parteri / Dizajni Peizazhor : 6. Kompozicioni: Gjeometria: Kompozicionet 2d
1c 2c 3c 4c 5c 6c
77

3.Koncepti: 7. Konfigurimi:

-Shkallët

Konfigurimi linear

Konfigurimi linear

8. Luksi / Ndriçimi Natyral:

Ndriqimi natyral në prerje duket qartë se është ndriqim zenital, ndërsa ndriçimi natyral në fasadë nuk është shumë I pranishëm.

-Holli dhe koridoret -Shkallët -Holli dhe koridoret -Shkallët lëvizëse

Vizitorët pas ngjitjes së tyre nepër urë hyjnë në një galeri, një hapësirë e madhe e hapur, prej këtu ata vazhdojnë poshtë, duke kaluar nëpër secilen nga dhomat e ekspozitës.[6]

Ndriqimi natyral në prerje depërton

tavanit.

Në përdhesë

në kan

kryesisht përmes dhe 1 ndriçimi natyral depërton përmes hapjeve që ndodhen në mes konstruksionit të materialit kryesor të përdorur (druri).

78

3.Koncepti: 9. Struktura, Konstruksioni dhe Tektonika :

Vetë pavijoni ishte një kryevepër që u reklamua si konstruksioni më i madh prej druri në botë , pa vida , pa gozhda , thjeshtë monm gjuhësor në traditën e pallateve të lashta japoneze shogun. Themelet e paviljonit padyshim që janë të ndërtuara nga betoni i armuar. Ndërtesa është 60 metra e gjatë, 40 metra e thellë dhe 25 metra në pikën e saj më të lartë. Ka 4 nivele dhe mbi to janë të vendosur trarë dhe kolona të laminuara. Sistemi i trarëve dhe kolonave prej druri mund të shihet në shumicën e dhomave. Kolonat e brendshme janë kompensate të kombinuara me bredh kanadez me brinjë celiku për tavanet. Jashtë druri Irako, nga Afrika. Muret e brendshme janë të suvatuara në të bardhë.[7]

E ndërtuar me dru në gjendjen e j natyrale, pa lyerje e llak, me mbulesën e tejdukshme teflon, ndërtesa argohet nga arkitektura më të cilën na ka mësuar arkitek, betoni, material që e perdor si cështje krike ndaj ndërmit japonez.[8]

Lidhja e trajeve të drurit në konstruksionin e tavanit.

Elementet verkale

Shtyllat

Kapriatat

Pllaka

Trajet

79

3.Koncepti: 10. Ekspresioni - Simbolika dhe Reagimi Emocional:

Ky projekt që në pamje të parë të jepë një përshtypje intersante dhe shumë karakteriske, ku forma drejtëkëndëshe me skaje harkore paraqet kulturën e ndërtesave japoneze. Ndërsa sa i përket formës në pamje të jashtme , janë forma shumë të thjeshta gjeometrike ku thjeshtësia është ajo që i bën unike së bashku me materialin që është përdorur nga arkitek.

-Struktura e pavijonit është gjëja e parë që na bije në sy gjatë vëshmit. Ajo është e ndëruar tërësisht me dru, e cia strukturë reflekton edhe strukturën e shtëpive japoneze të ashtuquajtura shogun.

Forma e jashtme e pavijonit dhe atmosfera e brendshme simbolikisht të japin ndjesin e bashkimit të dy botëve shumë të ndryshme, asaj reale dhe imagjinare, të vdekshmes dhe të pavdekshmes si dhe paraqet bashkimin, ndërlidhjen dhe ndryshimet që hasen në mes Lindjes dhe Perëndimit.

11. Epilogu personal: 12.

-Mbresa: Përdorimi i materialit të drurit si material bazë. Konstruksioni i ndërtesës, sidomos pjesa e tavanit e ndërtuar me traje masive të drurit të lë mbresa të mëdha, si dhe ura harkore (pjesa hyrëse) të jep përshtypjen e kalimit nga një botë në tjetrën, thjeshtësia e formës.

Krikë: Ndërtesa do mund të kishte më shumë hapje në fasadë, për shkak edhe të depërmit më të madhë të ndriçimit natyral.

Burimet dhe Referencat:

1.hps://en.wikiarquitectura.com/building/japanpavilion-for-expo92/

2.hps://arquitecturaviva.com/works/pabellon-dejapon-expo-92-sevilla

3.hps://www.mc2.es/en/proyect/japanese-pavillionexpo-seville-92/

4.hps://legadoexposevilla.org/japon-primer-pabellon-enconseguir-4-millones-de-visitas/

5. Po aty

6.hps://www.northernarchitecture.us/housing-project/ the-salzburg-guggenheim-museum.html

7.hps://pt.wikiarquitectura.com/constru/pavilhao-dojapao-para-a-expo92/

8.hps://sevilla.abc.es/sevilla/sevi-efimero-pabellon-expocatapulto-arquitecto-201609122323_nocia.html

80

Fakte: - Hobi Shkrimi Fotografia

- Interesa Psikologjia Qirinjtë

Meditaon Space for Creaon / Jun Murata / JAM, China, 2019

1. HYRJE – informatat bazike të Projekt dhe Arkitekt:

Biografia:

Jun Murata lindi në vin 1976 në Osaka, Japoni. Në vin 1999 arri të diplomojë në Fakulten e Inxhinierisë “Universite i Kinkis”, ku më pas morri rrugën për një udhëm rreth tërë Europës. Po në atë vit ai u emërtua si arkitekt i asociuar në “Takashi Yamaguchi & Associates”. Pas më shumë se një dekade, në vin 2011 u bë përgjegjës për punimet e j dhe fotografitë vendase. Kurse një vit me vonë, në vin 2012 ai themeloi JAM, i cili është ekip i dizajnit të slit të vazhduar dhe të përbashkët.Në vin 2014 ai ishte edhe ligjërues i departament të arkitekturës, në fakulten e shkencave dhe inxhinierisë “Universite i Setsunan”. Një vit më vonë arri t’i bashkohej ekipit akademik në universiten ku edhe kishte diplomuar, por kësaj here si ligjërues në po të njejn departament. Ai ishte fitues i shumë çmimeve të ndryshme, ku ndër to vlen të përmendet çmimi i artë, në vin 2014/ Spark Design & Architecture Awards/ US. (1)

Meditaon Space for Creaon është objek i projektuar nga Jun Murata në vin 2019. Një hapsirë prej 78m2 në qyten e Fengtai District, Kinë. (2) Qendra e Jun Muratës është një desnacion për art dhe soditje, dhe përdor dritën dhe natyrën në arkitekturë për të inkurajuar një gjendje medituese te vizitorët e saj. (3)

Jun Murata

Fitues i shumë çmimeve ndërkombëtare

Ligjërues në tre universitete të ndryshme

Themelues i JAM

Fest Berisha ë
81

Fakte:

2. Konteks dhe Lokacioni: Makro

Kina në kontekst global Beijing ne kontekst shtetëror Fengtai District

Fakte:

Fengtai District, Beijing, China

Foto e gjendjes egzistuese

Pikëmi I lokacionit

-16 rrugë të Bashkisë -3 Qarqe Bashkiake -2 Qytete (4) -një desnacion turisk historik dhe kulturor -malet në perëndim, fushat në lindje(4)

Situacioni I ngushtë

Mikro

82

3. Qëllimi, Temaka dhe Koncep : 4. Funksioni / Funksionet + Zonimi:

Qendra e Arteve është një arkitekturë ku kontejnerët shumëngjyrësh janë shtresuar si blloqe ndërmi. Arkitek fu një enë të bardhë mbi të dhe një enë e shkurtër, e quajtur "hapësirë e mbyllur", lidhet me pjesën e jashtme të kontejnerit që përdoret si dhomë mysafirësh. Këtu, fusha e shikimit është e ngushtë e mbyllur, dhe ajo lidhet me botën e jashtme vetëm përmes hapjeve të drejtuara nga qielli. Nga këto dy hapje drejtkëndëshe, drita herë është e fortë dhe herë e butë derdhet në brendësi. (5)

Koncep:

Qendra përbëhet nga disa kontejnerë transpor të grumbulluara së bashku si blloqe ndërmi. Ngjyrat e kontejnerëve përcaktojnë përdorimin e tyre: grija dhe e verdha e lyer me guxim tregojnë hapësirat e galerisë, ndërsa kontejneri i gjatë dhe i ulët i bardhë mban një hapësirë të veçantë soditjeje. Bashkimi I kontenjerëve shumëngjyrësh dhe hapësira që krijohet mes tyre, na sjell produkn final të arkitekt, të cilat kur qëndrojnë pranë njëra tjetrës mundësojnë përjeme të ndryshme, si dhe një ndër faktorët kryesorë; ndricimin. (3)

±0.00 ±0.00

-288

Zonimi i kat: 1. Dhoma e gjumit 2. Hapësirë sanitare 3. Instalacioni 4. Hyrja 5. Shkallët 6. Punëtori 7. Hapsira për medim 8. Uji 9. Ballkoni

Fasada perëndimore

±0.00 ±105 83

Fasada lindore

Funksioni:

Një kontenier 12 m i gjatë me emrin “Tuneli” lidhet nga jashtë. Kjo hapësirë nuk ka mur lindjeperëndim dhe të çon në gjelbërimin dhe peizazhin e pasur përtej kësaj. Ka një të çarë në anën jugore dhe një rreze verkale drite pret brenda. Pjesa e sipërme e shkallëve të vogla në anën lindore ka ujë. Pemët në kopsht reflektohen në sipërfaqen e ujit me dritën që vjen nga lindja. Era kalon drejtpërdrejt dhe drita e reflektuar shkëlqen brenda ndërsa tund sipërfaqen e ujit. (2)

Zonimi

Hapësira me ujë Hapësira për medim Punëtoria Dhoma e gjumit
84

3.Koncepti: 5. Parteri / Dizajni Peizazhor :

6. Kompozicioni: Gjeometria:

85

3.Koncepti: 7. Konfigurimi:

Sistemi I komunikimit dhe elementet Konfigurimi linear

8. Luksi / Ndriçimi Natyral: Ndriçimi natyral në bazë

Ndriçimi natyral në prerje

86

3.Koncepti: 9. Struktura, Konstruksioni dhe Tektonika :

Ekstrakmi i sistemit struktural nga planimetria

Sistemi struktural Stereotomik-Tektonik

Kontejnerët janë bërë të gjithë nga çeliku Corten. Çeliku i kortenit është rezistent ndaj mot i cili mund të cilësohet më saktë si "Çeliku rezistent ndaj korrozionit atmosferik". Në prakkë, ky çelik është zhvilluar gjithashtu për të eliminuar nevojën për lyerje.

Prodhuesit e kontejnerëve përdorin këtë material sepse ai gjithashtu posedon vetë fizike që e bëjnë atë të saldueshëm dhe rezistent ndaj ndryshkut. Rezistenca ndaj ndryshkut do të thotë që nëse një copë bojë shkëputet nga çeliku, ndryshku do të formohet në sipërfaqe, por nuk do të shkojë më thellë.

87

3.Koncepti: 10. Ekspresioni - Simbolika dhe Reagimi Emocional:

-Kontras brenda jashtë

-Krijimi I atmosfers, I reflekmit dhe I slit minimalist si nga brenda ashtu edhe na jasht ë ë

-Dep rmi I drits dhe mnyra se si deprton prmes hapjeve verkale ëëë ëë

-Nga jasht ndrtesa duket e oht, ndrsa brenda jep ngrohtesin e duhur ëë ëë ë

-Ngjyrat e kontenjerve simbolizon ndarjen e tyre: grija dhe e verdha e lyer me guxim tregojnë hapësirat e ë galerisë ndërsa kontejneri i gjatë dhe i ulët i bardhë mban një hapësirë të veçantë soditjeje.

11. Epilogu personal:

12. Burimet dhe Referencat:

1. hps://www.architonic.com/en/microsite/junmurata-jam-/5206170 (qasur për herë të fundit më datë 20.11.2022)

2. hps://www.archdaily.com/935462/meditaonspace-for-creaon-jam (qasur për herë të fundit më datë 21.11.2022)

3. hps://minimalissimo.com/arcles/meditaonspace-for-creaon (qasur për herë të fundit më datë 28.11.2022)

Mbresa: Koridori i bardhë/ tuneli 12m i gjatë përfundon me një hapsirë të mbushur me ujë tek I cili reflektojnë pemët e kopsht. Këtu drita hyn pjesërisht nga hapjet e koridorit, që jep automakisht ndjenjën e lirisë dhe paqes nga zhurmat e këndshme që vijnë nga kopsh.

4.hps://www.travelchinaguide.com/cityguides/beijin g/fengtai-district/ (qasur për herë të fundit më datë 17.11.2022)

5. hps://www.thisispaper.com/mag/meditaonspace-for-creaon-jun-murata-jam (qasur për herë të fundit më datë 10.11.2022)

88

-Hobi-1)Ar, -2)Muzika. -DëshiraPlotesimi/Realiz

-imi i qellimeve të mija. -InteresatArkitektura Dizajni Udhëmi

1. HYRJE – informatat bazike të Projekt dhe Arkitekt:

Tema e Expo98 ishte "Oqeanet, një trashëgimi për të ardhmen". Pavijoni i Ujit përfaqëson një udhëm në universin fantask të ujit si një burim strategjik dhe thelbësor për jetën. “I afron njerëzit me burimet ujore, mjedisin dhe shkencën përmes një sërë përvojash ndërvepruese dhe lozonjare. [1]

Ndikimi u krijua përmes një hapësire të tensionuar arkitektonike dhe përmes korrelacionit midis hapësirave dhe vëllimeve të arkitekturës dhe mjedisit të saj të jashtëm. Në pamje të parë, Pavijoni duket të jetë i çekuilibruar, pa mbështetjen e duhur dhe pak tërheqës. Në hapësirat përreth ka pasqyra ujore me forma dhe forma po aq të tensionuara, të cilat kontribuojnë në efekn e dëshiruar.

Pavijoni dhe konteks rrethues i j janë pjesë e së njëjtës hapësirë. Ky nocion sjell dimensionin e Pavijonit në pjesën e jashtme të j dhe anasjelltas. Të dyja hapësirat janë të nevojshme dhe plotësuese, duke zgjeruar kështu përmasat dhe ndikimin e saj. [2]

Alexandre Burmester Lindur04.01.1957. Në vitet 70 shkoi në Brazil, ku studioi arkitekturë në universitetet Gama Filho dhe Santa Úrsula.

Genna Ukaj Pavilhão Da Água / Water Pavilion, EXPO 98 Lisbon / A. Burmester Arquitectos Associados .
89

2. Konteks dhe Lokacioni: Makro

Fakte: Pas suksesit të madh të Pavijonit të Ujit gjatë EXPO-së (afërsisht 8 instalonte atë përgjithmonë në parkun e qytet. [2]milionë vizitorë), qyte i Portos vendosi, në vin 2002, ta

Fakte:

Në janar 2011, menaxhimi i pavijonit u transferua nga Fundação EEM, sipas një kontrate menaxhimi të nënshkruar ndërmjet Bashkisë së Portos, pronarit dhe pronarit legjim të kësaj pajisjeje, dhe kësaj kompanie bashkiake.[3]

Mikro

Situacioni I ngushtë Situacioni I gjerë Vegjetacioni i ultë Vegjetacioni I lartë Diellosja Zhurmat 90

3. Qëllimi, Temaka dhe Koncep : 4. Funksioni / Funksionet + Zonimi:

Ndërtesa, e projektuar nga arkitektët Alexandre Burmester dhe José Carlos Gonçalves, u projektua për të krijuar iluzionin se ajo është e varur në ajër dhe e projektuar për t'u vizituar në një mënyrë lozonjare dhe shkencore.[2]

Përdhesa

Legjenda Hyrja. Recepsioni. Funksioni I mekanizmit përmes masës së ujit. Komunikimi verkal(shkallët) Korridori lidhës Hapësira eksperimentale Hapësira e eksperimenteve / analizave rreth ujit.

Ka I parë

Snët e vit kanë karakteriska shumë të dallueshme dhe secila prej tyre është e veçantë. Duke përdorur përvoja shumëngjyrëshe dhe argëtuese, do të luajmë dhe do të mësojmë më shumë për katër snët e vit, duke njohur atë që i karakterizon më së miri dhe rëndësinë e ujit në secilën prej tyre. Metoda shkencore do të prezantohet përmes eksperimenteve dhe vëzhgimit të drejtpërdrejtë. Uji është gjithmonë në lëvizje në natyrë dhe është substanca e vetme që gjendet në të tre gjendjet fizike në mjedis

LegjendaKomunikimi verkal(shkallët). Galeria. Zona e eksperimenteve për prodhimin e energjisë elektrike më hidro-energji, avullimi I ujit, lundrimi mbi ujë. Korridori lidhës. Hapësira për analizen e ujit gjatë snëve të vit.

Hyrja sekondare
91

Funksioni:

Zonimi

Diagrami kromak dhe Diagrami më fluska

Këtu ka shumë surpriza: kompozimi i muzikës, shikimi i imazheve në tre dimensione përmes iluzioneve opke, vëzhgimi i peshqve dhe bimëve në një akuarium gjigant, shikimi i formimit të një tornado dhe një ciklon, vëzhgimi i sjelljes së valëve, shikimi i avionëve të ujit nga mënyra të ndryshme, marrja të njohësh krijesat mikroskopike dhe të mësosh për fazat e ndryshme të ciklit të ujit dhe mënyrat më të mira për të mos i shpërdoruar ato, janë disa prej tyre.Në rrethinat e pavijonit të ujit ka një sërë pasqyrash uji.[2]

laboratori H.eeksperimenteve 92

korridori lidhës

ashensori shkallet

Përdhesa z.e. për hidro energj

laboratori korridori ashensori Z.e.Eks.më ujë Galeria shkallet Hyrja sekondare
Ka i Parë recepsioni

3.Koncepti: 5. Parteri / Dizajni Peizazhor :

Forma e objekt është e lidhur ngushtë me funksionin e j. Hyrja në pavion nuk është shumë e qartë përshkak të formes/ndërmit të jë.Ndërtesa u projektua në një hapësirë duke krijuar iluzionin e të qenit pezull në ajër, duke sfiduar percepmin tonë për graviten.

Rrethina e pavionit është e pasur me gjelbrim të ulët dhe të lartë, që e kompleton funksionin/qellimin e pavionit.

Pavioni ka konstruksion nga druri, po ashtu edhe fasadat janë nga druri, si dhe fletët e çelikut të galvanizuar që rreshtojnë fasadën, duke vepruar si një shtresë e zezë.. Parteri përreth pavioni është nga betoni, disa nga disnivelet janë të mbushura më ujë që e reflektojn objekn duke krijuar harmoni.

6. Kompozicioni: Gjeometria:

Përdhesa Ka I parë

Kompozicioni 2D- 3D

Forma e Pavilhao Da Agua është krijuar / formësuar me bashkimin e disa formave gjeometrike / kubeve

93

3.Koncepti: 7. Konfigurimi:

Këtu kamë paraqitur konfigurimin linear, ku komunikimi verkal bëhet përmes shkalleve dhe ashensorit për të lëvizur nëpër etazha të ndërtesës.

Përdhesa

Ka I parë

8. Luksi / Ndriçimi Natyral: Ndriçimi natyral Përdhesa

Pavioni ka hapje që I mundëson ndriqim natyral të mjauëshem .

Ka i parë

94

Konstruksioni

Ky pavion është I ndërtuar kryesisht nga druri , më sistem skeletor.

Ku edhe mbulesa/mbeshtjellesi është prej drurit,me dritare qelqi që ofrojnë pamje panoramike,si dhe fletët e çelikut të galvanizuar që rreshtojnë fasadën, duke vepruar si një shtresë e zezë. Në fasadat e ndërtesës është përdorur një struktur përseritëse në formen *X* ,që krijon ritëm për mbajtjen e ndërtesës.

Tektonika/Stereotomika Tektonika Stereotomika

3.Koncepti: 9. Struktura, Konstruksioni dhe Tektonika :
Materialet Druri Betoni
Qelqi
95
Fletët e çelikut të galvanizuar

3.Koncepti: 10. Ekspresioni - Simbolika dhe Reagimi Emocional:

Pavioni i ndërtuar fillimisht për Expo 98 dhe u transpozua në Oporto City Park në 2012. Ndërtesa projektohet në hapësirë duke krijuar iluzionin e të qenit pezull në ajër, duke sfiduar percepmin tonë për graviten. Ka dy nivele që qëndron në zonën e ekspozitës që ndodhet në të dyn. Hapësira u projektua për të funksionuar në madhësinë e saj të vërtetë, duke promovuar fleksibilitet në zënkën e përvojave të ndryshme, të konceptuara me përmasa të ndryshme. Në të njëjtën kohë, ne përpiqemi të kontrollojmë dritën natyrale dhe të mbajmë një marrëdhënie me hapësirën e jashtme të gjithëpranishme duke rrotulluar fletët e çelikut të galvanizuar që rreshtojnë fasadën, duke vepruar si një shtresë e zezë.

11. Epilogu personal: 12. Burimet dhe Referencat:

Ky projekt reflekton emocione të madhë ku secila hapesirë ka qellim/funksion dhe domëthenie të ndryshme.Këto hapësira janë të nderlidhura njera më tjetrën, ku zbatohen eksperimentet mbi ujin dhe rëndesin thelbësore që ka për jetës. Përshtypje më ka lënë lidhja e ndërteses më hapësirën që e lidhë koncepn e ndërteses më natyren(ujë/natyrë).

- hps://altherswanke.com/o-pavilhao-da-agua/[1]

- hps://archello.com/project/pavilhao-da-aguawater-pavilion...[2]

- hps://www.banema.pt/pt/projetos/pavilhao-daagua/

3D-Challenge-6-Home-town-building-Part-2Pavilhão-da-Água-Porto-Portugal

hps://pavilhaodaagua.pt/sobre-nos/ [3]

Reflekmi

96

Pasionet dhe Interesat: -Fizika -Gjuha e Trupit dhe Psikologjia -Teatri dhe Filmi

1. HYRJE – informatat bazike të Projekt dhe Arkitekt:

Serpenne Gallery Pavilion 2007 u bashkë-dizajnuar nga Eliasson dhe Kjel Thorsen, në studion arkitekturore norvegjeze Snøhea.

Pavijoni i përkohshëm ishte vendosur ngjitur me galerinë, në Kensington Gardens, në Londër. Ai bazohej në parimin e një rampe dredha-dredha që lidhte brendësinë e pavijonit me parkun. Duke u fokusuar në lëvizjen e vizitorëve, Eliasson, Thorsen dhe ekipet e tyre përkatëse konceptuan një strukturë gjeometrike komplekse që ndryshonte në pamje me çdo hap.

Eliasson kuroi një sërë ngjarjesh publike brenda pavijonit së bashku me Hans Ulrich Obrist, Bashkëdrejtor i Ekspozitave dhe Programeve dhe Drejtor i Projekteve Ndërkombëtare nëGaleria Serpenne. Seriali arri kulmin në Maratonën e Eksperiment të Galerisë

Serpenne: Pjesa 1, e mbajtur në tetor 2007. (1)

-E filloi karrierën në 1989.

-Për më shumë se 30 vjet, ka proje-Projektoi disa nga projektet më të shquara publike dhe kulturore në botë. -Snøhea sot është e përfshirë në projekte të shumta në Evropë, Azi, Oqeani e Amerikë. (2)

Malsore Lajqi Serpenne Gallery/ Studio Snohea, London, England, 2007
97

Kopshtet Kensington, dikur kopshtet private të Pallat Kensington, janë ndër Parqet Mbretërore të Londrës. Kopshtet ndahen nga Qyte i Westminsterit dhe Bashkia Mbretërore e Kensingtonit, Chelsea dhe ndodhen menjëherë në perëndim të Hyde Park, në Londrën qendrore perëndimore. Kopshtet mbulojnë një sipërfaqe prej 107 hektarësh (265 hektarë). (3)

2. Konteks dhe Lokacioni: Makro

Fakte:

Galeritë

Serpenne janë dy galeri ar bashkëkohor në Kensington Gardens, Hyde Park, Londra Qendrore. (3)

Fakte: London, England

Sipërfaqja: 607mi²

Lartësia: 36ʹ Klima: E butë oqeanike

E riemërtuar së fundmi në "Serpenne", organizata është e ndarë në Serpenne South, dhe Serpenne North, e njohur më parë si Galeria Sackler. Hapësirat e galerisë janë pesë minuta më këmbë nga njëra-tjetra, të lidhura nga ura mbi Liqenin Serpenne. Hapësirat janë të mëdha dhe me gjelbërim. Ekspozitat e tyre, arkitektura, edukimi dhe programet publike tërheqin deri në 1.2 milion vizitorë në vit. (3)

Mikro

98
Lokacioni ku është gjendur pavilioni Serpentine

3. Qëllimi, Temaka dhe Koncep : 4. Funksioni / Funksionet + Zonimi:

- Qëllimi është të rishqyrtohet struktura tradicionale e pavijonit me një nivel duke shtuar një dimension të tretë: lartësinë. Bazuar në parimin e një rampe dredha-dredha, pavioni i Serpenne Gallery 2007 eksploron idenë e qarkullimit verkal brenda një hapësire të vetme. -

“YOU CAN ONLY SEE THINGS WHEN YOU MOVE”

Rampa spirale, 140 metra e gjatë dhe e mbuluar pjesërisht nga grilat e kordonit të përdredhur, krijoi formën e hapësirës së mbyllur. Pjesa e parë e rampës hapej në brendësi, e dyta ishte e mbyllur dhe pjesa e fundit u bë një zgjam i çasë së pavijonit. (4)

99

Funksioni:

- Ndryshe nga pavijonët tjerë që janë ndertuar nga kjo seri pavijonësh, tek pavijoni I vizura Ishte gjithashtu funksional për grumbullimin e njerëzve, nga vizitorët e deri te arkitektët, akademikët dhe shkencëtarësh që drejtonin një sërë eksperimentesh publike.

Nuk ka shume hapesira mbrenda . Ka vetem nje holl te mad mulfunksional qe lidhet perreth me nje rampë

100

Ka një pavijon të ndryshëm në kopsht çdo verë dhe, për fat të keq, shumë pak prej tyre janë të dizajnuara me kopshte shoqëruese të veçanta per pavilionët. Të gjithë e dinë se hapësira e brendshme dhe ajo e jashtme duhet të projektohen së bashku, kështu që arsyeja e lëshimit është misterioze. Pra edhe ky pavijon nuk ka kopësht shoqërues te veçantë. Por meqe gjendet në kopshtet e mëdha të Kensignton, ka pamje të mirë dhe dizajn të bukur peisazhor që shoqëron secilin pavilion çdo vit me një zonë kopsh të projektuar nga Ian Hamilton Finlay. Është një disk me poezi konkrete në të cilin janë shkruar emrat e të gjitha pemëve që mund të gjenden në kopshtet e Kensingtonit. Hapësira e kopsht është projektuar nga arkitektët e peizazhit Colvin dhe Moggridge.(3)

6. Kompozicioni: Gjeometria:

Vetë hapësira u përcaktua nga një model gjeometrik që arkulohej si sipërfaqe muri dhe si vende ku mund të ulesh. Si formë e Përgjithshme ka formë sfere e mbështjellur me një rampe per ecje. (11)

3.Koncepti: 5. Parteri / Dizajni Peizazhor :
101
Skela kompozicional

3.Koncepti: 7. Konfigurimi:

Ndërsa udhëtojnë lart, vizitorët fillimisht ndeshen me hapësirën e brendshme, e cila pesohet nga një shtrirje e mbyllur e rampës me rrethinën e parë vetëm përmes fasadës së zhveshur.

Ndërsa vazhduan, vizitorët përfunduan lëvizjen spirale, rampa u integrua në çanë e Pavijonit dhe ata përjetuan një pamje të plotë dhe të papenguar të parkut.Lëvizja verkale e vizitorëve në pavijon plotësonte qarkullimin horizontal në hapësirat e ekspozitës pranë Serpenne Gallery. (9)

Pra kemi konfigurim

8. Luksi / Ndriçimi Natyral:

Ndricimi në prerje

Drita natyrale hynte në brendësi nga lart nëpërmjet një okulisi elipsoidal, gjithashtu edhe pergjatë rampës pavijoni ishte I pajisur me shumë hapje nga të cilat krijohet një efekt drite nga fije të perseritura të lëshuara njëra pas tjetres (7)

Ndricimi në bazë

102

3.Koncepti: 9. Struktura, Konstruksioni dhe Tektonika :

Ka kryesisht strukture druri dhe çeliku.

Ne konstruksion eshte perdorur shume dru. siç e ka permendur edhe arkitek i projekt në alë, “arsyeja pse ne kemi theksuar ndjesinë mja industriale të drurit në pavijon- për të shmangur përshkrimin e fiksuar , si cilësi për të. Drurit i është atribuar një lloj aure, e cila ka rezultuar që shumë slistë të zgjedhin të përdorin diçka më pak të sgmazuar siç janë materialet plaske. Ishte qëllimi ynë për të treguar se druri në fakt mund të jetë shumë organik, i këndshëm dhe produkv për t'u pasur përreth; ajo ka një ndjenjë të madhe të performancës." (9)

103

3.Koncepti: 10. Ekspresioni - Simbolika dhe Reagimi Emocional:

Nuk ka shumë vende në shoqëri sot ku udhëmi shihet si pjesë e çfarëdo përvoje që kemi, \ sepse gjithmone jemi te fokusuar në desnacion. Në muzeologji, apo ideologjinë e përfshirë në komunikimin e art, udhëmit dhe pjeses hyrëse nuk i jepet kurrë rëndësia që meritojnë. Por shëtorja është interesante në kupmin që është një fenomen I përkohshëm, që mund te shijohet po aq sa desnacioni I kërkuar ne vizurat e bukura të parkut.

11. Epilogu personal: 12. Burimet dhe Referencat:

Kopshtet Kensington jane paraqitur ne nje menyre te re dhe kane paraqitur nje pamje ndryshe nga se cfare njerezit jane mesuar shohin ato, gje qe kjo mund te behet duke levizur. Në krye, pavijoni kishte lartësi të madhe, por kishte edhe një pus të madh qendror ku njerëzit pinin kafetë dhe çajrat e tyre, që ishte një lloj dinamike shumë ndryshe. Ajo që e ben te vecante kete projek të pavijonit është se secili ka marrëdhënien e vet me parkun, me ndërtesën dhe me publikun.

1. hps://en.wikipedia.org/wiki/Serpenne_Galleries hps://olafureliasson.net/archive/artwork/WEK100452/serpenn e-gallery-pavilion

2. hps://www.serpennegalleries.org/whats-on/serpennegallery-pavilion-2007-olafur-eliasson-and-kjelthorsen/#:~:text=Arst%20Olafur%20Eliasson%20and%20archite ct,structure%20resembling%20a%20spinning%20top 3.hps://www.gardenvisit.com/gardens/%20serpenne_gallery_ garden

hps://champ-magazine.com/architecture/serpennepavilion/#:~:text=The%20Serpenne%20Gallery's%20Pavilion%20 concept,celebratory%20event%20held%20now%20over

5. hps://www.youtube.com/watch?v=B6SHKddLE48

6. hps://www.dezeen.com/2007/08/23/serpenne-gallerypavilion-2007/

7. hps://snohea.com/project/46-serpenne-gallery-pavilion

8. hps://vimeo.com/162961863

9. hps://www.dezeen.com/2007/08/23/serpenne-gallerypavilion-2007-again/

104

Hobi: Alpinizmi dhe Fotografia

1. HYRJE – informatat bazike të Projekt dhe Arkitekt:

Një kopsht i mbjellë nga slis holandez Piet Oudolf është i mbyllur në zemër të pavijonit të lyer me ngjyrë të zezë, të mbushur me lule dhe shkurre. Pavioni i Serpenne Gallery 2011 është projektuar nga arkitek zviceran me famë botërore Peter Zumthor.(2) Në zemër të pavijonit të Peter Zumthor është një kopsht që arkitek shpreson se do të frymëzojë vizitorët të bëhen vëzhgues, ndër të tjera thotë se dizajni i j synon të ndihmojë audiencën e j të marrë kohë për t’u çlodhur. (2) Pavioni Serpenne 2011 ishte ndërtesa e parë e përfunduar e arkitekt në Mbretërin e Bashkuar ishte komisioni i 11-të në serinë vjetore të galerisë, programi i parë dhe më ambicioz arkitekturor në botë i këj lloji.(3) Pavioni i vit 2011 është i ndërtuar nga një kornizë druri e lehtë e mbështjellë me gërvishtje dhe e veshur me një Idenden të zi mbi gërvishtje. Muret e jashtme dhe të brendshme me dyer të shkallëzuara ofrojnë shgje të shumta për vizitorët që të ndjekin, duke i udhëhequr ata drejt një kopsh të brendshëm qendror të fshehur. Vendkalimet e mbuluara dhe ndenjëset që rrethojnë këtë hapësirë qendrore krijojnë një mjedis të qetë nga i cili vizitorët shikojnë në kopsht, fokusi i ndërtesës. (4) Zumthor dha mësim në një sërë universitetesh, duke përfshirë Universiten Teknik në Mynih, Instun e Kalifornisë Jugore për Arkitekturën në Los Anxhelos dhe Universiten Tulane në New Orleans. (1)

Peter Zumthor Serpenne Gallery Pavilion 2011 / Peter Zumthor
,(lindur më 26 prill 1943, Bazel, Zvicër) arktekt zviceran i njohur për strukturat e j të pastra dhe të ashpra. Zumthor ka fituar çmimin e Arkitekturës Pritezker. (1) 105

Fakte:

Mbretëra e Bashkuar në pozitë globale, Londra në kontekst të MB.

2. Konteks dhe Lokacioni: Makro

Fakte:

Situacioni i gjerë.

Lokacioni i pavijonit gjendet ne zemrën e kryeqytet të Londrës në parkun Hyde.

Qasja, dhe infrastruktura tërheqin më shumë vizitor. (5)

Londra;është kryeqyte dhe qyte më i madh i Anglisë dhe Mbretërisë së Bashkuar, me një popullsi prej 8,799,800. Zgjerimi i j territorial e bën atë qyten e tretë më të madh në Evropë, i paraprirë nga Moska dhe Stambolli. (5) Shumë instucione, organizata dhe kompani ndërkombëtare janë të vendosura në Londër. Qyte përmban katër vende të trashëgimisë botërore. Zona metropolitane ka rreth 14 milionë banorë. (5)

Mikro

106

3. Qëllimi, Temaka dhe Koncep : 4. Funksioni / Funksionet + Zonimi:

Pyetur nga redaktori i AJ Chrisne Murray për koncepn e kopsht në pavionin tuaj? Peter Zumthor u përgjigj: “U shfaq në njëfarë mënyre, ideja e arkitekturës duke inkuadruar një kopsht. Në historinë mesjetare ju shihni kopshte të mbyllura, kopshte mjekësore bimore, kopshte për të dashuruarit, kopshte për një virgjëreshë, e kështu me radhë. Atmosfera është ajo që të gjithë e njohin disi; një kopsht i mbyllur në qendër, me njerëz të mbledhur rreth j. Ne nuk jemi atje për t'u lutur- kam projektuar disa tavolina dhe karrige, ju mund të pini një pije dhe diçka për të ngrënë, dhe është mirë që ne të jemi atje dhe të bisedojmë. Nuk është i shenjtë, nuk është një vend i shenjtë, por shpresoj se do të jetë inm. Shpresoj të shkosh atje dhe të mendosh, duhet të kthehem me mikun m. Kjo ishte ajo qe doja”. (6)

Pavijoni i Serpenne Gallery nga Zumthor do të funksionojë si një hapësirë publike dhe si një vend për Netët e Parkut, programi i profilit të lartë të bisedimeve dhe ngjarjeve publike të Galerisë. Netët e Parkut do të kulmojnë në Maratonën vjetore Serpenne Gallery.(2)

107

Funksioni:

Funksioni i pavionit është ikja nga zhurmat e trafikut të Londrës brenda një kopshi të brendshëm. Një korridor i ngushtë qarkullon në perimetrin e ndërtesës midis fasadës dhe kopsht i cili të dërgon në zemrën e pavionit ku brenda së cilës mund të ulesh, të ecësh, të vëzhgosh lulet. (2) (4)

108

3.Koncepti: 5. Parteri / Dizajni Peizazhor :

6. Kompozicioni: Gjeometria: Kompozicioni 2D

Forma katrore 3d- scratch

Kompozicioni 3D

109

3.Koncepti: 7. Konfigurimi:

Planimetria

8. Luksi / Ndriçimi Natyral:

Konfigurimi linear Baza/Planimetria

Ndriqimi natyral në bazë

Prerja tërthore

Ndriqimi natyral në prerje tërthore

110

3.Koncepti: 9. Struktura, Konstruksioni dhe Tektonika : Themelet e pavionit janë shiritor prej betoni, ndërsa e gjithë struktura është prej kornizës së drurit. (4)

Tektonika:

Stereotomik Tektonik

111

3.Koncepti: 10. Ekspresioni - Simbolika dhe Reagimi Emocional:

Ta shikosh nga jashtë duke si një ku arkivoli. Ngjyra e zezë të konsiston në thellësi, thellësi e cila të tërheq të hysh brenda pavionit, gjersa hynë në pavion dhe kalon korridorit sa vazhdon e rritet ndriqimi natyral ku dhe përfundon në zemrën e pavionit. Përballë një kopsh magjepës me lule dhe shkurre. Mënyra e ndërmit të pavijonit është tërheqës edhe pse nga jashtë është ku e zezë ky fakt të tërheq ta vëzhgosh nga brenda pavionin. Sapo të hysh brenda të mahnit kopsh dhe ndriqimi që vie nga lart. Lulat shumë ngjyrshe dhe kombinimi i shkurreve të zhysim në mendime shikon lartë e poshtë nuk të humbë vëzhgimi nga aty.

11. Epilogu personal: 12. Burimet dhe Referencat:

[1] hps://www.britannica.com/biography/PeterZumthor (qasur për herë të fundit më datën 26/11/22)

[2] hps://www.dezeen.com/2011/06/27/serpennegallery-pavilion-2011-by-peter-zumthor-2/ (qasur për herë të fundit më datën 26/11/22)

[3] hps://www.serpennegalleries.org/whatson/serpenne-gallery-pavilion-2011-peter-zumthor/ (qasur për herë të fundit më datën 26/11/22)

[4]hps://www.abitare.it/en/architecture/2011/06/28/se rpenne-gallery-pavilion-2011-by-peter-zumthor/ (qasur për herë të fundit më datën 26/11/22)

[5] hps://it.wikipedia.org/wiki/Londra (qasur për herë të fundit më datën 26/11/22)

[6] hps://www.architectsjournal.co.uk/archive/peterzumthor-my-work-is-not-about-design (qasur për herë të fundit më datën 26/11/22)

112

Serpenne Pavilion / BIG, London, 2016

Fakte:

- Pasioni: Arkitektura

- Hobi: Leximi Kërcimi - Interesa: Gjuha spanjolle - Dëshira: Të udhëtoj

1. HYRJE – informatat bazike të Projekt dhe Arkitekt:

Pavijoni Serpenne, i projektuar nga Bjarke Ingels Group (BIG) u vendos në Londër. në vin 2016. Është një "mur i zbërthyer" që është shndërruar nga një vijë e drejtë në një hapësirë 2 tredimensionale. Paraqet një strukturë dramake prej 300 m, ku në drejm të lindjesperëndimit, pavijoni është plotësisht i errët, kurse kah veri-jugu, është tërësisht transparent. Gjatë ditës shërbente si kafene dhe zhvillonte akvitete të lira familjare, kurse natën performonin arstë, shkrimtarë dhe muzikantë të ndryshëm. [1]

BIG u themelua në vin 2005.

Bjarke Ingels Group të njohur si BIG është një grup me bazë në Kopenhagë, Nju Jork, Londër, Barcelonë dhe Shenzhen. Është grup i arkitektëve, projektuesve, urbanistëve, profesionistëve të peizazhit, dizajnerëve të brendshëm studiuesve e shpikësve. Kjo studio është e përfshirë në një numër të madh projektesh në të gjithë Evropën, Amerikën e Veriut, Azinë dhe Lindjen e Mesme. BIG është e famshme për skemat dhe diagramet e pastra të dizajnit, të cilat demonstrojnë se si jeta bashkëkohore evoluon dhe ndryshon vazhdimisht. [2]

"Arkitektura ka të bëjë me përpjekjen për ta bërë botën pak më shumë si ëndrrat tona." [3]

Bjarke Ingels Group (BIG)
113

2. Konteks dhe Lokacioni: Makro

Fakte: Kensington Gardens, Londër, Mbretëri e Bashkuar

Pavijoni është një strukturë që mishëron aspekte të shumta të perceptuara si të kundërta: me formë të lirë por rigoroze, modulare por skulpturore, transparente dhe e errët. [5]

Fakte:

Kensington Gardens ka një liqen i quajtur Long Water dhe Tempullin e Mbretëreshës Caroline. Është përdorur si zonë gjuee në periudhat e hershme, kurse sot përdoret edhe si vend për të xhiruar filma. [4]

Në krye muri duket si një vijë e drejtë, ndërsa fundi i j formon një kodër të valëzuar drejt parkut. Më pas ai tërhiqet për të formuar një vrimë brenda j. Ky zbërthim i murit e kthen vijën në sipërfaqe, duke e shndërruar murin në hapësirë. [6]

Mikro

114

3. Qëllimi, Temaka dhe Koncep : 4. Funksioni / Funksionet + Zonimi:

Qëllimi: Pavilioni u konceptua si një projekt provokues që kombinon: një volum mendimprurës, me formë të lirë, por në të njëjtën kohë edhe rigoroz. [7]

Temaka: I përshkruar si spektakolar, Serpenne Pavilion ndërthur në vete shumë akvitete të përshtatshme për të gjithë dhe njëkohësisht tek secili jep ndjesi dhe percepme të ndryshme. [8]

Koncep:

Ndaj në dy pjesë

Ngrej dy skaje

Rrëshqas

115

Funksioni:

Bar Hapësira për artistë, këngëtarë, shkrimtarë

1 2

3

Prerja A - A

LEGJENDA:

1 - Hapësirë e lirë për vizitorë

2 - Hapësira për artistë, këngëtarë, shkrimtarë

3 - Bar

Prerja B - B

Hapësirë e lirë për vizitorë

116

3.Koncepti: 5. Parteri / Dizajni Peizazhor :

6. Kompozicioni: Gjeometria:

Gjelbrim i lartë dhe i ulët

Shtigjet për këmbësorë

117

7. Konfigurimi:

8. Luksi / Ndriçimi Natyral:

118

9. Struktura, Konstruksioni dhe Tektonika :

Kutë dhe profilet janë të rregulluara në një rrjetë ortogonale.

Muri përbëhet nga 1802 ku me fibra qelqi të cilat rrëshqasin përmes profileve nga alumini në formë kryqi.

Kutë rrëshqasin brenda dhe jashtë në një model shahu, duke u shpalosur në dy shtresa. [9]

U ndërtua me elementet bazë të arkitekturës si: muri me tulla. Megjithatë, në vend të tullave prej balte, muri është ngritur nga korniza me teksl me fije qelqi të grumbulluara mbi njëra-tjetrën. Në anën tjetër dyshemeja është prej druri duke siguruar një sipërfaqe me shkëlqim të ngrohtë. [10]

119

3.Koncepti: 10. Ekspresioni - Simbolika dhe Reagimi Emocional:

-Strehim

11. Epilogu personal:

-Dinamikë

Kur vizitori lëviz, e gjithë struktura merr jetë, me harqet e vazhdueshme dhe modelet gjeometrike tërheqëse. Vizitori zbulon perspekva të reja të cilat i ngjallin një ndjenjë monumentalite, duke sjellë hapësirat e brendshme dhe të jashtme në simbiozë me njëra-tjetrën.

-Komfort

Pavijoni jep ndjesinë e një labirin ose kaosi nga jashtë, por kur hyjmë brenda na paraqitet një botë dualiste. Një anë e errët, e tjetra transparente, sjellin një lojë të gjallë të dritë-hijes, e cila eksplorohet dhe përjetohet në mënyra të ndryshme.

12. Burimet dhe Referencat:

[1] hps://www.serpennegalleries.org/whats-on/ser penne-pavilion-and-summer-houses-2016/ (accessed: 24.10.22)

[2] hps://en.wikipedia.org/wiki/Bjarke_Ingels_Group (accessed: 24.10.22)

[3] Po aty.

[4] hps://www.discoverwalks.com/blog/top-5-factsabout-kensington-gardens/ (accessed: 24.10.22)

[5] hps://arquitecturaviva.com/arcles/bigs-serpen ne-gallery-pavilion (accessed: 7.11.22)

[6] hps://big.dk/#about (accessed: 24.10.22)

[7] hps://arquitecturaviva.com/works/serpenne-pav ilion-2016 (accessed: 24.10.22)

[8] Po aty.

[9] hps://big.dk/#about (accessed: 24.10.22)

[10] Po aty.

120

Interesat: - Gjuhet e huaja

Dëshirat: - Të udhëtoj boten

1. HYRJE – informatat bazike të Projekt dhe Arkitekt:

Pavioni i Serpenne Gallery 2018, I dizajnuar nga Frida Escobedo, i cili bashkon elemente pike të arkitekturës meksikane me referenca lokale në Londër, përmban një oborr të mbyllur nga dy vëllime drejtkëndëshe të ndërtuara nga pllaka çimentoje. Këto pllaka grumbullohen për të formuar një celosi, një lloj muri i zakonshëm për arkitekturën meksikane, i cili është i përshkueshëm, duke lejuar ajrosje dhe pamje nga ana tjetër.[1]

Biografia: Frida Escobedo (lindur 1979) është një arkitekte meksikane. Ajo projekton dhe restauron në mënyrë specifike hapësirat urbane: banesat, qendrat komunitare, objektet e art dhe hotelet. Kur krijon, Escobedo i ilustron veprat e saj brenda një teme të përgjithshme kohore, por jo në një kontekst historik, por më tepër në një kontekst social. Ajo themeloi studion e saj arkitekturore dhe të dizajnit në vin 2006, e cila ndodhet në Mexico City. Escobedo është i njohur për krijimin e veprave të përkohshme dhe ndërvepruese të cilat mund të akomodojnë qëllime të shumëfishta. Escobedo studioi arkitekturë në Universidad Iberoamericana dhe mori një diplomë master në Art, Dizajn dhe Domenin Publik në Shkollën e Diplomuar të Dizajnit të Harvardit. Që nga vi 2007 ajo jep mësim në Universidad Iberoamericana.[2]

Escobedo ne vin 2003, me Alejandro Alarcón, themeloi studion “Perro Rojo”.

Një nga veprat me te njohura është “Casa Negra”[3]

121
Rinesa Haziraj Frida Escobedo Serpenne Pavilion 2018 / Frida Escobedo Pasioni: - Vizami Hobi - Leximi

2. Konteks dhe Lokacioni:

Fakte: Celosia një mur tradicional me fllad, gjithashtu i zakonshëm për arkitekturën meksikane, ishte këtu i përbërë nga një rrjetë pllakash çimentoje që shpërndanin pamjen jashtë në park.[5]

Fakte: Si një nga qytetet kryesore globale në botë, Londra ushtron një ndikim të fortë në arte, argëm, modë, treg dhe financat, arsimin, kujdesin shëndetësor, etj.[4]

Mikro

Makro Analiza
122

3. Qëllimi, Temaka dhe Koncep : 4. Funksioni / Funksionet + Zonimi:

Serpenne Pavilion është një plaormë për Netët e Parkut, ku prakkuesit në fushën e art,arkitekturës, muzikës, filmit, teorisë dhe vallëzimit u ngarkuan të krijojnë vepra të reja, specifike për vendin në përgjigje të dizajnit të Escobedo, duke ofruar mënyra unike për të përjetuar arkitekturën dhe performancën. Ky program seminaresh, shfaqjesh dhe bisedash trajtonte kohën gjeologjike, perandorinë dhe lëvizjet, të frymëzuara nga idetë pas dizajnit të Pavijonit të Escobedo. Paketa dhe Programi Familjar Architecture, i sponsorizuar nga COS, u dha fëmijëve dhe familjeve të tyre mundësinë për të eksploruar Pavijonin Serpenne nga këndvështrime lozonjare dhe origjinale.[5]

Koncep:

Kalimi i ditës.

Dizajni për Paviljonin Serpenne 2018 është një takim i frymëzimeve materiale dhe historike të pandashme nga vetë qyte I Londrës. Eshtë bërë shprehja e kohës në arkitekturë përmes përdorimit shpikës të materialeve të përditshme dhe të formave të thjeshta. Për pavijonin Serpenne, janë shtuar materialet e dritës dhe hijes, reflekmit dhe thyerjes, duke e kthyer ndërtesën në një mekanizëm saha që përshkruan kalimin e ditës.[5]

Serpenne Pavilion përmban një kafene, por gjithashtu pret një program ngjarjesh që përfshijnë arn, arkitekturën, muzikën, filmin dhe kërcimin.[5]

123

Funksioni:

Prerja A-A dhe B-B

124
125
3.Koncepti: 6. Kompozicioni: Gjeometria: 5. Parteri / Dizajni Peizazhor :

3.Koncepti: 7. Konfigurimi:

8. Luksi / Ndriçimi Natyral:

126

3.Koncepti:

9. Struktura, Konstruksioni dhe Tektonika :

Pavijoni Escobedo përbëhet nga një rrjetë pllakash çimentoje që marrin pamje nga parku. Pjesa e lakuar e mbulesës është e mbuluar me panele të pasqyruara dhe një pellg trekëndor të projektuar në tokë që gjurmojnë umin e çasë në plan.

Pavijoni është ndërtuar mbi një pllakë themeli betoni, së cilës i janë shtuar fletë metalike të ankoruara nga të cilat është ankoruar struktura.[6]

Struktura

1. Pllakë betoni; 2. Pllakë guri që nuk rrëshqet; 3. Saldimi; 4. Bulonat strukturorë 2 cm; 5. Fletë çeliku 1 cm e trashë; 6. Tub strukturor metalik; 7.Pllakë betoni të parafabrikuar; 8.Agjent hidroizolues; 9.Plani metalik i salduar dhe i veshur me strukturën kryesore; 10.Rondele;

Tektonik Stereotomik 127

3.Koncepti: 10. Ekspresioni - Simbolika dhe Reagimi Emocional:

Ndërsa dielli lëviz nëpër qiell, ai reflektohet dhe përthyhet në hapësirën e këj pavilioni në mënyrë tëkontrolluar. Ky turne diellor i pavijonit i lejon vizitorët të ndiejnë një vetëdije më të madhe për kohën që ata kalojnë . Një amplitudë e madhe në hapësirën kryesore, përveç orienmit të saj, mundëson sistemimin e mobiljeve për përdorime të ndryshme dhe me cilësi shumë të mirë hapësinore. Në këtë pavion mund të shohim katër lloje aranzhimesh, një kafe,një sallë leximi, punëtori. Kjo tregon humëllojshmërinë e përdorimeve që lejon dizajni i këj pavioni.Falë orienmit të ndërtesës, vendosja e pllakave lejon kalimin përmes dritës në një mënyrë interesante, me një lojë hijesh, duke krijuar gjithashtu një hapësirë të ajrosur, por në të njëjtën kohë të mbrojtur dhe komode për dhomën.Është e rëndësishme të theksohet që për shkak të mënyrëssë ndërmit të jep një ndjenjë lehtësie dhe hapësire.

11. Epilogu personal: 12. Burimet dhe Referencat:

Lëvizja e diellit nëpër qiell, e reflektuar dhe e përthyer nga pishina dhe tavan i pasqyruar, Inkurajon një ndërgjegjësim për kohën e kaluar në përvojën e përbashkët dhe në soditje. Për pavijonin Serpenne, ne shtojmë materialet e dritës dhe hijes, reflekmit dhe thyerjes, duke e kthyer ndërtesën në një orë që përshkruan kalimin e ditës.

1. hps://www.archdaily.com/896135/frida-escobedos -2018-serpenne-pavilion-opens-in-london?ad_ medium=gallery

2. hps://en.wikipedia.org/wiki/Frida_Escobedo

3. hps://www.frac-centre.fr/_en/art-and-architecture -collecon/rub/rubauthors-316.html?authID=433

4. hps://en.wikipedia.org/wiki/London

5. hps://www.serpennegalleries.org/whats-on/ serpenne-pavilion-2018-designed-frida-escobedo/

6. hps://www.behance.net/gallery/81354081/CF_SISTEMAS-DE-CONSTRUCCION-Y-ESTIMACION_RETO-4 _201820

128

Urata Preteni

1. HYRJE – informatat bazike të Projekt dhe Arkitekt:

“CONNECTING MINDS AND CREATING THE FUTURE” – EXPO DUBAI 2020

-Pasione leximi matemaka -Interesa Ar, muzika -Dëshira Arkitektura Udhëmi amanncanovasmaruri

- EXPO 2020 është ekspozitë universale e organizuar në Emiratet e Bashkuara, Dubai (20 Tetor 2020- 10 Prill 2021 ) Pjesëmarrës 192 shtete Hapësirë 1080 ari 24 milion vizitorë

- Në një nga zonat më të gjalla brenda Expo 2020 Dubai, Pavijoni Spanjoll tërheq absolusht vëmendjen e kalimtarëve. - Tema që shtjellon : “Intelegjenca për Jetën”.

PAVIONI është projektuar për të nxitur një diskum reth së ardhmes në të cilën duam të jetojmë dhe afësinë tonë për të ndikuar në të."

PER 6 muaj kanë ardhur 32 kompani, 200 artë për të performuar lidhur me kulturën spanjolle.

Ref (2)

Amman-Cánovas -Maruri

-Arkitekt, emrin e të cilit e bart edhe kompania që ai udhëheq. Njihet për dhjetra punime, por më i rëndësi-

shmi mbetet ai i Pavijonit të Spanjës.

129
Spanish Pavilion at the Universal Expo Dubai 2020 / Amann-Cánovas-Maruri

Fakte:

-Përfshin një sip. prej 5800 m2.

-Pavijoni synon të përcjell ndjenjën e kreavitet dhe kapacitet për të ruajtur jetën dhe dhe diversiten biologjik.

- Përbëhet nga instalime shumëngjyrëshe në forme kubike me panele fotovoltaike per te mbuluar pavionin me energji.

Ref (1)

Tre karakteriska kryesore janë:" Arkitekturë ikonike që thekson lidhjet e Spanjës me botën arabe, instalimet e art qe çojnë në teater dhe një galeri ekspozitash për zhvillim dhe projekte të qëndrueshme për arn, shkencën dhe teknologjinë”.

Fakte:

Ref (1)

2. Konteks dhe Lokacioni: Mikro

130
Pozita globale Pozita ne Azi Pozita në Dubai Pozita ne Emiratet e Bashkuara

3. Qëllimi, Temaka dhe Koncep : 4. Funksioni / Funksionet + Zonimi:

Pavijoni i Spanjës synon të bëhet një shembull i kreavitet inteligjent, për për të bashkuar njerëzit rreth projekteve të qëndrueshme në fushat e shkencës, teknologjisë, prodhimit, arsimit, art, si dhe të shfaq vlerat e popullit francez solidariten dhe kreaviten.

Format konike janë bërë për të rritur rrjedhjen e ajrit dhe si rrjedhojë e modulojnë temperaturën e hapësirë publike duke ofruar kështu një mënyrë eko-miqësore që vizitorët të qëndrojnë githmonë freskët. Poashtu e ka spjeguar edhe procesin e diellosjes përgjatë kodrave i cili figuravisht ngjan me konet e cunguara.

Legjenda:

1.Hyrja

2.Ekspozita 3.Zona e sherbimeve 4.Showroom 5.Zona mulfunksionale 6.Zona vip 7.Banjo

2. 3. 4. 5. 6. 7. 8. Ref (2)

1. 131

Ka 1 çaa

8.Pylli arficial

Bazamane

Funksioni: Zonimi

Fasada veriore

zona e shërbimeve komunikimi verkal oborri I brendshëm ekspozita zona e shërbimeve zona e ndërmjetme zona komunikave zona e ekspozitës

Ref (2)

Diagrami me flluska

Fasada jugore

Fasada lindore

Ref (2)

132

3.Koncepti: 5. Parteri / Dizajni Peizazhor :

zona e gjelbëruar pozita e pavionëve përreth aj spanjoll oborri i jashtëm Hyrja në Expo Dubai

Pamja e pavionit Spanjoll në Expo Dubai

6. Kompozicioni: Gjeometria:

2D 3D 133

Ref.(3)

prej formës së kubit, janë larguar majat dhe si rezultat ka mbetur vetëm trungu I koneve

3.Koncepti: 7. Konfigurimi:

sekuencimi hapësinor Kompozitë

8. Luksi / Ndriçimi Natyral:

Duke u nisur edhe nga vetë koncep i pavionit, forma dhe materiali i koneve që i japin formë aj, nuk janë krejt të rastësishme. Ato janë bërë me qëllim për të ngrohur pavionin nga konet fotovoltaike. Ref (2) Ref (2)

134

9. Struktura, Konstruksioni dhe Tektonika :

Plaske e riciklueshme ETFE Kornizë çeliku

80% e materialit të përdorur është material ETFE (lloj plaske e riciklueshme)

Sistemi struktural

çaa ka 1

Përdhesa Teknik Stereotomik

Ref (4) Ref (3) Ref (3)

135

3.Koncepti: 10. Ekspresioni - Simbolika dhe Reagimi Emocional:

Simbolika:

Pavijoni Spanjoll siguron shumë për të parë e vend për t'u ulur dhe hije. Kjo ofertë është një akt mikpritjeje dhe miqësie. Ndërtesa, pra, është një hapësirë që do të jetë e prekshme dhe miqësore. Simbolika e saj qëndron ne promovimin e kulturave spanjolle, dëshmon poashtu rëndesinë e madhe e gjelbërimit dhe ujit.

Reagimi emocional :

- thjeshtësia - komunikimi - afërsia - natyra ( dielli, ndricimi, uji, gjelbërimi)

11. Epilogu personal:

Duke parë që qëllimi kryesor i paraprin edhe funksionit të Pavijonit, une nuk shoh vend për krië. Në këtë pavijion në fakt kam parë një gërshem ë gjërave kryesore për njeriun: ujin, ajrin, dritën e Diellit, për të vazhduar më pas me kulturën e popullit dhe hapësirat për komunikim me njerëz.

Ekspresioni :

I hapur, komunikav Ref.(5)

12. Burimet dhe Referencat:

1. hps://www.archdaily.com/970396/spanish-pavilion

2.

3.hps://www.expo2020dubai.com/en/understandingexpo/parcipants/country-pavilions/spain

4.

at-the-universal-expo-dubai-2020-amanncanovasmaruri hps://seleconsarts.com/architecture-at-expo-2020 -dubai-spain-pavilion/ hps://omnexus.specialchem.com/selecon-guide/ ethylene-tetrafluoroethylene-ee-plasc

136

Hiking

Being successful Making my parents proud

1. HYRJE – informatat bazike të Projekt dhe Arkitekt:

Ky projekt u projektua posaçërisht si Pavioni Zviceran për Ekspozitën Botërore të Hanoverit në vin 2000. Arkitek kryesor i j ishte Peter Zumthor, megjithëse larmia e çështjeve që u morën parasysh në zbamin e j,kishte shumë fusha profesionale të partnerëve të ndryshëm.Karoline Gruber ishte përgjegjëse për të kombinuar të gjitha aspektet e projekt për të krijuar të gjithë.[1]

I trajnuar si kabinet përpara se të kthehej në arkitekturë, ai studioi në Kunstgewerbeschule në Bazel dhe në Instun Pra në Nju Jork. Ai është një kabinetbërës, projektues dhe arkitekt. Në vin 1979 u vendos në rajonin zviceran të Graubünden .Zumthor karakterizohet nga kushmi i kohës kur harton dhe zgjedh projektet e j për një qëllim arsk në vend të aj ekonomik; pranoni një projekt vetëm sipas afinitet.Në veprat e j mund të shihet një kohëzgjatje, një mjeshtëri rigoroze, duke nxjerrë në pah drurin për të cilin ai ka njohuri të gjera si kabine , një përcakm të fortë hapësinor dhe një menaxhim të gjerë të kombinimit të dritës dhe errësirës.[1]

Vdiq më 26 prill 1943 ( 79 vjeç) Basel ( Zvicër )

Arkitekt Çmimet Çmimi i Arkitekturës Carlsberg (1998)Praemium Imperiale (2008)Çmimi Pritzker (2009)Medalja Mbretërore e Artë

137
Peter Zumthor
UBT-ARK-21-22
Swiss Sound Pavilion / Peter Zumthor, Germany, 2000

2. Konteks dhe Lokacioni: Makro

Fakte:

I gjithë druri i përdorur për pavijon është me origjinë zvicerane.

Fakte:

Projek filloi në kuadër të Ekspozitës Universale në Hannover, e cila u zhvillua në vin 2000. Ai u mbajt në terrenin e panairit në Hannover, në rrethin e Kronsberg.

Vendi i Expo-së ndodhej në 1,000,000 metra katrorë origjinale të panairit të Hanoverit;një hapësirë shtesë prej 600,000 m² u krijua gjithashtu si një seksion i sapohapur në terren.Pavijoni Sound Box ishte vendosur në juglindje të sit të ekspozitës. Rruga kryesore është nënë jugperëndim të pavijonit, megjithatë njerëzit mund të hynin në ndërtesë nga çdo drejm.[1]

Mikro

138

3. Qëllimi, Temaka dhe Koncep : 4. Funksioni / Funksionet + Zonimi:

Ideja kryesore e dizajnit ishte të ofronte diçka specifike dhe të dobishme për vizitorët e Expo, të cilët do të ishin të lodhur nga studimi i të gjitha informacioneve teorike dhe virtuale në pavionet e tjera kombëtare. , një vend që ofron ushqime tradicionale zvicerane për vizitorët e etur ose të uritur, me një atmosferë të relaksuar dhe një muzikë live që vërshon përreth."Frymëzimi u nxit nga Gesamtkunstwerk, një alë gjermane që përkthehet në anglisht si një "vepër totale ar", duke kombinuar arn interpretues, muzikën, dramën dhe dekorin për të krijuar një mjedis të plotë ndijor.Sound Box mbushet vazhdimisht me nguj të rinj dhe është plotësisht i hapur ndaj elementeve, duke lejuar pamjet, erërat dhe ngujt nga jashtë të përshkojnë hapësirën. Tingulli mbush boshllëqet e krijuara nga grumbujt e drurit dhe krijon përvoja unike tonale në çdo cep të ndërtesës dhe në këtë mënyrë, ngulli kontribuon kryesisht në krijimin e 'hapësirës.[2]

Sound Box është një seri “muresh” prej druri që formojnë një lloj labirin të depërtueshëm dhe të hapur nga të gjitha anët. Për kohëzgjatjen e sallës së ekspozitës bëhet një lloj tabele ngëllimi. Aroma e pyllit dhe zhurma e kërcitjes së drurit që thahen, meloditë që luajnë një grup muzikantësh dhe zërat e solistëve që improvizojnë dhe reagojnë ndaj ndryshimeve në muzikë shtohen. Muzikantët dhe këngëtarët do të alternojnë çdo ditë dhe çdo javë për të ndriçuar pavijonin me zë. Është një ndryshim i vazhdueshëm. Muzika ndryshon ritmin, melodinë, dinamikën dhe mbrin në përputhje me rregullat e kompozimit për t'iu përshtatur këngëtarëve. Në këtë mënyrë pavijoni bëhet një ku zanore, një instrument i madh nëpër të cilin mund të ecësh.[2]

139

Funksioni:

Prerja A-A

Lidhjet ndërthurin planin e çasë

Ky projekt u projektua posaçërisht si pavijon zviceran për World Expo Hannover në 2000.Duke qenë një pavijon për një ekspozitë, i gjithë projek synonte të tregonte aspekte të ndryshme të kulturës zvicerane. Ai mori pjesë jo vetëm në materialet zvicerane, por edhe në muzikë, ushqim, ndriçim dhe kostume për të krijuar një performancë që zgja nga dita e parë e ekspozitës deri në të fundit. Gjithçka në pavijon kishte të bënte me Zvicrën dhe vizitorët patën rasn ta zbulonin teksa kalonin pranë j.Për ata vizitorë që duan të dinë më shumë rreth flamurit, ata mund ta bëjnë atë përmes librit Sound Box, një alor i vogël i ilustruar i xhepit që përmban mbi 900 alë kyçe, gjithçka që duhet të dini për Sound Box dhe përfaqësimin e j brenda: emrat , biografitë, materialet, ndërmet, produktet, vendet e origjinës, idetë, konceptet, burimet letrare dhe më shumë.[3]

Prerja B-B

140
3.Koncepti: 5. Parteri / Dizajni Peizazhor : 6. Kompozicioni: Gjeometria: 99 pirgje 50 për të hyrë 50 mënyra për të dalë Niveli i themeleve 141

3.Koncepti: 7. Konfigurimi:

8. Luksi / Ndriçimi Natyral:

Brenda pavijonit ka edhe dritëhije. Dritat e varura të tavanit vizatojnë dizajne në formën e shkronjave në trarët e murit. Kjo dritë e projektuar nxjerr në pah detajet e vrazhdësisë së drurit. Këta projektorë hedhin ndonjëherë dritë arficiale për të krijuar hapësira inme, me fraza ose alë të shkurtra; dhe nganjëherë hapësira të mëdha ku paragrafët e tekst shfaqen si banderola në hapësirë. Vëllimet e shkruara të dritës tregojnë rrugën e vizitorëve dhe i ojnë ata të qëndrojnë. Vizitorit nuk i kërkohet t'i lexojë këto alë, por drita pa dashje tërheq vëmendjen e syrit dhe inkurajon leximin.[3]

142

3.Koncepti: 9. Struktura, Konstruksioni dhe Tektonika :

Trarët që formojnë muret janë të gjitha me të njëjtën madhësi. Ato ndahen dhe grumbullohen me drurë të tjerë si një tharëse druri në alë. Muret janë të lidhura me shufra tensioni dhe susta çeliku. Një seri tjetër trarësh, të vendosura pingul me nivelin e kuvertës, që mbulojnë pjesën e brendshme të tendës dhe ngurtësojnë monmin. E gjithë struktura funksionon vetëm nga ngjeshja dhe fërkimi i trarëve të shkaktuar nga grumbullimi i tyre. Lidhja me rripa dhe susta çeliku lejon ndryshimin e dimensioneve të drurit të thahet dhe është në përputhje me natyrën e përkohshme të ndërtesës.Asnjë vidë, gozhdë, kapëse, gjilpërë, vrimë apo pikë zam nuk u përdor për të filluar punën e projekt. [4]

143

3.Koncepti: 10. Ekspresioni - Simbolika dhe Reagimi Emocional:

Kjo nuk është vetëm një rrymë arkitekturore, por edhe filozofike që merr parasysh përvojën dhe emocionet. Kur viziton një vepër, ajo që i bie më shumë përshtypje vizitorit nuk është përmbushja e saktë e veprës me funksionin për të cilin është krijuar, por ndjenjat që ajo transmeton nëpërmjet dritës, zërit, aromave etj. Këta janë faktorët që e bëjnë një person të kujtohet me rregullim të veçantë të një vendi ose hapësire.[4]

11. Epilogu personal: 12. Burimet dhe Referencat: [1]hps://en.wikiarquitectura.com/building/swisssound-pavilion/

Kjo ndërtesë mendoj se veçohet shumë nga ndërtesat e tjera për mënyrën e planimetrisë, konstruksionit dhe funksionit të saj. Një gjë që konsideroj jo shumë të menduar është materiali I këj paviljoni. Druri, nuk cilësohet si material shumë mbrojtës kundër reshjeve atmosferike, një gjë tjetër është se konsiderohet edhe si përçues I energjisë elektrike nëse është i lagur.

[2]hps://en.wikipedia.org/wiki/Peter_Zumthor

[3]hp://mranksdisplaypracces.blogspot.com/ 2015/03/sound-box-swiss-pavillion-athannover.html

[4]hps://de-architects.com/Swiss-Sound-Box

144
Prishnë, 2022

ANATOMIA E PAVIJONEV

Turn static files into dynamic content formats.

Create a flipbook
Issuu converts static files into: digital portfolios, online yearbooks, online catalogs, digital photo albums and more. Sign up and create your flipbook.
PRECEDENT - The ANATOMY of PAVILIONS: Research and Analyse_Design Studio 1b_2022-23 by Banush Shyqeriu - Issuu