Portfolio 2025

Page 1


A Y L I N S O L O R Z A N O

SAMPLE OF WORK | 2019 - present

OVERVIEW

RH | RENDERING SPECIALIST

- Bespoke Projects (Cinematic / Animated Renderings)

- Gallery Projects

RH | DESIGN ASSISTANT

CAMPBELL DESIGN: ARCHITECTURE & INTERIORS | INTERN/ JUNIOR DESIGNER

BROOKHILL HOTEL | SENIOR HOSPITALITY PROJECT

RH | RENDERING SPECIALIST

BESPOKE PROJECT | DIAMOND RESIDENCY | 2024

RENDERING COMPLETION TIME: 6-7 WEEKS

TOTAL RENDERINGS: 11

PROGRAMS USED: AUTOCAD, SKETCHUP, V-RAY, ADOBE PHOTOSHOP, ADOBE AFTER EFFECTS

PARTNERS: BESPOKE LEAD DESIGNER, ASSISTANT DESIGNER, PROJECT COORDINATOR, VP. OF RH INTERIOR DESIGN

D. DIAMOND CINEMATIC RENDERING

THE FOLLOWING IS ONLY INTENTED TO SHOWCASE RENDERING CAPABILITIES UNDER RH, INCLUDING CONCEPTUAL RENDERING PROCESS, DEVELOPMENT, AND FINAL PRODUCT

RH | RENDERING SPECIALIST

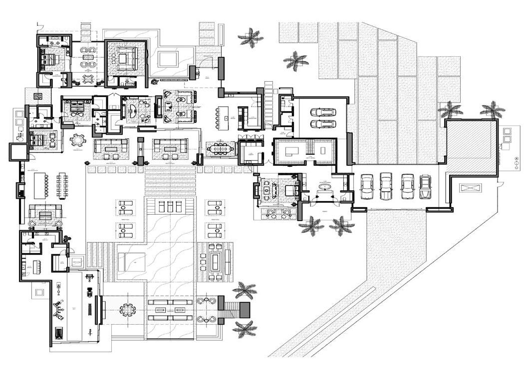
DIAMOND RESIDENCY - NAPLES, FL | ARCHITECTURE & ENVIRONMENT

TO HIGHLIGHT THE RELATIONSHIP BETWEEN ENVIRONMENT, ARCHITECTURE, AND DESIGN, A BIRD’S-EYE VIEW WAS ESSENTIAL FOR THIS NAPLES, FLORIDA PROJECT. THE RENDERED OUTDOOR VIEWS EMPHASIZE THE HOME’S INTEGRATION WITH ITS SURROUNDINGS.

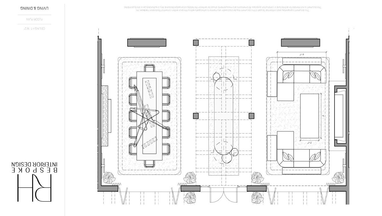
RH | RENDERING SPECIALIST

DIAMOND RESIDENCY - NAPLES, FL | INTERIORS

THE PROJECT FEATURES A BLEND OF WARM TONES SURROUNDED BY MODERN ARCHITECTURAL ELEMENTS TO GIVE A MASCULINE YET COMFORTING, SPACE TO ENTERTAIN OR RELAX IN.

RH | RENDERING SPECIALIST

DIAMOND RESIDENCY - NAPLES, FL | OFFICE SPACE - EXAMPLE OF DESIGN PROCESS

CUSTOM WALL ITERATIONS:

FINAL OFFICE DESIGN:

FINAL ARCHITECTURE:

INSTALLATION PHOTO:

RH | RENDERING SPECIALIST

DIAMOND RESIDENCY - NAPLES, FL | OUTDOOR RENDERINGS & INSTALLATION PHOTOS:

RH | RENDERING SPECIALIST

BESPOKE PROJECT | LACOB RESIDENCY | 2024

RENDERING COMPLETION TIME: 5 WEEKS

TOTAL RENDERINGS: 6

PROGRAMS USED: SKETCHUP, V-RAY, ADOBE PHOTOSHOP, ADOBE AFTER EFFECTS

PARTNERS: BESPOKE LEAD DESIGNERS, PROJECT COORDINATOR, + RENDERING SPECIALIST COLLABORATOR (CINEMATIC PORTION)

THE FOLLOWING IS ONLY INTENTED TO SHOWCASE RENDERING CAPABILITIES UNDER RH, INCLUDING CONCEPTUAL RENDERING PROCESS, DEVELOPMENT, AND FINAL PRODUCT

N. LACOB CINEMATIC RENDERING

RH | RENDERING SPECIALIST

N. LACOB - WOODSIDE, CA

INFLUENCED BY TRADITIONAL ITALIAN ARCHITECTURE, AS SOON AS YOU STEP THROUGH THE FRONT DOOR, THE FOYER WELCOMES YOU WITH RICH DARK WOOD ACCENTS, TEXTURED TRAVERTINE COLUMNS, LIMESTONE FLOORS, AND HAND-PLASTERED WALLS AND CEILINGS.

RH | RENDERING SPECIALIST

N. LACOB - WOODSIDE, CA

STAPLE PIECES BRING THIS CALIFORNIA HOME TO LIFE WITH LIVELY PATTERNS, COLOR, AND MOVEMENT THROUGH FINISHES, FURNITURE AND ART CURRATED FOR THE CLIENT’S TASTE. THIS UNIQUE PROJECT FEATURES CUSTOM PIECES FROM RH, FENDI, BOCCI, BLACKMAN CRUZ, AND ARTHUR VALLIN.

RH | RENDERING SPECIALIST

BESPOKE PROJECT | TOWNS RESIDENCY | 2024

RENDERING COMPLETION TIME: 4-5 WEEKS

TOTAL RENDERINGS: 6

PROGRAMS USED: SKETCHUP, V-RAY, ADOBE PHOTOSHOP, ADOBE AFTER EFFECTS

THE FOLLOWING IS INTENTED TO SHOWCASE RENDERING CAPABILITIES UNDER RH, INCLUDING CONCEPTUAL RENDERING PROCESS, DEVELOPMENT, AND FINAL PRODUCT

RH | RENDERING SPECIALIST

TOWNS

RESIDENCY - HIDDEN HILLS, CA | JULY 2024

FORMAL LIVING ROOM ARCHITECTURE

RH | RENDERING SPECIALIST

TOWNS

RESIDENCY - HIDDEN

HILLS,

CA | JULY 2024

FORMAL LIVING ROOM FURNISHED

RH | RENDERING SPECIALIST

TOWNS RESIDENCY - HIDDEN HILLS, CA

| JULY 2024

FORMAL DINING ROOM ARCHITECTURE

RH | RENDERING SPECIALIST

TOWNS RESIDENCY

- HIDDEN

HILLS,

CA | JULY 2024

FORMAL DINING ROOM FURNISHED

RH | RENDERING SPECIALIST

SAMPLES OF OTHER RH PROJECTS TO SHOWCASE VARIETY OF DESIGN STYLES INFLUENCED BY ARCHITECTURE & LOCATION

RENDERING COMPLETION TIME: AVERAGE OF 1 RENDERING PER 3-4 DAYS PROGRAMS USED: SKETCHUP, V-RAY, ADOBE PHOTOSHOP

THE FOLLOWING IS INTENTED TO SHOWCASE RENDERING CAPABILITIES UNDER RH, INCLUDING CONCEPTUAL RENDERING PROCESS, DEVELOPMENT, AND FINAL PRODUCT

RH | RENDERING SPECIALIST

VACHON RESIDENCE - MANSONVILLE, QC | 2024

LIVING ROOM

RH | RENDERING SPECIALIST

SCHIANO

RESIDENCE - BOCA RATON, FL | 2024

OUTDOOR LIVING

RH | RENDERING SPECIALIST

WOODS RESIDENCE - ETOBICOKE, ON | 2024

LIVING ROOM

RH | RENDERING SPECIALIST

IVY RESIDENCE - SAG HARBOR, NY | 2024

PRIMARY BEDROOM

RH | RENDERING SPECIALIST

LEEDS RESIDENCE | 2023

BOYS BUNKROOM

RH | RENDERING SPECIALIST

E. MALIEVSKIA - IBIZA, SPAIN | 2023

FORMAL LIVING ROOM

RH | RENDERING SPECIALIST

F. SOUZA - LAKEWOOD RANCH, FL | 2023

FORMAL LIVING ROOM

RH | RENDERING SPECIALIST

HIGBEA RESIDENCE - TURKS & CAICOS | 2024

OUTDOOR ENTERTAINMENT

RH | RENDERING SPECIALIST

A. VON FURSTENBERG RESIDENCE | 2022

KITCHEN UPLIFT FEATURING WATERWORKS

RH | DESIGN ASSISTANT

CHARLOTTE GALLERY SAMPLE OF WORK : C. MARTIN 2021

THE FOLLOWING IS INTENTED TO SHOWCASE RENDERING CAPABILITIES UNDER RH, INCLUDING CONCEPTUAL RENDERING PROCESS, DEVELOPMENT, AND FINAL PRODUCT

RH | DESIGN ASSISTANT

MARTIN RESIDENCE | INITIAL SITE VISIT/ FIELD VERIFICATION

First phase: assisting in any site visits to gather acurate architectural information of the home & confirm exsisting construction documents

SITE VISIT

RH | DESIGN ASSISTANT

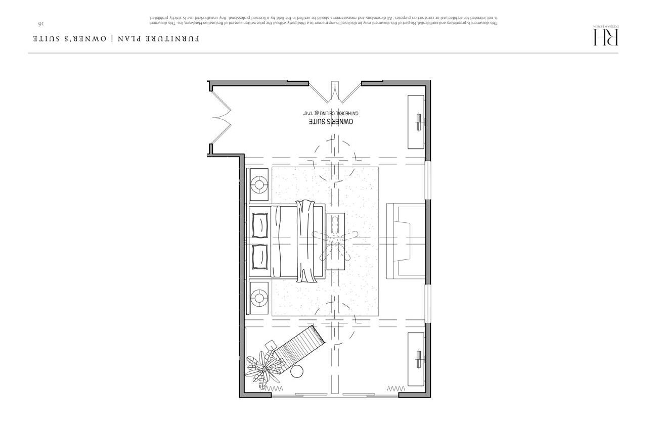
MARTIN RESIDENCE | PLAN & ELEVATIONS DEVELOPMENT

Responsible for creating and/or importing floor plans with the company’s design standards for space planning purposes, to be used by Designer. Elevations were produced in AutoCAD.

FIRST FLOOR FURNITURE PLAN

RH | DESIGN ASSISTANT

MARTIN RESIDENCE | PRESENTATION SAMPLE

Responsible for creating presentations implementing project palette, furniture plan, elevations, and moodboard:

PRESENTATIONS USING COMPANY STANDARDS

RH | DESIGN ASSISTANT

MARTIN RESIDENCE | INSTALLATION

ELEVATIONS & INSTALLATION PHOTO

CAMPBELL DESIGN

INTERN/ JR. DESIGNER SAMPLE OF WORK

• DESCRIPTION OF WORK & OVERVIEW

• DENVER FIRE DEPARTMENT: KITCHEN PLAN & CASEWORK

• VILLAGE GLEN CONDOS: FLOOR PLANS

• VILLAGE GLEN CONDOS: EXTERIOR ELEVATIONS & INTERIOR SECTION

THE FOLLOWING IS INTENTED TO SHOWCASE TECHNICAL CAPABILITIES IN COMMERCIAL SETTING, INCLUDING CONCEPTUAL DESIGN PROCESS & DEVELOPMENT OF TECHNICAL DRAWINGS.

CAMPBELL DESIGN | INTERN/ JUNIOR DESIGNER

DESCRIPTION OF WORK & OVERVIEW:

During my internship at Campbell Design, I gained the most technical experience in construction documents including, but not limited to: fixing redlines provided by the architect, working with X-Ref files, exterior elevations, casework elevations, space planning, floor plans, door schedules, materials and finishes schedules, along with administrative tasks such as attending client meetings, contacting sales representatives and other third parties. Once my 6-week internship was completed, I was hired by the owners (my senior project mentors: Julia and Ray Campbell) to continue working full-time, until I had to return to school for my fall semester. In addition, I returned for one week during my winter break at the end of the year to help with on-going projects.

SAMPLE OF WORK - PROPERTY OF

CAMPBELL DESIGN*

Reflected Ceiling Plan for the Denver Fire Department

Tasks:

• fix RCP gridlines (ceiling tiles)

• evenly distribute lighting fixtures

Plans and elevations not shown to scale in portfolio*

Adjacency Diagram for Charlotte Cosmetology School
Field Verification for Synergy Project (Shell Building)

CAMPBELL DESIGN | INTERN/ JUNIOR DESIGNER

DENVER FIRE DEPARTMENT | KITCHEN PLAN & CASEWORK ELEVATIONS

ENLARGED KITCHEN PLAN

Kitchen plans were given in order to complete case work elevations. Other tasks included: tags, dimensions and annotations on enlarged kitchen plan.

Plans and elevations not shown to scale in portfolio*

SAMPLE

OF WORK - PROPERTY OF CAMPBELL DESIGN*

CAMPBELL DESIGN | INTERN/ JUNIOR DESIGNER

VILLAGE GLEN CONDOS | REVISED FLOOR PLANS

After completing site visit, exsisting plans had to be revised for future townhomes. Backyard patio and dimensions were added to new drawings, uncluding plans, elevations, and section cuts.

Plans and elevations not shown to scale in portfolio*

SAMPLE OF WORK - PROPERTY OF CAMPBELL DESIGN*

CAMPBELL DESIGN | INTERN/ JUNIOR DESIGNER

VILLAGE GLEN CONDOS | REVISED FLOOR PLANS

Existing elevations were also updated to include the new dimensions and peaks of roof once field verification was completed.

Plans and elevations not shown to scale in portfolio*

SAMPLE OF WORK - PROPERTY OF CAMPBELL DESIGN*

BROOKHILL HOTEL

SENIOR HOSPITALITY PROJECT | APPALACHIAN STATE UNIVERSITY | SPRING 2020

• INTRODUCTION & CONCEPT DEVELOPMENT

• SPACE PLANNING & PROGRAMMING (AUTOCAD)

• REVIT RENDERINGS

• MENTORS: ID PROFESSOR CHELSEA H., JULIA CAMPBELL (RID) & ARCHITECT RAY CAMPBELL

• FULL PROJECT HERE

BROOKHILL HOTEL

SENIOR HOSPITALITY PROJECT | CONCEPT INTRODUCTION

BROOKHILL HOTEL

SENIOR HOSPITALITY PROJECT | SCHEMATIC PLANNING & DEVELOPMENT

BROOKHILL HOTEL

SENIOR HOSPITALITY PROJECT | PROGRAMING & FLOOR PLANS

BROOKHILL HOTEL

SENIOR HOSPITALITY PROJECT | SCHEMATIC PLANNING & DEVELOPMENT

BROOKHILL HOTEL

SENIOR HOSPITALITY PROJECT | ROOM RENDERINGS & DESCRIPTIONS (REVIT & AUTOCAD)

AYLIN SOLORZANO

Turn static files into dynamic content formats.

Create a flipbook
Issuu converts static files into: digital portfolios, online yearbooks, online catalogs, digital photo albums and more. Sign up and create your flipbook.