L-Ghenba Court - Attard Bros Properties

Page 1


Pre-Construction prices directly from developer

1 Maisonette • 3 Apartments • 1 Penthouse Commencement of project July 2024. Completion of Project : September 2025.

L-Għenba Court, located in Attard, is a new development in a serene village known for its tranquility and abundance of amenities. This property is perfect for individuals or families seeking a peaceful environment while remaining conveniently close to Malta's center. Click Here for location

Building elevation

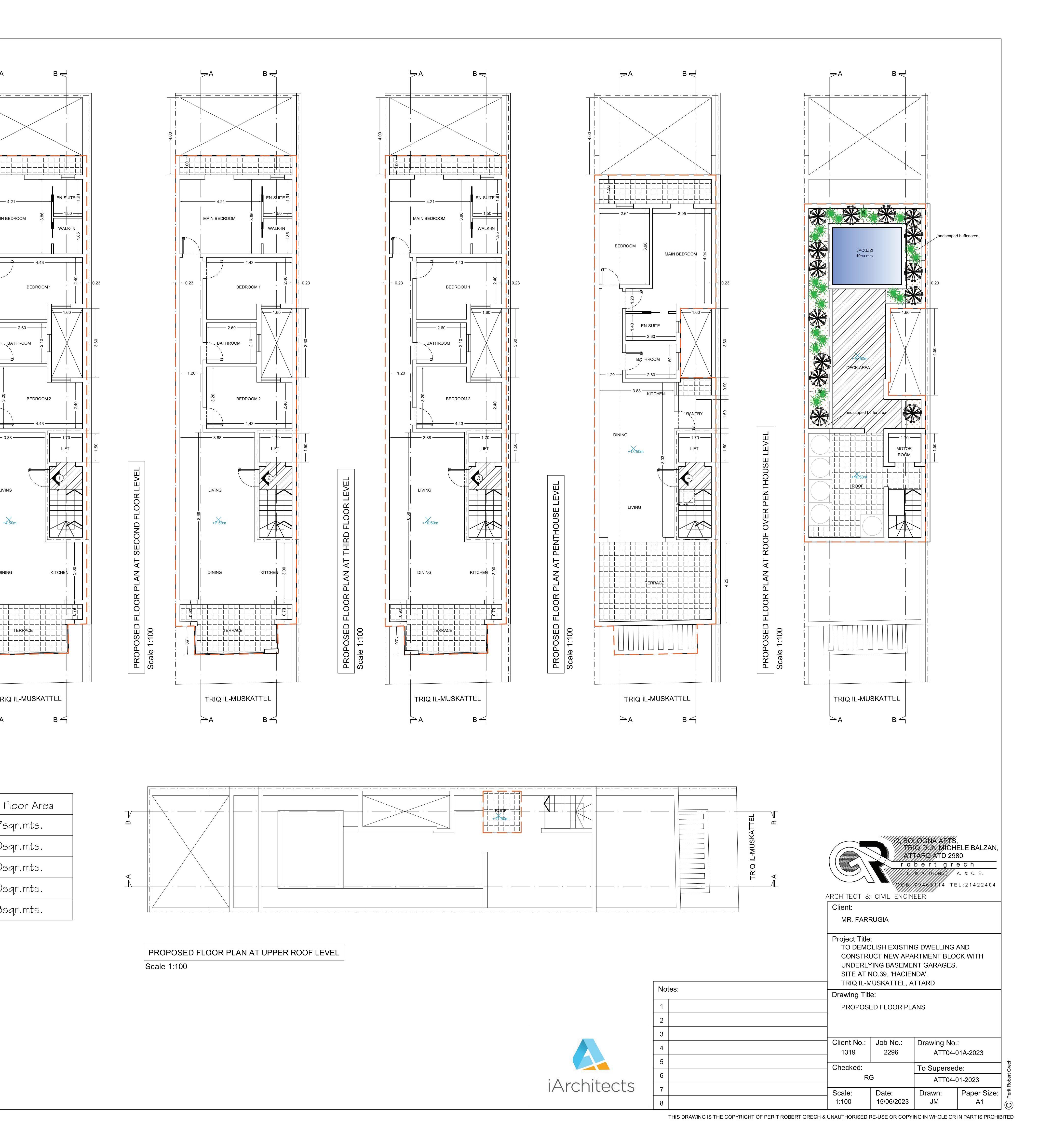
Penthouse

Through elevation design, we meticulously choose our materials, textures, windows, and details to shape our buildings' identity, leaving a lasting impression on the landscape and those who decide to live in them. SOLD SOLD SOLD SOLD

Third Floor

Second Floor

First Floor

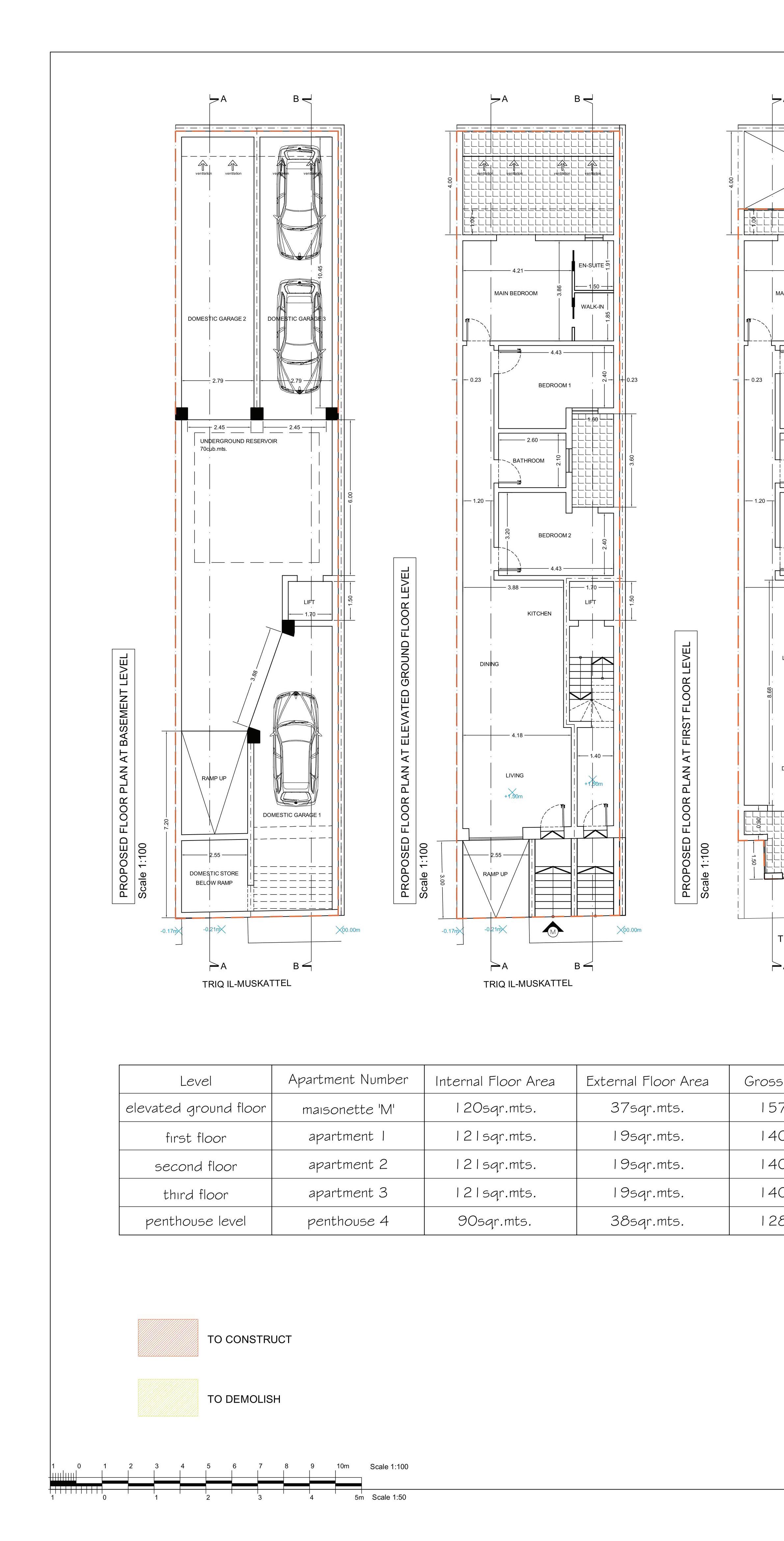
Ground Floor

Property Features

• High Quality building materials

• Designer Hardstone Facade

• Project manager on site from commencement

• High quality Lift

• Selection of high quality designer tiles

• Professional electricity plans given to clients

• High quality plumbing and electricity materials

• High quality energy efficient double glazed apertures

Logo

0.5mm spacing

The name " L-Għenba Court" is not merely a label but a deliberate choice steeped in significance. The word " Għenba" translates to "Grape" in Maltese, a direct reference to the cluster of grapes prominently featured in the logo.

This choice of name is a tribute to Muskatell Street, whose name itself has etymological ties to Muscat grapes, a variety renowned for their aromatic qualities and deep connection to winemaking traditions.

The logo's font is another distinctive feature, with its elegant curls and swirls. These design elements are inspired by the small vines of grape plants, further enhancing the logo's connection to its origins. The curling lines mimic the tendrils of a grapevine, adding a touch of

Colour Scheme

Maisonette 1

€400,000

Total Area - 157 sqm

Internal Area - 120 sqm

External Area - 37 sqm

Ground Floor

Apartment 1

SOLD

Total Area - 140 sqm

Internal Area - 121 sqm

External Area - 19 sqm

Apartment 1

Apartment 2

SOLD

Total Area - 140 sqm

Internal Area - 121 sqm

External Area - 19 sqm

Apartment 2

Apartment 3

SOLD

Total Area - 140 sqm

Internal Area - 121 sqm

External Area - 19 sqm

Apartment 3

Penthouse 1

Total Area - 128 sqm

Internal Area - 90 sqm

External Area - 38 sqm Penthouse 1

Basement Garages

€95,000 SOLD Garage 1

2 Car & Store 1- Basement Level Garage 2

2 Car - Basement Level

€85,000 Garage 3

2 Car - Basement Level

Maisonette & Apartments are sold finished excluding internal

Click here or scan code for

https://shorturl.at/pqT47

Attard Bros Properties has been founded on trust and respect. Our unwavering commitment to quality has earned us a steadfast reputation.

Our vision is to build a better tomorrow for our clients, enhance residential communities, and uphold responsible practices that benefit both the environment and society.

Our commitment to excellence encompasses a meticulous approach to every aspect of property development. We pay keen attention to detail, implementing shading solutions for energy efficiency, adhering to strict health and safety regulations to protect our workforce and future residents.

Respecting the environment by carefully selecting sustainable building materials, finishing products, and incorporating proper ventilation systems ensures the highest quality homes while minimizing our environmental footprint, prioritizing the well-being of both our residents and the neighboring community.

Since 1977, we have been making our mark and developed long lasting relationships with our business partners based on mutual respect and trust. This strong network has enabled us to grow and achieve so much in a relatively short period of time. Our philosophy has always been to consistently promote quality, in what we do and also the way we do it. It has earned us the reputation we enjoy today. Our major strength lies in our people. It is they who, on a day to day basis, uphold our customer focus and quality standards. We look forward to the future with optimism and we intend to continue investing in the latest technology and to constantly innovate so as to offer superior solutions and greater value to our customers. Building a better tomorrow for our customers, employees, communities, shareholders and the planet is guiding our production and service practices throughout.

Michael Attard, Chairman

The artistic impressions are to present a sample layout for marketing purposes only and in no way shall be interpreted as a binding requirement to be provided by the seller. Actual materials and finishes shall be as per agreement in the Promise of Sale.

Turn static files into dynamic content formats.

Create a flipbook
Issuu converts static files into: digital portfolios, online yearbooks, online catalogs, digital photo albums and more. Sign up and create your flipbook.