Portfólio de Arquitetura e Urbanismo - Arthur Pedrosa Rocha

Page 1


TRAJETÓRIA ACADÊMICA

Mestrado em Arquitetura e Urbanismo

Área: Paisagem e Ambiente/Sistemas da Paisagem (2025-) Universidade de São Paulo

Especialização em Reabilitação Ambiental Sustentável Arquitetônica e Urbanística (2023-2024)

Universidade de Brasília

Graduação em Arquitetura e Urbanismo (2017-2023)

Universidade Federal do Piauí

Ensino Médio (2014-2016)

Colégio Sagrado Coração de Jesus

AFINIDADES TEMÁTICAS

Planejamento e projeto ecológico da paisagem; Urbanismo sensível às águas; Infraestruturas urbanas; Infraestrutura verde; Desenvolvimento urbano sustentável; Cidade e Natureza; Águas urbanas.

Arthur Pedrosa Rocha

Arquiteto e Urbanista CAU Nº 00A2977842

(86) 99801 4616

arthurpedrosa4418@gmail.com

@arthurpedrosa_ Lattes ID: 7400003790505507

EXPERIÊNCIAS PROFISSIONAIS/VOLUNTARIADOS

Auxiliar de Arquitetura (2024-2025)

Superintendência Municipal de Transportes e Trânsito

Atividades: Análise de projetos arquitetônicos e urbanísticos em fase de licenciamento, estudos de impacto de vizinhança (EIV) e estudos de impacto no tráfego (EIT).

Colaborador técnico (2024-2025)

Ecocriar Engenharia

Atividades: Desenvolvimento de análises urbanas e socioeconômicas para Estudos Prévios de Impacto de Vizinhança (EPIV).

Voluntário (2024-Atual)

Projeto PerifaPAC - Nordeste

Atividades: Representar o estado do Piauí no projeto e garantir o poder de voz das comunidades mais afetadas pelas mudanças climáticas no estado, incidindo sobre o eixo “Cidades Sustentáveis e Resilientes” do PAC.

Voluntário (2023-Atual)

Coletivo Ambiental Riacho Itararé

EXPERIÊNCIAS DIDÁTICAS

Curso de curta-duração ministrado (2024)

QGis para iniciantes: Produção e análise de mapas georreferenciados - Uninovafapi

Curso de curta-duração ministrado (2023)

QGis para iniciantes: Produção e análise de mapas georreferenciados - UFPI

Monitor bolsista (2023)

Projeto de Arquitetura II

- Orientação: Drº Marcelo Furtini.

Monitor voluntário (2022)

Planejamento Urbano e Regional I - Orientação: Drº Anna Karina de Alencar.

Monitor voluntário (2021) Planejamento Urbano e Regional I - Orientação: Drº Anna Karina de Alencar.

PESQUISA E EXTENSÃO

Laboratório Espaços Urbanos (2021-Atual)

Natureza: Pesquisa e extensão

Atividades: Estudos relacionados ao Planejamento Urbano e Ambiental, Direito à Cidade, Urbanização de Assentamentos Precários, Urbanismo Sensível às Águas, entre outros.

Grupo de discussão e pesquisa sobre sustentabilidade, inovação e cidades inteligentes (2023-2024)

Natureza: Extensão

Atividades: Discussão sobre temáticas internas ao cenário urbano e envolvendo diversos atores sociais e de campos multidisciplinares de conhecimento.

Oficina sobre acesso à água e saneamento em comunidades de Teresina-PI (2022)

Natureza: Extensão

Atividades: Colaboração na relatoria e sistematização de dados recebidos pelo público presente na oficina promovida pela organização Habitat para Humanidade.

Iniciação Científica (2021-2022)

Inglês

Espanhol

Francês IDIOMAS

SOFTWARES

AutoCAD

QGis

SketchUp

InDesign

Atividades: Captação de recursos e fomento de iniciativas pautadas em proteger, recuperar e incetivar o uso socioecológico do sistema verde e azul da sub-bacia hidrográfica do Riacho Itararé.

Voluntário (2023-2024)

É de Sol Compostagem

Atividades: Colaboração em trabalhos desenvolvidos pela startup, tais como oficinas de saneamento ecológico, processo de compostagem, bem como design de materiais de divulgação nas redes sociais.

Estagiário (2022-2023)

Tribunal de Contas do Estado do Piauí

Atividades: Desenvolvimento de projetos arquitetônicos e colaboração na produção de relatórios de auditoria do Tribunal nos temas de infraestrutura, desenvolvimento urbano e acesso aos serviços urbanos.

Estagiário (2021-2022)

Superintendência Municipal de Transportes e Trânsito

Atividades: Análise de projetos arquitetônicos e urbanísticos em fase de licenciamento, estudos de impacto de vizinhança (EIV) e estudos de impacto no tráfego (EIT).

Monitor voluntário (2020)

Projeto de Arquitetura III - Orientação: Drº Ana Rosa Feitosa.

Monitor voluntário (2018)

Oficina de Plástica - Orientação: Drº Ana Rosa Feitosa.

QUALIFICAÇÕES COMPLEMENTARES

Geotecnologias aplicadas à análise da fragilidade ambiental das paisagens (2024)

Instituição promotora: Universidade Federal do Piauí

Infraestrutura Verde - Soluções Baseadas na Natureza para a Gestão de Águas Urbanas (2022)

Instituição promotora: Universidade Livre Oswaldo Cruz

Dimensionamento de Sistemas Sustentáveis para projetos de Arquitetura e Engenharia (2020)

Instituição promotora: Casa Porã Arquitetura & Design

Natureza: Pesquisa

Atividade: Análise da importância dada aos riachos urbanos nos planos diretores de Teresina entre 2006 e 2021.

Mais Portfólio (2018-2020)

Natureza: Extensão

Atividades: Tornar as produções desenvolvidas no curso de Arquitetura e Urbanismo da UFPI acessíveis à comunidade.

RECONHECIMENTO

Prêmio Geovany Jesse Silva (2024) Melhor trabalho de conclusão de curso da pós-graduação REABILITA - PPG/FAUUnB.

2º lugar (2024)

Competição “CLIMATHON” organizada pelo Centro de Eficiência em Sustentabilidade Urbana de Teresina.

Láurea Universitária (2023) Turma 2022.2 do curso de Arquitetura e Urbanismo da Universidade Federal do Piauí.

ARTIGOS CIENTÍFICOS

Artigo (2025) - Revista Projetar - Projeto e Percepção do Ambiente

A infraestrutura verde como suporte ao planejamento urbano sensível às águas na escala do bairro em Teresina-PI Coautoria: Karenina Cardoso Matos

Artigo (2025) - Congresso Luso-Brasileiro para o Planejamento Urbano, Regional, Integrado e Sustentável/PLURIS

A ocupação de áreas de fragilidade ambiental por favelas e comunidades urbanas em Teresina-PI Coautoria: Ana Lúcia Ribeiro Camillo da Silveira

Artigo (2024) - Congresso Técnico Científico da Engenharia e Agronomia/CONTECC Significância dos impactos acústicos ambientais urbanos: metodologia para um estudo de caso em Teresina-PI Coautoria: Carolina Penteado e Guilherme Rodrigues Neto

Artigo (2024) - Revista Boletim de Gerenciamento da Politécnica da UFRJ Riachos urbanos: Como esses sistemas têm sido compreendidos no planejamento urbano de Teresina?

Coautoria: Anna Karina de Alencar

Artigo (2023) - Revista FSA

Os riachos urbanos nos planos diretores de Teresina-PI entre 2006 e 2021 Coautoria: Anna Karina de Alencar

Artigo (2021) - Revista Projectare Zona Norte de Teresina-PI: uma análise a partir do planejamento urbano Coautoria: Anna Karina de Alencar e Carla Ohana de Castro

Artigo (2020) - Revista Brasileira de Gestão e Desenvolvimento Regional Covid-19 em Teresina-PI: Aspectos socioespaciais x medidas de enfrentamento das fragilidades Coautoria: Anna Karina de Alencar; Carla Ohana de Castro; Giulia de Sousa; Maria Paula Laurentino; Viviane Amorim e Yara Feitosa

Artigo (2019) - Seminário Internacional Projetar Concurso Ladrilhando - Evento do projeto de extensão MaisPortfólio Coautoria: Ana Rosa Feitosa e Rewlysom Eduardo Leite

RESUMOS EXPANDIDOS

Resumo expandido (2024) - Congresso Geodesign South America

Dissonâncias no zoneamento urbano-ambiental das áreas ribeirinhas de Teresina a partir de 2019

Coautoria: Fernanda Eduarda de Sousa Lima

Resumo expandido (2024) - Congresso Geodesign South America

A modelagem dinâmica espacial como ferramenta na gestão territorial de Teresina-PI

Coautoria: Fernanda Eduarda de Sousa Lima e Hannah Rossi Saraiva

Resumo expandido (2024) - Conferência Internacional da Rede Lusófona de Morfologia Urbana/PNUM

A morfologia do hidrocídio: Uma análise do desencontro entre ocupação urbana e as águas na sub-bacia hidrográfica Poti

Direita-12 em Teresina-PI

Coautoria: Fernanda Eduarda de Sousa Lima e Hannah Rossi Saraiva

Resumo expandido (2024) - Conferência Internacional da Rede Lusófona de Morfologia Urbana/PNUM Morfologias hidrofóbicas nas beiras da cidade: Uma análise das relações entre as formas condominiais periurbanas e o sistema

fluvial do riacho Itararé em Teresina-PI

Coautoria: Fernanda Eduarda de Sousa Lima e Hannah Rossi Saraiva

URBANISMO E PLANEJAMENTO DA PAISAGEM

ARQUITETURA

VIVÊNCIAS ÍNDICE

[RE]CANTO: UMA INFRAESTRUTURA VERDE URBANA PARA O BAIRRO RECANTO DAS PALMEIRAS EM TERESINA/PI trabalho final de graduação

REQUALIFICAÇÃO URBANA NO BAIRRO SÃO CRISTÓVÃO projeto urbano esquemático

ETHIOPIAN SATELLITE PRESCHOOLS concurso internacional de arquitetura

RESIDENCIAL RE.HABITE centro habitacional de interesse social

MUSEU DE ARTES ESCULTÓRICAS DE TERESINA requalificação de edificação antiga

GAIA MAISON condomínio habitacional multifamiliar

PLANO ZEBRA maratona de ideação climática

GESTÃO DAS ÁGUAS URBANAS evento de extensão

[RE]CANTO: UMA INFRAESTRUTURA VERDE URBANA PARA O BAIRRO RECANTO DAS PALMEIRAS EM TERESINA-PI trabalho final de graduação

Ano do projeto:

Orientação: Karenina Matos
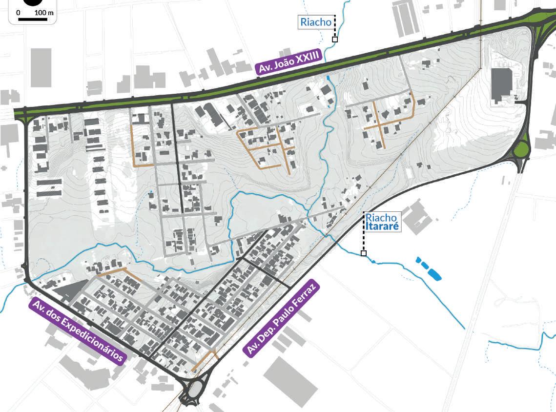
Bairro Recanto das Palmeiras TERESINA (PIAUÍ)

Situação Atual

Mapa Conceitual

O projeto urbano-ambiental produzido enquanto Trabalho Final de Graduação territorializa-se no bairro Recanto das Palmeiras, situado na Zona Leste de Teresina-PI e perimetrado pelas vias: Av. João XXIII, Av. dos Expedicionários e Av. Deputado Paulo Ferraz.

Apesar da expressão de importantes atributos tais como a localização estratégica, próximo a importantes eixos de circulação e atividades urbanas; presença de estruturas naturais de drenagem; além da relevância ecológica e do potencial paisagístico, o bairro Recanto das Palmeiras expressa algumas problemáticas que demandam atenção. Entre as quais, enfatiza-se a falta de conectividade entre algumas regiões do território; intensificação dos processos ocupacionais em direção às áreas de fundo de vale e planícies de inundação; degradação dos sistemas verde e azul; bem como a vulnerabilidade socioespacial às inundações nas faixas marginais do Riacho Itararé - o maior curso d’água que transpassa o bairro e maior riacho urbano de Teresina.

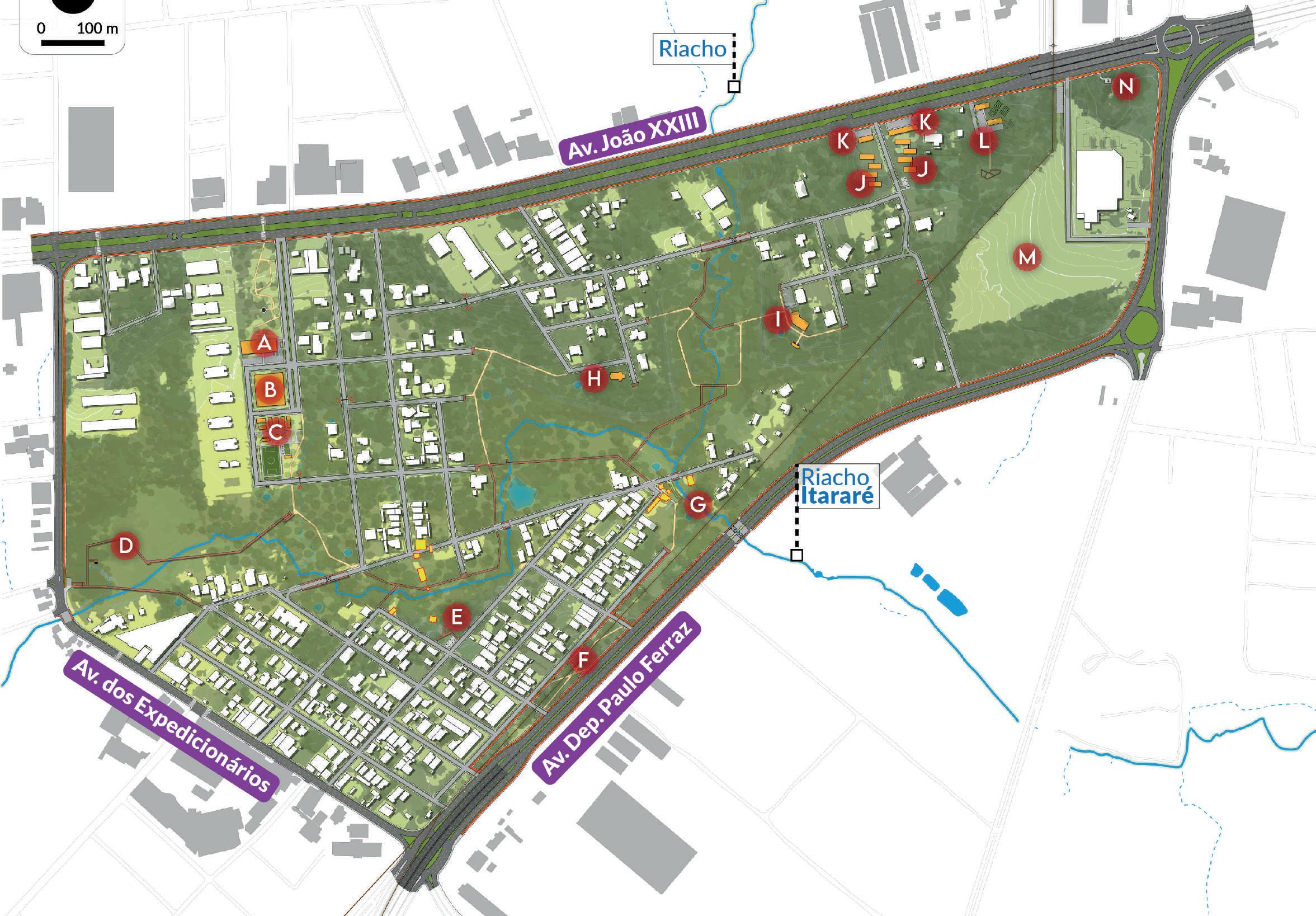
Utilizando método de planejamento específico, qual seja a infraestrutura verde, o projeto tem como objetivo fundamental a estruturação de uma paisagem resiliente e multifuncional, tomando partido das potencialidades do território - com destaque à rica paisagem natural - e atenuando as problemáticas socioambientais existentes.

LEGENDA:

Edificações pré-existentes no bairro

Edificações pré-existentes no entorno

Canteiros vegetados

Vias com pavimentação asfáltica

Vias com pavimentação poliédrica

Vias não pavimentadas

Academia ao ar livre

Linha de transmissão

Curso d´água efêmero

Riacho

Empenhado na orientação do ordenamento do bairro a processos sustentáveis de desenvolvimento, o projeto têm como diretrizes norteadoras a requalificação do sistema circulatório urbano, reabilitação de áreas degradadas, a recuperação e preservação de ecossistemas ambientais, ativação de usos econômicos e ecológicos em áreas específicas, bem como o incentivo ao uso misto do solo. Além disso, são propostos novos equipamentos no bairro.

Novos equipamentos:

A. Museu das Águas da Cidade (MAC)

B. Escola Municipal de Ensino Fundamental

C. Praça do Recanto e lotes habitacionais para as famílias desapropriadas

D. Parque Fluvial

E. Mirante

F. Praça das Espécies Frutíferas

G. Horta Comunitária

H. Capela Ecumênica; Associação de Moradores do bairro

I. Biblioteca Pública

J. Operação Urbana Consorciada para Habitação de Interesse Social

K. Edificação comercial/de serviço

L. Centro de Referência de Compostagem; Viveiro e Área de Arvorismo

M. Área multiuso

N. Monumento às Águas

LEGENDA:

Requalificar

Reabilitar

Recuperar

Preservar

Ativação Ecológica

Ativação Econômica

Edificação a ser removida

Implantar Ponte

Abertura de via

Fluxo de Drenagem

Circulações Ecológicas

Requalificação Perimetral

Restaurar Fluxo Gênico

Bacia Vegetada

Lagoa Seca

Curso d´água efêmero

Riacho

Masterplan

Novos equipamentos:

A. Museu das Águas da Cidade (MAC)

B. Escola Municipal de Ensino Fundamental

C. Praça do Recanto e lotes habitacionais para as famílias desapropriadas

D. Parque Fluvial

E. Mirante

F. Praça das Espécies Frutíferas

G. Horta Comunitária

H. Capela Ecumênica; Associação de Moradores do bairro

I. Biblioteca Pública

J. Operação Urbana Consorciada para Habitação de Interesse Social

K. Edificação comercial/de serviço

L. Centro de Referência de Compostagem; Viveiro e Área de Arvorismo

M. Área multiuso

N. Monumento às Águas

LEGENDA:

Edificações pré-existentes no bairro

Edificações pré-existentes no entorno

Edificações propostas

Edificações removidas

Trilha com pavimento permeável poroso

Trilha/Deck revestido em madeira ecológica

Canteiros vegetados

Rota cicloviária

Vias com pavimentação asfáltica

Vias pavimentadas com placas de concreto

Linha de transmissão

Riacho

Curso d´água efêmero

Bacias Vegetadas

Lagoa Seca

Museu das Águas da Cidade 0 2m

Entre os equipamentos, destaca-se o Museu das Águas da Cidade (MAC) que tem como objetivo principal valorizar o patrimônio hídrico de Teresina para além dos rios principais da cidade. Para esse objetivo, o MAC oferece um circuito museográfico em três etapas e interligadas por três pavilhões suspensos.

No primeiro pavilhão, denominado como “Pavilhão Memória” propõe-se a exposição de mapas que visam elucidar a história dos riachos urbanos de Teresina; no pavilhão seguinte, denominado como “Pavilhão Ciclo d’água”, tem-se a instalação de expositores para explicar o funcionamento do ciclo urbano da água e o papel multifuncional dos riachos urbanos na paisagem. Já no último pavilhão, denominado como “Pavilhão Futuro”, propõe-se a instalação de expositores digitais alertando aos visitantes do museu à urgência da proteção dos sistemas azuis nos habitats urbanos para construção de cidades resilientes e sustentáveis.

Quanto às vias existentes no território, desde as ruas internas às rodovias que limitam o perímetro do bairro, foram propostas reconfigurações, de modo a permitir melhor caminhabilidade nas ruas e avenidas bem como a implantação de soluções baseadas na natureza.

Com o intuito de recuperar os fluxos gênicos entre áreas vegetadas separadas pelo sistema viário, o projeto urbano proposto ao bairro também prevê a criação de travessias elevadas nos trechos perpendiculares aos cursos d´água. Assim, substituindo os bueiros e manilhas de concreto existenstes por estruturas suspensas do solo, têm-se condições para, além de recuperar os processos ecossistêmicos da fauna e flora, de acomodar a linha de talvegue dos riachos e faixa marginal vegetada.

Guarda-corpo
Calçada Água
Canteiro

REQUALIFICAÇÃO URBANA NO BAIRRO SÃO CRISTÓVÃO projeto urbano esquemático

Bairro São Cristóvão
TERESINA (PIAUÍ)
Orientação:
Karenina Matos
Coautoria:
Andressa Mota, Luana Soares e Eduardo Carvalho

APRESENTAÇÃO

No projeto avaliaram-se as atuais conformações do bairro São Cristóvão, situado na Zona Leste de Teresina, a fim de desenvolver um diagnóstico a ser utilizado na proposta de intervenção urbanística no local. A proposta foi pautada em uma setorização estratégica, na qual 5 setores foram definidos, com destaque ao setor focado no desenvolvimento de um centro de inovação.

A proposta urbanística busca, com base nos setores definidos, criar um bairro tecnológico, conectado, caminhável e que promova a urbanidade através de seus pontos âncoras de encontro social. Outrossim, salienta-se, enquanto diretrizes globais do projeto, a utilização da infraestrutura verde urbana enquanto método de planejamento da paisagem, diversificação do uso do solo e incentivo a implementação de fachadas ativas permeáveis.

sobre o entorno do Centro de Inovação

No entorno do centro de inovação, foram propostas ações catalisadores de projeto em busca de melhorias em nível urbano, social e ambiental. Ações estas, muito relacionadas à modificação da estruturação viária, planejamento da paisagem, promoção de fachadas ativas e de identidade urbana.

Frente à situação atual, a proposta foca em renovar esse entorno tomando como um de seus partidos projetuais, a implantação de via compartilhada elevada que permite a conexão entre as praças Engenheiro Paulo Marques e Profº Afonso Pena - as quais recebem novo planejamento da paisagem.

DETALHE
Cenário Proposto
Cenário Atual

BOLLARD¹ (Balizador Retrátil)

RUA ISOLETE FERRAZ

RUA JOÃO MARQUÊS

VIA COMPARTILHADA ELEVADA (apenas na Rua Isolete Ferraz e no cruzamento com a Rua João Marquês)

PLAYGROUND com demarcação colorida

ÁREA PARA MESAS PORTÁTEIS

ESTACIONAMENTO EXCLUSIVO PARA FOOD TRUCKS

PISO TÁTIL

LEGENDA

¹ Bloqueam o fluxo de veículos aos domingos e em outros dias específicos destinados a comemorações/eventos nas LabPraças e entorno imediato.

MULTIFUNCIONALIDADE edificação com diversos usos

ETHIOPIAN SATELLITE PRESCHOOLS (IN ETHIOPIA)

concurso internacional de arquitetura

Coautoria:

Orientação:

Ano

DILLU VILLAGE
HIDDI VILLAGE
Nayane Costa
Nayane Costa, Pedro Marcelo Ferreira e Rewlysom Leite

GROUND

Following a modulation open to adaptations, the conceived ground plan allows its implementation in different locations, from changes in the orientation of the frames, in the function of the hexagonal modules, or the choice od the expansion plans.

CONCEPT

The fusion between the formal character (hexagonal modulation) and the semiological character (community spirit) intrisic to a honeycomb. From that, borns the constructive guideline for the entire project, the hexagonal module.

BEYOND THE CONCEPT

The project embraces the flexibility criteria in a committed way with a hexagonal module that allows a perfect cohesion of the parts with the whole, as well as a layout open to adaptation; viability considering the use of low-cost materials and construction techniques and sustainability marked by rainwater collection, use of materials with high thermal inertia, composting, cross ventilation and evaporative cooling.

LEGENDA:

A. Covered Courtyard

B. Open Courtyard

C. Circulation 1

D. Classroom

E. Hall Latrines

F. Latrines

G. Circulation 2

H. Dining Hall

I. Kitchen

J. Multifunctional Room

K. Teacher’s Room

L. School Board

M. Deposit

N. Hen House

O. Perch

P. Circulation 3

Q. Vegetable garden

STRUCTURE

Assuming the structural role, the concrete beams and pillars allow the adobe walls to carry only the sealing function. In this regard, the project allows the creation and adaptation of hexagonal modules according to the needs of the school.

RAINWATER COLLECTION

Taking advantage of the configuration of the butterfly roofs, the rainwater collection system takes on a simple logic embraced in a radial setting that follows from the metal gutter to the water cistern.

ROOF

With wide eaves and minimum leaning, avoiding glare inside the hexagonal modules and allowing the future use of solar panels. It is supported by a wooden structure, which follows a simple constructive logic combined with the use of lattice schemes.

The 8-meter-high wind tower directed towards the predominant ventilation makes it possible to increase the humidity of the air with the use of geothermal cooling associated with the flow through the cistern. In this way, there is an exchange of air in the internal environments of the classrooms that are connected to the tower through underground pipes.

The hexagonal module masterfully embraces the freedom of layout in the classroom, providing democratic and multiple spaces for teaching activities.

Organic waste from the kitchen will be transformed into compost for the expasion plan garden from composting process.

Shrimp-style frames make a possible full opening, allowing them to better use natural lighting ang greater airflow. In addition to being easy to maintain, the model uses the venetian technique in its sealing, enabling ventilation and lighting control when necessary.

The adobe brick manufacturing process consists of a mixture of local sand and clay, vegetable fiber (straw), manure (chemical additive), and water. This mass must be places in wooden forms and the resulting blocks must be dried in the sun. In addition, bricks need to be coated with white lime to increase their protection and resistance. And, finally, the bricks must be laid on a concrete elevated foundation concerning the ground, so it doesn’t have contact with runoff water.

The hen house is articulated with two spaces: a perch to protect chickens from other animals and weathering; and a chicken coop with only a metallic railing closure.

WIND TOWER
FRAMES
CONSTRUCTIVE PROCESS
HEN HOUSE LAYOUT
VEGETABLE GARDEN
WIND TOWER
CISTERNA HAND CRANK RAINWATER COLLECTION

uestão tipologia ém de nto, no adores mentos elecido lém do s áreas esso à possivel a serão ede de e ao

bairro: Angelim - Zona Sul de Teresina

área: 103.531,82 m²

RESIDENCIAL RE.HABITE

centro habitacional de interesse social

Coautoria:

Carla Ohana Araújo e Rewlysom Leite

Orientação:

Marcelo Furtini

Ano do projeto: 2021

VIAS ESTRUTURANTES legenda:

VIAS COMPARTILH ADAS

VIA REESTRUTURADA PARA INSERÇÃO DE ROTA DE ÔNIBUS E CICLOVIA

CONCEITO

Por meio de um processo de requalificação com vistas à transformação de uma área degradada em um espaço conectado à malha urbana e de uso social, o projeto busca reconfigurar - em campo habitacional, ambiental e viário - um espaço da cidade a fim de criar um microssistema que sustente a proposta de um novo complexo habitacional de interesse social para Teresina.

VOLUMETRIA

degradada em um espaço conectado à malha urbana, o projeto busca criar um microssistema multifuncional que sustente as urbanidades criadas, modificadas e recriadas no território.

Como forma de diminuir os custos construtivos com a existência de diversas circulações verticais, foi proposto para o projeto o compartilhamento de uma mesma caixa de escada que possibilitou a transição por um único acesso aos dois blocos. Além disso, as circulações são evidenciadas na fachada, dessa maneira, são elementos que além de funcionais, complementam a composição volumétrica.

Para a composição formal de cada edifício, tem-se a interligação de dois volumes retangulares, os quais seguem tamanhos específicos para cada tipologia de bloco, gerando assim três possibilidades de volumetria que distribuem a demanda de unidades habitacionais do complexo. Ademais, tais composições, associadas ao uso múltiplo da cor corroboram para uma rica composição final.

A passarela que conecta os blocos possui uma elevação que permitiu a locação de caixas d’água sem que isso prejudicas se a volumetria proposta. Do ponto de vista construtivo, esse fato também contribui para a economia de materiais, visto que não houve a necessidade de aumento da platibanda no resto da volumetria, resultando em um coroamento mais discreto.

croquis iniciais

criar áreas de convívio nos espaços entre os blocos de modo que avoreça o contato com a vegetação e o confor to térmico

Criar áreas de convívio nos espaços entre os blocos de modo que favoreça o contato com a vegetação e o conforto térmico local.

Manter um espaçamento adequado para garantir a privacidade dos moradores.

Circulação Vertical

Permitir a circulação de ar entre os blocos e, de modo consecutivo, no interior das habitações.

manter um espaçamento adequado para garantir a privacidade dos moradores. permitir a circulação de ar entre os blocos e, consequentemente, no interior das habitações.

Circulação Horizontal

Para as fachadas Oeste, foram propostos o uso de cobogós que por serem elementos vazados possibilitam o sombreamento e proteção das aberturas existentes, sem abrir mão da ventilação e iluminação natural.

4. Banheiro

5. Sala de mulituso

6. Ponto comercial

7. Lavabo

8. Circulação externa

LEGENDA:

1. Sala de estar

2. Cozinha

3. Quarto

4. Banheiro

5. Sala de mulituso

6. Ponto comercial

7. Lavabo

8. Circulação externa

LEGENDA:

1. Sala de estar

2. Cozinha

3. Quarto

4. Banheiro

5. Sala de mulituso

6. Ponto comercial

7. Lavabo

8. Circulação externa

Pavimento térreo Bloco A (Tipo 2)
Pavimentos superiores

O RESIDENCIAL

Ao todo, o residencial oferece 910 unidades habitacionais, por sua vez distribuídas entres os blocos “A”, “B” e “C”. Cada bloco A possui 19 unidades habitacionais, além de um a dois espaços comerciais no pavimento térreo. Quantos aos blocos B e C, estes possuem 24 e 16 unidades habitacionais, respectivamente, e se apresentam como derivações da planta baixa adotada no bloco tipo A.

Além dos espaços habitacionais e comerciais, o residencial recebe processos de planejamento ecológico da paisagem acompanhado por equipamentos recreativos como os dois campos de futebol e pistas de caminhada, as quais aumentam as conexões entre as áreas habitadas do empreendimento.

Infraestruturação da Rua Nonato de Oliveira que passa a ser de mão dupla com canteiro central e duas faixas de 3,5m em cada sentido.

Via local interna de mão dupla com 3,5m de largura em cada faixa e passeio público de 2,5m.

Via compartilhada para percurso multimodal, contendo 4m de largura e com limitação de velocidade para veículos automotores. Lagoa pluvial

Piso em madeira

Piso em concreto permeável

BLOCO tipo A 19 unidades habitacionais + Comércios

BLOCO tipo B 24 unidades habitacionais

BLOCO tipo C 16 unidades habitacionais

LEGENDA N
LEGENDA

MUSEU DE ARTES ESCULTÓRICAS DE TERESINA

requalificação de edificação antiga

Coautoria:

Orientação:

Ano

Amanda Moreira
Ana Isabel Rocha, Letícia Moura Fé, Luís Eduardo Moura e Tainah Pereira
Bairro Centro TERESINA (PIAUÍ)

CONCEITO

Para a revitalização da casa 1634, propõe-se a implantação do Museu de Artes Escultóricas de Teresina (MARTE) e Café-bar, com a intenção de valorizar a cultura local e criar um espaço que acolha as manifestações artísticas e culturais da sociedade teresinense, bem como, revitalizar o Centro de Teresina. O “MARTE” encontra-se no prolongamento do eixo cultural da cidade, que interliga outras edificações de mesma tipologia.

Fachada original 0 2m

Fachada atual 0 2m

O EDIFÍCIO EM 2024

Além da estrutura danificada, a edificação apresenta danos em todas as fachadas, entre os quais ressaltam-se descascamentos de pintura, manchas de umidade, alterações de cor, fissuras, trincas, pichações, entre outros.

LEGENDA:

Descascamento da pintura

Manchas de umidade

Alteração cromática

Deslocamento de revestimento

Intervenção por vedação

Esquadrias atuais

Fissuras, trincas e rachaduras

Ornamentos retirados

Pichações

Mapa de danos 0 2m

INTERVENÇÕES

O NOVO EDIFÍCIO

Para construção do Museu e do café-bar foram necessárias algumas alterações na planta baixa do edifício a partir da demolição de paredes pré-existentes e construção de novas vedações. Além das mudanças no edifício, propóe-se a utilização do lote vizinho para contrução de um prédio anexo que complemente o programa de necessidades da proposta.

LEGENDA:

Elementos a manter

Elementos a construir

Elementos a demolir

Piso escavado

Piso cimentício

Paredes escarificadas a partir de 1,20m

INTERVENÇÕES

SUPERIOR

LEGENDA:

Elementos a manter

Elementos a construir

Elementos a demolir

Piso escavado

Remoção de laje para implantação de passarela em vidro Piso cimentício

Paredes escarificadas a partir de 1,20m

<<< Rua Quintino Bocaiúva
Rua Quintino Bocaiúva

O programa abrange, na parte do museu, um espaço para exposição temporária, uma sala para exposição permanente, uma sala temática, uma sala com uma escultura principal de destaque, uma sala de oficina, um jardim de esculturas, na área externa, além das áreas necessárias, depósitos, área técnica, administração, e recepção, sala de conservação e restauro. O café-bar conta com apenas uma cozinha, área de apoio, área de serviço, e área para mesas cobertas e descobertas, que se encontram alocadas no anexo criado.

Fachada atual + Danos

2m

Fachada Principal

2m

Fachada Secundária

2m

LEGENDA: [Museu]

A. Hall

B. Área técnica

C. Escultura

D. WC PcD

E. WC Masculino

F. WC Feminino

G. BWC

H. Depósito

[Anexo]

I. Área de serviço

J. Triagem

K. Depósito de secos

L. Cozinha

Acesso de Serviço

M. Administração

N. Passagem/Apoio

O. Lava-louças

P. Louçaria

Q. Área para mesas

R. Lixeira

T. Vagas prioritárias de estacionamento

Superior

3m

LEGENDA: [Museu]

A. Recepção

B. Administração

C. Copa

D. Hall

E. BWC Funcionários

F. Área de descanso para funcionários

G. Exposição Temporária

H. Exposição Permanente

I. Escultura

J. Sala Temática

[Anexo]

K. Oficina

L. Depósito

M. Restauro/Documentação

condomínio habitacional multifamiliar

Coautoria: Carla Ohana de Araújo

Orientação:

Eduardo Aguiar

Ano do projeto:

GAIA MAISON
TERESINA (PIAUÍ)
N Bairro Ininga

O Gaia Maison é um edifício residencial de alto padrão projetado para proporcionar aos seus moradores um ambiente seguro e confortável para atender todas sua necessidades, exibindo elegancia e inovação em suas formas. O projeto conta com duas torres - Amara e Acmon, com 17 e 9 pavimentos respectivamenteinterligadas no pavimento social. Juntas elas formam um complexo orgânico e sinestésico, com um programa de necessidades bem amplo, incorporando sistemas de sustentabilidade e autoeficiência.

SITUAÇÃO

O terreno escolhido se localiza no bairro Ininga, Zona Leste da capital - Teresina. Ele ocupa toda uma quadra ao redor das ruas Visconde da Parnaíba, Senador Joaquim Pires, Professor Joca Vieira e Hugo Napoleão. As torres foram implantadas no centro do terreno de forma que os ambientes de maior permanência - setor íntimo - estejam voltados para o leste e o setor social para norte e sul. Garantindo um maior conforto e aproveitamento das vistas.

Rua Visconde da Parnaíba

Rua

Profº

Joca

Vieira

Rua SenadorJoaquim Pires

Rua Hugo Napoleão

VOLUMETRIA

A forma materializa a identidade e esta é consequência de uma cadeia de interrelações. Orgânica e sinérgica. Por meio das lajes em elipse e as paredes em curva - em consonância com o caráter orgânico associado ao conceito “sinergia” - desenvolve-se a forma final do complexo residencial.

O primeiro passo baseia-se na elevação de duas torres. Uma mais alta e a outra mais baixa. Amara e Acmon. Após a elevação das torres, propõe-se uma ligação entre elas a fim de abrigar um pavimento em comum. Assim, elas funcionariam como um organismo que trabalha em conjunto.

O resultado final foi um complexo orgânico e fluido, que promove sua estabilidade por meio da união entre suas partes.

A. Entrada

B. Área de carga e descarga

C. Rampas para acesso ao estacionamento no subsolo

D. Pista de caminhada

E. Quadra Poliesportiva

F. Banheiro/Vestiário

G. Playground

H. Piscina

I. Deck molhado

J. Área Gourmet

K. Casa de lixo

L. Piscina com borda infinita

M. Cobertura verde

N. Passarela entre as torres

O. Heliponto privativo

Área Construída

Área do terreno

Taxa de ocupação (TO) Índice de aproveitamento (IA)

Apartamentos Amara

Apartamentos Acmon

Área apto Tipo

Área apto Cobertura

1. Elevador social
Sala de estar/jantar
Lavabo
Varanda Gourmet
Cozinha
Hall de serviço
Área de serviço 8. Quarto ou Depósito 9. Banheiro
Suíte 11. Suíte Master
Closet
Banheiro master
Elevador de serviço
Área técnica
Rua Senador Joaquim Pires
Rua Hugo Napoleão

Heliponto

CX D'ÁGUA 10000 L

ANTECAMARA HALL S. ÁREA DE SERVIÇO

ANTECAMARA HALL S. ÁREA DE SERVIÇO

ANTECAMARA HALL S. ÁREA DE SERVIÇO

ANTECAMARA HALL S. ÁREA DE SERVIÇO

ANTECAMARA HALL S. ÁREA DE SERVIÇO

ANTECAMARA HALL S. ÁREA DE SERVIÇO

Pavimento de interligação

ANTECAMARA HALL S. ÁREA DE SERVIÇO

ANTECAMARA HALL S. ÁREA DE SERVIÇO

Torre Amara

ANTECAMARA HALL S. ÁREA DE SERVIÇO

ANTECAMARA HALL S. ÁREA DE SERVIÇO

ANTECAMARA HALL S. ÁREA DE SERVIÇO

ANTECAMARA HALL S. ÁREA DE SERVIÇO

ANTECAMARA HALL S. ÁREA DE SERVIÇO

ELEV. SOCIAL ANTECAMARA HALL S. ÁREA DE SERVIÇO

ANTECAMARA HALL S. ÁREA DE SERVIÇO ÁREA COMUM ÁREA COMUM ÁREA TÉCNICA

BANHEIRO CLOSET

BANHEIRO CLOSET

BANHEIRO CLOSET

BANHEIRO CLOSET

BANHEIRO CLOSET

BANHEIRO CLOSET

BANHEIRO CLOSET

BANHEIRO CLOSET

BANHEIRO CLOSET

BANHEIRO CLOSET

BANHEIRO CLOSET

BANHEIRO CLOSET

BANHEIRO CLOSET

Estrutura metálica

Torre Acmon

CLIMATHON - Maratona de Ideação

Plano ZEBRA: Transformação das faixas zebradas em

espaços vegetados multifuncionais

[2024]

Equipe: Arthur Rocha, Ana Carolina Silva, Elívia Emanuelly, Ianá Costa e Jeiel Carvalho

O CLIMATHON

O desafio proposto para o CLIMATHON 2024 foi: "Como podemos usar tecnologias inovadoras e sustentáveis, ou soluções baseadas na natureza, para reduzir a emissão de CO² e o aumento da temperatura?". A proposta deverá considerar uma ou mais dessas temáticas: inovação com soluções baseadas na natureza; adaptação; economia criativa; inovação social; resiliência urbana; clima; mobilidade urbana sustentáveis e redução de emissão de gases CO².

A PROPOSTA

É possível criar espaços permeáveis e multifuncionais dentro da tecnologia mais impermeável e monofuncional que existe, o asfalto. Mas como? Tomando partido das marcas de canalização existentes no sistema viário, mais conhecidas como “faixas zebradas”.

Enquanto infraestrutura urbana que mais arrecada investimentos, a rede viária é o território no qual os fluxos de bens, informações e pessoas são distribuídos na cidade. Para o gerenciamento dessas dinâmicas, a sinalização de trânsito se apresenta como elemento fundamental que, entre seus componentes, destaca-se as marcas de canalização, mais conhecidas como "faixas zebradas", com a função de ordenar o tráfego. Considerando suas áreas impermeáveis de cobertura, que podem alcançar uma escala de milhares de metros quadrados, as faixas zebradas se apresentam enquanto uma estratégia essencialmente monofuncional –pautada no ordenamento no tráfego – que se materializa a partir de enormes pinturas retilíneas no asfalto, análogas a “cicatrizes”, muito comuns em cidades, como Teresina, no Piauí. Por outro lado, as marcas viárias expressam uma oportunidade projetual, pautada no desenvolvimento de soluções urbanas multifuncionais, para além do ordenamento de tráfego, com destaque à criação de espaços vegetados.

> ordenar o tráfego (?)

> ordenar o tráfego;

> reciclagem de resíduos asfáticos para novos usos;

> abrir novas oportunidades de projeto;

> aumentar áreas verdes e permeáveis;

> aumentar bem-estar no sistema viário;

> aumentar sequestro de CO2 e reduzir temperatura

zebrada convencional faixa zebrada repensada

O Plano ZEBRA propõe a substituição das faixas zebradas em espaços vegetados multifuncionais em um processo dividido em três etapas: Experimentação (avaliar se o espaço sinalizado de fato ajuda na orientação dos fluxos viários), Desvirtualização (implantar balizadores no entorno do espaço sinalizado, para aos poucos advertir aos usuários do sistema de tráfego que o espaço não terá limites apenas virtuais) e Ativação (implantar espaços vegetados)

Gestão das Águas Urbanas: desafios e possibilidades em Teresina-PI

[2023]

Painelistas: Anna

DESCRIÇÃO

Em formato de mesa-redonda o evento, realizado na UFPI, ativou uma discussão crítica sobre o atual cenário dos impactos socioambientais relacionados às águas urbanas em Teresina/PI. Sob as visões de uma equipe multidisciplinar de palestrantes, o evento trouxe um breve resgate dos serviços das águas urbanas e sua relação com o planejamento urbano, apontando os avanços conceituais da gestão integrada das águas, em um urbanismo sensível às águas, onde a água urbana é compreendida como elemento de integração da paisagem, do acesso à água tratada, dos serviços sanitários e da drenagem urbana. Destacando as discussões da mesa redonda, tem-se abaixo um quadro-resumo ilustrado por Victor Israel Silva.

Turn static files into dynamic content formats.

Create a flipbook
Issuu converts static files into: digital portfolios, online yearbooks, online catalogs, digital photo albums and more. Sign up and create your flipbook.