Arquitetura e Urbanismo : o papel e as práticas na atualidade

Page 1

arquitetura e urbanismo

O papel e as práticas na atualidade

disciplina

ESTUDOS SOCIAIS URBANOS - PRÁTICAS EXTENSIONISTAS

ARQUITETURA E URBANISMO - 3° SEMESTRE - 2024

docentes

ana Carolina Ferreira Mendes

Mariana Rial

discentes

Ana Julia Melander Nunes

Carolina Sant Anna do Nascimento

Clara Silva Amador

Daniel Inocencio de Lima

Daniel Muths OLiveira

Fernanda Vitoria Guimarães da Silva

Fernando Barros Ribeiro do Carmo

Gustavo Barbosa de Sousa

Heloisa Raposo Loureiro

Isabela Ribeiro Marcondes Godoy

Isabella Raide de Moura

João Pedro Pugliesi Camara

Julia Cristine de Castro

Juliana Akemi Santana Saga

Lara Carneiro Moreira

Laura Drumond Neto

Luciana Rose dos Santos Housska

Luiza Felix Reis Macedo

Luiza Gomes de Oliveira

Maisa Virginia Graciolli Bueno Feo

Maria Eduarda de Carvalho Russo

Marina Oliveira da Cruz

Monica D Elia Kleemann

Natalia Kamimoto Takabataki

Pedro Henrique Martins Nunes

Pedro Henriques Pascoal

Sabrina de Moura Cruz Silva

Samara Barroso Souza

Sarah Rodrigues de Siqueira

Sofia Henriques Pascoal Martins

Sofia Rodrigues Groschitz

Thiago Vettorazzo Costa

Yasmin Versignassi Lima

INTRODUÇÃo

Profs.AnaCarolinaMendeseMarianaRial

AdisciplinaEstudosSociaisUrbanos-PráticasExtensionistasinauguranocursodeArquiteturaeUrbanismodoCentro UniversitárioSenacaextensãocurricular.Hámaisdeumadécadatemosaextensãoemprática,porém,pelaprimeiravez dentrodoProjetoPedagógicoelaaparececomoumadisciplinaobrigatória.

Ofertada no 3° semestre, módulo inicial do curso, compreendemos a função da disciplina a partir de dois objetivos principais: (1) instigar os alunos a pesquisar e criar repertório sobre seu próprio papel no universo da arquitetura e urbanismo e como desdobramento dessa construção e (2) impactar determinado grupo de pessoas da sociedade no entendimentodoqueessecampodetrabalhoécapaz.

Sendo assim, construímos coletivamente o trabalho do semestre, que se iniciou com cada aluno entrevistando cinco pessoassobreopapeldoarquitetourbanistanasociedadeecomoseutrabalhoasimpactanodiaadia.Osentrevistados nãopoderiamserdoSenac,nãopoderiamserarquitetoseurbanistasedeveriamter,sepossível,entre18e30anos.

Asrespostasforamasmaisdiversas,masobservamosqueamaioriaentendiaoprojetodeinterioreseedificaçõescomo atribuiçãoprincipal,senãoúnica,daprofissão.

Combasenesseretorno,elaboramosocadernoaquiapresentado,comoobjetivodeabrirolequedetiposdeprojetose práticas possíveis de serem concebidos e desenvolvidos por arquitetos urbanistas. Todo o trabalho caminhou de forma coletiva e as categorias e conteúdos foram organizados ao longo de diversas aulas pelos alunos, a partir de pesquisas orientadaspelasprofessoras.

Esse caderno, então, foi reapresentado às mesmas cinco pessoas entrevistadas no início do semestre, as quais foram chamadasaresponderseasuavisãosobreaprofissãohaviasetransformado,atravésdeformulárionoGoogleForms.Ao final do caderno, apresentamos gráficos nos quais é possível mensurar os resultados e selecionamos respostas significativas.

Aexpectativaéqueesseproduto,paraalémdogrupoentrevistadonoâmbitodadisciplinapossaseramplamente divulgadoecontribuanoentendimentodascontribuiçõespossíveisdoarquitetourbanistaparaasociedade.

SUMÁRIO

1. ARQUITETURA DA EDIFICAÇÃO

1.1 Projetos de infraestrutura

1.2 Arquitetura educacional

1.3 Arquitetura esportiva

1.4 Arquitetura hospitalar

2. ARQUITETURA PAISAGÍSTICA

2.1 Projetos paisagísticos em áreas públicas

2.2 Projetos paisagísticos em áreas privadas

2.3 Projetos paisagísticos em estruturas elevadas

2.4 Reinserção paisagística de estruturas existentes

3. patrimônio e Restauro

3.1 Restauração e preservação em área pública

3.2 Restauração e preservação em área privada

4. planejamento regional

4.1 Sistemas de transporte

4.2

Turismo 4.3 Plano diretor 5 7 9 11 13 15 17 19 21 25 29 31 33

SUMÁRIO

5. projetos urbanos

5.1 Requalificação de espaços públicos

5.2 Projetos de habitação em escala urbana

5.3 Praças como conexões

6. projetos efÊmeros

6.1 Instalações temporárias - pavilhões

6.2 Instalações temporárias - expografia

6.3 Cenografia - audiovisual

6.4 Cenografia - teatral

6.5 Projetos emergenciais - habitação

6.6 Projetos emergenciais - hospital

7. pesquisa e crítica

7.1 Historiografia e crítica

7.2 Teoria e prática

7.3 Cidade e gênero

8. habitação

8.1

multifamiliares
HIS/HMP 8.3 ATHIS 35 37 39 41 43 45 47 49 51 53 56 59 66 61 63
Edifícios
8.2

Projetos de Infraestrutura

Aeroporto internacional de florianópolis

Florianópolis, Santa Catarina 2018

Autor

Biselli Katchborian Arquitetos

Promotor

Floripa Airport

Acesso

Livre

ApósaconcessãodoAeroportoàiniciativaprivada, em 2017, o escritório cria um terminal em dois níveis operacionais (embarque e desembarque) e com dez pontes de embarque. Foram construídas novas pistas de taxiamento e um novo pátio de aeronaves. A grande cobertura de estrutura metálica e desenho inspirado na geometria aeronáuticaconfereunicidadeaoconjunto.

O projeto do Terminal Internacional de Passageiros, realizado em 2017 pelo escritório

BiselliKatchborianArquitetos,foiconsideradoo

MelhorProjetodaediçãodo8ºPrêmioSaint

GobainAsBEAdeArquitetura, ficando com o

1º lugar na Categoria Profissional, Modalidade EdificaçãoInstitucional.

ARQUITETURA DA EDIFICAÇÃO
Fonte: ArchDaily Brasil Fonte: ArchDaily Brasil Fonte: ArchDaily Brasil Fonte: ArchDaily Brasil Fonte: ArchDaily Brasil

Projetos de Infraestrutura

METRÔ DE BILBAO

Em 2014, Norman Foster recebeu o primeiro Prêmio BIA (Bilbao Bizkaia Architecture), reconhecendo o projeto icônico e original das estaçõesdoMetrôdeBilbao.

Em 1998, o Metrô de Bilbao recebeu o Prémio Brunel para Arquitectura, em sua modalidade estaçãoferroviária.

O metrô de Bilbao faz parte do plano de renovação da cidade, através da arquitetura. O projetoéde1995.

A ideia fundamental na concepção das estações foi planejar uma rede subterrânea perto do níveldarua,comacessodiretoefácilatodasas principaisestações.

Fonte: Wikiarquitectura Fonte: ArchDaily Fonte: Foster + Partners Fonte: Foster + Partners Fonte: Wikiarquitectura
Bilbao, Espanha 1988 - 1995 Autor Foster + Partners Promotor Governo Basco Acesso Livre ARQUITETURA DA EDIFICAÇÃO

arquitetura educacional

ESCOLA DE ENSINO FUNDAMENTAL EM CAMPINAS

Campinas, São Paulo

Autor

MMBB Arquitetos

Promotor

Fundação para o Desenvolvimento da Educação - FDEGoverno do Estado de SP

Acesso

Livre

Fonte: ArchDaily

O projeto se desenvolve sem separações, sendo a quadra o centro do conjunto de ambientes pedagógicos, o que resulta numa escola espaçosa e convidativa, mantendo o terreno contínuo desde o pátio aberto até as entradas da escola no lado sul, organizadas pelo bloco administrativo. Da mesma forma, nos andares superiores, os espaços de circulação e convivência são igualmente dispostosemtornodovaziodaquadra,oque estabelececonexãoentretodososespaçosda escola.

O projeto faz parte de um conjunto de quatro projetos-pilotos desenvolvidos para a FDE pelo escritórioMMBB,comoobjetivodeestabelecer e demonstrar padrões e experimentar a aplicação de um sistema estrutural préfabricado, bem como adequar este sistema às demandas educacionais e o ambiente urbano, criandoespaçosfundamentaisparaeducaçãoe socialização.

A escola está localizada na entrada de um conjuntohabitacional,numaregiãodestinadaà instalaçãodeequipamentospúblicos.

ARQUITETURA DA EDIFICAÇÃO

Fonte: MMBB Arquitetos
Fonte: ArchDaily
2003
2004
-
Fonte: ArchDaily Fonte: ArchDaily

arquitetura educacional

LYCEE SCHORGE SECONDARY SCHOOL

Koudougou, Burkina Faso. 2003 - 2004

Autor Kéré Architecture

Promotor

Instituto Stern Stewart & Friends

Acesso Ilimitado

Desenvolvido pelo escritório Kéré Architecture, o projeto teve como objetivo fornecer fontes de inspiração para estudantes, professores e a comunidade local, demonstrando que a arquitetura não é apenas uma construção no cenário, mas também desempenha um papel pedagógico, ao mostrarcomopodemosaproveitardeformacriativa osrecursoslocais.

A cobertura desempenha papel fundamental naventilaçãoeiluminaçãonaturaldoedifício.

As salas de aula são também envolvidas por umsistemadetelasdemadeira,semelhantea umtecidotransparente,quenãoapenasserve deanteparoparaconteraentradadapoeirae dos ventos fortes, mas também oferece proteção aos diversos espaços de circulação, que servem, assim, para os alunos se reunirem enquanto aguardam o início das aulas.

A escola possui 9 módulos que, juntos, se assemelham a uma aldeia, cercada por uma estrutura de treliça e organizada ao redor de um espaçoqueservecomo pátiocentralcompartilhado, abertoparaa usodetodaacomunidade.

ARQUITETURA DA EDIFICAÇÃO

Fonte: Kéré Architecture Fonte: ArchDaily Fonte: ArchDaily Fonte: Kéré Architecture Fonte: ArchDaily

arquitetura esportiva

SesC PompÉIa

São Paulo, Brasil

1982

Autor

Lina Bo Bardi

Promotor

Serviço Social do Comércio de São Paulo - Sesc SP

Acesso

Livre

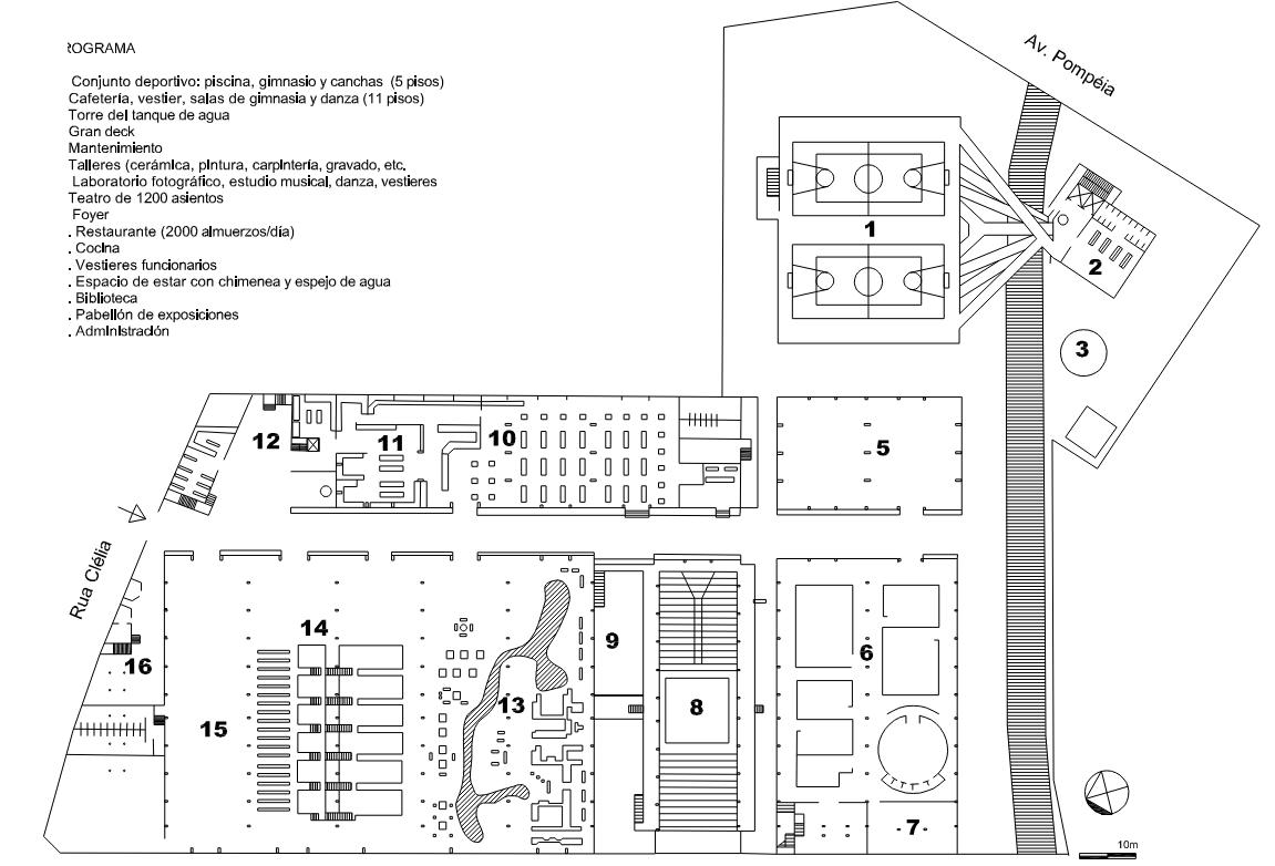
O projeto teve seu inicio em 1977. Nele, a arquiteta Lina Bo Bardi transformou antiga fábrica de tambores num complexo de lazer e cultura.Doisblocosnovos,emconcretoarmado, foram destinados às atividades esportivas do complexo. O bloco mais estreito possui 12 pavimentos e abriga vestiários, lanchonete, salas de ginástica, luta, dança e os elevadores de acesso ao bloco esportivo. Já o bloco mais amplo possui 5 pavimentos e abriga a piscina, que estánotérreo,easquadras,queficamnos pavimentossuperioresepodemserusadaspara diversosesportes.

Fonte: Sesc

Fonte: DEARQ - Revista de Arquitectura

Os dois blocos se conectam por oito passarelas de concreto protendido. A cada dois pavimentos do bloco mais estreito há uma ligação com um andar do mais amplo. Devido a uma pré-existência no terreno, que são os galpões, haviaumpequenoespaçoparaaárea esportiva,entãoasoluçãofoiverticalizá-los.

Fonte: ArchDaily Fonte: Trabalho de Conclusão de Curso de Poliana Machado, Centro Universitário de Maringá,
ARQUITETURA DA EDIFICAÇÃO

arquitetura ESPORTIVA

centro aquático dos jogos olímpicos 2012

Londres, Reino Unido

1982

Autor

Escritório Zaha Hadid

Promotor

Olympic Delivery Authority

Acesso

Limitado

O Centro Aquático idealizado pela arquiteta Zaha Hadid está num eixo ortogonal perpendicular à Stratford City Bridge e todas as piscinas estão alinhadas a esse eixo. É uma instalação em dois pavimentos: no primeiro pavimento se localizam as arquibancadas e no térreo se encontram duas piscinas olímpicas de 50 metros, uma piscina de mergulho de 25 metros, com pranchas e plataformas de até 10 metros, zona de mergulho seco, estação de ginásticade50metros,umcaféeumacreche.

A cobertura vai além do hall das piscinas, estendendo-se até a ponte, o principal acesso aocentro.No níveldaponte háumacessoàs arquibancadas, já no nível inferior há um acesso às piscinas, sendo possível acessá-las por portas nas laterais do hall. A cobertura permite acesso aos demais programas do centroeaonívelsuperiorporescadas.

A estrutura do centro é formada por uma série de treliças de aço sustentadas por três grandespilaresdeconcretoarmado.

Fonte: Zaha Hadid Architects Fonte: Zaha Hadid Architects
DA EDIFICAÇÃO
Fonte: Zaha Hadid Architects
ARQUITETURA

arquitetura hospitalar

HOSPITAL SARAH KUBITSCHEK - REDE SARAH

Salvador, Bahia 1994

Autor

João Figueiras Lima

Promotor

Associação das Pioneiras Sociais (APS)

Acesso

Livre

Anteprojeto (implantação) Lelé 1988 Fonte: Arquivo CTRS

O arquiteto João Figueiras Lima, conhecido como Lelé, destacou-se por abordar não apenas os aspectos técnicos, mas também os humanos, ao projetar hospitais. Sua atenção se voltou para as condições locais,as necessidadesdapopulaçãousuária,o clima e as particularidades culturais. Identificou e resolveu questões como isolamento, faltadeconforto e bemestar, e clausura, reconhecendo a importância do contato com o ambiente externo e a natureza para o processodecura.Oprojetoimplementoumóduloscom peças pré-dimensionadas, o que garantiu uma construção mais rápida e econômica, uma característicaessencialparahospitais.

ARQUITETURA DA EDIFICAÇÃO

Fonte: Nelson Kon Fonte: Nelson Kon Fonte: Nelson Kon Fonte: Revista Projeto Fonte: Revista Projeto

arquitetura hospitalar

FRIENDSHIP HOSPITAL SATKHIRA

Shyamnagar Upazila - Bangladesh

2018

Autor

Kashef Chowdhury/URBANA

Promotor

ONG FRIENDSHIP

Acesso

Livre

O Hospital da Amizade, vencedor do Prêmio Internacional RIBApremiaçãoinglesabienalparaedifícios de impacto social e excelência de projeto-em2021,estásituadonuma remota comunidade ribeirinha em Bangladesh.

O projeto incorpora o uso estratégico de recursos naturais, como a integração ao ambiente repleto de água, garantindoresistênciafrenteàs alterações climáticas constantes na região.

Com a implementação de uma configuração composta por múltiplos pátios,ohospitalotimizaailuminação e a ventilação naturais, trazendo um design inovador e mantendo a harmoniadoambiente.

ARQUITETURA DA EDIFICAÇÃO

Fonte: Asif Salman Fonte: Revista Design Essentia Fonte: Arquitetura Viva Fonte: Arquitetura Viva Fonte: Sulayman Hossain/Al Jazeera

projetos paisagísticos em áreas públicas

aterro do flamengo

Rio de Janeiro, Brasil

1967

Autor

Maria Carlota Costallat de Macedo Soares, Affonso Eduardo Reidy, Sérgio Wladimir Bernardes, Jorge Machado Moreira, Roberto Burle Marx e Luiz Emygdio de Mello Filho

Promotor

Prefeitura do Rio de Janeiro

Acesso

Livre

O Aterro do Flamengo tem uma área de 1.200.000m² e 7km de extensão, que vão do Aeroporto Santos Dumont, no centro, até o início da praia de Botafogo, passando pelos bairros da GlóriaedoFlamengo.

O desafio do projeto era organizar o tráfego de veículossemperderaidentidadelocal.

VEJA RIO

Criou-se,paratanto,a AvenidaBeiraMar, uma das vias mais marcantes no processo de urbanização do Rio de Janeiro, bastante arborizada, e o Parque Brigadeiro Eduardo Gomes, em que o público pode aproveitar as quadrasejardins.

O projeto visava estabelecer um parque com espaços generosos sem atividades prédeterminadas, transmitindo uma sensação de liberdade. Dessa forma, os frequentadores poderiam usufruir destas conforme sua própria necessidadeeescolha.

Fonte: ArchDaily Fonte:
arquitetura paisagística
Fonte: VEJA RIO Fonte: Vitruvius

projetos paisagísticos em áreas públicas

jardim botânico

Barcelona, Espanha 1999

Autor

Carlos Ferrater, Josep Lluís Canosa e Bet Figueiras

Promotor

Ajuntament de Barcelona

Acesso

Livre

O Jardim Botânico de Barcelona significou uma grande melhoria em uma área da montanha de Montjuïc que havia sido esquecidaemarginalizadaporalgumtempo.

Olugaraondefoiimplantadopossuiumavista muito bonita da cidade de Barcelona, possibilitando,desdeospontosmaisaltos,que se tenha acesso visual a distintos ângulos da cidade.

OprojetodoJardimpossui360.000m²esuaproposta é preservar uma variedade de plantas provenientes de diversas partes do mundo, proporcionando aos visitantes a chance de conhecê-las de perto. Em de suas instalações é possível encontrar espécies originárias da Califórnia, Chile, África do Sul, Austrália e da região do Mediterrâneo.

Fonte: Ferrater Architects Fonte: Archidose blog Fonte: Revista Landezine Fonte: Revista Plusesmas Fonte: Revista Landezine
arquitetura paisagística

projetos paisagísticos em áreas privadas

instituto inhotim

Brumadinho, Minas Gerais

2006

Autor

Pedro Nehring

Promotor

Privado

Acesso

Limitado

O Instituto Inhotim, localizado em Brumadinho, Minas Gerais, é um museu de artecontemporâneaejardimbotânico. Comoorganizaçãoprivadasemfinslucrativos, é mantido por doações de pessoas físicas e jurídicas e por meio de incentivos culturais federaiseestaduais.

Está localizado entre o bioma da Mata Atlântica e o Cerrado, com paisagem de 140 Hectares de área visitável, num total de 250 hectares em Reserva Particular (RPPN) que oferecem ao visitante uma combinação entre a arte e a natureza. Possui uma extensacoleçãodeartecontemporânea,comobrasde renomadosartistasnacionaiseinternacionaisemaisde 4.300 espécies de plantas raras em seu ambiente. Os jardinsforamprojetadospelarquitetopaisagistaPedro Nehring.

OInstitutosetornoureferêncianacionaleinternacional empaisagenstropicaismodernas.

Fonte: CasaCor Fonte: ArchDaily Fonte: Casa e Jardim Fonte: Veja Fonte: Clube Candeias Fonte: Inhotim
arquitetura paisagística

projetos paisagísticos em áreas privadas

Wonju, Coreia do Sul

Autor

O Museum San e também suas áreas externas foram projetadas pelo arquiteto japonês Tadao Ando.

O projeto estende-se por 700 m² ao longo da montanha,emqueoarquitetoTadaose proõe a criar um “museu-jardim no céu”. Foi inaugurado em 2013 como Museu Hansol e, posteriormenterenomeadocomoMuseumSAN em2014.

É composto por quatro caixas compridas unidas por pátios circulares e triangulares, além de jardim de flores, jardim aquático, sala de meditação e de exposição.

O projeto foi desenhado com caminhos que contornam todas as janelas a fim de permitir ver o exterior e apreciar o paisagismo enquanto anda, e criar um momento relaxante para interagir com a naturezaaoinvésdeapenasobservarasexposições.

Fonte: Museum SAN Fonte: Behance Fonte: Visit Korea Fonte: Museum SAN Fonte: Museum SAN
museum san
2013
arquitetura paisagística
Tadao Ando Promotor Privado Acesso Limitado
Fonte: Museum SAN

projetos paisagísticos em estruturas elevadas

cidade matarazzo

Bela Vista, São Paulo 2022

Autor

Louis Benech, Jean Nouvel

Promotor

Alexandre Allard

Acesso

Limitado

A Cidade Matarazzo foi projetada de modo que sua memória local fosse preservada, tal como uma mancha verde remanescente da Mata Atlântica. O projeto trouxe à área nobre de São Paulo mais de 10 mil árvores nativas, algumas delas com mais de 15 metros. Muitas delas espalhadas pelos andares da Torre Mata Atlântica.

O Projeto da cidade Matarazzo surgiu a partir do restauro de um complexo centenário com 10 edifícios tombados num terreno de 30.000 m², localizadonaemáreapróximaà AvenidaPaulista.

O projeto paisagístico para o Complexo Cidade Matarazzovisavacriarumespaçoquemisturasse elementos contemporâneos com referências históricas,valorizandoabelezaeafuncionalidade nolocal.

AlifuncionouoHospitalMatarazzoeaMaternidade Condessa Filomena Matarazzo, erguidos respectivamente em 1904 e 1943. Idealizado pelo imigrante italiano Conde Francisco Matarazzo, o antigo hospital foi desativado em 1993 e permaneceu abandonado durante 25 anos até ser adquiridopeloempresárioAlexandreAllard.

Fonte: RFM Construtora Fonte: Revista Restauro. Fonte: Ateliers Jean Nouvel Fonte: Grupo Allard Fonte: Revista Projeto.
arquitetura paisagística

projetos paisagísticos em estruturas elevadas

parkroyal collection pickering

Autor WoHa Architects

Promotor

Grupo Hoteleiro Pan

Acesso

Limitado

O ParkRoyal Collection Pickering é um hotel localizado em Singapura e é conhecido por sua arquitetura impressionante e seu compromissocomasustentabilidade.

O projeto do hotel inclui jardins verticais que envolvem suas torres, proporcionando uma sensação de “oásis urbano”. Esses jardins não oferecem apenas estética ao edifício, mas também auxiliam a reduzir o calor e melhorar a qualidade do ar ao redor.

Alémdisso,oParkRoyaléreconhecidoprincipalmente por suas práticas sustentáveis, incluindo o uso de energia solar, sistemas de coleta de água da chuva e materiais eco-friendly em sua construção. Tais esforços renderam ao hotel diversas certificações ambientais, incluindo o Green Mark Platinum, o mais altopadrãodesustentabilidadeemSingapura.

Algumas das árvores presentes no local são espécies locais,comoaPalmeiraArecaeaFigueira.Outrassão exóticas,porémseencontrambastantepresentesno paisagismodeSingapura,comoBambueCoqueiro.

Fonte: Singapore Tourism Board. Fonte: WoHa Architects. Fonte: MGS Archtecture. Fonte: WoHa Architects. Fonte: WoHa Architects. Clarke Quay, Singapura 2013
arquitetura paisagística

reinserção paisagística de estruturas existentes

high line

Manhattan, Nova York

Autor

Promotor

Acesso

O High Line é uma via elevada ferroviária transformada num parque linear localizado em Nova York, no lado oeste de Manhattan, queconectaosbairrosMeatpackingeChelsea. Alinhaferroviáriafoiconstruídanadécadade 1930 para transportar mercadorias até os bairrosindustriais.Noentanto,comodeclínio daindústriaeosurgimentodenovosmétodos de transporte, a linha ferroviária ficou obsoletaefoiabandonadanadécadade1980.

Duranteanos,oHighLinepermaneceuemestadode deterioraçãoatéque,em1999,umaorganizaçãosem fins lucrativos chamada "Friends of the High Line" foi fundada por dois moradores de Nova York com o objetivo de transformar a estrutura abandonada numparquepúblico.

O parque apresenta uma mistura de paisagismo contemporâneo, arte pública, espaços para lazer e vistas panorâmicas da cidade. Ao longo dos anos, novas seções foram adicionadas e o High Line se tornou um dos pontos turísticos mais populares de NovaYork,contribuindoparaa revitalizaçãodaárea aoredor.

Fonte: Afar Atlas Fonte: WordPress Fonte: Architonic Fonte: The Guardian Fonte: Frankfurter Brücken
2008
Piet Oudolf Poder Público
arquitetura paisagística
Livre

reinserção paisagística de estruturas existentes

parque da juventude

Santana, São Paulo

2006

Autor

Rosa Kliass

Promotor

Poder Público

Acesso

Livre

O local de implantação do parque era originalmente ocupado pela Penitenciária do Carandiru, encerrada em 2002, após décadas de operação. Após o fechamento, parte das estruturas foi demolida para revitalização. Desde 2003, o espaço foi transformado, com áreas esportivas e de lazer, destacando-se quadras e pistas de skate em 35.000 m². O projeto, liderado pela arquiteta paisagista Rosa Kliass, preservou ruínas do antigo pavilhão, conectadas por decks.

Em 2004 a segunda fase do projeto foi concluída,, incorporando uma área central e preservando elementos históricos, como os antigos muros e passarelas de vigilância. O antigo observatório foi reformado, para oferecer acesso a um mirante, permitindovistasdapaisagemedocórrego Carajás.O espaçode90.000m²foienriquecidocomáreasverdes e trilhas, com árvores como o pau-ferro. Em 2007, a área institucional foi inaugurada, incluindo uma praça, biblioteca e a Escola Técnica Estadual (ETEC), acessível pelaestaçãoCarandirudometrô.

Fonte: Acervo Aflalo/Gasperini Arquitetos Fonte: Vitruvius Fonte: Nelson Kon Fonte: ArchDaily Fonte: Acervo Aflalo/Gasperini Arquitetos
arquitetura paisagística

restauração e preservação em área pública

museu do ipiranga

São Paulo, Brasil

1895 (construção original) - 2013 a 2022 (preservação e restauro)

Autor

Tommaso Gaudenzio Bezzi (construção original); H + F Arquitetos (preservação e restauro)

Promotor

ArchDaily

O Museu do Ipiranga, em São Paulo, é um dos mais importantes centros culturais do Brasil, contando com grande acervo relacionado à história e cultura brasileira, que passou por extensarestauraçãoparapreservarosartefatose fornecer informações aos visitantes. O projeto de restauro inclui a preservação da estrutura principaldoPalácioIpiranga,bemcomo esforços para fortalecer sua infraestrutura e garantir suaestabilidadealongoprazo.

Além do reforço na estrutura, foi criado um novo setor integrado, que contém as áreas necessárias para o funcionamento do museu. Além do patrimônio arquitetônico, o projeto também envolve a preservaçãodeartefatos e obras de arte, utilizando diversas técnicas de conservação. A modernização das instalações é uma prioridade máxima, incluindoaadoçãodetecnologiasinterativase acessíveis.

Fonte: Forbes Brasil Fonte: ArchDaily
USP Acesso Livre
Fonte: ArchDaily Fonte: ArchDaily Fonte:
e restauro
Patrimônio

restauração e preservação em área pública

museu da língua portuguesa

São Paulo, Brasil

1895 a 1901 (construção original) - 2016 (preservação e restauro)

Promotor

Secretaria de Estado da Cultura

Acesso

Livre

Após um incêndio em 2015, o museu da Língua Portuguesa passou por uma grande reforma, com ênfase na reconstrução do edifício histórico e no desenvolvimento de instalações modernas. Algumas das principais intervenções são: a restauração da estrutura original do edifício, a aplicaçãodenormasdecombateaoincêndio ea alteraçãodacirculaçãoexistente daconstrução.

A modernização do museu inclui a adoção de tecnologias interativas, para obter uma compreensão mais profunda da história e da diversidadedalínguaportuguesa.Tambémforam feitasmudançaspara garantiraacessibilidade a todosospúblicos,promovendoinclusão.

Fonte: Portal G1
Fonte: ArchDaily Fonte: ArchDaily Fonte: ArchDaily
Patrimônio e restauro

restauração e preservação em área pública

museu acrópole

Dionysiou Areopagitou, Grécia 2009

Autor

O projeto de restauro do Museu da Acrópole em Atenas foi um empreendimento centrado na restauraçãodaestruturaenoaproveitamento do espaço, permitindo a exposição de mais artefatos e proporcionando circulações mais espaçosas. Além disso, osistemadeiluminação foitotalmentereformado.

Outra área foco é o uso de tecnologia interativa, incluindo telas sensíveis ao toque e dispositivos de realidade aumentada. Além disso, o projeto inclui melhoriassignificativasnaacessibilidadedomuseu, garantindo que pessoas com mobilidade reduzida possamteracessoàsexposições.

Fonte: ArchDaily
Promotor Greek State Acesso Livre
Fonte: ArchDaily Fonte: ArchDaily Fonte: ArchDaily Fonte: ArchDaily
e restauro
Patrimônio

restauração e preservação em área pública

moscow power station

Moscou - Rússia

1900 (construção original) - 2019 (preservação e restauro)

Autor

Vasili Bashkirov (construção original); Renzo Piano (preservação e restauro)

Promotor

Acesso

Livre

A renovação da Usina Elétrica de Moscou envolveu a preservação da estrutura original, a renovação do espaço para acomodar instalações mais modernas, a conversãodeantigassalaselétricasecaldeiras em galerias, teatros, salas de concerto e locais de entretenimento, e a reforma da infraestrutura elétrica,deiluminaçãoeventilação.

A restauração e mudança de uso da Usina Elétrica de Moscou não apenas preservou a história industrial da cidade, mas também permitiu a criação de um centro culturalqueatraivisitantesdetodoomundo.

Fonte: ArchDaily

Localizado na capital russa, foi originalmente construídacomoumacentraltérmicanoinício doséculoXX,parafornecerenergiaàcidade

Esta central era um exemplo de edifício industrial da era soviética, mas com o passar dosanos,aplantasetornoutecnologicamente desatualizada e seu uso diminuiu, levando à decisãodereformarolocalparaoutrosfins.A estaçãofoi,entãp,renovadaeconvertidanum espaço polivalente conhecido como "Arena Gazprom"em2019.

Fonte: ArchDaily Fonte: ArchDaily
e restauro
Patrimônio

restauração e preservação em área privada

prédio telesp

São Paulo, Brasil 1939 (construção original) - 2023 (preservação e restauro)

Autor

Ramos de Azevedo e Severo Villares (construção original); Metro Arquitetos (preservação e restauro)

Promotor

Metaforma Incorporadora

Acesso

Restrito

O prédio da Telesp, em São Paulo, foi construído em 1939 para sediar a da Companhia Telefônica Brasileira.Esseprédioseguiaa arquiteturamoderna da época. Após muitos anos em desuso, foi amplamente reformado e transformado em edifício adaptado, para acomodar uma variedade de espaços delazerecomércio,oferecendoumacombinação de históriaefunçãopararesidentesevisitantes.

Além disso, elementos de vegetação nativa foram incorporados à paisagem, como um jequitibárosanapraçacentraleumterraço com exemplares de espécies nativas da Mata Atlântica. O projeto também modernizou as instalações elétricas e hidráulicas paraeficiênciaenergética.

Fonte: Metro Arquitetos Fonte: ArchDaily Fonte: ArchDaily Fonte: Metro Arquitetos
e restauro
Patrimônio

restauração e preservação em área privada

Edifício

São Paulo, Brasil

1950 (construção original) - 2023 (preservação e restauro)

Autor

Oswaldo Bratke

Promotor

Incorporadora Planta INC

Acesso

Restrito

Originalmente construído como edifício de escritóriosnadécadade1970,oEdifícioRenata Sampaio, em São Paulo, passou por uma transformaçãonotável,passandodeum espaço comercial para edifício residencial. Abriga também umcentrocultural.

Antes da reforma, esse edifício já era um marco arquitetônico do centro de São Paulo. No entanto, comotempo,suainstalaçõessetornaramobsoletas e sua utilização diminuiu, o que levou à decisão de reforma. Esta preservou a estrutura original, transformando parte das áreas comuns em galeria de arte, teatro e espaço expositivo. Melhorias na infraestrutura, como iluminação e sistemas de segurança,estãoemandamento.

Fonte: Estadão Fonte: Estadão Fonte: Metro Arquitetos renata sampaio Fonte: Metro Arquitetos Fonte: Metro Arquitetos
Patrimônio e restauro

restauração e preservação em área privada

casa de higienópolis

São Paulo, Brasil

1939 (construção original) - 2009 (começou) (preservação e restauro

Autor

Carlos Leôncio de Magalhães (construção original); Antônio Sarasá (preservação e restauro)

Promotor

Grupo Malzoni

Acesso

Restrito

A Casa Higienópolis, também conhecida como Palacete de Nhonhô Magalhães, foi construídaem 1939,inspiradanospalacetes franceses do século XIX. Em terreno com maisde7.000m²,acasaapresentaáreatotal de 2.500m² em 5 pavimentos. Atualmente, além de abrigar alguns eventos culturais, corporativos e privados, também oferece visitasmonitoradas.

No ano de 1994 a casa foi tombadacomopatrimônio histórico emnívelmunicipalpelo COMPRESP (Conselho Municipal de Preservação de Patrimônio Histórico, CulturaleAmbientaldaCidadedeSãoPaulo)eestadual pelo CONDEPHAAT (Conselho de Defesa de Patrimônio Histórico, Arqueológico, Artístico e Turístico do Estado de São Paulo), por a sua relevância arquitetônica, históricaecultural.

Em2009,oprocessoderestauroenvolveu uma pesquisa detalhada sobre sua históriaearquiteturaoriginal,seguidapor técnicas de restauração específicas, como análise e reparo de danos em pisos, paredes e fachadas, usando materiais e métodos autênticos da época de sua construção.Medidasforamtomadaspara garantir a estabilidade estrutural e a segurançadoedifício.

Fonte: Casa de Valentina Fonte: Casa de Valentina Fonte: Casa de Valentina Fonte: Casa de Valentina
e restauro
Patrimônio

restauração e preservação em área privada

escola rainha martha

Kaunas, Lituânia

2021

Autor

Architectural Bureau G.Natkevicius & Partners

Promotor

Poder Público

Acesso

Restrito

A escola Rainha Martha ocupa um prédio histórico que servia como depósito bélico, pertencente às forças armadas locais. Originalmente de um único andar,foiampliadoparaincluirumasegundalaje.O projeto do novo telhado é plano e em chapas de aço corten, tipo de tratamento em oxidação controlada.

A equipe de arquitetos foi chamada a converter o antigo quartel tombado no distritodeŽemiejiŠančiai emumaescola, dando-lhe um novo uso e trazendo vitalidade para o entorno. O escritório procurou não perder as características tradicionais, preservando os detalhes daquela época e implementando novas particularidadedosdiasatuais,unindodois períodoshistóricosdiferentes.

Fonte: ArchDaily Fonte: ArchDaily
e restauro
Patrimônio Fonte: ArchDaily

sistemas de transporte

Plano de mobilidade de belo horizonte

Belo Horizonte, Minas Gerais 2018/2019

Autor

Poder Público

Promotor

SEINFRA e Agência RMBH

Acesso

Livre

Oplanotemcomoobjetivo apresentarestudos paradefiniçãodepolíticas e de uma carteira de projetos e ações para melhoria das condições de mobilidade urbana na RMBH e suasustentabilidade.

Outroobjetivoéodepromoveroalinhamentoe o aprimoramento de soluções integradas de transporte ao estímulo do desenvolvimento econômico do Estado e ao aperfeiçoamento do ordenamentodousoeocupaçãodosolo.

O Plano de Mobilidade -PlanMob-BH- está dividido em oito eixos: Cidade Sustentável, Mobilidade Coletiva, Circulação Calma, Mobilidade Individual Motorizada, Logística Urbana, Fiscalização e Operação, Mobilidade Ativa eAcessibilidadeUniversal.

Existem muitas políticas e ações no PlanMob-BH que valemparatodasasregiõesouquepodemmelhoraro centro da cidade, onde convivem pessoas de todos os bairros e mesmo dos municípios da Região Metropolitana.

Fonte: Agência RMBH Fonte: PlanMobBH Fonte: PlanMobBH
planejamento regional

sistemas de transporte

Plano de mobilidade de vancouver

Vancouver, Canadá 2012

Autor

Poder Público

Promotor

Cidade de Vancouver

Acesso

Livre

O transporte na área do plano é composto por ônibus,metrô,streetcar (bonde quecirculaentre as ruas da cidade e que está interligado com as linhas do metrô), trem e seabus (balsa que interliga Vancouver à costa norte da região metropolitana)

Estabelecer um novo tipo de vida nas cidades é a essência do vancouverismo. A expressão vem sendo adotada para referenciar iniciativas de planejamento urbano pautadas por zoneamento sustentável para criação de bairros completos, conectados e culturalmente vibrantes para a conquistadecidadessustentáveis.

A meta de Vancouver é utilizar apenas energia proveniente de fontes limpas. Os cidadãos impediram a construção de rodovias, e hoje, Vancouveréa únicacidade naAméricadoNortea nãoterrodoviasdentrodeseuslimitesurbanos.

Fonte: ArchDaily Fonte: VancouverMap Fonte: ArchDaily
planejamento regional
Fonte: ArchDaily

turismo

Plano de turismo de veneza

Veneza, Itália

2016

Autor

Luigi Brugnaro

Promotor

Administração Municipal de Veneza

Acesso

Livre

O Plano de turismo em Veneza está em constante crescimento. Sendo uma das principais cidades da Itália, recebe uma quantidadesignificativadeturistasporano. Segundo uma pesquisa recente da CBS News, Veneza se torna a primeira cidade do mundo a cobrar uma taxa de entrada aos turistas, apenas para visitar canais históricos eatraçõesdacidade.

O objetivo essencial para a governança de turismo em Veneza é a criação de políticas financeiras para equilibraroscustosextrasdeacordocomosfluxos, voltados para a valorização da cidade, recebendo seus visitanteseprotegendoseusmoradores.

As autoridades locais que gerenciam esse territórioevitama proliferação da monocultura turística, apoiando o crescimento de uma economia cada vez mais articulada, na qual excelentes funções podem serem reconhecidas, como: PortodeVeneza e o Complexo Industrial relacionadodo PortodeMarghera.

O Conselho Municipal de Veneza pretende iniciar acordoscomportaison-lineparareservas,afimde identificar métodos pelo quais os operadores de portais possam fazer o pagamento direto do impostodoturísticoaotesourodoMunicípio.

Fonte: Comune Venezia Fonte: Comune Venezia Fonte: Comune Venezia
planejamento regional
Fonte: Comune Venezia Fonte: Comune Venezia

Programa de regionalização do turismo

São Paulo, Brasil 2022

Autor

Secretária de Turismo e Viagens do Estado de São Paulo

Promotor

Ministério do Turismo

Acesso

Livre

O Programa de Regionalização do Turismo aborda este tema como um viés para o desenvolvimento econômico e social sustentável no território paulista. Com isso, a SETURSP desenvolve um planejamento de pontos turísticos através de pesquisasprotodooestadodeSãoPaulo.

Aideiadesteprojetoéaclassificaçãodosmunicípios seguindo suas qualificações turísticas, a fim de realocar verba e investimentos para estes lugares. Permeia-se a preservação do meio ambiente e tambémamelhoradeindicadoressociaisdoestado.

O estimulo da atividade turístico da SETURSP tem comobasea Agenda2030daONU,atravésdalinha de Objetivos de Desenvolvimento Sustentável. Isto se dá pelos resultados gerados, como promover empregosnosmunicípiosvoltadosparaoturismoe impulsionarumcomérciosustentável.

Dessa forma, os estudos deste programa vem cada vez mais investindo em diferentes métodos que evitem encarecer os pontos turísticos paulistas e mantenham a faunaefloralocalintacta.

Fonte: Site Oficial Ministério do Turismo
planejamento regional turismo
Fonte: Site Oficial Ministério do Turismo

Plano dIRETOR DE SãO PAULO

São Paulo, Brasil

2014

Autor

Poder Público

Promotor

Câmara Municipal

Acesso

Livre

Lei municipal aprovada pela Câmara Municipal, que rege o desenvolvimento e crescimento urbano de umacidade. Seuobjetivoémelhorarosaspectosea qualidadedevidadaspessoas.Tendoacessoàsleis,o cidadão possui uma importante participação no processo, o que o permite assimilar e opinar a respeito do que está sendo feito no local em que mora. É obrigatória a sua realização para municípios com mais de 20 mil habitantes, com revisões necessáriasdoplanoacada10anos.

O Plano Diretor Estratégico (PDE) do Município de SãoPauloéalei n.º16.050.Pormeiodelebusca-se a promoção de uma cidade democrática, ambientalmenteresponsáveleinclusiva.Sãoparte do PDE a delimitação das Zonas Especiais de Interesse Social, a expansão das redes de mobilidadeeacriaçãodefachadasativas.

Fonte: Plano Diretor SP

Alémdisso,oPDEestruturaasdinâmicas metropolitanas de São Paulo com foco nos seus principais rios: Tietê, Pinheiros e Tamanduateí, e na orla ferroviária, onde estão agrupadas as atividades econômicas e espaços em processo de transformação.

Fonte: Plano Diretor SP Fonte: Plano Diretor SP Fonte: Plano Diretor SP
planejamento regional plano diretor

Plano dIRETOR DE PORTLAND

Portland, Oregon 2017

Autor

Departamento de Planejamento e Desenvolvimento Urbano

Promotor

Conselho Municipal

Acesso

Livre

Assim como o Plano Diretor de São Paulo, existem diversos outros ao redor do mundo que procuram realizar o ordenamento territorialdascidadesemsuasáreasurbanas.

Como exemplo, o plano de Portland busca atenderasnecessidadesdeseusmoradorese

incluí-los cada vez mais na tomada de decisões,pormeiodaconexãoentre 6temas principais que constituem uma Declaração de Visão, que destaca as prioridades e políticasdacidade. Sãoeles:

UsodeTerraExistente:

EspaçoAberto EspaçoAberto

Industrial Industrial Institucional Institucional Transporte Transporte

Residencial Residencial

Misto/Comercial Misto/Comercial

Segurança - Compaixão na tomada de decisões; habitação e alimentação para todos;governotransparenteeacessível Autenticidade - Investimento e apoio da economialocal

Conexão - Entre a população, estado e região; maior envolvimento da sociedade; ligaçõesentretrabalho,lazerecomércio

Equidade - Diversidade, inclusão e acolhimento para todos os tipos de pessoas

Sustentabilidade - Reconhecimento de suasresponsabilidadesperanteoclimaea vegetação;novastecnologias;preservação danatureza

Dinamismo - Maiorvalorizaçãodaartee da cultura local; ambiente que incentive o cidadãoeacidadania

Fonte: City of Portland, Maine

PadrãodeDesenvolvimentoUrbano

Definido:

Escritório/Comércio Escritório/Comércio

Marinha Marinha

Fabricação Fabricação Infraestrutura Infraestrutura

Hotel Hotel

Institucional Institucional Residencial Residencial Misto Misto

Fonte: City of Portland, Maine
planejamento regional
plano diretor

requalificação de espaços públicos

Madríd-Río

Madrí, Espanha 2015

Autor

Burgos & Garrido Arquitectos/ Porras La Casta/ West 8/ Rubio & A-Sala

Promotor Prefeitura de Madrí

Acesso Livre

Em 2003 a prefeitura de Madrí decidiu realizar uma intervenção na orla do rio da cidade, que abrigava em suas margens trechos da rodovia conhecidacomoM-30.

Responsável pelo projeto, o arquiteto Ginés Garrido, deixa claro que a intenção de sua equipe era transformar a atividade da região e reconectar as pessoas com o rio. Para ele, a execução da obra é importante para afirmar quaissãoasprioridadesdacidade: aspessoas.

Eletambémreforçaaimportânciadointeressee esforço da prefeitura da cidade, que investiu cerca de 5 Bilhões de euros na obra. O projeto previu o soterramento das vias para que a utilização do espaço, antes de uso exclusivo de automóveis, transformasse inteiramente a paisagemeavida daspessoasnaregião.

Fonte: ArchDaily Fonte: ArchDaily
urbanos
Fonte: ArchDaily projetos

requalificação de espaços públicos

CAntinho do cÉU

São Paulo, Brasil 2009-2012

Autor

Boldarini Arquitetos Associados

Promotor

Prefeitura São Paulo

Acesso

Livre

O Parque Cantinho do Céu está localizado no extremo da zona Sul, na região do Grajaú; atende a comunidade do complexo do Cantinho do Céu, que possui cerca de 10 mil famílias.Osórgãosdeplanejamentoepolíticas urbanas da prefeitura de São Paulo reconheceram a situação sanitária crítica na região eentãorealizaramumaintervençãono local.

Os autores do projeto evidenciam a complexidade da realização de um projeto naquela região, devido à condição socioespacial e ambiental. Os arquitetos encontraram soluções de requalificação que atendiam todos os públicos e permitiam uma aproximação maior da comunidade com a represa,agora,deformasegura.

As novas áreas também trouxeram novas utilizaçõesaoespaço,commobiliáriourbano,e quepermitiramà populaçãodarpropósitoao local. O programa se estende por uma das margens da Represa Billings. Parte do projeto já está entregue e o restante ainda está em execução.

Fonte: Boldarini Fonte: Boldarini Fonte: ArchDaily Fonte: Boldarini
urbanos
Fonte: Boldarini
projetos

PROJETOS DE HABITAÇÃO EM ESCALA URBANA

Favela do Sapé

São Paulo, Brasil 2014

Autor

Pessoa Arquitetos

Promotor

Secretaria da Habitação Municipal de São Paulo

Acesso

Livre

A Reurbanização da favela do Sapé é um projeto da Secretaria da Habitação Municipal de São Paulo, motivado pela faltadeinfraestruturaurbana naáreadacomunidade dobairrodeRioPequeno.

Tevecomoobjetivoaintegraçãodafavelacomorestantedo tecidourbanotantoemquestãode infraestrutura comoem relação às vias, remoção das famílias em situação risco, projeto de drenagem, rearborização e implantação de áreas verdeseutilizaçãodeespaçosvoltadosparaocomércio,em funçãode oportunidadesderendaparaosmoradores.

A integração das áreas verdes foi considerada na reurbanização; foi proposto um caminho verde ao redor de todaapassarelanoentornodocórrego,comaproposiçãode áreas de lazer; as áreas livres públicas, coletivas e privadas receberam funções de permeabilidade e por fim podemos citar a presença de jardins no desenho urbano. A drenagem procurou respeitar ao máximo a topografia original do leito.

Fonte: Pessoa arquitetos Fonte: Pessoa arquitetos
projetos urbanos
Fonte: Pessoa arquitetos Fonte: Pessoa arquitetos

PROJETOS DE HABITAÇÃO EM ESCALA URBANA

rive Gauche

Rive Gauche, Paris

Desenvolvido em 1983

Autor

Atelier Parisien de Urbanisme

Promotor

Câmara Municipal de Paris

Acesso

Livre

Devido à escassez de moradias, além dos conflitos sociais e à necessidade de recuperar uma área bastante degradada e industrial, no Leste de Paris, juntoàmargemdorioSena,nofinaldadécadade1980, um novo bairro foi proposto. Escolas, edifícios comerciais e habitacionais, teatros e a importante Biblioteca Nacional da França Presidente François Mitterandforaminstaladosali.

Critérios de sustentabilidade um conjunto de projetos sociais orientaram projeto e obra, com foco na necessidadedenovosempregos,transporteelazer.

Cerca de 20% do território foi, então, destinado ao uso residencial, com cinco mil unidades habitacionais, distribuídas entre unidades para estudantes, unidades de interesse social e iniciativa privada. Cerca de 18% da área foi dedicada aos serviços, como escolas e faculdades.

Fonte: Institut Paris region Fonte: Semapa
projetos urbanos
Fonte: Institut Paris region Fonte: Institut Paris region

praças como conexões

praça Franklin roosevelt

São Paulo, Brasil

1970 - 2012

Autor

Antonio Augusto Antunes Netto, Marcos de Souza Dias, Roberto Coelho Cardozo, Borelli & Merigo

Promotor

Prefeitura do Município de São Paulo

Acesso Livre

A Praça Franklin Roosevelt foi projetada pelo ArquitetoPaisagistaRobertoCoelhoCardozo na década de 1970 e inserida durante as grandes obras viárias implantadas entre 1950 e 1980.

Nomeada por ele como edifício-praça, este espaço público serve de cobertura para um complexo viário subterrâneo. Em sua superfície há um conjunto de floreiras, espaços de convivência e uma estrutura pentagonal nomeadade PraçaMaior.

Em 2010 o escritório Borelli e Merigo foi responsável pela reforma da praça e por estabelecer novas conexões com o tecido urbano. Foram criadas outras áreas de convivência, conjunto de rampas e escadas, áreas para jardins, área para cachorro e um parque infantil. Na reforma a estrutura pentagonalfoidemolida.

Fonte: Arquivo arq Fonte: Arquivo arq Fonte: Google Earth
urbanos
Fonte: Borellimerigo
projetos

praças como conexões

superkillen

Copenhague, Dinamarca

2012

Autor

Grupo Bjarke Ingels, Superflex Arquitetos Paisagistas

Promotor

Município de Copenhague

Acesso

Livre

Situado na Dinamarca, o Superkilen é um espaço público com comprimento total de 800 metros queatravessaumdosbairrosdacidade.

É um espaço que conta com mobiliário e objetos vindosdediversospaíses,comobancos, postes de iluminação e lixeiras. Também é separado em trêszonas e cores, sendo a área vermelhaazonadeatividades,aáreapreta,um pontodeencontroeaáreaverde,delazer.

Essa diferenciação de áreas forma diferentes tipos de ambientes e configura diferentes tipos de exposições do mobiliário. Como espaço que conecta a cidade, Superkilen reorganiza a infraestrutura existente no local e cria conexõesentrebairros.

Fonte: ArchDaily Fonte: ArchDaily Fonte: ArchDaily
projetos urbanos
Fonte: ArchDaily

instalações temporárias - pavilhões

Hyde Park

Londres, Inglaterra

2003

Autor

Oscar Niemeyer

Promotor

Serpentine Galleries

Concebido pelo arquiteto Oscar Niemeyer, o pavilhãode2003dasérieanualdaSerpentine Gallery, consistia em uma estrutura elegante e com uma cobertura curvilínea, construída em aço, alumínio, concreto e vidro, materiais característicos da arquitetura moderna e marcantesnaobradoarquiteto.

"UmdosúltimosprojetosqueelaboreifoioPavilhãopara oHydeParkdeLondres.AdiretoradeSerpentineGallery, Julia Peyton Jones, foi clara: "Queremos qualquer coisa que exprima a sua arquitetura.' Era um pavilhão de proporções reduzidas. Suspendi a construção um metro do solo, procurando com isso mostrar a leveza arquiteturalqueprefiro.

E,considerandooespaçointerno,deiàcobertura a liberdade plástica que caracteriza o meu trabalhodearquiteto."

OSCAR Niemeyer, minha arquitetura, 1937-2004. RiodeJaneiro:Revan,2004.p304.

Compisoprincipalelevadodosolo,quedava essa ideia de leveza, o acesso dos visitantes acontecia por uma rampa vermelha brilhante bem em frente ao pavilhão. O pavilhão contou com salão principal aberto para a paisagem londrina e com bar orientadoauma janelaoval queenquadrava oparque.

Assim como em outras construções do arquiteto, havia desenhos do mesmo nas paredes; os móveis que também foram projetadosporele.

Fonte: Fundação Oscar Niemeyer
projetos efêmeros
Fonte: Fundação Oscar Niemeyer

instalações temporárias - pavilhões

Londres, Inglaterra 2023

Autor

Lina Ghotmet

Promotor

Serpentine Galleries

Acesso

Livre

Com o título de “À Table”, o Pavilhão projetadopelafranco-libanesaLinaGhotmet, tem como proposta uma estrutura construída predominantemente com materiais de origem biológica e de baixa emissão de carbono. Apresenta a forma de polígono regular de nove lados, encimado por telhado plissado. Ao entrar no pavilhão um anel de mesas e bancos convida o visitante a sentar, comer, relaxar e trabalhar de modo coletivo, permitindo a formação de novasrelações.

“À table é um convite a conviver no mesmo espaço e à volta da mesma mesa. É um encorajamento para entrar em diálogo, para convocar e pensar sobre como poderíamos restabelecer nossa relação com a natureza e comaTerra.-LinaGhotmeh“.

A entrada de ventilação e luz natural no espaço é proporcionada por painéis de madeiraquecontamcompadrõesrecortados em forma de plantas e um óculo central. O pé-direito baixo roporciona um espaço confortáveleintimista paraosvisitantes.

Eu adoraria que as pessoas se sentissem realmente encapsuladas de certa forma, que sentissemqueestãoaquiparausaresteespaço, para morar aqui e ao mesmo tempo serem transportadas e talvez, também, terem uma sensaçãodepaz,delentidãoedetranquilidade. -LinaGhotmeh”.

À Table
Fonte: Iwan Baan, Courtesy: Serpentine. Fonte: Sketch by Lina Ghotmeh.
efêmeros
Fonte: Iwan Baan, Courtesy: Serpentine.
projetos

instalações temporárias - expografia

Quilombo:

vida, problemas e desejos da população negra

Brumadinho, Minas Gerais - Brasil 2022

Autor Metro Arquitetos Associados

Promotor

Instituto Inhotim

Acesso

Livre

O projeto expográfico foi desenvolvido a partir da setorização presente na exposição, dividida em cinco atos, mas mantendo a amplitude que Galeria Fonte possui em sua arquitetura. Lâminas de madeira e ferro foram projetadas para suporte das obras, estabelecendo unidade para a exposição e guiando os visitantes pelo percurso expositivo.

Quilombo: vida, problemas e desejos da populaçãonegra ficouexpostanoInstituto

Inhotim de novembro de 2022 a julho de 2023, contando com uma coletânea de obras de mais de 30 artistas negros, colocando em pauta discussões sobre como era a vida deste grupo social no período em que estas obras foram realizadas e como se encontra no cenárioatual.

Fonte: Metro arquitetos Fonte: Metro arquitetos Fonte: Metro arquitetos
projetos efêmeros
Fonte: Metro arquitetos

instalações temporárias - expografia

La TrÈs Grande Librairie

Nantes, França 2003

Autor

Beijamin Avignion

Promotor

Le Livre et L’Art Festival

Acesso

Livre

"La Très Grande Librairie" é um pavilhão concebidoparao "LeLivreetL'ArtFestival",onde se unem arquitetura sustentável e literatura. O projeto engloba três bibliotecas abertas ao público, distribuídas pelo espaço, com uma configuração simpleseutilizandomateriaisreaproveitados.

O projeto propõe várias atividades interativas e exposições relacionadas à leitura e à escrita. Incluigrandesestantesdelivros,abrigasessões de autógrafos com autores famosos, palestras, debates, workshops de escrita criativa e muito mais. É um espaço onde os amantes da literaturapodemexplorarnovoslivros,interagir com autores e participar de eventos culturais relacionadosàleitura.

Apenas dois materiais foram utilizados no pavilhão. Na parte inferior, paliçadas de madeira e, na parte superior do pavilhão, caixasdepapelão. Esteprojetosedestacaporsuasignificativa contribuição para a promoção da literatura e da cultura, ao oferecer um espaço de acessolivre ecomatividadesgratuitas.

Fonte: Avignon Arquitetos Fonte: Avignon Arquitetos Fonte: Avignon Arquitetos - Perspectiva 3D Implantação
projetos
Fonte: Avignon Arquitetos - Implantação
efêmeros

Carandiru: O Filme

São Bernardo do Campo, Brasil. 2003

Direção

Hector Babenco

Promotor

HB Filmes

Cenografia

Vera Hamburguer

O estilo da arquitetura e a tipologia da paisagem dão o tom do filme. Elementos visuais poderosos são capazes de levar o espectador muito além da ambientaçãodospersonagens.’VeraHamburguer.

Os cenários para o filme foram majoritariamente construídos nos estúdios Vera Cruz. Apenas o Pavilhão 2 do próprio complexo penitenciário foi usado. Neste, espaços foram ambientados para reproduzir locais já não existentes ou que não poderiam ser usados por estarem ainda ativos. A utilização do pavilhão remanescente adaptado é umexemplopráticoda manipulaçãodoslugares através da cenografia. A imagem de Nossa Senhora a bandeira do Brasil foram pintadas para reproduzir o Pavilhão 9 - local do fatídico evento conhecidocomoOMassacredoCarandiru.

Desenhos, escritas e colagens existentes nas celasreaisforaminseridasnacenografia,sendo agrupadas com base nas características comportamentais do personagem que habitaria aquela cela. Vera Hamburguer relatou que o processodecriaçãofoi“umtrabalhoquasede escultura”.

As paredes das celas continham rodinhas para possibilitar a movimentação e a alteração do layout de acordo com a dinâmica de filmagem dascenas.

Fonte: Arte em cena: A direção de arte no cinema brasileiro Fonte: Arte em cena: A direção de arte no cinema brasileiro Fonte: Arte em cena: A direção de arte no cinema brasileiro
projetos efêmeros
Fonte: HB filmes
cenografia - audiovisual

O Grande Hotel Budapeste

Alemanha

2014

Direção

Wes Anderson

Promotor

FOX Searchlight e Indian Paintbrush

Cenografia

Adam Stockhausen

WesAnderson optouporfazerosefeitosvisuais do filme de forma prática. Começando pela maquetequefoiutilizadanofilme,com1,5mde altura, projeto feito pelo designer de produção AdamStockhausen.

O projeto de cenografia foi fundamental para a premiaçãodofilmenoOscar,comosprêmiosde "Melhor Direção de Arte", "Melhor Figurino",, "MelhorMaquiagemePenteado"e"MelhorTrilha Sonora".

Na década de 1930, o gerente de um famoso hotel europeu se torna muito amigo de um jovem aprendiz novo no trabalho. Os dois acabam se envolvendo em um roubo de um famoso quadro de valor inestimado e na batalha por uma fortuna de família. O filme contacomumanarrativaquemisturacomédia, drama e elementos de aventura. Ambientado duranteaSegundaGuerraMundial,mostracom muita clareza as mudanças históricas ocorridas na Europa.

No processo de criação dos cenários do filme é evidente o estudo meticuloso da arquitetura da Europa Central da época. Edifícios, palácios e hotéisluxuososforamfontesdeinspiraçãopara os cenários extravagantes e imersivos que o filmeapresenta.

Além disso, destaca-se o uso da simetria, marcaregistradadeWesAnderson.

Fonte: Architectural Digest Fonte: Carls Prague Fonte: ArchDaily
Qc
efêmeros
audiovisual
Fonte: Cinemá Téque
projetos
cenografia -

cenografia - teatral nós

Belo Horizonte, Minas Gerais 2016

Direção e Dramaturgia

Marcio Abreu e Eduardo

Moreira

Promotor

Grupo Galpão

Cenografia

A cenografia de Nós foi desenhada a partir de uma semi-arena, de modo a dividir a plateia em três seções. Todo o processo projetual foi paralelo ao processo de criação da dramaturgia. Marcelo Alvarenga, arquitetocenógrafo responsável pelo projeto, relata a experiência como desafiadora por não seguir uma linearidade, diferente do projeto arquitetônico clássico. Os únicos elementos norteadores do projeto foram estabelecidos a partir dos improvisos do grupo: a mesa central onde se preparou a sopa e a sensação de interior e exterior necessária para a construção da dramaturgia, resolvida a partir da parede de fundo do cenário, que possuía mecanismos para ser “aberta”, simulando uma espéciedealçapão.

O grupo convida a plateia a uma imersão através da aproximação e inserção ao longo do espetáculo, discutindo [...]questões atuais, como violência e intolerância, a partir de uma dimensão política [...] (sinopse Grupo Galpão). Tudo isso enquanto preparam juntos, plateiaeatores,umaúltimasopa.

[...] Os espaços construídos precisam ser transformadosemespaçosocupadoseoseventos teatraistemessepotencialdeconferirsignificados às edificações. Assim, arquitetura e teatro podem ser agentes de transformação social.” Silva e Bauermann.

Fonte: Grupo Galpão Fonte: Silva e Bauermann. O Espaço Encena: Teatralidade e performatividade na cenografia contemporânea. Fonte: O Espaço Encena: Teatralidade e performatividade na cenografia contemporânea
projetos efêmeros
Fonte: Grupo Galpão Marcelo Alvarenga

cenografia - teatral

Hamilton

Nova York, Estados Unidos

2015

Direção

Thomas Kail

Promotor

Broadway e Disney

Cenografia

David Korins

O cenário do premiado musical "Hamilton", projetado por David Korins, é uma parte essencial da experiência teatral imersiva que encantou audiências globais. Combinando história, inovação, música e teatro, ele transporta o público para a atmosfera dos Estados Unidos durante a revolução americana,contandoahistóriaeaascensãodo político Alexander Hamilton, um dos “Pais Fundadores”dopaís.

Aparentemente simples, com uma parede de tijolos em construção ao fundo, passarelas, andaimes, escadas e plataformas criam uma sensação de ascensão e progresso, refletindo a trajetória do protagonista e da sociedade. Um elemento crucial é o piso giratório central, compostoporduaspeçasdemadeiraquegiram independentemente e permitem que os atores permaneçam parados enquanto giram simultaneamente.

“O que torna o cenário especial é como ele serve o show”,Korins

O projeto cenográfico de "Hamilton" é complementadoporuma iluminaçãocriativae dinâmica,quedestacaaspectosimportantesdo cenário e direciona o foco da audiência. O uso decoresetexturascontribuiparaestabelecero contexto histórico e a atmosfera emocional de cadacena.

Fonte: David Korins Design Fonte: David Korins Design Fonte: David Korins Design
projetos efêmeros
Fonte: David Korins Design

projetos emergenciais - habitação

AparceriafeitapelafundaçãoIKEAjuntocomoACNUR temcomoprincipalfocoentregarumabrigotemporário para refugiados que sofreram em conflitos armados, perseguições ou desastres naturais, de forma digna, funcional e sustentável, sanando todas as necessidades davidacotidianadeformasimples.

O abrigo está pensado para chegar ao campo desmontado, em embalagens planas e todos os equipamentos necessários para a sua montagem vem juntamente com as instruções para a sua realização. Contempla, além de todos os elementos da edificação, painéissolareselâmpadas,visandoaboailuminaçãodo ambiente, assim como o abastecimento dos sistemas elétricosdoabrigo.Podepermanecermontadoporaté 3 anos e seu transporte, também pensado, é de fácil entrega, baixo custo e garantem a segurança dos moradores.

de Refugiados (Oeste da Etiópia)
África 2009 Autor Ikea Promotor UNHCR
Ikea House Campo
,
Fonte: Better Shelter
projetos
Fonte: Better Shelter
efêmeros

projetos emergenciais - habitação

Vila Reencontro

Unidades

Santo Amaro - SP / Cruzeiro do Sul - SP / Anhangabaú - SP / Pari - SP / Guaianases - SP 2022

Promotor

Eixo Cuidado do Programa ReencontroSecretaria Municipal de Assistência e Desenvolvimento Social (SMADS)

Acesso

Limitado

O projeto estabelece um tempo máximo de permanência de 1 ano, tempo em que as famílias conseguiriam se recolocar no mercado de trabalho, voltar a estudar, procurar um lugar fixo, juntar dinheiro,etc.

Além de moradia, o programa oferece atividades paracrianças,auxíliofinanceiroealimentação.

A Vila Reencontro é parte do programa gerenciado pela Secretaria Municipal de Assistência e Desenvolvimento Social do município de São Paulo, focado em fornecer moradiaparapessoasefamíliasemsituaçãode rua, a partir do reuso de containers. O objetivo do projeto é contribuir para a qualificação profissional das pessoas e para a reconstrução desuasvidasemtodososaspectos.

É importante ressaltar que o projeto está pensado para execução rápida, reutilizando containersemdesuso.NaVila,aimplantação propõe blocos lineares de dois containers sobrepostos, organizados para a criação de pequenospátios.Outrasedificaçõesdeapoio compõemoconjuntoqueintegrahabitaçãoe assistênciasocial.

Fonte: Gazeta de Pinheiros Fonte: Prefeitura de São Paulo Fonte: Diário Zona Norte
projetos efêmeros
Fonte: Gazeta de São Paulo

projetos emergenciais - hospital

Projeto Pacaembu

Estádio do Pacaembu, São Paulo, 2020

Gestão

Sociedade Beneficente Israelita Brasileira Albert Einstein (SBIBAE)

Promotor

Secretaria Municipal da Saúde

O Hospital de Campanha Pacaembu permaneceuemoperaçãoentre6deabrile29 de junho de 2020, para assistir a pacientes durante a epidemia de COVID-19. Nesse períodoforaminternadosali 1.515pacientes, comumataxadesobrevidade99,8%.

Suaestrutura,prontaparareceberpacientesem apenas duas semanas, contava com duas grandes tendas instaladas por uma empresa de engenharia especializada em módulos como esses, com 200 leitos distribuídos em 10 alas e todos os equipamentos necessários para a internação de um paciente. Cada leito contava com um banheiro com chuveiro e saídas de oxigênio. Dezesseis leitos de terapia intensiva para pacientes mais graves contavam com uma maiorvariedadedeaparelhosmédicos.

O Hospital de Campanha do Pacaembu (HCP), desenvolvido unicamente para pacientes com suspeita ou confirmação de COVID-19, aceitava apenas pacientes adultos que não poderiam ser internadosemregimeambulatorial,aliviandoleitos hospitalares de maior complexidade, deixando-os livres para pacientes mais graves. O hospital temporário não aceitava internações voluntárias, eram aceitos apenas aqueles selecionados pelo Serviço de Regulação do Município que seguiam umasériederequisitosparaaprovação.

Fonte: Prefeitura de São Paulo Fonte: Prefeitura de São Paulo Fonte: Prefeitura de São Paulo
projetos efêmeros
Fonte: Prefeitura de São Paulo

projetos emergenciais - hospital

Hospital Houshenshan

Wuhan, China, 2020

Gestão

Exército Popular da Libertação (ELP)

Promotor

Prefeitura de Wuhan

OHospitalHoushenshanfoitambémconstruído para assistir a pacientes durante a epidemia de COVID-19. Ficou em operação de 23 de janeiro de 2020 a 2 de fevereiro de 2020, salvando a vidademuitaspessoasafetadaspeladoença.

Feito e pensado na urgêncianecessária, o hospital foi construído por meio de módulos pré-fabricados, em que, em apenas 10 dias, mais de mil pessoas trabalhavamemimplantarosmódulos,nainstalação elétricaenorevestimentocomplacasdepoliestireno expandido(EPS),paraisolamentotérmicoeacústico.

A estrutura possuía um total de 25 mil metros quadradosemaisde milleitos .

Diversos cuidados foram tomados, não somentecomostrabalhadoresdaobra,mas também com a proteção do Lago Zhiyin, importante para região, para onde nenhum tipo de resíduo hospitalar poderia vazar, já queissoafetariacentenasdemoradores.

O hospital possuía também centros de tratamentointensivoparaadoença.

Fonte: ArchDaily Fonte: Folha UOL Fonte: ArchDaily
projetos efêmeros
Fonte: ArchTrends

historiografia e crítica

Formação

Arquiteto pela Escola Técnica Superior de Barcelona

Atuação

Arquiteto urbanista, historiador, escritor e professor catedrático na ETSAB

Obra

Arquitetura e Crítica

“Numa primeira definição a crítica implica um julgamento estético. Tal julgamento consiste em uma valoração individual da obra arquitetônica empreendida pelo crítico a partir da complexidade da bagagem de conhecimento de que dispõe, da metodologia que utiliza, de sua capacidade analítica e sintética, bem como de sua sensibilidade, intuição e gosto.[...]

A atividade do crítico consiste em compreender a obraparaqueseuconteúdopossaserexplicado aopúblico.”- Montaner,ArquiteturaeCrítica

O livro de Josep Maria Montaner “Arquitetura e crítica”,éumexamecríticodastendênciasedos debates contemporâneos na arquitetura. Questiona e pontua a importância da crítica arquitetônicacomoferramentacapazdemoldar aformacomqueconcebemoseconstruímosos espaços.

pesquisa e crítica

Fonte: Revista Casa e Jardim Fonte: Editora Olhares Josep Maria Montaner Fonte: Editora Olhares

historiografia e crítica

Ruth Verde Zein

Formação

Arquiteta e urbanista pela FAU-USP, mestre e doutora em Teoria, Historia e Crítica de Arquitetura pela UFRGS e pós-doutora pela FAU-USP

Atuação

Arquiteta urbanista, pesquisadora, crítica e professora universitária

Obra

O lugar da crítica: Ensaios oportunos de arquitetura

“[...] Precisamos educar as pessoas para serem arquitetos funcionais, pessoas que saibam projetar e possuam espírito crítico. [...] A arquitetura é sim um estudo técnico, mas também é um estudo teórico-crítico,enãopodedeixardeser.”

Ruth Verde Zein é arquiteta especialista em técnicas consultivas da arquitetura tradicional paulista e mestre em teoria, história e crítica da arquitetura.Emseulivro, “Olugardacrítica:Ensaios oportunos de arquitetura”, a autora faz reflexões de caráter historiográfico, buscando rever a arquiteturabrasileiradasegundametadedoséculo XX, com ênfase na produção contemporânea brasileira. Em suma, o livro se propõe como meio de incentivar o papel da crítica como tarefa criativa, imprescindível à qualidade do fazer arquitetônico.

Fonte: Twitter Fonte: Vitruvius
pesquisa
Fonte: Editora Perspectiva
e crítica

historiografia e crítica

Leonardo Benevolo

Formação

Arquitetura pela Universidade de Roma

Atuação

Arquiteto urbanista, historiador e professor universitário

Obra

História da arquitetura moderna

“[...] A cidade permanece uma criação histórica particular, ela não existiu sempre, mas teve início num dado momento da evolução social, e pode acabar, ou ser radicalmente transformada, num outromomento.[...]”

Leonardo Benevolo é historiador de arquitetura e urbanismo com estudos acerca da evolução dos movimentos e tendências, e a influência que a arquitetura exerceu no desenvolvimento da tecnologia e da indústria. Em seu livro "História da arquitetura moderna", Benevolo trás um apanhado histórico da arquitetura ocidental, com abordagemcríticaemqueasituanocontextodas mudanças sociais, políticas, econômicas e tecnológicas que ocorreram ao longo do período moderno, de modo a instigar a reflexão sobre a função que os arquitetos desempenham como agentes de mudança social. Permite pensar também, desse modo, os desafios éticos e estéticosenfrentadospelaprofissão.

Fonte: Arquitectura Viva Fonte: Amazon
e crítica
Fonte: Amazon pesquisa

teoria e prática

Rafael Moneo

Formação

Escola Técnica Superior de Madrid

Atuação

Arquiteto urbanista, educador, crítico e teórico

Obra

The Freedom of the Architect

"Cada geração na sua sobrevivência tem que fazer uso da criatividade (...) Tenho a certeza que quem estuda arquitetura encontrará formas de usufruir, por um lado, de uma forma de compreender a realidade e, por outro lado, de conhecimentos que adquiriram que lhes permitem ajustar-se as funções quepodemserdiferentesdaquelasquetêm sidoasfunçõestradicionaisdoarquiteto”

Rafael Moneo é um arquiteto reconhecido por integrar teoria, prática e ensino em sua carreira. Sua arquitetura premiada reinterpreta espaços, valorizando a história local. Ao mesmo tempo, como arquiteto, escritor e crítico, incita a mudançasnorumodaarquiteturaatravésdeseu compromisso constante com a tradição modernista. Um exemplo é sua expansão do MuseudoPradoemMadri,querespeitaoedifício original e seu entorno, permitindo que o edifício seja observado como o primeiro arquiteto originalmentepretendia.

pesquisa e crítica

Fonte: Amazon Fonte: Rafael Moneo Fonte: Metalocus

teoria e prática

REM KOOLHAAS

Formação

Arquitetura pela Architectural Association School of Architecture

Atuação

Arquiteto urbanista, escritor e teórico

Autor de uma extensa bibliografia em diversos campos da arquitetura, Rem Koolhaas, além de exercer a prática em escritório, dedica-se fortemente à teoria e à crítica. o autor oferece pautas de debates e profundas análises sobre a arquiteturaeurbanismo.

Emseulivro, S, M, L, XL, Koolhaasrefletesobrea realidade efêmera dos epicentros urbanos, chama a atenção para as “infelicidades” que foramatribuídasàcidadetradicionalantesqueo apresso por ela se tornasse notável. Sugere nel que, sendo as ruas usadas apenas para os carros, caminhamos da horizontalidade para a verticalidade.

Em um de seus projetos mais interessantes a Casa Bordeaux, Koolhaas propõe um ambiente que, a partir de volmes simples, constrói uma espacialidade complexa que redefine a ideia de “acasaéumamáquinadeviver”.

Obra S, M, L, XL Fonte: OMA Fonte: Covetedition
pesquisa e crítica
Fonte: Amazon

teoria e prática

Formação

Arquiteto pela Faculdade de Arquitetura e Urbanismo da USP

Atuação

Arquiteto urbanista, professor e escritor

Obra

Os primeiros arquitetos modernos: Habitação social no Brasil 1930-1950

Como arquiteto, suas principais obras são a Livraria Ática Shopping Cultural (1995), que recebeuograndePrêmiodaBienalInternacional deArquiteturadeSãoPauloem1997; oprojeto SIRIUS;oLaboratórioNacionaldaLuzSíncrotron (2019) e o novo Teatro Cultura Artística, que começouaserreconstruídoem2018.

Em sua obra crítica “Os primeiros arquitetos modernos:HabitaçãosocialnoBrasil1930-1950”, PauloBrunapartedamodernidadeEuropeiados anos 1920-1930 para mostrar que desde essas décadas no Brasil já ocorria um ideário do movimentomoderno.AlémOautorapresenta,na obra, a relação entre a criação do IAP’s –Institutos de Aposentadoria e Pensões e a construção dos grandes conjuntos habitacionais no Brasil a partir da perspectiva do movimento moderno.

Fonte: Martins Fontes Paulista Fonte: Paulo Bruna
pesquisa
Fonte: Paulo Bruna
e crítica

cidade e gênero

ANA GABRIELA GODINHo Lima

Formação

Arquiteta urbanista pela Universidade de São Paulo(1994), mestrado em Estruturas Ambientais Urbanas pelo programa de Pós-Graduação na mesma instituição(1999) e doutorado pela Faculdade de Educação da Universidade de São Paulo(2004).

Atuação

Arquiteta urbanista, professora e escritora

Obra

Arquitetas e Arquiteturas na América Latina do século XX

“Percebi que havia centenas de arquitetas latinas fazendo obras grandes, mas pouco se sabia sobre elas. Se só estudamos arquitetos homens, pode ser difícil imaginar um futuro na profissão, por isso é importante contar histórias parecidas com as nossas.”

Ana Gabriela Godinho de Lima, dentro de sua carreiraacadêmica,contribuiuparaaquestãode gêneroinseridanodebatedourbano,buscando compreender a inserção feminina no planejamento de cidade, tanto da perspectiva daarquiteturaquantodaperspectivapública.

Sua obra, Arquitetas e Arquiteturas na América

Latina do século XX, busca pautar como as mulheres influenciaram a trajetória e a evolução da arquitetura ao longo do século. Retrata essa presença silenciosa e como a história, de uma perspectiva heterogênea, criou “mecanismos de ocultamento do feminino” para apagaressapresença.

Fonte: Revista Casa e Jardim
pesquisa
Fonte: Feminino e Plural Fonte: Amazon
e crítica

cidade e gênero

ZAIDA MUXI

Formação

Arquiteta pela Faculdade de Arquitetura, Design e Urbanismo da Universidade de Buenos Aires, Doutora pela Escola Técnica Superior de Arquitetura de Sevilha

Atuação

Arquiteta, Pesquisadora e Professora na Escola Técnica

Superior de Arquitetura de Barcelona

Obra

Mulheres, casa e cidades – Para além do umbral

Arquitetura e política: Ensaios para mundos alternativos

Fonte: Icagvlc

Uma das pioneiras nos estudos urbanos de gênero,ZaidaMuxifoicofundadorado Col.Lectiu Punt 6 e da rede de pesquisa “Un día una arquiteta“, organização que buscar trazer visibilidade à produção de arquitetas no mundo. Em sua obra, Mujeres, casas y ciudades, a autora reescreve a história da arquitetura a partir das arquitetas que colaboraram com a construção das cidades e foram invisibilizadas e silenciadasnahistoriografiahegemônica. Nolivro,escritoconjuntamentecomJosepMaria Montaner, Arquitetura e Política, os profissionais abordam a responsabilidade dos arquitetos comasociedade, pormeiodetemascomo:vida comunitária, participação social, igualdade de gênero e sustentabilidade. O livro retrata os diferentes tipos de vulnerabilidade contemporânea e as alternativas já experimentadas.

“As mulheres estiveram ativamente presentes em todos os momentos historicamente decisivos da cultura ocidental, mas foram invisibilizadas. Por que é tão difícil encontrar uma rua, uma praça ou um espaço público comemorativo com o nome de umamulher[...]”

PESQUISA E CRÍTICA
Fonte: ArchDaily Fonte: Busca Libre
pesquisa e crítica

CONDOMÍNIO RESIDENCIAL PREFEITO MENDES DE

MORAIS (PEDREGULHO)

Bairro de São Cristóvão, Rio de Janeiro, 1947

Autor

Affonso Eduardo Reidy

Promotor

Governo Federal do Distrito Federal (até então Rio de Janeiro)

Acesso

Restrito

O Conjunto Residencial Prefeito Mendes de Morais, é um exemplo marcante da arquitetura modernista brasileira. Construído para abrigar funcionários públicos do antigo Distrito Federal, o conjunto é composto por quatro blocos de habitação, cada um com sua própria função e forma distintiva. O Bloco "A", o maior, serpenteia aolongodoterreno, abrigandoapartamentosde diferentestipos,alémdeespaçosparaserviços sociais, administração e educação infantil. Os Blocos "B1" e "B2" são duplex e contêm uma variedade de unidades residenciais. O Bloco "C", não construído, estava planejado para apartamentoscomelevador.

Além dos blocos residenciais, o projeto inclui umavariedadedeinstalaçõeseserviços,como lavanderia, mercado, posto de saúde, creche, escola, ginásio, piscina e espaços recreativos. O uso de pilotis, passarelas e umaavenida notopodoterrenoproporciona acesso fácil e integração harmoniosa entre os diferentes espaços, enquanto a ênfase na preservação da vista da Baía de Guanabara para todos os apartamentos reflete a preocupação com a qualidade de vida dos moradores.

habitação
edifícios multifamiliares
Fonte: Revista Vitruvius Fonte: Revista Vitruvius Fonte: Revista Vitruvius Fonte: Revista Vitruvius Fonte: ArchDaily

edifícios multifamiliares

PEZET 515

Lima, Peru, 2016-2011

Autor

Promotor

Imobiliária Vitrubio SA

Acesso

Limitado

Através de uma geometria dinâmica e escultural, o projeto procura privilegiar as vistas para esta extensa áreaverdedoGolf,razãopelaqualafacevoltadaparaa avenida principal foi trabalhada inteiramente com um pano de vidro. A face lateral apresenta brises verticais em madeira, popularmente chamado de "código de barras" pelo seu padrão aleatório. Este "código de barras" permite manter a vista lateral para El Golf, ao mesmo tempo que proporciona privacidade aos espaços.

Seuembasamentoécompostoportérreoe mezanino, num volume ligeiramente recuado, majoritariamente envidraçado, deusocomumparalazer.

Um núcleo central atende os apartamentos em diferentes tamanhos. Os pisos superiores estão reservados a uma cobertura com vistaparaocampode golfeeparaomar.

habitação
Fonte: Shell Arquitetos Fonte: Christoph Monschein Fonte: Christoph Monschein Fonte: Christoph Monschein

Habitação de interesse social / habitação de mercado popular

CONJUNTO HABITACIONAL JARDIM EDITE

São Paulo, Brasil, 2010

Autor

MMBB Arquitetos; H+F

Promotor

Secretaria Municipal da Habitação (Sehab/Habi) e Secretaria Municipal de Desenvolvimento Urbano (SMDU)

Acesso

Restrito

O projeto tinha como objetivo abrigar a população residentenacomunidadeinformalexistente.

Um dos desafios do projeto foi conceber uma habitaçãodeinteressesocial nomeiodeuma área queestava mudandosuasdinâmicas.

A solução adotada pelos arquitetos foi usar um programa misto e incentivar a interação entre o edifício e a cidade, atendendo não só as demandas dosmoradores,comotambémasdosfrequentadores dos edifícios vizinhos. O térreo é de uso da cidade, comumacreche,umaunidadebásicadeatendimento eumrestaurante-escola.

Oprojetoengloba 3torresde17andares (60 apartamentos de 50m² em cada) e duas lâminas com doisblocosdequatroandares, sendoaslâminasdacreche,daunidadebásica de saúde e um restaurante-escola e os blocos contendo mais 72 unidades de moradia no total.

habitação
Fonte: Daniela Schneider Fonte: Nelson Kon Fonte: Nelson Kon Fonte: MMBB arquitetos Fonte: Vitruvius

Habitação de interesse social / habitação de mercado popular

QUINTA MONROY

Iquique, Chile, 2003

Autor

Alejandro Aravena

Promotor

Governo regional de Tarapacá / Programa Chile-Barrio do Governo Chileno

Acesso Limitado

AQuintaMonroyeraoúltimoassentamentoinformal nocentrodeIquique,umacidadenodesertochileno. Ascondiçõesprecáriasforammotivodesuainclusão num programa governamental de substituição do assentamentopor93unidadeshabitacionaisparaas famíliasqueoocupavam.

O projeto destas unidades habitacionais permite sua ampliaçãodeformacontrolada,dandorespaldoa possíveis intervenções em autoconstrução. As famílias recebem “metade de uma casa”, já equipada com infraestrutura essencial, e recebem apoiotécnico pararealizaras ampliaçõesporconta própria.

O subsídio de 7.500 dólares por família permitiaconstruir,nomáximo,36m²,metade daáreaestimadaparaatenderasfamílias. Na tipologia adotada, as partes “difíceis” da casa (banheiros, cozinha, escadas e paredes divisórias) estão projetadas para viabilizar o resultado final, uma vez ampliada, resultando emunidadecom70m².

Fonte: Cristobal Palma, Estudio Palma, Tadeuz Jalocha Fonte: Cristobal Palma, Estudio Palma, Tadeuz Jalocha Fonte: ArchDaily
habitação
Fonte: ArchDaily

assistência técnica em habitação de interesse social

PROJETO DE REQUALIFICAÇÃO DA FAVELA DE SANJAYNAGAR

Ahmednagar, Índia, 2022

Autor

Community Desing Agency

Promotor

Ahmednagar Municipal Corporation

Acesso

Limitado

A construção é em alvenaria e os corredores foram projetados para ter espaços comuns para interações sociais, bem como a inclusão de telasdebambuepérgolas que trazem um elemento local e fazem sombra em todo o edifício.

Sanjaynagar se transformou num bairro totalmente funcional comtodasasatividadese serviços essenciais, como redes de água, drenagem, sistema viário, iluminação pública, crechesecentroscomunitários.

O projeto transformou as condições de vida de 298 famílias residentes numa favela, em situação precária. Os arquitetos empregaram processos participativos, permitindo que os moradores contribuíssem para as decisões de projeto, desde aquelas relativas ao bairro até as relacionadas às casas.

As unidadeshabitacionais sãoorganizadasemtorno de 8 pátios de tamanhos diferentes, que servem como espaços públicos. Em 2018 foram construídas 33 moradias e até 2022 foram construídas mais 233 moradias.

Fonte: Rajesh Vora
habitação
Fonte: Rajesh Vora Fonte: Rajesh Vora Fonte: Rajesh Vora Fonte: ArchDaily

assistência técnica em habitação de interesse social

CONDOMINIO RESIDENCIAL COPROMO

Jardim Piratininga, Osasco, São Paulo, 1990-1996

Autor

Usina - Centro de Trabalhos para o Ambiente Habitado (CTAH)

Promotor Associação Pró-moradia de Osasco (COPROMO)

Acesso Limitado

Após muitas reuniões e desejo dos moradores, foi definidoque cadaapartamento teria 54m² deárea

útil. Com isso o edifício ficou definido por quatro unidades habitacionais idênticas dispostas em cinco pavimentos, articuladas em torno da circulaçãovertical.

O projeto COPROMOS com assessoria da USINA, foi concluído com mil unidades habitacionais dívida em 50 edifícios de 5 andares com 4 unidadeshabitacionais.

Em1991,osarquitetosdaUSINAestavamno projeto CazuzaemDiadema,ondesurgiua ideiadeque mutirõesdeconstruções com os futuros moradores do edifício poderia dar certo, desde que, fossem orientados. Com isso os arquitetos propuseram que os COPROMOS (Associação pró-moradores de Osasco), fossem responsáveis pela construção dos edifícios, desafiando as futurasfamílias.

habitação
Fonte: ArchDaily Fonte: ArchDaily Fonte: ArchDaily Fonte: ArchDaily Fonte: ArchDaily

resultados

Resultados

Respostas recebidas: 96

Respostas esperadas: 165

Idade:

Sua perspectiva sobre o papel do arquiteto e urbanista mudou depois de ler esse caderno?

Totalmente Um pouco. Muito pouco. Não. } 60% responderam.

Quais temas chamaram mais sua atenção?

Arquitetura da edificação

Arquitetura paisagística

Patrimônio

Planejamento regional

Projetos urbanos

Projetos efêmeros

Pesquisa e crítica

Habitação

Sua perspectiva sobre o papel do arquiteto e urbanista mudou depois de ler esse caderno?

“Apesar de mostrar diversas formas de atuação do arquiteto, ainda não foi algo que me surpreendeu ou que tenha sido competente fora do que imaginava ser as atuações do arquiteto.”

“O papel do arquiteto e urbanista, depois da leitura do caderno, se mostrou ser muito mais do que apenas o clichê que todo mundo relaciona com a profissão. Ele está intimamente ligado às politicas

públicas e pauta questões sociais muito importantes (...).”

“Conseguinotaroqueháalémdosprojetos paraaconstrução/paraovisual.Noteicomoos profissionaispodemcontribuir,demaneiraa fazerextrema diferençaparaosocial.Como porexemploquandoocadernocitaos projetosemergenciais.”

“Apesar de já ter lido e visto alguns conteúdos sobre, nunca pensei em me aprofundar tanto antes. É algo novo para mim ver tantos aspectos que antes não pareciam ser "planejados", pareciam ser apenas aleatórios.”

“Eu acreditava muito ser (um campo) mais voltado para área de interiores e projetos no geral. Receber a devolutiva do caderno fez minha percepção em relação à profissão abrir muito, até mesmo entender o quanto a minha profissão está relacionada com a do arquiteto. (Resposta de um engenheiro)”

“Porque o arquiteto ocupa um lugar de importância, relevância para nossa sociedade em que o urbanismo tem se tornado uma pauta de altíssima relevância para nossa sociedade contemporânea.”

“Porque nós normalmente costumamos achar que arquitetos trabalham somente em maiores projetos com pessoas de alto nível econômico e depois desse livro pude expandir meus horizontes sobre a presença no arquiteto no meu dia a dia.”

“Muitooo!! Minha cabeça não imaginava que um arquiteto poderia fazer tantas coisas que estão no nosso cotidiano!! Um aprendizado que vou levar para o resto da minha vida!!”

“Pois foi incrível conhecer mais da arquitetura de uma forma abrangente e feita por alunos e professores. A arquitetura sob a ótica dessas pessoas é destrinchada facilmente, com explicações bem didáticas e legais.”

O que você achou sobre o conteúdo do caderno?

“O conteúdo está bem disposto e bem completo. As imagens e cores distintas instigam a curiosidade do leitor e o faz querer conhecer mais sobre a profissão.”

“A parte que eu mais achei legal foi a de patrimônio, não fazia ideia de que era uma atribuição de um arquiteto.”

“Achei muito interessante, espero ver um projeto desse no meu bairro.”

“Cansativo, porém interessante, com certeza me trouxe uma perspectiva diferente sobre a arquitetura.”

“O conteúdo do caderno é bem completo, ele apresenta, de maneira introdutória, uma série de áreas da arquitetura que, muitas vezes, não é do conhecimento geral. Na minha opinião, o formato, a diagramação e a escrita, foi muito assertiva, visto que o caderno assume uma posição técnica, científica e didática, mas não fica cansativo e nem muito complexo de ler.”

“O conteúdo é bem completo e o caderno como produto é bem feito. Minha crítica se deve pelo tamanho do caderno, pois ele é bem extenso.”

“Muito informativo, acabei descobrindo uma área que tenho grande interesse.”

“Gostei bastante, principalmente sobre "projetos efêmeros", essas estruturas temporárias podem ajudar muito a "recolocar" um lugar em ordem após uma catástrofe como a do Rio Grande do Sul, e pode trazer formas lúdicas, dinâmicas e diferentes de como podemos interagir e conviver com um espaço.”

“Claro e conciso.”

Considerações Finais

Profs.AnaCarolinaMendeseMarianaRial

Oresultadofinaldestetrabalhodemonstraoengajamentosignificativoeacomunicaçãoeficazdurantetodasasfasesdo processodepesquisarealizado.

Pensado principalmente para aqueles que não são da área, com informações e exemplos de projetos para chamar a atenção do leitor, o objetivo de aproximar do público externo temas relacionados aos diversos âmbitos de atuação do arquitetofoialcançadoatravésdeumdesenvolvimentocoletivobem-sucedido.

A partir da metodologia proposta, foi possível apresentar cada uma das atividades e práticas profissionais, como por exemplo a assistência técnica para habitação de interesse social - ATHIS - e suas categorias, bem como explorar a regulamentação de certas atividades, a organização por trás de projetos urbanos e projetos habitacionais, quais órgãos públicosparticipamdealgumasdessasatividadeseparaquemsãodestinadas.Oprodutofinalprocurousintetizarestes conhecimentos.

O controle do retorno através de um grupo restrito de entrevistados permitiu mensurar o impacto do material num gruposocialexterno,quantificandoemquemedidasuapercepçãofoitransformadaarespeitodopapeldaarquiteturae dourbanismonasociedade.

Olevantamentoinicialmostrouque,paraamaioriadaspessoas,aatuaçãodoarquitetoseresumiaacriarprojetosde casas e edifícios e a desenvolver projetos de design de interiores. Após a leitura do material apresentado, pudemos constatar através do retorno dos entrevistados que cerca de 60% responderam que o conteúdo mudou totalmente sua percepçãosobreotema.Para34%,houvemudançaparcialouenriquecimentodoconhecimentosobreaspráticas.

Ostemas“arquiteturapaisagística”e“projetosurbanos”foramconsideradosdemaiordestaqueentreosentrevistados, comointeressede47%e38%dosentrevistados,respectivamente.Nasrespostasespontâneastambémtiveramdestaque os temas “patrimônio”, “projetos efêmeros” e “pesquisa e crítica”, como áreas de atuação da arquitetura desconhecidas paraopúblicoemgeral.Foramosquemaiscausaramsurpresaaoleitor.

Oresultadofinaldotrabalhofoiconsideradosatisfatóriodeacordocomaopiniãodogrupodecontrole.Amaioriados participantesdestacouaqualidadedoprodutofinal.Assim,pensamosqueoobjetivode“fazerconheceraprofissão”esua ampla área de atuação foi alcançado, fazendo “brotar” uma semente de curiosidade pelas áreas apresentadas naqueles quetiveramacessoaocaderno.

O resultado é um trabalho abrangente, informativo, refletindo o esforço conjunto e a dedicação compartilhada das equipes.

refereências bibliográficas

ESTUDOS SOCIAIS URBANOS - PRÁTICAS EXTENSIONISTAS

ARQUITETURA E URBANISMO - 3° SEMESTRE - 2024

livros

BENEVOLO, Leonardo. História da Arquitetura Moderna. Editora Perspectiva, 2001.

CARTILHA DE GÊNERO - CAURS. Rio Grande do Sul: CAURS, 2023.

DESMOULINE, Christine. SCENOGRPHIES D'ARCHITECTES. Paris: Éditions du Pavillon de l'Arsenal, 2006. p. 91 a 95.

FERNANDÉZ PER, Aurora; ARPA, Javier. The Urban Chance: new urban landscapes. Vitoria-Gasteiz: A+T Ediciones, 2008.

GODINHO, Ana Gabriela Lima. Arquitetas e arquiteturas na América Latina do Século XX / Ana Gabriela Godinho Lima. 1. ed. São Paulo: Altamira Editorial, 2014.

HAMBURGUER, Vera. Arte em cena: A direção de arte no cinema brasileiro.

São Paulo: Editora Senac e Edições Sesc, 2014. p. 32 a 46 e 229 a 248. Lima, J. F. (2000). Lelé. São Paulo: Editorial Blau - Instituto Lina Bo e P.M Bardi. Acesso em 10/04/2024.

MONTANER, Josep Maria. Arquitetura e Crítica: Crônicas e Ensaios. Editora Gustavo Gili, 2007.

ZEIN, Ruth Verde. O lugar da crítica. Ensaios oportunos de arquitetura. Porto Alegre, Editora Ritter dos Reis, ProEditores, 2002.

revistas

ARQUITECTURA, Rafael Moneo: “A cidade é o museu”. In: PÚBLICO. Desc. Disponível em:

https://www.publico.pt/2014/09/26/culturaipsilon/noticia/aarquitectura-deve-ser-feita-a-partir-da-cidade-1670453#googIevignette.

Acesso em: 30 maio 2024.

COLUMNS, Rafael Moneo believes good architecture must be innovative but rooted in its place. In: STIRworld. Desc. Disponível em:

https://www.stirworld.com/think-columns-rafael-moneo-believes-goodarchitecture-must-be-Innovative-but-rooted-In-its-place. Acesso em: 30 maio 2024.

ENTREVISTA, Arqtexto: Um Josep Maria Montaner depoimento. In: LUME UFRGS. Desc. Disponível em:

https://lume.ufrgs.br/bitstream/handle/10183/135100/000302283.pdf?

sequence=1&isAllowed=y. Acesso em: 30 maio 2024.

FABRO, Nathalia. ARQUITETURA: Arquitetas são maioria, mas enfrentam sexismo e preconceitos na carreira. In: REVISTA CASA E JARDIM. Desc. Disponível em: https://revistacasaejardim.globo.com/Casa-eJardim/Arquitetura/noticia/2020/12/arquitetas-sao-maioria-masenfrentam-sexismo-e-preconceitos-nacarreira.html#:~:text=Sempre%20acreditei%20na%20equidade%20de%20g %C3%AAnero%E2%80%9D%2C%20declara%20Rosa.&text=O%201%C2%BA% 20Diagn%C3%B3stico%20de%20G%C3%AAnero,enfrentaram%20discrimina %C3%A7%C3%A3o%20por%20serem%20mulheres. Acesso em: 30 maio 2024. araVECCHIA, Nilce Botas. Foi-se Leonardo Benevolo, ficaram os desafios propostos por ele. In: VITRUVIUS. Desc. Disponível em: https://vitruvius.com.br/revistas/read/drops/17.112/6386. Acesso em: 30 maio 2024.

MARCOS, Bruno; RAMOS, Flávia. Parque da Juventude. Vitruvius, n. 162, p. 2. Disponível em:

https://vitruvius.com.br/revistas/read/projetos/14.162/5213?page=2.

MUXI, Zaida Martinez. Extratos de mulheres casas e cidades para além do umbral. In: REVISTA PLOT. Desc. Disponível em:

https://revistaplot.com.br/3t-01-extratos-de-mulheres-casas-e-cidadespara-alem-do-umbral-zaida-muxi-martinez-5-anuncios/. Acesso em: 30 maio de 2024.

Nobre Neto, J. F., Matos, J. S., Souza, L. M., da Silva, L. S. P. M., Batista, L. F., Sodré, M., & dos Reis, R. S. (2022). O olhar dos arquitetos da saúde sobre a obra do Hospital Sarah, em Salvador BA. Revista Vitruvius. Acesso em 16/04/2024. Disponível em:

https://vitruvius.com.br/revistas/read/arquiteturismo/15.178e179/8430

Pompermaier, J. P. L., Mattiello, V., & Panosso, A. S. (2022). Hospital do Aparelho Locomotor Sarah Kubitschek de Salvador: Estudo Arquitetônico.

Revista Infinity UCEFF, 7. Acesso em 24/04/2024. Disponível em: https://revistas.uceff.edu.br/infinity/article/download/8/63/138 [Sem autor]. (2021). RIBA International Prize 2021 vai para hospital em Bangladesh. Revista Projeto. Acesso em 24/04/2024. Disponível em: https://revistaprojeto.com.br/noticias/riba-international-prize-2021vai-para-hospital-em-bangladesh/

REVISTA PROJETO. São Paulo, n. [número da edição], 01 jul. 2013. Disponível em: https://revistaprojeto.com.br/acervo/mmbb-arquitetos-e-hf-arquitetoshabitacao-de-interesse-social-sao-paulo-jardimedite/. SEGRE, Roberto. Um Benevolo ansioso no século XXI. In: VITRUVIUS. Desc. Disponível em: https://vitruvius.com.br/revistas/read/drops/07.077/3076. Acesso em: 30 maio 2024.

Shankar, Avantika. Em Ahmedgar, moradores de uma favela projetam suas próprias casas. Revista Almanaque del Futuro, 18 maio 2022. Disponível em: https://www.almanaquedelfuturo.com/pt-br/cidade-e-habitacao/emahmednagar-moradores-de-uma-favela-projetam-suas-proprias-casas/.

silva, Raphael Splinder da. O conjunto Pedregulho e algumas relações compositivas. Revista Vitruvius, São Paulo, n. 62, 06 jul. 2005. Disponível em:

https://vitruvius.com.br/revistas/read/arquitextos/06.062/446.

VERDE, Ruth Zein. A década ausente. É preciso reconhecer a arquitetura brasileira dos anos 1960-70. In: VITRUVIUS. Desc. Disponível em: https://vitruvius.com.br/revistas/read/arquitextos/O7.O76/318. Acesso

em: 30 maio 2024.

TRABALHOS ACADÊMICOS

BRUNA, Paulo Júlio Valentino. Os primeiros arquitetos modernos: habitação

social no Brasil, 1930-1950 (2010). Disponível em:

https://repositorio.usp.br/item/001833854. Acesso em: 30 maio 2024.

DOS SANTOS ANDRADE, Eduardo. O Espaço Encena: Teatralidade e performatividade na cenografia contemporânea. Universidade Federal do

Estado do Rio de Janeiro: Centro de Letras e Artes Programa de PósGraduação em Artes Cênicas, Rio de Janeiro, p. 224-236, 2019.

GODINHO, Ana Gabriela Lima. ARQUITETAS NA AMÉRICA LATINA DO SÉCULO XX: Eixo Temático Movimento Moderno como Cultura (2019). In: EDISCIPLINAS USP. Disponível em:

https://edisciplinas.usp.br/pluginfile.php/8319315/mod_resource/conten t/1/LIMA_AGabriela_2019_Arquitetas%20na%20AL%20no%20s%C3%A9c %20XX.pdf. Acesso em: 30 maio 2024.

PORTERO DA SILVA, I. .; DE ALMEIDA, E. . Rafael Moneo: investigação acerca da estratégia do projeto. arq.urb, [S. l.], n. 5, p. 126–146, 2011. Disponível em:

https://revistaarqurb.com.br/arqurb/article/view/294. Acesso em: 30 maio 2024.

SILVA, Margareth Pereira (FAU-UFRJ); LIRA, José (FAU-USP). Historiografia da arquitetura: métodos, objetos e narrativas (2010). Disponível em:

https://www.anparq.org.br/dvd-enanparq/simposios/138/138-786-1-

SP.pdf. Acesso em: 30 maio 2024.

VERDE, Ruth Zein. Reconhecimento Necessário da Arquitetura Brasileira do Brutalismo Paulista. In: DOCOMOMOBRASIL. Disponível em: https://docomomobrasil.com/wp-content/uploads/2016/01/Ruth-VerdeZein.pdf. Acesso em: 30 maio 2024.

Xavier, Janina; BAUERMANN, Jussara. A arquitetura teatral para as linguagens cênicas contemporâneas. Urdimento – Revista de Estudos em Artes Cênicas, Florianópolis, v. 1, n. 46.

Souza, Gabriel Girnos Elias de. Ficções projetuais: projeto gráfico e discurso profissional em livros contemporâneos de escritórios internacionais de arquitetura e urbanismo. Orientador: Luiz Antonio Luzia Coelho. - 2015.

SILVA, Daniel; FERNANDES, Ramon. Arquitetura emergêncial: considerações sobre respostas projetuais a pandemia da covid19. Revista Projetar, v.6, n.2. Disponível em: https://periodicos.ufrn.br/revprojetar/article/view/23090/14237.

Acesso em: 05 jun. 2024.

WANG, Lilin. ‘The New Bud Light Steel System and the Geometric Shape Evolution of Light Steel Framework for COVID-19 Patients Appointed Hospital (Huoshenshan Hospital)’. 1 Jan. 2020 : 9015 – 9026. CRONOLOGIA DO URBANISMO. Antigo Cine Jandaia. Disponível em: http://cronologiadourbanismo.ufba.br/apresentacao.php?idVerbete=142.

Acesso em: [data de acesso]. .

MÍDIA GERAL

ARCHDAILY BRASIL. Cinema e Arquitetura: The Grand Budapest Hotel. Publicado em 21 de março de 2014. Disponível em: https://www.archdaily.com.br/br/01-184958/cinema-e-arquitetura-thegrand-budapest-hotel. Acesso em: 29 de maio de 2024.

AVIGNON ARCHITECTE. Le livre et l'art (2003). Disponível em: https://avignonarchitecte.com/les-singuliers/le-livre-et-lart-2003/. Acesso em: 29 de maio de 2024.

CASA DE VALENTINA. Visitando o Casarão de Nhonho Magalhães após reforma. Disponível em: https://www.casadevalentina.com.br/blog/visitando-ocasarao-de-nhonho-magalhaes-apos-reforma/. Acesso em: 07 de maio de 2024.

"Carandiru" [Ficha Técnica]. (s.d.). Disponível em: https://filmow.com/carandiru-t4601/ficha-tecnica/. Acesso em: 15 de abril de 2024.

FREIRE, Ricardo. High Line. Viaje na Viagem. Disponível em: https://www.viajenaviagem.com/destino/nova-york/high-line/.

Hamilton Set Designer Shares Secrets Behind Disney+'s Film Version. Hollywood Reporter, 2 jul.2022. Disponível em: https://www.hollywoodreporter.com/lifestyle/arts/hamilton-setdesigner-shares-secrets-behind-disney-s-film-version-1301256/. Acesso em: 29 de maio de 2024.

HB Filmes. (s.d.). Carandiru. Disponível em: http://www.hbfilmes.com.br/portfolio-item/carandiru/. Acesso em: 15 de abril de 2024.

REVISTA CASA E JARDIM. Retrofit recupera antigo prédio da Telesp no centro de São Paulo. Disponível em: https://revistacasaejardim.globo.com/arquitetura/noticia/2023/04/retr ofit-recupera-antigo-predio-da-telesp-no-centro-de-sao-paulo.ghtml.

Acesso em: 17 de abril de 2024.

RIOTUR. Atividades no Aterro do Flamengo. Disponível em: https://riotur.rio/que_fazer/atividades-no-aterro-do-flamengo/.

SHBARCELONA. Jardim Botânico de Barcelona. Disponível em: https://www.shbarcelona.com.br/blog/pt/jardim-botanico-debarcelona/.

SPAIN.INFO. Jardim Botânico de Barcelona. Disponível em: https://www.spain.info/pt_BR/lugares-interesse/jardim-botanicobarcelona/.

Stage Presence. UMass Magazine, [s.d.]. Disponível em: https://www.umass.edu/magazine/fall-2016/stage-presence. Acesso em: 29 de maio de 2024.

MÍDIA ESPECIALIZADA( INCLUI VÍDEOS)

ARCH2O. London Aquatics Center Zaha Hadid Architects. Arch2o (2012). Acesso em Abril 2024. Disponível em: https://www.arch2o.com/londonaquatics-centre-zaha-hadid-architects/.

ARCHELLO. London Aquatics Center. Archelle (2012). Disponível em: https://archello.com/project/london-aquatics-centre. Acesso em Abril 2024.

ARCHDAILY. Quinta Monroy/Elemental. 06 fev. 2012. Disponível em: https://www.archdaily.com.br/br/01-28605/quinta-monroy-elemental.

ARCHDAILY. Usina 25 anos/Copromo. 19 maio 2015. Disponível em: https://www.archdaily.com.br/br/767128/usina-25-anos-copromo.

ARCHDAILY BRASIL. Escola Rainha Martha / Architectural Bureau Gnatkevicius and Partners. Disponível em: https://www.archdaily.com.br/br/984903/escola-rainha-marthaarchitectural-bureau-gnatkevicius-and-partners. Acesso em: 17/04/2024.

ARCHDAILY BRASIL. Museu da Língua Portuguesa: conheça o projeto por trás da reforma. Disponível em: https://www.archdaily.com.br/br/923350/museu-da-lingua-portuguesaconheca-o-projeto-por-tras-da-reforma. Acesso em: 07/05/2024.

ARCHDAILY BRASIL. Museus e Espaços de Exposições. Disponível em: https://www.archdaily.com.br/search/br/projects/categories/museuse-espacos-de-exposicoes. Acesso em: 01/05/2024.

ARCHDAILY. AD Classics: Maison Bordeaux / OMA. Disponível em: https://www.archdaily.com/104724/ad-classics-maison-bordeaux-oma. Acesso em: 30 maio 2024.

ARCHDAILY. New Acropolis Museum / Bernard Tschumi Architects. Disponível em: https://www.archdaily.com/61898/new-acropolis-museum-bernardtschumi-architects. Acesso em: [Data de acesso não especificada].

ARCHDAILY. Renzo Piano to Convert Moscow Power Station into an Arts and Culture Center. Disponível em: https://www.archdaily.com/775418/renzopiano-to-convert-moscow-power-station-into-an-arts-and-culturecenter. Acesso em: 01/05/2024.

ARCHDAILY. WOHA. "Parkroyal em Pickering / WOHA". ArchDaily. Disponível em: https://www.archdaily.com/01-113225/parkroyal-em-pickeringslash-woha. Acesso em: [Data de acesso não especificada].

BARBOSA, Poliana. Galeria Cultural. Trabalho de Conclusão de Curso. Maringá: Centro Universitário de Maringá (2016). Acesso em abril de 2024. Disponível em: https://docplayer.com.br/58061036-Centro-universitariode-maringa-trabalho-de-conclusao-de-curso-arquitetura-e-urbanismopoliana-barbosa-machado-galeria-culturalmaringa.html#google_vignette.

SITES INSTITUCIONAIS

CAUBR. Falece Leonardo Benevolo, um dos mais importantes historiadores da arquitetura. In: CAUBR. Disponível em: https://caubr.gov.br/faleceleonardo-benevolo-um-dos-mais-importantes-historiadores-daarquitetura-nomundo/#:~:text=Benevolo%20obteve%20reconhecimento%20internacional %2C%20nas,e%20n%C3%A3o%20pode%20ser%20dissociado. Acesso em: 30 maio 2024.

SPAIN.INFO. Jardim Botânico de Barcelona. Disponível em: https://www.spain.info/pt_BR/lugares-interesse/jardim-botanicobarcelona/.

Stage Presence. UMass Magazine, [s.d.]. Disponível em: https://www.umass.edu/magazine/fall-2016/stage-presence. Acesso em: 29 de maio de 2024.

Câmara Municipal de São Paulo. Encontro na Câmara marca os 30 anos do Massacre do Carandiru. Disponível em: https://www.saopaulo.sp.leg.br/blog/encontro-na-camara-marca-os-30anos-do-massacre-docarandiru/#:~:text=%E2%80%9CNo%20Pavilh%C3%A3o%209%2C%20onde %20ocorreu,Brasil%20os%20presos%20sem%20senten%C3%A7a%E2%80

%9D. Acesso em 15 de abril de 2024.

CARTILHA PLANO DE MOBILIDADE URBANA DE BELO HORIZONTE. In: Nossa BH. Disponível em: https://nossabh.org.br/biblioteca/cartilha-plano-demobilidade-urbana-de-belo-horizonte-planmobbh/. Acesso em: 30 maio 2024.

DOCENTE. Paulo Júlio Valentino Bruna. In: FAUUSP. Disponível em: https://www.fau.usp.br/docente/paulo-julio-valentino-bruna/. Acesso em: 30 maio 2024.

ESTRATÉGIAS TERRITORIAIS PARA O DESENVOLVIMENTO TURÍSTICO. In: Regionalização Turismo. Disponível em: http://www.regionalizacao.turismo.gov.br. Acesso em: 30 maio 2024. FRIENDS OF THE HIGH LINE. About. The High Line. Disponível em: https://www.thehighline.org/about/.

INHOTIM. Página inicial. Disponível em: https://www.inhotim.org.br/. JERONIMOS extension. In: MUSEO DEL PRADO. Disponível em: https://www.museodelprado.es/en/museum/jeronimos-extension. Acesso em: 30 maio 2024.

MUSEUM SAN. Building Introduction. Disponível em:

https://www.museumsan.org/eng/museum/building_introduce.jsp? m=1&s=2.

NOTÍCIAS. Falece Leonardo Benevolo, um dos mais importantes historiadores da arquitetura. In: CAUBR. Disponível em: https://caubr.gov.br/faleceleonardo-benevolo-um-dos-mais-importantes-historiadores-daarquitetura-nomundo/#:~:text=Benevolo%20obteve%20reconhecimento%20internacional %2C%20nas,e%20n%C3%A3o%20pode%20ser%20dissociado. Acesso em: 30 maio 2024.

PREFEITURA DO MUNICÍPIO DE SÃO PAULO. Programa Reencontro. São Paulo, 20 de maio de 2024. Disponível em:

https://www.prefeitura.sp.gov.br/cidade/secretarias/governo/secretari a_executiva_de_projetos_estrategicos/programa_reencontro/index.ph p?p=341018#Aux_lio_Reencontro. Acesso em: 29 de maio de 2024.

PORTLAND’S PLAN 2030. In: City of Portland. Disponível em: https://www.portlandmaine.gov/484/Portlands-Plan-2030. Acesso em: 30 maio 2024.

PLANO DIRETOR ESTRATÉGICO. In: Gestão Urbana Prefeitura SP. Disponível em: https://gestaourbana.prefeitura.sp.gov.br/marco-regulatorio/planodiretor/. Acesso em: 30 maio 2024.

PLANO DIRETOR ILUSTRADO. In: Gestão Urbana Prefeitura SP. Disponível em: https://gestaourbana.prefeitura.sp.gov.br/marco-regulatorio/planodiretor/texto-da-lei-ilustrado/. Acesso em: 30 maio 2024.

PROFESSORES. Zaida Muxí, Profesora Distinguida en Arquitectura Escuela de Arte, Arquitectura y Diseño. In: TECNOLÓGICO DE MONTERREY. Disponível em: https://tec.mx/es/profesores/eaad/zaida-muxi. Acesso em: 30 maio 2024.

PROJETO de revitalização em rio urbano substitui autoestrada por parque

linear. In: CIDADES SUSTENTÁVEIS. Disponível em:ARCHDAILY. AD Classics: Maison Bordeaux / OMA. Disponível em: https://www.archdaily.com/104724/ad-classics-maison-bordeaux-oma. Acesso em: 30 maio 2024.

ARCHDAILY. New Acropolis Museum / Bernard Tschumi Architects. Disponível em: https://www.archdaily.com/61898/new-acropolis-museum-bernardtschumi-architects. Acesso em: [Data de acesso não especificada].

ARCHDAILY. Renzo Piano to Convert Moscow Power Station into an Arts and Culture Center. Disponível em: https://www.archdaily.com/775418/renzopiano-to-convert-moscow-power-station-into-an-arts-and-culturecenter. Acesso em: 01/05/2024.

ARCHDAILY. WOHA. "Parkroyal em Pickering / WOHA". ArchDaily. Disponível em: https://www.archdaily.com/01-113225/parkroyal-em-pickeringslash-woha. Acesso em: [Data de acesso não especificada].

BARBOSA, Poliana. Galeria Cultural. Trabalho de Conclusão de Curso. Maringá: Centro Universitário de Maringá (2016). Acesso em abril de 2024. Disponível em: https://docplayer.com.br/58061036-Centro-universitariode-maringa-trabalho-de-conclusao-de-curso-arquitetura-e-urbanismopoliana-barbosa-machado-galeria-culturalmaringa.html#google_vignette. Acesso em 4 de Maio de 2024.

PROJECT OF TERRITORIAL GOVERNANCE OF TOURISM IN VENICE. In: Comune Venezia. Disponível em:

https://www.comune.venezia.it/sites/comune.venezia.it/files/documenti/ documenti/territorial%20governance%202017.pdf. Acesso em: 30 maio 2024.

Better Shelter. Disponível em: https://bettershelter.org/. Acesso em: 05 de junho de 2024

SITES DE ESCRITÓRIOS

BOLDARINI ARQUITETOS ASSOCIADOS. Cantinho do Céu. Disponível em:

https://www.boldarini.com.br/projetos/cantinho-do-ceu-etapa-01. Acesso em 4 de Maio de 2024.

BRUNA, Paulo. Pedro e Paulo Bruna Arquitetos Associados. Disponível em: https://www.paulo-bruna.com.br/. Acesso em: 30 maio 2024.

BURGOS & GARRIDO ARQUITECTOS. MADRID-RÍO, Madrid. Disponível em: https://burgos-garrido.com/project/madrid-rio/. Acesso em 4 de Maio de 2024.

CANTINHO do Céu. In: BOLDARINI ARQUITETOS ASSOCIADOS. Disponível em:

https://www.boldarini.com.br/projetos/cantinho-do-ceu-etapa-01. Acesso em 4 de Maio de 2024.

COMMUNITY DESIGN AGENCY. Disponível em: https://communitydesignagency.com/.

FUNDAÇÃO OSCAR NIEMEYER. Serpentine Gallery Pavilion. Disponível em: https://www.oscarniemeyer.org.br/obra/pro521. Acesso em: 29 de maio de 2024.

MADRID-RÍO, Madrid. In: BURGOS & GARRIDO ARQUITECTOS. Disponível em: https://burgos-garrido.com/project/madrid-rio/. Acesso em 4 de Maio de 2024.

MADRID-RÍO, Madrid. In: BURGOS & GARRIDO ARQUITECTOS. Disponível em: https://burgos-garrido.com/project/madrid-rio/. Acesso em 4 de Maio de 2024.

MBB ARQUITETOS. Escola de Ensino Fundamental FDE Campinas / F1 + MMBB. Archdaily (2011). Acesso em: 24/04/2024. Disponível em:

https://www.archdaily.com.br/br/01-25980/escola-de-ensinofundamental-fde-campinas-f1-mmbb.

MMBB ARQUITETOS. Jardim Edite. Disponível em: https://www.mmbb.com.br/projects/details/74/1.

MMBB ARQUITETOS. Projects Details (2003). Acesso em: 24/04/2024. Disponível em: https://www.mmbb.com.br/projects/details/22/4.

METRO ARQUITETOS ASSOCIADOS. Instituto Inhotim - Galeria Lago (2021). Disponível em: https://metroarquitetos.com.br/en/project/institutoinhotim-galeria-lago-2021/. Acesso em: 23 de abril de 2024.

METRO ARQUITETOS. Renata Sampaio 2022. Disponível em: https://metroarquitetos.com.br/projeto/renata-sampaio-2022/. Acesso em: 09/04/2024.

OMA OFFICE WORK SEARCH. Disponível em: https://www.oma.com/projects/maison-a-bordeaux. Acesso em: 30 maio 2024.

PUBLICACIONES. In: RAFAEL MONEO. Disponível em: https://rafaelmoneo.com/en/publicaciones/. Acesso em: 30 maio 2024.

SHELL ARQUITECTOS. Pezet 515. Disponível em: https://www.shellarquitectos.com/portfolio-item/pezet-515/.

REURBANIZAÇÃO da favela do Sapé. In: PESSOA ARQUITETOS. Disponível em: http://www.pessoaarquitetos.com.br/portfolio/reurbanizacao-dafavela-do-sape/. Acesso em 4 de Maio de 2024.

Turn static files into dynamic content formats.

Create a flipbook
Issuu converts static files into: digital portfolios, online yearbooks, online catalogs, digital photo albums and more. Sign up and create your flipbook.