Portafolio 2024 - Arquitecto José Sánchez

Page 1

P O R T A F O L I O

J O S E A N T O N I O S A N C H E Z

A R Q U I T E C T O + C O O R D I N A D O R B I M

¡Hola! Soy José Antonio Sánchez, un arquitecto joven con un corazón lleno de pasión y una mente ansiosa por crear. A mis 24 años, he viajado a través de los matices del diseño y la ingeniería, explorando cada rincón de la creatividad y la innovación.

01. Proyectos

04. Vivienda Cubo

02. Edificio Basadre

05. Conclusiones

03. Edificio Marquez 560

C O N T E N I D O

P R O Y E C T O S

E D I F I C I O M A R Q U E Z 5 6 0

P R O Y E C T O 2

E D I F I C I O

B A S A D R E

P R O Y E C T O 1

E D I F I C I O

C A S A C U B O

P R O Y E C T O 3

01.

P R O Y E C T O 1

E D I F I C I O B A S A D R E

Este proyecto busca mostrar las capacidades y alcances de mi proceso de diseño, aplicado a las necesidades urbano - arquitectónicas de la ciudad de Lima, Perú.

02.

G E S T I Ó N B I M

E D I F I C I O B A S A D R E

A L C A N C E E C D

Se delimita la cantidad de especialidades y archivos que se desarrollarán así como la estrategía para su vinculación y creación del ARCHIVO FEDERADO.

Por ultimo se determina el LOD y LOIN a desarrollar, según los USOS BIM requeridos.

El ENTORNO COMUN DE DATOS ó ECD se deberá diseñar según las necesidades del proyecto y los USOS BIM requeridos.

Se deberá tener en cuenta las FASES BIM por las cuales el proyecto pasará.

G E S T I O N

H U M A N A

El equipo de trabajo debe estar compuesto por los ROLES BIM adecuados para el trabajo.

G E S T I O N

D E I N F .

Se debe diseñar un sistema de control de la información que garantice su calidad y sutrazabilidad.

Basadre nace como la respuesta natural a los siguientes problemas de la urbe metropolitana de lima:

La ciudad difusa en metrópolis urbanas:

El desarrollo consciente o la inacción frente a una metropolis con características de crecimiento difuso crean la segregación de la población en áreas y sus actividades, determinadas debido a la inversión de tiempo y transporte a ciertas áreas.

Mono funcionalidad en tramas urbanas consolidadas:

El terreno en áreas consolidadas de alto interés económico al carecer de una mixtura de usos degrada el potencial valor de la misma. Evitando un futuro crecimiento en altura aprovechando los diferentes aspectos de la vida diaria y las necesidades del publico permanente como flotante de la zona.

R O B L E M Á T I C A
R B A N A
P
U

Por lo cual se crea el siguiente objetivo principal:

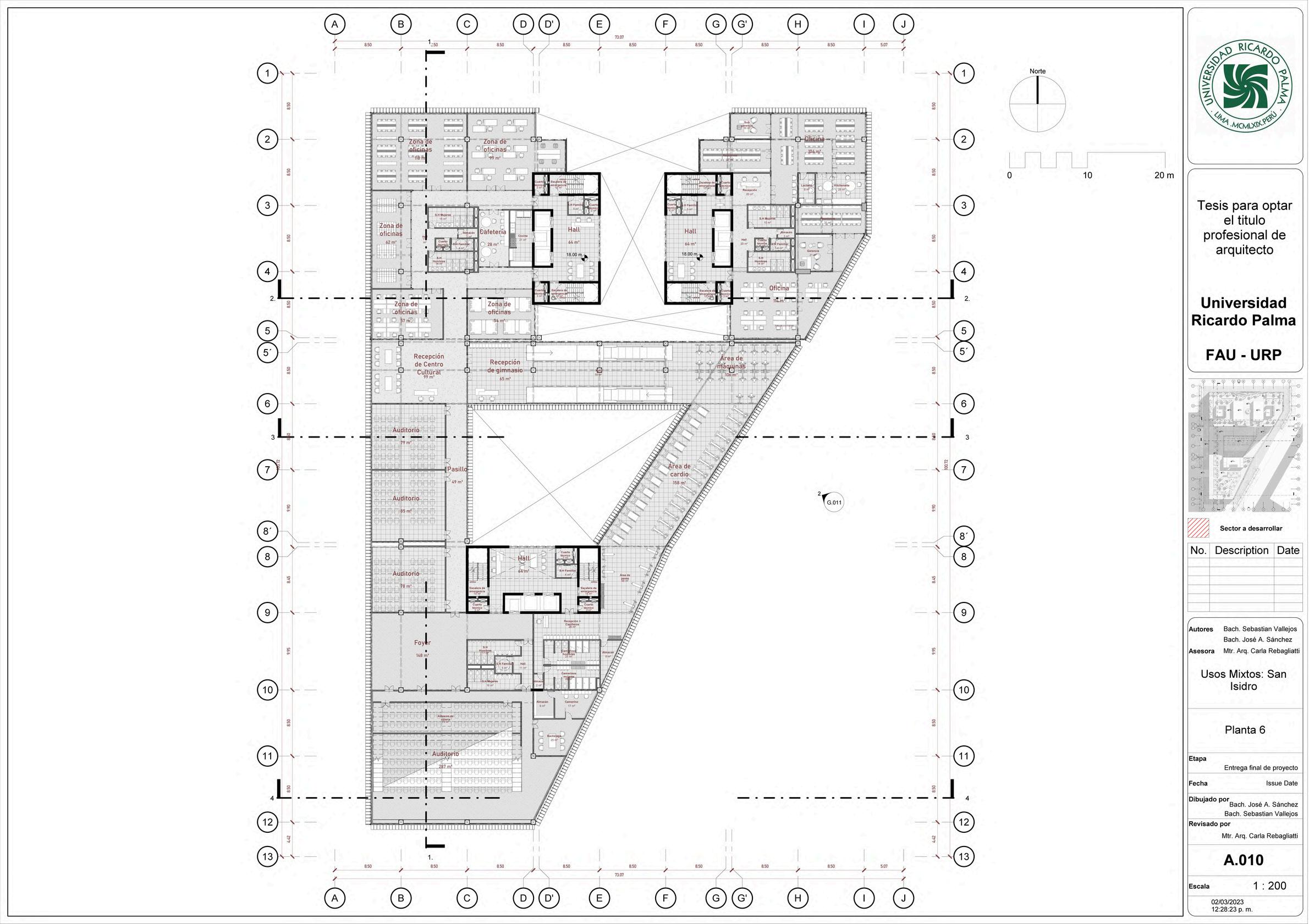
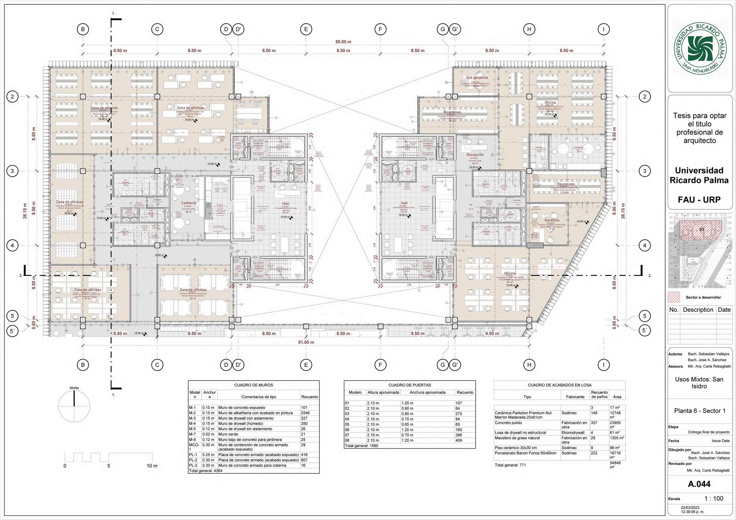
Diseñar un edificio de usos mixtos: Comercio - Cultura - Oficinas en el distrito de San Isidro, Lima, que logre satisfacer las crecientes demandas por espacios de trabajo, así mismo, que logre potenciar y revitalizar la zona, generando un mayor flujo de personas y actividades fuera del horario laboral.

P R O P U E S T A A R Q U I T E C T Ó N I C A

I F I C I O B A S A D R E

Consientes de nuestro entorno vamos moldeando paso a paso mediante un proceso de diseño la morfología del proyecto

E D
P R O C E S O D E D I S E Ñ O

D I S E Ñ O E S T R U C T U R A L

D I F I C I O B A S A D R E

Una vez tenemos la forma del edificio establecida desarrollamos un predimensionamiento y escogemos los sistemas estructurales adecuados para el proyecto contemplando las necesidades que nos plantea su diseño.

Diseño de cimentación, basado en zapatas aisladas y corridas según demande el elemento estructural vertical.

Muros de contención y placas estructurales que mantienen la rigidez y abrazan los nucleos de circulación vertical.

Cerchas estructurales para sostener los multiples puentes de conexión que existen en el proyecto para conectar los diferentes usos.

E

A N T E P R O Y E C T O

E D I F I C I O B A S A D R E

Se busca compatibilizar el programa con el diseño y concepto del proyecto sin descuidar la rentabilidad por m2 teniendo en cuenta lo comercial y costoso que es el lote donde nos encontramos, todo esto cumpliendo las normas del distrito y el r.n.e

P

R O Y E C T O - O F I C I N A S

D I F I C I O B A S A D R E

Una vez se consiguió el desarrollo del anteproyecto según la normatividad aplicable del distrito y según el RNE se procedió con el proyecto detallando técnicamente y preparando para ejecución cada ambiente

E

P R O Y E C T O - C U L T U

I F I C I O B A S A D R E

Una vez se consiguió el desarrollo del anteproyecto según la normatividad aplicable del distrito y según el RNE se procedió con el proyecto detallando técnicamente y preparando para ejecución cada ambiente

E
D
D
C
C T I V O
E D
F I C I O
E
E T A L L E S
O N S T R U
S
I
B A S A D R
D E T A L L E S C O
T R U C T I V O S E D I F I C I O B
D R E
N S
A S A
D
C
C T I V O
E D
F I C
O
E
E T A L L E S
O N S T R U
S
I
I
B A S A D R
D
L
C O
C T I V O
E D
F I C I O
E
E T A L
E S
N S T R U
S
I
B A S A D R

Diseñar un edificio de usos mixtos: Comercio - Cultura - Oficinas en el distrito de San Isidro, Lima, que logre satisfacer las crecientes demandas por espacios de trabajo, así mismo, que logre potenciar y revitalizar la zona, generando un mayor flujo de personas y actividades fuera del horario laboral. B

Por lo cual se crea el siguiente objetivo principal:

D R E C O N C L U S I O N E S
A S A

P R O Y E C T O 2

E D I F I C I O M A R Q U E Z 5 6 0

El siguiente proyecto es un edificio multafamiliar basado en un desarrollo BIM a nivel de anteproyecto, ubicado en Lima - Perú.

03.

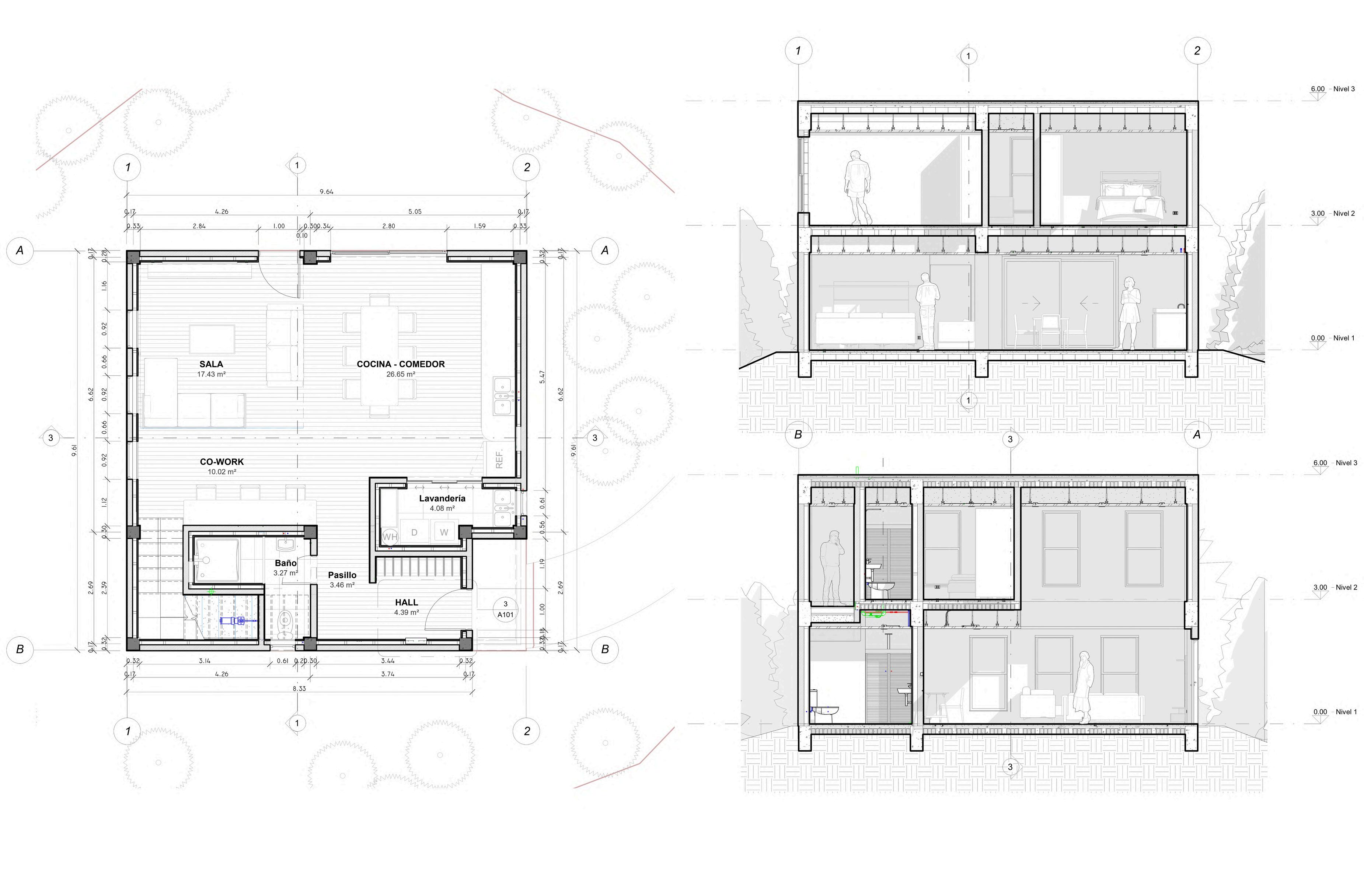
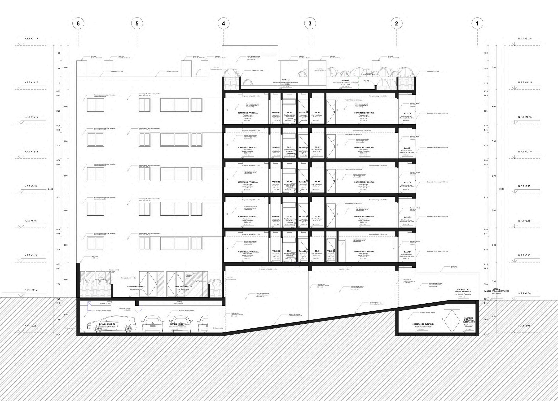
El proyecto MARQUEZ 560 es un edificio multifamiliar de un sótano y 6 pisos. Ubicado en esquina de las avenidas Arnaldo Marquez y Jirón Diego de Almagro en Jesus María.

Con áreas comunes y salas coworking en primera planta, teniendo departamentos de 72 m a 116 m.

Por ultimo un sótano con 16 estacionamientos y 4 exteriores.

P R O P U E S T A A R Q U I T E C T Ó N I C A

G E S T I Ó N B I M

E D I F I C I O M A R Q U E Z 5 6 0

A L C A N C E E C D

Se delimita la cantidad de especialidades y archivos que se desarrollarán así como la estrategía para su vinculación y creación del ARCHIVO FEDERADO.

Por ultimo se determina el LOD y LOIN a desarrollar, según los USOS BIM requeridos.

El ENTORNO COMUN DE DATOS ó ECD se deberá diseñar según las necesidades del proyecto y los USOS BIM requeridos.

Se deberá tener en cuenta las FASES BIM por las cuales el proyecto pasará.

G E S T I O N

H U M A N A

El equipo de trabajo debe estar compuesto por los ROLES BIM adecuados para el trabajo.

G E S T I O N

D E I N F .

Se debe diseñar un sistema de control de la información que garantice su calidad y sutrazabilidad.

G

E S T I O N B I M

E D I F I C I O M A R Q U E Z 5 6 0

Se planteo un archivo federado donde sería posible controlar la coordinación y avance del trabajo.

ARCHIVO MEP:

Se hizo la especialidad de electrcias y HVAC (sótano).

En un LOD 200

ARCHIVO ESTRUCTURAL:

Se modelo un sistema mixto de pórticos y placas estructurales

En un LOD 200

ARCHIVO ARQUITECTURA:

Se modelo tanto la arquitectura exterior como interior

En un LOD 300

M O D E L A M I E N T O

E D I F I C I O M A R Q U E Z 5 6 0

Se planteó un modelamiento en LOD 300 en sus diferentes especialidades, teniendo como principal objetivo la identificación de interferencias y el cumplimiento de normativa arquitectónica durante el proceso de diseño

Planta 1 Planta 2 Planta 3 Planta 4 Planta 5 Planta 6 Planta 7

El modelamiento estructural se hará con un sistema mixto de pórticos y placas estructurales, por otro lado la cimentación en el perímetro del proyecto es corrida, con muros de contención.

Se tuvo en cuenta en las losas estructurales los vanos verticales para las montantes, por lo cual es LOD fue de 200 teniendo en cuenta la principal necesidad de identificar interferencias.

M E
D

V I S T A S

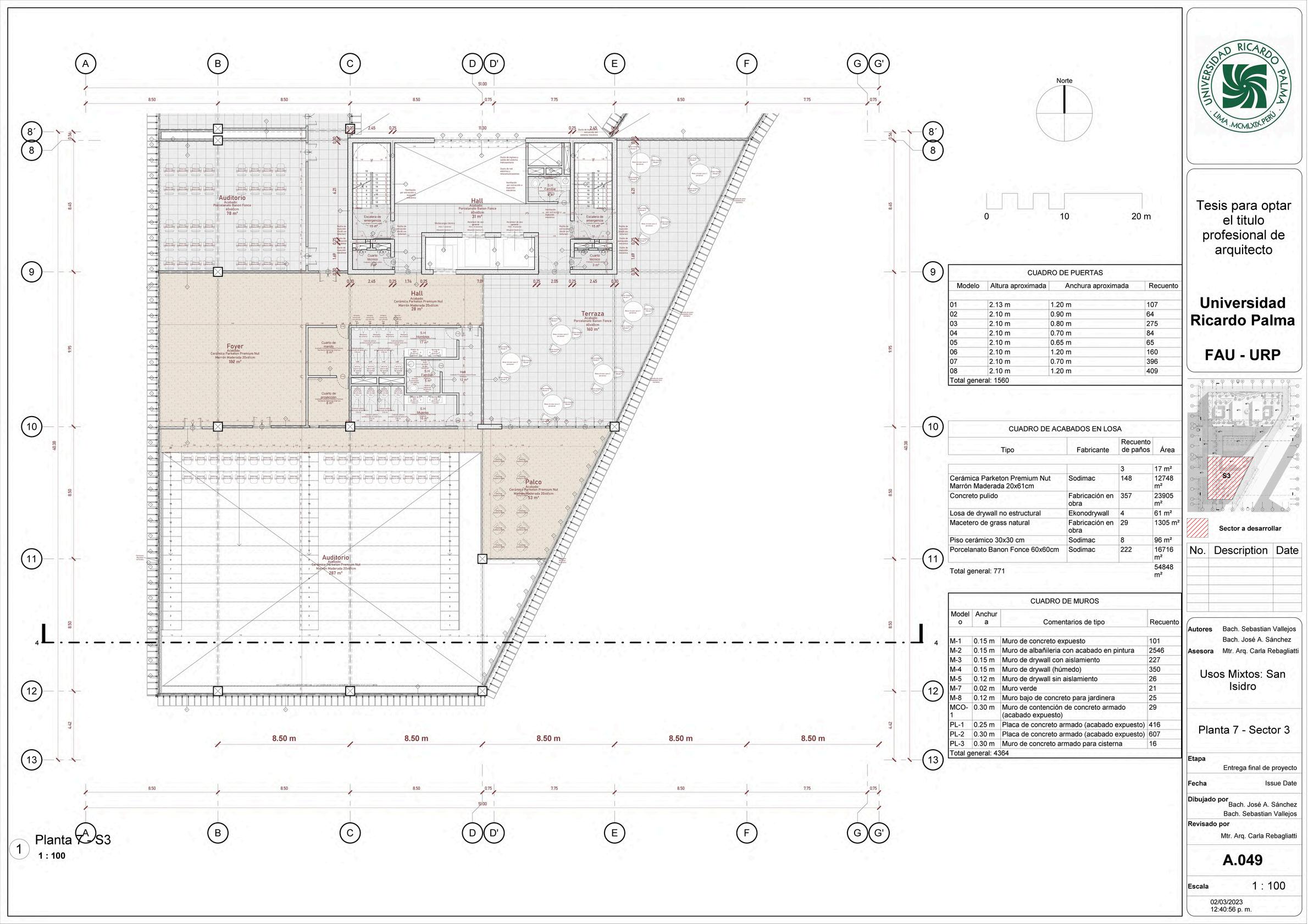
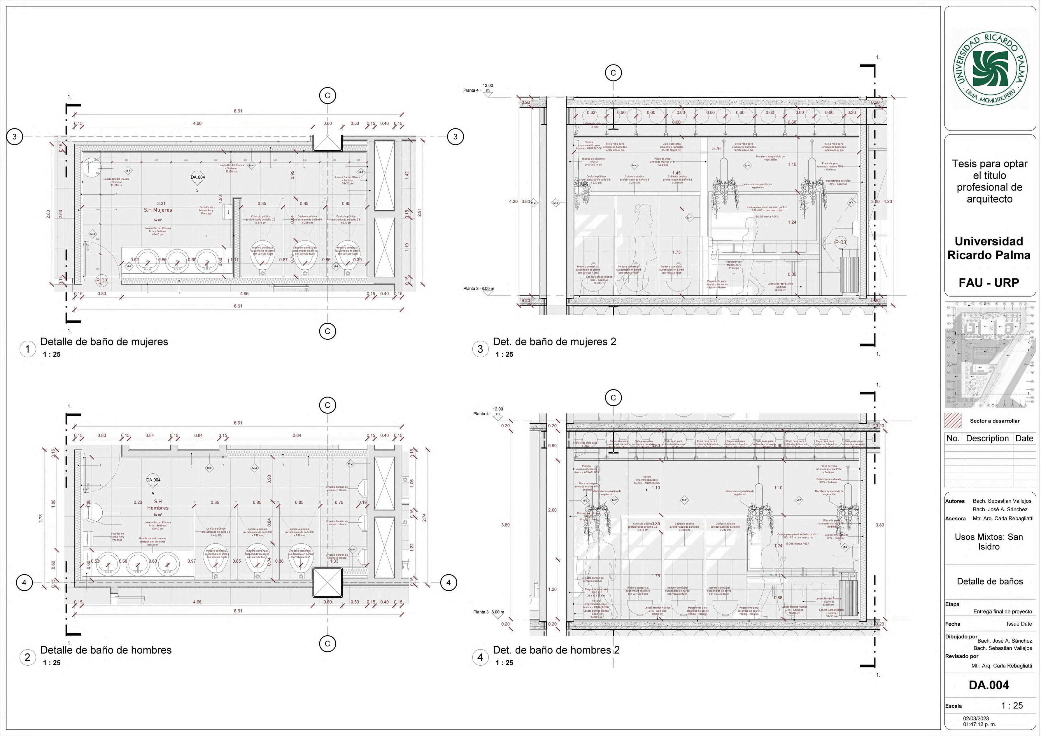
Documentación y presentación 2D del modelado a nivel de anteproyecto

E D I
F I C I O M A R Q U E Z 5 6 0

I C I O M A R Q U E Z 5 6 0

Documentación y presentación 2D del modelado a nivel de anteproyecto

E D I
V I S T A S
F
T
E D I F I C I O M A R Q U E Z 5 6 0
A R Q U I T E C
U R A

A R Q U E Z 5 6 0

C O N C L U S I O N E S

El proyecto cumplió sus requerimientos, se necesitaba:

Visualizar espacios y dimensiones de ambientes. 1. Compatibilizar con normativa municipal 2. Identificar y notificar interferencias para el posterior proceso de obra 3.

El proyecto se hizo de manera rápida y eficaz porque se identifico correctamente el LOD necesario, no se modelo menos ni más, lo necesario para cumplir con las expectativas del proyecto.

M

P R O Y E C T O 3

C A S A C U B O

El proyecto es una vivienda unifamiliar que presenta un nivel de detalle bastante alto basado en las necesidades del cliente tanto en la etapa de diseño como de obra. Cuzco - Peru.

04.

El presente proyecto en desarrollo es una vivienda unifamiliar camino a el Valle Sagrado del Cuzco - Perú, el objetivo del proyecto es crear una vivienda que pueda ser rentada en AIRBNB dentro de un área altamente demandada y con una perspectiva de alto crecimiento turístico.

En el presente documento explicaré el proceso de diseño / gestión / modelamiento del proyecto planteado.

P R O P U E S T A A R Q U I T E C T Ó N I C A

G E S T I Ó N B I M

E D I F I C I O B A S A D R E

A L C A N C E E C D

Se delimita la cantidad de especialidades y archivos que se desarrollarán así como la estrategía para su vinculación y creación del ARCHIVO FEDERADO.

Por ultimo se determina el LOD y LOIN a desarrollar, según los USOS BIM requeridos.

El ENTORNO COMUN DE DATOS ó ECD se deberá diseñar según las necesidades del proyecto y los USOS BIM requeridos.

Se deberá tener en cuenta las FASES BIM por las cuales el proyecto pasará.

G E S T I Ó N

H U M A N A

El equipo de trabajo debe estar compuesto por los ROLES BIM adecuados para el trabajo.

G E S T I Ó N

D E I N F .

Se debe diseñar un sistema de control de la información que garantice su calidad y sutrazabilidad.

G E S T I Ó N B I M

C A S A C U B O

El modelo federado contemplaría la adhesión de diferentes especialidades a un nivel de LOD de 300 mientras que se trabajaría con una arquitectura en un LOD de 400.

El emplazamiento responde a lineas topográficas generadas in situ por un equipo de topografos utilizando fotogrametría.

ARCHIVO MEP:

Se hizo la especialidad de electrcias y HVAC (sótano).

En un LOD 300

ARCHIVO ESTRUCTURAL:

Se modelo un sistema mixto de pórticos estructurales

En un LOD 400

ARCHIVO ARQUITECTURA:

Se modelo tanto la arquitectura exterior como interior

En un LOD 400

D I S E Ñ O

C

A S A C U B O

El proyecto es una vivienda unifamiliar de 2 pisos que cuenta con áreas comunes en primer piso y 3 recamarás en el segundo piso + una biblioteca.

Debido a el contexto de la zona descampada y con grandes visuales se planteo grandes vanos en el segundo piso y en el primer piso un vano principal enmarcando el comedor.

Se planteó un diseño regular para evitar las perdidas de calor y mantener una temperatura uniforme, de la misma manera en cuanto a materialidad se ha planteado un recubrimiento de la fachada con aislamiento termoacústico.

Debido a la ubicación geográfica se priorizó un sistema constructivo de concreto armado basado en pórticos, bastante resistente en una zona sísmica.

M O D E L A M I E N T O

C A S A C U B O

El modelamiento se hizo a un nivel de detalle alto teniendo en cuenta que debido al dificil acceso era recomendable tener un LOD y LOIN alto, con el fin de evitar los reprocesos y traslados de materiales en la zona así como evitar un periodo de obra largo en la intemperie y en una zona remota.

C A S A C U B O

M O D E
O
L A M I E N T
LOD 400 LOIN 400
LOD 400 LOIN 400 MEP LOD 300 LOIN 300
ARQUITECTURA + EMPLAZAMIENTO
ESTRUCTURAS

C A S A C U B O

D O C U M E N T A C I Ó N

C I Ó

C A S A C U B O

D O C U M E N T A
N

Es importante generar arquitectónico y estruc

D E T A L C A S A C

D E T A L L E M E P

C A S A C U B O

Es importante generar un modelamiento sanitario compatibilizado con el modelamiento arquitectónico y estructural

D E T A L L E E S T R U C T U R A L

C A S A C U B O

La topografía nos permitió encontar la ubicación ideas para el proyecto y diseñar la estructura. Se planteó un sistema de porticos considerando la ubicación y resistencia de suelos.

C A S A C U B O

C O N C L U S I O N E S

El proyecto tenía las siguientes necesidades:

Visualizar ambientes y espacios 1.

Coordinar especialidades 2.

Cumplir normativa municipal 3.

Proyectar y controlar la obra 4.

Este ultimo requerimiento exigió un modelamiento muy detallado por lo cual se planteó y coordino un LOD y LOIN bastante alto.

Finalmente, se llevó a buen termino el proyecto consiguiendo y cumpliendo todos los objetivos del proyecto.

ARQUITECTO + COORDINADOR BIM

JOSE ANTONIO SANCHEZ ROJAS

"Mi travesía en el diseño, construcción y tecnología BIM ha sido la base para mejorar la calidad arquitectónica en mis proyectos. Desde la concepción hasta la materialización, cada paso ha sido una oportunidad para fusionar pasión, maestría y dominio técnico, creando espacios estéticos, funcionales y sostenibles que elevan los estándares de excelencia en el campo de la arquitectura."

+51 992823520

jose.sr.1405@outlook.com

www.linkedin.com/in/josé-antonio-sánchez-rojas-bim-specialist-7383b8207

05.
M
G R
U C H A S
A C I A S

Turn static files into dynamic content formats.

Create a flipbook
Issuu converts static files into: digital portfolios, online yearbooks, online catalogs, digital photo albums and more. Sign up and create your flipbook.
Portafolio 2024 - Arquitecto José Sánchez by JOSE ANTONIO SANCHEZ ROJAS - Issuu