




![]()






Highway 21: 0.6 Miles | 2 Minutes
Downtown Caldwell: 1 7 Miles | 5 Minutes
College Station: 289 Miles | 35 Minutes





Brenham: 344 Miles | 38 Minutes Downtown Houston: 109 Miles | 1 Hour 48 Minutes George Bush International Airport: 117 Miles | 1 Hour 51 Minutes


Clear height on Exterior Walls: 17'. 2"
Clear height in Center: 21', 7"
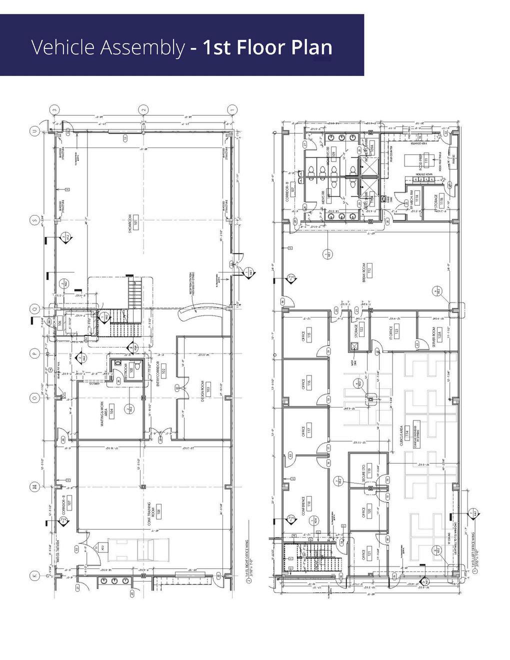
Warehouse SqFt Building 1: +/- 82,454
Slab Thickness: 6"
Column Spacing: 60'x30'
Sprinklered
















