

BLIV EN DEL AF ARKITEKTFORENINGENS HUS
Akademisk Arkitektforening har domicil på Åbenrå 34, få skridt fra Nørreport Station og Metro og med p-gård til venstre for ejendommen. Huset er et pulserende og levende hus med masser af aktivitet og spændende gæster. Arkitektforeningen har i nogle år udlejet 2. sal til anden side, men etagen er nu blevet ledig. Således har din virksomhed har nu mulighed for at blive en del af huset og nyde en række fordele.
FORDELE
Blandt de helt specielle fordele ved at være lejer hos Arkitektforeningen er;
• Indgang via Arkitektforeningens flotte ankomstområde, alternativt kan man benytte trappen i modsatte ende af ejendommen.
• Lejen inkluderer rengøring, el og alarm.
• Internet er også gratis; man kan få adgang til Arkitektforeningens opsætning og internet, dog skal lejer selv sørge for at opsætte router i eget lejemål.
• Arkitektforeningen råder over flere ekstra mødelokaler. Foreningens lille mødelokale kan benyttes mod reservation og uden beregning, mens det store konferencelokale kan benyttes mod reservation og beregning. Der kan tilkøbes mødeforplejning, såvel til egne mødelokaler som til Arkitektforeningens mødelokaler.
• Lejemålet er i dag delvis møbleret, og lejer er velkommen til at benytte møblerne, som bl.a. tæller skriveborde og mødeborde fra Paustian. Ønsker lejer ikke at benytte møblerne, vil udlejer sørge for at fjerne disse.
• Lejemålet er momsfrit (huslejen er momsfri, andre ydelser tillægges moms)
KANTINE
Lejer har mod betaling adgang til at benytte husets frokostordning, der serveres i kantinen i stueetagen. Hertil har lejer også mulighed for at benytte frugtordningen.
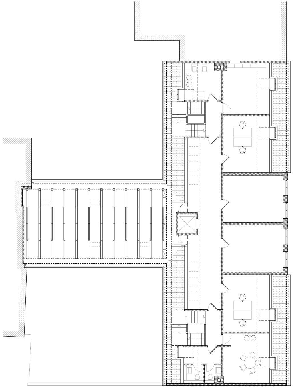
LEJEMÅLET PÅ 2. SAL Smukke plankegulve, fritlagte bjælker og udsigt til Åbenrå. Plads til ca. 14 arbejdspladser, 2 mødelokaler og lounge. Egen toiletkerne med 2 toiletter. Der er elevator i ejendommen og indgangen finder sted i husets smukke gård, hvori man også kan nyde sin frokost på de lune dage.
Lejemålet er et fremlejemål, men Arkitektforeningen har udlejet etagen gennem en årrække og ønsker at fortsætte i en del år frem.
Overtages nymalet, tidligst 1. januar 2026.




Elevator til lejemålet

Infrastruktur
TOG
3 min. gang
METRO
3 min. gang
BUS
3 min. gang
PARKERING
I gården, mod betaling
NØRREPORT ST. 3 min. gang
KONGENS NYTORV 10 min. gang
KØBENHAVNS LUFTHAVN 20 min. med tog
VOGNMAGERGADE P-HUS 4 min. gang

ÅBENRÅ 34
NØRREPORT
KONGENS NYTORV
MARMORKIRKEN
GAMMEL STRAND
PARKERING
Nørreport Station er Danmarks travleste station med 50.300 daglige passagerer.
Her kan der skiftes mellem M1 og M2 samt S-tog og regionaltog.


Lejevilkår

Driftsudgifter a conto:
Varmeudgifter a conto:
Energimærkning: Fredet
Depositum: 6 måneders leje
Momspligtig: Momsfritaget
Årlig regulering af lejen: Nettoprisindex, dog min. 2,5%
Uopsigelighed for lejer: 2 år
Uopsigelighed for udlejer: 2 år
Opsigelsesvarsel: 6 måneder
Overtagelse: 1. januar 2026
Etage Areal
Leje pr. m2 p.a.
Leje pr. md.
Leje i alt p.a.

Ejendommens hovedreception



Arkitektforeningens konferencelokale, som kan benyttes mod reservation og betaling


PLANTEGNING
3. SAL – 279 M2
Vejledende indretningsforslag vist med 14 arbejdspladser.











Lintrup & Norgart A/S er anerkendt som en af Storkøbenhavns førende erhvervsmæglere med speciale i salg af investerings- og boligudlejningsejendomme, kontorudlejning, rådgivning og konceptudvikling.
Vores overordnede målsætning er at imødekomme vores kunders behov og skabe merværdi til deres ejendomme. Det gør vi gennem vores filosofi AREALISME®, som er fundamentet i vores virksomheds værdier, og der hvor vi gør en forskel.
Kontakt


TELEFON: +45 2230 1090
MAIL: SUS@LINOR.DK
TELEFON: +45 3013 6906
MAIL: NC@LINOR.DK
SUSAN HELLNER LINTRUP PARTNER
NANNA CLAUSEN ERHVERVSMÆGLER