PORTAFOLIO HENKO STUDIO

Page 1

PORTAFOLIO HENKOSTUDIO

Indice

Arquitectura
2

● CV pág.4-5

● Salon-loft pág.6-15

● Appartmenttower pág.16-22

● CentromedicoVida pág.23-29

● Architectureoffice pág.30-33

● ResidenciaChester2 pág.34-39

3
4

Loft-salon

Arquitectura
5
2023 6
7
8
9

RevitArchitecture

El proyecto propone una fusión entre un loft y un salón de eventosconestiloindustrial.Elloftofreceunespacioabiertoy luminoso, mientras que el salón de eventos es flexible para diversasfunciones.

10
11

RevitArchitecture

En resumen, combina funcionalidad moderna con estética industrial para ofrecer un espacio versátil para eventos y vida cotidiana, ademas todo fue realizado mediante el software de REVIT,incluyendoeldiseñodelpasodeinstalaciones.

12
MEP
Baja 1ernivel 13
Revit
Planta

Appartment tower

14
Arquitectura
2023 15

Este edificio de apartamentos residenciales de seis niveles fusiona funcionalidad y comodidad para sus residentes. El primer nivel incluye estacionamiento y diversas amenidades comoáreasrecreativasysalascomunes. Loscinconivelessuperioresalberganlos apartamentos,diseñadoseficientemente paramaximizarelespaciohabitableyla comodidad. Con una estética contemporánea,ofreceunestilodevida moderno y conveniente en un entorno vibranteyseguro.

16

RevitArchitecture

17

RevitarchitectureandStructure

18
19

RevitArchitecture

20

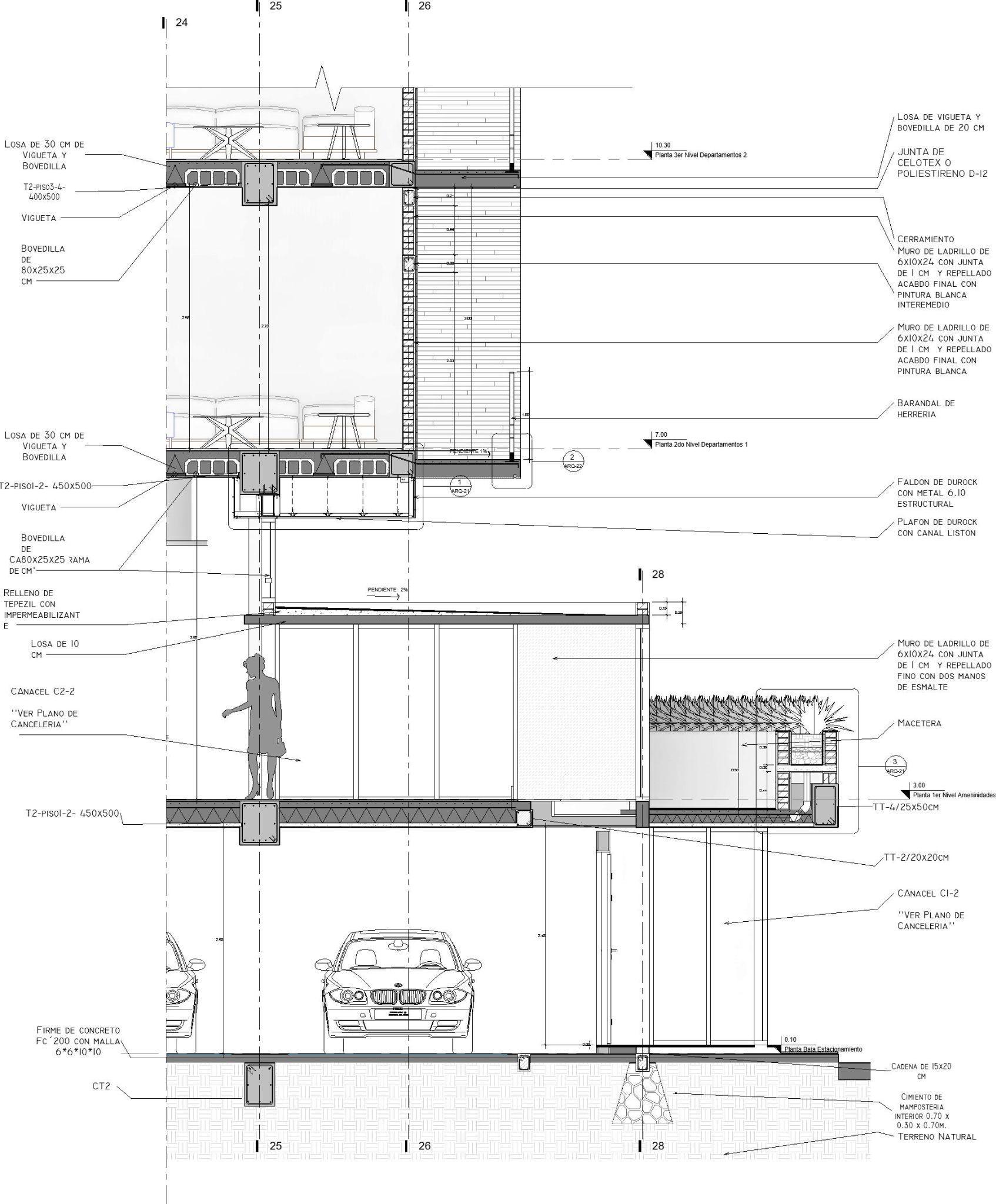
Centromedico Vida

21
Arquitectura

Un complejo hospitalario, con capacidad para 200 camas, se componedecincoedificios.Tresdeellosestándedicadosalas áreasmédicas,mientrasquelosotrosdossonparaelauditorioyel cuarto de máquinas. Los edificios hospitalarios priorizan la accesibilidad, la seguridad y la eficiencia en la circulación de pacientesypersonalmédico.

2021
22

El auditorio está diseñado para actividades educativas con tecnología audiovisual de última generación, y el cuarto de máquinasalbergaequiposesencialesparaelfuncionamientodel hospital. En conjunto, el diseño arquitectónico enfatiza la funcionalidad, el bienestar y la eficiencia en la prestación de serviciosmédicos.

23

RevitArchitecture

Seimplementoelusodeunadoblefachadacompuestaporun muro cortina para evitar el sobrecalentamiento del interior causadoporlaincidenciasolardebidoalaorientaciondeledificio

24
25
1erNivel
PlantaBaja Edificio1 Edificio5 Plantade
26
Edificio2

2doNivel

3erNivel
Edificio3
27
Edificio4
Conjunto

Architecture office

28
Arquitectura

Esta oficina de arquitectura con diseño industrial combina elementos modernos y funcionalesparacrearun ambiente inspirador y eficiente.

Eldiseñoarquitectónicode la oficina fusiona materiales industriales como acero, concreto y ladrillo expuesto para generar autenticidad y robustez, evocando el carácter histórico de los espacios industriales. Estos elementos no solo añaden atractivo visual, sino que también refuerzanlasensaciónde autenticidadydurabilidad.

2021
29
2021 30
31

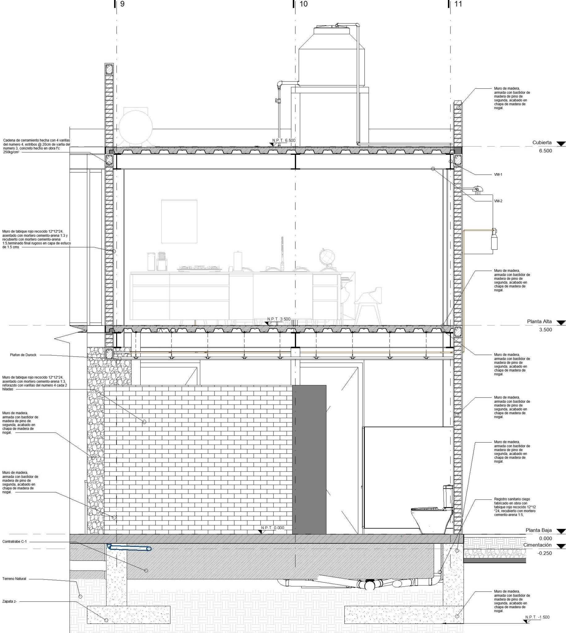
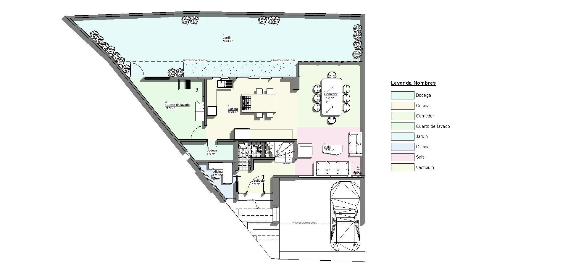
Residencia Chester 02

32
Arquitectura
2023 33

RevitArchitecture

PlantaBaja

El diseño arquitectónico de esta residencia familiar, creadoconlaayudadeREVIT, destacaporsumodernidady funcionalidad.Secaracteriza porespaciosbiendistribuidos quepromuevenlacomodidad yelbienestar.

34

RevitArchitecture

PlantaAlta

El diseño incorpora áreas sociales abiertas para la interacciónfamiliar,juntocon zonas privadas para el descanso.Se presta especial atención a los detalles estéticos y funcionales, resultando en un hogar que combina elegancia y practicidad en perfecta armonía.

35

RevitArchitecture

SeccionLongitudinal
36
FachadaPrincipal

Además de abordar la parte arquitectónica, se elaboraron detalladamentelosplanos correspondientes a las instalaciones hidráulicas, sanitarias, pluviales y eléctricas. Este enfoque integralpermitióobtener un entendimiento completo y preciso de todas las facetas del proyecto.

37
Gracias!
HENKO STUDIO 2228460672 Arquitectura

Turn static files into dynamic content formats.

Create a flipbook
Issuu converts static files into: digital portfolios, online yearbooks, online catalogs, digital photo albums and more. Sign up and create your flipbook.
PORTAFOLIO HENKO STUDIO by archi.diego - Issuu