Portafolio de Arquitectura

Page 1

PORTAFOLIO

DiegoA.RomeroHernandez

Indice

Arquitectura
2

-5

6-15

pág.16-22

-29

-33

CV pág.4
Salon-loft pág.
tower
Appartment
CentromedicoVida pág.23
Architectureoffice pág.30
3
ResidenciaChester2 pág.34-39

CV

4

Celular: 2228460672

DiegoAlberto Romero Hernandez

Arquitecto

Correo: arch.diego01@gmail.com

Perfil

Graduado enArquitectura con sólida formación y pasión por la creatividad y la innovación. Especialista en integrar diseño estético, funcionalidad y sostenibilidad. Proactivo y al tanto de las últimas tendencias. Destaco en la creación de espacios inspiradores y funcionales con un enfoque innovador y atención meticulosa a las necesidades del usuario.

Educacion

Egresado de la Licenciatura enArquitectura en la Benemerita UniversidadAutonoma de Puebla. 2019-2024. Promedio 9.26

Logros academicos

● Conclusión del curso: ''Números generadores '' por parte de: Grupo constructor y consultor GB

● Participacion en el programa ‘’Implementación de tecnologías multimedia, virtuales y fabricación digital para licenciaturas de diseño’’por parte del Dr. Victor Manuel Martinez Lopez, en el cual se realizaron actividades de realidad virtual asi como impresion en 3D.

Experiencia profesional SERVICIO SOCIAL-SECRETARIADE MOVILIDAD E INFRAESTRUCTURA ARQ. JOSEA. OSORIO PAJARO-JEFE DELDEPARTAMENTO DE PLANEACION - 22220125668

● Colaboré activamente en la creación y desarrollo de modelos en REVITpara proyectos clave de la Secretaría, asegurando la precisión y calidad del diseño arquitectónico.

● Colabore en el desarrollo del proyecto ejecutivo en REVIT, garantizando una implementación eficiente y cumplimiento de los estándares de calidad requeridos.

PRACTICAS PROFESIONALES-ACABADOS RESIDENCIALES EN MADERA

FELIPE DE JESUS PALACIOS CASTAÑEDA- DIRECTOR- 2224947171

● Desempeñé un papel integral en el diseño personalizado de mobiliario y espacios para una variada gama de clientes, demostrando creatividad y capacidad para adaptarme a diversas necesidades y estilos.

● Responsable de realizar un minucioso desglose de materiales y piezas requeridas para cada mueble diseñado, asegurando una planificación precisa y eficiente en el proceso de fabricación.

ARQUITECTO JR

ING. JOSE EDUARDO PUIG OSORIO - 2225175369

● Lideré el proceso de levantamiento arquitectónico de proyectos tanto residenciales como escolares, demostrando habilidades técnicas avanzadas y atención meticulosa a los detalles para garantizar la precisión y exactitud en la documentación.

ARQ. JORGE U. MENDOZAREYES - 2223802666

● Como auxiliar, colaboré en la supervisión y control de procesos constructivos con un enfoque centrado en la calidad y eficiencia, asegurando la ejecución exitosa de proyectos residenciales de alto nivel.

● Colaboré estrechamente brindando un apoyo invaluable en la creación y revisión de planos, lo que resultó en la entrega puntual y satisfacción del cliente en todos los proyectos.

Manejo de programas

● AutoCAD-Avanzado

● Photoshop-Avanzado

● 3dsmax-Avanzado

● Sketchup-Avanzado

● Illustrator-Avanzado

Idiomas

● Español- Nativo

● Ingles-Avanzado

● Frances-Avanzado Cualidades

● Revit- Intermedio/Avanzado

● Proactivo

● Capacidad de trabajo bajo presión

● Creatividad

● Responsable

● Comprometido

● Eficiente

6

Loft-salon

Arquitectura
7
2023 8
9
10
11

RevitArchitecture

El proyecto propone una fusión entre un loft y un salón de eventosconestiloindustrial.Elloftofreceunespacioabiertoy luminoso, mientras que el salón de eventos es flexible para diversasfunciones.

12
13

RevitArchitecture

En resumen, combina funcionalidad moderna con estética industrial para ofrecer un espacio versátil para eventos y vida cotidiana, ademas todo fue realizado mediante el software de REVIT,incluyendoeldiseñodelpasodeinstalaciones.

14

RevitMEP

PlantaBaja 1ernivel 15

Appartment tower

Arquitectura 16
2023 17

Este edificio de apartamentos residenciales de seis niveles fusiona funcionalidad y comodidad para sus residentes. El primer nivel incluye estacionamiento y diversas amenidades comoáreasrecreativasysalascomunes. Loscinconivelessuperioresalberganlos apartamentos,diseñadoseficientemente paramaximizarelespaciohabitableyla comodidad. Con una estética contemporánea,ofreceunestilodevida moderno y conveniente en un entorno vibranteyseguro.

18

RevitArchitecture

19

RevitarchitectureandStructure

20
21

RevitArchitecture

22

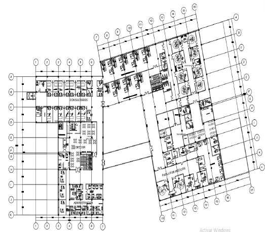
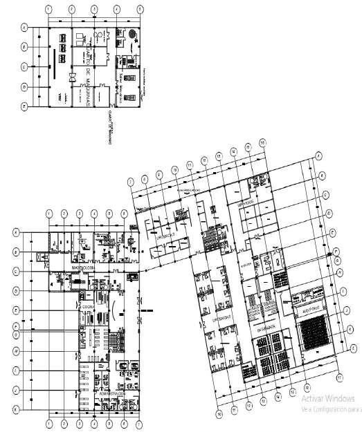
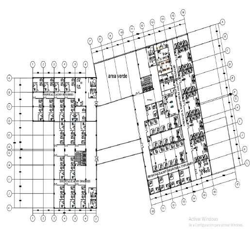
Centromedico Vida

Arquitectura 23

Un complejo hospitalario, con capacidad para 200 camas, se componedecincoedificios.Tresdeellosestándedicadosalas áreasmédicas,mientrasquelosotrosdossonparaelauditorioyel cuarto de máquinas. Los edificios hospitalarios priorizan la accesibilidad, la seguridad y la eficiencia en la circulación de pacientesypersonalmédico.

2021
24

El auditorio está diseñado para actividades educativas con tecnología audiovisual de última generación, y el cuarto de máquinasalbergaequiposesencialesparaelfuncionamientodel hospital. En conjunto, el diseño arquitectónico enfatiza la funcionalidad, el bienestar y la eficiencia en la prestación de serviciosmédicos.

25

RevitArchitecture

Seimplementoelusodeunadoblefachadacompuestaporun muro cortina para evitar el sobrecalentamiento del interior causadoporlaincidenciasolardebidoalaorientaciondeledificio

26
27

PlantaBaja

de

1erNivel
Edificio1 Edificio5 Planta
28
Edificio
2

2doNivel

3erNivel
Edificio3
29
Edificio4
Conjunto

Architecture office

Arquitectura 30

Esta oficina de arquitectura con diseño industrial combina elementos modernos y funcionalesparacrearun ambiente inspirador y eficiente.

Eldiseñoarquitectónicode la oficina fusiona materiales industriales como acero, concreto y ladrillo expuesto para generar autenticidad y robustez, evocando el carácter histórico de los espacios industriales. Estos elementos no solo añaden atractivo visual, sino que también refuerzanlasensaciónde autenticidadydurabilidad.

2021
31
2021 32
33

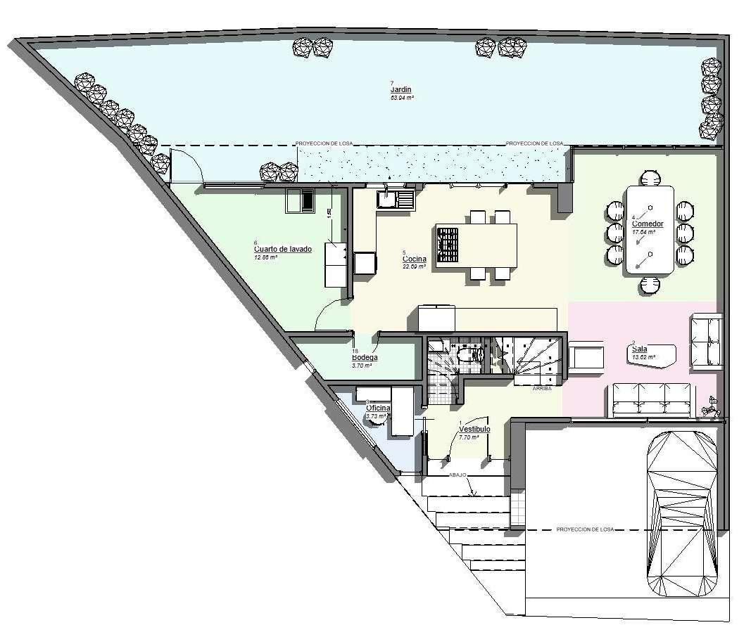
Residencia Chester 02

Arquitectura 34
2023 35

RevitArchitecture

PlantaBaja

El diseño arquitectónico de esta residencia familiar, creadoconlaayudadeREVIT, destacaporsumodernidady funcionalidad.Secaracteriza porespaciosbiendistribuidos quepromuevenlacomodidad yelbienestar.

36

RevitArchitecture

PlantaAlta

El diseño incorpora áreas sociales abiertas para la interacciónfamiliar,juntocon zonas privadas para el descanso.Se presta especial atención a los detalles estéticos y funcionales, resultando en un hogar que combina elegancia y practicidad en perfecta armonía.

37

RevitArchitecture

SeccionLongitudinal
38
FachadaPrincipal

Además de abordar la parte arquitectónica, se elaboraron detalladamentelosplanos correspondientes a las instalaciones hidráulicas, sanitarias, pluviales y eléctricas. Este enfoque integralpermitióobtener un entendimiento completo y preciso de todas las facetas del proyecto.

39
A. Romero Hernandez
Arquitectura
Gracias! Diego
2228460672

Turn static files into dynamic content formats.

Create a flipbook
Issuu converts static files into: digital portfolios, online yearbooks, online catalogs, digital photo albums and more. Sign up and create your flipbook.