Lawecka Anna - portfolio 2023

Page 1

portfolio anna ławecka

LANGUAGES

Polish - mother tongue

English - fluent

Swedish - A1

French - A2

COMPUTING

Revit, AutoCAD, Rhino, SketchUP, Enscape, ArchiCAD, Lumion, Adobe Photoshop, Adobe Illustrator, Adobe InDesign, Figma, QGis

SKILLS

Driving license, Python, C++, PyRevit

GROUPS AND SOCIETIES

Academic circle Lab60+

Collectivity Era of New Aging

INTERESTS

painting, coding, yoga, snowboarding, sustainability

WORK EXPERIENCE

Konior Studio

Katowice, Poland

architecture assistant tasks: design concepts, technical draings, 03/2022- 07/2022

Holscher Nordberg A/S

Copenhagen, Denmark

architecture intern tasks: design concepts, technical draings, 09/2021 - 02/2022

GÓRNIK Architects

Sosnowiec, Poland

architecture assistant tasks: design concepts, 3D modeling, rendering 10/2020 - 12/2020

OVO Grąbczewscy Architects

Katowice, Poland

architecture internship tasks: design concepts, technical draings, 07/2020 - 10/2020

EDUCATION

KTH Royal Institute of Technology

MA Sustainable Urban Planning and Design 08/2022 - currently

Silesian University of Technology

BA Architecture

10/2018 - 07/2022

VIA University College

Architectural Technology and Construction Exchange programme

02/2021 - 07/2021

draings, 3D modeling

OTHER COURSES AND TRAINING

Introduction to Visualization, Computer Graphics and Image/ Video Processing at KTH Royal Institute of Technology course contents: interaction programming using C++, algorithms and concepts of computer graphics

01-2023-03.2023

draings, 3D modeling

Architecture drawing course Archikurs course contents: hand drawing and painting, drawing techniques basics to advanced, model making

09/2015 - 07/2018

Car design workshops with Pininfarina designer, Maurizio Corbi course contents: hand drawing, car design basics

08/2018

rendering

ACHIEVEMENTS

draings, architectural inventory

Technology Design Technology

Construction Management

First prize at architecture competition organized by SARP Koszalin and Koszalin University of Technology

Third prize at student project competition organized by Silesian University of Technology

Honourable mention at student project competition organized by Silesian University of Technology

PUBLICATIONS

Accessibility in designing woonerfs in historical centers of European cities article in „Building Science” may 2021

Accessible Street in Urban Renewal scientific monograph 2022

cv

ARCHITECTURE

Longhouse community youth centre

URBAN PLANNING AND DESIGN

Gavle’s urban consumerism urban exploration and spatial intervention design

RESEARCH AND DESIGN WORK

[plebańska_st]

PBL Accessible street design project

OTHER EXPERIENCE

Stockholm Furniture Fair model making exhibition

Painting

portfolio

Thank you for reviewing my application.

Here is my portoflio with projects from my university, additional activities and my personal interests.

I graduated in Architecture from Silesian University of Technology and I am currently studying Sustainable Urban Planning and Design with a major in Architecture at KTH in Stockholm. I am a ambitious and dedicated person, who is not afraid of challenges. I care about social and environmental aspects in my work. I would love to work and create in a team of creative and passionate people.

In this portoflio you will see few of my favourite projects that I had pleasure to design and be part of.

hi!
Revit + Enscape + Photoshop

BRIEF

The topic was to design a hub for young people between 15-19, that provides natural exciting environment for the youth to grow, exercise, and connect. The proposal should provide a calming pattern of green areas and natural features, evoke the feel of nature and the love for life “biophilia”

LONGHOUSE

Bachelor degree final project at Silesian University of Technology

individual work

mentor: Szymon Opania, PhD

HISTORICAL TERRITORY

Port Moody

areas belonging to Kwikwetlem tribe

GOALS: biophilic design forming a community supporting local culture

700 m 900 m
TRANSPORT ANALYSIS
bus stop bus line parking metro main roads transport hub site site
LOCATION
FUNCTION ANALYSIS site housing estate high school middle school primary school park facilities site site’s neighbourhood Anmore Port Moody Coquitlam

GREEN AREAS ANALYSIS

site

urban green areas

forest entrance to a park park

hiking route

water

TREE ANALYSIS

site

height of trees

3m 30m

tree lost 2001-2020

CONCLUSIONS FROM ANALYSIS

_indigenous heritage

_vast green areas and high trees

_local materials

_well located

_good accessibility to needed facilities

IDEA

The proposal for the youth center buidling is based on the idea of collectivity and community. It is a place for teenagers to grow as individuals and members of community. Here they can explore their potential, organize events, create projects or gather around to hang out. With no judgement, no grades, no bad answers. Building is designed in a way it can host diverse events, so it’s adaptable for young generation’s needs.

OUTSIDE

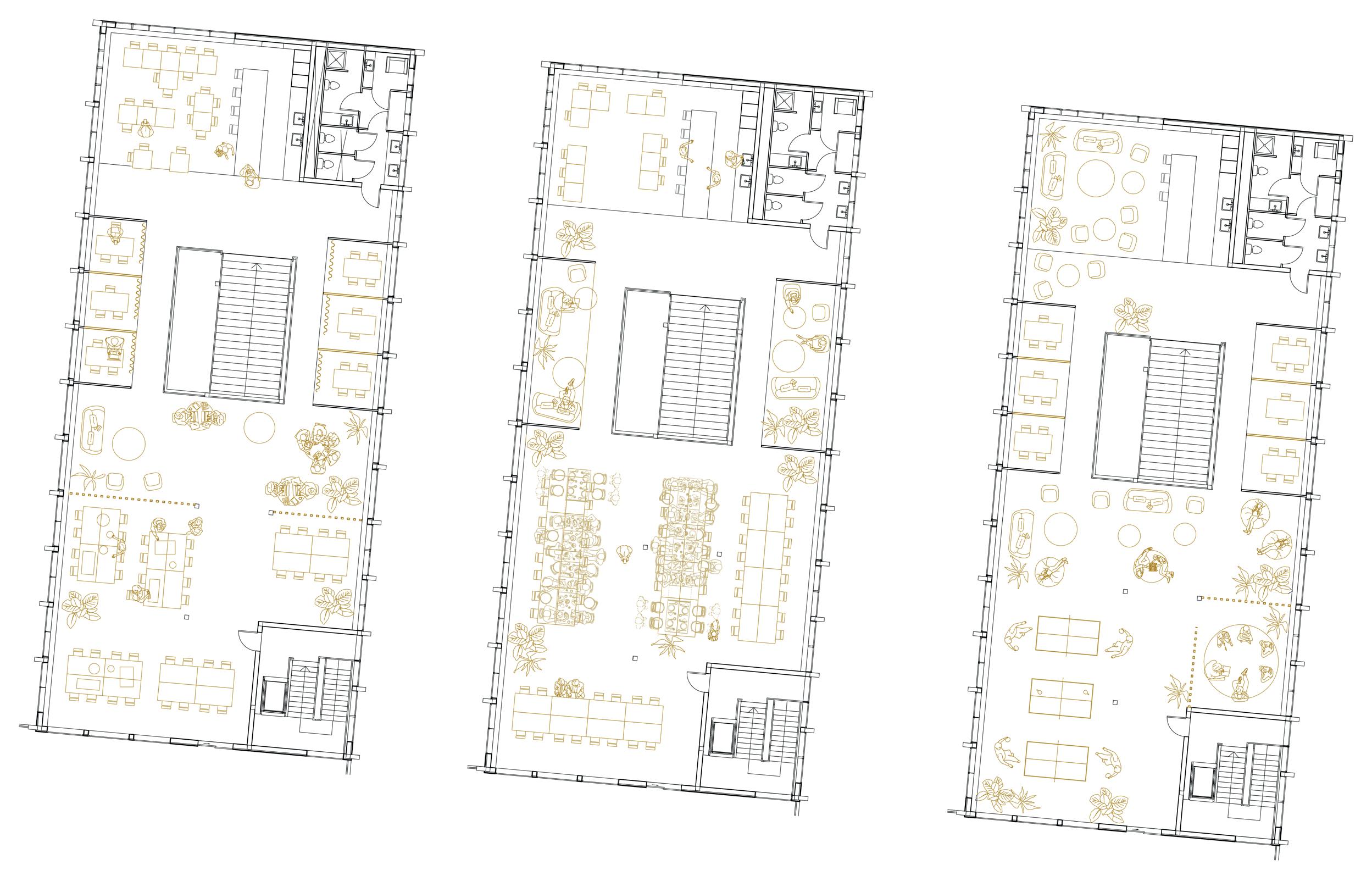
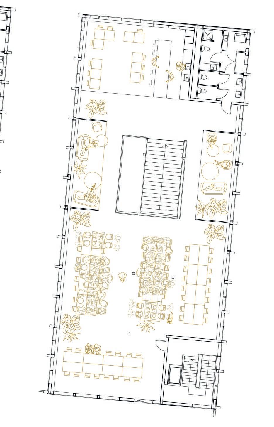
The building’s layout is based on longhouse building typology with 2 entances - one from south and one from north. In a way, it is a gate between human world and nature world, combining those two in the inside - a transitional space. East-west division of the building, enhanced by the wood column construction, enhances the connection of the building and the nature, as though they interpenetrate.

wooden roof

wooden grillage

wood column construction

technical rooms

toilets and shower private room

community kitchen rooms for individual work

open space

outdoor leisure space

technical rooms

toilets locker room with showers

main hall

bike parking

axonometric view of rooms and construction

INTERIOR VISUALISATIONS

workshop open space

community kitchen
main hall
VARIOUS
AT DIFFERENT TIMES option 1 option 2 option 3
PROPOSAL OF USING THE BUILDING FOR
ACTIVITIES

ACTIVITY PROGRAMME

main hall

day events

- exhibition

- bake sale

- charity fair

- showcase

- market

afternoon events

- dance lessons

- workshops

- yoga classes

- group and individual meetings

- hangout spot

night events

- concert - party

- karaoke

- movie night

- dancing

individual and small group rooms

community kitchen

- communal dinner

- cooking workshops

- group cooking

- coffee spot

- brunch spot

open space

- leisure

- hangout spot

- community dinner

- workshops

- extra classes

- lecture

- laboratory

- gaming

- board games

- table soccer

- table tennis

DESIGN SKETCHES
Revit + Photoshop first floor plan PLANS N

site plan

FUNCTIONAL DIAGRAMS

connection of the building and the park with proposal of adding new paths

connection of the building and surroundings

connection between school and nature nature

transition space

school

second floor plan PLANS AND SECTIONS N

BRIEF

Explore and propose a transformation of Gavle and the surrounding areas to integrate it as a sustainable whole, and deal with questions of how it can improve towards more sustainable future.

GAVLE’S URBAN CONSUMERISM

individual exploration at SUPD Studio course: Textures

individual work

CITY NETWORK

1:20000

main roads with traffic volume service roads chosen area

CITY FUNCTION

1:20000 industries shopping and facilities farmlands public service buildings chosen area

URBAN ANALYSIS
QGIS + Photoshop

1:10000

1910 - 1950

1951 - 1970

1971 - 1975

1976 - 1980

1981 - 1985

1986 - 1990

1991 - 1995

1996 - 2000

2001 - 2005

2006 - 2010

2011 - 2015

2016 - 2022 chosen area

BUILDING FUNCTION

1:4000 Living Facilities

Public service water chosen area

CITY AGE
N

groundfloor of builidings, car roads

MODEL EXPLORATION

people can move around the place enabling higher flow of the crowd

MOVING THE MASS

redistribution of the masses and opening up space for new squares and public spaces

MOVING MASS MOVING UP MASS

being able to go up and down makes it more convenient to move around and accessbile

social intervention and sustainable place for

1:2000
N

GOALS:

and exploration sustainable growth for social activity

Mass exploration of shopping centers of different origin presented on the left gives an interesting input to the discussion of urban design and public spaces. If we take these masses out of their context they look like it could be some part of a city -streets, buildings, blocks and squares. They are often rather big structures and architects design within them sitting areas, facilities, plants, bins, intersections, halls etc. How is this different then designing an urban block of the same area?

If we compare street and shopping centre they both have its upsides and downsides. There is afterall a reason why people go to shopping centres, despite its overwhealming, noisy and crowded insides. The positive sides of shopping centres are therefore to be used as values for the intervention.

“Less visible are the local, social, and material infrastructures at work: small kitchen gardens and provision gardens, emodied know-how, a feel for how things go together, where resources can be foraged and fished, and the quiet work of gossip, includingthesharingofminorknowledgepracticesandtheminorlanguagethatiscreole.”

B. Frichot H., (2022)

FUNCTIONAL PROGRAMME

sport centre rest spot

caffe

restuarant

roof garden

production house

facilities

IDEA

back square

shopping centre main square

shopping street

temporary market

culture house

workshops

facilities

Theory that I wish to explore is decontruction of big masses and redistribustion in the area bluring the line between shopping centres and streets.

Main concept of it is creating a deck that would enable moving of people between buildings above the streets. The deck connects neighbouring buildings allowing flow of people and creating new “streets”.

production house

FUNCION DIAGRAM

connecting production facilities with the city centre with the idea of supporting local manufactures

3D MODEL
DESIGN PLAN

Most of the things in shops and centres were manufactured, assembled, and then to Gävle. Even if they brands. The thought in the chapter of book Infrastructural Love (B. process of production are people, local spirit in the shopping centres we hate shopping centres, but love craftsmansips. In the design I wanted consumerism and products to the

VISUALS

and facilities in the shopping assembled, shipped to Sweden were products of swedish chapter Plantationocene Parable Frichot H., 2022) behind people, cultures and cities. Lack of centres is perhaps the reason why love market halls, markets and wanted to bring attention from the humans behind them.

SketchUP + Photoshop

BRIEF

Our team was supposed to formulate a design strategy and urban design proposal for Plebańska street using participatory design methods in order to create an accessible and welcoming space.

PLEBAŃSKA: ACCESSIBLE STREET

urban project team:

Anna Ławecka

Joanna Jonda

Paulina Konsek

Agata Goleśna

Aleksandra Gajewska

Sara Malicka-Skrzek

mentor:

Agnieszka Labus, PhD

GOALS: accessibility participatory and research speculative design

SketchUP + Photoshop research

SPECULATIVE DESIGN STEPS

Plans and axonometric views of the changes planned for the Plebanska street

1 possible future current state

In design we focused on implementation and real life actions that could become reality.

We used speculative design method and presented 4 possible phases. possible future

2 plausible future experimental urbanism

In second phase the design focuses on integrating people and engaging them in the project. Key step here is painting the street, so that drivers would be alerted not to drive there.

That would be only psychological suggestion, but could accustom people to forthcoming changes.

This part is a current state that will possibly happen if nothing is changed. Right now there are several outdoor eating areas, many parking spots and lack of greenery.

few trees

overwhelming parking spaces

limited space for gastronomic gardens

regular car traffic

few trees

reduced number of parking spaces

extended space for gastronomic gardens

added greenery in pots

painted street suggesting that drivers are not welcommed

plausible future probable future preferable future

3 probable future partial closing

Third phase is a partial closure of Plebańska Street and three adjacent streets.

In this stage parking spaces for people with disabilities is added, but the rest of parking spots are limited. The design proposal expands to existing garden square.

4 preferable future complete closure

Preferable future is the furthest and during participatory process some things might alter.

In this step, all traffic in the area is banned. It’s allowed only in the outer ring of the Old Town and all of the internal streets are opened for services only.

The multi-storey car-park is also submited as to take over majority of car parking spaces. Social gardens are also added as a semi-private and semi-public alternative for inhabitants.

connection between woonerf and garden

square

organised green area around church

added parking space for people with disabilities

reduced number of parking spaces

extended space for gastronomic gardens

added greenery in pots

partial closure of car traffic

connection between woonerf and garden square

organised green area around church

reduced number of parking spaces

added parking space for people with disabilities

extended space for gastronomic gardens

added greenery in pots

arranged social gardens

complete closure of car traffic

multi-storey parking

hand drawing + Photoshop

Plebańska_St: Accessible Street project has been developed using project based learning method at Architecture Faculty of Silesian University of Technology.

The project concerns a street located near market square in Gliwice, Poland. The aim was to use participatory design methods and research needs of the stakeholders. Then create design guidelines based on research and formulate design proposal and planning strategy for city’s government.

Our team collaborated with another PBL group, that focused on accessible furniture for Plebańska Street.

We worked in close coopertaion with Damian Przybyła and Rafał Przybyła from Laka Foundation. Also, we had an opportunity to consult and discuss our project with international experts:

Marvin Bratke, BART//BRATKE

Anastasia Elrouss Anastasia Elrouss Architects

Alberto T. Estevez ESARQ-UIC Barcelona/iBAG-UIC Barcelona Universitat de Barcelona

The project cumlinated in creating a scientific monograph, were we described the whole process, our methodology, design proposal and further recommendations.

BRIEF

The task was to create an architectural model to be displayed at Stockholm Furniture Fair 2023. A school with +300 students. Classroom. Lecture halls. Large hall where students meet. Mix of classrooms and open collaboration areas. Should inspire kids to think different.

DANGEROUS SCHOOL

in cooperation with BAUX - building material company from Stockholm

individual work

displayed at Stockholm Futniture Fair 2023 soon to be displayed at Clerkenwell Design Week 2023 London

Dangerous School has been designed to inspire and challenge students setting out on their learning journey. The school features a mix of traditional classrooms, open collaboration spaces and lecture halls, all designed to create a dynamic and engaging learning environment.

Many schools make choices for children – where they need to be and how they should behave. I want to make the school about the kids. The whole building is a playground. Everywhere you look in the building you see something different and this creates the challenges that pushes children to explore. Finding what you can do by yourself and in collaborating with others, I believe, leads to a greater curiosity and resilience. This can positively affect our wellbeing now and later in life.

GOALS:

inspiring space future of wellbeing model exhibition

MODEL PHOTOS

paintings

Here I would like to present my paintings that I do out of my personal drive. I paint on canvas 60x80cm and bigger. I use different paints, pens, pencils, pastels and more to challenge myself in using different clours, styles, textures and patterns.

Anna Ławecka

E-mail: anna.lawecka0@gmail.com

Phone number: 07 93 56 7980

Turn static files into dynamic content formats.

Create a flipbook
Issuu converts static files into: digital portfolios, online yearbooks, online catalogs, digital photo albums and more. Sign up and create your flipbook.