2024-Portfolio-Afnan Al-Rashid

Page 1

Portfolio

University of Waterloo M.Arch

Toronto Metropolitan University B.Arch.Sci.

Afnan Al-Rashid

Afnan Al-Rashid

Bio

I am an architectural designer with an M.Arch from the University of Waterloo and a Bachelor’ in Architectural Science from TMU. My architectural education is technical-focused and humanities-influenced; we can talk about mass timber wall sections and Bachelor’s wood cottages and abodes. My architectural education shaped my design approach, which involves a written story of the foreseen dweller of my building, then the design of the circulation and flow, then the design of structure and system (are the details going to be hidden or revealed?).

I worked in various architectural offices, where I developed 3D models, construction documents, and permit sets for residential and commercial buildings. I enjoyed creating floor plans; they are like maps of a dwelling story, and I enjoyed 3D modeling and rendering; the spaces and details were essential to be modeled as they would be built, so the render could tell it as it is. I also enjoyed drawing wall sections and nerd out with the senior architect over building science Instagram pages. In my work, I primarily use AutoCAD, Revit, Rhino, Enscape, Photoshop, and InDesign.

In my master’s thesis, I decided to temporarily break away from all the technical and architectural design. I wrote and sketched stories of my childhood home, and I explored architecture in a way where the user was at the front and the architecture was in the background, woven with narration and drawings. I currently live in Toronto, specifically North York. This place made me curious about the narratives of community living and made me fall in love with concrete and Brutalism.

*Images are hyperlinks to the projects

Co-House M.Arch Comprehensive Design Studio Interstitial Wall M.Arch Urban Design Studio

Home Renovation

DS Studio Inc

The World of My Childhood

Graphic Novel, M.Arch Thesis

Home

Co-House

M.Arch Comprehensive Design Studio

The project is an exploration of communal placemaking strategies within the neighborhood of Galt in Cambridge, Ontario.

The neighborhood is within downtown Cambridge, where small communities of seniors, students, small business owners, and young families live in proximity. The diversity of these small communities inspired communal placemaking practiced by the residents and the surrounding neighbors of the site and proposed co-house.

The proposal is influenced by my personal experience of living in a typical mid-century Modern apartment building in Ontario. As residents of the same building, we have small chats in the lobby, the elevator, and the laundry room, and no further spaces are provided for communal interaction. The design of the co-house is perceived as an opportunity to innovate a typical apartment building design into a communal living co-house.

The implemented communal program within the proposed co-house is of active placemaking activity, that is, healthy living through collaborative foodgrowing. The proposed program includes a community garden, germination spaces, produce distribution spaces, community kitchens, and a dining hall. The program stretches from the site into the residential unit floors. The co-house is envisioned to be an incubator of active placemaking through the communal activity of food growing.

Idea Exchange: Library

Senior Home

Small Businesses: Cheese Store & Chiropractor Office

Student-Rented Residence

Anglican Church: Sundays’ Soup Kitchen

Identifying Surrounding Context

Site & Massing Concept

The first design move is creating enough space on the side facing the street to attract the surrounding communities to its open public space.

The massing follows a similar massing of a typical apartment building in Ontario, and it stretches as one narrow block along the site to allow for the display of communal programs from site to the building co-house.

AVE. N.
GRAND
GRAND RIVER

Community Food-Growing Activities: From Germination to Farming to Produce Distribution to Community Kitchen

Massing and Site Development: Integration of Community Food-Growing Activities with the Co-House

The activities of food-growing are designed within the site and the front facade of the proposed building to show the active communal practice to the surrounding communities and the passers-by on the street.

East Section: Community Kitchens Throughout the Floors East Section: Germination and Produce Distribution Spaces

1 Dining Hall

2 Community Kitchen

3 Gym

4 Loading Space/Seating Space

5 New Building:Community Garden Bazaar/Storage Spaces

6 Renovated: Community Clinic

7 Existing Building: Small Businesses

8 Common Kitchen

9 Co-House Shared Spaces: Study Space, Living Room, and Small Library

10 Produce Distribution Space

11 Germination Space

12 Common Corridor and Benches

13 Herbs Pots

GRAND AVE. N.
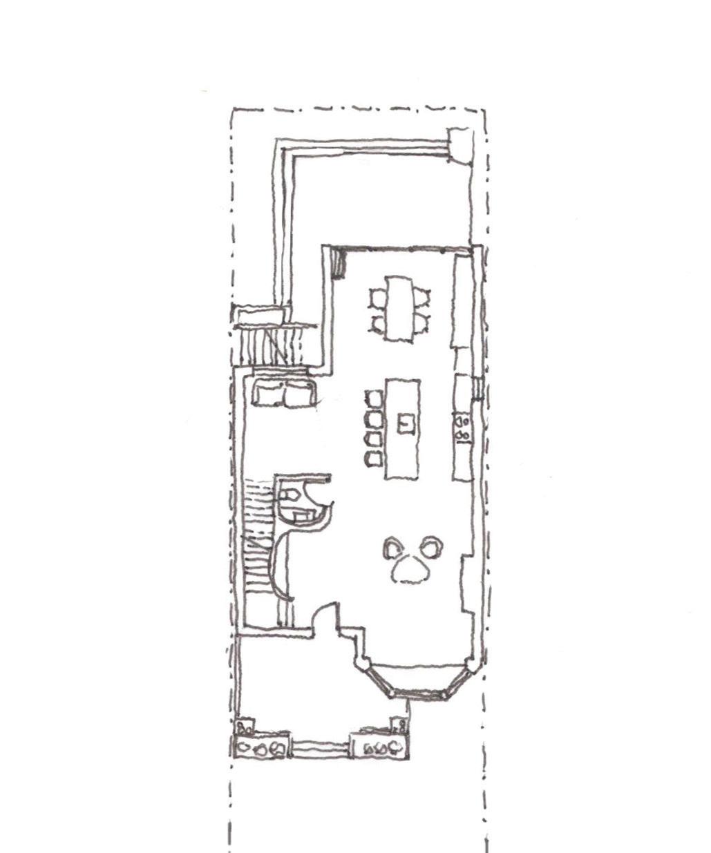
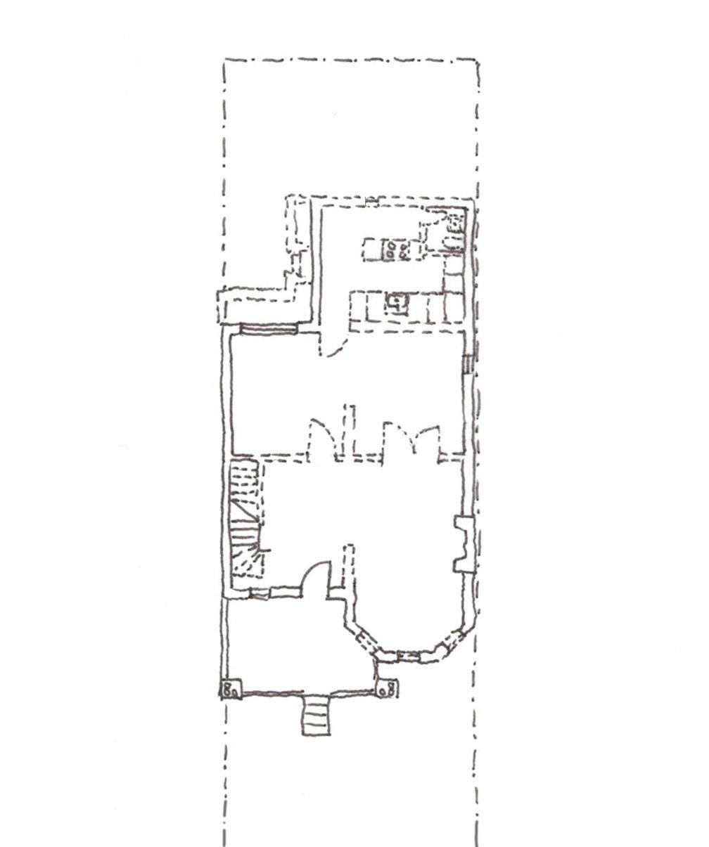
1 UP 2 3 4 UP UP 6 5 7 8 UP 13 10 9 11 12 13 UP UP UP Ground Floor Plan
Residential Floor Plan
Typical
Produce Distribution Space Common Corridor Community Kitchen Accessible Senior Unit Bachelor Unit Studio Unit: Student Unit Wall Section Through the Workspaces Inside the Units

EXT WALL: INT TO EXT:

• 12MM GYPSUM BOARD ATTACHED TO CLT

• 129MM CLT

• SELF-ADHESIVE AVB

• 12MM PLYWOOD

• SELF-ADHESIVE WB IN 12MM AIR GAP

• 138MM ROCKWOOL COMFORTBATT

R-22 ATTACHED TO CLT W/ PERFORATED FASTENERS

• DRAINAGE MATT

• METAL MESH & STUCCO

• ACCOYA WOOD FINS

EXT WALL IN TO EX 12MM GPYSUM BOARD ATTACHED TO STUD WALL 139MM CLT • SELF-ADHESIVE AVB 12MM PLYWOOD SELF-ADHESIVE WB IN 12MM AIR GAB 138MM ROCKWOOL COMFORTBATT R-22 ATTACHED TO STUD WALL W/ PERFORATED FASTENERS DRAINAGE MATT METAL MESH & STUCCO ACCOYA WOOD FINS
Window/Millwork Detail Workspace Inside a Unit Dining Hall

Interstitial Wall

M.Arch Urban Design Studio

The project was a collaboration with my teammate Alifiyah Merchant, where we researched the urban and industrial history of the Spanish city of Ferrol.

The city is located in Galicia, a province with a coastline on the North Atlantic Ocean. It is one of the cities that bears Galicia’s industrial heritage in fishing and shipbuilding. Both industries were perceived to be attractive cultural and historical nodes for the city, but our research revealed otherwise.

Ferrol experiences a population decline due to the lack of job opportunities within its industries that face competition from international and Spanish coastal cities. We realized the economic revitalization of the city is not within our set of skills and talent, but we continued wondering how a city with such industrial heritage and history is not attracting tourists; it’s not even attracting its own population. The main factor remained to be the economy, but we observed an architectural element in the city’s urban that was contributing to the disconnection.

It was Ferrol’s historical coastal Wall that stretched along the industrial sites and gradually separated the city’s industrial heritage from its civic and cultural. We studied the industry’s historical and cultural presence within the city of Ferrol, and we identified the vital cultural, industrial, and commercial sites on both sides of the Wall. We perceived the Wall to be a heritage body with the potential for hosting interstitial spaces that can strategically connect the city on both sides.

Drawing by Alifiyah Merchant: Identifying Cultural, Commercial, and Industrial Sites Mercado Hub and La Pescaderia Fishmonger’s Market Ferrol Youth Center Arsenal Carpentry Museum Alameda del Carbon Park Canton de Molins City Park Naval Museum Puetra del Dique Historical Gate Shipbuilding Site Teatro Jofre Auditorium Shipbuilding Display Cathedral of San Xulian Mercado Food and Market

Along the Wall, we identified the interstitial points that can connect between the commercial, industrial, and cultural sites. We proposed small buildings that act as vessels for experiencing the industry without stepping into the heavy industrial sites. We also proposed types of Wall openings that offer visual accessibility and further civic activities, such as vendor spaces, and a small open theatre.

Identifying Interstitial/Connection points through the Wall Creating Interstitial Spaces Open Theatre Open Shipbuilding Workshop Entry to the Proposed Public Culinary
Culinary School
Public Art Entry to the Proposed Metal Workshop Place
1 2 3 4 5 6 7
The Metal Workshop Place 1 Ramp 2 Front Court: View of Shipbuilding 3 Reception/Staff Space 4 Seminar Space 5 Loading Space 6 Metal Workshop 7 Common Corridor
8
8 Metal Sculpture Yard Entry to the Metal Workshop Place

Home Renovation

DS Studio Inc

DS Studio was delighted to modernize a Victorian house in Downtown Toronto, where The owner reached out to us with spatial visions and needs. The young couple and their two children were an active family that organized many of its activities outside of the house and within it. They needed a better flow and organization of the space that would allow them to move more conveniently between the living spaces. They also had a vision of modern interiors that contrasted the Victorian form and facade of their house.

DS Studio proposed continuous and open living spaces and further designed millwork that communicates the modernity and openness of the proposed living spaces.

As an architectural designer, I collaborated with the senior architects in designing the floor plan and the preparation of permit sets, renders, and design presentations.

Image by Dina Sarhane
Living Room
Room
Room
Kitchen
Ground
Floor PLan: Demolition Plan Porch Foyer
Dining Room TV
Powder
Front Yard Backyard
Images by Dina Sarhane Existing Foyer Existing Enclosed Kitchen Existing Living Room/ Fireplace
Porch Foyer Living Space
Space
Room
Room
Dining
TV
Powder
Front Yard Backyard
Kitchen
Ground Floor PLan: Proposed Plan Foyer Open Kitchen /Dining Space Open Living Space

The World of My Childhood Home

The World of My Childhood Home

Graphic Novel, M.Arch Thesis

I left my childhood home due to postwar events when my family was forced to leave it overnight. I remember that night when I stared at the dark night from my bedroom window and wondered if I was to return to it one day.

In my architectural career and in my own personal pursuits, I found myself, at times, thinking of my bedroom, my mother’s kitchen, and our old living room. I thought of these spaces in that home, and I thought of my child-self who thoroughly dwelled in them. They were spaces, moments, and experiences that I could not fully capture with my sections, floor plans, and elevations, so I decided to put aside the skills I learned in architecture school and return to the ways my child-self told of her surroundings, which was story-writing and sketching.

This thesis is an exploration of my childhood home through written and drawn memories. The house I grew up in is reconstructed through my childhood memories, and through remembering the child-self who sought the heights from stairs and swings, feared the darkness in drainage holes and under cupboards, desired the fire in the living room during the dark blackouts, then searched for more in in dark insides of the garden and parents’ wardrobes.

The house is reconstructed through the memory of the body; my child-body, and it is traced through the main elements of air, water, fire, earth, and darkness. The work is a graphic novel that traces the architecture of the house through my childhood memories; the book is an attempt to return to that house.

Kitchen: Under the Cupboards

When my mother washed the big pots with a running faucet, sink water sounded like a gurgle going into the pipes and then into the underground. I was crouched on the floor when I felt the water run like a muffled stream under the kitchen floor. I was crushing pickled fruit pits to take out the white hearts inside and collect them in a bowl; the pits’ hearts were my mother’s replacement for almonds. The smallest pits were the hardest to crush; they slipped under the hammer and twirled all the way to under the cupboards. I looked under to see how far they were; some were by the hole, the one where the sink pipe went through. I sat cross-legged and hunched over the small pits to crush them gently and stop them from flying to that side. My mother saw the many pit shells on the floor; she asked to clear them up before the insects smelled them.

On a winter night, the mouse ran around in the kitchen. My mother was out, and my sister and I perched on top of the kitchen counters. The power was out. and we talked in our wait for the return of the neon lights. The mouse came out from the drainage hole under the stove, and it was black; it was stained with the underground gunk. The mouse came out from under the sink, under the freezer, and then under the stove; we squirmed every time it came out and disappeared into the dark. We could not land and return to the fire heater on the floor; the mouse took over the floor that night.

It was a grey, cloudy day when I heard my mother move the stove. I entered the kitchen at a fast pace to see the revealed floor below the stove. The black mouse was moving frantically inside my mother’s trap, it was the small cage under the stove. I stood stiffly behind my mother, who crouched in front of the cage. I saw the kitchen door open, and I waited for my mother to take it outside of the house, but instead, she grabbed a hot kettle and poured the boiling water over the cage; the rattle got louder behind the thick steam. I shrieked; I called out for Mother!

77
Excerpt from the ‘Water’ Chapter
78

University of Waterloo M.Arch

Toronto Metropolitan University B.Arch.Sci.

Afnan Al-Rashid

Turn static files into dynamic content formats.

Create a flipbook
Issuu converts static files into: digital portfolios, online yearbooks, online catalogs, digital photo albums and more. Sign up and create your flipbook.
2024-Portfolio-Afnan Al-Rashid by AlRashidA - Issuu