2024-Portfolio-Al-Rashid

Page 1

Portfolio

University of Waterloo M.Arch

Toronto Metropolitan University B.Arch.Sci.

Afnan Al-Rashid

Afnan Al-Rashid

Bio

I am an M.Arch graduate from the University of Waterloo with a Bachelor’s in Architectural Science from TMU. My architectural education is technicalfocused and humanities-influenced; we can talk about mass timber wall sections and Bachelor’s wood cottages and abodes. My architectural education shaped my design approach, which involves a written story of the foreseen dweller of my building, then the design of the circulation and flow, then the design of structure and system (are the details going to be hidden or revealed?).

I worked in various architectural offices, where I developed 3D models, construction documents, and permit sets for private residential and small commercial. I enjoyed creating floor plans; they are like maps of a dwelling story, and I enjoyed 3D modeling and rendering; the spaces and details were essential to be modeled as they would be built, so the render could tell it as it is. I also enjoyed drawing wall sections and nerd out with the senior architect over building science Instagram pages. In my work, I primarily use AutoCAD, Revit, Rhino, Enscape, Photoshop, and InDesign.

In my master’s thesis, I decided to temporarily break away from all the technical and architectural design. I wrote and sketched stories of my childhood home, and I explored architecture in a way where the user was at the front and the architecture was in the background, woven with narration and drawings. I currently live in Toronto, specifically North York. This place made me curious about the narratives of community living and made me fall in love with concrete and Brutalism.

Architecture & Innovation Center

Undergraduate Timber Studio

Interstitial Wall

M.Arch Urban Design Studio

Co-House

M.Arch Comprehensive Design Studio

Studio Inc
Home Renovation DS

Architecture & Innovation Center

Undergraduate Timber Studio

the current architecture building of Toronto Metropolitan university (TMU) is perceived to be limiting in its spaces to the evolving education in architectural innovation and technology. The School of Architecture began the conversation with the planning and development board to propose a new architectural building, and the Timber Studio was created to give space to the architecture students at TMU to propose their visions and aspirations for a new architectural building. The proposed building is envisioned to be a center for architecture and innovation to reflect the architectural identity of TMU in building science and technology. Timber was the focus and the central architectural element that was researched and implemented to reflect the innovative identity of TMU. The proposed building is also envisioned to be a host for the general public who are interested in learning and exploring architecture within studios and maker spaces. The challenge of the project was creating a densely programmed center within the dense urban context of the TMU campus, Downtown Toronto. The design process involved the simultaneous iteration of program spaces, form, and timber structure. The goal was to create energetic surroundings that inspire innovation and technology to students, architects, and the public.

BAY ST

BAY ST

COLLEGE ST

DUNDAS ST

BAY ST

YONGE ST

YONGE ST

DUNDAS SQ

VICTORIA ST

GERRARD ST TMU

ST

BOND ST

GOULD ST

CARLTON ST

DUNDASSTE

MUTUAL ST

SHUTER ST

SHUTER ST

JARVIS
CHURCH ST
High Density Urban Context

The dense urban context and the small site of the project influenced the form of the building, which was elevated to allow for a visual connection between it and the surrounding context.

The dense program was organized into active spaces, such as studios; semi-active spaces, such as the wide common corridor; and passive spaces, such as classrooms, offices, and galleries.

PRODUCED BY AN AUTODESK STUDENT VERSION PRODUCED BY AN AUTODESK STUDENT VERSION
BY AN AUTODESK STUDENT VERSION PRODUCED BY AN AUTODESK STUDENT VERSION PRODUCED BY AN AUTODESK STUDENT VERSION PRODUCED BY AN AUTODESK STUDENT VERSION PRODUCED BY AN AUTODESK STUDENT VERSION PRODUCED BY AN AUTODESK STUDENT VERSION
PRODUCED
MassingDevelopment Massing
and Program Development Passive Spaces Semi-Active Spaces Active Spaces
Mass Timber Structure

A modular grid defined the active spaces to allow for the directed organization of the studio spaces. The reciprocal timber structure was for the long span of the passive spaces of galleries and classrooms. The structure was designed to allow for ease of assembly and disassembly, and it was made apparent in the form of the column to convey the innovative identity of the building.

Mass Timber Joinery
1 2 3 4 5 6 7 7 8 9 10 11 12
Perspetcive Section

Typical

Studio Desks

Pin-Up Spaces

Faculty Offices

Common Corridor

Studio Desks

Staff Offices

Building Science Lab 2 Workshop/Robotics Lab 3 Lecture Hall 4 Entry Space/Gathering Space 5 Common Corridors
2D Art Gallery/3D Art Gallery 7 3D Art/Model Gallery 8 Staff Offices 9 Public Maker Space 10 Classroom 11 Small Library 12 Master’s/PhD Students Offices
1
6
Floor
Layout:
Plan
Third Floor
Entry Space/Central Gathering Space

Interstitial Wall

M.Arch Urban Design Studio

The project was a collaboration with my teammate Alifiyah Merchant, where we researched the urban and industrial history of the Spanish city of Ferrol.

The city is located in Galicia, a province with a coastline on the North Atlantic Ocean. It is one of the cities that bears Galicia’s industrial heritage in fishing and shipbuilding. Both industries were perceived to be attractive cultural and historical nodes for the city, but our research revealed otherwise.

Ferrol experiences a population decline due to the lack of job opportunities within its industries that face competition from international and Spanish coastal cities. We realized the economic revitalization of the city is not within our set of skills and talent, but we continued wondering how a city with such industrial heritage and history is not attracting tourists; it’s not even attracting its own population. The main factor remained to be the economy, but we observed an architectural element in the city’s urban that was contributing to the disconnection.

It was Ferrol’s historical coastal Wall that stretched along the industrial sites and gradually separated the city’s industrial heritage from its civic and cultural. We studied the industry’s historical and cultural presence within the city of Ferrol, and we identified the vital cultural, industrial, and commercial sites on both sides of the Wall. We perceived the Wall to be a heritage body with the potential for hosting interstitial spaces that can strategically connect the city on both sides.

Drawing by Alifiyah Merchant: Identifying Cultural, Commercial, and Industrial Sites Mercado Hub and La Pescaderia Fishmonger’s Market Ferrol Youth Center Arsenal Carpentry Museum Alameda del Carbon Park Canton de Molins City Park Naval Museum Puetra del Dique Historical Gate Shipbuilding Site Teatro Jofre Auditorium Shipbuilding Display Cathedral of San Xulian Mercado Food and Market

Along the Wall, we identified the interstitial points that can connect between the commercial, industrial, and cultural sites. We proposed small buildings that act as vessels for experiencing the industry without stepping into the heavy industrial sites. We also proposed types of Wall openings that offer visual accessibility and further civic activities, such as vendor spaces, and a small open theatre.

Identifying Interstitial/Connection points through the Wall Creating Interstitial Spaces Open Theatre Open Shipbuilding Workshop Entry to the Proposed Public Culinary
Culinary School
Public Art Entry to the Proposed Metal Workshop Place
1 2 3 4 5 6 7
The Metal Workshop Place 1 Ramp 2 Front Court: View of Shipbuilding 3 Reception/Staff Space 4 Seminar Space 5 Loading Space 6 Metal Workshop 7 Common Corridor
8
8 Metal Sculpture Yard Entry to the Metal Workshop Place

Co-House

M.Arch Comprehensive Design Studio

The project is an exploration of communal placemaking strategies within the neighborhood of Galt in Cambridge, Ontario.

The neighborhood is within downtown Cambridge, where small communities of seniors, students, small business owners, and young families live in proximity. The diversity of these small communities inspired communal placemaking practiced by the residents and the surrounding neighbors of the site and proposed co-house.

The proposal is influenced by my personal experience of living in a typical mid-century Modern apartment building in Ontario. As residents of the same building, we have small chats in the lobby, the elevator, and the laundry room, and no further spaces are provided for communal interaction. The design of the co-house is perceived as an opportunity to innovate a typical apartment building design into a communal living co-house.

The implemented communal program within the proposed co-house is of active placemaking activity, that is, collaborative food-growing. The proposed program includes a community garden, germination spaces, produce distribution spaces, community kitchens, and a dining hall. The program stretches from the site into the residential unit floors. The co-house is envisioned to be an incubator of active placemaking through the communal activity of food growing.

Idea Exchange: Library

Senior Home

Small Businesses: Cheese Store & Chiropractor Office

Student-Rented Residence

Anglican Church: Sundays’ Soup Kitchen

Identifying Surrounding Context

Site & Massing Concept

The first design move is creating enough space on the side facing the street to attract the surrounding communities to its open public space. The massing follows a similar massing of a typical apartment building in Ontario, and it stretches as one narrow block along the site to allow for the display of communal programs from site to the building co-house.

AVE. N.
GRAND
GRAND RIVER

Community Food-Growing Activities: From Germination to Farming to Produce Distribution to Community Kitchen

Massing and Site Development: Integration of Community Food-Growing Activities with the Co-House

The activities of food-growing are designed within the site and the front facade of the proposed building to show the active communal practice to the surrounding communities and the passers-by on the street.

East Section: Community Kitchens Throughout the Floors East Section: Germination and Produce Distribution Spaces

1 Dining Hall

2 Community Kitchen

3 Gym

4 Loading Space/Seating Space

5 New Building:Community Garden Bazaar/Storage Spaces

6 Renovated: Community Clinic

7 Existing Building: Small Businesses

8 Common Kitchen

9 Co-House Shared Spaces: Study Space, Living Room, and Small Library

10 Produce Distribution Space

11 Germination Space

12 Common Corridor and Benches

13 Herbs Pots

GRAND AVE. N.
1 UP 2 3 4 UP UP 6 5 7 8 UP 13 10 9 11 12 13 UP UP UP Ground Floor Plan
Residential Floor Plan
Typical
Produce Distribution Space Common Corridor Community Kitchen Accessible Senior Unit Bachelor Unit Studio Unit: Student Unit Wall Section Through the Workspaces Inside the Units

12MM GYPSUM BOARD ATTACHED TO SELF-ADHESIVE WB IN 12MM AIR GAP

138MM ROCKWOOL COMFORTBATT

R-22 ATTACHED TO CLT W/ PERFORATED FASTENERS

EXT

• SELF-ADHESIVE

• 12MM

WALL IN TO EX:
12MM GPYSUM BOARD STUD WALL
139MM CLT
PLYWOOD
SELF-ADHESIVE
138MM ROCKWOOL ATTACHED TO STUD PERFORATED FASTENERS
DRAINAGE MATT
METAL MESH & STUCCO
ACCOYA WOOD
Dining Hall

Home Renovation

DS Studio Inc

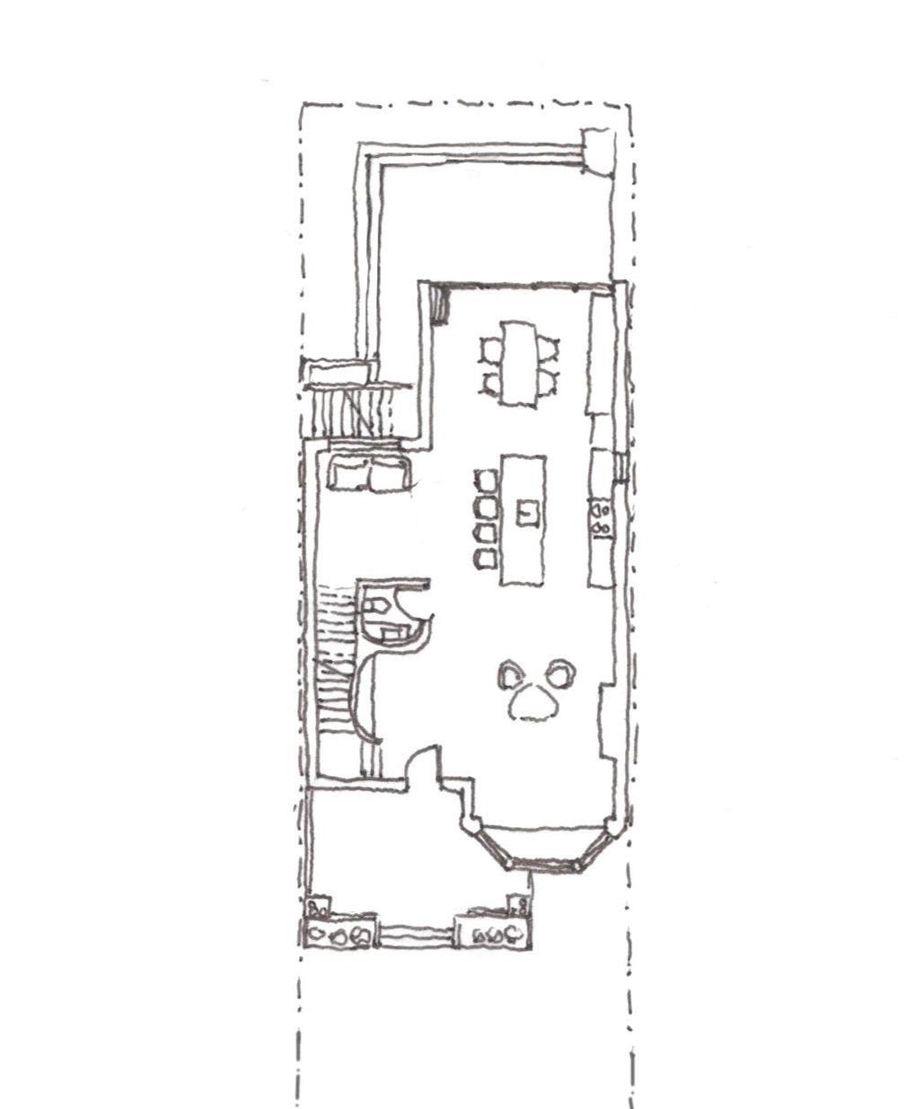
DS Studio was delighted to modernize a Victorian house in Downtown Toronto, where The owner reached out to us with spatial visions and needs. The young couple and their two children were an active family that organized many of its activities outside of the house and within it. They needed a better flow and organization of the space that would allow them to move more conveniently between the living spaces. They also had a vision of modern interiors that contrasted the Victorian form and facade of their house.

DS Studio proposed continuous and open living spaces and further designed millwork that communicates the modernity and openness of the proposed living spaces.

As an architectural designer, I collaborated with the senior architects in designing the floor plan and the preparation of permit sets, renders, and design presentations.

Image by Dina Sarhane
Living Room
Room
Room
Kitchen
Ground
Floor PLan: Demolition Plan Porch Foyer
Dining Room TV
Powder
Front Yard Backyard
Images by Dina Sarhane Existing Foyer Existing Enclosed Kitchen Existing Living Room/ Fireplace Ground Floor PLan: Proposed Plan Porch
Foyer Living Space
Dining Space
TV Room
Powder Room
Front Yard Backyard Kitchen
Foyer Open Kitchen /Dining Space Open Living Space

University of Waterloo M.Arch

Toronto Metropolitan University B.Arch.Sci.

Afnan Al-Rashid

Turn static files into dynamic content formats.

Create a flipbook
Issuu converts static files into: digital portfolios, online yearbooks, online catalogs, digital photo albums and more. Sign up and create your flipbook.
2024-Portfolio-Al-Rashid by AlRashidA - Issuu