Concept Package - Muddy Creek

Page 1


ARCHITECTURE + DESIGN STUDIO

Muddy Creek

WELCOME Package Nº1

This concept package marks the beginning of Stage B2 — where we move from understanding the existing building to exploring its future potential.

Included in the following pages are five conceptual options across two scenarios, each offering different approaches to revitalising the café while remaining grounded in its history, character, and long-term investment value. These concepts are intended to spark discussion, test feasibility, and guide decision-making as the project progresses toward more detailed design and costing.

I’m excited to share these ideas with you and look forward to your thoughts.

Muddy Creek

PRINCIPAL DESIGNER

YOUR TEAM

Charlotte Muschamp

Charlotte Muschamp is an award-winning Architect (USA) and the founding director of Alki Design, a Wanaka-based studio known for crafting high-performance, character-rich buildings across Aotearoa. With a strong foundation in both architecture and construction, Charlotte brings a thoughtful, hands-on approach to every project — where beauty, functionality, and sustainability go hand in hand.

Her work is grounded in a deep respect for place, people, and the natural environment, with a design ethos that values reclaimed materials, long-term performance, and soulful spatial experiences. As your lead designer, Charlotte is committed to delivering a space that honours the heritage of the Muddy Creek Café while supporting your vision for its future — balancing charm, function, and investment with care and creativity.

Muddy Creek

PROJECT SCOPE

SCOPE

The scope of this project involves the engineering reinforcement and spatial reimagining of the existing Muddy Creek Café site in Omakau. Situated along the Central Otago Rail Trail, the site includes a pre-1938 double-wythe brick corner building with suspended native timber floors, and a 1979 rear extension. This stage explores two development scenarios: a single-level café and restaurant renovation, and a two-level proposal that incorporates upstairs accommodation. In both cases, the focus is on increasing functionality, optimising customer flow, improving street presence, and enhancing the long-term economic potential of the site. All schemes will require structural coordination to address the building’s unreinforced masonry construction, with a view to retaining as much original fabric as possible.

INFLUENCES

The design draws inspiration from the region’s rugged landscape, the building’s brick-and-timber charm, and the café’s dual identity as a local favourite and Rail Trail stop. There's a strong emphasis on reuse, low-maintenance materials, and supporting local makers. The vision blends rustic hospitality with modern-day service — from coffee and cabinet food by day, to wine, beer and French-style evening dining — all within a space that adapts with ease.

ESSENCE

The essence of the project is to restore and reinvigorate a much-loved corner building into a warm, welcoming hub for Omakau. The design aims to open the space to the street and sun, create a sense of seasonal comfort, and honour the building’s story while allowing it to evolve. Whether serving locals, cyclists, or visitors, Muddy Creek is imagined as a vibrant destination — one that reflects the spirit of Central Otago with character, charm, and connection.

Muddy Creek

GOALS

GOAL №1

Create a Warm and Flexible Hospitality Experience

The design prioritises welcoming, adaptable spaces that support a variety of functions — from morning coffee service to intimate evening dining. Openplan layouts with defined zones allow the café to scale between casual and formal, private and communal, while maintaining a cohesive atmosphere throughout the day and across seasons.

GOAL №3

Strengthen the Café’s Street Presence and Community Appeal

Design concepts focus on activating the café’s connection to the Rail Trail and the highway — through outdoor dining, improved access, and increased visual openness. The north-east façade becomes a sunny courtyard destination, while the corner site is reimagined as a local landmark, encouraging spontaneous stops and enhancing Omakau’s townscape.

GOAL №2

Celebrate the Heritage Character of the Building

Respecting the building’s unique fabric is key. Where structurally viable, original brickwork, timber floors, and quirks of the existing structure are retained and celebrated. Where reuse is not practical, salvaged materials are creatively integrated into furniture, joinery, or finishes — reinforcing the building’s sense of place and story.

GOAL №4

Support Long-Term Flexibility and Financial Sustainability

Each scenario explores options that future-proof the building for growth. Scenario Two incorporates self-contained apartments above, offering potential for diversified income and much-needed accommodation in the area. Layouts consider efficiency of movement, leaseability, and operational flow to support evolving business models and investment returns.

Muddy Creek

SITE ANALYSIS

FEASIBILITY RESULTS

We’ve undertaken a careful analysis of the site and existing building, gathering key insights to guide the design process. On the following page, you’ll find the documented existing floor plan. This is followed by a summary of key site observations and considerations that have directly informed the development of each concept. SITE

Alki Architecture + Design Studio, Concept
+ Marie Muddy Creek

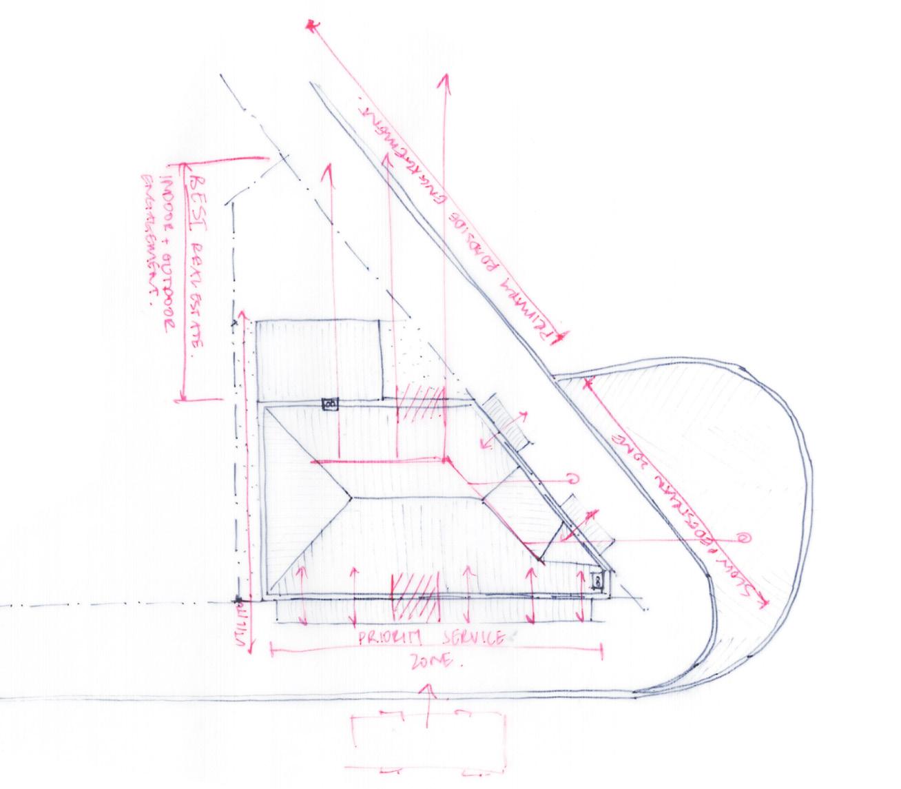
SITE OVERVIEW

The existing floor plan currently lacks a defined priority street frontage and provides single access from the tributary street rather than the main highway. The prime northeast portion of the site remains underutilised, with kitchen and service areas occupying this valuable space. Conversely, the dining and access areas are situated to the southwest, a layout that ideally should be reversed to maximise sunlight, street presence, and operational efficiency.

EXTERNAL ASSESSMENT

• Corner Site with Dual Frontages

• North-East-Facing Potential

• Highway and Footpath exposure and visual permeability

• Irregular Site Geometry requiring clever spatial planning

• Neighour Proximity influencing service access, privacy and openings

• Potential for Courtyard Development

INDOOR ASSESSMENT

• Inverted Layout of the Kitchen and public-facing spaces

• Single point of entry, restraining circulation with limited customer flow

• Disconnected Interior Layout is segmented and lacks cohesion; oppertunity exists to open up spaces for better flow, visibility and atmopshere

• Heritage construction - valuable but fragile materials deconstructed for repair or reuse.

• Asbestos identified required specialist removal and re-roofing

OVERVIEW

Muddy Creek

CLIENT PROFILE / MUDDY CREEK CAFE

Alice and Marie are the new custodians of Muddy Creek Café, set along the Central Otago Rail Trail. With a shared passion for good food, warm hospitality, and regional character, they’re reimagining the café as a welcoming destination for both locals and travellers — one that celebrates its history while embracing a fresh, flexible future.

Their vision includes expanding service into the evenings, opening the space to the street and sun, and creating a warm, communityfocused atmosphere. Longer-term, they’re also exploring the addition of accommodation to support a more diverse and sustainable business model — blending purpose, place, and potential.

Alki Architecture + Design Studio, Concept
+ Marie Muddy Creek

Concept One

Concept 001 takes the most conservative approach to renovation, working primarily within the existing building envelope to maximise adaptive reuse and minimise structural intervention.

It honours the charm and quirks of the original building, while subtly reconfiguring the layout to unlock the site’s strongest asset — the sun-filled north-east courtyard.

By relocating back-of-house functions and opening up frontof-house activity to the street, this scheme breathes new life into the café without compromising its character.

The outcome is a warm, functional, and cost-conscious renovation that gently shifts the building toward its next chapter.

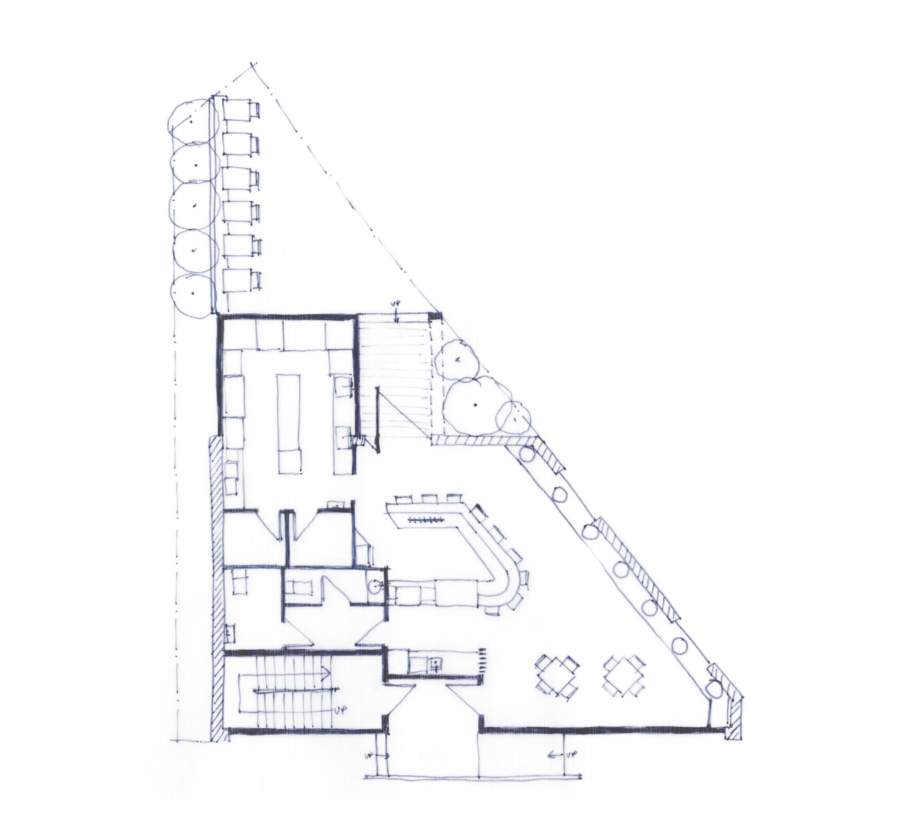
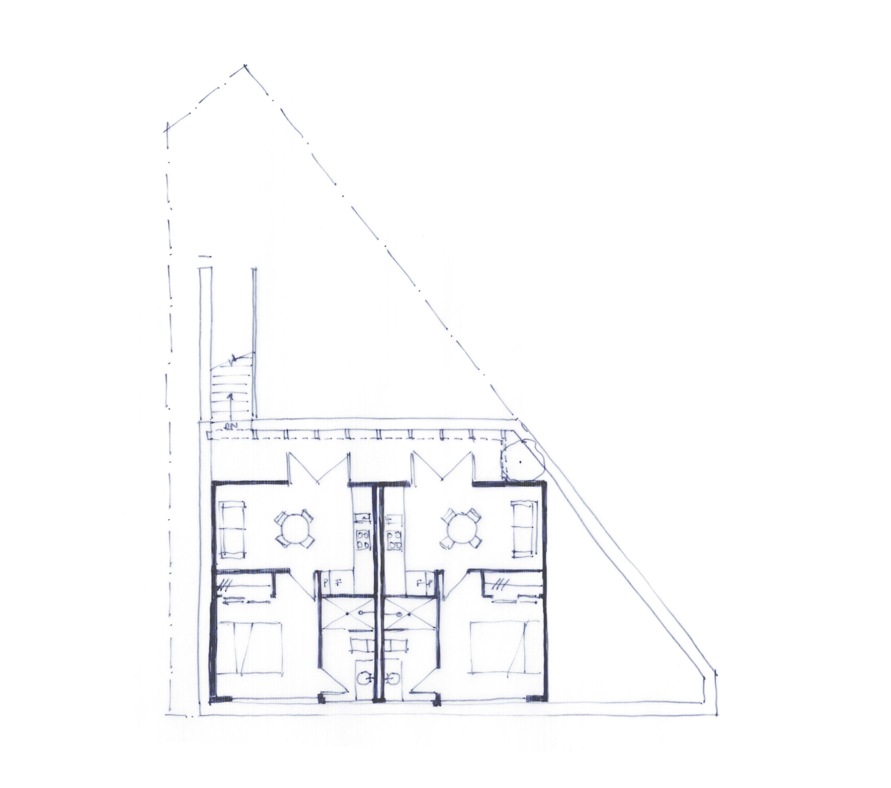
DEMOLITION PLAN

This concept requires minimal demolition — retaining the 1979 concrete block addition for use as chiller, storage, and back-ofhouse utility. The suspended native timber floor is carefully removed to allow for structural reinforcing and a new insulated slab, with selected timbers salvaged for reuse in signage and finishes.

Internal walls are removed to allow for a complete reconfiguration and clean out of the old, and to open up the flexibility for engineering and relocated plumbing and electrical to support new functions.

SPATIAL PLAN

Open dining / Fixed and flexible seating

2. Sliding partitions / Space separation

3. Bathrooms / Accessible + Unisex

4. Drinks fridge / Ice-cream / Water

5. Coffee / Ice

6. Food Cabinet

7. Beer Taps

8. Kitchen

9. Cleaning

10. Fridge

11. Freezer

12. Outdoor dining / Firepit

ENTWINING FUNCTION AND DESIGN

Back-of-house functions are consolidated along the utility corridor that backs up against attached neighbors, freeing the north-eastern edge for a generous courtyard connection and seamless indoor-outdoor dining.

Kitchen and service zones are bunkered against this internal boundary, creating a clean and welcoming front-of-house space that opens directly to Harvey and Wilson Streets via new pedestrian doors while also utilising the existing accessible ramp access.

A refined counter layout balances function and atmosphere — placing support appliances out of sight, while framing homemade goods and the beer tap as focal points. Circulation behind the counter is kept open and clutter-free, prioritising guest experience and staff efficiency.

Kenetic partitions dissect the space to allow for flexible dining experiences and duality. For example, the beer tap can service the general public and outdoor beer garden, while the partitions can close and allow the kitchen to service a more formal dining experience.

1.
Muddy Creek

INSPIRATION

Introducing our inspiration board, a curated collection of images and ideas crafted to ignite your creativity and convey the essence of our vision for your cafe renovation.

Existing plastered brick is painted in deep earthy colours to not damage the brick behind, while the small quantities of reclaimed brick from demolition is reimagined as a light-filtering lattice wall — softening old interventions and creating moments of beauty. Timber slats wrap the 1979 blockwork and echo the sliding faux entry door, crafted from salvaged native timber flooring with bronze-lettered “Muddy Creek Café” signage to capture pedestrian and roadside attention.

bronze accents
Restore old brick
Brick lattice - to frame entrance
Timber detailing & screens
sliding door & shutters
Reclaimed timber bench & firepit
Rich coloured plaster where brick cannot be restored

Concept

One Fin.

Concept 001 is a celebration of what already exists — reworking the site gently and thoughtfully to create a vibrant, flexible café experience. With minimal disruption, it preserves charm, improves flow, and introduces a quiet elegance that reflects both the heritage of Omakau and the evolving identity of Muddy Creek Café.

Concept 002 builds on the foundations of Concept 001 but takes a more transformative approach — stripping the building back to its original brick shell and removing later additions to reclaim the site’s full potential. This allows the café to open completely to the sun-soaked north-east courtyard and create a stronger, more deliberate relationship with the streetscape.

The spatial plan celebrates separation of service and guest zones, giving the front of house a distinct, inviting identity — a warm and generous space focused entirely on hospitality, connection, and experience.

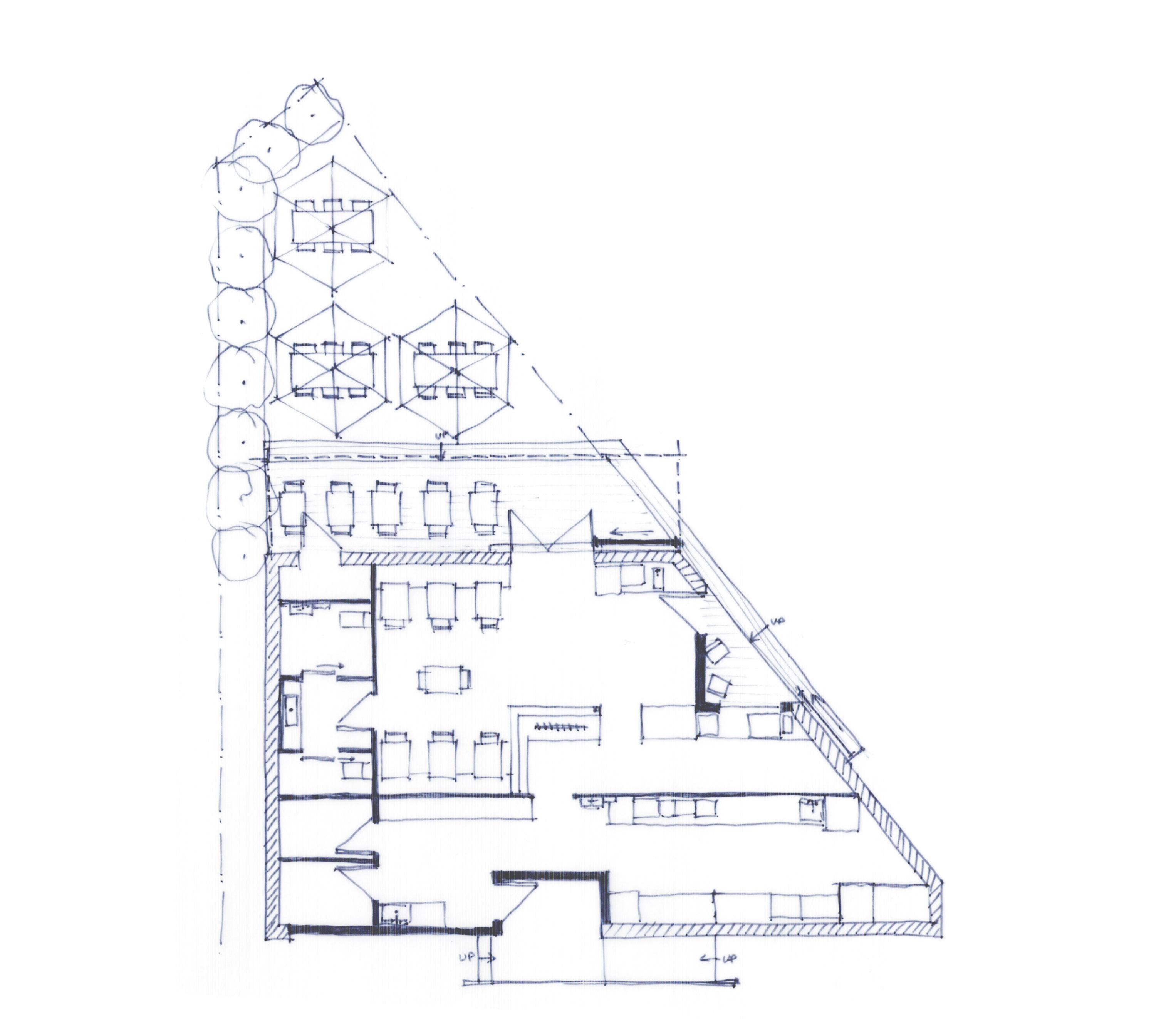
DEMOLITION PLAN

The 1979 concrete block extension, external canopies, and suspended native timber floors are removed to simplify the building footprint and make way for improved structural and thermal performance. Salvaged native timber is repurposed throughout the project — in signage, joinery, and bespoke furniture elements — retaining a connection to the building’s original material story.

Along Harvey Street, recent renovations and wall jogs are demolished to reclaim valuable interior space. These irregularities are rebuilt using modern construction assemblies that improve functionality, thermal performance, and overall buildability, while tying seamlessly into the restored character of the original brick form.

SPATIAL PLAN

1. Open dining / Fixed and flexible seating

2. Sliding partitions / Space separation

3. Bathrooms / Accessible + Unisex

4. Drinks fridge / Ice-cream

5. Coffee / Ice / Water

6. Food Cabinet

7. Beer Taps

8. Kitchen

9. Cleaning / Dishwash

10. Fridge

11. Freezer

12. Outdoor dining / Bench seating

ENTWINING FUNCTION AND DESIGN

The new plan bunkers all back-of-house elements — kitchen, bathrooms, utilities, deliveries — along the internal boundary, freeing up the entire street facing and eastern edges for customer-facing activity.

A new recessed timber entry off Wilson Street becomes the main public threshold, framed by built-in bench seating and designed to welcome cyclists and passersby with comfort and visibility.

Inside, the counter becomes the central organising element — guiding visitors to the food cabinet, drinks, and friendly staff on arrival. The beer tap is positioned for maximum visibility and ease of service, including direct connection to the courtyard where a large deck, bike storage, and shaded seating provide the ultimate post-ride pause.

Like Concept 001, kenetic partitions dissect the space to allow for flexible dining experiences and duality. The beer tap can service the general public and outdoor beer garden, while the partitions can close and allow the kitchen to service a more formal dining experience. With the formal recessed entrance servicing this more luxurious function.

coloured plaster where brick cannot be restored & Brass lettering

INSPIRATION

This concept draws on a palette of warm, luxurious, and grounded materials. Plastered brick walls are painted charcoal to retain their patina without compromising their integrity, while bronze accents and vintage-style timber joinery create a sense of richness and comfort. Reclaimed timber floorboards are reimagined as furniture, softening the space with warmth and authenticity.

In the courtyard, vines, trees, and timber trellises soften the robust brickwork, offering seasonal shade and leafy rest spots beneath the Central Otago sun. Along Harvey Street, timber cladding and slatted screens wrap new infill walls, filtering sunlight in and glowing softly from within — a quiet invitation to those passing by.

Timber cladding and slatted screens

Bench seating at entry - coffee to go?

Restored brick
Climbing vines for natural shading
joinerycharacterwith
Slatted timber bemch & tree canopy
Rich

Concept Two Fin.

Concept 002 offers a thoughtful balance between heritage preservation and contemporary reinvention. It elevates the building’s functionality, expands its capacity, and strengthens its presence as a local landmark — a place where community, craft, and character come together over coffee, beer, and good food.

Concept 003 introduces a spatially reinterpreted layout that balances efficiency, street activation, and charm. The key move is a split-service bar that creates a clear division between fast-service café functions and a relaxed, lingerworthy bar space — supporting both morning rush and long, leisurely evenings.

into a long, linear band along Harvey Street — accessed solely from the rear frees up the full width of the building’s eastern and northern edges.

By reinforcing the eastern courtyard connection and enhancing engagement with Wilson Street, this concept presents Muddy Creek Café as a welcoming anchor in Omakau — drawing in cyclists, locals, and passersby alike. Concept Three

The relocation of the kitchen and all back-of-house functions

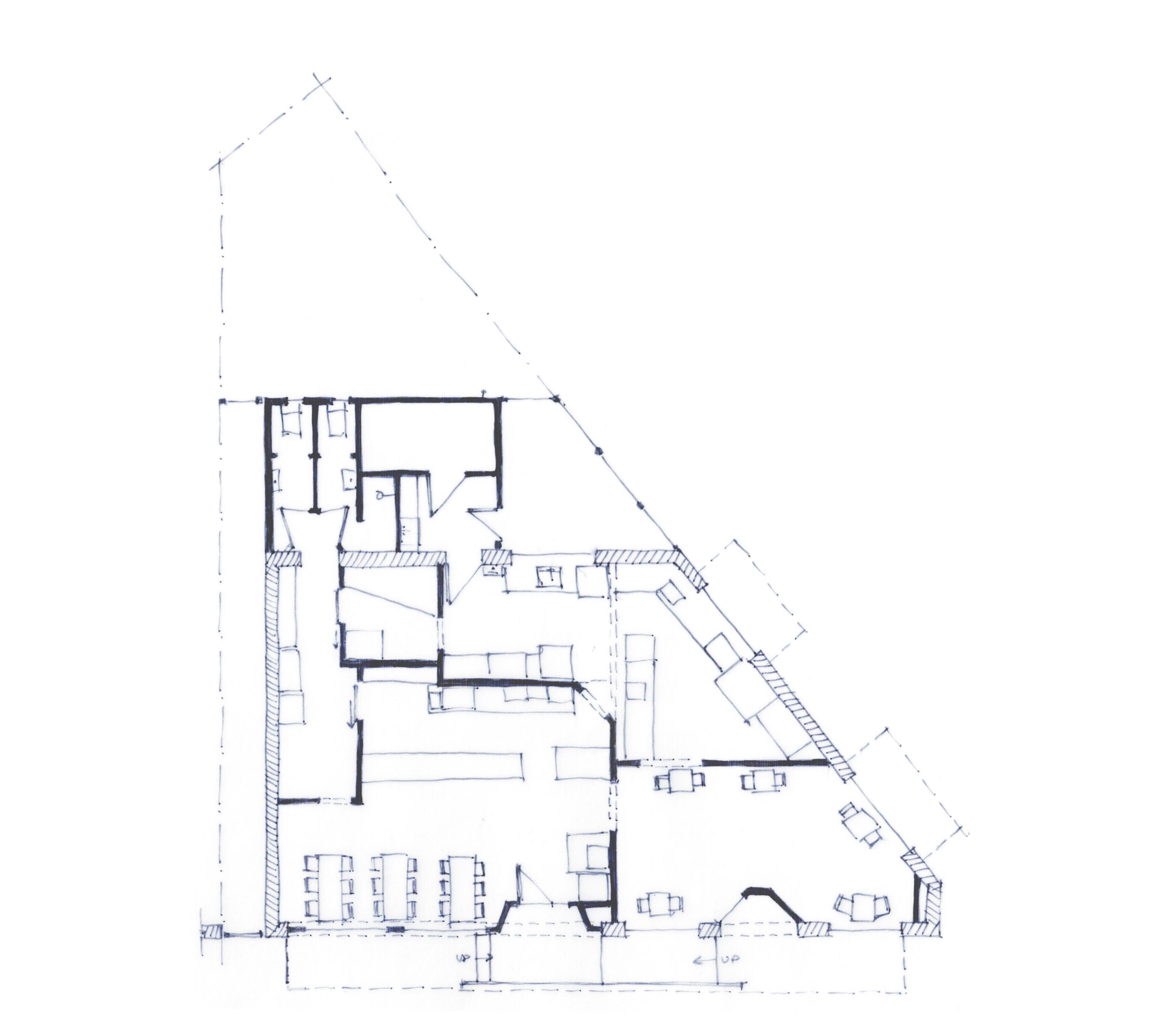
DEMOLITION PLAN

The 1979 concrete block extension, external canopies, and suspended native timber floors are removed to simplify the building footprint and improve structural and thermal performance. Salvaged native timber is reused throughout the project in signage, furniture, and joinery, preserving the site’s tactile memory.

Recent additions along Harvey Street are demolished and rebuilt using timber-framed walls, allowing improved insulation and service integration. This includes a portion of the Wilson Street façade to create an inset entry nook and outdoor café window — a new focal point and gesture to the street.

SPATIAL PLAN

1. Open dining / Fixed and flexible seating 2. To-go Coffee Window / Entry

3. Bathrooms / Accessible + Unisex 4. Drinks fridge / Ice-cream / Water

Coffee / Ice 6. Food Cabinet

7. Beer Taps

8. Kitchen

9. Cleaning / Dishwash 10. Fridge

Freezer 12. Outdoor dining / Umbrellas

Outdoor furniture storage

ENTWINING FUNCTION AND DESIGN

The new layout consolidates all back-of-house functions along Harvey Street, allowing clear vehicle and service access via the secondary street. This frees the full northern and eastern edges for customer interaction — creating a seamless indoor-outdoor experience.

The reconfigured bar is divided into two halves: one side serves walk-up patrons via the coffee window and new entry, while the other supports longer-stay dining and bar service within the café.

The kitchen runs the full western edge of the building behind solid new construction, enabling tidy service zones and clean lines of sight for guests. The eastern courtyard expands into a flexible outdoor dining zone beneath canvas canopies and umbrellas — offering comfortable, low-cost weather protection and clear spatial zoning.

INSPIRATION

The material palette in Concept 003 evokes a refined, rustic French café aesthetic. A mix of painted and exposed finishes allows the building’s story to remain visible: some original brickwork is restored and left raw, while plastered areas are painted a rich charcoal tone. The building is then capped with a new dark flaxpod roof, a tonal shade deeper than the charcoal walls, anchoring the café visually and giving it a grounded, sculptural presence on the corner.

Sliding shutters, reclaimed timbers, and the reintroduction of restored brick chimneys root the space in Omakau’s gold mining past — while the café window and canvas awnings usher in a new era of vibrant, contemporary hospitality.

Restored brick
Timber cladding to soften materiality
Recessed cafe in brick shell
Reinstate Canopy
Sliding shutters
Free seating outdoors with umbrella
Coffee window

CONCEPT

Three Fin.

Concept 003 offers a complete reworking of the café’s spatial logic — uniting old and new, slow and fast, street and courtyard. It delivers maximum functionality for Alice and Marie’s operations while capturing the soul of both Central Otago and classic European café culture. A warm, thoughtful setting for coffee, wine, and everything in between.

Concept

Concept Four

Concept 004 introduces the first of two mixed-use proposals under Scenario 2 — exploring how a hospitality venue can share its footprint with compact, energy-efficient apartments above.

The concept maintains the spatial logic of Concept 003 at ground level, with all café support functions consolidated along Harvey Street, allowing the eastern façade to fully engage with the sun-filled courtyard.

Above, two 30m² one-bedroom apartments are introduced, designed for modern, independent living. This concept strengthens Muddy Creek Café’s investment potential while bringing fresh diversity and vitality to the heart of Omakau.

DEMOLITION PLAN

This scheme requires a full internal gutting of the existing structure. The 1979 concrete block addition, suspended timber floors, and all non-essential interior elements are removed, allowing for a new structural system to be constructed within the preserved brick envelope.

By treating the heritage brick as a non-loadbearing skin, a modern insert can be built freely inside — a “black box” that honours the old shell without relying on it structurally. Recent irregular additions along Harvey Street are removed and rebuilt with modern assemblies, ensuring high-performance walls, clean circulation, and a simplified construction process.

SPATIAL PLAN

1. Open dining / Fixed and flexible seating

2. Coffee / Cashier

3. Food Cabinet

4. Drinks fridge / Ice-cream / Water

5. Beer Taps

6. Bathrooms / Accessible + Unisex

7. Kitchen

8. Cleaning / Dishwash

9. Fridge

10. Freezer

11. Outdoor dining

12. Apartment access

ENTWINING FUNCTION AND DESIGN

The ground floor continues the logic of Concept 003, with a refined layout and clear programmatic zoning. The café counter is split in two: one half dedicated to daytime café service, and the other a full-length bar with bar seating that aligns directly with large steel-and-glass sliding doors — creating a bold axial relationship from the courtyard deck to the heart of the space.

Back-of-house areas remain tucked against the Harvey Street edge, allowing the entire north-eastern façade to open onto the courtyard. An external stair gives access to the apartments above, maximising internal café space and allowing for uninterrupted operation of hospitality functions below.

SPATIAL PLAN

1. Apartment access / North facing deck 2. Apartment 001 / One Bed / One Bath

Apartment 002 / One Bed / One Bath

ENTWINING FUNCTION AND DESIGN

Above the café, two highly efficient single-bedroom apartments share a common north-east facing deck that provides outdoor space, passive shading, and morning light. Each unit includes a full kitchen, laundry, bathroom, robe, and open-plan living/dining area — carefully arranged around a central services spine to optimise plumbing and utility routes.

This arrangement reduces build complexity, simplifies maintenance, and maximises natural light and privacy. The apartments are compact but dignified — contributing muchneeded housing diversity to the area.

Mechanical Deck

Shading to mitigate overheating and break up facade

Restoring brickwork features

Charred Timber for bold contrast and durability

INSPIRATION

The concept contrasts old and new through material expression. The existing brick is retained and celebrated as a historical base — textured, weathered, and softened with careful trims and masonry detailing to honour its industrial past. Above and within, a contemporary black box structure emerges: minimalist, efficient, and visually recessive, designed to sit quietly within the brick skin rather than dominate it.

Sliding steel-and-glass doors, external shading, and timber accents speak to the site’s gold mining heritage while embracing a modern mixed-use rhythm. Reclaimed timber, brick trims, and careful landscaping complete the palette — drawing a clear line between history and future.

WindowsIndustrial and door

'Recessed' apartments: Contrasting old and new
Restored brick
Celebrating brick:Courtyard furniture

Concept

Four Fin.

Concept 004 boldly explores how a heritage building can be adapted to serve both community and commerce. By treating the existing brick as a tactile relic and carefully inserting a modern structure within, this scheme opens the door to long-term resilience — a café and bar below, and a warm, efficient home for future Omakau citizens above.

Concept Five

Concept 005 closes the package with a spirited tribute to Central Otago’s rural vernacular — introducing a curved, red corrugated structure gently nestled within the restored brick shell of the original building. This move honours Omakau’s deep agricultural roots, echoing the iconic red of high-country sheep sheds and farm buildings that dot the landscape.

The internal layout continues the logic of previous concepts, with café below and two apartments above, but introduces a new softness — replacing the industrial ‘black box’ of Concept 004 with warmth, movement, and a deep contextual awareness. The result is a building that feels both familiar and strikingly fresh.

DEMOLITION PLAN

As with Concept 004, significant demolition is required to remove the 1979 concrete block addition, suspended timber floors, and any non-essential interior structure. This clears the way for a new build to rise independently within the historic brick envelope.

The existing brick is carefully restored as an aesthetic shell — strengthened, trimmed, and visually grounded. Internally, a new structural frame carries the weight of the upper storey and roof, allowing freedom of form — including a graceful curved corner that softens the building’s street presence and connects naturally with pedestrian movement.

Muddy Creek

SPATIAL PLAN

1. Open dining / Fixed and flexible seating

2. Coffee / Ice

3. Food Cabinet

4. Drinks fridge / Ice-cream / Water

5. Beer Taps

6. Bathrooms / Accessible + Unisex

7. Kitchen

8. Cleaning / Dishwash

9. Fridge

10. Freezer

11. Freezer

12. Outdoor Dining / Entry

13. Apartment access / Bike storage

ENTWINING FUNCTION AND DESIGN

The café layout echoes the spatial efficiency of previous concepts — all back-of-house functions, including kitchen and storage, are concentrated along the internal boundary. This clears the north-east edge for open, lively public zones and strong courtyard engagement. The bar follows the curve of the new structure above, leading guests toward the beer tap and outdoor seating with quiet theatricality.

The main courtyard entry is framed in horizontal timber slats above — casting beautiful shadows and creating a processional moment for guests arriving from the beer garden. From Harvey Street, a side entrance mirrors the current setup and supports flexible operations. Café and apartment accesses (via internal staircase) are fully separated and the existing external ramp is retained, allowing autonomy for both functions.

SPATIAL PLAN

1. Apartment access / Vestibule

2. Apartment 001 / One Bed / One Bath / Deck

3. Apartment 002 / One Bed / One Bath

4. Mechanical Deck / Mechanical Room

ENTWINING FUNCTION AND DESIGN

Upstairs, two compact one-bedroom apartments offer lightfilled, efficient living with thoughtful differences in layout and amenity. Apartment 001, slightly smaller, features an open-plan kitchen and built-in dining nook that faces northeast — capturing beautiful morning light and views. A built-in sofa keeps the space flexible and compact, while the bedroom is serviced by a private patio, a small robe, and an ensuite bathroom that includes a washer/dryer. This connection to the outdoors gives Apartment 001 a strong sense of openness despite its size.

Apartment 002 is larger and more conventional in its living layout — offering space for a lounge suite and TV in addition to a built-in dining area facing the same northeast outlook. It includes a full kitchen, bedroom with ensuite, and washer/dryer unit. While this unit lacks outdoor access, the added interior space provides flexibility for longer-term occupancy or guests. The internal stairwell creates a clear separation between hospitality and residential zones and conveniently includes space for shared bike storage.

A key benefit of this layout is the shared service wall between the kitchens for efficiency. However, the bathrooms do not share plumbing, which may slightly impact build complexity — a tradeoff weighed against liveability and privacy in each unit.

INSPIRATION

Concept 005 draws heavily from Omakau’s rural aesthetic — red corrugated iron, gently curved walls, and timber detailing. The new upper volume pays homage to the iconic pioneer sheds of Central Otago while introducing a softer, more tactile design language. The rich red tone warms the brick base, anchoring it in heritage while allowing the upper level to speak confidently of the future.

The brick is lovingly restored with crisp edge trims and visual capping. Windows are finished in a matching red and set within defined frames to enhance their presence. Inside and out, material moments — from slatted timber to soft shadows and subtle curves — evoke movement, warmth, and a distinctly local character.

Built in mini-tables and bench seats

Restored brick
Pioneer Red Corrugate to match neighbour
Curved upper story to soften against brick
Pronounced entry trellis
Burnt red 'curved' metal = the new
Broken brick shell = the old
Restoring brickwork features
Window frames for shading and feature

Five Fin.

Concept 005 celebrates Omakau’s spirit — a place shaped by hard work, soft light, and deep community ties. With its curving red roofline, this design offers a playful yet respectful reimagining of Muddy Creek Café. It’s a bold but grounded vision, where old meets new in a handshake between generations.

Concept

NEXT STEPS

NEXT STEPS

YOUR REVIEW Take your time to explore each concept, sit with the ideas, and reflect on what resonates most with your vision for Muddy Creek. This is your space to digest and dream.

OUR REVIEW Let’s meet in person to walk through the concepts together. I’ll bring the 3D model so we can discuss spatial flow, materials, and volume in more detail — and shape the next phase with clarity and creativity.

STEPS

Muddy Creek

Turn static files into dynamic content formats.

Create a flipbook
Issuu converts static files into: digital portfolios, online yearbooks, online catalogs, digital photo albums and more. Sign up and create your flipbook.
Concept Package - Muddy Creek by alki.design - Issuu