Concept Package - Matier Residence

Page 1


Sarah + Reece Matier

WELCOME Package Nº1

This concept package marks the beginning of Stage B2 — where we translate early conversations, values, and site context into architectural possibilities.

Included in the following pages are three initial concepts for your new home, each offering a unique approach to how the spaces could feel, function, and grow with you over time. These early ideas are grounded in your brief — natural materials, high performance, thoughtful staging, and a deep connection to light, land, and lifestyle.

They’re not final answers, but starting points — designed to spark conversation, test feasibility, and help clarify what feels most “you.”

I’m excited to explore these directions with you both and can’t wait to hear your thoughts.

CONCEPT 002

CONCEPT 003

NEXT SEPS

PRINCIPAL DESIGNER

YOUR TEAM

Charlotte Muschamp

Charlotte Muschamp is an award-winning Architect (USA) and the founding director of Alki Design, a Wanaka-based studio known for crafting high-performance, character-rich buildings across Aotearoa. With a strong foundation in both architecture and construction, Charlotte brings a thoughtful, hands-on approach to every project — where beauty, functionality, and sustainability go hand in hand.

Her work is grounded in a deep respect for place, people, and the natural environment, with a design ethos that values natural materials, long-term performance, and soulful spatial experiences. As your lead designer, Charlotte is committed to creating a home that feels nurturing, flexible, and uniquely yours — balancing comfort, resilience, and beauty with care and creativity as your family grows.

3 Alki Architecture + Design Studio, Concept Sarah + Reece Matier Residence

PROJECT SCOPE

SCOPE

The project scope includes the architectural design and documentation for a new detached residential dwelling on a gently sloping site in Luggate. The residence will comprise three to four bedrooms, inclusive of a master suite with ensuite, open-plan living and dining spaces, an integrated double garage with laundry, and a dedicated pottery studio. The design will adhere to high-performance building standards, emphasising airtightness, thermal efficiency, and indoor environmental quality, while incorporating natural, lowVOC materials. Provision for phased construction will allow for staged development aligned with client budget and future spatial needs.

INFLUENCES

Key design influences include site-specific climate factors such as prevailing north-westerly winds, solar orientation, and seasonal temperature fluctuations. The design approach responds to topography, maximising passive solar gain to the east and northeast while mitigating west-facing solar heat load. Client preferences for biophilic connections, natural finishes, and low-impact construction materials further guide material selection and spatial organisation. The Wanaka Cabin project serves as a precedent for balancing high performance with simplicity and regional context.

ESSENCE

The essence of the design is to create a resilient, flexible, and sustainable home that supports wellbeing and a strong connection to place. The spatial strategy emphasises compactness and efficient circulation, minimising energy loads and operational costs. By integrating regenerative design principles, natural ventilation strategies, and durable materials, the residence will provide a comfortable, low-maintenance environment that adapts over time to meet evolving family requirements.

4 Alki Architecture + Design Studio, Concept
Sarah + Reece Matier Residence

GOALS

GOAL №1

Create a high-performance, comfortable home for all stages of life

Design a home that stays warm in winter and cool in summer, using passive solar strategies, airtight construction, and natural ventilation to create a consistently comfortable and healthy environment for family and guests alike.

GOAL №3

Honour place with design that embraces light, landscape + climate resilience

Maximise gentle morning light, expansive views, and fresh air, while using natural, low-impact materials that bring warmth and calm. Shape form, orientation, and shading to protect from prevailing winds and harsh afternoon sun, creating sheltered spaces that feel comfortable and connected yearround.

GOAL №2

Prioritise adaptable, accessible spaces that welcome all generations

Create flowing, barrier-free layouts with thoughtful circulation that supports diverse mobility needs and flexible use — while fostering a strong biophilic connection to nature, ensuring the home evolves gracefully with the changing rhythms of family life.

GOAL №4

Design lively, generous spaces for gathering and celebration

Create a kitchen and living areas that encourage joyful cooking, entertaining, and community connection — supporting Sarah and Reece’s vibrant lifestyle and love of hosting friends and family throughout the seasons. High, open and light filled spaces are essential wherever possible.

SITE ANALYSIS

FEASIBILITY RESULTS

We’ve undertaken a careful analysis of the Luggate site — studying its topography, climate patterns, outlooks, and existing context to guide the design process. On the following page, you’ll find a summary of key site observations and considerations. These insights have directly shaped each concept, informing how the home engages with sun, wind, views, privacy, and the natural landscape.

6 Alki Architecture + Design Studio, Concept Sarah + Reece Matier Residence

SITE OVERVIEW

7 Alki Architecture + Design Studio, Concept Sarah + Reece

CLIENT PROFILE / REECE + SARAH MATIER

Sarah and Reece are the future custodians of a new family home on the edge of Luggate — a place where landscape, light, and life come together. With a shared love for natural materials, good food, and gathering with friends, they’re envisioning a warm, high-performing home that reflects their values and supports their growing family.

Their vision includes spaces that feel calm and connected to nature, while also welcoming and social — a home that can host long dinners, evolving family rhythms, and visits from loved ones across generations. Built with care and intention, this home will balance everyday function with long-term adaptability — blending lifestyle, place, and potential.

8 Alki Architecture + Design Studio, Concept
Sarah + Reece Matier Residence

Concept One

This is a concept designed for both rhythm and retreat — a home that scales up or down depending on use, without compromising comfort or thermal performance.

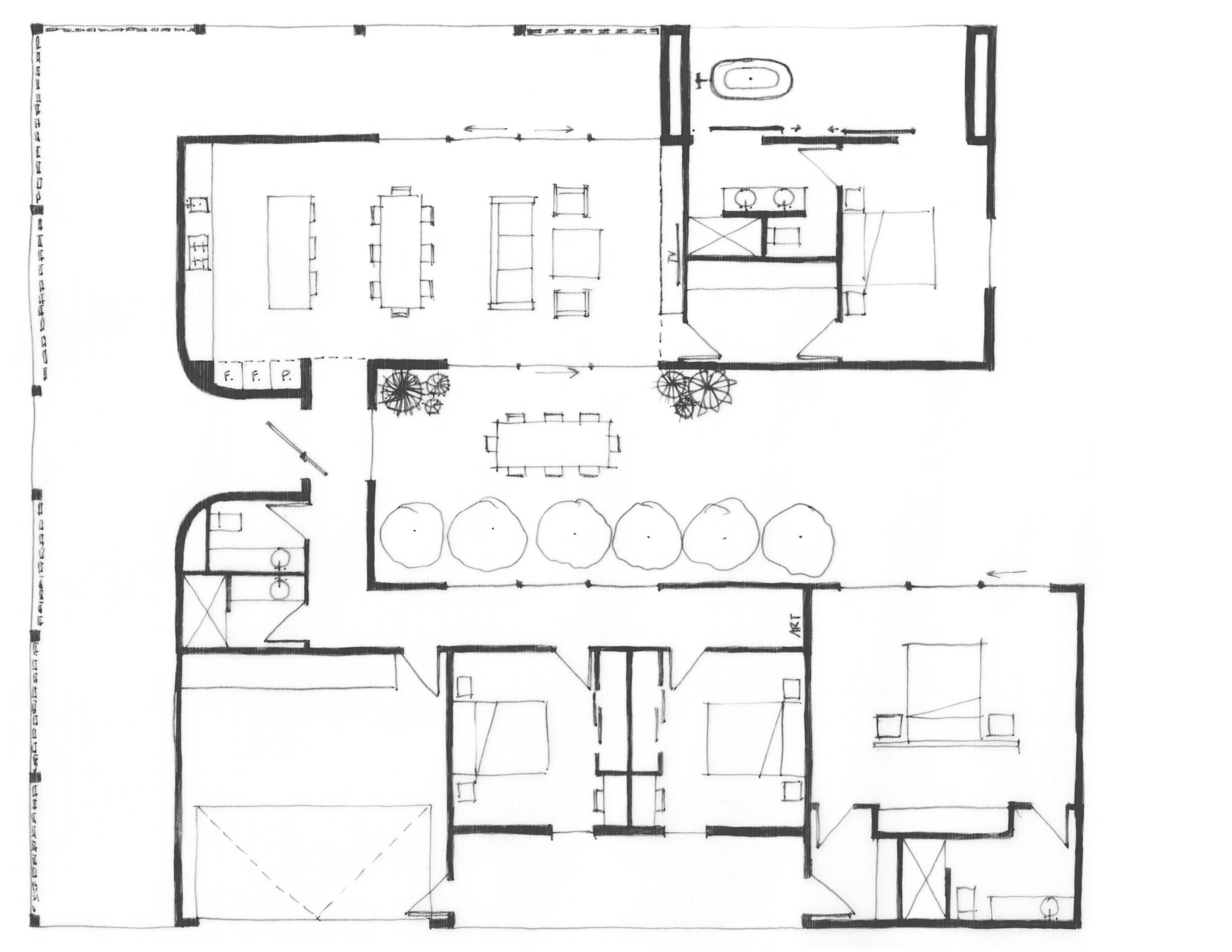
This concept presents the most complete layout, prioritising long-term flexibility and strong passive performance. Centred around a U-shaped plan, the home creates a sheltered internal courtyard that anchors daily life — enabling outdoor connection across seasons while offering protection from Luggate’s prevailing winds. The design balances openness and privacy, offering Sarah and Reece a compact, efficient home for everyday life that can seamlessly expand to host family or guests.

SITE PLAN

RELATIONSHIP TO SITE

The form is sited to maximise solar gain from the eastern morning light, with the master suite and living areas oriented down the valley. The garage is positioned in the northwest corner to buffer wind and provide practical access from the entry drive. Courtyard walls and covered walkways help shield from harsh westerlies, while still encouraging airflow and light. The U-shaped plan also allows for easy outdoor access

without cutting circulation paths through interior spaces. A subtle curvature in the north walls helps navigate guest to the main entrance that opens into the courtyard, while windows are strategically placed to capture framed views without excessive glazing. The north and east facades have generous overhangs to protect from weather and provide generous outdoor living + circulation.

10 Alki Architecture + Design Studio, Concept Sarah + Reece Matier Residence

SPATIAL PLAN

ENTWINING FUNCTION AND DESIGN

The plan includes a double garage with integrated laundry and rear storage. Inside, two guest bedrooms are tucked into the south-western wing and share a bathroom and powder room. The master suite sits privately on the northeast corner with views to the east and a semi-enclosed outdoor bath. It's accessed through a “privacy portal” — a wardrobe corridor off the living area that buffers sound and creates a area of

intimacy. A detached studio with its own access and ensuite sits adjacent to the driveway, designed for either family, guests, or income — with the option to link to the main house in future.

The central entry point connects directly to the courtyard, acting as a circulation hinge that provides clear zoning between public, private, and semi-independent living spaces.

Garage + laundry
Entry
Kitchen + living + dining
Robe
Ensuite
Master Suite + private patio
Sheltered courtyard
Powder room
Bathroom
Bedroom one
Bedroom two
11 Alki Architecture + Design Studio, Concept Sarah + Reece Matier Residence

PROJECT INSPIRATION

Courtyard Living Brick and Timber

INSPIRATION

Introducing our inspiration board, a curated collection of images and ideas crafted to ignite your creativity and convey the essence of our vision for your home.

Materiality is warm, resilient, and low-maintenance: corrugated roofing, brick cladding for thermal mass and durability, and timber shutters that modulate privacy and light. Internally, polished concrete floors provide thermal mass, paired with lime plaster walls and timber accents to add texture and biophilic warmth.

High Ceilings + Timber + Plaster

Concept One Fin.

This concept is rooted in passive performance, zoning living and sleeping spaces to support stable internal comfort throughout the year. Bedrooms are located to the east and south, capturing gentle morning sun to support circadian rhythms while avoiding overheating in the late afternoon — ideal for restful, cool evenings. The garage, circulation spine, and services are placed to the northwest to act as a thermal and acoustic buffer against prevailing winds and harsh solar

gain. Meanwhile, primary living spaces occupy the northeast corner of the site — opening to key views of the river and mountains, and harnessing early morning sun to kickstart natural warming and reduce diurnal temperature swings. This layout supports solar access, privacy, cross-ventilation, and future adaptability — within a compact, high-performance envelope.

Break

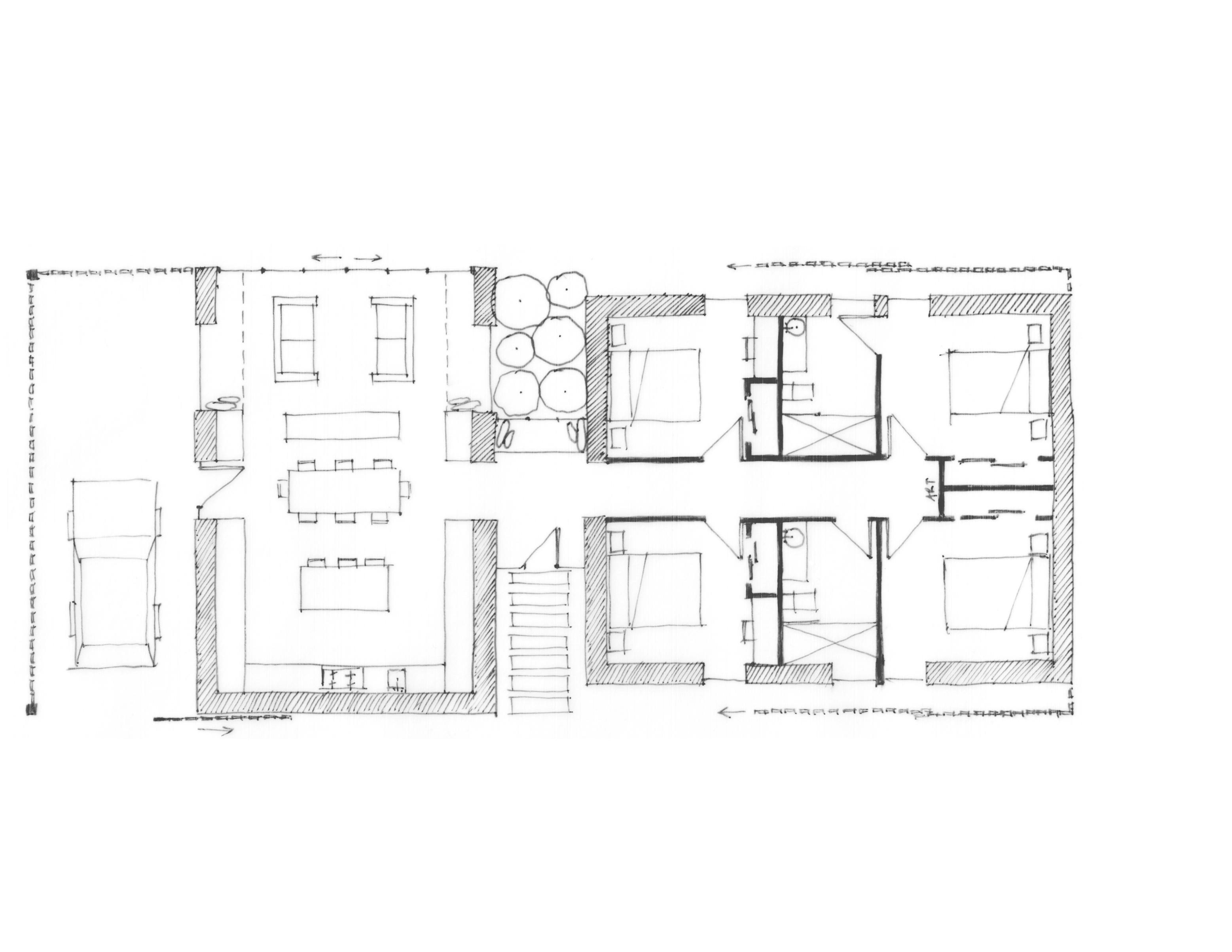
This concept is driven by cost-efficiency, thermal performance, and smart spatial planning — all wrapped in a timeless north–south gable form. With the smallest footprint of the three concepts, it keeps both construction cost and operational energy low, without compromising comfort, flexibility, or architectural clarity. The single ridgeline simplifies

roof structure and detailing, while short circulation routes reduce material use, labour costs, and thermal weak points. A straw-insulated, clay-plastered envelope provides breathable walls, passive thermal regulation, and a tactile, grounding finish throughout.

SITE PLAN

SPATIAL PLAN

ENTWINING FUNCTION AND DESIGN

This four-bedroom home is split into two distinct wings for clarity and comfort: an eastern-facing living wing, and a southern retreat wing. The main open-plan living, kitchen, and dining area occupies the northeast corner — prioritising morning sun, cross ventilation, and key views to the river and mountain range. Bedrooms are located to the east, south, and west — with guest rooms and the master suite

positioned to receive soft morning light while remaining cool into the evening for optimal sleep conditions. The bedrooms on the west gain protection from setting sun with external shading devices. External sliding timber shutters provide both shading and a poetic interplay of light and shadow. Wet areas are smartly clustered to reduce plumbing complexity, material costs, and thermal bridging at service penetrations.

Carport + outdoor storage
Entry
Dining 'hearth' of the home
Living w. built in units
Kitchen
17 Alki Architecture + Design Studio, Concept Sarah + Reece Matier Residence

PROJECT INSPIRATION

Window bench seating

Landscaping into entry

Corrugate Roof + Walls with CladdingTimber

INSPIRATION

Deliberately tactile and restrained: lime plaster for breathability and softness; timber linings for warmth and rhythm; and polished concrete floors to provide thermal mass and durability. High ceilings in the living area feel open and generous, while the lower volumes of the bedrooms offer a sense of enclosure and calm. Window seats at either end of the communal space invite rest — one connecting to the private entry courtyard, and the other drawing the eye across the north lawn to the wider landscape. The home’s exterior expresses the beauty of durability: corrugate roofing, and untreated timber that will silver with time.

Timber finishes
natural plaster on Straw walls
Timber screens

Two Fin.

This is a compact, high-performance home shaped by logic and lived experience. The north–south gable form allows a generous eastern façade that maximises passive solar gain in the mornings, while west-facing service spaces act as a robust shield to climate extremes. Bedrooms are oriented for natural circadian rhythms — morning sun and cool evenings — and the central living area becomes the heart of the home, filled with light, warmth, and connection to place.

With smart use of natural materials, simple forms, and layered passive design principles, this concept delivers spatial richness, construction value, and long-term comfort.

Break

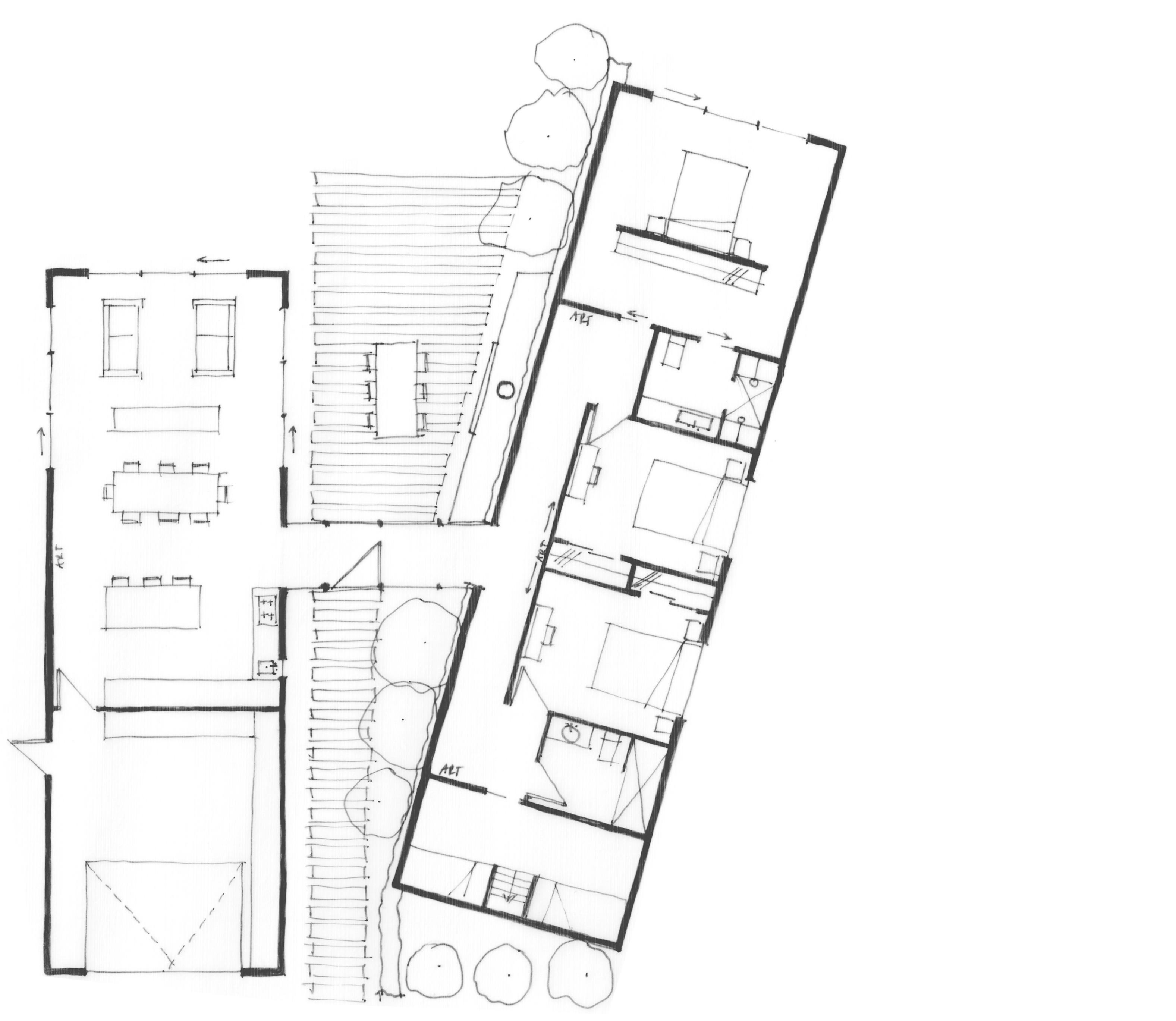
Three

This design is anchored in an 'H'-shaped plan — a thoughtful balance of form and function that centres daily life around two protected courtyards. The heart of the home is a glazed bridge connecting two distinct wings: one for living, one for rest.

The home is designed to frame light, choreograph movement, and hold space for both solitude and connection. Every spatial move is intentional — from framed views to acoustic buffers — resulting in a home that quietly supports the everyday needs of a growing family

SITE PLAN

SPATIAL PLAN

ENTWINING FUNCTION AND DESIGN

The northern wing houses the garage, laundry, and kitchen/ living areas — designed for practical living with a smooth flow from arrival to unloading groceries directly into the pantry. The kitchen is acoustically buffered from the garage and visually open to both courtyards, offering views to arriving guests and into the main living space.

A built-in low shelving unit defines zones without severing

the open-plan connection between dining and lounge. The southern wing contains bedrooms and study spaces, stepping gently with the site and daylight. A master suite occupies the eastern end for privacy and views, while two guest rooms, a shared bathroom, and a flexible bunk/office room complete the wing with layered functionality and future adaptability.

Garage + laundry + storage
Entry 'bridge'
Kitchen
Dining
Living
Entry couryard
Sheltered courtyard + fire
Master suite
Robe
Master ensuite
Bedroom one
Bedroom two
Bathroom

PROJECT INSPIRATION

Schist wall External Fireplace

INSPIRATION

The aesthetic takes cues from local rural buildings, with corrugate cladding and Wanaka schist grounding the home in its Central Otago context. Interiors are robust and natural — concrete floors for thermal mass, timber detailing, and plastered walls for warmth and durability. The material palette is simple, timeless, and lowmaintenance, designed to feel lived-in and functional from day one.

Timber joinery and built in bunk-beds
Corrugated roof + wall and broken stone wall
Timber + Plaster

Concept

Three Fin.

This concept provides Reece and Sarah Matier with a durable, flexible, and efficient home that responds directly to its site and climate. It supports everyday life with practical design moves — balancing connection and privacy, light and shelter, social and quiet zones. The robust materials, considered spatial layout, and future-ready energy design create a long-lasting home that will evolve with their family.

It’s a home designed to feel easy to live in from day one, while standing up to the conditions, lifestyle, and rhythms of Central Otago for decades to come.

NEXT STEPS

NEXT STEPS

YOUR REVIEW Take your time to explore each concept, sit with the ideas, and reflect on what feels most aligned with your hopes for this next chapter. This is your space to dream, to imagine, and to shape a home that truly reflects you.

OUR REVIEW Let’s catch up in person to walk through the concepts together. I’ll bring the 3D model so we can explore the layout, materials, and sense of space in more detail — and move into the next phase with clarity, confidence, and creativity.

STEPS

Turn static files into dynamic content formats.

Create a flipbook
Issuu converts static files into: digital portfolios, online yearbooks, online catalogs, digital photo albums and more. Sign up and create your flipbook.