Concept Package - Anderson Residence

Page 1


Jess + Mark Anderson

WELCOME Package Nº1

This concept package marks the beginning of Stage B2 — where we translate early conversations, values, and site context into architectural possibilities.

Included in the following pages are three initial concepts for your new home, each offering a unique approach to how the spaces could feel, function, and grow with you over time. These early ideas are grounded in your brief — natural materials, high performance, thoughtful staging, and a deep connection to light, land, and lifestyle.

They’re not final answers, but starting points — designed to spark conversation, test feasibility, and help clarify what feels most “you.”

I’m excited to explore these directions with you both and can’t wait to hear your thoughts.

002

003

NEXT SEPS

PRINCIPAL DESIGNER

YOUR TEAM

Charlotte Muschamp

Charlotte Muschamp is an award-winning Architect (USA) and the founding director of Alki Design, a Wanaka-based studio known for crafting high-performance, character-rich buildings across Aotearoa. With a strong foundation in both architecture and construction, Charlotte brings a thoughtful, hands-on approach to every project — where beauty, functionality, and sustainability go hand in hand.

Her work is grounded in a deep respect for place, people, and the natural environment, with a design ethos that values natural materials, long-term performance, and soulful spatial experiences. As your lead designer, Charlotte is committed to creating a home that feels nurturing, flexible, and uniquely yours — balancing comfort, resilience, and beauty with care and creativity as your family evolves with the world around us.

3 Alki Architecture + Design Studio, Concept Jess + Mark Anderson Residence

PROJECT SCOPE

SCOPE

The project scope includes the architectural design and documentation of a new detached family home on a flat, subdivided site in Lake Hāwea. The residence will be designed to accommodate a family of four, with a strong focus on flexible, efficient spaces: a master bedroom, two children's rooms, multi-purpose outbuildings, and communal living areas that encourage connection to both land and lifestyle.

The project prioritises off-grid potential, low-embodied-carbon construction methods, natural + low toxic materiality and a layout that supports modular assembly. The goal is to create a home that is durable, breathable, deeply personal — and able to evolve with the family over time.

INFLUENCES

The design is guided by a tapestry of site-specific and lifestyle influences. The existing ecology — including two mature central oak trees, established gardens, and layers of deciduous planting — shapes the arrangement of spaces and circulation across the site. Prevailing winds from the northwest and intense western sun demand careful orientation, sheltering strategies, and nuanced shading solutions, while the eastern light offers opportunities for passive solar gain and gentle morning warmth. A central focus of the brief is the integration of robust utility spaces, from gear storage and food processing areas to multi-use sleeping zones, reflecting the family's selfsufficient lifestyle and deep connection to seasonal rhythms.

ESSENCE

The essence of the Anderson Residence is a timeless, highperformance home grounded in care, craft, and calm. It’s a space for morning meditation and evening gatherings — a place that simplifies life while enriching it. Inspired by the Wanaka Cabin, the design embraces tactile simplicity, natural materials, and thoughtful restraint. Above all, the home is a sanctuary: adaptable, efficient, and joyfully lived-in — built not just to last, but to age with grace.

GOALS

GOAL №1

Honour the existing Landscape and Climate

The design will respond with care to the established gardens, mature trees, and prevailing environmental conditions — working with the site’s natural topography, sunlight, and wind patterns rather than against them. This ensures longevity, resilience, and a home that feels deeply rooted.

GOAL №3

Celebrate Rituals, Seasonality, and Self-Sufficiency

From food preservation to gear storage, from spaces for solitude to zones for gathering — the home will support the family’s seasonal rhythms and huntergatherer lifestyle, adapting fluidly to evolving needs across the years.

GOAL №2

Embrace Natural Materials and High Performance Strategies

Low-toxicity, renewable materials will be paired with airtightness, insulation, and passive solar design to create a durable, comfortable, and efficient home. Every decision will balance craft, performance, and long-term wellbeing.

GOAL №4

Nurture Joy, Calm, and Connection to Nature

This home is not just shelter — it’s a place to foster wonder, learning, and love. Designed to support healthy habits, children’s play, and ecological awareness, the house will be a sanctuary of peace, creativity, and belonging.

SITE ANALYSIS

FEASIBILITY RESULTS

We’ve undertaken a careful analysis of the Lake Hāwea site — studying its topography, climate patterns, outlooks, and existing context to guide the design process. On the following page, you’ll find a summary of key site observations and considerations. These insights have directly shaped each concept, informing how the home engages with sun, wind, views, privacy, and the natural landscape.

Anderson Residence

Lot 1 sits within a newly subdivided parcel in Hāwea. The site is gently contoured and framed by established homes to the east and west, while to the south, the original residence of the landowners remains — shaping privacy strategies and defining the site’s service edge.

The northern boundary fronts Lichen Lane with no immediate neighbouring dwellings, offering a rare sense of openness and flexibility. From here, the eastern and western mountain ranges

reveal themselves above the treetops. Mature shelterbelt planting provides a soft buffer to the prevailing NNW and NW winds, though orientation strategies must still account for strong gusts and seasonal extremes.

Existing ecology — including productive gardens, two central oak trees, and layered planting — establishes a rich microclimate and offers strong cues for organising outdoor spaces, view corridors, and zones of calm or activity. Eastern

and northeastern exposures invite passive solar gain and soft morning light, while the western aspect demands more careful modulation to manage summer heat.

Service easements to the east and west call for thoughtful placement of built form and access, reinforcing the opportunity to centralise living and gathering spaces where landscape connection, solar benefit, and privacy can most meaningfully align.

CLIENT PROFILE / MARK + JESS ANDERSON

Jess and Mark are the heart and soul behind this new family home in Lake Hāwea — a place where connection to land, lifestyle, and lasting craft converge. With a deep appreciation for natural materials, high performance living, and thoughtful simplicity, they seek a home that supports their active, self-sufficient lifestyle while nurturing calm and joy.

Their vision embraces spaces that honour seasonal rhythms, foster family rituals, and welcome friends — creating a sanctuary for gathering, learning, and growing together. Built with care and intention, this home will balance resilient, low-impact construction with warmth and adaptability, reflecting both their passions and their hopes for the future.

8 Alki Architecture + Design Studio, Concept Jess + Mark Anderson Residence

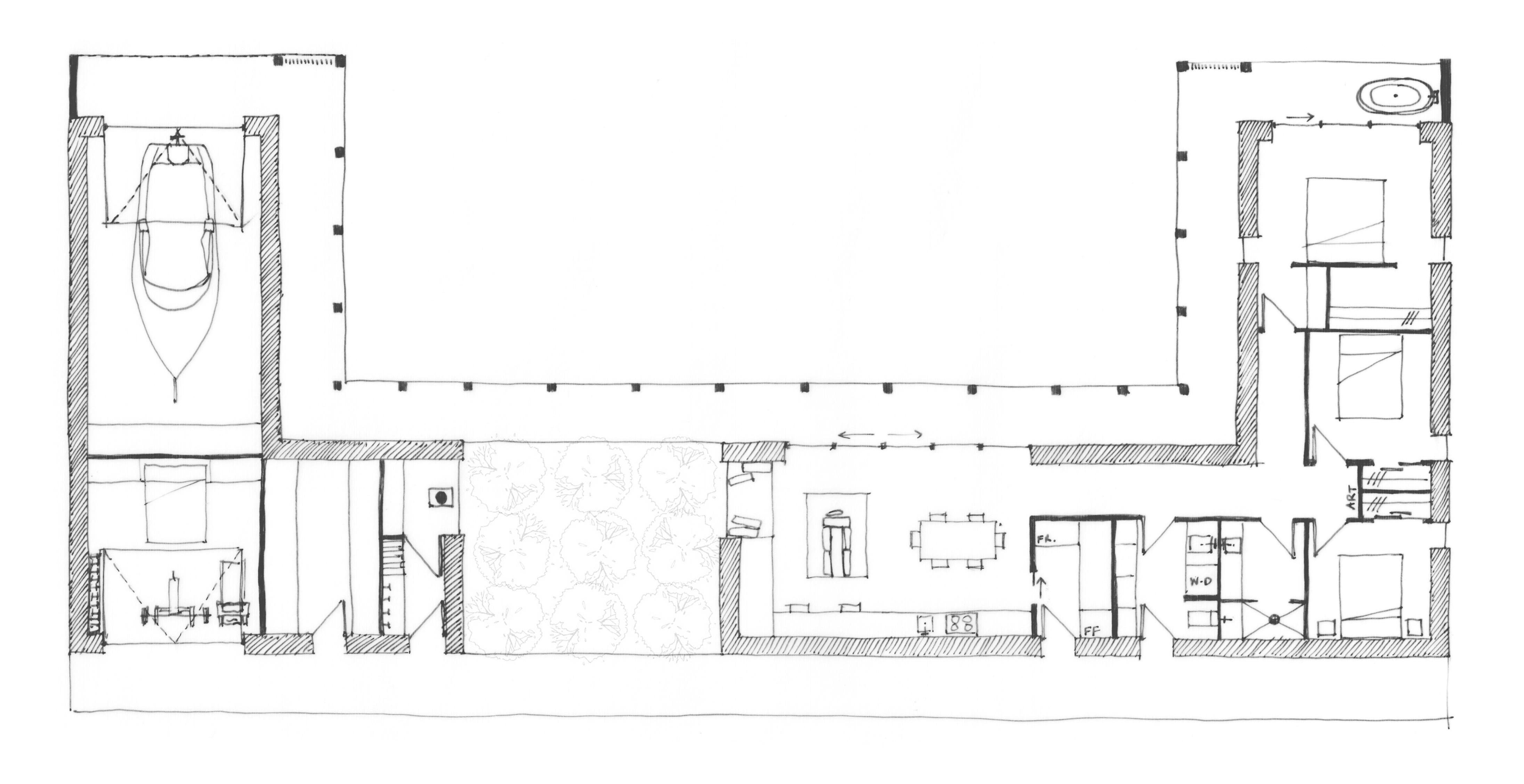
Concept One

Concept One explores the idea of two interlocking ‘L’-shaped buildings, positioned to create a central trellised courtyard at their heart. It draws inspiration from the original on-site sketch and expands it into a more layered and site-specific layout. One L is dedicated to the main residence, while the other supports utility and lifestyle functions — with both wings connected by a garden spine that frames the existing vines. The architecture is grounded in function, yet expressive — celebrating rhythm, seasonality, and the relationship between food, family, and landscape.

SITE PLAN

RELATIONSHIP TO SITE

The concept is carefully nestled between the two mature oak trees and deliberately preserves as much of the existing vegetable garden as possible. The central courtyard opens northward around the existing oak trees, becoming a protected space for gathering, growing, and transitioning between indoors and out.

The western wing buffers wind and low sun from the home, while the eastern wing captures morning light and vineyard views. Circulation flows from Lichen Lane through the garage, while the connecting boardwalks connect the two buildings two each other and the existing gardens.

SPATIAL PLAN

ENTWINING FUNCTION AND DESIGN

The western L (accessory wing) contains a garage accessed from Lichen Lane, with ample room for trailers, bikes, and gear. To the south, a flexi-space with a murphy bed and roller door opens into the courtyard, ideal for gym, games room, or storage overflow. A cool, shaded larder and meat prep room anchors the southern end, and a sauna suite that looks out to the east offers views across the vines + trellised spine.

The eastern L (main home) includes the entry, open-plan kitchen/living/dining, two bedrooms, a bathroom, and a master suite with private outdoor bath. The bedrooms are all acoustically buffered from each other by wardrobes –encouraging intimate, and playful spaces to be set apart from the high ceiling and open living spaces.

gym/media room/storage/trophy

garage w/ bike/camp/boat storage

Concept One Fin.

This concept offers a deeply functional layout that elevates the daily rituals of garden life — gathering firewood, harvesting vegetables, enjoying the heat of a sauna, or retreating to an outdoor bath. Its form is both contemporary and timeless, shaped by sun, wind, and view. Encouraging shade during summer months, and allowing the low winter sun to enter for valuable solar gains. High ceilings encourage well lit spaces and spatiousness for a tall family.

It allows for phased construction and long-term adaptability while anchoring the home to its place. Serious consideration has been given to environmental impact of materiality, building form, building orientation and therefore performace, while also grounding the full program within a pre-loved garden. With its sheltered central garden, blurred boundaries between inside and out, and expressive use of honest materials, it’s a home designed to be lived in — slowly, seasonally, and well.

Window bench seating

Corrugate Roof + Walls with CladdingTimber

INSPIRATION

Introducing our inspiration board, a curated collection of images and ideas crafted to ignite your creativity and convey the essence of our vision for your home.

Natural, tactile materials — rough-sawn timber cladding with enduring corrugate to the exterior light earth-toned plaster and the warmth of timber to the interior, and a rhythm of posts and vine-covered pergolas. The atmosphere is one of grounded warmth, with soft, dappled light, functional simplicity, and seasonal richness.

Trellis Spine to frame existing vines
Timber finishes
natural plaster on Straw walls
Timber screens

Break

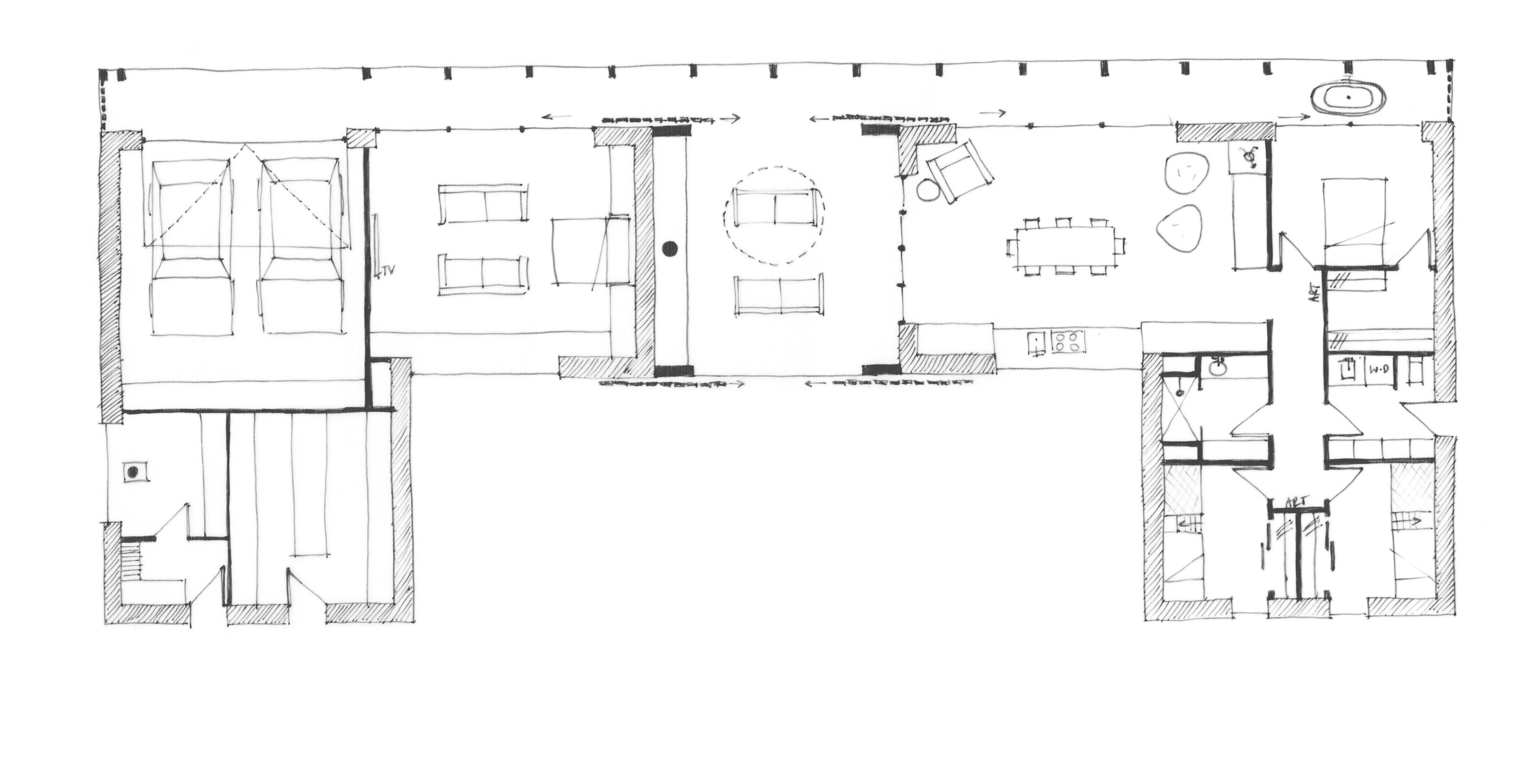
Concept Two

Concept 002 explores a U-shaped plan that frames and shelters an outdoor hearth — the social and functional anchor of the home. The layout is split into two balanced wings: one for daily living, the other for supporting functions, linked by a central, semi-enclosed outdoor room. This covered space includes an open fire, a BBQ/smoke area, and a circular skylight for stargazing overhead, offering a year-round

gathering zone. Sliding timber shutters allow the space to be either enclosed for winter or opened to form a breezeway that aligns with the site’s north–south axis. The result is a compact, efficient form that reduces unnecessary circulation and recentres the architecture around family ritual and seasonal use.

SITE PLAN

RELATIONSHIP TO SITE

The building form is carefully positioned to retain and celebrate the central red oak tree, with the U-shape maintaining generous setbacks to protect their root systems and canopy. The open end of the U faces south, allowing the long, low form to act as a windbreak — creating a calm, sheltered microclimate beneath the oaks. The internal courtyard benefits from dappled light and filtered shade,

becoming a naturally tempered outdoor room. The lowpitched roof slopes south, providing ideal angles for a photovoltaic array while also encouraging prevailing winds to lift up and over the form. Entry is from Lichen Lane to the west, providing simple vehicular access with minimal site disturbance.

SPATIAL PLAN

The west wing houses all 'accessory' functions — including a two-car garage with kayak and bike storage, a multi-use room (for gym, guests, or work), a sauna, and a larder with dedicated meat prep space. The east wing contains the core family home: two children’s bedrooms, a main bedroom with walk-in robe, a well-organised laundry with external access and individual storage lockers, and a central bathroom with

ample built-in storage and bench space. The kitchen and living are oriented north for solar gain, with a long kitchen bench and glazed splashback framing views to the vegetable garden. A sliding glass wall connects the dining space directly to the outdoor hearth zone, allowing for seamless indooroutdoor flow and seasonal flexibility.

17 Alki Architecture + Design Studio, Concept
+ Mark Anderson Residence

Courtyard Living Brick fireplace and Timber

INSPIRATION

Materiality echoes Concept 001 — natural and robust. StrawSIPs form the core structure, finished in a mix of clay/lime plaster and timber cladding. Roofing is corrugated steel with expressed structure where possible. Internal finishes favour breathable, lowtoxicity materials and built-in timber joinery. The atmosphere is warm, tactile, and grounded in rural pragmatism — designed for daily ritual, weather shifts, and the slow pace of home life.

Plaster

Concept Two Fin.

This concept is both spatially efficient and emotionally grounded. The separation of uses into two wings creates clarity in daily function while allowing phased construction if needed. The central hearth provides a unique, sitespecific anchor that responds to landscape, family needs, and seasonal rhythms. It allows a symmetrical 'U' to wrap around the existing and established oak, while keeping the disturbance of other fruit trees and vegetable gardens to a

minimum. Its position and orientation creates a robust block to the prevailing winds, offering outdoor living as an option on the most stormy days. It is a plan that fosters connection — between people, between indoors and out, and between built form and the natural world. With solar access, ventilation, and flexible living deeply embedded in the plan, it offers a highperforming rural home grounded in place and purpose.

Break

Concept Three

Concept 003 explores the idea of elegant simplicity and spatial efficiency. A single gable-roofed form stretches along the eastern boundary, with access via the existing eastern easement. This linear design reduces circulation to near-zero — eliminating internal hallways altogether — and instead focuses on creating practical, highly efficient zones of living. The entire plan is wrapped in a continuous roof, with functional elements like garage, carport, and home unified under a single, cohesive structure. It’s a quiet but powerful proposal: unassuming from the outside, but richly detailed in how daily life flows through it.

SITE PLAN

RELATIONSHIP TO SITE

This design takes full advantage of the long eastern edge of the property, preserving key landscape features — including the oaks, vegetable gardens, fruit trees, and tulip fields — while enabling drive-through access from the eastern easement. While the orientation runs north-south, meaning the home opens westward, this is handled carefully through performance strategies.

Deep eaves (1200mm) wrap the perimeter, and vertical sliding shutters provide additional summer shading while allowing passive solar gains in winter. Keeping the deciduous and established trees to provide summer shading, the elimination of the existing driveway allows more garden to be established - increasing the properties vegetable yield and flexibility for play.

SPATIAL PLAN

Starting from the south, the plan begins with a garage designed for boats, trailers, bikes, and bulk storage. A larder room is tucked into the cool southern end, with a sauna opening out to the gardens and western mountain ranges. A carport separates garage from home but is tucked beneath the same continuous roof for cohesion and shelter. The home itself unfolds in a clean linear sequence: children’s bedrooms to the south, a central open-plan kitchen/living/dining space, and a master suite at the northern end.

The utility axis is highly considered — the laundry entry is located off the easement side and doubles as a mudroom, with washing, bathroom, and kitchen plumbing all clustered for efficiency. This pragmatic planning allows for an unbroken internal rhythm that supports everyday family rituals while remaining compact and high-performing. Clustering 'chaotic cleaning zones', 'cooking and social zones', and 'bedroom, rest or play' zones. With Mum and Dads bedroom location being a little bit remote, and a little bit special - you deserve it.

PROJECT INSPIRATION

Drive through carport CLT + beam construction

INSPIRATION

This concept leans into Japanese-inspired minimalism — honest materials, calming rhythm, and warm restraint. The walls are StrawSIPs, plastered in natural clay and lime. The floors and ceiling are exposed CLT (insulation to the outside), with timber cladding and a classic corrugated roof completing the palette. Built-in seating, nooks, and storage reinforce the idea of intentional living.

Concept Three Fin.

Concept 003 champions intentionality through minimalism — a home that is direct in its form, yet deeply layered in its function. The layout supports an active, outdoor life, with considered spaces for gear, gardening, prepping, washing, and resting. While a westward orientation is not ideal from a passive solar standpoint, the design mitigates this through generous eaves and shading strategies, ensuring comfort through the seasons.

The absence of an enclosed courtyard means the home is more exposed to prevailing winds, but the linear form and slim profile reduce turbulence and maintain simplicity in structure and flow. It’s a place to live lightly — with focus, clarity, and rhythm.

NEXT STEPS

NEXT STEPS

YOUR REVIEW Take your time to explore each concept, sit with the ideas, and reflect on what feels most aligned with your hopes for this next chapter. This is your space to dream, to imagine, and to shape a home that truly reflects you.

OUR REVIEW Let’s catch up in person to walk through the concepts together. We can explore the layout, materials, and sense of space in more detail — and move into the next phase with clarity, confidence, and creativity.

Turn static files into dynamic content formats.

Create a flipbook
Issuu converts static files into: digital portfolios, online yearbooks, online catalogs, digital photo albums and more. Sign up and create your flipbook.