Architectural Portfolio
University
of Kansas School of Architecture & Design


BOTANNICAL HEIGHTS, Urban Housing, Shenzhen 4-13
CROSSROADS PERFORMING ARTS CENTER, Kansas City 14-23


CONCEPT DIAGRAM


![]()
University


BOTANNICAL HEIGHTS, Urban Housing, Shenzhen 4-13
CROSSROADS PERFORMING ARTS CENTER, Kansas City 14-23





As Shenzhen is an experiment in rapid urbanization, the project aims to carefully create lasting bonds in community to ensure the city’s stabilization in the coming years. In order to address the complex social context of Shenzhen as well as defining what the given brief of “luxury” means in the modern world, this project breaks up the looming density of the surrounding context by scattering smaller scale communities across the site. The project aims to be integrated into the fabric of the city, while providing refuge from the urban scale. The site is wrapped in greenery and winding paths, reminiscent of a peaceful Chinese garden. The site is shared with a classmate.
SITE AXONOMETRIC

MASSING CONCEPT















With the sun being nearly ovehead for a lot of the year, reducing direct sunlight becomes crucial while maintaining optimal levels of diffuse daylighting. The main strategy this project adopts is to create shaded spaces that still get access to indirect light by utilizing shaded courtyards and terraces while responding to the angle of the sun. In winter months, sunlight can get deep into spaces and illuminate, while providing cooling shade during hot summer months. The spacing and low height of residences allow for sunlight to reach the ground of the site, in comparison to looming, deep highrises that surround it.





Defining spaces that can introduce public life to the site meet private, secluded residences with communal areas that define the core of the program. Visitors can be hosted by residents and increase the odds of chance encounters. Encouraging social interaction is the key of the project’s program intent, as building a local social fabric will be essential to the city’s stability and growth.

The ceramic tile facade references traditional Chinese cladding while responding to climatic conditions. Ceramic tiles function well in humid, hot climates as it sheds water and absorbs heat. The tiles are directly adhered to a cavity wall that can weep moisture. The white facade envelopes the solid concrete core like a sheltering wave, creating a volume within.


Kansas City Crossroads Gross, Spring 508

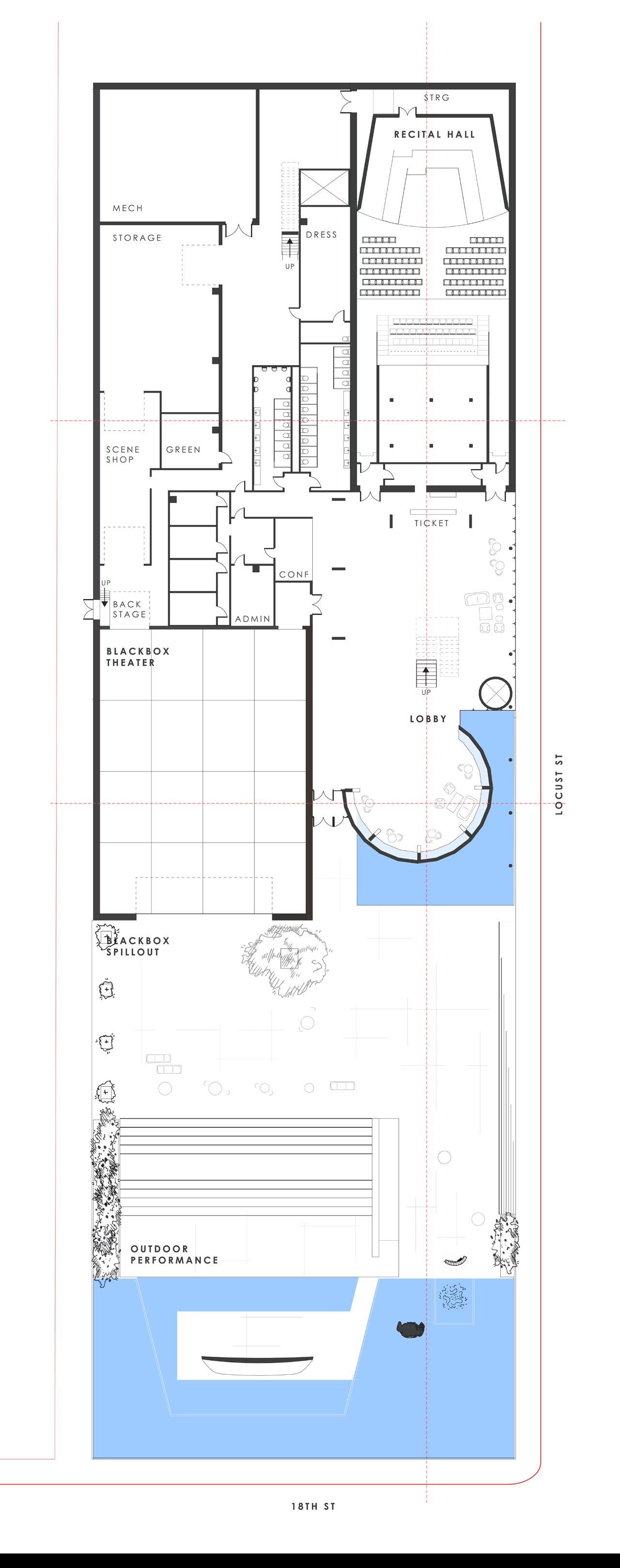
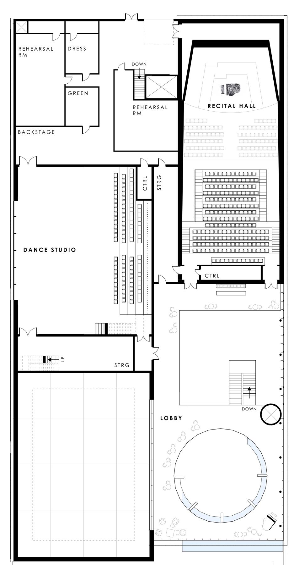
A new performing arts center is taking form in the Kansas City Crossroads, a site rich with a history of transformation and independent artistic culture. This budding identity of the KC Crossroads is just in its adolescence, and will see even greater investment and growth in the coming years and decades. This performing arts center is meant to be a lasting symbol of the local spirit, organic to its conditions, and a peek behind the curtain for the everyday visitor.

A recital hall, experimental blackbox theater, and dance studio make up the majority of the program, including a main lobby, rehearsal rooms, and additional back of house facilities. Specialized architectural applications create functional spaces for various performance, such as a hydraulic floor system in the theater, recital hall acoustic design, and a saucer shaped performance area in the lobby.






This project is mainly composed of cast in place fiber reinforced concrete with steel rebar. Back of house service access is designed to be straightforward in order to uphold the “magic” of performing arts.





The site is cattycorner to the iconic Kansas City Star building, which is currently being proposed to be torn down to make way for a new sports stadium. In order to preserve the history of the area, the new performing arts center plans to rescue the copper panels of the Star to screen the facade. The old panels would be perforated in a pattern to allow light, which is inspired by the accoustic properties of water under vibration. Everything but the lobby would reuse panels, which would use a new copper that would patina over time as a symbol of the building settling into its new home.



EXTERIOR PLAZA RENDERING


The glass saucer which acts as the enterance to the lobby can preview a show inside the bowl from the outside, or act as an interior viewing gallery to the outdoors. An audience can also gaze down from the second story balcony.


In the recital hall, thick cast in place concrete walls offer mass for sound isolation. Hollow concrete clouds add absorbtion and reflection, while a massive hollow volume in the ceiling adds the illusion of a larger hall. The front and back walls are curved to move more sound to the audience.



The dance studio offers wings from both sides for performers, while the audience gets the choice of balcony seating to view over the dancers. The Crossroads, including the Kauffman center act as a natural backdrop.





Lawrence, KS
Van der Riet, Fall 509 DesignBuild
Professor, Project Manager:
Keith van der Riet
Teaching Assistant:
Suzanne Hampton
ARCH509 Student Team:
Ocean Babcock
Allison Brooks
Natalie Chalona
Monet DeFreece
Anna Dority
Ellie Goodman
Matthew Hahn
Shyann Jonscher
Alice Kucherov
Ashley Loza-Hernandez
Nick Peterson
Kevin Rauch
Jeffrey Tistoj-Lara
Jillian Tomlinson
Alex Ultzsch
Rich Wiggins
Elaina Wright


The playground is dedicated to the late Ryan Gray, a dedicated Kansas basketball fan, and considered a “good luck charm” to the team.We visited and documented our targeted shade area; the picnic tables. To kick off the project, we were introduced to our site at Hillcrest Elementary. Their playground recently underwent renovations, meaning they lost most tree cover around the area, leaving recess exposed to the elements.






Developing our individual research, we also took inspiration from nature. I interpreted a bird’s wing as both shelter for the site, while incorporating the feeling of takeoff and play.
As a class, we decided to go with the pleated pavilion, and develop a zig-zagging roof form with various shading options. Polycarbonate was considered as an option until cost and connection details proved powdercoated steel was our best option long term. The class explored the idea of “komorebi”, light being filtered through trees..






Beginning fabrication, we learned metal and wood shop skills, like welding, plasmacutting, saws, drilling, and communication. I learned a lot about teamwork since it was necessary to deal with heavy steel. We went on several facility tours including our galvanizers, seen to the left.
We moved carefully to our site from the warehouse. This is where we found it the most crucial our drilled, cut, and reamed hole alignments were accurate. We poured concrete, caulked, dug out the bioswale, and carried rocks. Scaffolding allowed us to reach the highest elevations.





























SEQUENCE, AXONOMETRIC SKETCH













