ACHAREE SIRISAN BFA INTERIOR DESIGN SAVANNAH COLLEGE OF ART AND DESIGN (SCAD) EXPECTED GRADUATION : MAY 2023 PORTFOLIO
        CONTACT
          912-482-8808
          SKILLS
          SOFTWARE
          Photoshop
          InDesign
          Illustrator
          Revit
          SketchUp
          Rhinoceros 3D
          WORK EXPERIENCE
          Freelance - Interior Designer
          I’m a storyteller who expresses my words through design. I was born and raised in Thailand, a country rich in culture where it shaped who I am today. Then, I moved to Hong Kong and later on, the United States in which all the countries’ art has inspired my design style significantly. I believe that designs and cultures of each place are parts. I aim to involve characters of each environment into my design combined with a sense of Modernistic style, aesthetic taste, and organic shape in my work. I also believe that good design is not only about beauty, but can also be practical and meaningful to the heart.
          Enscape
          Lumion
          Microsoft Offices
          LANGUAGE
          Thai
          English
          DESIGN SKILL
          Sketching
          Drafting
          Hand Rendering
          Digital Rendering
          Model Making
          Research
          Conceptual Thinking
          Collaborative Working
          Space Organization
          ACHIEVEMENT
          Kravet May 2022
          Outstanding Achievement Award
          SCAD 2019 - Present
          - SCAD Achievement Scholarship
          
    - SCAD Student Incentive Scholarship
          ASID Student Portfolio Competition 2023
          EDUCATION
          Savannah College of Art and Design (SCAD)
          Savannah, GA
          B.F.A Interior Design
          Minor : Architecture
          Minor : Architecture History
          Expected Graduation :
          Study Aborad SCAD Hong Kong (2 Years)
          SCAD Honor Class Substitution
          Grad Architecture Human-centered Design
          June 2022 - August 2022
          Selected as 1 of 6 to participate in a maste r degress class in Graduated Architecture Program as a substitution class
          Collaborated directly with clients project layout, landscape layout, bDrafting the construction drawing Working closely with engineering Reponsible for contact between construction as foreman on site Working as a team with Black Table Drawing the construction drawing
          In the role of Construction Foreman construction workers
          PROJECT EXPERIENCE
          Chiang Mai, Thailand - September
          The project proposal is how can new connection netween people and culture The reserch on culture and heritage Working on Revit and Rhino to create Using Indesign, Photoshop, and Procreate
          Yacht Design - Miami, FL - March Collaboration Project with two classmates, Work directly with client to design Developing 3D Model of Exterior Interior Costome Furniture using Rhino and Performing Render of Exterior Interior, and Landscape Environment using
          Intetrnational - January 2022
          Collaboration with 10 students from Animation,Industiral Design and etc. Marriott Internation to solving user and Marriott Bonvey application Led the interior design team to work using 3D Max and Render with Lumion Working closely with Animation team Working on Rhino for 3D model and Industrial Design Team
          HELLO
        Designer & Foreman on site
          to organizing the and developing the concept. drawing in AutoCAD on conslution
          construction workers and supervisor
          Table Studio to develop concept
          drawing in AutoCAD
          Foreman on site, working with
          September 2022 - Present
          new interior design recepture the culture of Chiang Mai heritage to see the truth problem
          create the 3D model of the building
          
    Procreate for Graphic and Presentation
          
    March 2022 - May 2022
          classmates, in the roll of Project Manager her yacht using Kravet product
          
    Interior , and and Sketch Up
          Interior, Costome Furniture
          Luniom and Photoshop
          
    - March 2022
          from different major such as UX/UI, etc. to work directly with
          user experience in hotel room
          work on hotel room model
          Lumion
          team on Visual Presentation using Figma and 3D printing model with
          CONTENTS 2 4 Beneath The Shade Architecture Orpheon Pop-up Store J Space Community Mall Krevet x Yacht Design Residental 1 3
        
    
              
              
            
            KRAVET X YACHT DESIGN
          Kravet Design of Distinction Competition
          The collaborated project in studio class with two classmates was to develop the interior design of a Ferretti 690 yacht. by using products from Kravet. This project engages in creativity and material selection based on client preference. This project is part of the Kravet Design of Distinction Competition.
          CLIENT Pia & Jorge Miro-Quesada
          JOB TITLE
          BJStusio : Kravet x Yacht Design
          
    LOCATION Miami, FL
          DATE March 2022 - May 2022
          Softwares used
          Rhino
          Sketch - Up
          Lumion
          Photoshop
          Collaboration
          Bianka Pineda
          Sarah Marrison
          Responsibility
          Project Manager Research
          Exterior Model
          Interior Model
          Rendering
          Pia & Jorge Miro-Quesada
          The married couple who love travel and entertainment, Pia and Jorge Miro-Quesada. They have three children; Jorge Yuda, Pia, and Juan Pablo. They have one dog, which considers the fourth child.
          
    Pia prefers navy blue color and Jorge Miro loves sunset
          
    
    
    
    
    LOCATION
          
    20.94 meters planing yacht with flybridge with accommodation for 18 people and the draft of 1.70 meters which can reach up to 30 knots.
          
    
    DESIGN SOLLUTION
          
    
    All interior design serves the activity and preference of the client. From the Flybridge through the basement area, the clients aim to invite guests; the space is designed to match the entertainment and sports activities both day and night, such as a mini bar, kitchen, lounge, and many more . The material selected is the key helps to solve the problem that might be cast by the surrounding environment. The yacht has been flooding in the ocean for a long time, and the safety is the most concern during the design phase
          The design utilizes curvilinear forms to reflect modern and clean lines and the clients desire for a luxurious entertainment space. The overall white and gray color palette will be enhanced with accents of navy blue and provide a sense of relaxation.
          
    
    MOOD BOARD & CONCEPT CLIENT
        Ferretti 690
          DESIGN DEVELOPMENT
        
    
    
    
    
    
    
    
    
    
    
    ACTIVITY AREA OUTDOOR ACTIVITY INDOOR ENTERTAINMENT RELAXING AREA 360 PANORAMA LOUNGE MINI BAR WET AREA FLYBRIDGE COCKPIT MAIN DECK
        CONCEPTUAL FUNCTION
        CABIN YACHT EXTERIOR
        BASEMENT
          
    
    1 Fybridge 2 Cockpit 3 Salon 4 Bar 5 Galley 6 MDR 7 Main Helm 8 Owner's Suite 9 Owner's Suite Head 10 Owner's Suite Cloet 11 VIP Suite 12 VIP Suite Head 13 Guest Cabin 14 Guest Head 15 Crew Cabin 16 Crew Head 17 Laundry Deck Plans
        FLYBRIDGE
          
    
    
    
    The flybridge is an open deck located above the bridge. The sunset lounge is located in this area where a mini fridge and sink for cooking activities. At the front is the custom sunbed
          
    
    Flooring: Gerflor - White Teak Decking
          
    
    Captain’s Bench: Kravet - Sarabi- Indigo Pillows: Kravet - Entoto Weave - Marine
          
    SUNSET LOUNGE
          The sunset lounge is hugged by the beautiful golden sunlight, perfect for relaxing and gathering.
          
              
              
            
            COCKPIT & MAIN DECK
          custon sofa for entertainment
          Flooring: Gerflor - White Teak
          
    Decking
          
    Bench: Kravet - Extreme - IvoryUpholstery
          
    
    Pillows: Kravet - Entoto WeaveMarine - Upholstery
          
    Barstool: Kravet - Sarabi -Indigo
          
    
    The main deck is an indoor gathering place where entertainment activities hap pen. The cockpit with a stunning view, Salon with custom sofa next to the mini bar, and Gallery with dining table
          
    
    COKCPIT
        MINI BAR
        MDR
          hapthe mini
          
              
              
            
            BASEMENT CABIN
          OWNER’S SUITE CLOSET
          
    Flooring: Gerflor White Teak Decking
          Paint: Sherwin Williams-1095 Off White
          
    Couch: Kravet Extreme - Ivory - Upholstery, Kravet
          
    
    Boone - Ink - Upholstery
          Accent Chairs: Kravet Sarabi - Indigo
          Countertop: Neolith - Estatuario
          
    
    Backsplash: Ann Sacks
          OWNER’S CABIN
          OWNER’S SUITE
          
    VIP SUITE custom kingbed
        
    RETAIL & POP-UP STORE
          Orpheon is the new best seller eau de perfum by Diptyque, launched in 2021. The retail project is to develop the pop-up store for the Orpheon collection focusing on creating light in the environment as the project is part of the lighting studio
          
    CLIENT Diptyque
          JOB TITLE Orpheon Pop-up store
          LOCATION Savannah, GA
          DATE January - Febuary 2023
          Softwares used Revit
          Enscape Photoshop
          ORPHEON
        DIPTYQUE
          
    
    
    
    
    
    DRAYTON ST. SAVANNAH, GA
          DESIGN SOLLUTION
          The light is the main focus of this project. How to create light from the darkness. As a pop-up store, the unique character of the product needs to speak out and create interactive experience to the visitor interactive experience to the visitor
          Diptyque is a perfume brand from Paris; the com pany produces eau de perfume, eau de toilette, scented candles, and perfume oil diffusers. The name comes from Ancient Greek meaning a two-panel image. The brand-creating fragrance is an art, and art is a journey. An imaginary journey of the mind and the senses across olfactory landscapes. Their famous fragrances are Philosykos, Do Son, Eau Rose, and many more.
          
    “Paris in the early 1960s. People would discuss, dance, the harmony of saxophone and piano in this
          
    CLIENT LOCATION
        CONCEPT
        apply the solid perfume on your pulse points, where your body gives off the most heat
          
    OEPHEON
          Eau De Parfum
          Orpheon takes you back around the 1960s, at the bars where the three founders of the nearby Diptyque boutique liked to meet. The fragrance is inspired by the smell of the environment, mood, and tone.
          
    
    
    The patinated wood, the vapours of alcohol, and the musky linger of the make-up power present is the Brightwood scent.
          
    Main accords : Powerdery
          Woody Aromatic White Floral Freash Spicy
          
    
    
    Middle Notes : Jasmine
          Top Notes: Juniper Berries
          
    Base Notes:
          Powdery Notes
          Cedar
          
    Tonka Bean
          
    dance, and laugh along with this artistic jazz bar”
          
    RESEARCH PRODUCT
        75 ml perfume $ 205
        solid perfume $ 68
        refillable
        The story of the origind, genesis of a friendship of tree founder throught the illustrations by Diptyque This illustrations located the back of Orpheon bottle This
          
    
    
    
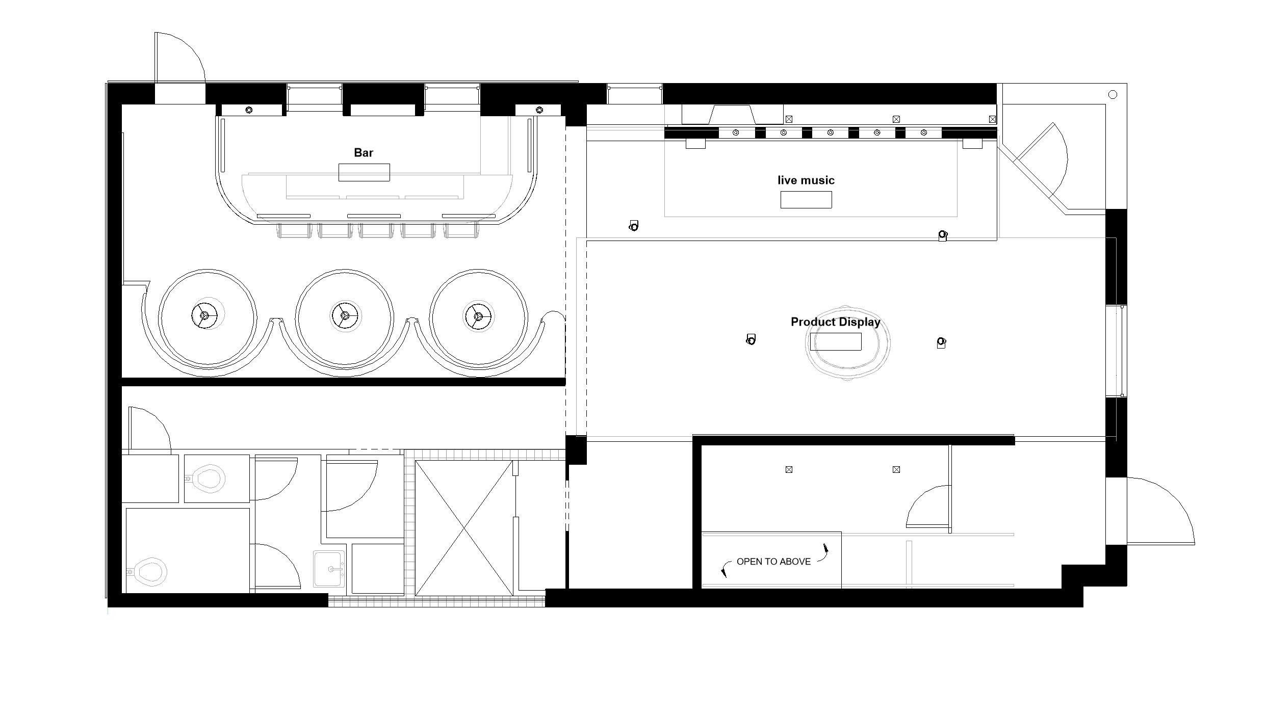
    FLOOR PLAN 1 2 3
        1 DISPLAY AREA
          2 LIVE MUSIC AREA
          3 BAR
          DISPLAY AREA
          
    
    
    
    
    
    the at bottlen
        LIVE MUSIC AREA
        The display platform inspired by the shape of the perfume bottle n
          
    
    
    
    
    
    
    
    BAR The LED glass with Illutrations
        
    
              
              
            
            Beneath The Shade
          VISITING CENTRE
          Beath the shade is the design proposal for the City of Savannah. The visiting center serves the purpose of the new landmark and is where visitors can experience and learn about Savannah. This project is part of the Grad WArchitecture class as an honor class substitution.
          CLIENT City of Savannah
          JOB TITLE Beneath The Shade
          LOCATION The end of Montgomery St. on Williamson St.
          DATE June 2022 - August 2022
          Softwares used
          Revit
          
    Rhino
          Lumion
          Photoshop
          Illustrator
          Savannah
          Savannah’s history begins in 1733. James Oglethrop and the 120 passengers of the ship
          CITY OF SAVANNAH
          
              
              
            
            Beneath The
          “Anne” landed on a bluff high along the Savannah River
          
    
    City Plan
          Savnnah is known as American’s first planned city. The city plan in a series of grid that allowed for wide open strets intertwined with shady public streets.
          
    Savannah had 24 original square are still in existence today
          
              
              
            
            LOCATION
          Population
          
    
    
    
    
    143.632
          +8.0% since 2020
          Median Age
          32.3
          Population density
          1,383 per square mile
          Savannah, GA
          The end of Montgomery St. on the Williamson St.
          DESIGN SOLLUTION
          
    Median Income
          $36,628
          Real Estate
          The median home cost in Savannah is Real Estate : $211,300 Home appreciation this land 10 years
          The location is a sloping landscape connecting two streets on different levels. The landscape is the most challenging in this project. The construction and space planning has to work together to help solve the issue.
          Natural Physical Features
          Savannah lies on the Savannah River, approximately 20 mi (32k,) upriver from the Atlantic Ocean.
          
    Soil
          Tifton Soil
          Fine and loamy
          
    Dark gray-brown and sandy
          Rock
          Linestone
          Sandstone
          Shale
          CLIENT
        RESEARCH
        MOOD BOARD
        
              
              
            
            The Shade
          
    
    
    
    
    
    
    
    DESIGN DEVELOPMENT BOARD & CONCEPT
        
    
    
    
    FLOOR PLAN CONSTRUCTION DETAIL
        
    
    
    
    
    
    MODEL MAKING
        RENDER
        
    
              
              
            
            J SPACE
          COMMUNITY MALL
          The family friendly commuity mall with the concept of under the cloud. The main purpose is to create a space for visitor to the gather and connect with nature and society. This project focusing on landscape organization and concept development.
          
    CLIENT Siri Group
          JOB TITLE J Space
          LOCATION
          Chiang Mai, Thailand
          DATE April 2021 - October 2022
          Softwares used
          Autocad
          Lumion
          Collaboration
          Siri Group
          Smart Home
          Be Green
          Responsibility
          Concept Development
          Layout Planning
          Green Space Planing
          Construction Forman on site
          Corperate by : Siri Group
          A collection of shops and service for Chiang Mai people. On the of 12 rai. The only community mall in the area of San Sai, surrounded by more than 13 housing estate communities. J Space partner with the leading brand stores such as Mr. DIY, 7-11, Jampha supermarket and many others.
          Chiang Mai , Thailand
          Nongjom , Sansai
          Chiang Mai, Thailand
          50210
          
    
    
    
    
    
    DESIGN SOLLUTION
          In the area of 12 rai, J Space aiming for thoughtful space planning and suit with the concept of green space community mall where everyone can hangout and enjoy the moment under the cloud
          
    
    - Support more than 200 cars
          - Modernity
          - Green Space
          - Activity area
          - Sustainability
          - Pet Friendly
          The inspired was from the heartwarming where the cloud and Observance of landscape, while keeping provided a feeling of openness, Where there are clouds, there and rain to create
          
    CLIENT
        LOCATION
        RESEARCH
        Project Area 12 rai 64 square wa PROJECT AREA Usable Area 5,715 square meter Units 70 units 1 & 2 story building TARGET COSTOMER Family & Community Driver travel along Maerim and Doi Saket Road Company Employee J Space
        Community Mall
        under
        the
        heartwarming view of the location and mountain stand out. keeping an eye on the view airiness, and comfort. there is a shade to rest, prosperity in the area.
          
    
    
    the cloud
        BuIldInG B
          BuIldInG A
          GArden
          BuIldInG c
          7-11
          jAmphA mr. dIy
          
    
    
    
    
    J SPACE บริษัท อริสตา พลัส จำกัด ถ สามล้าน ต พระสิงห์ อ เมือง จ เชียงใหม่ บุญญฤทธิ์ ตั้งโฉลก ภ สถ ปรัชญ์ บุญกนิชฐา สย FLOOR PLAN FRONT 3D MODEL BY SMART HOME
        
    
    
    
    
    
    FRONT ENTRY PARKING GARDEN
        
    
    
    
    
    
    
    
    
    WATER FEATURE REST AND SHADOW POCKET PLAYGROUND
        LANDFORM
        CANOPY WALKWAY CANOPY WALKWAY
        GARDEB3D
          MODEL BY BE GREEN
          
    
    
    
    PLAYGROUND CONSTRUCTIONVVVV