Skip to main content

AAA082 El fenómeno de la escala en el panorama urbano de RD

Page 1

Muebles para monitoreo: Todas las áreas de monitoreo de la red fueron amuebladas con nuestras consolas marca Winsted que permiten el manejo eficiente del cableado y la integración de gran cantidad de monitores a cada estación.

BHD

Dentro de ese contexto, es un orgullo para Haché haber colaborado en este proyecto de gran impacto en su sector, donde se utilizaron productos de calidad mundial, de alta tecnología, diseñados para cumplir con los exigentes requerimientos corporativos del mundo de hoy. El aprovisionamiento e instalación de productos arquitectónicos de terminación interior para pisos, paredes, y divisiones así como el amueblamiento de sus áreas de oficinas y centros de monitoreo fue el aporte de Haché al Proyecto del Campus Financiero del BHD. El mismo puede resumirse de la siguiente manera: Pisos: La innovadora decisión de manejar los cables de voz y data a nivel de piso, requirió de la utilización de pisos técnicos elevados marca Tate Access Floors los cuales ofrecen una alta flexibilidad en la distribución espacial. Estos pisos fueron utilizados en los tres niveles de oficinas y vestíbulos de acceso. En los primeros, los pisos técnicos no tendrían ninguna terminación ya que se le colocaría alfombra modular marca Milliken con una tecnología llamada Traction Back que mantiene las losetas de la alfombra fijas en su lugar, sin la utilización de adhesivo, permitiendo así el acceso sin dificultad al subsuelo para el mantenimiento de los cables. Para los vestíbulos se utilizó el mismo tipo de piso pero esta vez acabado con paneles de madera Tate Hardwood dando una imagen de elegancia.

Hache agradece al Banco BHD , a la firma de arquitectos J. García Martínez Arquitectos , a Nuristan , firma constructora del proyecto; el habernos escogido como sus proveedores de productos y servicios en tan importante proyecto. Santo Domingo, Av. John F. Kennedy Tel.: 809.566.1111 • Santiago, Av. Salvador E. Sadhalá Tel.: 809.971.1111 • www.hache.com.do José Moré

Fotografías por Gustavo

Muebles de oficinas: Nuestro mobiliario marcas Allsteel y HON de HNI fue especificado para cumplir con las necesidades de funcionalidad y ergonomía de los usuarios que tendrían a su cargo las operaciones del banco. Recepción, salas de espera, oficinas ejecutivas, áreas colaborativas, escritoritos individuales, salones de reuniones, áreas de lockers, son algunas de las necesidades específicas que suplimos con nuestro mobiliario.

CampusHachéFinanciero

Con más de 136 años de trayectoria empresarial y 48 años de experiencia sirviendo al mercado de Muebles e Interiores, Haché representa calidad garantizada, cumplimiento con los plazos de entrega y términos acordados, y continuidad en productos y servicios para facilitar futuras expansiones y repetidas relaciones de negocios. Las soluciones de terminación de interior y mobiliario de Haché van desde propuestas utilitarias con productos básicos, duraderos y funcionales, hasta propuestas de alto valor estético que satisfacen las exigencias de arquitectos y diseñadores que buscan comunicar una imagen a través del diseño. Para ellos, cuenta con productos y terminaciones en una extensa variedad de colores, materiales y diseños, gracias a su exclusiva red de fabricantes con los que mantiene estrecha relación, y de la que recibe continua capacitación y actualización en nuevos productos y tendencias.

Particiones de Baño: Como parte de nuestras soluciones arquitectónicas, se instalaron divisiones de baño de alta privacidad marca Bobrick , fabricadas en fenólico solido con herrajes en acero inoxidable para asegurar durabilidad y funcionalidad en el manejo de los baños.

Director/Editor Gustavo Luis Moré Coeditor Marcos A. Blonda Coeditora Sección Interiores María del Mar Moré Consultor de Diseño Vignelli Associates Directora de Arte Chinel Lantigua Asistentes Gráficos Manuel GustavoFloresJosé Moré Corrección de Estilo Raquel Pellerano Marcos A. Blonda Gustavo Luis Moré Traducción Dolly Pellerano Fotografía Gustavo José Moré Ricardo Briones Gerente Administrativa Madeline Espinal Gerente de Ventas y Mercadeo Patricia Reynoso Consultora de Mercadeo María Elena Moré Asistente Luis Checo Preprensa e Impresión SantoSerigrafDomingo, RD Fundadores Gustavo Luis Moré María Cristina Rodríguez-Marchena Suscripción, venta y publicidad Santo Domingo, RD Patricia Reynoso Tel.: 809 687 8073 / Fax: 809 687 2686 Miami, Fl Laura Stefan Cel 786 553 4284 San Juan, PR Emilio Martínez Tel 787 726 7966 Santiago de Chile Humberto Eliash 56 22 480 3892

ESTADOS UNIDOS DE AMÉRICA

Washington D.C.: Aurelio Grisanti, Francisco Ruiz

AMÉRICA LATINA Y GRAN CARIBE Antillas Francesas: Gustavo Torres, Serge Letchimy, Jack Sainsily, Bruno Carrer Argentina: Ramón Gutiérrez, Fernando Diez, Mario Sabugo, Cayetana Mercé Bahamas: Diane Phillips Bolivia: Javier Bedoya, Gustavo Medeiros Brasil: Ruth Verde Zein, Hugo Segawa Chile: Humberto Eliash, Andrés Téllez, Sebastián Irarrázabal, Horacio Torrent, María de Lourdes Muñoz Colombia: Silvia Arango, Carlos Niño Murcia, Alberto Saldarriaga Roa, Sergio Trujillo, Claudia Fadul, Daniel Bermúdez, Lorenzo Fonseca, Gilberto Martínez, Ricardo Vives Costa Rica: Bruno Stagno, Luis Diego Barahona Cuba: Eduardo Luis Rodríguez, José Antonio Choy, Omar López Curazao: Ronald Gill, Sofía Saavedra, Ronny Lobo, Michael Newton Ecuador: Sebastián Ordóñez El Salvador: Francisco Rodríguez Guatemala: Blanca Niño Norton, Ana Ingrid Padilla, Cristian Vela, Raúl Monterroso Jamaica: Patricia Green, Jaquiann Lawson, Patrick Stanigar, Mark Taylor, Robert Woodstock México: Louise Noelle, Fernando Winfeld, Jaime García, Eliana Martínez. Juan Bernardo Dolores Panamá: Silvia Vega, Sebastián Paniza, Carlos Morales Paraguay: Jorge Rubiani, Oscar Centurión Perú: Pedro Belaúnde Puerto Rico: Manuel Bermúdez, Segundo Cardona, Emilio Martínez, Ricardo Medina, Andrés Mignucci, Jorge Rigau, Enrique Vivoni Rep. Dominicana: Eugenio Pérez Montás, Esteban Prieto Vicioso, Mauricia Domínguez, Omar Rancier, José Enrique Delmonte, Lowell Whipple, George Latour, Marianne de Tolentino Suriname: Jacqueline Woei A. Sioe Trinidad y Tobago: Mark Raymond, Jenifer Smith Uruguay: Sebastián Schelotto, Conrado Pintos, Nelson Inda Venezuela: Carola Barrios, Francisco Feaugás, Ramón Paolini, Enrique Larrañaga, Martín Padrón, David Gouverneur, Federico Vegas

COMUNIDAD EUROPEA Austria: Mayra Winter España: Antonio Vélez, Lluis Hortet, Oswaldo Román, Juan Herreros, Juan Antonio Zapata Francia: Kyra Ogando Italia: Carmen Amelia Corsani, Stefano Topuntoli, Julia Vicioso

Honolulu: William Chapman Miami: Roberto Behar, Andrés Duany, Elizabeth Plater-Zyberk, Rafael Fornés, Carmen Guerrero, Luis Trelles, Teófilo Victoria, José Gelabert Navia, Jean François Lejeune

Suiza: Marilí Santos Munné ASIA Japón: Cathelijne Nuijsink AAA © es una edición trimestral. Publicada en marzo, junio, septiembre y diciembre. Santo Domingo: Número 82, junio / agosto 2022. Para envío de colaboraciones, cartas o informaciones favor contactar al editor en: Gustavo Luis Moré / AAA, E.P.S. P-4777, 8260 NW 14th st. Miami, Florida 33191 USA. Dirección oficinas de redacción: Calle Benigno Filomeno Rojas #6, Penthouse 7 Norte, Torre San Francisco. Santo Domingo, República Dominicana. Tel.: 809 687 8073. E-mail: glmorearq@gmail.com Sitio Internet: www.aaamag.com.do Permitida la reproducción parcial siempre que se admita la fuente. El editor no se hace responsable de los conceptos emitidos por los articulistas. Publicación registrada con el No. 83238 del 15/4/96 en el Ministerio de Industria y Comercio de la República Dominicana ©. ISSN 1028-3072. LCCN 99110069 sn 98026218 OCLC number (OCoLC) ocm 40640773

New York: Joaquín Collado, Rafael Albert, Germán Pérez, Rafael Álvarez

ANTILLANADEARCHIVOSARQUITECTURA

Perspectiva longitudinal oeste este de la esquina de la Avenida Winston Churchill, de la obra Hábitat Center, Torre ProyectoMultiusos.arquitectónico de Gustavo Luis Moré, Moré Arquitectos, SRL. Escultura urbana del artista Fernando Varela. Fotografía de Gustavo José Moré (AAA).

Texto: cortesía de Sadery Abréu - Directora Construmedia Artículo Ruffo : Un nuevo aliado para el sector inmobiliario 0 8 Milagros Vásquez LaEventoCarabela presenta “Novedades Porcelanosa 2022” 10 Sueño,Artículopesadilla y realidad: Santo Domingo 12 Omar Rancier ARQUITECTURA Y CIUDAD Zoom : una mirada abierta sobre el fenómeno de la escala en el panorama urbano de RD 16 AAA Campus Financiero BHD 22 P. Piña & Asociados / Arq. Ja’El García Habitat Center Torre de Usos Múltiples (HCTUM) 40 Gustavo Luis Moré / Moré Arquitectos SRL Latitud 18° 52 Ares Arquitectos / Hageco WTC (World Trade Center) 58 GVA / Carlos Aguilar Distrito Piantini 66 GVA / Carlos Aguilar Metro Plaza Charles Summer 72 Modesto Constantinau / Ventura Arquitectos Sistema

UnaEDITORIALmirada abierta sobre el fenómeno de la escala en el panorama urbano de RD 04 Gustavo Luis Moré RevistaBibliotecaCARIBBEANAConstrumedia : Trayectorias destacadas Vol. II, sector Construcción Dominicano 0 6

de sucursales del Supermercados Nacional 80 Ja’El García Plaza Paseo del Prado 90 Juan Pérez Morales y Javier Pérez Pittaluga PROMOTORES DESTACADOS Cassa Juanillo Icono Serviced Residences Mistral by Pedralbes Grupo Pedralbes 102 Lanwood Michelén & Michelén Arquitectos Asociados 110 Torre TorresUnoAyres St. Regis Cap Cana Hotel and Residences Campagna Ricart & Asociados 116 Torre Ginaka 21 Torre Piantini 41 Selman Arquitectos 124 Regatta del Sol Spazio By Regatta The Central by Regatta Grupo Contemega 132 Botannia Vista Parque Constructora Aybar Studios 15.6 La Marquesa Town Center I 140 La Marquesa Residences I Arq. Jorge Montalvo & Asociados 150

AAA 082/4Una mirada común sobre el fenómeno de la escala en el panorama urbano de RD Gustavo L. Moré

Es tanto asi, que ya cadenas de supermercados -como se muestra en AAA082 , con la serie de sucursales de los Supermercados El Nacional llevadas de la mano del talentoso Ja’El García-, centros comerciales, torres de oficinas y residenciales, advierten una determinada armonía frente a la entrega del volumen a la calle; si bien el inventario habitacional es el que todavía mantiene las obsoletas plazas de parqueo en los primeros niveles de los edificios, al menos se procura una amabilidad hacia el ciudadano y la configuración del espacio que antes era totalmente ignorada. En ese aspecto, esta edición ha querido mostrar, incluso antes de que varias de las obras elegidas hayan sido terminadas, los nuevos acuerdos entre la arquitectura y la ciudad, atendiendo al hecho de que en los últimos años se han venido construyendo y planificando piezas de mucho mayor escala en las ciudades principales del pais.

Nos pareció interesante abrir esta puerta hacia la crudite de las construcciones, dado que ya evidencian, acompañadas gráficamente por renders, modelos y perspectivas detalladas, su configuración eventual. Varias de las obras presentadas no han sido aún completadas, pero ya se pueden evidenciar la relación volumétrica de las mismas -Latitud 18, por ejemplo, que relaciona dos torres para distintos programas, al igual que Hábitat Center, Torre Multiusos, o el World Trade Center , conformado por varias torres de usos diversos-, un fenómeno nuevo en el país, que apenas se enfrenta al mercado con soluciones polifuncionales y multiusos, exitosas inmobiliariamente, y además ricas en la experiencia ciudadana, en zonas de las ciudades de mayor potencial comercial. De seguir el mercado con la tendencia actual, es de esperarse, que otros proyectos aprovechen estas soluciones y vayan enriqueciendo sus entornos respectivos. Muchos de estos proyectos son de la autoría de firmas de arquitectura extranjeras, asociadas en diversos formatos con firmas locales de prestigio, las que aterrizan los esquemas conceptuales con las normativas vigentes, y dirigen al equipo de consultores, que salvo raras excepciones, son todos dominicanos. Una nueva generación de profesionales se hace evidente cada vez más, y, de seguir el ritmo de crecimiento que ha demostrado el país en los últimos 25 años, este grupo de técnicos, conocedores de

Cada vez más grandes; cada vez más complejos en sus programas operativos; cada vez más impactantes en la ciudad; cada vez más audaces formal y volumétricamente; tal es el trayecto de la nueva arquitectura siendo realizada en el universo inmobiliario y especulativo de la República Dominicana; este tránsito de escala hacia una presencia mayor en las ciudades, no implica necesariamente una mejor arquitectura, y, lo que es aún más peligroso, mejores espacios urbanos. Si hace unos años los inmuebles construídos eran sordos, mudos y ciegos ante unas ciudades que se tornaban cada vez más hostiles, hoy, por suerte y gracias a determinadas movidas normativas llevadas a cabo por los Ayuntamientos, -sobre todo en los casos de Santo Domingo y Santiago de los Caballeros- la relación entre arquitectura y ciudad parece haberse tomado en cuenta; una nueva generación de arquitectos, se ha aunado a la generación precedente, y después de décadas de un discurso prourbanístico tanto en lo municipal como en la académico y lo profesional, hoy se advierten nuevas relaciones entre lugar, arquitectura y ciudad. Tímida, si se quiere, pero consciente de la importancia de esta ecuación en la calidad de la ciudad y en fin, de la cultura misma. Ya los promotores y gerentes de proyectos se han percatado de la relevancia del civismo como factor positivo en el éxito mismo de sus inversiones. Ya escuchar el motto “espacio público” es cada vez más frecuente; es un concepto de cual se han apoderado los arquitectos, pero, más importante aún, los actores protagonistas del escenario político en sí. Los alcaldes, los regidores, los directores de planeamiento, los profesores en las escuelas y los mismos estudiantes, consideran este universo ya un componente inevitable en sus gestiones e iniciativas, tanto en lo cualitativo como lo cuantitativo.

Un aspecto interesante que se esta ensayando, es la consolidación de varios solares de escasa superficie, como fueron planificados originalmente en esas urbanizaciones, sobre todo del Polígono Central de Santo Domingo -NACO, Piantini, Serrallés, El Vergel, Evaristo Morales, Julieta Morales, Fernández, etc., que hoy en día comienza a unificar lotes contiguos y a aumentar las posibilidades de densificar y aumentar el perfil de la ciudad. Este hecho, previsible a todas luces, es probablemente la ruta a seguir, en muchos de los desarrollos del futuro inmediato.

la legislación local de diseño y construcción, y las posibilidades reales de una mercado de la construcción que ofrece cada vez más alternativas, menos limitadas y cuidadosas en los aspectos geográficos y climáticos. El vehículo de motor, antes dotación fundamental en el atractivo inmobiliario, ha ido desplazándose hacia los niveles soterrados, permitiendo así un contacto mucho más seguro para sus usuarios y atractivo para las soluciones arquitectónicas. Hasta en los proyectos de pequeña huella, como los presentados por el Arq. Jorge Montalvo en Ciudad Juan Bosh, se hacer responsables de una elegante presenta del vehículo de motor. Pero no siempre es así; todavía las ventajas de aprovechar los lotes hasta los límites de los retiros, con estacionamientos directamente vinculados a las cada vez más congestionadas vías, suele ser la solución de facto , debido por lo general, al escaso tamaño de los solares desarrollados (20 x 40 metros siendo la norma más frecuente).

No nos interesa aquí abordar temas de carácter estilístico. Entendemos que la globalidad de la cultura nos está acercando a lugares exóticos, que impactan grandemente en la imaginería del proyecto. Tal es el caso, por ejemplo -como pudimos constatar en AAA081 de la ciudad de Santiago, grandemente influenciada por la arquitectura colombiana actual, sobre todo, de la enérgica vitalidad actualmente imperante en la ciudad de Medellín. Los medios digitales, como el Facebook e Instagram, o los sitios de internet de casi todos los arquitectos actuales, (sobre todo de los más jóvenes), han creado un flujo de influencias extraordinario, fácilmente identificable en el contexto dominicano. Entendemos que este será el segundo ejemplar de AAA de varios dedicado a este tema. Tenemos la impresión de que la tendencia ha de apoderarse de las ciudades, cada vez más frecuentemente. Sólo esperamos, que tengamos el tino de actuar con una identidad formal, paisajística y espacial propia, con el propósito de dominicanizar lo que parece ser un fenómeno facilista mundial. Ya veremos como nos deja parados el período post pandemia….

01 Caribbeana Biblioteca Cortesía de Sadery Abréu Artículo Milagros Vásquez ArtículoEvento Omar Rancier Revista Construmedia : Trayectorias destacadas Vol. II, sector Construcción Dominicano Ruffo : Un nuevo aliado para el sector inmobiliario Carabela presenta “novedades porcelanosa 2022” Sueño, pesadilla y realidad: Santo Domingo

Revista Construmedia: Trayectorias destacadas Vol. II, Sector Construcción Dominicano

Esta revista No. 75, “Trayectorias Destacadas” Volumen 2, es una edición especial que fue lanzada en la celebración de Premios ConstruGala 2022; y qué mejor contenido para este especial evento, escenario de reconocimientos para el sector de la construcción dominicana.

AAA 082/6Biblioteca Cortesía de Sadery Abreu - Directora Construmedia Fotografías: Ricardo Piantini

En esta edición especial “Trayectorias Destacadas” Volumen 2, esta impregnada de historias, a través de las cuales conocerán más a fondo no sólo la trayectoria de los nueve destacados profesionales, sino un poco de su entorno personal y familiar, de grandes y destacados ingenieros y arquitectos como lo son el Ing. Arquitecto Eugenio Pérez Montás, el Arq. Pedro José Borrell, el Ing. José Serulle, el Arq. Cristóbal Valdéz, el Arq.José Mella Febles, el Arq. Gustavo Luis Moré, el Ing. Miguel El-Hage,el Arq. Miguel Llodrá e el Ing. Alfredo Delfino; cada uno de ellos son protagonistas de la historia del sector construcción dominicano. En AAA celebramos este tipo de ocasiones en las que se reconoce el trabajo maduro, serio y profesional, de un grupo importante de los principales autores dominicanos.

Este año 2022 Construmedia cumple sus 15 años; hoy en día han logrado convertir a Construmedia en un medio especializado de promoción para el sector de la construcción dominicana y en un canal de comunicación entre el gremio de la construcción y sus potenciales clientes.

Ing. Alfredo DelfinoArq. José Mella Febles Arq. Miguel Llodrá Arq. Gustavo Luis MoréArq. Pedro José Borrell Ing. Arquitecto Eugenio Pérez Montás Ing. Michel El-Hage Arq. Cristóbal ValdézIng. José O. Serulle

Como resultado, se pueden firmar los documentos del proceso cuando estén listos, incrementando la probabilidad de cierre de la transacción y reduciendo costos relacionados a inmuebles construidos pero no entregados y transacciones fallidas.

lidiar con intermediarios no confiables, complicación y costo de pagos internacionales, entre muchos Pensandootros.en ello, tres jóvenes dominicanos idearon un sistema totalmente innovador, efectivo y seguro, que permite simplificar la compraventa de inmuebles desde el extranjero, gracias a la generación automática de documentos y notarización a distancia.

Ruffo, una startup de talento 100% dominicano, ha facilitado la compra de decenas de inmuebles por compradores en el extranjero, gracias a su novedosa plataforma que simplifica y abarata el complicado proceso de adquisición. Por su labor, han logrado captar la atención de los mejores inversionistas de Silicon Valley. Uno de los sueños que motivan el esfuerzo y sacrificio de miles de inmigrantes dominicanos que pisan el llamado país de las oportunidades, es la posibilidad de adquirir una vivienda propia en su país de origen.

Ruffo: Un nuevo aliado para el sector inmobiliario

A través del seguro y rápido recurso de firma a distancia, el comprador designa a Ruffo o a un tercero de su preferencia como apoderado para concretar la compra de su vivienda y completar y firmar declaraciones juradas para el proceso de debida diligencia y aplicación al bono vivienda, lo cual se traduce en la reducción significativa de trámites, tiempo y costos.

Mercado inmobiliario en ascenso De acuerdo con la revista digital Bloomberg Línea, el sector inmobiliario en República Dominicana es uno de los de mayor crecimiento e impulso económico.

Tal es el caso de Rosa Parra, una dominicana que se mudó hace más de 25 años a Estados Unidos buscando un mejor futuro, y ahora afirma sobre su “sueño dominicano”: “Ya mis hijas se graduaron de la universidad y estoy comprando un apartamento en Santo Domingo para mudar a mi mamá a un mejor hogar, no molestar a mis familiares en sus casas cuando yo vaya a visitar, y eventualmente yo mudarme de vuelta”.

Al igual que Rosa, son cada vez más las personas que viven fuera del país y que optan por la compra de una vivienda en República Dominicana para vacacionar, para mudar a un familiar, o para residir de manera temporal o definitiva.

“Muchas personas locales y extranjeras han incorporado una segunda vivienda para su uso y disfrute, o para inversión y buena rentabilidad. Se han triplicado los desarrollos y zonas que estaban más inactivas años anteriores, como Cap Cana, cuentan actualmente con una amplia cartera de proyectos”. La misma publicación también destaca que a enero de 2022, las recaudaciones de la Dirección General de Impuestos Internos (DGII) registraron un crecimiento interanual de 56.9%, unos RD$294.0 millones más por concepto de operaciones inmobiliarias en relación con igual fecha de 2021, lo cual demuestra el sector financiero de la República Dominicana es rentable y se mantiene en ascenso.

Pero este novedoso sistema no sólo representa un beneficio para los compradores, ya que también permite a desarrolladores y agentes inmobiliarios cerrar más ventas en menos tiempo, sin necesidad de esperar que el comprador viaje a República Dominicana a firmar documentos o acuda presencialmente a un consulado a firmar un poder consular o declaración jurada.

AAA 082/8Artículo Milagros Vásquez

“Tenemos muchos clientes que no podían viajar a República Dominicana o al consulado más cercano para firmar poderes, declaraciones juradas y otros documentos. Hemos rescatado decenas de transacciones que se iban a caer, beneficiando no solo al comprador, sino también al desarrollador y agente inmobiliario quienes pudieron cerrar su venta gracias a Ruffo”, afirmó Luis Pellerano Cabral, COO de Ruffo

Según afirma Claudia Castillo, ex presidenta de la Asociación de Agentes y Empresas Inmobiliarias (AEI) y asesora de la junta directiva, el sector inmobiliario actualmente está muy activo y en desarrollo ascendente.

Ventajas para compradores y vendedores Los elementos claves que convierten a Ruffo en un concepto innovador son su plataforma de generación automática de documentos y de notarización a distancia. Gracias a este sistema, el comprador puede generar, firmar y notarizar documentos extranjeros válidamente desde su computadora, tableta o teléfono móvil en tan sólo minutos, eliminando la necesidad de vuelos internacionales o visitas al consulado y errores en la redacción de documentos.

Ruffo, una solución innovadora Son múltiples las dificultades con las que suelen enfrentarse quienes desean cerrar la compra de un inmueble desde el extranjero, tales como viajar para firmar documentos,

A la fecha, Ruffo ha facilitado la compra de más de 80 inmuebles por compradores en el extranjero, quienes han resuelto los inconvenientes de tiempo, costo y complicación de viajar internacionalmente o a un consulado a redactar y firmar documentos.

Revolucionando el sector inmobiliario Ruffo, sin dudas, viene a revolucionar el sector inmobiliario dominicano y de zonas extranjeras, al concretar su expansión. Con su novedosa forma de facilitar la mediación legal de documentos para la compra y venta de inmuebles, permite que tanto compradores como agentes inmobiliarios agilicen los procesos y el cierre del negocio sea menos turbulento para ambas partes.

La industria inmobiliaria no se detiene, cada día busca nuevas alternativas para ofrecer propiedades que satisfagan los gustos y necesidades de quienes adquieren viviendas, sin importar el tipo. Ruffo , les acerca y permite que den un paso más para obtener el hogar soñado.

Por su parte, Luis Pellerano Cabral, director de operaciones, posee más de 11 años de experiencia legal tanto en República Dominicana como en Estados Unidos con un enfoque en transacciones transfronterizas. Tiene una maestría en derecho de The University of California, Berkeley, School of Law y una licenciatura en derecho de la Pontificia Universidad Católica Madre y Maestra (PUCMM).

Luego de este evento, YC continúa ayudando a los fundadores durante la vida de su empresa a través de programas de crecimiento, asesorías continuas, talleres, comunidad de exalumnos, entre otros.

La arquitectura es una industria que ve más allá del diseño y la creación de espacios que sean acogedores y multifuncionales. Es una que siempre innova y crea diseños atractivos que se ajusten a todo tipo de necesidades.

Para ellos, el poder solucionar problemas tangibles en la adquisición de viviendas desde el extranjero se convirtió en una fuente de inspiración y objetivo a seguir. Y paso a paso, con ingenio y creatividad, han logrado convertirse en pioneros y transformar el complicado y costoso proceso de adquirir una vivienda desde el extranjero, en una experiencia fácil, sencilla y segura. Una historia de éxitos El potencial de Ruffo fue percibido por Y Combinator, la aceleradora de startups de Silicon Valley reconocida mundialmente como la mejor de su clase, al incluirlos en su reconocido programa de aceleración que consta de financiamiento y acompañamiento constante para empresas innovadoras desde su etapa inicial. A partir de su fundación en el año 2005, YC ha financiado más de 3,000 empresas emergentes, las cuales tienen una valoración combinada de más de 600.000 millones de dólares. Entre algunas beneficiadas con este proyecto, podemos mencionar a las conocidas Stripe, Airbnb, Cruise Automation, DoorDash, Coinbase, Instacart, Dropbox y Twitch. Además de una inversión inicial de US$500,000, YC ofrece un “campo de entrenamiento”

La arquitectura como experiencia para los sentidos

Para este importante sector, Ruffo crea nuevas oportunidades de crecimiento, acercando más clientes internacionales al mercado inmobiliario local. Al mismo tiempo, Ruffo presenta al arquitecto una pregunta clave: ¿cómo podemos diseñar inmuebles que se adapten a la vida cross-border de los ciudadanos globales del siglo 21?

Preparación y perseverancia Ruffo nació de la idea de tres jóvenes, que al unir sus experiencias en diferentes áreas del conocimiento idearon un concepto innovador, que está revolucionando el mercado Nelsoninmobiliario.Muñoz, director ejecutivo, tiene más de 9 años de experiencia en creación de compañías de tecnología, machine learning, gestión de productos, fintech y estrategias de innovación. Tiene una maestría en ingeniería y gerencia de Massachusetts Institute of Technology (MIT) y una licenciatura en administración de empresas de Babson College Noé Branagan, director de tecnología, cuenta con más de 15 años de experiencia en desarrollo de software y más de 10 años dirigiendo equipos de ingeniería de sistemas. Ha fungido como profesor en dos de las principales universidades de la República Dominicana y es miembro activo de varias comunidades de desarrolladores de software en América Latina.

Luis Pellerano, Director de operacionesNoé Branagan, Director de tecnologíaNelson Muñoz, Director ejecutivo

para formación y asesoría intensiva, cuyo ciclo culmina en el llamado “Demo Day”, o presentación de las empresas a importantes inversores.

Sumado a este importante logro, Nelson Muñoz (CEO) reveló recientemente que Ruffo busca expandir sus servicios hacia México, lo cual representará un importante avance para esta naciente empresa y para el desarrollo del sector inmobiliario en el país azteca.

Son varias las opciones de diseño que los clientes de Ruffo, al momento de adquirir su vivienda, pueden evaluar y tener a la mano para elegir el hogar dominicano de sus sueños. Lo innegable es que al momento de seleccionar un inmueble estos compradores internacionales tienen todos dos puntos en común: 1) existen en dos geografías a la vez y lidian constantemente con las dificultades de dicha condición, y 2) aman la República Dominicana. Conscientes de esto, existe una oportunidad para los arquitectos y demás actores del sector inmobiliario local en diseñar ofertas que tomen en cuenta estas realidades.

En dicha presentación, El showroom de la Lope de Vega tuvo el placer de contar con la presencia de reconocidos diseñadores y arquitectos que forman parte de los clientes de Carabela, quienes dieron una muy buena acogida a las novedades presentadas. La actividad fue encabezada por los miembros de la directiva de Carabela: Giuliano Chizzolini, Mariella Acerboni, Gelsomina Holguín-Veras, Jesús García, Anny Calderón y Ramón Felis, representante de Porcelanosa Grupo.

Durante la presentación, los invitados disfrutaron de los nuevos ambientes del showroom, donde los materiales de revestimientos fueron los protagonistas.

La serie Butan y Durango, reproducen la textura de la piedra a través de acabados neutros, en tonalidades gris y bone . La serie Treccia , inspirada en los textiles como la rafia, el yute y el papel tapiz, con las características propias de los revestimientos cerámicos resistentes a la humedad.

Porcelanosa, principal aliado estratégico de Carabela, es un grupo español dedicado a la fabricación de materiales de construcción de altísima calidad, quienes han hecho que el desarrollo sostenible sea algo más que una prioridad, lo que los ha llevado a implantar procesos de producción ecosostenibles y a fabricar productos más innovadores con un objetivo claro: minimizar el impacto ambiental, filosofía que Carabela acoge como suya y la hace parte de sus procesos de adquisición y venta de productos eco-amigables, que da como resultado este importante evento.

Carabela Tienda presentó las “Novedades de Porcelanosa 2022”, llevándose a cabo un cóctel en las instalaciones de la Lope de Vega, a fin de mostrar al público las tendencias en materiales y diseño de este año.

AAA 082/10Evento

Ramón Felis-Representante de Porcelanosa Grupo, Carlos Jorge, Mariví Bonilla, Ricardo García y Huáscar Goico

Carabela “NovedadespresentaPorcelanosa 2022”

Durante el evento, Ramón Felis, representante de Porcelanosa Grupo, compartió con los invitados las colecciones de revestimientos y pavimentos entre las que destacan 5 series; la serie Vetr i, con un look artesanal, en tres colores y dos acabados; verdes, azules y blanco. La serie Matt ; con el Blanco Super Mate con texturas distintas y atemporales que combinan con cualquier otro acabado. La serie Marmi, recrea la pureza del mármol pulido, en un gran formato para crear ilimitados espacios; la principal novedad de esta colección son sus diseños bookmatch que crean un efecto espejo en las estancias.

Misael Martínez y Rosilenny Holguín Gelsomina Holguín-Veras y Felipe Rangel Guillermo Sánchez y Raquel Fiallo

Patricia Alvarez y Mariella AcerboniBellaniry Anico Fabiola García y Tania Cáceres Gabriella Athalla y Ramón Felis

Ciudad Primada, Atenas del Nuevo Mundo, la Ciudad del Ozama; los nombres resuenan entre los sueños de grandeza hispánica y las pesadillas del exterminio de los indios y la esclavitud de los negros. Los sueños fueron esculpidos a lo largo de tres siglos en muros de piedra de cantería y tapia, convertidos en una magnífica arquitectura y en una ciudad renacentista con calles trazadas a escuadra que competían con las calles de Florencia, haciendo realidad la febril visión de Geraldini.

Con toda esa historia y ese lastre administrativo, la ciudad de Santo Domingo sigue oteando el futuro mirando hacia el Mar de los Indios Caribes, esperando, no se sabe si una mejor suerte o un huracán que limpie el rio. Santo Domingo, a pesar, o quizás, por todo eso, es una ciudad que se piensa así misma como la ciudad que debe ser, la que sueño siempre, la que me desespera a diario.

Sueño, pesadilla y realidad: Santo Domingo

Hasta la década de 1960 la ciudad estaba contenida entre los ríos y las villas. A la muerte de Trujillo se inicia la explosión urbana que caracterizará la ciudad hasta hoy.

AAA 082/12Artículo

La plaza mayor, ese espacio mágico y sus réplicas, el parque Duarte, la plazoleta Padre Billini, la plazoleta del Carmen y otros pulmones, le dan espacio, verde y aire a la “zona”. Sueños hechos piedra también son las iglesias, de los Dominicos, Regina, del Carmen al sur y las Mercedes, La Altagracia, al lado de las ruinas del primer hospital de América

al norte y las lejanas y las casi olvidadas de San Lázaro, San Miguel, San Antón y Santa Bárbara, templos de canteros, albañiles y marineros relegados al nordeste.

Sin embargo a partir de esos sueños y pesadillas, Santo Domingo renació como una ciudad viva con una arquitectura moderna excepcional que recoge desde las obras del ingeniero de caminos puertorriqueño Benigno Trueba: edificios Cerame, Baquero, Diez, Olalla; hasta la primera obra moderna dominicana, el Copello, diseño de Guillermo González; hasta la joya Art Dec o del edificio Plavime de José Antonio Caro y Leo Pou Ricart, que con otros edificios fundamentales de la modernidad dominicana, se engarzan como joyas en el paseo de la Calle El Conde.

Omar Rancier Hay una cita sobre la ciudad que me parece evocadora en estos 524 años de Santo Domingo, si consideramos la fundación en 1498. Es de Joseph Rykwert en su libro “La Idea de la Ciudad”: “Pero la verdad es que las ciudades no se parecen a ningún fenómeno natural, porque son creaciones artificiales, aunque de un género curioso, integradas por elementos debidos tanto a la voluntad consciente como al azar y controlados imperfectamente. Si hemos de referirnos a la fisiología, a lo que más se parecerá una ciudad será a un Santosueño.”Domingo tiene todos los componentes para cumplir con esa apreciación de Rykwert porque contiene todas las clases de sueños, desde el sueño encantador hasta la más aterradora pesadilla.

Sueños son también, las universidades, las primeras, la Santo Tomás de Aquino de los Dominicos y el bellísimo colegio Gorjón, una de mis edificaciones preferidas en la Ciudad Colonial, mal coronada con un tejado gris que desentona. Y todas esas casas, de Ovando, el Cordón, de Tostado, de Rodrigo de Bastidas, con sus patios, miradores inventados y ventanas góticas geminadas.

Más pesadilla que sueño, con una revolución que no fue a sus espaldas y la falta de gestión urbana efectiva, Santo Domingo es hoy una metrópolis que se canta y que se llora; donde sus mejores recursos no son aprovechados, donde la ciudad histórica la da paso a la ciudad histérica, pobre y orgullosa que se agazapa a orillas del Ozama; donde se comparten las precariedades de Gualey, la Ciénaga y Los Guandules con el american dream del Polígono Central convirtiéndola en una ciudad paleo-tecnológica en la que viven y mal viven, sueñan y desesperan casi cuatro millones de almas en una realidad cotidiana congestionada de autos que se comen la ciudad.

Ciudad de Ovando o de Colón -Diego- construida por alarifes, militares canteros y de indios defenestrados, su claridad urbana la torna referente para las nuevas ciudades del recién estrenado continente. En ella los sueños se materializan en el espectáculo de la Catedral de Santo Domingo, cabalgando entre el gótico tardío o de los Reyes Católicos y el cuattrocento renacentista, la robusta Fortaleza de Santo Domingo, conocida como la Fortaleza Ozama, el dramático Palacio de las Casas Reales, bello siamés arquitectónico que remata magistralmente la calle de Las Damas, la más vieja del continente. Los conventos, los Dominicos al sur y los Franciscanos al norte, como buen ejemplo de la Civitas Dei de San Agustín.

Luego vienen los ensanches: Ciudad Nueva y Gascue, hacia el oeste, la conurbación con el poblado isleño de San Carlos al norte y las villas, Villa Francisca, Villa Consuelo y Villa Juana. El malecón le pone una ventana hacia el mar a la ciudad y la perfila como una ciudad “moderna” civitas diaboli , la ciudad de Trujillo.

Ciudad caribeña, se recuesta, más somnolienta que despabilada, en el recodo del Ozama con el Mar de los Indios Caribes. Fundada en la orilla este del caudaloso rio un domingo de agosto hace más de quinientos años, es movilizada tempranamente hacia la ribera occidental en los terrenos, más comunicados con el hinterland de la factoría que comienzan a montar los Colones, de la aldea de la cacica Ozama. El padre Vicente Rubio habla de los amores de la cacica con Miguel Díaz de Aux, como el romance fundacional que produjo, además, el primer mestizo de las nuevas tierras, ya que en ese entonces América no era aún América. Aquí inician los sueños.

Esa primera ciudad se construyó para luego ser abandonada a su suerte y arrastrada a las primeras pesadillas de la pobreza urbana.

MoréJoséGustavo©

MoréJoséGustavo©©GustavoJoséMoré

AAA 082/14

02 Obras Zoom : una mirada abierta sobre el fenómeno de la escala en el panorama urbano de RD Campus Financiero BHD Hábitat Center, Torre Multiusos Latitud 18° WTC (World Trade Center) Distrito Piantini Metro Plaza Charles Summer Sistema de sucursales de los Supermercados El Nacional Plaza Paseo del Prado AAA P. Piña & Asociados / Arq. Ja’El García Gustavo Luis Moré / Moré Arquitectos SRL Ares Arquitectos / GVAHageco/Carlos Aguilar GVA / Carlos Aguilar Modesto Constantinau / Ventura Arquitectos Ja’El García Juan Pérez Morales y Javier Pérez Pittaluga

AAA 082/16Mesa Redonda AAA Gustavo Luis Moré: Saludos queridos amigos, gracias por hacer un espacio en sus apretadas agendas de trabajo y acudir a esta convocatoria abierta que AAA ha querido hacer con el fin de analizar, entre otros temas, el desarrollo urbano de Santo Domingo y de Santiago, y el impacto que la pandemia del COVID 19 ha tenido sobre las ciudades, la industria de la construcción y en nuestro quehacer profesional. Hemos propuesto unas preguntas con la finalidad de guiar esta conversación que, lejos de ser un intento académico, pretende arrojar una mirada común a un momento interesante de nuestro país y del mundo dentro del marco de amistad y camaradería que une a los que estamos aquí presentes.

Paul Toca paultoca@gmail.com Carlos Jorge carlos_jorge@mac.com Alejandro Marranzini 01@orbitarq.com años, un año y pico casi cerrados… las manifestaciones de ese proceso no se han evaluado todavía… no se sienten… lo que sí se siente es el impacto que ha tenido en la economía lo que eventualmente tendrá su repercusión sobre la ciudad… ¿Cómo la tendrá? Todavía tendremos que esperar un tiempo. Finalmente, el tema de la relación entre la empresa privada y la administración pública: primero la administración pública necesita construir unas reglas de juego para que la empresa privada pueda desarrollar sus proyectos, y por otro lado la empresa privada debe comprometerse a cumplir con las reglas que establezcan las autoridades. Nosotros hemos tenido muchos ejemplos de reglamentaciones que no se cumplen… quizás el más patético ejemplo que fue uno de los primeros esfuerzos que se hicieron con miras de regular y normalizar la ciudad son las regulaciones del Polígono Central: la Resolución 94-98…que simplemente no se cumplió y esa zona céntrica de Santo Domingo se ha ido desarrollando en función de los intereses de la empresa privada, en detrimento de los intereses de la ciudad.

Los temas quedan planteados, ustedes amigos tienen la palabra…

Las preguntas que planteamos son las siguientes:

2.¿En qué medida ha influido la empresa privada en la dinámica antes citada, su participación se ha reducido o ha variado en alguna medida?

Carlos Jorge: Mira yo creo que las ciudades cambian muy poco físicamente en el tiempo. Tú te pones a ver en la historia, y han habido muchísimas pandemias, han habido plagas, ha habido toda una serie de situaciones, guerras, etc. y eso no necesariamente se refleja en la forma física de las ciudades; lo que yo creo que ha cambiado es la manera en cómo nosotros la usamos. Eso que señala Omar por ejemplo, del aprecio del espacio público es importante, y paralelo a eso hubo una explosión increíble en el crecimiento del renglón segunda vivienda; por ejemplo, antes de esto en Casa de Campo tenían un inventario de más de mil y pico de casas que estaban en reventa; se vendieron todas y todos los proyectos tipo resorts han tenido un auge importante… vamos a decir que en ese sentido hay una inversión en otra parte del país que no se está haciendo en la ciudad solamente; o sea que realmente creo que el cambio está en como usamos la ciudad, no físicamente y yo no preveo un cambio significativo a corto plazo… Lo otro que ha cambiado también a mi parecer es el programa de diseño de todos estos desarrollos inmobiliarios que hay ahora, sustituyendo proyectos de apartamentos de tres y cuatro niveles por otro tipo de desarrollo, proyectos destinados a alquiler en la plataforma Airbnb que tienen una rentabilidad brutalmente alta. Es algo que me parece preocupante porque preveo que habrá menos diversidad en las comunidades con ese tipo de modelo de inversión, que es un modelo de inversión que preocupa también al sector hotelero; es un fenómeno nuevo que tiene un impacto negativo sobre la ciudad pero no es producto de la pandemia, corresponde a fuerzas económicas y, como dije antes, muchos capitales salieron de la ciudad a invertirse en segundas viviendas, de hecho muchas personas que hicieron esas inversiones todavía residen allá donde adquirieron esas viviendas. Entiendo básicamente eso, no habrá un cambio sobre la ciudad, simplemente en la manera en la que la usamos. El punto que señala Omar acerca de los deliveries es algo que se suma a una saturación que tienen ciertas partes de la ciudad como es el caso del Polígono Central, los accesos

1.¿Cuál ha sido el impacto de la pandemia sobre el desarrollo urbano de las principales ciudades dominicanas y si la inercia previa a esta ha seguido o se ha modificado en algún aspecto?

Omar Rancier: Lo primero que habría que definir es qué se entiende por desarrollo urbano? y eso no lo voy a contestar en este momento… en el sentido general de la pregunta, creo que hay poco tiempo para apreciar el efecto que la pandemia ha tenido sobre la ciudad; sin embargo, hay dos cambios importantes: primero, la apreciación del espacio público. La pandemia, -el estar encerrados- hizo que la gente tomara conciencia de la importancia del espacio público; y segundo el tema de la pandemia ha generado un sistema de pedidos, los llamados deliverys, que entiendo ha tenido un efecto negativo sobre la ciudad, porque los motoristas andan como chivos sin ley haciendo lo que les da la gana… En cuanto al aspecto de que, si la empresa privada sigue interviniendo en esta dinámica, yo pienso que la empresa privada siempre va a intervenir en la dinámica de la construcción física y social del espacio urbano. Pienso que hay que evaluar no sólo el tema de la participación privada, sino de la participación de toda la sociedad. Nosotros estamos en un proceso de expansión urbana increíble; en los últimos diez años nosotros hemos tenido un desparrame de la ciudad sobre el territorio de más de un sesenta por ciento; esto es mucho y tiene un costo, sobre todo los sistemas de la ciudad. Pienso también que es muy temprano para saber si hay una ciudad dominicana que haya sido modificada por el impacto de la pandemia… la pandemia inició hace dos Zoom: una mirada abierta sobre el fenómeno urbano en RD

3.¿Existen aspectos de la relación entre el sector público y la empresa privada que valga la pena destacar?

4.¿Qué ciudad dominicana se ha transformado a partir de la situación de pandemia que se inició en 2020?

Luis Sabater Musa lsabaterm@a20arquitectos.com

Eric Michelen Stefan ericmichelen72@hotmail.com de los puentes, etc. Entiendo que la infraestructura se está quedando atrás del nivel de desarrollo que demandan los proyectos, eso es muy preocupante. Cuando vemos todos estos reglamentos: la 94/98, los estudios técnicos, las propuestas del Plan de Territorial - POT Capital 2030 por ejemplo-, vemos que se habla de incremento de densidad y se menciona el tema de la infraestructura, pero la impresión que tengo es que las autoridades lo único que están haciendo es abriéndole la llave a la densidad, pero no tenemos ninguna propuesta de mejoría a la infraestructura o a la movilidad. Esos son, a mi parecer, los problemas grandes que tenemos ahora. Me parece que la APP o ley de alianza público-privada es algo muy interesante. Otra cosa que me llama la atención es que hay mucha gente trabajando de manera voluntaria para proyectos en la ciudad. Esto es algo que, por lo menos yo no tenía conciencia de que habían tantas iniciativas pero sí, hay muchas iniciativas particulares para intervenir en diferentes sitios, ayudar en temas de paisajismo; yo por ejemplo, pertenezco a un grupo que trabaja lo que sería el Desig n District; Traza_Do por ejemplo es una iniciativa muy interesante también. Eso es algo nuevo yo personalmente nunca había visto ese fenómeno en acción…

Jesús A. Rosado Uribe jaru_41@hotmail.com Miguel Marte Migueldanielmvcg@gmail.com

Eduardo Sánchez chichiguas@yahoo.com

“bueno, aquí en Santo Domingo Este, hace falta un centro que sea el generador o motor de desarrabalización de la zona…” y así como en otros pueblos la temática es la pelota, o cualquier otro deporte, aquí la idea es llevar el desarrollo de la cultura como agente de evolución social. En ese otro proyecto que estamos planteando al lado, utilizando al Palacio de Justicia como motor de dinamismo ciudadano. Este proyecto nuevo se plantea como un parque con intervenciones arquitectónicas dentro de el, privado… de carácter privado y de carácter público siempre con la visión de que el privado permita sostener el público. En ese sentido, una de las cosas públicas que vamos a integrar son una sucursal de la Biblioteca Nacional, acorde con lo que se considera una biblioteca en estos días, una sucursal de Bellas Artes, un pequeño anfiteatro y un sinnúmero de cosas que aparte de lo privado, que son el sostén económico que permiten que la ciudadanía haga un uso masivo de eso; ya sí como en la Plaza Colón hay conciertos musicales, aquí lo hagan unos muchachos que están estudiando. Se crearán un sin número de sinergias que se suscitan al tener juntas instituciones públicas, donde el ciudadano tiene que acudir a resolver ciertos asuntos con áreas de esparcimiento y por otro lado fomentar la cultura… entonces con la Ley de Alianzas Público-Privadas se nos permite a nosotros en cualquier pueblo y ante cualquier situación que detectemos, hacer una propuesta y someterla… y si es declarada de interés público, el tema de honorarios propios de la propuesta son resarcidos independientemente de que se vaya luego a concurso o quien vaya a hacer la ejecución, etc. Lo que nos permite a nosotros como arquitectos, realmente en gran medida -que yo entiendo que no teníamos antesponer nuestra creatividad al servicio de la ciudadanía y someter propuestas que no requieren que uno mismo busque inversionistas multimillonarios, sino que el gobierno pueda asumir una parte dentro de un marco económico de un modelo de negocios viable. Creo que es una oportunidad única y que a nosotros nos está dando resultados. La administración actual del estado está muy a favor de ese esquema.

Luis Sabater Musa: Nosotros tenemos una opinión precisa aquí en A20 Arquitectos…

Nos hemos dado cuenta de dos cambios a partir de la pandemia, son pequeños, no son tanto a nivel de ciudad, pero el programa arquitectónico que nos están pidiendo los desarrolladores después de la pandemia, ahora involucra mucho espacio abierto dentro de un apartamento o dentro de un complejo o pequeña urbanización; y también está involucrando el home office y esos centros comunes ya sea en un edificio o en un complejo de casas, donde la gente tenga un business center y pueda trabajar remoto.

Ese nuevo ingrediente, quizás en cuatro años empiece a ser muy común, una vez se construya todo eso… Lo otro que hemos visto, es un incremento de desarrollo en la zona del este para la inversión, ni siquiera para segunda vivienda; nosotros hemos manejado ya muchos proyectos de 100, 200 y hasta 500 unidades habitacionales, pero que están dirigidos a un target de compradores internacionales, ni siquiera se mercadean aquí en República Dominicana. Le ponen los apartamentos a una tasa muy

Ordenamiento

Carlos Jorge: Quizás estoy equivocado, pero a Nuevarquitectura lo veía como un proyecto intelectual, lo veía como un proyecto de divulgación de los temas de arquitectura en sí. Lo que veo ahora es que estos esfuerzos tienen el apoyo de las instituciones, hay una mejor relación con el gobierno, con las autoridades. Es otra sociedad, es más abierta… ese es mi parecer…

Paul Toca: Mi intervención va en sobre todo a la relación entre lo que es gobierno, la municipalidad, el proyecto privado, etc.… coincido con el Arq. Omar Rancier en que el producto de la pandemia, si bien es muy temprano para ver cambios a nivel de la ciudad, si se percibe un cambio de uso o un re-uso del espacio público que antes no tenían esa intensidad; claro esto es propio del encierro. Creo que esto va a permear indiscutiblemente en los próximos desarrollos; ya por ejemplo hay proyectos que antes no eran comunes, como por ejemplo ese proyecto del malecón, creo que Murales se llama, que ya lo que plantea más que otra cosa, es un gran parque, una rambla donde caminar. Varios proyectos están bastante orientados en ese sentido. En relación con la municipalidad o el gobierno y la empresa privada, creo que estamos en una época dorada o el inicio de una época dorada, porque con la ley de APP se permite a los arquitectos ser los generadores de ideas de desarrollo de la ciudad. Nosotros estamos viviendo la experiencia de ser los diseñadores del Palacio de Justicia de la Provincia de Santo Domingo Este, que es un proyecto bastante grande, pero inmediatamente al lado estamos en el proceso de someter otro proyecto de igual envergadura; estoy hablando de tres mil o cuatro mil millones de pesos donde hemos sido nosotros los que decimos:

Omar Rancier orancier@gmail.com

Gustavo Luis Moré: Bueno, desde el Grupo Nuevarquitectura eso existe…

Pero sobre todo también creando normas complementarias para que los ayuntamientos que no tengan planes, ni reglas, ni normas urbanas, tengan también un instrumento de planificación. La idea es que pueda salir este año, vamos a ver, obviamente es una ley que afecta muchos intereses... se está tratando de sacar un documento lo más correcto posible.

AAA 082/18 interesante para que el extranjero lo compre a modo de inversión y lo alquile a modo de Airbnb a personas locales que migran de las principales ciudades a vacacionar, e incluso a otros turistas de Europa o Estados Unidos que viajan a hospedarse en esos centros de inversión. Nosotros no sabemos cómo funciona eso porque es tan abundante y sentimos que está generando una gran masa de ciudad que no sabemos cómo funcionará a nivel de Airbnb solamente… estamos hablando de complejos grandísimos como Vistacana o todo lo que está sucediendo detrás del área de Coco Bongo ahí en downtown Puntacana. Básicamente es lo único que hemos visto que ha cambiado a raíz de esta situación de pandemia.

Omar Rancier: La tuya es una excelente observación que se puede plantear en las normativas municipales. Eso debe manejarlo el municipio. Creo que la tuya es una excelente observación que discutiremos.

Miguel Marte: Obviamente hubo un impacto del poder adquisitivo del dominicano, que en general disminuyó. Los constructores se dieron cuenta de ello tempranamente y entiendo que hubo una transformación en el tema inmobiliario; ese impacto se tradujo en muchos aspectos. Uno de ellos resultó en que los constructores optaran por unidades más pequeñas… En Santiago, donde tenemos la mayoría de nuestros proyectos, se mantuvo el empuje en cuanto a las terminaciones, pero se ofrecieron unidades más

Alejandro Marranzini: Yo creo que todo se ha dicho y se ha abarcado casi todo. Creo que hay una dinámica importante en lo que es el urbanismo; creo que finalmente no es una palabra solamente ya de arquitectos, aunque no todos sepan lo que es; ya la gente comienza a tratar de indagar un poco más sobre ello, o sea que hay una oportunidad buenísima en ese sentido con lo que está pasando ahora y tiene que ver mucho con la situación de la conectividad de la ciudad, que definitivamente se está dislocando y no creo que sea tan fácil resolver. Ese comportamiento va a causar que la ciudad se segregue por zonas, ¿no?... O sea, el que vive debajo de la 27 de febrero ya vive debajo de La 27 y hace su vida en ese territorio, el que vive al norte trata de hacer su vida al norte y eso pasa en muchas ciudades, tampoco podemos decir que es algo que no es normal, pero ya es algo que indica que hay diferentes territorios y cada territorio, tiene sus zonas de servicios. Se está generando ese tipo de situaciones que es bueno identificarlas, y comprender como se comporta el mercado alrededor de eso. Me está interesando mucho la manera de tratar de entender las situaciones que se están dando en el mercado inmobiliario, a nivel de qué tipo de productos están saliendo; yo sé las microunidades con Airbnb como inversión, es algo que está de moda, pero al final del día… hasta dónde llega esa inversión? hasta donde la gente se va a quedar en Airbnb , cómo reacciona ese mercado? Son cosas que no tengo muy claras, pero creo que estamos frente a un buen momento, o sea, las cosas están arriba de la mesa. Paul mencionó los temas que tienen que ver con alianza público-privada, que sabemos que es un tema un poco complejo pero en verdad hay oportunidades; la gente está demandando calidad de espacio, seguridad, que también es un tema que hay que tener a la vista, el de la dinámica de seguridad y creo que es un buen momento Cuquito, el que tú traes estos temas al frente del debate; en ese sentido cuenta con mi apoyo para poder tratar de crear una mesa de conversación, que produzca un documento que sirva para marcar donde estamos y hacia donde debemos de apuntar.

Carlos Jorge: Omar, quizás ustedes ya lo han pensado, pero a mí me llama mucho la atención que en todos los reglamentos urbanos que he visto, -las reglamentaciones del Polígono Central, diversos estudios, el POT (Plan de Ordenamiento Territorial) y otrossólo se preocupan por los aspectos numéricos, tales como la densidad, la altura, y no hay ningún tipo de referencias estéticas; y con ello no me refiero a crear un lenguaje de arquitectura ni nada por el estilo pero si, a guardar cierta coherencia con la continuidad de los edificios y la continuidad de la calle. Yo vivo en el Polígono Central y aquello parece un zoológico a partir de la mezcla de diferentes alturas, proyectos, tipologías… El tema de arte cívico hay que meterlo en los códigos, para que por lo menos los edificios sean compatibles y coherentes y den continuidad al tejido urbano.

Eric Michelén: Quizás no quiero expresar nada nuevo. Yo me identifico con lo que acaba de decir Sabater, porque está sucediendo ese fenómeno sobre todo del area del este; muchos proyectos nuevos de ese tipo de viviendas y apartamentos… pero también estamos comprobando dos cosas que él mencionó: el desarrollo mayor de una arquitectura biofílica, una arquitectura verde, una arquitectura proyectada hacia la naturaleza, ya que la gente lo está buscando conscientemente y también una vuelta a la casa unifamiliar; por lo que hay nuevos proyectos aquí en la ciudad que contemplan las viviendas, ya no en apartamentos. Eso se desarrolla a partir de la pandemia, a mi juicio se ha agilizado de una manera vertiginosa y que puede crean en algún momento, una dificultad, por ejemplo: en el caso de Cap Cana y Puntacana está creciendo con un orden, pero yo no sé si con la velocidad que llevan ellos puedan mantener el entorno urbano de una forma correcta, sin que eso cree un daño debido al crecimiento tan acelerado, porque es anormal el crecimiento. Nosotros podemos ir ahora y volver dos meses después, y encontrar un desarrollo extraordinario nuevo, que se sigue haciendo. En nuestro propio taller oficina aquí la mayoría de los proyectos que entran, tienen que ver con esa zona del este además de proyectos en Cabrera; no sabía que Cabrera tenía un potencial tan grande como aparentemente tiene, con un nivel muy alto de inversión, inversiones extraordinarias. En otro sentido, aunque no se nota ahora, independiente de los males de la ciudad que ya algunos han sido mencionados por Omar y otros por Carlos Jorge, yo creo que hay un mal que se avecina si no se planifica. Esos proyectos multifamiliares se están comenzando a realizar, ya no a un nivel de personas de bajos recursos sino de personas de altos recursos en la periferia de la ciudad. Yo he escuchado de proyectos en la Jacobo Majluta; nosotros estamos trabajando en un proyecto similar en otra zona… ¿Y qué va a suceder en el tiempo cuando la ciudad siga creciendo si nosotros no vemos una planificación urbana muy clara de parte de los organismos del estado? Esto va a redundar en un deterioro de los servicios no solamente en el Polígono o en el centro de la ciudad sino también en esa expansión tan acelerada que estamos mirando. Por otro lado yo creo que está influyendo otro factor que es económico; el dinero colocado en los bancos no está produciendo prácticamente nada, y muchas personas se están volcando a los bienes raíces para tener una seguridad en la inversión, lo que está provocando un desarrollo extraordinario pos pandemia, así como en la pandemia se detuvo todo, ahora se ha acelerado todo de una forma anormal y extraordinaria positivamente tanto para los desarrolladores como para los arquitectos. Ese es básicamente el aporte que puedo hacer, adicionando a lo que los demás han dicho, que creo que tiene mucho de verdad y mucha razón en lo que han planteado.

Omar Rancier: Antes de concluir quisiera agregar algo: uno de los fallos sistémicos graves es que no existen ni un marco legal, ni unos planes urbanos definidos. Se está trabajando en formular la Ley de Ordenamiento Territorial y Uso de Suelo, que trata de regular todos los temas que tengan que ver con la administración del territorio, incluyendo los temas urbanos, proveyendo instrumentos como el establecimiento de los límites urbanos, para tratar de detener o controlar el crecimiento de las ciudades.

MoréJoséGustavo©MoréJoséGustavo©

AAA 082/20 MoréJoséGustavo©

pequeñas. Eso en el ámbito inmobiliario, pero también en el ámbito urbano, y no sé si en otras ciudades sucedió lo mismo, aquí en Santiago los constructores empezaron a atacar la periferia y se han generado una especie de distritos en la ciudad. Debido a la inflación, los constructores optaron por buscar terrenos más asequibles, por consiguiente con terrenos más baratos, obtienen unas viviendas más pequeñas.

Eduardo Sánchez: ¡No Cuquito noooo, eso no lo queremos!!! Hay un tema… el otro día fuimos un grupo de Santiago y uno de Santo Domingo a Colombia e hicimos una comparación analítica Santo Domingo / Bogotá / Medellín / Santiago… y toda la infraestructura de movilidad que está introduciendo Santiago con el monorriel-teleférico es un poco Medellín en versión cibaeña más o menos… Ojalá eso salve un poco la dispersión territorial…

Gustavo Luis Moré: Esta conversación confirma algo que ya habíamos discutido en AAA a nivel de nuestro equipo editorial, y es que estamos ante un buen momento para la ciudad, que a pesar de la pausa que impuso la pandemia del COVID, se está produciendo mucho trabajo con nuevos requerimientos de calidad que los profesionales de la arquitectura estamos asumiendo. A todos ustedes les agradecemos habernos acompañado en esta mañana y haber compartido sus ideas.

Gustavo Luís Moré: Jesús, ¿has visto el mismo efecto en alguna otra ciudad del Cibao? Jesús Rosado: No de manera tan trascendental como en Santo Domingo, Santiago o Punta Cana… algo quizás muy moderado, pero nunca al nivel de esas ciudades.

Gustavo Luis Moré: Eso quiero preguntar, porque en la reciente edición de AAA de Santiago hemos visto cosas muy novedosas en la arquitectura santiaguera; no solamente la implantación urbana ha sufrido un cambio sino también la arquitectura… Eduardo Sánchez: Hay un tema ahí Cuquito, muy interesante que también tuvo un gran impacto durante la pandemia y es que la gente empezó a valorar, y así como dice Miguel hubo un problema con el poder adquisitivo, pero también la gente empezó a valorar el tema de la vivienda y el caso de las casas volvió a tener auge porque la gente volvió al jardín, a convivir, no ya en un espacio cerrado sino en un espacio más abierto, más en contacto con la naturaleza y eso nos ha permitido también aquí llevar ese formato -digamos de espacio abierto-, de terraza y de jardín, de espacio intermedio; de volver a retomar la galería, la terraza y el jardín y lo hemos tratado de incorporarlo a los apartamentos y por primera vez hemos podido introducir esa temática y convencer a los desarrolladores de que se puede vender la terraza como espacio rentable…

Jesús Rosado: Eso surge de la combinación -como dice Miguel- de la baja del poder adquisitivo y el hecho de que en la pos pandemia la gente quiso volver a la casa; pero cuando se encuentra frente a la realidad de un poder adquisitivo reducido y se enfrenta a los precios mayores de una casa individual, los arquitectos hacen esa combinación de terrazas en los apartamentos. Eduardo Sánchez El tema de la segunda vivienda en Jarabacoa ha tenido mucho impacto. ¡Hoy Jarabacoa verifica un boom extraordinario, como nunca!!! Miguel Marte: ampliando en lo que Eduardo dijo, nosotros vimos que hubo un tema psicológico que quedó impregnado en todos los dominicanos post pandemia y -lo que decía Eduardo, se empieza a valor el jardín- y nosotros como firma, lo que hicimos fue jugar un poco con esa condición psicológica que había; empezamos a experimentar nuevas tipologías con el tema de los patios; por ejemplo ya de repente los proyectos no tenían esas grandes amenidades comunes, sino que las fragmentábamos a cada unidad; empiezan a ser más pequeñas, pero disgregadas en el mismo producto; empiezan a surgir las viviendas en hilera fruto de la inflación, viviendas pequeñas o edificios y proyectos de usos mixtos y un sin número de cosas a las que yo llamo “experimentos” que se han ido adecuando y han ido dando buenos resultados.

Gustavo Luís Moré: Generalmente esas redes tienden a estabilizar esos procesos…

Eduardo Sánchez Miguel señaló que donde ha tomado fuerza el desarrollo urbano, es la suburbia. Este valle donde se sitúa Santiago es muy productivo agrícolamente; y estamos perdiendo mucha tierra agrícola en pos de la urbanización inmobiliaria. Nosotros siempre hemos querido promover la verticalidad y una densidad sana, la densificación del tejido urbano. Ahí es que tenemos que hacer acuerdos con la municipalidad.

Miguel Marte: No, no, no, no… eso fue realmente desde el sector privado; obviamente, hubo un apoyo al final de la pandemia, de las instituciones del estado, cuando se empiezan a flexibilizar las normativas y la permisología. En Santiago empiezan a surgir áreas donde no se permitían ciertas alturas, y para fomentar ese desarrollo, se empiezan a permitir más alturas y a permitir mayores linderos. Digamos que en un solar en el que te permitían 12 niveles, ahora te permiten 16; asi puedes contrarrestar un poco el golpe o la carga que trajo toda la pandemia. Entonces surgen en estos sectores, como dije antes, a hacerse proyectos de unidades más pequeñas; los constructores que estaban acostumbrados a hacer unidades de 250 metros 2 ahora estan haciendo 175, porque ese es su público, es su target … igual los proyectos que estaban en construcción o en ejecución; aquí habían muchos proyectos de apartamentos grandes que tuvieron que reinventarse en el proceso y rediseñarse, reducirse por el mismo impacto de los costos. Ahí vino de una vez el impacto de los chinos, y nuevamente tenemos el tema de la guerra en Ucrania que, aunque no lo estamos sintiendo, ya sería otro tema, pero igual es parte de lo que está viviendo la ciudad. Otro tema que ocupa a los técnicos, a los arquitectos, es el tema del abordaje de los proyectos para que los mismos sean rentables por los aumentos drásticos de costos y obviamente para los constructores, el primer ataque va a ser a la edificación en sí. Básicamente estamos en un proceso de reinvención de todos los factores que influyen en el desarrollo inmobiliario de la zona: las instituciones, los técnicos y los desarrolladores estamos en un proceso de reinvención… Gustavo Luís Moré: ¿Ustedes piensan que el proceso de diseño-construcción-venta es un proceso sano o sea, se están dando buenas ventas, los proyectos están siendo exitosos? Creen que esa tendencia seguirá en Santiago?

Miguel Marte: Yo entiendo que sí, siempre y cuando esa reinvención sea eficiente. Han surgido muchísimos proyectos bajo esas condiciones. El tema de la guerra nos fuerza a ser más creativos en nuestro trabajo. Obviamente se ha dado un aumento drástico en la construcción y básicamente los promotores han seguido activos todos. En el caso de nosotros como firma de arquitectura y las inmobiliarias con las que trabajamos que son varias, seguimos iguales; el único punto es ese factor: estar conscientes de que el poder adquisitivo del dominicano bajó y las unidades ahora tienden a ser más pequeñas. También empiezan a surgir nuevos modelos de proyectos y de diseños…

Gustavo Luís Moré: ¿Eso fue promovido desde el Ayuntamiento?

Miguel Marte: Estamos sujetos a una normativa que en cierta manera no tiene sentido porque hay muchas disposiciones que te limitan en altura sin ningún sentido. Nosotros tenemos métodos constructivos que nos permite subir al nivel que queramos, pero ellos han sectorizado y hay un tema de interpretación y como dice Eduardo se ha creado una ciudad de desplazamientos largos, muy horizontal. El valle, el área productiva, se está llenando y se están creando distritos por todos lados.

Eduardo Sánchez: La inserción de infraestructuras como el aeropuerto y esta red hospitalaria hacia el este….

Gustavo Luís Moré: A ustedes les va a tocar una santodominganización de Santiago…

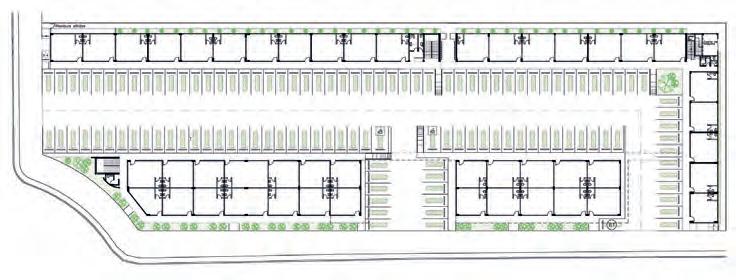
Campus Financiero BHD P. Piña & Asociados / Arq. Ja’El García MoréJoséGustavo©

También a nivel soterrado, aunque usando una cota más alta y usando el mismo acceso de seguridad, se acomodan el estacionamiento de ejecutivos y el estacionamiento de seguridad que forman parte del Centro de Operaciones contiguo.

Como eje normativo de este nuevo Centro de Operaciones se debía proyectar que, tanto este como los demás edificios que arrojase el plan, debían tener un marco de diseño basado en exigentes parámetros de sostenibilidad, tanto para la arquitectura como para las instalaciones técnicas de estas construcciones.

AAA 082/24Campus Financiero BHD P. Piña & Asociados / Arq. Ja’El García

- La fase A sería la construcción de un edificio de estacionamientos en la margen norte, sobre la Luis F. Thomen, lo cual liberaría espacio del territorio para el resto del -desarrollo.LafaseB la constituiría propiamente el Centro de Operaciones, que aprovecharía el espacio liberado por la consolidación de los estacionamientos y la demolición de la estación de servicios, proyectado sobre la avenida 27 de Febrero. - Y la fase C que sería la integración de un bloque que uniera los primeros pisos del Edificio Sur y la Torre BHD, desplazando el estacionamiento actual a un soterrado y definiendo un frente de carácter peatonal para todo el entorno de los edificios.

- La ubicación del equipamiento de infraestructura de servicios (comunicaciones, eléctricas, mecánicas y sanitarias) con capacidades para el futuro desarrollo de la manzana completa y ocupando espacios apropiados dentro del conjunto.

Este conjunto quedaría ya integrado por un paseo peatonal interno y la configuración de una plaza en el centro del espacio promoviendo la conexión con todos los edificios antiguos y nuevos.

Este anteproyecto definía tres fases de desarrollo:

De esas tres fases de la primera etapa, el Banco resuelve encargar para ejecución las fases A y B del anteproyecto.

Fase A Edificio de Estacionamientos e Infraestructura

En los niveles soterrados se han acomodado todas las instalaciones de servicios técnicos de soporte al conjunto completo de edificios, con capacidad para todas las fases de la primera etapa y con expansión para las etapas futuras. Estos servicios incluyen las subestaciones de interconexión eléctrica, los generadores de emergencia y el sistema de reserva de combustible. Los tornillos del sistema de chillers para el proyecto mecánico, las reservas de agua, los equipos de bombeo y la planta de tratamiento de aguas residuales. Así como un sistema de túneles de servicios que conectaran las instalaciones con los edificios del conjunto. Todo el piso técnico tiene acceso vehicular de servicio desde la avenida 27 de Febrero.

El edificio de estacionamientos es una estructura de nueve pisos sobre el nivel de la calle y un nivel soterrado. Está ubicado en la margen de la calle Luis F. Thomen.

Este plan maestro debía integrar la eventual adquisición de cuatro lotes que en ese momento aún no eran propiedad del Banco y que definían un territorio disponible de mayor tamaño en colindancia con los edificios preexistentes, Edificio Sur y la Torre BHD.

- La eventual incorporación de una nueva torre de oficinas (de uso interno o de explotación inmobiliario) proyectada como paso culminante en el desarrollo de los territorios no colindantes en el momento de la confección del plan.

La confección del plan maestro se configuró sobre la base de las vocaciones predominantes de cada frente de calle, dando prioridad a la adecuada integración con los edificios existentes y enfatizando los aspectos de seguridad.

Esta última fase de la primera etapa tendría unos desarrollos complementarios cuando la incorporación de la Torre se pudiera completar integrando los estacionamientos existentes a nivel soterrado y ampliando el nuevo edificio de estacionamientos.

Para conseguir adecuadamente este cometido, se encarga, de forma adelantada, la confección de un plan maestro de desarrollo para todo el territorio de la manzana comprendida entre las avenidas 27 de Febrero al sur y Winston Churchill al este, y las calles Luis F. Thomen al norte y Emiliano Tardif al oeste.

Entre las consideraciones que se tomaron en cuenta para el plan maestro, se encuentran:

- El predominio de un carácter peatonal para el entorno de los edificios y la consolidación de una circulación peatonal que use predominantemente el centro de la manzana para conectar con todos los edificios del conjunto de manera más segura, evitando las circulaciones periféricas actuales.

- La proyección para futuras ampliaciones de cada edificio en relación con los alcances establecidos en el momento.

- El incremento de la demanda de estacionamientos tanto para colaboradores como para clientes y visitas, y la necesidad de que esto se resolviera en un edificio de multipisos que ocupara una huella contenida en el conjunto.

Motivado por la necesidad de renovar las instalaciones de su centro de cómputos e integrarlo en una estructura diseñada especialmente para ese uso y el de otros equipamientos críticos similares, a partir del 2010, el Banco BHD se propone agregar al conjunto de edificios existentes su nuevo Centro de Operaciones.

- La integración de un bloque que une los primeros pisos del Edificio Sur y la Torre BHD estableciendo la nueva plataforma de servicios financieros y configurando una continuidad de fachada construida en el borde de la avenida Winston Churchill.

Fases de desarrollo Fruto de los estudios establecidos en el plan maestro, se desarrolló en nivel de anteproyecto arquitectónico, todo el territorio consolidado y colindante con los dos edificios existentes en lo que se establece como primera etapa y que implicaba la demolición de algunas estructuras habitacionales adquiridas, así como de la estación de autoservicios y la integración de la estructura preexistente del parqueo ejecutivo (torrecita).

- La incorporación de una estación de autoservicio con todas las comodidades de la atención automatizada.

En el primer nivel, hacia la calle, acoge los accesos vehiculares a los estacionamientos y las instalaciones del Autobanco BHD, y hacia el interior una marquesina vehicular y peatonal donde se ubica el dispensario médico, los estacionamientos preferenciales y la cafetería de empleados.

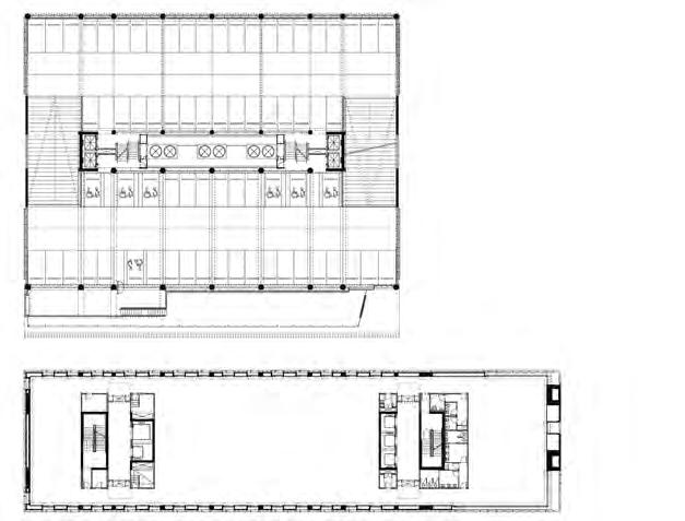
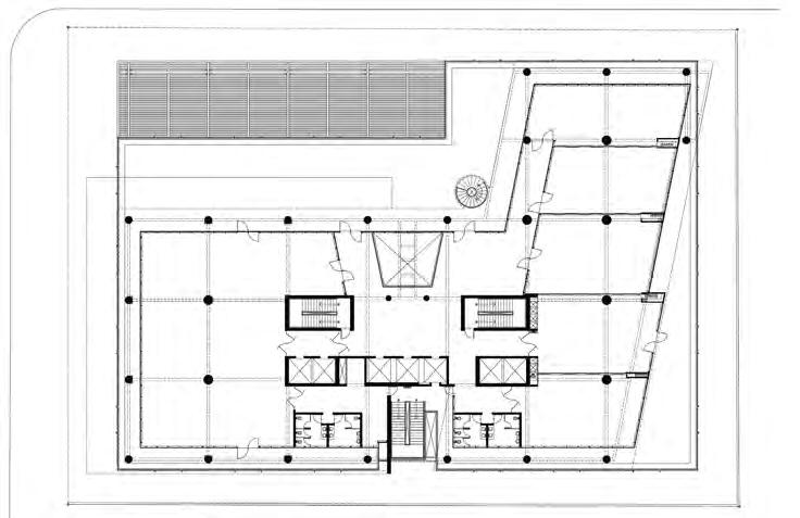
La capacidad total es de 543 estacionamientos para empleados y clientes, 25 estacionamientos de ejecutivos y 17 estacionamientos de seguridad. El área total de construcción del edificio de estacionamientos es de 23,368.00 m 2 Fase B Centro de Operaciones El Centro de Operaciones es una estructura de hormigón armado de cuatro pisos, tres de ellos sobre el nivel de calle y uno soterrado. Con un total de área de construcción de 6,815.38 m2 Se encuentra ubicado en el borde sur de la manzana, sobre la avenida 27 de Febrero, estableciendo una continuidad volumétrica con el primer edificio del conjunto (Edificio Sur) de la esquina con la avenida Winston Churchill. Es un edificio de planta rectangular con doble núcleo de circulación vertical, un esquema de planta libre con apoyos en los bordes y circulaciones periféricas. Se trata de un edificio diseñado específicamente para tener las prestaciones estructurales y los sistemas constructivos que garanticen la mayor seguridad al albergar los equipamientos operativos más críticos del Banco.

En el nivel de techo se han incorporado unas estructuras metálicas que cubren la mitad del área y que dan soporte a los paneles fotovoltaicos del proyecto de energía solar.

Cada planta típica tiene un área de 2,210.00 m2 y acomoda 72 estacionamientos.

A partir del segundo piso se empiezan a desarrollar los pisos típicos de estacionamientos, en una sucesión de plantas a medio piso de diferencia de altura con una separación o patio de ventilación central donde se acomodan dos núcleos de circulación vertical con elevadores y escaleras, y por donde se han ubicado las extracciones de ventilación de los generadores del piso técnico.

En su expresión arquitectónica muestra esa condición de bunker de uso interno, en una composición donde predomina el nuevo material de revestimiento de terracota industrial, tanto en placas ventiladas como en baguettes similares a las usadas en el edificio de estacionamientos, integrando este nuevo material a un basamento de hormigón expuesto, ya presente en los edificios previos del conjunto.

En el primer nivel, establecido a casi metro y medio por encima de la rasante de la calle, el edificio alberga las instalaciones del centro de cómputos (data center) integrando una sala blanca, un centro de monitoreo y todas las dependencias conexas a esta edificación.

En el piso soterrado se desarrollan todas las dependencias de seguridad y bóvedas, integrando los accesos vehiculares restringidos desde la avenida 27 de Febrero, e interconectando sus dependencias con el piso soterrado del edificio de estacionamientos y con la estructura preexistente del estacionamiento ejecutivo (torrecita).

En el techo de este edificio se ubican instalaciones de los sistemas generales de climatización y una gran extensión de estructuras de soporte para paneles fotovoltaicos, que otra vez se muestran como parte integral de la composición arquitectónica, ahora convertidos en una cornisa en voladizo sobre el antepecho.

Los pisos segundo y tercero albergan los equipos de trabajo de soporte para los departamentos especiales instaurados en el edificio, destacando los relacionados con la automatización de cheques y estados de cuentas, y de embozado de tarjetas de crédito.

Recinto consolidado A consecuencia de la adquisición de los lotes pendientes de la manzana, durante el periodo de proyección y construcción de las dos fases definidas, antes de concluir la construcción de la fase B, el Banco encarga la ejecución del proyecto de verja perimetral que debía abarcar la consolidación de la seguridad física de todo el entorno de la manzana, estableciendo los controles de accesos asegurados, y aprovechando para darle a la manzana un carácter de “campus integrado”.

Al alcance original de este proyecto de la verja perimetral se agregó la incorporación del entorno de la Torre BHD, con una intervención que le cambia el carácter original, eliminando los parqueos del frente, y estableciendo un pavimento peatonal para el entorno que lo homologa con el del Edificio Sur.

Este proyecto debía abarcar, además de la construcción de los límites físicos del territorio, la reconstrucción y ampliación de las aceras públicas circundantes, la arborización e iluminación de estas y la definición de un área de estacionamiento a nivel de calle en la margen oeste de la manzana que se considera como territorio de futura expansión del conjunto.

El nuevo material de la terracota se usa en la verja como basamento de manera que ahora enmarca, como en una bandeja, los edificios originales de hormigón, insistiendo en este diálogo entre hormigón y terracota al que se le suma el aluminio como elemento complementario en todos los edificios.

Diseñado bajo un esquema de máxima eficiencia, se trata de un edificio con total ventilación natural, cuya “piel” está conformada por una composición de barras rectangulares de terracota (baguettes) en una distribución modular horizontal, combinada con muros y columnas de hormigón visto, que se ve rematado por el sinuoso coronamiento de las estructuras de soporte de los paneles fotovoltaicos, que son el elemento que define en mayor medida su expresión arquitectónica.

Planta

arquitectónica de techo op y estacionamiento Planta arquitectónica 2do nivel op y estacionamiento Planta arquitectónica del conjunto del Campus

Elevación estacionamientos Sección transversal Elevación

MoréJoséGustavo©

AAA 082/30 MoréJoséGustavo©MoréJoséGustavo©

MoréJoséGustavo©MoréJoséGustavo©

MoréJoséGustavo©

MoréJoséGustavo©

MoréJoséGustavo©

AAA 082/38 MoréJoséGustavo©©GustavoJoséMoré

Diseño de Interiores P. Piña & Asociados Diseño de Iluminación Arq. Gina Calventi Diseño Paisajístico P. Piña & Asociados Sistemas Seguridad y Contraincendios FireTech Corp. Sostenibilidad Arq. Alejandro Matos (ADDS)

Consultor Data Center Ingenium, Costa Rica Contratista General Nuristan, SRL Supervisión Alfau Constructora, SRL P. Piña & Asociados Instalaciones Eléctricas CONELCA, S. A. Instalaciones Sanitarias INICA, SRL Instalaciones A/A Grupo CEMCA, SRL Sistemas de Seguridad INPROTEC, SRL Sistemas de Comunicación Mateo Comunicaciones

Proyecto Campus Financiero BHD Propietario Banco BHD Año Inicio Diseño 2010 Año Inicio / Término Obra 2012-2022 Área Total de Construcción 28,180 m2 Área del Solar / Lote 18,031.20 m2 Diseño Arquitectónico P. Piña & Asociados Arq. Plácido Piña Empresa P. Piña & Asociados Colaboradores Arq. Pablo de la Mota Firma Asociada J. García Martínez & Asociados Arq. Ja’el García Martínez Arq. Elaine Abréu (arquitecta asociada)

MoréJoséGustavo©©GustavoJoséMoré

Consultor Sanitario Ing. Magda Duarte (VD & A) Consultor Sistemas de A/A Ing. Rafael Parés (RAP Consulting Ing.Engineer)Carlos Socías (CJ Socías & Asociados)

Consultor Estructural Ing. Reginald García Consultor Eléctrico Ing. Felipe Paulino (STEMSA, SRL)

Hábitat Center Torre de Usos Múltiples (HCTUM) Gustavo Luis Moré / Moré Arquitectos SRL MoréJoséGustavo©

Los cuatro bloques descritos son resueltos por medio de un núcleo de circulación vertical de altísima eficacia y rigidez estructural, situado centralmente respecto al eje este-oeste del conjunto. Además, todo el proyecto es concebido como un desarrollo de alta eficiencia energética, siguiendo todos los lineamientos y normas nacionales e internacionales. El elemento verde ha sido considerado como fundamental en la imagen del edificio, siendo potenciado como parte integral del ambiente de los espacios interiores y como elemento estéticamente activo en la configuración general del desarrollo.

Las siguientes plantas tendrán el uso corporativo para grandes empresas nacionales e internacionales, incluyendo los dos niveles superiores correspondientes al pent-house de la torre. La torre tendrá un total construido de aproximadamente 6,000 m2 Una torre residencial de planta rectangular con su eje mayor en dirección noreste – sureste, que se levanta 7 niveles por encima del nivel 3, con uso hotelero. Esta torre cuenta también con un lobby a nivel de avenida, y una serie de amenidades y servicios en su nivel superior.

Es una construcción eco amigable y eficiente en el manejo de la energía. Por otro lado, la certificación LEED está en proceso, no se ha obtenido todavía. En el caso de Hábitat Center se persigue la certificación LEED V4 for BD+C: Building Core and Shell nivel GOLD emitida por el USGBC (US Green Building Council). Este certificado, basado en estándares científicos, toma en cuenta temas como la ubicación, la eficiencia del uso del agua y energía, la selección de materiales sostenibles y la proporción de calidad medioambiental interior.

Una torre comercial o corporativa de oficinas en forma de paralelepípedo de planta prácticamente cuadrada con frentes hacia los cuatro puntos cardinales, elevándose a 12 niveles (15 niveles convencionales) con respecto al nivel avenida. Los dos primeros niveles alojarán una sucursal bancaria, mientras que el tercer nivel tendrá un uso cultural y comercial.

AAA 082/42Hábitat Center Torre de Usos Múltiples (HCTUM) Gustavo Luis Moré / Moré Arquitectos SRL

Al igual que su torre hermana, este volumen presentará un total aproximado de unos 5,600 m2 de construcción. Los tres primeros niveles de la torre residencial contendrán un bloque de locales comerciales a manera de cuerpo bajo que servirán de complemento a los usos residencial y corporativo, donde se podrá contar con restaurante, diversos locales comerciales, así como el lobby principal, los salones y el resto de las instalaciones del hotel. Este volumen comercial de tres niveles presentará aproximadamente un total de 1,500.00 m2 de construcción.

Un espacio abierto hacia la ciudad se sitúa en el ángulo noroeste del conjunto a nivel de la avenida, creando un vacío de gran expresividad y elegancia en este bullicioso enclave urbanístico, otorgando al desarrollo la capacidad de integrarse a la visual y a los recorridos dentro del paisaje urbano, y brindando una suerte de plaza techada a la ciudad. Las fachadas Planta arquitectónica sótano

son tratadas con identidad propia; la torre de oficinas con un lenguaje definitivamente moderno, tecnológico, introduciendo láminas de vidrio de altura total entre losas, protegidas por un sistema de doble panel de cristal con capacidad reflectiva y una cámara aislante de argón en las exigentes fachadas sur, oeste y parte de la norte; a su vez, la torre de hotel posee un lenguaje más discreto, opaco, fundamentado en una retícula de hormigón blanco con huecos cuadrados cerrados por vidrio, que resuelven con enorme simplicidad los requerimientos de exposición al exterior de las unidades habitacional.

La obra fue culminada en 2022. Fuimos referidos como arquitectos del proyecto por el grupo desarrollador original. La dirección de la obra ha sido encargada al arquitecto venezolano Xavier Sarría, con un sólido equipo de profesionales locales y extranjeros a su lado.

Este proyecto fue planificado para su construcción en dos lotes contiguos situados en la avenida Winston Churchill esquina Paseo de los Locutores en Piantini, con una superficie total de 3,666.33 m2. El desarrollo inmobiliario se constituye como uno de los primeros en su estilo en la ciudad de Santo Domingo, contemplando el uso mixto corporativo, comercial y residencial, para brindar una nueva calidad de vida a sus usuarios con una excelente ubicación y servicios de primera. El conjunto propone el desarrollo de cuatro bloques principales, que son: Cuatro niveles soterrados de estacionamientos y servicios con un total aproximado de 15,000.00 m2 de construcción.

Este proyecto se inscribe dentro del Fideicomiso Irrevocable de Desarrollo Inmobiliario Parque Hábitat que gestiona Fiduciaria Universal, filial del Grupo Universal, que desarrolla, administra y protege proyectos y activos, personales como empresariales, de manera autónoma, flexible, eficiente y comprometida. Igualmente, se corresponde con la visión del grupo empresarial de desarrollar inversiones considerando su retorno social y sus lineamientos de sostenibilidad.

Planta arquitectónica 3er nivel Planta arquitectónica 1er nivel Planta arquitectónica tipo 4 -6- 8 - 10 Elevación este Elevación oeste Elevación norte Elevación sur Planta arquitectónica 11vo nivel

AAA 082/44 MoréJoséGustavo©MoréJoséGustavo©

MoréJoséGustavo©

MoréJoséGustavo©

MoréJoséGustavo©

MoréJoséGustavo©©RicardoMesson-Animatox

AAA 082/50 MoréJoséGustavo©©GustavoJoséMoré

Promotor Grupo Privado Propietario Fideicomiso Irrevocable de Desarrollo Inmobiliario Parque Hábitat, Centro de Usos Múltiples. Dirección y Gerencia de Desarrollo Inmobiliario y Construcción Constructora Parque Hábitat Inc. Dirección Técnica Operativa y Administrativa: Arq. Xavier Sarría. Dirección Ejecutiva y Financiera Ing. Álvaro Aranda. Ingeniero Residente Ing. José Manuel Martín. Asistencia Técnica Ing. Adriana González. Supervisión en Obra Ing. María Rosalía Valdez. Analista de Presupuestos, Compras y Contratos Ing. Yurismil Mirambeaux y colaboradores. Diseño Arquitectónico Arq. Gustavo Luis Moré, Moré Arquitectos SRL Colaboradores Arq. César Leroux, Arq. Manuel Flores, Int. María del Mar Moré, Arq. Gustavo José Moré. Consultor Estructural Ing. Luis Abbott Consultor Sanitario Ing. Magda Duarte Consultor Instalaciones Electromecánicas Ing. Carlos Fernández, Ing. Juan Manuel Castillo Asesor Arq. Xavier Sarría. Supervisión Externa Quaestus SRL. Ing. Winton Díaz Arq. Grisélida Figuereo Supervisión Estructural Ing. Luis Abbott. Instalaciones Eléctricas, Vox y Data, Control de Acceso, CCTV, Detección de Incendios Troncoso y asociados. Ing. Albert Troncoso y colaboradores; CMD; Inprotec; Xolusat. Instalaciones Mecánicas y Climatización Airmaster SRL. Ing. Johnny Domínguez y colaboradores. Instalaciones Sanitarias Coydisa - Ing. José Ariza Durán, Ing. Yuri Ariza Espinal y colaboradores Consultoría y Gestión LEED INDICES: Arq. Neiquel Filpo. Ambientación de Espacios Interiores y Exteriores Sánchez & Sánchez - Arq. José Antonio Sánchez y colaboradores, Arq. Xavier Sarría y Arq. César Leroux Mobiliario y Decoración Arq. Ramón Emilio Jiménez Paisajismo Tábora & Tábora. Arq. Andrés Tábora y colaboradores; Arq. Xavier Sarría y Arq. César Leroux. Diseño de Iluminación y Suministro de Lámparas, Luminarias y Reflectores Cooper Lightning USA; Troncoso y Asocs; Arq. Xavier Sarría. Diseño de Señalización Elephant SRL. Sr. Noel Pabón. Arte Urbano Sr. Fernando Varela. Contratistas y proveedores: Contratista Estructuras de Acero: Fraquer EIRL- Ing. Indalecio Germán. Contratista de Estructuras de Hormigón Armado: Amarillo Soluciones Concretas SRL Ing. Frank García, Ing. José Antonio Dipré y colaboradores. Cerramientos Alivianados y Fachadas en Vidrio y Aluminio Facchada SA. Ing. César Espaillat, Ing. Fernando Ramos. Contratista de Fachadas Alivianadas y Cerramientos Internos Constructora Tangalle SRL. Ing. Joan Martín. Servicios Generales, Mampostería, Pintura y otras Terminaciones: Omotenashi SRL. Lic. José F. Azpúrua. Terminaciones en Hormigón e Impermeabilización de Superficie: Disiay Construcciones. Tec. Amaury Arredondo. Ascensores Setec SA – KONEIng. José Juan González. Colocación de Pisos y Terminaciones Joropa SRL. Ing. José Rondón. Suministro de Mármoles y Granitos, Porcelanatos, Teclam y otras Cerámicas Oximus Techos de Policarbonato Plásticos Comerciales. Señalización Señalización Total Sr. Alfonzo Estrella; Quality Signs. Jardinería y Ajustes Paisajismo Green

Animatox-MessonRicardo©©RicardoMesson-Animatox©RicardoMesson-Animatox

Proyecto Hábitat Center Torre de Usos Múltiples (HCTUM), Santo Domingo, República Dominicana Localización Avenida Winston Churchill esq. calle Paseo de los Locutores Fechas 2015-2016 (Obras preliminares) / 2017-2021 (Construcción)

Latitud 18° Ares Arquitectos / Hageco MoréJoséGustavo©

MoréJoséGustavo©MoréJoséGustavo©

En el tercer nivel se ubicarán los lobbies , salas de estar, áreas administrativas y de servicio de ambos hoteles; del nivel 4 al 19 se desarrollarán las 400 habitaciones. El Aloft cuenta con 12 habitaciones por nivel para un total de 192 habitaciones y el Marriott con 13 dormitorios por nivel para un total de 208.

En el nivel 20 de ambas torres (la azotea) se encontrarán las piscinas y rooftop bar de cada hotel.

AAA 082/54Latitud 18° Ares Arquitectos / Hageco

8° Latitud Norte es la coordenada geográfica donde se encuentra la ciudad de Santo Domingo, donde se ubica el proyecto Latitud 18. Un ente arquitectónico que emana, como su nombre lo indica, de la conexión e identidad con el lugar al que pertenece.

Latitud 18 es un proyecto que se inspira en el movimiento y el flujo de las vías que lo contienen. Emulando estos conceptos al ritmo de los planos seriados que componen sus fachadas. Representa la intersección de dos calles del Polígono Central de Santo Domingo, que en la altura se convierten en dos torres intersectadas en su basamento. Dicho proyecto da respuesta a una necesidad latente de su entorno. Conjuga diferentes usos locales y foráneos en espacios flexibles diseñados para todos los usuarios. El proyecto destinado al turismo ejecutivo, se encuentra ubicado en la Av. Abraham Lincoln esquina Calle Andrés Julio Aybar, en el sector Piantini, Distrito Nacional. Es un proyecto hotelero que será desarrollado en un terreno de 5,076 m 2. El programa de áreas de dicha edificación se desarrollará en un total de 52,770 m 2 de construcción distribuidos en dos torres de 20 niveles sobre el nivel de calle y 4 niveles de estacionamientos soterrados con 100 unidades por nivel. El primer nivel del proyecto se integrará al contexto y al uso de suelo del sector mediante terrazas perimetrales y un amplio lobby vehicular que le da la bienvenida a los vehículos y peatones que transitan por las vías que lo contienen y aportando el menor ruido posible al flujo de la avenida Abraham Lincoln. Además de 1500 m 2 de área rentable distribuidos en 3 locales destinados a restaurantes y 1 café.

El segundo nivel alberga 6 salones multiusos (2000 m 2) que darán respuesta no sólo a las necesidades del turismo ejecutivo, sino también al entorno inmediato, proporcionándoles el único salón de 1000 m 2 en el Polígono central para realizar bodas y otras actividades.

Elevación Elevación Planta arquitectónica 1er nivel Planta arquitectónica 3er nivel Planta arquitectónica nivel Sótano Planta arquitectónica 2do nivel

AAA 082/56 MoréJoséGustavo©MoréJoséGustavo©

Proyecto Latitud 18° Contratista general Hageco Diseño arquitectónico Ares Arquitectos Diseño Estructural Luis Abbott Instalaciones Eléctricas Edelca Sistemas de A/A Cemca Instalaciones Sanitarias y SCI Piarcon Supervisión RCD MoréJoséGustavo©MoréJoséGustavo©

MoréJoséGustavo© WTC (World Trade Center) GVA / Carlos Aguilar

AAA 082/60WTC (World Trade Center) GVA / Carlos Aguilar

El conjunto World Trade Center and Convention, se localiza en Santo Domingo, República Dominicana, sobre un terreno ubicado sobre la Av. Winston Churchill y calle Freddy Prestol Castillo en el Sector de Piantini, Polígono Central. Es un complejo de uso mixto, de carácter comercial, turístico y corporativo, el cual incluye: - Centro comercial, con área rentable de 4,950.57 m2 - Centro de convenciones: 300 m2 - 240 Unidades aparta-hotel (120 unidades en cada torre) - Oficinas: área útil 23,195 m2 - Helipuerto - Estacionamiento de 5 niveles sobre tierra y 5 niveles soterrados: 1,144 estacionamientos 5-Niveles:niveles de estacionamientos soterrados 2 niveles de centro comercial 5 niveles de estacionamientos sobre nivel (Incluyendo 2 niveles con la superficie completa del Nivelproyecto)dejardín y centro de convenciones. Elevación

frontal Sección

Planta arquitectónica 1er nivel Planta arquitectónica 2do nivel Planta arquitectónica nivel 6 - 15

Proyecto World Trade Center Dirección Av. Winston Churchill 80, Sector Piantini, SD Propietario Grupo Velutini Año Inicio / Término Obra 2020-2024 Área Total de Construcción 125,605 m2 Área del Solar / Lote: 7,264 m2 Altura: 110 m Cantidad de Estacionamientos 1,144 Diseño Arquitectónico Arq. Carlos Aguilar Empresa GVA Arquitectos Colaboradores Elsa Taveras, Giancarlo Beato, Julián Sánchez, Minerva Ramírez. Diseño Estructural Ing. Luis Abbott Diseño Eléctrico Ing. Iván Jiménez Diseño Sanitario Ing. Orlando Pimentel Diseño Sistema de A/A Ing. Joel Pérez Diseño Interior / Decoración GVA Arquitectos Diseño Iluminación Ing. Luis Jacobo Diseño Paisajismo Arq. Juan Pablo Gómez Diseño Instalaciones Mecánicas Ing. Joel Pérez Imágenes Render y 3D Monolito Contratista General Grupo GIP Supervisión Arquitectónica GVA Arquitectos Ingeniero Residente Ing. José Vicente Rojas Instalaciones Eléctricas STM Instalaciones Sanitarias Piarcon Instalaciones A/A CEMCA Materiales y Terminaciones Cosentino Materiales Eléctricos STM Luminarias Spectro Cerramiento Vidrio Glassart Ebanistería Marmotech Herraje Marmotech Mobiliario Martínez Otero Sistemas de Seguridad Symantel

Distrito Piantini GVA / Carlos Aguilar

Distrito Piantini es la torre más innovadora e impactante proyecto residencial y comercial de Santo Domingo. Una novedosa propuesta de usos mixtos, ubicado en el prestigioso sector de Piantini en la calle Víctor Garrido Puello, Santo Domingo D.N.

Distrito Piantini será una torre de usos mixtos, con espacios de alojamiento en venta tanto residencial, oficina, comercial, apartamentos y hotel; su amplio atrio central, dará la sensación de espacios abiertos al aire libre; esta es una tendencia que en estos momentos se está desarrollando exitosamente en SD.. Distrito Piantini es un lugar donde podrás disfrutar de las experiencias gastronómicas más exquisitas de la ciudad de Santo Domingo, convirtiéndose eventualmente en el espacio predilecto para encuentros sociales.

AAA 082/68Distrito Piantini GVA / Carlos Aguilar

Planta arquitectónica amueblada nivel tipo 2 (7, 8, 15, 16, 18-20) Planta arquitectónica amueblada nivel lobby Elevación frontal SecciónElevación lateral izquierdo

AAA 082/70

Distrito

Contemega

Proyecto Piantini Arquitecto Carlos Aguilar (Socio director de GVA República AndresDominicana)Gómez (CEO) Clientes Constructora Aybar Constructora

Metro Plaza Charles Summer Modesto Constantinau / Ventura Arquitectos MoréJoséGustavo©

Desechos Sólidos

Aguas Negras El sistema de recolección de aguas servidas estará constituído, por redes separadas de grasa y aguas sanitarias, contando con trampas de grasa, cajas de inspección y registros sanitarios donde sean requeridos por el diseño, que conducirán las aguas recogidas hasta una unidad de tratamiento, que consistirá en un séptico con un filtro anaeróbico invertido hasta infiltrar las aguas tratadas en dos filtrantes perforados, en vista de que la zona de ubicación del proyecto carece de alcantarillado sanitario.

Este nivel tiene una totalidad de 9 locales comerciales con su área de depósito, dispuestos en toda el ásuperficie de edificación. Consta de 2 núcleos de ascensores que conectan los niveles superiores, servicios de sanitarios públicos, escaleras de emergencia y andenes de carga y descarga. El segundo nivel, tiene una totalidad de 1 local comercial con su área de depósito, desde los cuales se tiene acceso directo al primer y tercer nivel. El tercer nivel, está destinado exclusivamente para depósito y almacén. Éste cuenta con ascensores, monta cargas y escaleras de emergencia. El cuarto y quinto nivel, poseen un área destinada para comercios en todo el perímetro, dejando la parte central para circulación; aqui se sitúan las plazas de llegada de escaleras y ascensores para conectar los niveles inferiores. Cuenta con un total de 31 y 32 locales comerciales respectivamente.

AAA 082/74Metro Plaza Charles Summer Modesto Constantinau / Ventura Arquitectos

Tomamos referentes de todo el mundo, donde podemos evidenciar el diálogo entre los materiales y la volumetría generada. Composición comercial El edificio está compuesto por 5 niveles, distribuidos en: El primer nivel, posee un acceso peatonal por la Avenida Charles Sumner, y cuenta con dos accesos vehiculares, los cuales se dirigen hacia los 653 estacionamientos disponibles (incluidos para discapacitados y motores).

Metro Plaza es un proyecto ubicado en el Caribe, específicamente en la Ciudad de Santo Domingo, capital de República Dominicana, en la Av. Charles Sumner #4 Esq. calle Las Caobas, Urbanización Fernández. El proyecto consiste en un centro comercial de unos 36,437.60 m2 aproximadamente, en una extensión de terreno total de 35,174.76 m2 de superficie. Proyecto Arquitectónico de interés comercial, basado en criterios de diseño contemporáneo, en beneficio del entorno en el que se encuentra, desde un punto de vista urbano, paisajístico y social.

Se tiene determinado un espacio en las áreas de cargas y descargas, en donde se ubicará un contenedor para el depósito de los desechos sólidos, los cuales serán recogidos periódicamente por una empresa contratada para esos fines.

AguaServiciosPotable

Energía Eléctrica Subestación de 2,500 Kva alimentando por la red eléctrica a 12.5Kv y que distribuirá su energía en edificio a 480Y/277V y a 208Y/ 120v dependiendo de la capacidad locales y servicios generales.

Gas Está previsto el suministro de gas para aquellos locales que se estima estarán destinados a la cocción de alimentos u otro uso que así lo determine. Se ha ubicado un lugar ventilado para la ubicación de un depósito de superficie de 800 galones de GLP.

La fuente de suministro de agua será un empalme a la red de la ciudad en la Av. Charles Sumner. El sistema de agua potable consistirá en una cisterna con equipos de bombeo a presión constante y velocidad variable, desde donde se impulsarán las aguas a todas las áreas que así lo requieran como serán tiendas, almacenes, restaurantes y las previsiones para las áreas comunes. El volumen total de la cisterna está determinado por 2 días de tiempo retención para el consumo comercial y el volumen para la supresión de incendios está determinado por un tiempo de retención de 90 minutos del 150% de la capacidad nominal de la bomba.

Seguridad El Centro Comercial Metro Plaza consta de un sistema de circuito cerrado de TV controlado desde una central dotada de modernos sistemas de control, para así brindar un óptimo nivel de seguridad a los usuarios de la edificación.

Drenaje Pluvial El drenaje de las aguas pluviales se hará mediante la colocación de rejillas de techo en las áreas de la edificación colectores y bajantes pluviales que conducirán las aguas hasta imbornales y filtrantes convenientemente ubicados, que drenarán también las aguas recogidas en los parqueos.

Planta arquitectónica 1er nivel Elevación frontal Elevación lateral derecha Elevación lateral izquierda Elevación posterior Planta arquitectónica 2do nivel Planta arquitectónica 4to nivel

MoréJoséGustavo©MoréJoséGustavo©

MoréJoséGustavo©MoréJoséGustavo©

AAA 082/78 MoréJoséGustavo©MoréJoséGustavo©

MoréJoséGustavo©©GustavoJoséMoré

Proyecto Metro Plaza Charles Summer Propietario Inmobiliaria Bacares SRL Diseño Arquitectónico Arq. Modesto Constantinau Ventura Arquitectos Gerente Proyecto Arq. Marilyn Bisonó Sánchez Diseño Estructural Ing. Luis Abbott Zorilla Diseño Hidrosanitario Ing. Orlando Pimentel Diseño Eléctrico Ing. Antonio Guillén Diseño Electromecánico Joel A. Pérez Treviño Contratista Obra Civil Abi-Karram Morilla, Ingenieros Arquitectos Soluciones y Proyectos de Ingeniería, Solpin Estructuras Metálicas Ingeniería Metálica S.R.L. Ingeniería Estructural del Acero, SRL Instalaciones seguridad & data NETGROUP SRL Instalaciones Eléctricas C&T, Ingeniería, S.A Instalaciones Hidrosanitarias Piarcon SRL Instalaciones Contraincendio Piarcon Inprotec-SRLIngeniería de Protección, SRL. Instalaciones Electromecánicas Grupo Cemca SRL Terminaciones & Acabados Mabisa Arquitectura y Construcción SRL Soluciones y Proyectos de Ingeniería, ServiciosProlumWorldSuperplantKladdiaSolpinSignSRLeInstalaciones Técnicas (Setec) Selladores Cobián

Sistema de sucursales del Supermercado Nacional Ja”El García LuthjeAnthony©

La propuesta interior Los arquitectos organizaron el espacio interior de los supermercados buscando dar soporte arquitectónico a los requerimientos del cliente. El interiorismo estuvo a cargo de Juan David Betancourt y se buscó una apuesta por una ambientación orgánica y acogedora con una iluminación de acento y centrada sobre el producto. A partir de esta opción el entorno queda, por así decirlo, en sombra y sólo se destaca el producto como protagonista de la experiencia de compra; de igual manera donde quiera que se pudo se permitió la entrada de luz natural manejando la calidad y el color de esta en los espacios.

El Supermercado Nacional de la Rómulo Betancourt responde a una estrategia corporativa del grupo CCN que buscaba producir un nuevo prototipo para una serie de puntos de venta que han sido puestos en operación en un periodo corto de tiempo. Para llevar a cabo el objetivo se integró un equipo multidisciplinario que incluía la firma J. García Martínez y Asocs. en el componente de arquitectura, así como publicistas, interioristas, diseñadores de iluminación y otros, coordinados por el Departamento de Desarrollo de CCN. La propuesta inicial era la de producir un modelo de edificio que tuviera una fachada planteada en base a una única piel, algo totalmente diferente a los que la marca había implementado la última vez que realizó un abordaje masivo de varios supermercados en poco tiempo que fue cuando se produjeron los edificios del Nacional de Arroyo Hondo y Lope de Vega en Santo Domingo y Estrella Sadhalá en Santiago. Era además una idea diferente al Supermercado Nacional de la Av. Tiradentes que si bien implicaba un cambio en lo que había sido el lenguaje tradicional de la marca se trataba de un edificio que respondía a la oportunidad que ofrecía el emplazamiento antes que a una estrategia de cambio de imagen. Se trata en esta ocasión de la búsqueda de un lenguaje más contemporáneo con una manifestación estética de única composición que tuviera un impacto contundente a partir de celebrar la piel del edificio y los elementos que tradicionalmente identifican a Supermercados Nacional.

La propuesta exterior Más allá de la expresión arquitectónica la nueva tipología de locales del Supermercado Nacional extiende su propuesta de innovación hacia el exterior y se apropia de los estacionamientos, la arborización y el paisajismo. La pavimentación de los estacionamientos obedece a una idea de paisajismo acogedor, sombreado, con mucho mayor presencia del verde y con un pavimento tramado que comunique la idea de plaza urbana.

La envolvente Para lograr el cometido los arquitectos se decidieron por un elemento de envolvente basado en unos louvers móviles que se pueden organizar de manera que el sistema produzca expresiones plásticas distintas que siempre comuniquen la idea de la canasta, una idea que podría ser a veces bastante literal y otras veces abstracta. Esta solución permite la misma estructura de fachada, pero con una expresión distinta de un punto de venta a otro. Es una solución muy simple basada en la envolvente y la adaptación de la envolvente a cada lugar.

El Nacional de la Rómulo Betancourt

El Supermercado Nacional de la Rómulo Betancourt está localizado en la intersección de la Av. Rómulo Betancourt con la calle Rafael Sanzio del sector Renacimiento del Distrito Nacional.

DentroSección de la estrategia corporativa que genera estas tiendas de comestibles estuvo siempre presente la idea de que el emplazamiento de cada edificio enriqueciera el entorno del vecindario y de la ciudad y a ese respecto el caso de la Rómulo Betancourt es un caso muy interesante pues se trata de una inserción en un entorno residencial con usos comerciales intensos hacia el frente de la avenida principal; es decir el edificio iba a estar dentro de una frontera entre usos urbanos tocando ambos tejidos. Desde el principio se promovió un acuerdo con el ayuntamiento y el barrio, se acordó que el supermercado - construido a lindero cero con parqueos en el subsuelo- iba a aportar en todo su entorno una ampliación de las aceras, del espacio público a la vez que proveería mobiliario urbano para crear una especie de jardín o parque lineal en toda la periferia del edificio de manera que el contacto entre este y la gente fuera amigable y acogedor. El resultado es una puesta en escena muy significativa puesto que los estacionamientos están soterrados. El edificio se alza sobre el nivel de acera a una altura amable que se salva con unos pocos escalones. Esta diferencia de nivel provee la oportunidad de que el edificio se eleve sobre un zócalo de hormigón visto rematado por una franja de huecos y vanos que expresan hacia afuera el uso de la pieza coronada con la envolvente que recuerda la idea de la canasta expresada en todos los edificios de la marca basados en la nueva tipología. La escala de la pieza alterna una manifestación estética contemporánea hacia la vía principal con un diálogo fluido a una escala adecuada con el sector habitacional que queda detrás del edificio. Sin duda asistimos a la aparición de una tipología corporativa innovadora, bien pensada y que enriquece a la ciudad.

AAA 082/82Sistema de sucursales del Supermercado Nacional Ja”El García / Texto Marcos A. Blonda

Planta arquitectónica 1er nivel Planta arquitectónica nivel sótano Elevación frontal Elevación lateral izquierdo MoréJoséGustavo©

AAA 082/84 MoréJoséGustavo©MoréJoséGustavo©

Proyecto Supermercados Nacional Dirección Av. Rómulo Betancourt, Sector Renacimiento, Distrito Nacional, SD Propietario Centro Cuesta Nacional (C.C.N.) Año inicio/término obra 2019 / 2020-2022 Área total de construcción 7,215.70 m2 Área del solar/lote 3,576 m2 Diseño arquitectónico Ja’el García Martínez J. García Martínez & Asociados, S.R.L. Colaboradores Arq. Gessica Lavatelli Consultor Estructural Luis Abbott & Asocs Consultor Eléctrico Concivels Consultor Sanitario Ing. Nelson Rodríguez (Gamei, S.R.L.) Sistemas de A/A Ing.Joel Pérez (Grupo Cemca S.R.L.) Decoración e Interiores Arq. Juan David Betancourt (921) Diseño iluminación Theo Kondos (T. Kondos Associates) Diseño acústico Audiomart Diseño paisajístico José Then (Superplant) Diseño gráfico Keith Thomas (Grupo Diseño República) Contratista general Imbert Domínguez & Asociados Supervisión J. García Martínez & Asociados, S.R.L. Suplidores Dto. Desarrollo C.C.N. Instalaciones Eléctricas Concivels Instalaciones Sanitarias Gamei, S.R.L. Instalaciones A/A Grupo Cemca S.R.L. Estructuras Metálicas Ing. Tomás Nieto (Codacero) Luminarias Prolum Carpintería metálica Construcción Alvarez Castillo (Conalca) / Revestimientos Cerartec Jardinería Superplant Señalización Abezeta SA. Sistemas acústicos Instalación Refrigeración MARDOM

Audiomart

MoréJoséGustavo©©GustavoJoséMoré

ArmenterosArmando©

AAA 082/88 MoréJoséGustavo©MoréJoséGustavo©

MoréJoséGustavo©

Plaza Paseo del Prado Juan Pérez Morales y Javier Pérez Pitaluga

AAA 082/92Plaza Paseo del Prado

Plaza Paseo del Prado, es una edificación de carácter comercial. Se desarrolla en 3 (tres) niveles sobre el nivel de acera y 2 (dos) niveles soterrados para estacionamientos, para un total de 10,688.62 m2 metros de construcción y una altura total de 17.20 mtrs.

Juan Pérez Morales y Javier Pérez Pittaluga

Así mismo el proyecto busca atraer a los usuarios con cómodos accesos vehiculares hacia los estacionamientos y acceso vehicular transitorio (marquesina) con entrada por la Av. Gustavo Mejía Ricart y salida por la Calle 18 (calle posterior), esto con la intención de minimizar la congestión del tránsito en la zona.

El proyecto busca la integración con el entorno y la ciudad donde la peatonización del usuario es parte fundamental, abriéndose como una gran plaza accesible desde las 3 calles que la delimitan. Fue pensado y diseñado con rampas de acceso inclusivo a todo tipo de usuario, esto adicionado a una circulación completamente abierta y funcional.

Planta arquitectónica 3er nivel Planta arquitectónica 1er nivel Planta arquitectónica 2do nivel

MoréJoséGustavo©

MoréJoséGustavo©

MoréJoséGustavo©MoréJoséGustavo©

AAA 082/98 MoréJoséGustavo©MoréJoséGustavo©

Proyecto Plaza Paseo del Parque Diseño Arquitectónico Juan Emilio Pérez Morales Javier Pérez Pittaluga Cristina Pérez Pittaluga Ezequiel Peña R. Diseño Aire Acondicionado Miguel Paiewonsky Diseño Eléctrico Marcelino Pérez Diseño Estructural Iván Fernández Sterk , M. SC. Diseño Sanitario Stalin Acosta, M. SC. MoréJoséGustavo©MoréJoséGustavo©

AAA 082/100

03 DestacadosPromotores Cassa Juanillo Icono Serviced Residences Mistral by Pedralbes Lanwood Torre TorresUnoAyres The St. Regis Cap Cana Hotel And Residences Torre Ginaka 21 Torre Piantini 41 Regatta del Sol Spazio By Regatta The Central by Regatta VistaBotanniaParque Studios 15.6 La Marquesa Town Center I La Marquesa Residences I Grupo MichelénPedralbes&Michelén Arquitectos CampagnaAsociados Ricart & Asociados Selman Arquitectos Grupo Arq.ConstructoraContemegaAybarJorgeMontalvo & Asociados

Grupo Pedralbes se inicia a principios del año 2013 como empresa constructorapromotora de proyectos inmobiliarios, además de brindar servicios de ingeniería y diseño de proyectos civiles, sanitarios y viales. Nuestra empresa posee los recursos y la tecnología que garantiza un manejo apropiado de los costos, efectividad en los tiempos de ejecución, calidad de las obras y garantía eficaz en cada proyecto. Nuestra misión es trabajar para la satisfacción del cliente en la consecución de sus objetivos inmobiliarios y de construcción, siendo nuestra visión empresarial ser un grupo de empresas que trabaja para convertirse en referente institucional, por su nivel de especialización sectorial, donde la tecnología y la innovación se enfoquen hacia la mejora de la calidad de vida de las personas, a través de una entrega de servicios y productos con excelencia.

Reconocimientos

Categoría: Mayor número de separaciones de unidades inmobiliarias. Expoferia Inmobiliaria Construmedia 2021 y 2019, 2017 Diseño Arquitectónico Destacado: Proyecto Pedralbes Parque. Premio Construgala 2016 (Ganadores junto al Arquitecto Franc Ortega). Reconocimiento a nuestro pilar, la Ing. Susi Gatón por Trayectoria su Destacada en ACOPROVI y sus Aportes al Desarrollo del Sector Inmobiliario: Apartamentos RD 2021 Desarrollador destacado en Santo Domingo. Premios Trasciende 2021, Blue Loft Categoría Vivienda Residencial: Proyecto Pedralbes Parque. Premio Obras CEMEX 2019 Primer lugar Categoría Desarrollo Urbano: Gran Premio Mercado Construcción 2019 Información de contacto 809-688-9945 / www.pedralbes.com.doinfo@pedralbes.com.do809-688-9946

Oficina de Contabilidad e Ingeniería: Av. César Nicolás Penson #62, Torre Pedralbes 1er Nivel, Santo Domingo, R.D.

Oficina de Ventas: Av. Bolívar #195, Torre Corporativa Bolívar 195, 7mo. Nivel, Santo Domingo, R.D.

Grupo Pedralbes

Los gerentes y principales funcionarios de Grupo Pedralbes poseen más de 30 años de experiencia en el sector de la construcción y la promoción inmobiliaria, desarrollando más de 40 proyectos a nivel nacional, ya sea de índole residencial, comercial y de infraestructura.

es un proyecto de ultra lujo de ochenta y siete (87) apartamentos, diseñado por el afamado Arq. Franc Ortega, a pasos de Playa Juanillo dentro de Cap Cana, el destino turístico más importante de República Dominicana.

Su ubicación es estratégica; está a pocos minutos de Punta Espada Golf Club, Scape Park, Los Establos Ciudad Ecuestre, Marina Cap Cana, Supermercados y Centros Comerciales.

• L’Atelier: restaurante privado dentro de la propiedad para cualquier necesidad de alimentos y bebidas.

Planta arquitectónica 2do nivel Elevación norte Elevación sur Planta arquitectónica 1er nivel

• Tendrá una disponibilidad importante de chaise-lounges y mobiliario de playa, así como un Gin Bar.

• The Clubhouse: tu propio sport bar para actividades tipo nightclub , incluyendo Ping Pong , consolas de videojuegos, karaoke , televisión de gran dimensión, sistema de sonido y más.

• Rental pool dentro de la propiedad, donde se permitirán las rentas de corta duración vía AirBnb y cualquier otra plataforma.

Cassa Juanillo CassaPedralbesJuanillo

• Lounge de descanso y comedores para colaboradores del condominio.

• Wet-bar y Gran Jacuzzi en la piscina principal.

• Una de las más grandes piscinas panorámicas de todos los proyectos de Cap Cana, con una dimensión de más de cuatrocientos (400) m2 y vistas panorámicas al lago.

• The Beach: área de arena frente al lago para tomar el sol.

Características y facilidades:

• The Convenience Store: Minimarket disponible dentro del proyecto para pequeñas compras.

• Piscina para niños.

• Lobby doble altura profesionalmente decorado con su lobby bar y personal concierge.

• Sala de Cine profesionalmente equipada y amueblada.

• Sunset Rooftop para adultos, con bar, dos (2) summer kitchens, multiplicidad de mobiliario para tomar el sol, y cuatro (4) jacuzzis con vista al lago.

• Dos áreas de lounge tipo sala para actividades en el rooftop de la propiedad.

• Gimnasio completamente equipado con Área de Spa.

• Todas las unidades con vista al lago o al mar.

Proyecto Cassa Juanillo Dirección Cap Cana Village, Lote G en Iguanas Lakeviews Propietario Constructora Pedralbes Año inicio / Término obra 2022/2025 Área Total de Construcción 9237.53 m2 Área del Solar / Lote 9237.53 m2 Normativas Uso residencial turístico Linderos y Retiros Laterales 5 metros, Frontal 18 metros Posterior 4 metros Alturas 6 Niveles + 1 Diseño Arquitectónico Arq. Franc Ortega y Asociados Empresa Franc Ortega y Asociados Colaboradores Taller De Diseño FO&A Diseño Eléctrico Franc Ortega y Asociados Diseño Sanitario Ingeniería Sanitaria y Proyectos AJP Diseño Sistema de A/A Franc Ortega y Asociados Diseño Interior / Decoración ARTISANART Diseño Iluminación Franc Ortega y Asociados Diseño Paisajismo Franc Ortega y Asociados Imágenes, Renders y 3D Cúbico 3D Supervisión Arquitectónica Constructora Pedralbes

• Piscina en el nivel 19 con una impresionante vista al mar y la ciudad de Santo Domingo.

EsPedralbesunproyecto

• Dos ascensores de última generación.

• The Clubhouse by Pedralbes: un área social espectacular tipo bar and lounge para actividades privadas y fiestas en el nivel 19 con proyectos para eventos deportivos, profesionales y más.

Características y facilidades:

• Wi-Fi y Sistema de sonido ambiental en todas las áreas sociales comunes del proyecto.

• Planta eléctrica con total cobertura, sistema contra incendio, ducto de basura, sistemas de Intercom y sistemas comunes de suministros (gas común y agua).

• Las más atractivas vistas a la ciudad y al mar, dependiendo del apartamento.

• Amplio lobby revestido en mármol. Diseñado y decorado profesionalmente por nuestras empresas de colaboración de arquitectura de interior.

• The Yellow Space: área tipo co-working para fines de trabajo, equipada con computadoras y equipo de impresión.

• Gimnasio diseñado por BodyIgnition en el nivel 19, con iPad Pro para rutinas individuales, completamente climatizado y equipado con máquinas LifeFitness o similar. Área del gimnasio al aire libre para Yoga y Pilates.

• Proyecto AirBnB Friendly a fines de renta de corta duración con manejo hotelero y organización hotelera.

• Uno, dos y tres parqueos, según el apartamento adquirido.

• Dos áreas de terraza al aire libre, cada una con su BBQ. Una de ellas con sistemade proyección nocturna.

Planta arquitectónica 1er nivel Planta arquitectónica 2do nivel Elevación frontal Elevación posterior Elevación lateral derecho Elevación lateral izquierdo

AAA 082/106Icono Serviced Residences

de apartamentos localizado en el sector de la Esperilla, en la Avenida Bolívar del Distrito Nacional, una de las mejores zonas de Santo Domingo. Múltiples vías de acceso comunican el proyecto con importantes centros comerciales, educativos, religiosos, parques, gimnasios y de recreación.

• Sistemas de cámaras de vigilancia.

Proyecto Icono Serviced Residences Dirección Av. Simón Bolívar No. 199 Propietario Fideicomiso Proyecto Icono by Pedralbes Año inicio / Término obra Inicio 2022/ Finalización 2025 Área Total de Construcción 13990.36 m2 aprox. Área del Solar / Lote 990.69 m2 Normativas Lote para uso residencial Linderos y Retiros Laterales y posterior 1.50 m2 Frontal 5.00m Alturas 19 Niveles + 1 Diseño Arquitectónico Espacio Duo Empresa Espacio Duo Colaboradores Arq. Ricardo Almeida Arq. Siuking Belliard Joa Diseño Estructural Luis Abbot y Asocs Diseño Eléctrico Diseñador Arquitectónico Diseño Sanitario Diseñador Arquitectónico Diseño Sistema de A/A Diseñador Arquitectónico Diseño Interior / Decoración Espacio Duo Diseño Iluminación Diseñador Arquitectónico Diseño Paisajismo Espacio Duo Diseño Instalaciones Mecánicas Espacio Duo Imágenes Renders y 3D Cúbico 3D Contratista General Grupo Pedralbes Supervisión Arquitectónica Grupo Pedralbes

The Aqua Lounge: Jacuzzis para adultos en el nivel 16 con área de BBQ y Bar , así como con una impresionante vista al mar y la ciudad.

Planta arquitectónica 1er nivel Planta arquitectónica 2do nivel Elevación frontal Elevación posterior Elevación lateral derechoElevación lateral izquierdo

• The Playground: Área de juego de niños profesionalmente decorada, con máquinas de videojuegos.

AAA 082/108Mistral by Pedralbes

un proyecto de apartamentos localizado en el sector de La Julia, en la Avenida Bolívar esq. Amada Nivar de Pittaluga del Distrito Nacional, a una esquina de la Ave. Abraham Lincoln, en la mejor zona de Santo Domingo por sus espectaculares vistas al mar, así como la cercanía y el acceso a Downtown Santo Domingo. Múltiples vías de acceso comunican el proyecto con importantes centros comerciales, educativos, religiosos, parques, gimnasios y de recreación. Al dicho proyecto encontrarse en un farallón, las vistas ininterrumpidas al mar y la ciudad le cautivarán, y las mismas nunca podrán ser obstruidas, por lo cual el mar siempre será el mar, y la ciudad siempre será la ciudad.

• Dos parqueos por apartamento.

The Oasis : Piscina familiar en el nivel uno (1), profesionalmente amueblada y con área de BBQ.

• Sistemas de Intercom, controles de accesos y portones eléctricos.

• Dos ascensores de última generación.

• Gimnasio diseñado por BodyIgnition completamente climatizado y equipado.

MistralPedralbeses

• Terraza con outdoor cinema, incluyendo proyector para exteriores a ser utilizado en proyecciones nocturnas.

• Amplio lobby en mármol. Diseñado, climatizado y decorado profesionalmente.

The Yoga Room : Espacio al aire libre para meditación y pilates.

• Planta eléctrica total cobertura.

• Sistema contra incendio y de cámaras de vigilancia.

• The Clubhouse by Pedralbes : Una área social espectacular tipo bar and lounge para tus actividades privadas en el piso 16.

Características y facilidades:

• Sistema de sonido y Wi-Fi en las áreas sociales.

• The Pet-Station: Área especial al aire libre para el esparcimiento de tu mejor amigo (mascotas).

• Gas individualizado mediante sistema de medidor.

Proyecto Mistral by Pedralbes Dirección Avenida Bolívar esq. calle Amada Nivar de Pittaluga Propietario Fideicomiso Mistral By Pedralbes Cantidad de Estacionamientos 146 unidades de parqueos Diseño Arquitectónico Arq Franc Ortega Empresa Franc Ortega y Asociados Colaboradores Taller de Diseño Franc Ortega y Asociados Diseño Estructural Ing. Reginald García Diseño Eléctrico Franc Ortega y Asociados Diseño Sanitario Franc Ortega y Asociados Diseño Sistema de A/A Franc Ortega y Asociados Diseño Paisajismo Franc Ortega y Asociados Imágenes, Renders y 3D LMCAD Supervisión Arquitectónica Constructora Pedralbes Cerramiento Vidrio Glass Factory

Michelén & Michelén Arquitectos Asociados, S.R.L

Michelen & Michelen Arquitectos Asociados, S.R.L ha realizado alrededor de 250 proyectos desde su fundación, en los que destacan comercios, oficinas, viviendas unifamiliares, casas de campo, complejos de apartamentos, iglesias, entre otros. - 2do lugar, Feria Fitur (años 80)

El acercamiento al diseño se ha tornado hacia un procedimiento intuitivo y metodológico en la búsqueda de dar relevancia al entorno natural, asumiendo como perspectiva que la arquitectura forma parte de este. Esta filosofía del diseño, integrada a los procesos del mismo, toman una preponderancia cada vez más fuerte, tendencia que se acentúa con más intencionalidad en los últimos años, algo que ha ido permeando cada vez más la filosofía de diseño de la firma.

Proyectos de relevancia ejecutados o en proceso de ejecución: Iglesia y Centro Comunitario, Guayaquil (Ecuador)

La naturaleza es la columna vertebral de sus diseños, siempre buscando el bienestar de quienes lo habitan, entendiendo que la arquitectura posee una influencia importante en el bienestar y desarrollo de aquellos que la usan, ya que tiene que ver con todo el quehacer humano.

- Varias publicaciones en revistas especializadas Contacto: Michelén & Michelén Arquitectos Asociados, S.R.L Dirección: Plaza Haché, Local 220, Av. John F. Kennedy, Ens. Naco, Santo Domingo, R.D. Tel.: 809.566.1615 Cel.: 809.222.5732 Email: michelen.michelen@hotmail.com

La firma de arquitectura y construcción Michelén y Michelén, fundada en el año 1983, inicialmente incursionó en proyectos de diseño, integrando luego procesos constructivos y de supervisión de proyectos. En la actualidad la compañía es liderada por la sociedad entre Eric Michelén Stefan y Eric Yamil Michelén Álvarez, quien desde hace 12 años se integró como asociado de su padre.

Eric Michelén Stefan es egresado de la escuela de arquitectura de la UNPHU en 1980 y Eric Yamil es egresado de UNIBE y realizó una maestría en diseño 3D y tecnología en arquitectura, en la UPC de Barcelona. En la actualidad forman una sociedad entre padre e hijo, la cual tiene como objetivo lograr el complejo acoplamiento y balance entre la experiencia recorrida del padre y la frescura de la juventud de Eric hijo, algo que crece y se acentúa en ese proceso de unificar la visión y los objetivos de esta empresa de diseño y construcción.

En la actualidad el equipo de taller de diseño está conformado por: Arq. Eric Michelén Stefan Arq. Eric Yamil Michelén Álvarez. Con la colaboración de los arquitectos: Emil YGenyCesarinaCalderónLunaRomeroeneláreade construcción: Ing. Félix Ortiz director principal Ing. Enmanuel de la Cruz

La arquitectura del equipo tiene como filosofía de trabajo crear espacios funcionales armónicos que formen parte del entorno, teniendo como meta que los mismos cumplan cabalmente con la función para lo cual han sido creados y cuya composición espacial sea comprensible y diáfana, en una búsqueda constante de lograr en cada proyecto una dimensión de estética limpia y estable en el tiempo. Se evitan los rebuscamientos, pero se procura el orden y la claridad estructural, así como el uso racional de los materiales y del entorno de manera que el conjunto logre hacer que el interior y lo exterior se correspondan íntegramente, sin dobleces en su coexistencia.

Punta Goleta Sea Winds, Cabarete Club Hemingway, Juan Dolio Las Iguanas, Cap Cana Residencial Las Orquídeas TRIADA XII, Cuesta hermosa 1ra Centro Comercial Novocentro Torres Qualita Eleven Tower Rediseño Complejo Residencial Palmeras del Botánico Complejo Lanwood Cap Cana

Planta arquitectónica de conjunto Elevación frontal conjunto

Lanwood Michelén & Michelén Arquitectos Asociados

Otra parte clave del diseño consiste en que estará capacitado para recolectar agua de lluvia para su uso en mantenimiento de las áreas verdes, haciendo que este edificio sea lo más cercano a la sostenibilidad.

Igualmente, abrazando el patio central y el área más pública del proyecto, un área social de transición sutil y progresiva que une el interior con el exterior y formando un espacio de área social con 300 mts², diáfano, protegido y donde las personas pueden estar más conectados con su entorno buscando el bienestar y la salud. En este se encuentran las áreas de spa y gimnasio, así como una gran sala para estar. Esta se comunica luego con el área de piscina con 225 mts² y culmina con un amplio jardín de 360 mts² aproximadamente.

El proyecto propone resaltar la coherencia entre la funcionalidad de los espacios y la comunicación del interior con el exterior, priorizando el paisaje natural y materialidad, cultura y demás elementos propios del contexto inmediato.

El edificio gira en torno a una optimización del cruce de vientos en búsqueda de que el edificio respire y tenga la capacidad de mantener una temperatura templada.

Los tres bloques ubicados de forma articulada, separando cada núcleo, pero uniéndolos por medio de los núcleos verticales y corredores que conectan el todo.

En esto, los núcleos verticales juegan el papel de túneles de vientos, y son las piezas que articulan los edificios y permiten el cruce continuo de los mismos, donde el jardín penetra a los espacios y el verde es considerado como un actor importante del diseño, al igual que el uso de la luz natural.

El diseño consiste en un complejo turístico-residencial de cuatro niveles, más un nivel de terraza. El área privada del proyecto se conforma por un total de 34 apartamentos de tres tipologías: de una, dos y tres habitaciones, a los cuales se accede por los núcleos de circulación vertical, ubicados en los laterales del proyecto. El Bloque A totaliza siete apartamentos, el Bloque B, 23 apartamentos y el Bloque C, cuatro apartamentos ( rooftop) compartidos entre tres bloques, los cuales conforman un total de 1,125 mts² de huella construida, en un terreno de 2,960 mts² aproximadamente.

AAA 082/114

Proyecto Lanwood Dirección Proyecto Ciudad Las Canas, Cap Cana, La Altagracia Propietario ADYV Development, S.R.L. Área Total de Construcción 1,085.24 mts2 Área del Solar / Lote 2,957.90 mts2 Linderos y Retiros Frontal y posterior: 6.00 mts Laterales: 3.50 mts Cantidad de Estacionamientos 43 unidades Diseño Arquitectónico Michelén Arquitectos Empresa Michelén Arquitectos Colaboradores Arq. Emil Calderón Arq. Cesarina Luna Imágenes, Renders y 3D Spot View Studio Contratista General Sygen Construction Management Supervisión Arquitectónica Michelén Michelén Arquitectos

Campagna Ricart & Asociados

• 2019 Gran Premio Mercado Construcción 2019: Primer lugar Categoría Viviendas en -alturaPremio CEMEX 2019: Primer lugar Categoría Vivienda Residencial

Campagna Ricart & Asociados (CRA), es una empresa con establecida solidez que, desde hace más de 25 años, se ha dedicado al diseño, construcción y promoción de proyectos de clase mundial en sus diversas vertientes. Muchos de sus esfuerzos han estado dirigidos al sector de la construcción de torres de apartamentos, residencias, proyectos turísticos funcionales de lujo y alta calidad, proyectos institucionales y restauraciones, y desde 1996, atendiendo las necesidades específicas del mercado, el objetivo de la firma ha estado enfocado en captar el interés, la aceptación y sobre todo la confianza de dicho mercado. Los inmuebles construidos por Campagna Ricart & Asociados son hoy en día reconocidos y cotizados entre los más atractivos y de mejor calidad en toda la región.

Dino Campagna Ricart – Presidente Graduado de Ingeniero Civil en la Universidad Pedro Henríquez Ureña (UNPHU). En el año 1981, obtuvo una maestría en Ingeniería Civil en la Universidad La Sapienza en Roma, Italia. En el 1985, fecha en que regresa al país a trabajar en diferentes proyectos de naturaleza hidráulica y civil. En el año 1992 funda Campagna Ricart & Asociados. Proyectos de relevancia ejecutados o en proceso de ejecución Restauración Catedral Primada de América, Construcción Templo de Las Américas, La Isabela, Puerto Plata, Residencial Parioli, Torre La Regencia, Torre Piemonte, Torre del Bosque, Torre Toscana, Torre Santa Doménica, Torre Botticelli, Torre La Palmerie, Torres Las Meninas, Torres Dúe, Construcción Centro Tecnológico Banreservas, Construcción Torre Mil57 Santo Domingo, 90 Park Towers. Torre UNO. The Lofts at Cap Cana , Torres Ayres, St. Regis Cap Cana Hotel and Residences. Villas: Diseño y construcción de unas 45 villas para residencias privadas en particulares destinos turísticos que van desde 1,300m2 hasta 3,000m2 aproximados, todas completamente equipadas y amuebladas. Cuenta cada una con amenidades, paisajismo y vistas impresionantes. Ingenieros y Arquitectos El éxito alcanzado en todos los proyectos se debe al equipo de destacados profesionales y colaboradores que con pasión y entrega han acompañado al Ing. Dino Campagna en toda su trayectoria, entre los que se distinguen: Ing. Julio Bobadilla, Ing. Álvaro Espaillat, Dis. Alexandra Guzmán, Arq. Sandra Castro, AG Interiores, Ing. Pedro Fernández, Ing. Ana Almonte, Ing. Henry Álvarez, Ing. José Cabrera e Ing. Gianmarco Campagna.

Campagna Ricart & Asociados se distingue en el mercado por ejercer la actividad de la construcción al más alto nivel, sustentado en un ejercicio profesional serio y responsable, que trabaja íntegramente de la mano con una multidisciplinaria red de excelentes profesionales, proveedores y calificados contratistas, cuya participación y esfuerzo, aunados a la vasta experiencia en el área de la firma, garantizan el éxito de cada una de las realizaciones.

- Organización Regional de Cámaras de la Construcción de Centroamérica y el Caribe:

Premio ORDECCCAC 2013 • 2018 Premios Construgala 2018: Categoría Mérito a la Trayectoria Destacada

Contacto: Campagna Ricart & Asociados, SRL Dirección: Calle Luis Escoto Gómez No. 5, Edificio Padal 1B, Urb. Lope de Vega, Santo Domingo, República Dominicana Teléfonos: 809-562-5555 / 809.562.5077

Premios • 2001 Cámara Dominicana de la Construcción: “Mejor Empresa Constructora” en el Sector de Torres y Multifamiliares durante el período 1997-2001

• 2022 Premios Construgala 2022: Proyecto Inmobiliario en Santo Domingo; Proyecto Segunda Vivienda o Second Home Destacado en Zona de Playa

Email: ventas@campagnaricart.com Página web: www.campagnaricart.com

• 2013 Cámara Dominicana de la Construcción: “Mejor Empresa Constructora” en el Sector de Torres y Multifamiliares durante el período 2005-2012.

- Mención de Honor como Mejor Empresa Constructora” en el Sector de Urbanizaciones y Residenciales, durante el período 2005-2012.

El proyecto Torre Uno está conformado por un edificio de veinticinco (25) niveles sobre el nivel de la calle, dedicado a apartamentos residenciales, siendo su diseño arquitectónico una propuesta de estilo contemporáneo, de identidad y elegancia propia y en plena armonía con el entorno urbano existente. El lote cuenta con una superficie de 1,662.90m 2 de los cuales 555.02m 2 son ocupados por la huella del edificio, siendo así la ocupación del solar menor al 35% del área total. El área total de construcción es de 16,686.70m 2, compuesto por: El 1 er nivel está destinado a un gran lobby , con tres (3) ascensores, estar para choferes, estacionamientos, rampas vehiculares, lockers y área de servicios. Se desarrollan 44 estacionamientos en este nivel.

• Otros:

• Escalera • Plataforma aires

• Sala • Comedor •

• Cuarto y

• Lobby

En los niveles 4 to al 25 vo se desarrollan los apartamentos típicos del proyecto, los cuales ocupan uno (1) por piso, exceptuando el Pent-house que tendrá una terraza en el segundo nivel (azotea). Todos los apartamentos tendrán la siguiente distribución: ascensores Estudio Baño de visitas (4) dormitorios con sus baños y walk-in closets familiar de lavado de servicio baño de servicio acondicionados closets, vertederos, ducto de basura, etc.

• Área

• Cuatro

Torre Uno Campagna Ricart & Asociados

Planta arquitectónica 3er nivel Planta arquitectónica 12vo nivelPlanta arquitectónica 4to nivel

El 2do nivel está destinado a estacionamientos, rampas vehiculares, lockers , escaleras, ascensores y área de servicios. Se desarrollan 38 estacionamientos en este nivel. El 3er nivel está destinado a áreas comunes recreativas, las que incluyen un gran jardín, gazebo , piscina con terraza destechada, jacuzzi, área de juego de niños, gimnasio, baños separados para hombres y mujeres cada uno con sauna, Spa con salón de belleza y cabinas para masajes, terraza techada, salón de usos múltiples, cocina, depósitos, entre otros.

• Terraza • Cocina •

• Cocina

• Estar

Proyecto Torre Uno Diseño Arquitectónico GVA Constructora y Promotora Campagna Ricart & Asociados Diseño Estructural Ing. Reginald García. Diseño Interior / Decoración AG Interiores por Alexandra Guzmán Diseño Instalaciones Mecánicas Ing. Joel Pérez, Grupo Cemca Cerramiento Vidrios Alugav Impermeabilización Selladores Cobián Jardinería Arquitectura y Naturaleza en Verde Sistemas de Seguridad Inprotec

Torres Ayres dispone de un solar de una dimensión muy poco común en la zona, 3,200m 2. Además, tiene de frente, a este parque que funge como un maravilloso pulmón verde con vistas espectaculares a su frondosa naturaleza y que le protegerá y servirá de deleite visual. A lo lejos, se podrá apreciar la bella silueta de la ciudad de Santo Domingo y el Mar Caribe. Es precisamente por este parque, que se han orientado ambas torres hacia él, de manera que las vistas de las áreas sociales de los apartamentos puedan aprovecharse de la sensación de libertad que les proporcionará este fascinante pulmón dentro de nuestra metrópoli. Sin dudas, Ayres marcará un antes y un después en el poligono central. Ayres dispondrá, al igual que los últimos proyectos, de las facilidades que han entusiasmado y conquistado a los gustos más exquisitos y exigentes. Las áreas sociales estarán a cinco metros sobre el nivel de la calle, y se desarrollarán dentro de la superficie total del solar, lo que permitirá el contacto directo con las hermosas copas de los árboles, unas vistas impresionantes y una amplia y completa lista de amenidades, exclusivas para cada torre.

Planta

Todas las áreas comunes serán entregadas, equipadas y amuebladas exquisitamente por la Diseñadora de Interiores Alexandra Guzmán y su equipo de AG Interiores, con el único interés de que sean utilizadas día a día, como parte integral del apartamento en que vivirán sus adquirientes. Las torres constarán de 21 niveles de apartamentos, uno por nivel, con metrajes que oscilan en los 525m 2 aproximados, de tres y cuatro habitaciones con características únicas dentro de lo que ha sido la trayectoria la constructora. El concepto arquitectónico se basa en sentir el parque fuera y dentro de cada uno de los hogares que se formarán en Ayres, con terrazas, balcones y jardines especialmente diseñados, que serán creados y entregados por la constructora en su oferta.

Planta arquitectónica amueblada de conjunto 1er nivel arquitectónica nivel calle

Elevación norte

Entre las amenidades que cada torre incluirá se encuentran: amplios jardines y espacios de recreación, ideales para aprovecharlos y disfrutarlos en familia, una piscina semiolímpica que servirá tanto para diversión como para ejercitarse, jacuzzi climatizado. Además de impresionantes lobbies con doble altura, gimnasios totalmente equipados y diseñados de manera funcional, salones de eventos, áreas de lounge con bares, salón de belleza, spas , áreas de juegos para niños, gazebos, y un sports-bar especialmente diseñado para el deleite de los propietarios, de dimensiones nunca antes desarrolladas.

AAA 082/120Torres Ayres Campagna Ricart & Asociados

Torres Ayres se desarrolla como un nuevo proyecto de dos torres frente al Parque “El Bosque de la Vida,” en el sector de Serrallés. Luego de haber construido, en los alrededores de este parque en los inicios de Campagna Ricart, han decidido regresar, al percibir el increíble potencial que posee el emplazamiento de este nuevo reto.

Proyecto Torres Ayres Diseño Arquitectónico Arq. Alejandro Acebal Constructora y Promotora Campagna Ricart & Asociados Diseño Estructural Ing. Reginald García Diseño Interior / Decoración AG AlexandraInterioresGuzmán Diseño Instalaciones Mecánicas Ing. Joel Pérez Grupo Cemca Cerramiento Vidrios Facchada Impermeabilización Selladores Cobián Jardinería Arquitectura y Naturaleza en Verde Sistemas de Seguridad Inprotec

- En el cuarto nivel, el hotel dispondrá de una espectacular y panorámica terraza con piscina, asoleaderos, decks , exhuberante paisajismo, bar de tapas, donde podrán apreciar los espectaculares atardeceres en compañía de sus famosos bloody marys , coctel que fue creado en 1934, en el hotel St Regis de Nueva York y su disfrute continúa siendo uno de sus rituales emblemáticos.

Planta arquitectónica de conjunto

ElevaciónSección sureste bloque c Sección

AAA 082/122The St. Regis Cap Cana Hotel And Residences Campagna Ricart & Asociados

Iniciativa de alto impacto y prestigio para el país, que ha unido tres reconocidas marcas, las cuales garantizarán el éxito del proyecto y su reconocimiento internacional. Como accionistas principales y proveedores de fondos de capital, Pioneer ; una sociedad administradora de fondos de inversión, pioneros en la industria de fondos y apostando al sector turismo con un amplio portafolio. Como socios, constructores y promotores: Campagna Ricart & Asociados. Empresa dedicada al diseño, construcción y promoción de proyectos inmobiliarios al más alto nivel, con un aval de 25 años de experiencia, distinguiéndose en el mercado por un ejercicio serio y responsable. Como administradores y operadores hoteleros: The St. Regis Hotels and Resorts de la firma Marriott. Marca exclusiva en la industria con los más altos niveles y estándares del mercado de lujo mundial. El proyecto, programado para apertura en el 2023, consiste en un hotel de lujo de 200 habitaciones y 70 residencias para la venta que fungirán como condo-hotel, para un total de 360 habitaciones, en la más exclusiva y espectacular playa dentro de Cap Cana. En efecto, este desarrollo orientado a la conservación del medio ambiente y al desarrollo sostenible, se realizará en un solar de 67,000 m2 con exclusividad de acceso, pues está limitado en todo su perímetro por el Campo de Golf Punta Espada, de la firma y diseño de Jack Nicklaus, y por 200 metros lineales de la más bella playa de arenas blancas y aguas azul turquesa. Es precisamente este emplazamiento entre el hoyo 1 y el 2, del campo de golf, el motivo de inspiración arquitectónica del proyecto, que con la intención de integrarse al entorno, desarrolla el área de hotel y el de las residencias como si fueran parte natural del campo. El proyecto aprovechará las diferencias de nivel existente en el terreno, para presentar un hotel que tendrá sus habitaciones desarrolladas en terrazas y techos verdes, rodeadas de impresionantes piscinas, y el condo hotel, también desarrollado en terrazas, desde donde se podrán apreciar las espectaculares vistas hacia la exclusiva playa, las majestuosas piscinas, los azules del Mar Caribe y los matices de verdes del Campo de Golf que le rodea. Atractivos del complejo turístico: - Majestuoso lobby - El icónico st. Regis Bar - El Astor Ballroom - Restaurantes especiales

Rum and Cigar Lounge - Gimnasio fitness center - El Iridium spa - Bares de playa - Áreas de niños, entre otras amenidades

Proyecto The St. Regis Cap Cana Hotel and Residences Diseño Arquitectónico AC Arquitectos & Asociados Alejandro Acebal Constructora y Promotora Campagna Ricart & Asociados Diseño Estructural Ing. Reginald García Muñoz Diseño Interior / Decoración Chapi Chapo & AG Interiores Alexandra Guzmán Diseño Instalaciones Mecánicas Grupo CEMCA Project Manager TLDI Cerramiento Vidrios Alugav (Gaviota) Impermeabilización Selladores Cobián Jardinería EDSA Sistemas de Seguridad Symantel Elevación norte bloque c

Jose ML Alvarez: Director de Proyectos obtiene su título de Arquitecto en el año 2006 de la Universidad Iberoamericana (UNIBE) en Santo Domingo, República Dominicana. Posteriormente realiza una Maestría en “Diseño 3D y Simulación visual en arquitectura” en el año 2008, en la Fundación UPC (Universidad Politécnica de Cataluña) en Barcelona, España. En el 2009 realiza una Maestría en “Arquitectura Avanzada” en el Instituto de Arquitectura Avanzada de Cataluña (IAAC), también en la ciudad de Barcelona. Se integra al equipo de Selman Arquitectos como Arquitecto de Proyectos en marzo del 2010, desde donde ha evolucionado su talento y liderazgo.

Durante la última década hemos estado particularmente involucrados en la industria del turismo dominicano, donde hemos ganado una vasta experiencia en el diseño residencial y hotelero de resorts.

Principales directivos: Rafael Selman: Arquitecto Principal Miguel Risk: Director de Proyectos Senior José Álvarez: Director de Proyectos

Aylin Suárez: Directora de Taller Amando Vicario: Director de Proyectos Asociado Rafael Selman: Arquitecto Principal y CEO Arquitecto egresado en 1991 de la Universidad Nacional Pedro Henríquez Ureña (UNPHU) en Santo Domingo, República Dominicana, con Maestría en Arquitectura de la Universidad Tulane University en Nueva Orleans, Louisiana, Estados Unidos de América en 1992, fecha a partir de la cual ha dirigido la firma. Posteriormente ha realizado cursos de Educación Continuada en “Planificación y Diseño de Hoteles” y “Finanzas para el Desarrollo Inmobiliario” en el Harvard Graduate School of Design, así como “Elevando las Operaciones y las Finanzas”, en la escuela de negocios Wharton de la Universidad de Pennsylvania, ambas en los Estados Unidos. Ha sido profesor de diseño en la Universidad Iberoamericana [UNIBE], es miembro del Colegio de Arquitectos, Ingenieros y Agrimensores [CODIA], de la Sociedad de Arquitectos de la República Dominicana [SARD], miembro fundador del Centro de Estudios de Arquitectura y Urbanismo [CEDARQ], así como miembro Internacional del American Institute of Architects [AIA] de los Estados Unidos. También es miembro de la organización Global Entrepreneurs Organization [EO], de la cual presidió el capítulo en el país en el período 2018/19. Actualmente preside el Comité de Inversiones del 1er Fondo Inmobiliario de AFI BHD e igual es miembro fundador y actual Presidente de TRAZADO, una organización sin fines de lucro orientada a proponer y viabilizar proyectos de intervención urbana que tiendan a mejorar la calidad de los ciudadanos.

Fundada en el año 1972 como Eduardo Selman & Asociados, su práctica cuenta con una larga y sólida experiencia en el sector, donde ha tenido la oportunidad de trabajar en proyectos de desarrollo de planes maestros hoteleros y residenciales, así como proyectos comerciales, institucionales, residencias privadas y proyectos de diseño de interiores.

Aylin Suárez: Directora de Taller Realiza su licenciatura en Arquitectura en el año 2007 en la Universidad Iberoamericana (UNIBE) en Santo Domingo, República Dominicana. Posteriormente en el 2008 realiza una Maestría en Arquitectura y Diseño, compuesta por dos posgrados: Diseño, Medio Ambiente y Arquitectura y Diseño, Imagen y Arquitectura, en Elisava Escola Superior Dissenny en Barcelona, España.

Miguel Risk: Director de Proyectos Senior Con múltiples grados obtenidos y vasta experiencia, en 1974 obtiene su primera licenciatura en Diseño de Interiores de la Universidad Pedro Henríquez Ureña (UNPHU), en la República Dominicana. En 1981 concluye la Maestría en Arquitectura en la misma universidad y posteriormente cursa el Masters en Arquitectura Tropical Dominicana en 1985 de la Universidad Católica de Santo Domingo (UCSD), República Dominicana. En 1988 realiza el Masters en Diseño Residencial en la Universidad de FUKUI en Japón. Se integra al equipo de Selman Arquitectos como Arquitecto Director de Proyectos Senior en febrero de 2013.

AAA 082/124Selman Arquitectos

Se integra al equipo de Selman Arquitectos como Arquitecto de Proyectos en julio de 2015, desde donde ha evolucionado su talento y liderazgo desempeñándose hoy como Arquitecto Director de Taller.

Selman Arquitectos es una firma colaborativa de Arquitectura, Diseño Urbano, Diseño de Interiores y Gestión de Proyectos Inmobiliarios, atendiendo el mercado hotelero, residencial, comercial e institucional en la República Dominicana y toda la región del Caribe.

Amando Vicario Arquitecto: Director de Proyectos Asociado Es graduado de Arquitectura en la Facultad de Arquitectura y Artes Universidad Nacional Pedro Henríquez Ureña (UNPHU) en el año 1990. Posteriormente realiza un “Master of Architecture” en el College of Architecture and Urban Planning de la University of Michigan , Ann Arbor , con un Major en Práctica Profesional e Historia de la Arquitectura en el año 1993. En el año 1996 realiza un Diplomado en “El negocio fiduciario en el mercado inmobiliario dominicano” en la Universidad APEC, en Santo Domingo. Se integra al equipo de Selman Arquitectos como Arquitecto Director de Proyectos Asociado en mayo de 2022.

Proyectos de relevancia ejecutados o en proceso de ejecución: TORRE PIANTINI 41 Inicio de obra / En construcción 10,750 mt 2

Torre Torre22,648InicioTORREResidencialGINAKA21deobramt2Residencial Reconocimientos y premios : • Universidad Iberoamericana (UNIBE): 2do Lugar Escuela de Arquitectura Concurso de mejores prácticas en arquitectura inmobiliaria. Santo Domingo, República Dominicana (04 /octubre / 2019).

Rafael Selman Miguel Risk Jose ML Alvarez Aylin Suárez Amando Vicario

• Premios Construgala 2018. Categoría: Diseño arquitectónico destacado. Santo Domingo, República Dominicana (6/junio/2018). • MASCO Reconocimiento los más destacados: 2020 Green One II • Concurso Nacional de Viviendas auspiciado por la Asociación Popular de Ahorros y Préstamos, ganando 1er lugar en tipología de Apartamentos y 3ro en tipología de Casas. Dirección:Contacto AV. Lope de Vega No. 19, Torre Novocentro, Suite B41, 2do nivel Santo Domingo, República Dominicana. Teléfonos: +1-809-472-1070/71 Correo Electrónico: info@selmanarquitectos.com

Elevación frontal Elevación posterior Elevación lateral derecha Elevación lateral izquierda Planta arquitectónica amuebalda 1er nivel Planta arquitectónica amuebalda niveles 5- 7 *- 9 *- 11

AAA 082/126Torre Ginaka 21 Selman Arquitectos

Ginaka 21 es una torre residencial ubicada en Los Cacicazgos, en el Distrito Nacional. Cuenta con 13 niveles; en el primer nivel una amplia marquesina, da paso a un vestíbulo con sala de espera y acceso al salón multiusos, área de terraza, piscina, gimnasio, zonas administrativas y de servicio. La torre tiene 3 niveles soterrados que están destinados a 134 estacionamientos y área de lockers para cada apartamento. Los niveles 2 al 4 cuentan con 6 apartamentos por nivel, 4 tipo A de 182mts 2 interior de 3 habitaciones, 1 apartamento tipo B de 125mts 2 interior de 2 habitaciones y 1 apartamento tipo C de 140 mts 2 interior de 2 habitaciones. Del nivel 5 al 11 son 4 apartamentos por nivel, 2 de tipo D de 260 mts 2 y 2 de tipo E de 240 m 2 ambas tipologías de 3 habitaciones. En los niveles 12 y 13 están los 4 penthouses del edificio; los tipo F tienen 263mts 2 más una terraza en un segundo nivel de 158mts 2 y los tipo G tienen 240mts 2 y de igual forma una terraza de 283mts 2 en un segundo nivel, ambas tipologías con 3 habitaciones. Asi se logra un total de 50 apartamentos. El carácter formal es moderno. Se exploró la idea de utilizar diferentes ángulos en la fachada, jugando con los tamaños de los balcones de los apartamentos y agregando en ciertos puntos elementos triangulares para darle movimiento al volumen. Se propone el uso de distintos patrones en el revestimiento. El hormigón violinado y el pañete liso son parte importante de la fachada, complementados por louvers metálicos y baranda de vidrio. Las terminaciones interiores tendrán el mismo concepto moderno que refleja el edificio, con elementos neutros, pisos y plafones con detalles en madera.

AAA 082/128Proyecto Torre Ginaka 21 Dirección Ave. Caonabo esq. C/Onaney, Los Cacicazgos Santo Domingo, República Dominicana Propietario Inmobiliaria Ginaka Área Total de Construcción 22,648 mt2 Área del Solar / Lote 2,275.22 mt2 Tipología Torre Residencial Diseño Instalaciones Mecánicas CJ Socias & Asociados Imágenes, Renders y 3D Cúbico 3D Contratista general Constructora Ginaka Cantidad de estacionamientos 134 unidades Diseño Arquitectónico Selman Arquitectos Empresa Selman Arquitectos Colaboradores Arq. Rafael Selman, Arq. Jose Manuel Alvarez, Arq. Aylin Suárez Diseño Estructural Taveras Ingenieria & Servicios Diseño Eléctrico AS Electricidad Diseño Sanitario Ing. Magda Duarte (VD&A) Diseño sistema de A/A CJ Socias & Asociados

Planta arquitectónica amueblada niveles 3 - 5 -7 -9 - 11

Planta arquitectónica amueblada nivel 21 azotea

Planta arquitectónica amueblada 1er nivel Elevación frontal Elevación posterior Elevación lateral derecha Elevación lateral izquierda Piantini 41 Selman Arquitectos

Piantini 41 es una torre residencial ubicada en el ensanche Piantini, en el polígono central. Cuenta con 21 niveles ; en el primer nivel una amplia marquesina , que da paso a un vestíbulo con sala de espera y acceso al salón multiusos y luego al área de niños. La torre tiene 5 niveles soterrados que están destinados a 72 estacionamientos y área de lockers para cada apartamento. Los niveles 2 al 11 son de 2 apartamentos por nivel, incluyendo un apartamento tipo loft de 2 niveles. Los apartamentos tipo A son de 2 habitaciones con un total de 225mts2 cada uno y los tipo loft son de 2 habitaciones con un total de 160mts2. Los niveles 12 al 20 son apartamentos de 1 por nivel de 3 habitaciones con un total de 283mts2 cada uno, para un total de 24 apartamentos. El nivel 21 está destinado a 345 mts2 de áreas sociales, la cual poseerá un área de piscina con deck, gimnasio y terrazas Elamuebladas.carácterformal es moderno. Se propone el uso de pañete liso y hormigón visto como materiales de fachada, complementado con elementos de madera rayado, lockers metálicos y barandas de vidrio. La terminación de los interiores, tanto de las áreas sociales como de las residencias, se plantea con este mismo concepto de carácter moderno.

Torre

AAA 082/130

Proyecto Torre Piantini 41 Dirección C/ Manuel de Jesús Troncoso, esq. Andrés Julio Aybar, Piantini, Santo Domingo, República Dominicana Propietario Fideicomiso Piantini 41. Constructora Cuenca y Suárez Año Inicio 2022 Área Total de Construcción 10,750mts2 Área del Solar / Lote 679.46mts2 Tipología Torre Residencial Diseño Instalaciones Mecánicas Ing. Nelson Perdomo Imágenes, Renders y 3D Cúbico 3D Contratista General Constructora Cuenca y Suárez Cantidad de Estacionamientos 71 unidades Diseño Arquitectónico Selman Arquitectos Empresa Selman Arquitectos Colaboradores Arq. Rafael Selman, Arq. José Manuel Alvarez, Arq. Aylin Suárez, Arq. Lia Duarte Diseño Estructural Ing. Luis Abbott Diseño Eléctrico Ing. Nelson Perdomo Diseño Sanitario Ing. Leonardo Sosa. Diseño Sistema de A/A Ing. Nelson Perdomo

Nuestra Visión corporativa es continuar desarrollando proyectos atractivos con sus atributos y agregados para los distintos segmentos del mercado inmobiliario, cuya marca diferencial esta originada en la innovación constante, mezclas de diseños, diversificación del producto, colaborando con el desarrollo sostenible de la comunidad.

Proyectos ejecutados y en proceso Para planes futuros a corto plazo, estamos desarrollando tendencias diferentes para diversificar el abanico de opciones a la oferta inmobiliaria. Proyectos con apartamentos servidos, es decir, proyectos de apartamentos de una y dos habitaciones que ofrecen servicios hoteleros, en el mismo centro de nuestro Polígono Central, como Regatta Living I & II, ambos ubicado en el corazón de Piantini, son perfectos modelos de negocio para invertir con alto retorno, basado en un estudio de factibilidad y optimización sobre el mercado competidor de la zona. Así también, apostamos al sector inmobiliario turístico, Regatta Blue Bay, es un proyecto frente a la playa en el hermoso complejo de Playa Nueva Romana. Con unidades de una, dos y tres habitaciones con concepto hotel boutique con atractivas áreas para el disfrute de toda la familia.

AAA 082/132

Integridad: Cumplir a cabalidad nuestros compromisos asumidos y fortaleciendo día a día nuestra credibilidad en un mercado que demanda la confianza de nuestros clientes.

Pasión: Impregnamos un poco de nuestra alma en cada proyecto, entendemos que el primer paso al éxito es la pasión y eso hacemos, trabajamos por amor a nuestra labor.

En el año 2001 se lanzan al desarrollo de su primer proyecto inmobiliario independiente; la juventud e inexperiencia es el primer paradigma que deben vencer, pero que gracias al apoyo de muchas personas y el compromiso asumido, fueron venciendo a medida que se obtenían resultados positivos en cada uno de los proyectos. De esta manera un inicio con dificultades, se fue convirtiendo en una carrera de éxitos, lo cual fue generando la confianza necesaria que ha hecho que muchas personas, amigos y familiares se unan al desarrollo de la empresa. Más adelante se integra el ing. Roberto Lamarche, ingeniero civil graduado de la universidad INTEC; con la entrada de Roberto se desarrollan nuevas ideas y se suman fuerzas para catapultar de manera exponencial la empresa.

enfocando además a la construcción de proyectos más accesibles a los que regularmente estamos acostumbrados a desarrollar, ubicando estos proyectos en zonas estratégicas de la ciudad que tengan un alto perfil, pero que su costo no sea tan elevado como en el Polígono Central de la capital, como lo es el proyecto Regatta del Prado, en el sector los Prados en Santo Domingo.

Grupo Contemega

Valores

A corto plazo estamos focalizados además en la entrega de los proyectos: Regatta Palermo en Bella Vista, Regatta Residences en la avenida Enriquillo, Los Cacicazgos y Regatta Vita, en el sector Evaristo Morales de Santo Domingo.Hay que destacar también proyectos en proceso, como lo son Regatta forest, Mstudio y Distrito. Estos últimos en sociedad con Constructora Aybar.

Grupo Contemega es una empresa fundada en el año 2000, por jóvenes visionarios y emprendedores. Ha venido desarrollándose en la industria de la construcción inmobiliaria en la República Dominicana, abarcando tres aspectos fundamentales como unidad de negocio: promotora de proyectos, constructora y gestores de inversión. En estos 19 años Contemega ha construido y comercializado con éxito más de 20 proyectos de importancia en las más exclusivas zonas de Santo Domingo. Como muestra de esta experiencia se destaca el desarrollo de la marca Regatta, torres de apartamentos cuyo nombre se ha convertido en sinónimo de eficiencia en el diseño, calidad y garantía, acertando siempre con el producto correcto en el lugar y momentum ideal, dirigido a un variado mercado en la ciudad de Santo Domingo. La misión fundamental de CONTEMEGA, es marcar la diferencia ofertando un producto superior a un precio justo, buscando satisfacer y superar las expectativas del cliente, tal como se ha reflejado en cada uno de nuestros proyectos ya entregados. Mantenernos en constante movimiento, a la vanguardia de las nuevas tendencias y procesos en el sector de la construcción.

Dirección:Contactos:Calle Luis F. Thomen 110, Santo Domingo, República Dominicana. Teléfono: 809.227.5558 Instagram: @contemega Correo electrónico: www.contemega.com.doventas@contemega.com.do

Continuaremos nuestro enfoque en las propuestas de torres residenciales con concepto de privacidad y con la modalidad de un apartamento por nivel, en sectores exclusivos de la ciudad, obteniendo una eficiente distribución arquitectónica. Aqui se conjugan la iluminación y ventilación natural, como lo son los proyectos Regatta Veramia en Piantini, Regatta Altos del Parque en la Ave. Anacaona y Regatta Portofino en el sector de NosParaiso.estamos

Liderazgo: Desarrollando nuestra marca de la mano del crecimiento comunal, aportando ideas para el desarrollo sostenible de nuestro país.

Nombres directivos Ing. Ernesto O. Mejía Mazara Ing. Nain Y. García Yarull. Ing. Roberto Lamarche Lic Leonel Orlando Silfa Mazara Formación académica de sus directivos Ernesto Mejía y Naim García, ambos ingenieros civiles de profesión graduados de la universidad INTEC, con Posgrado en Administración de la Construcción, provenientes de familias con un legado en la construcción, se integran rápidamente al ámbito del sector.

Calidad: Buscando la excelencia en uno y cada uno de nuestros proyectos, no importando al mercado que vaya dirigido.

Este tipo de apartamento está en el nivel 17 el primer nivel y el nivel 18 el segundo nivel. El proyecto consta de los siguientes sistemas: 1.- Sistema de drenaje de aguas negras. 2.- Sistema de drenaje pluvial. 3.- Sistema de suministro de agua potable 4.- Sistema contra incendios y glp. Planta arquitectónica amueblada 2do nivel

En el segundo nivel consta de sala, 1/2 baño, comedor, estudio, escalera interior, cocina fría, cocina caliente, lavado, dormitorio servicio con baño completo.

Regatta del Sol EsteContemegaproyecto es una torre de uso residencial ubicada en la avenida Enriquillo esquina calle Rosario, provincia Santo domingo, capital de la República Dominicana. El proyecto se desarrolla en un área total de terreno de 592.71 mts2. La torre Regatta del Sol tiene 23 niveles en total, divididos de la siguiente forma: - Nivel sótano -4 al Nivel sótano -1: Estacionamiento vehicular - Nivel 1: Estacionamiento, Acceso vehicular, lobby y estar empleados - Nivel 2: Uso residencial / Área social con piscina - Nivel 3 al nivel 16: Uso residencial La torre consta de un total de 15 apartamentos de diferentes tipos, un apartamento por nivel, los cuales clasificamos de la siguiente forma: Apartamento de 3 habitaciones

Este consta de lobby, 1/2 baño, sala, cocina, comedor, terraza con balcón, sala estudio, lavado, cocina caliente, servicio con baño completo, estar familiar y 3 dormitorios cada uno con baño completo y vestidor. Este tipo de apartamento está del nivel 3 al nivel 16. Apartamento tipo Pent-house de 2 niveles Este consta en el primer nivel de lobby, balcón, estar familiar, escalera interior, kitchenette, un dormitorio principal con balcón, baño completo y vestidor; y 3 dormitorios cada uno con baño completo y vestidor.

Planta arquitectónica amueblada 12vo nivel

Proyecto Sol Arquitecto Daniel Pons Estructuralistas Abbott Sanitarios Coydisa (Yuri Ariza) Electricos As Electricidad Mecanico (Extraccion Sotanos) Bruce Jimenez

- 5 Niveles soterrados de uso vehicular: 128 parqueos. (5,622.50 m2)

DiseñoContemegayconstrucción

- Nivel 3 al 4: 30 habitaciones (1,535.70 m2) - Nivel 5: 11 habitaciones (768.20 m2) - Nivel 6 al 11: 66 habitaciones (3,394.20 m2)

- 5 Niveles Soterrados: 5,622.50 m2 - Área parcial de construcción Niveles 2-11 = 6,466.00 m2 - Área parcial de construcción Nivel 12 = 568.70 m2

de edificio de uso mixto ubicado en Av. Ing. Roberto Pastoriza, Ensanche Naco, Distrito Nacional, República Dominicana, Distrito Nacional, República LaDominicana.torrede uso mixto consta de 23 niveles de uso mixto y 5 niveles soterrados de uso vehicular. Está ubicada en la Av. Ing. Roberto Pastoriza, Ensanche Naco, Distrito Nacional, República Dominicana. El terreno es de topografía regular. El área total del solar es de 1,157.34 m2. El área total de construcción es de 19,561.50 m2 distribuida de la siguiente manera: - Nivel 1: Accesos, lobby y local comercial (1,157.34 m2) - Nivel 2: 12 habitaciones y gimnasio (767.90 m2)

- Área parcial de construcción Niveles 13-21 = 4,979.40 m2

- Área parcial de construcción Niveles 22-23 áreas sociales: 1,045.80 m2

Planta lobbyi nivel 5f

Planta

Planta nivel 7

AAA 082/136Spazio by Regatta

1- Construcción: El área total de construcción será de 19,574.37 m2, constituidas por: - Primer Nivel: -Edificación- Principal = 498.00 m2 Áreas Pavimentadas = 659.34 m2 Área parcial de construcción primer nivel = 1,157.34 m2

- Nivel 12: 4 hab. hotel y centro financiero (568.70 m2) - Niveles 13 - 21: Uso Residencial (79 habitaciones) (4,979.40 m2) - Nivel 22 Uso comercial: Áreas sociales de hotel: (566 m2) - Nivel 23: Centro lúdico. (479.80 m2)

Proyecto Spazio By Regatta Estado Planificación Tipo: Uso Mixto Solar: 1,157.34 m2 Área Total Construida 19,574.37 m2 Ubicación Av. Ing. Roberto Pastoriza, Ensanche Naco, Distrito Nacional, República Dominicana. Arquitectura DL+A Arquitectos Construcción Constructora Contemega Estructuralistas Abbott Sanitarios Coydisa (Yuri Ariza) Electricos Alexis Ortega Mecanico (Extraccion Sotanos) Bruce Jimenez

AAA 082/138The Central by Regatta THEContemegaCENTRAL

Para la Torre se dispondrá de dos equipos de bombeo uno en uso continuo y otro de emergencia. La grifería de todo el proyecto será de tipo monomando asegurando así el ahorro de agua en el proyecto.

Agua Potable: El agua potable para utilizar será suministrada por la CAASD la cual se tomará del medidor de la calle para ser depositada en una cisterna y de ahí ser distribuida a los apartamentos Residenciales, a Hotel y sus Dependencias, también a Los Locales Comerciales y dependencias, Todos con sus medidores. mediante equipos de bombeos.

Electricidad: La Torre utilizara luz trifásica a ser suministrada por EDESUR. Constará de un transformador independiente para el proyecto. En caso de emergencia tendrá una planta eléctrica full con su transfer automático con un tanque de almacenamiento de combustible. Cada uno de los apartamentos tendrá su medidor de consumo. El gas común se almacenará en un tanque destinado para tales fines con sus respectivos medidores.

Planta amueblada lobby

Planta amueblada nivel hotel Planta terraza

Características del Proyecto:• 3 niveles para Parqueos del Hotel y Residenciales (74 Parqueos) • 1 nivel para Parqueos de Espacios Comerciales (22 Parqueos) • Uno u Dos parqueos para cada apartamento (Residenciales) • Entrada peatonal. • Lobby con área de Estar • Dos (2) Ascensores • Dos (2) Escaleras • Circuito cerrado de vigilancia. • Servicios generales (gas común, video portero, planta full, Brazos eléctricos, sistema contra incendio, A/A, etc.) • Brazos eléctrico para vehículos • Gimnasio Equipado.• Piscina. • Salon Multiusos

Aguas Sanitarias: Las aguas negras que genere la operación de los apartamentos serán recolectadas a una cámara séptica la cual se conectara a un pozo filtrante construido en obra.

• 2do Nivel Gimnasio, Salón Reuniones y Oficinas Hotel.• 3er @ 6to Niveles Aparts. Hotel.• 7mo @ 15vo Niveles Aparts. Residenciales.• 16vo @ 19vo Niveles Aparts. Hotel. • 20vo Nivel Rooftop.

• Areas Sociales • Lavanderia General • Pasillo de Carga Y Descarga Areas Comerciales. Manejo de los residuos y servicios Residuos Sólidos: Los residuos sólidos del proceso de construcción de la obra consistirán esencialmente de desperdicios compuestos de cemento y arena, fundas de papel y escombros de bloques, los cuales serán trasladados a zonas de bote de material. Una vez el edificio este en operaciones los desechos sólidos serán depositados los recipientes de basura para luego ser recogidos por el ayuntamiento.

BY REGATTA, está ubicado en la Calle Manuel De Jesús Troncoso # 25 del Sector Piantini, de esta ciudad de Santo Domingo, Distrito Nacional. Dicho proyecto consiste en una torre de 20 Niveles de Uso Mixto *Hotel (55 Hab.) *Comercial *Residencial (63 Aparts.) Distribución por pisos: • 4 Niveles de Uso Vehicular y Servicios. • 1er Nivel Para área de lobby y Recepción Hotel más local Comercial.

Proyecto The Central by Regatta Arquitecto Francisco Valera Estructuralistas Abbott Sanitarios Ing. Solve (Raul) Eléctricos As Electricidad Mecanico (Extracción Sótanos) Bruce Jimenez

Premios Cámara Dominicana de la Construcción 2013-2016 Ganador Primer Lugar Categoría Mención Villas

Premios Mercado Construcción “Primer lugar proyecto residencial” Premios Construgala 2018 “Primer Lugar Obra destacada, Serena 6 Punta Cana” y “Primer Lugar Diseño Torre Mstudio, Piantini.”

Constructora Aybar

Premios Premios CEMEX 2019 “Segundo lugar Vivienda Residencial”

Premios CEMEX 2013, 2016 Ganador Primer Lugar Categoría Habitacional Premios CEMEX 2010,2013.

Email: ventasproyectos2@grupoaybar.com

Dirección:Contactos:Ave. Abraham Lincoln no. 1025, Santo Domingo, República Dominicana Teléfonos: 809.547.3746

Somos una empresa de Construcción que fue fundada en Santo Domingo en el 1987 por Rafael Aybar Báez. En 1997 con la muerte del Sr. Aybar Baez, su hijo Rafael Aybar Medrano asume la Vice –Presidencia de la compañía y en el año 2001 se separa de su antiguo socio y funda lo que hoy se conoce como Constructora Aybar, S.A.

Tenemos muchos años de experiencia en los complejos turísticos más importantes de la República Dominicana, como son: Casa de Campo, Punta Cana, Cap Cana, Cana Bay, y también experiencia en importantes obras comerciales. Nuestro compromiso Constructora Aybar es una empresa comprometida con los más altos estándares de calidad. Nos basamos en guiarnos de buenas conductas éticas en todos nuestros negocios, apoyándonos también de los subcontratistas más calificados y así lograr excelentes resultados. Como consecuencia tenemos muy buenas relaciones con nuestros clientes. Nuestra atención a los detalles es los que nos separa de la competencia. Enfocados en que cada detalle incluso los más pequeños sean realizados bien. Poseemos la dedicación para entregar un producto con la mas alta calidad y servicio.

Durante estos años hemos ejecutado más de 50 proyectos importantes, más de 50 mil metros cuadrados de obras civiles, eléctricas y sanitarias, con un costo aproximado de 30 millones de dólares. Qué hacemos Somos especialistas en la construcción de villas, grandes proyectos turísticos, proyectos industriales y proyectos comerciales para clientes nacionales e internacionales.

Formación académica de sus directivos: Ingeniero Civil

Nuestra filosofía Creemos en la formación de solidas y honestas relaciones, vitales para el desarrollo exitoso de un proyecto. Por eso tenemos muy buenas relaciones con los arquitectos, diseñadores de interior y suplidores mas destacados, pero sobre todo con nuestros clientes. Aseguramos el trabajo en equipo hacia la meta de su total satisfacción. Ante todo la construcción es nuestra vocación, pasión y trabajo de vida. Más importante que cualquier proyecto extraordinario para nosotros está brindarles una excepcional experiencia al cliente. Nos enorgullece ser parte creativa y colaboradora durante el proceso constructivo. Cada cliente y proyecto recibe nuestra atención individual desde inicio a fin. Hacemos que la construcción de su hogar sea fácil, divertido y sin mucho esfuerzo.

Instagram: www.grupoaybar.com@constructoraaybar

Nombres y cargos principales directivos: Rafael Aybar y Luis Aybar

Botannia Constructora Aybar Inspired by nature with your own botanical garden view A new evolution of award winning designer villas in casa de campo

Confotur: tax exemption for property transfer and annual tax for 15 years

Live the life you deserve in casa de campo

Confotur: tax exemption for property transfer and annual tax for 15 years

5

Confotur: tax exemption for property transfer and annual tax for 15 years

Confotur: tax exemption for property transfer and annual tax for 15 years

Planta amueblada 4 habitaciones Planta amueblada 5 habitaciones deluxe Planta amueblada 6 habitaciones

10 Exclusive villas located in the new dye fore lagos neighborhood in world famous casa de campo and enjoy the magnificent and beautiful views designed by renow landscaping architects. You will experience casa de campo like never before. This award winning designer villas with ecofriendly features for those who love and design and nature living Villa types 4

LotBedroomsize:2,109 mts Built area : 1,000 mt 2 Roofed area with floors : 707 mt 2

6 Bedroom resident Lot size 2,109 mts Built area 1,240 mt 2 Roofed area with floors 844 mt 2

Confotur: tax exemption for property transfer and annual tax for 15 years 5 Bedroom deluxe Lot size : 2,109 mts Built area : 1,183 mts Roofed area with floors : 772 mt 2.

5 Bedroom resident Lot size : 2,109 mts Built area : 1,255 mt2, Roofed area with floors : 840 mt 2

LotBedroomsize:2,109 mts, Built area : 1,000 mt 2, Roofed area with floors: 660 mt 2

Proyecto Botannia Dirección Casa de Campo Propietario Alti DFLDeveloverDevelopment Group Año Inicio/Término Obra 2022 octubre Área Total de Construcción 1,100 m2 Área del Solar/Lote 2,100 m2 Linderos y Retiros 2.5m Cantidad de Estacionamientos 6 Diseño Arquitectónico Arturo Despradel Supervisión Arquitectónica Despradel Arquitectos Empresa Despradel Arquitectos Colaboradores Alti DespradelDevelopersArquitectos Contratista General Constructora Aybar Diseño Estructural Luis Abott Diseño Iluminación Prolum Imágenes Render y 3D Cúbico Instalaciones Sanitarias Constructora Aybar Materiales y Terminaciones de construcción Promaco Materiales Eléctricos Detallista y Ferré Universo Luminarias Prolum Cerramiento Vidrio Ansa Revestimientos Marmotech Terminaciones / Pintura PPG Impermeabilización Selladores Cobian Sistemas Acústicos Cielos acústicos

SecciónSección Planta arquitectónica 1er nivel Elevación frontal Elevación posterior Elevación lateral derecha Elevación lateral izquierda

AAA 082/146Vista Parque Constructora Aybar Living in Casa de Campo Just got Better. 10 exclusive villas in an Ecological park enclave near Casa de Campo world famous Falllandmarks.inLove with architecture and nature in Vista Parque where you will live inside an ecological park and enjoy the magnificent and beautiful views designed by renow landscaping architects. You will experience Casa de Campo like never before. This award winning designer villas with ecofriendly features for those who love and design and nature living Villa VistatypesParque

Villa | 5 Bedrooms Lot size: 1717 mts / EAST facing lots Built area : 910 mt2 Roofed area with floors : 640 mt2 Confotur - Tax exemption for property transfer and annual tax for 15 years. Vista Parque Villa | 5 Bedrooms Deluxe Lot size : 1717 mts / EAST facing lots Built area : 1035 mt2 Roofed area with floors : 710 mt2 Confotur - Tax exemption for property transfer and annual tax for 15 years.

AAA 082/148

Proyecto Vista Parque Dirección Casa de Campo Propietario Alti DFLDeveloverDevelopment Group Año inicio/Término Obra 2022 octubre Área total de Construcción 1,100 m2 Área del Solar/Lote 2,100 m2 Linderos y Retiros 2.5m Cantidad de Estacionamientos 6 Diseño arquitectónico Arturo Despradel Empresa Despradel arquitectos Colaboradores Alti DespradelDevelopersArquitectos Contratista General Constructora Aybar Diseño Estructural Luis Abott Diseño Iluminación Prolum Imágenes Render y 3D Cúbico Supervisión Arquitectónica Despradel Instalaciones Sanitarias Constructora Aybar Materiales y Terminaciones de Construcción Promaco Materiales Eléctricos Detallista y Ferré Universo Luminarias Prolum Cerramiento Vidrio Ansa Revestimientos Marmotech Terminaciones / Pintura PPG Impermeabilización Selladores Cobian Sistemas Acústicos Cielos acústicos

• Giralda IX, Arroyo Hondo Viejo Sto. Dgo. D. N. - 2007-2009

• Maquey Luxury condos, Sosua Puerto plata - 2003-2004

• Giralda I, La Meseta, Arroyo Hondo, Sto. Dgo. D.N. - 1998-2000

• Torre 10.1. Serralles Sto. Dgo D. N. - 2010-2012

Proyectos de relevancia ejecutados o en proceso de ejecución

Inicia su trayectoria en el diseño y la construcción en el año 1998 como cofundador de la Constructora Millenium III y posteriormente funda Arq. Jorge Montalvo & Asoc. (Ingeniería & Arquitectura), una empresa que nace a finales del año 2009 fruto de la visión del Arquitecto Jorge Montalvo, luego de esos primeros once años de experiencia en el área de diseño y construcción de proyectos residenciales, turísticos y comerciales tanto en Santo Domingo como en el interior del país. Gerente General: Jorge Luis Montalvo Iglesias Abril Instituto2012Tecnológico de Monterrey, SD Diplomado en Administración de Proyectos (PMI) 1993 –Universidad1998Nacional Pedro Henríquez Ureña (UNPHU). Magna Cum Laude BachillerColegio1989-Arquitecto1993LoyolaenCiencias y Letras. Bachiller Distinguido Actual presidente de la Asociación Dominicana de Constructores y promotores de Vivienda (ACOPROVI) en el periodo 2021-2023 Actual director del Consejo Nacional de la Empresa privada (CONEP) en el periodo Actual2021-2023asesor de la directiva de la Asociación de industrias de la República Dominicana (AIRD) en el periodo 2021-2023 Directivo de la Asociación Dominicana de Constructores y promotores de Vivienda (ACOPROVI) 2008-2021

• Los Arroyos, Arroyo Hondo viejo Sto. Dgo. D. N. - 2000-2001

• Residencial Paseo del Arroyo, Arroyo Hondo, Sto. Dgo. D.N. - En fase de diseño

• Giralda III, Arroyo Hondo viejo Sto. Dgo D. N. - 2000-2001

•2017-2019TorreStudios 14.5, Evaristo Morales Dgo. - 2016-2018

• Torre Oxo 7.7, Piantini - 2006-2007

• Torre Studios 12.3, Naco Sto. Dgo D. N - 2014-2016

Contacto: Arq. Jorge Montalvo & Asociados, SRL Dirección: Avenida Los Próceres, Diamond Mall, 2do. Nivel, Local No.22-B, Sector Arroyo Hondo.

• Victorian I Luxury condos, Cabarete Puerto Plata - 2005-2006

• Torre Oxo 8.7, Serralles Sto. Dgo D.N. - 2007-2009

• Galerías Luxury condos, Sosua. Puerto Plata - 2006-2007

• Torre Studios 15.6, Serralles Dgo D. N. - 2019- 2022

AAA 082/150Arq. Jorge Montalvo & Asociados, SRL

• Giralda IV, Arroyo Hondo viejo Sto. Dgo D. N. - 2001-2002

Teléfonos: 809.549.6850 Celular: 809.430.4826 Correo electrónico: jm@jorgemontalvo.com

• Giralda VI, Arroyo Hondo viejo - 2005-2006

• La Marquesa Town Center I, Ciudad Juan Bosch, Sto. Dgo. Este - 2021- 2022

• Residencial La Marquesa Residences I, Ciudad Juan Bosch, Sto. Dgo. Este

• Victorian II Luxury condos , Cabarete Puerto Plata - 2006-2007

• Victorian III Luxury condos, Cabarete Puerto Plata - 2007-2008

Premios Ganador de premios Construgala 2022 en la categoría de proyecto inmobiliario en Sto. Dgo. Hasta US$ 150,000. Torre Studios 15.6 Uptown.

• Giralda V, Arroyo Hondo viejo Sto. Dgo D. N. - 2002-2003

• Torre ZT 11.2, Serralles Sto. Dgo D. N - 2012-2014

• La Marquesa Town Center II, Ciudad Juan Bosch, Sto. Dgo. Este - En ejecución

La torre está compuesta por nueve niveles de viviendas, más primer nivel donde se encuentra el lobby, área de lockers y área de parqueos donde se incorporaron 3 novedosos parqueos de elevación hidráulicos, además de un semisótano de estacionamientos y lockers. Studios 15.6 consta de 32 apartamentos de una y dos habitaciones y 4 unidades de tipo loft para un total de 36 apartamentos. De manera general cada apartamento tiene una altura de 2.95mts (piso-techo) dando una sensación espacial de mayor amplitud; cuentan con puertas y closets de terminación de primera, gabinetes de cocina modulares con diseños contemporáneos, topes de granito natural, revestimientos y pisos de baño en cerámica importada, pisos de porcelanato en todas las áreas, accesorios de baño importados, ventanas correderas en aluminio, preinstalación de aires acondicionados, calentador de gas en cada apartamento, salida de gas para lavadora-secadora. En el décimo nivel está el área social; definida por un salón multiusos ambientado y equipado; con un espacio exterior que cuenta con jacuzzi y área de BBQ; gimnasio equipado y ambientado el cual consta con área exterior que sirve de soporte para diversificar las actividades físicas; cuarto de lavandería equipada con lavadora y secadora y baños para damas y caballeros. Dentro de las generalidades de la torre están: lobby con diseño moderno y en doble altura, dos ascensores de última generación, dos escaleras de servicio, mangueras contraincendios en todos los niveles, dos bombas de agua, pozo tubular, baño para guardián y chóferes y planta full; cuenta también, con sistemas de intercom, gas común, cámaras de seguridad, alarma contraincendios a nivel soterrado,

Studios 15.6 Arq. Jorge Montalvo & Asociados, SRL

El proyecto Studios 15.6 UPTOWN , es una torre de apartamentos localizada en la Calle Malaquías Gil #4 esquina Calle B en el sector Serrallés en el Polígono Central de la ciudad de Santo Domingo, Distrito Nacional. Sitiado estratégicamente a minutos de centros comerciales y lugares de interés, facilitando a sus habitantes la movilidad, acceso y traslado, en correspondencia con el requerimiento. Con la experiencia de otros proyectos compactos previos, en los cuales se trabajan mayormente dos tipologías de apartamento por proyecto, aquí se ofrece tipologías para los más exigentes gustos, el perfil del cliente que va dirigido este proyecto es para la clase alta y media alta con una intención de invertir o para uso propio.

Studios 15.6 Uptown es una torre emplazada en un lote de esquina, lo cual aprovecha para lograr una ubicación favorable de las unidades habitacionales dentro del conjunto, diseñada de manera simple y funcional con una envolvente donde interactúan volúmenes planos y líneas curvas que reflejan lo que hay en su interior, que cuenta con espacios bien ventilados e iluminados que contribuyen a elevar la calidad de vida de los usuarios, al tiempo de responder a las necesidades del mercado de apartamentos compactos que constituye uno de los más importantes en el desarrollo inmobiliario del Distrito Nacional.

Planta arquitectónica 2do nivel Planta arquitectónica 2do nivel Elevación frontal Elevación lateral izquierdo

Proyecto Studios 15.6 Uptown Dirección Calle Malaquías gil #4 esquina calle B, Serrallés, D.N. Sto. Dgo. Propietario Fideicomiso Studios 15.6 Uptown Año Inicio/Término Obra 2019/ 2022 Área Total de Construcción 5,142.70 m² Área del Solar/Lote 699.40 m² Cantidad de Estacionamientos 43 parqueos Diseño Arquitectónico Arq. Jorge Montalvo Colaboradores Arq. Marie Nieves Diseño Estructural Ing. Luis Abbott Diseño Eléctrico Ing. Victor Suriel Diseño Sanitario Ing. Ángel Montaño Diseño Interior / Decoración Arq. Jorge Montalvo Arq. Marie Nieves Imágenes Render y 3D Polygon Studio Lab Xiomara Carpio Contratista General Arq. Jorge Montalvo & Asociados Ing. Hamilton Malena Supervisión Arquitectónica Arq. Jorge Montalvo Ingeniero Residente Ing. Leslie Santana Instalaciones Eléctricas INGJOA Instalaciones Sanitarias Ing. Elvis Sánchez Estructuras metálicas, barandillas y portones en hierro Talleres Bello Luminarias Lux Gallery Cerramiento Vidrio Eduardo Arzeno e hijos Closets Closetmaid Ebanistería Italporte Calentadores de Gas y BBQ HERGALL Revestimiento Marmotech Impermeabilización Selladores Cobián Señalización Sign Tech Ascensores KONE Divisiones Internas, Plafones, A/A y cocinas Cielos Acústicos Sistemas de Seguridad Servi Solutions Intercom y Motores Portones de Acceso SEGTRONIC Elevadores de Parqueos Fixdom construcciones Topes de Cocina COMARTEC SRL Aparatos Sanitarios BACCESORY

Este proyecto se compone por un total de 94 locales comerciales de distintos tamaños que van desde 27 a 50 m², con 117 parqueos para autos; incluyendo 2 para personas con discapacidad y 4 parqueos de motores. El conjunto aprovecha la riqueza urbanística de la ciudad Juan Bosch con sus anchas aceras y sus ciclovías para que la edificación dialogue e interactúe con su entorno. Los parqueos se ubican detrás de los bloques dejándole el protagonismo al peatón. La plaza es amigable a la accesibilidad universal contando con rampas peatonales de materiales antideslizantes en varios puntos y en cuanto a espacios se diseñó un baño de uso común en el primer nivel según los parámetros de accesibilidad universal. El área verde del proyecto está dispuesta para disminuir el calor desprendido de los bloques de hormigón y crear una buena relación con el entorno. La plaza cuenta con 3 núcleos de áreas comunes, donde están dispuestos los baños y escaleras. En la parte posterior del proyecto se disponen el espacio de depósito y recogida de desechos sólidos y la ubicación de la planta eléctrica. En el techo del bloque en forma de L se dispone de un salón multiusos con área de baños independientes, para ser usado como área de comedor y otras actividades relacionadas a la plaza por los propietarios y empleados de la misma.

Nuevamente desarrollada por el Consorcio Construcciones Planificadas, es la primera en su tipo en Ciudad Juan Bosch, emplazado en los lotes 05-18-08 y 05-18-07 con un área de 5,111.39 m², ubicada en el corazón comercial de este importante desarrollo inmobiliario de Santo Domingo. Tiene como finalidad el diseño de una plaza compuesta de múltiples locales, dedicados a la venta al detalle de bienes de uso diario, compatibles con el uso predominante residencial de la zona. La misma cuenta con varios puntos de acceso peatonal y 2 puntos de acceso vehicular, uno en la Avenida Camino Real y otro en la calle Carmen Quidello de Bosch. Ha sido concebida en dos lotes continuos que hacen esquina con una rotonda. Es una plaza abierta que aprovecha la iluminación y ventilación naturales; este conjunto arquitectónico está compuesto por tres edificios, dos de ellos ubicados sobre la avenida. Los bloques están conectados entre sí por un puente peatonal, compuesto por un arco con tirantes que constituye un hito dentro del conjunto y estos a su vez se conectan con un bloque más grande, en forma de L por otro puente más pequeño de iguales características.

Planta arquitectónica de conjunto Elevación frontal Elevación lateral izquierdo

AAA 082/154La Marquesa Town Center I Consorcio Construcciones Planificadas (Cp Construcciones Planificadas / Arq. Jorge Montalvo & Asoc)

Proyecto La Marquesa Town Center I Dirección Av. Camino Real esq. Carmen Quidello de Bosch Propietario Fiduciaria La ConstruccionesNacional-Consorcioplanificadas Año Inicio/Término Obra 2021/ 2022 Área Total de Construcción 4,120.87m2 Área del Solar/Lote 5,105.17m² Normativas Guía normativa Ciudad Juan Bosch/ reglamentos MOPC Linderos y retiros Frontal: 1.50 ml. Posterior: 2.00 ml. Laterales: 1.50 ml. Alturas 3 niveles Cantidad de Estacionamientos 121 parqueos Diseño Arquitectónico Arq. Jorge Montalvo & Asociados Colaboradores Arq. Marie Nieves Diseño Estructural Ing. Ivan Fernandez Sterk Diseño Eléctrico Ing. Victor Suriel Diseño Sanitario Ing. Ivan Gómez Imágenes Render y 3D Polygon studio lab Contratista General CP Construcciones planificadas Arq. Jorge Montalvo & Asociados Leslie & asociados Supervisión Arquitectónica Arq. Jorge Montalvo & Asociados CP Construcciones planificadas Ingeniero Residente Mario Alcantara Maestro de Obras Luis Caraballo Instalaciones Eléctricas SECOMIL Estructuras Metálicas Talleres Bello Luminarias LUX EvoluciónGALLERYBMP S.R.L. Cerramientos y Barandillas en Aluminio y Vidrio IMPORVIDRIOS Barandillas / herrería J.J.H. METALURGICOS Terminaciones / Pintura RCA Pinturas Impermeabilización Selladores Cobián Jardinería Jardinería Makino Financiamiento Asociación Popular de A y P Seguros Mapfre BHD Master Bróker (Ventas) Bienvenido Paulino, Plusval-Ventas directas Terminaciones parqueos en hormigón IPISA

Cada apartamento tiene áreas definidas de dormitorios, baños, closets, sala, comedor, cocina, área de lavado y balcón. Los apartamentos del primer nivel cuentan con el área de lavado en el exterior y los del cuarto nivel cuentan con un área delimitada de terraza en el techo. Cada una de las viviendas del proyecto cuenta con una unidad de parqueo y en algunos casos hasta 2 parqueos por vivienda.

El proyecto La Marquesa Residences I tiene como fin mejorar la calidad de vida a las familias que busquen adquirir una vivienda de bajo costo confortable para formar y mantener sus hogares en un espacio que les proporcione seguridad, paz y armonía, ofertando a sus habitantes servicios de infraestructuras de calidad y ambientes para la recreación, tomando en cuenta el aspecto económico para su adquisición. El diseño arquitectónico aprovecha la maravillosa infraestructura urbanística de Ciudad Juan Bosch con sus amplias aceras y ciclovías, buscando el predominio del peatón y logrando que las edificaciones dialoguen adecuadamente con su entorno, resolviendo los estacionamientos hacia el interior del desarrollo del proyecto, con amplias áreas verdes donde han sido desarrolladas áreas de juego, huertos urbanos, gazebos y gimnasio exterior para el disfrute de todos los que habitan estos apartamentos, logrando una riqueza de infraestructura urbana de la que gozan pocos residenciales del gran Santo Domingo.

1.son:Gazebo/multiuso: 2. Área de Juegos Infantiles 3. Media Cancha de Baloncesto Planta arquitectónica tipo r1 Planta arquitectónica tipo r3 ElevaciónElevación

AAA 082/156La Marquesa Residences I Consorcio Construcciones Planificadas (Cp Construcciones Planificadas / Arq. Jorge Montalvo & Asocs.)

El proyecto se desarrollo bajo la figura del fideicomiso a través del Consorcio Construcciones Planificadas conformado por las empresas Construcciones Planificadas y el Arq. Jorge Montalvo & Asociados, como parte de esta gran alianza público-privada con la se buscaba un modelo que pueda ofrecer una solución viable al gran déficit habitacional que afecta a nuestro país. A pesar de no tener experiencia previa en el mercado de bajo costo, decidimos sumar esfuerzos y con nuestra larga experiencia en el área residencial, asumir el reto y embarcarnos en este gran proyecto que está compuesto por 280 unidades de apartamentos, desarrollados en un lote de poco más de 18,000.00 mts2 en una ubicación privilegiada, a escasos metros de la Avenida Ecológica.

Los apartamentos vienen definidos por rangos dependiendo su área de construcción; el apartamento más grande cuenta con 76.30 m² y representa el 66% de viviendas construidas.

El proyecto está ubicado en el lote 1 no. Catastral 07-35-01 del proyecto Ciudad Juan Bosch, en la segunda etapa del mismo. Se construyeron 35 edificios multifamiliares, distribuidos en 3 tipos de apartamentos diferentes, de los cuales 6 apartamentos tenían la opción de ser habilitados para personas discapacitadas (limitaciones motrices), de ser requerido. El objetivo principal del proyecto es promover la erradicación del déficit habitacional que afecta la ciudad de Santo Domingo Este, dirigiéndonos al fiel cumplimiento de la ley 189-11.

La Marquesa Residences I cuenta con amplios espacios recreativos que promueven el bienestar y confort de sus habitantes, brindándoles seguridad y tranquilidad. Estas áreas

AAA 082/158Proyecto La Marquesa Residences I Dirección Calle Camino Real esq. Calle Navidad Este, lote 07-35-01, Ciudad Juan Bosch Santo Domingo Este. Propietario Fiduciaria Universal / Consorcio Construcciones Planificadas Año inicio / Término obra 2017 / 2019 Área total de Construcción 19,459.20 m² Área del Solar / Lote: 18,285.02 m² Normativas Guía normativa Ciudad Juan Bosch / reglamentos MOPC Linderos y Retiros 3m. vía principal – 2m. vía secundaria – 1.50m. posterior y lateral Cantidad de Estacionamientos 309 parqueos Diseño Arquitectónico Arq. Jorge Montalvo & Asociados Colaboradores Arq. Stephany Sánchez Arq. Ada Sheila Florentino Diseño Estructural Ing. Luis Abbott Diseño Eléctrico Ing. Victor Suriel Diseño Sanitario Ing. Ángel Montaño Imágenes Render y 3D Arq. Eduardo León Contratista General CP Construcciones Planificadas Arq. Jorge Montalvo & Asociados Leslie & Asociados Supervisión Arquitectónica Arq. Jorge Montalvo & Asociados CP Construcciones Planificadas Ingeniero Residente Mario Alcántara Maestro de Obras Luis Caraballo Instalaciones Eléctricas Secomil Herreria en general José Hernández Cerramiento Vidrio Imporvidrios Terminaciones parqueos en hormigón IPISA Portaje Everdoor - Pacific Revestimiento La Ibérica Impermeabilización Selladores Cobián Cocinas Sinergama Jardinería Jardinería Makino Sistemas de Seguridad RG Comunicaciones Master Bróker (ventas) Bienvenido Paulino, Ventas Directas

Turn static files into dynamic content formats.

Create a flipbook
AAA082 El fenómeno de la escala en el panorama urbano de RD by Revista AAA - Issuu