Rumah Tiga Traditional Market in Ambon | Architectural Presentation Board

Page 1


DenganPendekatanRegionalismeKritisDiAmbon

Pasar Rumah Tiga merupakan bangunan pasar tradisional dengan pendekatan regionalisme kritis yang diintegrasikan dengan nilai-nilai tradisional, dan identitas lokal dalamhalinikarakterbudayajualbelidipasartradisionalyangadadiAmbon PasarTradisionaliniakanmenampungsekitar150pedagang Diharapkan perancangan ini dapat menjadi wadah bagi pedagang dan pembeli melakukan aktivitas jual beli, dengan nilai lokalitas yang ditimbulkan menjadi daya tarik masyarakatuntukmerasakannilailokalitasdenganpengalamanvisual termal taktil danaromapadasaatberbelanja DenganpotensimaritimyangdimilikiolehKotaAmbontentunyakomoditasutamayangakandiwadahiyakniikandanhasillautdisampingkebutuhanpanganlainseperti sayur buah danlainnya

KONTEKSLOKASI

ProvinsiMalukukhususnyaKotaAmbon memilikipotensikekayaanlautyang melimpahterutamapadasektorperikanan

LATARBELAKANG

Pasarmerupakanruangpublikuntukkegiatansosial ekonomi dan budaya yang sering kali ditemukan dalam kondisi kumuh, becek, dan bau akibat penggunaan ruang yang tidak optimal dan kurangnya perhatian terhadap kebersihan (Hia, 2022) Ambon sebagai ibu kota Provinsi Maluku yang memiliki potensi hasil laut yang melimpah memiliki Pasar Mardika sebagai kawasan pasar utama yang terletak di pusat kota Namun lokasi pasar ini menimbulkanmasalahaksesbagiwargadaribagian lain kota karena bentuk Pulau Ambon yang memiliki teluk sehingga area pusat kota dan sekitarnya terpisaholehteluktersebut

TapakberadadiJl InsinyurM Putuhena RumahTiga,Kec Teluk Ambon KotaAmbon Maluku

AreaTapakmemilikiluaskurang lebih4000m2

AksesmenujukeTapakmelaluijalan disisiselatan

RUMUSANPERMASALAHAN KONSEPPERANCANGAN

Bagaimana Rancangan Pasar Tradisional di Rumah Tiga Ambon sebagai wadah aktivitas jual beli dengan pendekatanregionalismekritisdiAmbon?

Bagaimana penataan ruang Pasar Tradisional Rumah Tiga di Ambon yang dapat mewadahi dan memberi pengalaman melalui panca indera (visual, termal taktil aroma) para pengguna sesuai karakteristik berbelanjamasyarakatAmbon?

Bagaimana bentuk bangunan Pasar Tradisional Rumah Tiga yang mengekspresikan nilai lokal dengan penerapanarsitekturregionalismekritis?

Dari berbagai permasalahan di samping, kemudian dikaitkan dengan nilai-nilai lokal dalam hal ini karakter budaya jual beli di pasar tradisional yang ada di Ambon Dalam penerapannya menggunakan pendekatan Arsitektur Regionalisme Kritis dengan tiga prinsip yang digunakan yakni Tactile Experience, yang kedua Nature Experience,yangketigaArchitectonicComposition

Tactle(Sentuhan Gerakan Suhu) Terma Aroma

AreaKomersial&Perumahanyang beradadisekitarTapak

Site memiliki luasan sekitar 4000

AMBON
Vsua

PERILAKUBELANJAMASYARAKAT

Pembeli biasanya berbelanja dalam jumlah yang banyak sehingga terdapat anak-anak hingga orang dewasa yang menawarkan jasa membawa belanjaan, biasanya menggunakan tas belanja dari rotan/bambu namun terdapat juga tas tradisional yang bernama Saloi Komoditi utama yang dijual yakni ikan dan hasil laut lainnya Pedagang ikan kebanyakan laki-laki karena di los dagang ini juga ikan dibersihkan dan dipotong sesuai request pembeli Losyangdigunakanterbuatdarikayudenganalasdaunpisanguntukmenaruhikan

KonsepLayout&Sirkulasi

KonsepTataRuang

SirkulasiZonaBasah&Kering

KonsepRegionalismeKritis

Kemudahan akses baik untuk pedagang pada saat bongkar muat barang, dan untuk pengunjung saat ingin berbelanja sesuai dengan komoditiyangada

Perletakkan zona disesuaikan dengan arah angin guna mencegah bau amis selain itu perletakkan beberapa area disesuaikan dengan view yang ada

Meletakkan area servis sebagai pemisah antara zona basah & kering, selain itu meletakkan kios pada sisi pojok agar view pengunjung tidak terhalangi

Lebar sirkulasi pada zona basah dan kering 2 meterdengansisitengahsebagaiareajalandan sisi samping sebagai area transaksi antara pedagang dan pembeli Pada sirkulasi zona basahdiberidrarinase

KonsepSelubungBangunan

TranformasiselubungbangunandariRumahBaileoyangtidak menggunakan dinding permanen ditransformasikan menjadi penggunaan dinding namun memiliki bukaan untuk penghawaandanpencahayaan,sehinggatidakmengurangi esensi ruang dalam bangunan sebagai tempat interaksi antarapedagangdanpembeli

Areadindingdibuat60%soliddenganmaterialkayudan40% void untuk bukaan tanpa menggunakan kaca Sehingga mengoptimakanpencahayaan&penghawaanalam

Menggunakan dinding dengan bukaan pada fasad memungkinkanviewkedalamdankeluar Menatakiospadasisipojokagartidakmenutupilosagar viewpengunjungtidakterhalangi Menggunakan elemen kayu pada ceiling sebagai penunjukarahsirkulasipengguna

TRANSFORMASIMASSA

Sitedenganluas4000m2&tidak berkontur

KDBsebesar2400m2denganGSB75m

Penambahanperkerasanuntuksirkulasi kendaraan&manusia4m-5m

Menyusunmassabangunanmenjadi 2 antaidenganmodifikasimassa lebhkecil

Pengolahanbentukbangunan yangmenginterpretasikan arsitekturlokalAmbon

Penanamanvegetasisebagai peneduh&untukmeminimalisirbau yangdihasilkandaripasar

Visual&Taktil

Datang Datang

MasukAreaPasar MembukaKos&Los

Mengawas KegiatandiPasar Berdagang BuangAir/Ibadah

Makan Makan

BuangAir/Ibadah Pulang Pulang Re-ChechkingPasar Tutup

PENGGUNA

EntranceUtama

Datang

MasukAreaPasar

Berbelanja Menunggu

BuangAir/Ibadah Pulang Makan

Pengunjungmengaksespasarmelaluientranceutamadi

sisi selatan, pada bagian depan terdapat area taman danareatunggukendaraan selainituterdapat2tangga yang digunakan untuk mengakses lantai 2 pasar Fasad bangunan menggunakan dinding kayu yang memiliki bukaan untuk visual pengunjung dan dinding tersebut memiliki motif yang diadopsi dari arsitektur lokal Maluku salahsatunyamotifSiwa

ZonaTransisi

Padasaatmasukkedalambangunanpasar,terlihatarea duduk areatungguporter,pusatinformasidanpenitipan barang serta area bermain anak Zona transisi juga dihiasi dengan ornamentasi arsitektur lokal Kemudian jikamelihatkearahbaratmakaterlihatzonapasarbasah dankearahtimurterlihatzonapasarkering

ZonaPasarBasah(Losikandanlainnya)

Dari zona transisi pembeli dapat mengakses zona basah komoditi yang ditawarkan seperti ikan daging ayam, hewan laut lainnya dan pangan basah lain sepertikelapaparut

Pada zona basah didominasi dagangan ikan, karena hasillautterbesarKotaAmbonmerupakanikan

Pada zona basah juga terdapat 2 akses langsung keluarbangunan

ZonaPasarKering(Losdankiossayur,buah,&lainnya)

Pada zona kering komoditi yang dijual mulai sayur buah bumbu, barang pecah belah makanan dan lainnya

Pada zona ini terdapat area los dan juga kios, los digunakan untuk pangan kering, dan terdapat beberapa kios non pangan seperti barang pecah belah plastik dusdanlainnya

Padazonakeringjugaterdapatjuga2akseslangsung keluarbangunan

AreaDineIn

Pada lantai 2 terdapat area dine in yang digunakan untuk pengunjung untuk mencicipi olahan ikan yang tersediadikios-kiosmakanan

Olahan masakan yang disediakan seperti ikan asap ikan asap yang diolah lagi bisa menjadi ikan asap balado ikan asap kuah santan, dan lainnya Selain makanan juga tersedia kios yang menjual jenis makanandanminumanlain

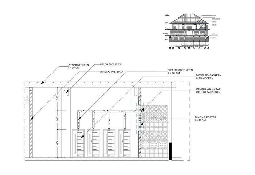
AreaProduksiIkanAsar(Asap)

Pada lantai 2 terdapat area produksi ikan asar ( proses pengasapan dilakukan menggunakan modern Hal ini agar asap yang dihasilkan tidak se pengasapan tradisional menggunakan kayu Tahapannya dapat dilihat oleh pengunjung s langsung Hal ini memberikan pengalaman tersendiri bagi pengunjung untuk dapat meng proses pembuatan ikan asap hingga mencicipinya

PROGRAMRUANG

HASILRANCANGAN

Legenda

B EntranceUtamaPejalanKaki

C Exit D ParkirMobl

E ParkirMotor F ParkirBecak

G AreaLoadingDock H DropOff

SITEPLAN
DENAHLANTAI1
DENAHLANTAI2
PotonganParsa
PotonganParsa

Turn static files into dynamic content formats.

Create a flipbook
Issuu converts static files into: digital portfolios, online yearbooks, online catalogs, digital photo albums and more. Sign up and create your flipbook.