Brochure assistentiewoningen Tuinwijk II - maart '23

Page 1

Uw eigen assistentiewoning dat is slim gezien.

Maak kennis met onze assistentiewoningen Tuinwijk in Merksem.

maart 2023

Mevrouw, Mijnheer,

Bedankt voor uw interesse in onze assistentiewoningen. Verspreid over heel de stad bieden wij al jaren degelijke en moderne assistentiewoningen aan. Dankzij die ervaring weten we perfect hoe we zo’n woning helemaal op uw maat moeten bouwen.

U woont zelfstandig in een comfortabele nieuwbouw, met andere senioren als buren. En als u wenst, is er nog extra comfort vlakbij: een lekker, betaalbaar middagmaal en boeiende activiteiten in het dienstencentrum, poetshulp, thuisverpleging, huishoudhulp, ... die diensten leveren we graag bij u aan huis.

U kiest zelf waar u wilt wonen. We hebben de voorbije jaren nieuwe assistentiewoningen gebouwd in Antwerpen (Cadix), Berchem (De Veldekens), Borgerhout (Boelaer), Deurne (Gallifort, Silsburg), Hoboken (Broydenborg), Linkeroever, Merksem (Melgeshof), Ekeren (Nobele Donk) en in Wilrijk (Oosterveld en Boeksveld) . Onze nieuwbouwflats zijn te koop en te huur.

Nu bouwen we ook assistentiewoningen in de Tuinwijk in Merksem. In deze brochure maakt u kennis met deze assistentiewoningen die in de zomer van 2023 worden opgeleverd. Stap er op papier al eens binnen, kijk rond en ontdek hoe u uw eigen assistentiewoning koopt of huurt. Of bezoek de modelflat.

Uw gading niet gevonden? Bezoek dan onze nieuwbouw assistentiewoningen in Berchem (Pulhof) of Berendrecht (Hagelberghof).

Heeft u vragen? Laat het ons weten: we helpen u graag.

Vriendelijke groeten, Johan De Muynck

Algemeen Directeur Zorgbedrijf Antwerpen

2

Assistentiewoningen Tuinwijk

Bij het woonzorgcentrum Melgeshof hebben we in fase één 43 serviceflats/ assistentiewoningen gebouwd, voorzien van alle comfort. Nu wordt er nog eens een nieuwe woontoren van 8 verdiepingen met 56 flats bijgebouwd. Alle flats hebben een privéterras, zijn rolstoeltoegankelijk en uitgerust met een persoonlijk alarmsysteem. De woontoren is omringd door een parktuin die toegankelijk zal zijn voor de buurt.

• De flats zijn te huur of te koop met een woonrechtcertificaat.

• Er zijn flats met 1 of 2 slaapkamers. Alle flats hebben een terras.

• Er komt ook een dienstencentrum op het gelijkvloers van de woontoren en fiets- en scooterberging voor bewoners en bezoekers. De ondergrondse parking is voorzien onder het woonzorgcentrum Melgeshof dat op wandelafstand ligt.

3
Uw eigen plek met alle comfort

De gloednieuwe assistentiewoningen Tuinwijk

In Tuinwijk kunt u in deze tweede fase kiezen tussen 3 types assistentiewoningen. Die zijn ingedeeld volgens oppervlakte, ligging en aantal slaapkamers. De flats zijn te huur of te koop.

Bekijk alle types vanaf pagina 14.

56 erkende assistentiewoningen

• Het gebouw bestaat uit acht verdiepingen met 56 gloednieuwe assistentiewoningen.

• De flats hebben een terras en 1 of 2 slaapkamers.

• Alle flats hebben een persoonlijk alarmsysteem en zijn rolstoeltoegankelijk.

• Het dienstencentrum bevindt zich op de gelijkvloerse verdieping en heeft een aparte ingang.

• Er is ook een aparte stalling voor fietsen en scootmobiels met een oplaadpunt. De ondergrondse parking is voorzien onder het woonzorgcentrum Melgeshof dat op wandelafstand ligt.

• De woontoren wordt omringd door een parktuin die toegankelijk zal zijn voor de buurt.

Dienstencentrum Tuinwijk

Op het gelijkvloers bevindt zich een gloednieuw dienstencentrum, waar bewoners van de flats en mensen uit de buurt ‘s middags lekker en goedkoop kunnen eten. Dienstencentrum Tuinwijk biedt daarnaast een ruim aanbod aan activiteiten en cursussen aan.

4

Tuinwijk: een groene buurt met alles vlakbij

De nieuwe flats en het dienstencentrum zijn gelegen op wandelafstand van het Fort van Merksem. Met het openbaar vervoer vlakbij bereikt u gemakkelijk andere delen van de stad. De flats hebben een mooi uitzicht op de aangelegde tuin op het terrein.

In de assistentiewoningen Tuinwijk kunt u rustig wonen en toch is alles wat u nodig heeft vlakbij: de bakker, de beenhouwer, de apotheker, de wekelijkse markt... U ziet alles ligt binnen handbereik.

In de Tuinwijk woont u rustig en in het groen, maar toch vlak bij de stad.

U hoeft niet ver te gaan om te ontspannen, te genieten of even tot rust te komen. Het is aangenaam wandelen in de omgeving van het Fort van Merksem (2 km) of park Rozendaal (1,2 km). Met het openbaar vervoer bent u zo in het centrum van Antwerpen om te shoppen. Of ga naar het stadscentrum voor een museumbezoek of om af te spreken met vrienden.

Trekt u er graag op uit met de fiets? Het dienstencentrum en de assistentiewoningen bevinden zich vlakbij het fietsknooppuntnetwerk (dichtstbijzijnde fietsknooppunt: 79). Via de fietsrouteplanner van Vlaanderen Fietsland vindt u fietsroutes die in de buurt starten.

U kan ook een beroep doen op de vervoersdienst van Zorgbedrijf Antwerpen.

5
6’
supermarkt bakker 1’ 4’ 5’ bushalte slager apotheek
8’

Kopen of huren

U kiest welke formule uw voorkeur geniet:

• U koopt eenmalig een woonrechtcertificaat aan en koopt daarmee het recht om 20 jaar te wonen. Na afloop krijgt u uw kapitaal voor de volle 100% terug.

• U sluit een bewonersovereenkomst af en betaalt maandelijks de huurprijs. voor alle types assistentiewoningen en prijzen: zie vanaf pagina 14

Servicekost

Bovenop de huur of de éénmalige kost van het woonrechtcertificaat betaalt u een servicekost van 8,40 euro per dag.

Wat is inbegrepen in de servicekost?

• Op weekdagen is er een dagelijkse aanwezigheid van een medewerker van het Zorgbedrijf.

• Woonassistentie wij faciliteren extra hulp met eten bij ziekte, opvolgen bewonersdossiers…

• Zorgbedrijf Antwerpen biedt 24u/24 en 7d/7 assistentie via uw persoonlijk alarmsysteem inclusief een medewerker die langskomt bij noodgevallen

• Gratis thuisverpleging mogelijk

• Gratis ergowoonadvies

• Voorrang op al onze andere diensten

• Dienstencentrum op het gelijkvloers warme maaltijd aan voordelige prijs, hulp bij administratie, waaier aan activiteiten…

U kiest zelf hoe u deze servicekost betaalt:

• Videofonie en toegangscontrole via badgesysteem

• Zorgbedrijf Antwerpen regelt praktisch en financieel alle herstellingen aan het gebouw

• Brand- en inboedelverzekering familiale verzekering

• Opvolgen inspecties, keuringen, voldoen aan regelgeving en erkenning

• Verhuisbegeleiding

• Schoonmaak en onderhoud gemeenschappelijke ruimtes

• Nutsvoorzieningen in de gemeenschappelijke delen: lift, verlichting in de gang...

• Branddetectie en blusapparaten

• Bij de aanvang van uw 20-jarige periode in één keer: 36.792 euro

• Maandelijks: 8,40 euro per dag

Als u de servicekost in één keer betaalt, is dit voordeliger: bekeken over de woonperiode van 20 jaar betaalt u anders meer dan 60.000 euro. De gestorte servicekost wordt echter nooit terugbetaald wanneer de certificaatstermijn afloopt, wanneer u verhuist of jammer genoeg overlijdt.

6

Met welke kosten moet u rekening houden wanneer u in een assistentiewoning gaat wonen?

Maandelijkse kosten: vast bedrag

U betaalt maandelijks een kostenvoorschot en ontvangt daarvan jaarlijks een eindafrekening.

• Dit omvat het individueel verbruik verwarming, warm water en stadswater in uw flat.

Wat u zelf bijbetaalt:

• Uw elektriciteitsverbruik in uw flat

• Televisie, internet, telefoon…

• Maaltijden

• Pedicure, kapper, was, apotheek...

7

Na verloop van tijd kan er veel veranderen. Het is heel normaal dat u daarover een aantal vragen hebt. “Wat als ik morgen meer zorg nodig heb? Wat als ik niet meer kan blijven wonen in mijn assistentiewoning?” We zijn er om voor uw comfort te zorgen. Daarom hebben we ook daar aan gedacht en kunnen we u op die vragen geruststellende antwoorden geven.

Ik wil kopen

• Wat is een woonrechtcertificaat? Met een woonrechtcertificaat belegt u, net als bij een obligatie, een kapitaal. Dat eigen kapitaal krijgt u 100% terugbetaald na afloop van de cerfiticaatstermijn. Het verschil met een obligatie zit in de jaarlijkse interesten of coupons. Bij een obligatie krijgt u elk jaar uw rente in geld. Bij wat wij u voorstellen, wordt uw rente gedurende de looptijd van uw woonrechtcertificaat elk jaar, omgezet in ‘het recht om in uw eigen assistentiewoning te wonen’ en betaalt u dus geen huur meer. Vandaar de naam ‘woonrechtcertificaat’.

U bent dus eigenaar zonder de nadelen: geen notariskosten, geen registratiekosten... U moet wel roerende voorheffing* betalen, omdat het om een belegging gaat.

* De regering legt het percentage van de roerende voorheffing vast: dit is 30%, berekend op de waarde van de wooncomponent. Zorgbedrijf Antwerpen is niet verantwoordelijk voor veranderingen in dit tarief als gevolg van regeringsbeslissingen.

Wie kan een woonrechtcertificaat kopen?

Degene die de assistentiewoning koopt, wordt beschouwd als de certificaathouder van het woonrechtcertificaat. Dit kan de bewoner zelf zijn of een verwant: uw (stief)kind(eren), (stief) broer(s) en/of (stief)zus(sen). Wanneer de certificaathouder komt te overlijden, kunnen er zich twee situaties voordoen:

8
We zijn er om voor uw comfort te zorgen
Logische vragen, geruststellende antwoorden

• De certificaathouder is de begunstigde bewoner: U hebt als bewoner zelf ingetekend. Het certificaat vervalt en het geïnvesteerde bedrag komt vrij. Uw geld gaat vervolgens naar uw erfgenamen.

• De certificaathouder is niet de begunstigde bewoner: Het certificaat blijft verder bestaan en u kan als bewoner in de flat blijven wonen zolang het certificaat loopt. Het woonrechtcertificaat komt in de erfenis terecht van de overleden certificaathouder. De erfgenamen beslissen over de verderzetting van het woonrechtcertificaat.

• Wat als de bewoner langer leeft dan de duurtijd van het certificaat? Wanneer de bewoner langer leeft dan de looptijd van de obligatie tot duurtijd van het certificaat, zoeken we samen met de bewoner naar een geschikte oplossing. Zo kunt u bijvoorbeeld in uw assistentiewoning blijven wonen tegen de actuele huurprijs of een verhuis naar een ander site met assistentiewoningen overwegen.

Ik wil huren

• Kan de huurprijs zomaar worden verhoogd? Als u bij ons een flat huurt, sluiten we met u een bewonersovereenkomst af. Net zoals wanneer u iets huurt, mogen wij de huurprijs indexeren. De indexatie is onderhevig aan de door de Vlaamse Overheid toegelaten periodiciteit van indexeren. Prijsstijgingen kunnen enkel wanneer er bijvoorbeeld grondig gerenoveerd wordt, maar in deze nieuwbouwflats zal dat zeker niet meteen aan de orde zijn.

• Ik wil samen met mijn partner huren. Wat gebeurt er als een van ons overlijdt? Als u samen het huurcontract heeft afgesloten, kan de overblijvende partner aan dezelfde voorwaarden in de flat blijven wonen. Dat is ook zo wanneer een van u beiden naar een woonzorgcentrum zou verhuizen.

• Ik heb een laag inkomen. Kan ik rekenen op een tegemoetkoming? Sommige mensen met een lager inkomen komen mogelijk in aanmerking voor de Vlaamse huurpremie of de Vlaamse tegemoetkoming in de huurprijs. De twee premies zijn niet cumuleerbaar en voor beide gelden andere voorwaarden.*

* Zorgbedrijf Antwerpen kan deze premie of subsidie niet garanderen, omdat deze afhangt van de overheid en onderhevig is aan erkenningen en regelgeving, waar Zorgbedrijf Antwerpen geen invloed op kan uitoefenen.

Voor meer info en aanvraag: Wonen Vlaanderen | Wonen Antwerpen Lange Kievitstraat 111/113 | 2018

Antwerpen tel. 03 224 61 16

Vlaamse infolijn: 1700 (gratis nummer)  www.wonenvlaanderen.be

Wat als de leefsituatie van de bewoner verandert?

• Hebt u in de loop van de jaren meer behoefte aan zorg of een verhuis naar een woonzorgcentrum? Als bewoner van een assistentiewoning bij Zorgbedrijf Antwerpen krijgt u voorrang, zodat u indien nodig snel naar een woonzorgcentrum kunt verhuizen. Als u huurt, sluiten we uw huurcontract af zodat u niet op twee plaatsen moet betalen. Als u gekocht heeft, komt uw volledig kapitaal gewoon vroegtijdig vrij.

Hebt u nog andere vragen? U hebt vast nog vele andere vragen voor uw eigen, specifieke situatie. Dat is logisch. U kunt gerust contact opnemen met onze klantendienst. Zij zoeken samen met u naar een oplossing op maat. U kunt onze medewerkers elke werkdag bellen op het nummer 03 431 31 31. U kunt uw vraag ook mailen naar klantendienst@zorgbedrijf. antwerpen.be

Heeft u misschien ook wel specifieke fiscale en erfrechterlijke vragen? Dan raden we u aan om erover te gaan praten met uw financiële vertrouwenspersoon en/of notaris. Zij hebben ongetwijfeld de beste kijk op uw persoonlijke situatie.

9
11 Situering, prijs & grondplan 12 Grondplan per type assistentiewoningen 14 Financieel plaatje overzicht 18

Situering flats Tuinwijk

Verdieping 1 tot 8

2 2 1A 1A 3 3 1B
Type 2 = modelflat
De Lunden 2, 2170 Merksem

• De vermelde netto oppervlakte is de oppervlakte van de flat die u zelf kunt inrichten. Gemeenschappelijke ruimtes zijn hierin niet inbegrepen.

nu 8% korting *

Op de volgende pagina’s vindt u plannetjes per type assistentiewoning met een idee van hoe u de flat zou kunnen inrichten. Kleine afwijkingen zijn mogelijk.

kostprijs woonrechtcertificaat exclusief servicekost

huurprijs/maand exclusief servicekost

Type 1A en 1B | bruto: 77 m² | netto: 60-69 m² | 1 slaapkamer | aantal flats: 24

310.580 euro • 1.049 965 euro*

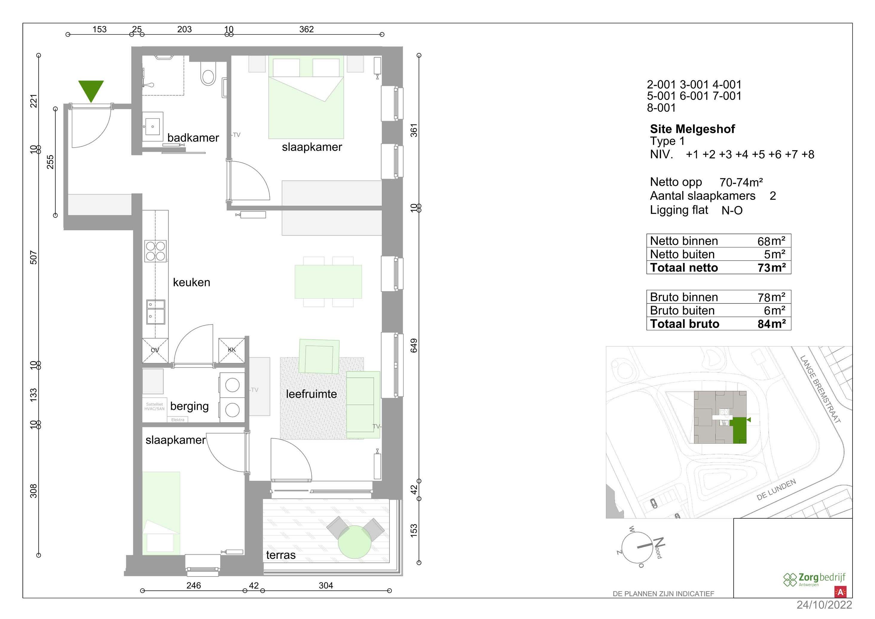
Type 2 | bruto: 84 m² | netto: 70-74 m² | 2 slaapkamers | aantal flats: 16

343.440 euro • 1.188 1.093 euro*

Type 3 | bruto: 91 m² | netto: 75-79 m² | 2 slaapkamers | aantal flats: 16

362.520 euro • 1.267 1.166 euro*

* De commerciële korting van 8% geldt op de huurprijs, niet op de servicekost of provisie. De korting is geldig tot 1 maart 2024. Deze prijzen zijn indicatief. Zorgbedrijf Antwerpen mag die aanpassen en indexeren, binnen de regels van de wetgeving. De meest actuele prijzen vindt u op de website.

13
tot 1 maart 2024
geldig

netto 60-69 m2

1 slaapkamer

Ligging flat: oost, west georiënteerd

Grondplan type 1A

* De commerciële korting van 8% geldt op de huurprijs, niet op de servicekost of provisie. De korting is geldig tot 1 maart 2024. Deze prijzen zijn indicatief. Zorgbedrijf Antwerpen mag die aanpassen en indexeren, binnen de regels van de wetgeving. De meest actuele prijzen vindt u op de website.

14 verdieping beschikbare flats kostprijs exclusief servicekost huurprijs/maand exclusief servicekost 1 - 8 16 310.580 euro 1.049 965 euro* nu 8% korting * geldig tot

Grondplan type 1B

* De commerciële korting van 8% geldt op de huurprijs, niet op de servicekost of provisie. De korting is geldig tot 1 maart 2024. Deze prijzen zijn indicatief. Zorgbedrijf Antwerpen mag die aanpassen en indexeren, binnen de regels van de wetgeving. De meest actuele prijzen vindt u op de website.

netto 60-69 m² 1 slaapkamer Ligging flat: zuid georiënteerd
verdieping beschikbare flats kostprijs exclusief servicekost huurprijs/maand exclusief servicekost 1 - 8 8 310.580 euro 1.049 965 euro* nu 8% korting * geldig tot 1 maart 2024

netto 70-74 m²

2 slaapkamers

Ligging flat: noordoost en noordwest georiënteerd

Grondplan type 2

* De commerciële korting van 8% geldt op de huurprijs, niet op de servicekost of provisie. De korting is geldig tot 1 maart 2024. Deze prijzen zijn indicatief. Zorgbedrijf Antwerpen mag die aanpassen en indexeren, binnen de regels van de wetgeving. De meest actuele prijzen vindt u op de website.

16 verdieping beschikbare flats kostprijs exclusief servicekost huurprijs/maand exclusief servicekost 1  - 8 16  343.440 euro 1.188 1.093 euro* nu 8% korting * geldig tot 1 maart 2024

2 slaapkamers

Ligging flat: zuidoost en zuidwest georiënteerd

Grondplan type 3

* De commerciële korting van 8% geldt op de huurprijs, niet op de servicekost of provisie. De korting is geldig tot 1 maart 2024. Deze prijzen zijn indicatief. Zorgbedrijf Antwerpen mag die aanpassen en indexeren, binnen de regels van de wetgeving. De meest actuele prijzen vindt u op de website.

netto 75-79
verdieping beschikbare flats kostprijs exclusief servicekost huurprijs/maand exclusief servicekost 1 - 8 16 362.520 euro 1.267 1.166 euro* nu 8% korting * geldig tot 1 maart 2024

Zorgbedrijf Antwerpen geen invloed op kan uitoefenen.

onderhevig is aan erkenningen en regelgeving, waar

garanderen, omdat deze afhangt van de overheid en

Zorgbedrijf Antwerpen kan deze premie of subsidie niet

cumuleerbaar en voor beide gelden andere voorwaarden.

tegemoetkoming in de huurprijs. De twee premies zijn niet

aanmerking voor de Vlaamse huurpremie of de Vlaamse

Sommige mensen met een lager inkomen komen mogelijk in

van andersluidende regeringsbeslissingen.

verantwoordelijk voor veranderingen in dit tarief als gevolg

pagina’s hiervoor leest u de huurprijs mét korting.

regeringsbeslissing. Zorgbedrijf Antwerpen is niet

roerende voorheffing van 30 % wordt vastgelegd bij

waarde van de wooncomponent. Het percentage van

* Het bedrag van de roerende voorheffing is berekend op de

Type U koopt uw assistentiewoning U

Daarom zetten we de twee even naast elkaar in een overzichtelijke tabel.

Daar gaat wat tijd over. En daar heeft u vooral veel informatie voor nodig.

De beslissing om een nieuwe woning te kopen of huren, is niet eenvoudig.

Huren of kopen: de cijfers

geldt, hebben we niet meegenomen in deze berekening. In de

De commerciële korting van 8% die tijdelijk op de huurprijs

De meest actuele prijzen vindt u op de website.

aanpassen en indexeren, binnen de regels van de wetgeving.

** Deze prijzen zijn indicatief. Zorgbedrijf Antwerpen mag die

De

18
huurt uw assistentiewoning
voordelen
kopen
centen
procenten
van
in
en
kostJaarlijkse voor
jaar wonen Huur/ maand (gemid - deld**) (gemiddeld)Huur/jaar Servicefee / jaar Provisie gemeens chappelijke kosten afreke(jaarlijksening) kostJaarlijkse voor 1 jaar wonen Uitgespaard t.o.v. huurder in jaar 1 Rendement woonrechtcertificaat in jaar 1 Type 1A en 1B 310.580 euro 3.777 euro 3.066 euro 1.200 euro 8.043 euro 1.049 euro 12.588 euro 3.066 euro 1.200 euro 16.854 euro 8.811 euro 2,9% Type 2 343.440 euro 4.276 euro 3.066 euro 1.200 euro 8.542 euro 1.188 euro 14.256 euro 3.066 euro 1.200 euro 18.522 euro 9.980 euro 2,8% Type 3 362.520 euro 4.561 euro 3.066 euro 1.200 euro 8.827 euro 1.267 euro 15.204 euro 3.066 euro 1.200 euro 19.470 euro 10.643 euro 2,9%
woonrechtcerKostprijstificaat looptijd. 30% roerende voor - jaar*heffing/ Servicefee / jaar Provisie gemeen - schappelijke kosten afreke(jaarlijksening)
1

U kunt ons bijna alles vragen

Er is altijd wel iets te doen in huis. De was en plas, boodschappen, poetsen, eten maken, de grote schoonmaak: iedereen kijkt er wel eens tegenop. De medewerkers van onze thuisdiensten doen het graag voor u. Daarvoor hoeft u niet te wachten tot u beslist te verhuizen naar een assistentiewoning.

Wat u allemaal in huis kunt halen

Poets- of huishoudhulp

Hulp bij grote schoonmaak, opruimbeurt voor de kelder...

Thuisverpleging

Nachtzorg

Persoonlijk alarmsysteem

Ergowoonadvies

Vervoer

Minder Mobielen Centrale

Verhuisservice

Altijd welkom in het dienstencentrum in uw buurt

U blijft graag actief, komt graag onder de mensen. In het dienstencentrum vindt u zeker wat u zoekt: of u er nu gezond en goedkoop gaat eten of een cursus zoekt die u altijd al wilde volgen. Met 44 dienstencentra verspreid over alle districten van de stad Antwerpen is er zeker een dienstencentrum in uw buurt. Ga er eens langs en u zult ervan versteld staan wat daar allemaal georganiseerd wordt of wat u er zelf kunt ondernemen.

Wonen, zorg en comfort op maat in het woonzorgcentrum

Soms lukt zelfstandig wonen niet meer. Als u verzorging of rust nodig heeft, dan is de omgeving ontzettend belangrijk. Onze woonzorgcentra zorgen voor dat thuisgevoel en omringen zorgbehoevende senioren met de beste zorgen. Zorgbedrijf Antwerpen en Zorgbedrijf Brasschaat hebben 18 woonzorgcentra, verspreid over alle districten van Antwerpen en de gemeente Brasschaat. Er is er dus zeker een bij u in de buurt.

Onze woonzorgcentra bieden vier formules aan:

1. U woont thuis en komt overdag naar een dagverzorgingscentrum.

2. U woont thuis en komt voor een korte periode naar een woonzorgcentrum.

3. U en uw partner of familielid willen samen blijven wonen met hulp van vlakbij in uw zorgflat.

4. U verhuist naar een woonzorgcentrum.

Contacteer onze klantendienst op 03 431 31 31 of mail naar klantendienst@zorgbedrijf.be

Kijk op www.zorgbedrijf.antwerpen.be. Of vraag de gratis dienstencatalogus aan op onze website of bij onze klantendienst.

19
22 Nota’s
23 Nota’s

Interesse? Zo maakt u er werk van.

Maak meteen een afspraak met onze klantendienst voor een vrijblijvend gesprek, met alle ruimte om vragen te stellen.

U kan onze medewerkers bereiken op het nummer 03 431 31 31 of stuur een e-mail naar: klantendienst@zorgbedrijf.be

1. Een medewerker van onze klantendienst komt dan zo snel mogelijk bij u langs om al uw vragen in detail te beantwoorden, zonder verdere verplichting.

2. Als u dat wenst, kunt u na afspraak de kijkflat bezoeken.

3. Als u overweegt een woonrechtcertificaat te kopen, kunt u ook altijd terecht bij een Belfius Bank-kantoor in Antwerpen, Berchem, Borgerhout, Borsbeek, Deurne, Hoboken, Wilrijk of op Linkeroever met vragen over de financiële kant van de zaak.

4. Heeft u fiscale en erfrechterlijke vragen? Dan raden we u aan om erover te gaan praten met uw financiële vertrouwenspersoon en/ of notaris. Zij hebben ongetwijfeld de beste kijk op uw persoonlijke situatie.

www.zorgbedrijf.antwerpen.be | acebook.com/zorgbedrijfantwerpen

V.U.: Zorgbedrijf Antwerpen, Johan De Muynck, Ballaarstraat 35, 2018 Antwerpen.
www.zorgbedrijf.antwerpen.be.
Zorgbedrijf Antwerpen is niet verantwoordelijk voor eventuele fouten in de brochure. De meest actuele informatie vindt u op onze website © Deze brochure is gemaakt door Zorgbedrijf Antwerpen. Het is niet toegestaan om teksten noch beelden uit deze publicatie over te nemen.

Turn static files into dynamic content formats.

Create a flipbook
Issuu converts static files into: digital portfolios, online yearbooks, online catalogs, digital photo albums and more. Sign up and create your flipbook.
Brochure assistentiewoningen Tuinwijk II - maart '23 by Zorgbedrijf Antwerpen - Vlaanderen - Issuu