Zefanya Arien's Architecture Portfolio

Page 1

SELECTED WORKS 2019-2023

ZEFANYA ARIEN’S ARCHITECTURE

MARIA DITA ZEFANYAARIEN SEKARKINANTI

Jakarta,May142001

@Zefanyaarien

linkedin.com/in/zefanyaarien

mariazefanya00@gmail.com

Hello,

Im an enthusiastic architecture graduate from Atma Jaya Yogyakarta University. Im a persistent designer with desire to explore how building affect theinhabitantpsychology.

Beside designing architecture building, I also have passioninphotoshoprendering,(manual&digital) layouting, and graphic design that help to present mydesignvisually.

Thisportfoliocontainsmyselectedworks&projects thatarecompletedintheperiodbetween2019-2023

PERSONAL Skills

TimeManagement

CreativeThinking

Mindfulness

SocialSpirit

Artistic

Painting Writing

SOFTWARE

Enscape AutoCAD SketchUp

AdobeIllustrator

AdobePhotoshop

CorelDRAW

Layouting LANGUAGE

Indonesian(Native) English(Active&Passive)

Education

2019-2023 UniversityofAtmaJayaYogyakarta Architecture

2016-2019 StellaDuce1SeniorHighSchoolYogyakarta MathandScience

Organization

2019-2020 MemberofDesignDivision SepekanArsitektur2020

2020-2021 Co-coordinatorofDesignDivision

HimpunanMahasiswaArsitekturTricaka

2021-2022 CoordinatorofDesignDivision

HimpunanMahasiswaArsitekturTricaka

Experience

2020 MemberofCommunityVolunteer RotaractClubofYogyakarta

2021 Swaka.TaKreativa Founder

2021-now Swaka.TaKreativa HeadofGraphicDesigner

2021 ContestantofArchiteventUNS

January-June

2022

PracticalWork“ProsesPembuatanMediaInformasiTitik-Titik ApresiasiLanskapVisualCandiBorobudur”

LedbyKhaerunnisaFoundation

GraphicDesignInternship

2022

May-September AtCampaign.id

2022

ContestantofFestivalArsitekturParahyangan

2022 ContestantofPlatinumArchitecturalDesignCompetition

2022 FreelanceArchitecturalProject

“RumahPanggungKalasan”

2023 FreelanceArchitecturalProject

“KosPandean”

Achievement

2022

2022

Goldmedalist(1stplace)

AEWPackagingDesignCompetition

CertificateCompetenceofJuniorGraphicDesign

onBehalfofIndonesianProfessionalCertificationAuthority

Contents Architecture 01 02 03 04 05 SwastamitaAmerta 4th Studio Project 2021 Her Safe Haven 3rdArchitecture Design Project 2021 WaeAgri Contestant ofArchevent UNS 2021 06 Giri Nirmala Resort Tourism Design Project 2021 Dreamscape Health Spa Architecture Research & Design 2022 Alleviate Loft PlatinumArchitectural Design Competition 2022
07 08
of FestivalArsitektur Parahyangan 2022
Panggung
FreelanceArchitectural Project 2022
FreelanceArchitectural Project 2022 09 10 AH House Personal Project 2023 11 Jaga Pustaka FinalYearArchitectural Project 2023 OTHER PROJECTS
BhavanaAbinaya Contestant
Rumah
Kalasan
Kos Pandean

SWASTAMITAAMERTA

AdaptiveGirlsDormitory

Location:Kec.Umbulharjo,Yogyakarta.

SwastamitaAmertaisagirlsdormitorywithadaptivearchitectureconcept. SwastamitaAmerta aims to adapt with every condition, surrounding environment,andsitecontext.Inaddition,toadaptthebuilding,thebuildingalso createsasupportiveatmosphereforstudenttoadapt.

01

HERSAFEHAVEN

WomenandGirlsSafeSpace. Location:Sewon,Bantul.

Womenarealwaysconsideredweakduetoshiftingvalueinsocietythat consumedbygenderissuestereotype.Sothatthegenderdifferencemore conspicuouswiththe statementof:Menarestronganddominant,meanwhile

womenareweakandobedient.

Attheendofthe18thcentury,feminismis emerged.Feminismisawomen's movementtoreachgenderequalityandfreedomfrommenoppression.

Itisthetimeforfeminismfrontally introducedtothesociety, especiallyin Indonesia.“HerSafeHaven”isanefforttoputthefeminismintoarealform;

thatis architecturemasterpiece.

02

GrandConcept

FeminismwithBiophilicApproach.

Feminisim is a range of socio-political movements and ideologies that aim to define and establish the political, economic,personal,andsocialequalityof thesexes.

(Wikipedia,2022)

Biophilic design is a concept used within thebuildingindustrytoincreaseoccupant connectivity to the natural environment through the use direct nature, indirect nature,andspaceandplaceconditions.

(Wikipedia,2022)

CREATIVE INDUSTRY PRODUCTIVITY HARRASMENT SAFETY
OF SEXUAL Galeri Seni Co Working Space Studio Seni Ruang Meeting Unit Gawat Darurat Ruang Konsultasi Gym Pole-Dance Public Women only TOWER 1 TOWER 2 TOWER 3 Atmosphere PRODUCTIVE COMFORTABLE CONFIDENT FEMINISM Approach NATURE PSYCHOLOGY BIOPHILLIC Uses PRODUCTIVITY CREATIVE INDUSTRY VICTIM OF SEXUAL HARASSMENT SAFETY
VICTIM
DesignAspects Zoning

WAEAGRI

SanctuarySpace

Location:PantaiBesar,Larantuka,EastFlores

“Wae” Waerebo wastakenfromthewords from which isthenameofavillageonEastNusaTenggara,“Agri”,meaningfieldfromLatin. SanctuarySpacewastakenfromourmainpurposethatistoprovideasaferefugeespace.

WaeAgri:SanctuarySpace

03

Background

Flash flood and landslide caused a lot of damage and death because of the number of refugees and the shelter is not balanced.“WaeAgri” provides a place to evacuate, but also becomes a communal space in normal condition

NATURAL DISASTER IMPACT

THE IMPACT ON MENTALHEALTH

30

Grand Concept

Number of casualties : 60 people

Number of injured : 12 people

Number of refugees : 256 people

Severely damaged houses : 82 units

Mildly damaged houses : 34 units.

Anxiety disorder

PTSD

Sleep deprivation

Self-blaming

Feeling isolated.

MARCH 2021 - 4APRIL2021 Flash flood and landslide occurred in East Florest, East NusaTenggara
TREE WATER AIR
HILL

Perspective (Daily Conditions)

AIR
TREE
Perspective Restroom Exterior
Artificial Lake Basketball Field
Parking Area Entrance Exit Exterior
WATER
HILL
Exterior
Perspective Prayer Room
Indoor Sport Center
Perspective Art Studio

Perspective (Evacuate Conditions)

HILL WATER AIR Refugees camp Exhilaration Medical

Synthetic material (membrane).

Nurse station & medical storage DETAIL

DETAIL

Rope knot Plastic curtain Synthetic material (PVC)

TENT INSTALATION

Tent storage
The field on “exhilaration” transformed into a place to stand the emergency tent. The tent that are inside the building removed and installed in the basket ball field to create medical tent.
DETAIL
PVC pipe The stage transformed into base for setting up a “Waerebo” tent Waerebo tent interior Interior exhilaration

GIRINIRMALA

Eco-ResortKaliurang

Location:Hargobinangun,Kec.Pakem,KabupatenSleman

GiriNirmalaEcoResortKaliurangisdesignedwithattentiontothebalanceof nature.Inthebalanceofnature,theharmonyoflifewillprovidepeaceforhumanlife.

04

Kapasitas : 70 mobil & 60 motor

PARKIR MOBILGOLF

Diambil dari kutipan terkenal olehAlbert Einstein

"Look deep intonature and you'll understand everything better"

Eco Resort Kaliurang di desain dengan memperhatikan keseimbangan alam. Dalam keseimbangan alam, harmoni kehidupan akan memberikan kedamaian bagi hidup manusia.

Kapasitas : 20 mobil golf

PARKIR
RESTAURANT SEMI OUTDOOR
View kolam renang dan taman
INDOORATTRACTION LOBBY
View kolam renang IndoorAttraction : kids club, bar
OUTDOORATTRACTION
Kolam renang Taman Mini outbond anak-anak
"Look Deep into Nature"
Parkir Parkir mobil golf Restaurant semi outdoor Restaurant indoor &Indoor Attraction Lobby Pool Resort
ZONING CONCEPT

DREAMSCAPEHEALTHSPA

Location:Jl.PangeranDiponegoro,JakartaPusat

Dreamscapehealthspaisahealthtourismbuilding.Dreamscapehealthspa isexpectedtoprovideabroadimpressioninanarrowsite.Withsenseof aweasanapproach,customerareexpectedtofeelrelaxedinthisbuilding.

05

LATAR BELAKANG

URBAN STRESS

Kehidupan perkotaan memiliki dampak terhadap tingkat stres masing-masing individual. Stres merupakan reaksi fisiologis dan psikologis terhadap ancaman yang dirasakan terhadap fisik, integritas dan juga sosial.

IMPACT

Pada saat seseorang mengalami stres ada dua aspek utama dari dampakyang ditimbulkan akibat stres yang terjadi, yaitu aspek fisik dan aspek psikologis (Sarafino, 1998) yaitu :

HEALTHTOURISM

Menurut Roger S. Ulrich et al (1991), lingkungan perkotaan akan menghambat penyembuhan stres. Sehingga perkotaan yang padat dapat mengurangi individu untuk mendapatkan ruang sendiri.

SINTESIS SITE

a.Aspek Fisik Menurunnya kondisi seseorang pada saat stres sehingga orang tersebut mengalami sakit pada organ tubuhnya.

b.Aspek Psikologis Mempengaruhi kondisi psikologis seseorang dan membuat kondisi psikologisnya menjadi negatif.

HealthTourism dicetuskan oleh International Union ofTourist Organization (IUTO). Health Tourism dapat diartikan sebagai aktivitas wisata dengan tujuan utama memelihara dan meningkatkan kesehatan. Penduduk yang merasakan urban stress membutuhkan aktivitas wisata yang dapat memelihara dan meningkatkan kesehatan. Sehingga Health Spa di tengah kota dapat menjadi tempat yang tepat bagi penduduk untuk “berwisata” sekaligus meningkatkan kesehatan.

SENSE OFAWE

Kebisingan tinggi

Kebisingan sedang

Lokasi:

RR2W+736, RT.10/RW.1, Pegangsaan, Kec.Menteng, Kota Jakarta Pusat, Daerah Khusus Ibukota Jakarta 10320

Luas

1,523.78 m²

TRANSFORMASI DESAIN

Utara

Bentuk bangunan yang mengikuti bentuk site serta peraturan di dalam site.

Melakukan substraksi bentuk agar bentuk bangunan tidak masif

Melakukan penyederhanaan bentuk tetapi memainkan variasi ketinggian bangunan, dipertimbangkan berdasarkan visibilitas serta aksesibilitas.

BERDAMPAK PADAPSIKIS DAN FISIK MANUSIA HEALTH TOURISM (HEALTH SPA) PENDEKATAN SENSE OF AWE
KONSEPDESAIN URBAN STRESS
Sense of Awe merupakan kemampuan untuk memahami emosi kompleks yang muncul sekitika seseorang menghadapi sesuatu yang lebih luas. (Keltner and Haidt, 2003).

STRATEGI DESAIN

Dicapai dengan kecantikan alam yang dihadirkan sebagai pemandangan

Dicapai dengan jendela dengan visibilitas tinggi sehingga pengunjung dapat merasakan ancaman dari luar Tetapi dengan pencahayaan yang remang, material kaca yang hanya memiliki 1 sisi visibilitas, dan suara gelombang delta dihadirkan maka pengunjung dapat merasakan ketenangan.

SITEPLAN

Example Sound of Delta Waves: Indra yang merespon di ruangan ini:

Dicapai dengan kecantikan alam yang dihadirkan sebagai pemandangan

Dicapa dengan jendela dengan visibilitas tinggi sehingga pengunjung dapat merasakan ancaman dari luar Tetapi dengan pencahayaan yang remang, material kaca yang hanya memiliki 1 sisi visibilitas, dan suara gelombang delta dihadirkan maka pengunjung dapat merasakan ketenangan.

Example Sound of Delta Waves:

Indra yang merespon di ruangan ini:

Dicapai dengan kecantikan buatan (artificial intelligence).

Dicapai dengan artificial intelligence yaitu project mapping dimana proyektor member kan pemandangan secara buatan Pemandangan yang dipi ih adalah aurora.Aurora adalah fenomena alam yang menghasilkan cahaya yang menari-nari di langit.

Example Video ofAurora Projection Indra yang merespon di ruangan ini:

FLAVORS OFAWE Threat Virtue Beauty Supernatural Causality Ability
INTERIOR
INTERIOR SPAROOM INTERIOR JACUZZI POOL Beauty Thread Beauty Supernatural Causality
Tidak dapat diaplikasikan ke dalam bangunan Dapat diaplikasikan ke dalam bangunan
REFLEXIOLOGY
Beauty Thread
JLPANGERAN DIPONEGORO DENAH TAMPAK TAMPAK UTARA TAMPAK SELATAN TAMPAK BARAT TAMPAK TIMUR DESAIN SKEMATIK REFLEXIOLOGY LOBBY & STORE REST ROOM R KARYA WAN GUDANG R LOKER LIFT CABIN CABIN CABIN YOGA FAMILY CABIN FAMILY CABIN GUDANG R KARYA WAN REST ROOM REST ROOM REST ROOM SAUNA POOL LIFT LIFT LIFT LIFT 2,5 m 5 m 10 m 2,5 m 5 m 10 m 2,5 m 5 m 10 m 2,5 m 5 m 10 m 2,5 m 5 m 10 m DENAH LANTAI 1 DENAH LANTAI 2 DENAH LANTAI 3 DENAH LANTAI 4 DENAH LANTAI 5

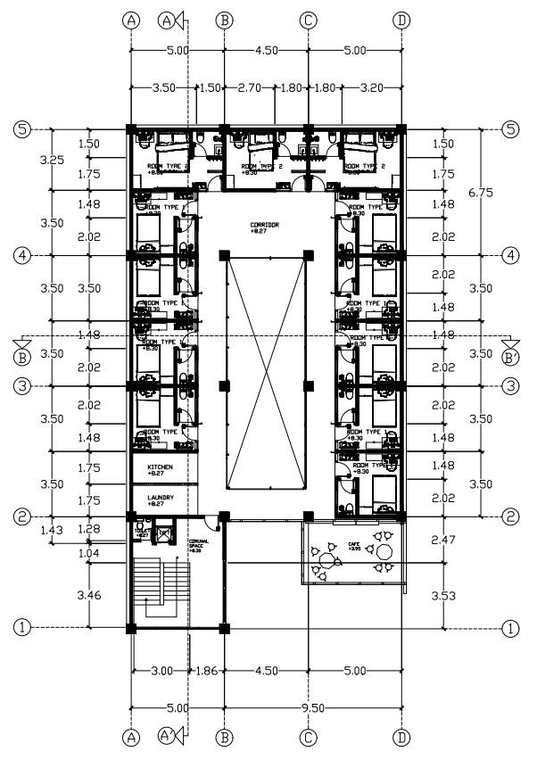
ALLEVIATELOFT

Ruangandengandimensiterbatasnamundapatmewadahiaktivitaspenggunahunianvertikaluntukmelakukan aktivitassepertipenggunahunianhorizontal

Dengantipeapartemenloftyangmenambahkanlantaimezzaninemakaruangkerjadapatdimasukkankedalam apartementanpamembuat ruanganterasasempit.

06

Ruangandengandimensiterbatasnamundapatmewadahiaktivitas

pengguna hunian vertikal untuk melakukan aktivitas seperti

penggunahunianhorizontal

Dengan tipe apartemen loft yang menambahkan lantai mezzanine

maka ruang kerja dapat dimasukkan ke dalam apartemen tanpa

membuat ruanganterasasempit.

PROJECTDESCRIPTION

Alleviate Loft merupakan kamar apartemen dengan tipe loft. Apartemen dengan tipe loft merupakanapartemenyangmenerapkansistem lantai bertingkat dengan konsep terbuka.

Sedangkan alleviate merupakan kata yang memiliki makna meringankan'. Alleviate loft

menjawab isu dan kebutuhan dari pasangan yangmerupakanfreelancedesigner.AlleviateLoft

didesain dengan mengusung tema bentuk tatanan ruang yang terbuka, serta penggunaan warnayanglembutdansegar.Dengandemikian konsep apartemen ini dapatmeringankan stres dankepenatanpengguna.

DESIGNCONCEPT

FUNCTION:SPACESAVER

AESTHETICS:STRESSRELIEVE

Furniture Storage Optimization

Tubuhmanusiasejatinyamembutuhkansinarmataharidanudarasegarnamunseringsekalidilupakanpara pengguna apartemen karena terbiasa dengan penghawaan dan pencahayaan buatan. Pada kamar ini, pengadaanbukaandimaksimalkandenganmengkombinasikanjendelamatidanhidup.Sehinggacahaya alami dapat masuk ke dalam kamar serta dapat mengoptimalkan ACH (Air Changes per Hours) untuk mencegahterjadinyaSBS(SickBuildingSyndrome).

Lantai merupakan salah satu pelingkup ruangan yang memiliki peran penting terhadap estetika ruangan. Maka dari itu untuk menambah kesan estetik, lantai pada setiap ruangan yang terdapat di apartemen ini menggunakanprodukkatalogdariplatinum

ceramics.

Functional Design Indoor Plants Color& Material Selection Ambience Lighting

BHAVANAABINAYA

Eco-ResortKaliurang

Location:Hargobinangun,Kec.Pakem,KabupatenSleman

GiriNirmalaEcoResortKaliurangisdesignedwithattentiontothebalanceof nature.Inthebalanceofnature,theharmonyoflifewillprovidepeaceforhumanlife.

07

Site berada di Jl. Sudirman, Kota Baru, Yogyakarta. Pemilihan site

berdasarkan lokasi yang berada di tengah kota dan berjarak 4,1

kilometer dengan salah satu instansi pendidikan di Yogyakarta. Selainitu,sitejugaberbatasanlangsungdenganrestorancepatsaji sehinggadapatberkolaborasi.Denganadanyajoggingtrack,taman, ruangpameran,amphitheater,pojokbaca,danruangdiskusi,maka

BhavanaAbinayamerupakanwadahyangtepatuntukmenampung danmengembangkankegiatankolaborasimaupunindividu.

6.00 12.00 6.00 12.00 6.00 12.00 LT.1 LT.2 LT.3 -3.00 1 2 3 4 5 6 1: Lobby 2: Kantor Pengelola 3: Pojok Baca 4: Kamar Mandi 5: Ruang Pameran 6:Amphitheater 7 8 9 4 7: Retail 8: Co Working 9: Mushola 10: Ruang Seminar 4 10 11: Skywalk 12: Indoor Co Working 11 8 4 12 12 A A B LT. 1 LT. 2 LT. 3 TAPAK BASEMENT SKYWALK CO WORKING R. SEMINAR R. PAMERAN AMPHITHEATER TAPAK 92.25m 82.37m 46.07m 61.50m 35.14m PintuBarat PintuUtara 25.26m
DENAH INTERIOR

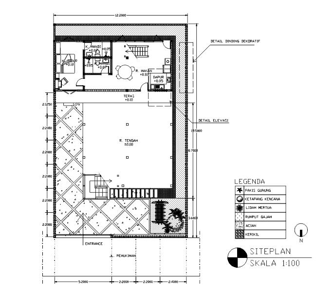
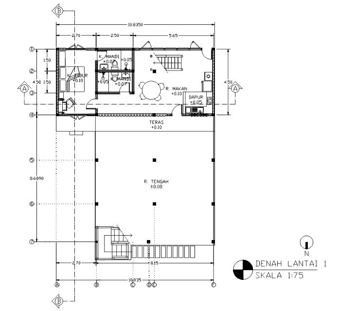
RUMPANGKALASAN

Residential+CommercialBuilding

Location:Kalasan,DaerahIstimewaYogyakarta

Rumahpanggungkalasanisdesignedforaclient.Theclientrequesttodesign thegroundoftherumahpanggungincludingthelandscape.

08

INTERIORKAMAR

INTERIORR.MAKAN

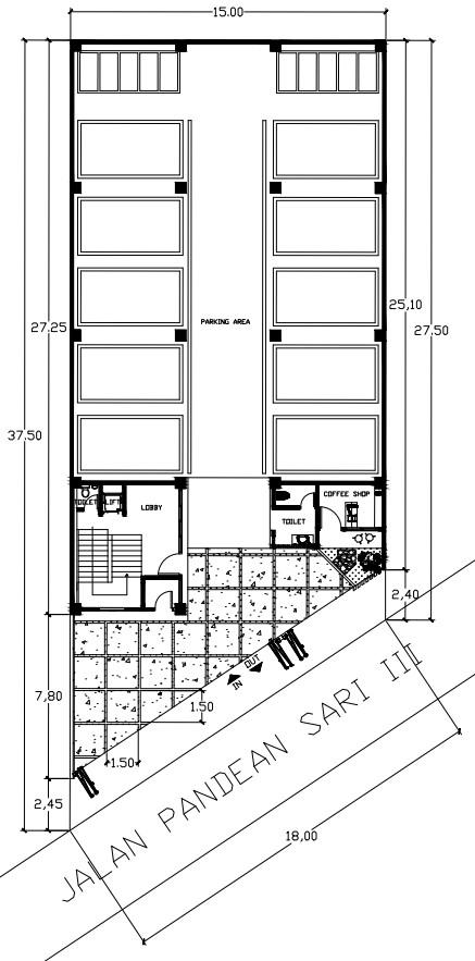
KOSPANDEAN

Residential+CommercialBuilding

Location:JL.Pandean,Sleman,DaerahIstimewaYogyakarta

09
DENAH TAMPAK INTERIOR

AHHOUSE ResidentialBuilding

Location:JL.Pandean,Sleman,DaerahIstimewaYogyakarta

JagaPustakaisthefuturelibrarythatusearchitecturebehaviorastheconcept.

10

Isu Makro

IklimTropis

Iklim tropis pada site menyebabakan panas dan lembab. Sehingga jika terlalu panas atau terlalu lembab akan menyebab ketidaknyamanan pada penggunabangunansecarafisikdanmental.

Isu Mikro Esensi dari RumahTinggal

PENERAPANDALAMDESAIN

SEMI PRIVATE PRIVATE SERVICE

3RD FLOOR

2ND FLOOR PUBLIC

AREASERVIS DILETAKKAN DI SISI BELAKANG SITE BESERTA DEGAN KAMARASISTEN RUMAHTANGGA SIRKULASI SERVIS TIDAK MENGGANGGUAREASEMI PRIVATMAUPUN PRIVAT

PEMILIHAN WARNA

MENGGUNAKAN WARNATONE HANGATDAN NETRALAGAR MEMBERIKAN KESAN KEHANGATAN DAN KENYAMANAN PADAPENGGUNABANGUNAN.

PASSIVE LIGHTING PASSIVE COOLING COOLING EFFECT

GREENAREA VOID

CROSS VENTILATION VOID MENJADI SIRKULASI CROSS VENTILATION BAIK DI DALAM SITE MAUPUN DI DALAM BANGUNAN

SECONDARYSKIN MENGHALANGI PANAS MATAHARI BERLEBIH MENGARAHKANARAHANGIN MASUK KE DALAM BANGUNAN MENAMBAH PRIVASI KAMAR DARI JALAN

PEMILIHAN VEGETASI

POHON KETAPANG

1ST FLOOR

FISH POND MENAMBAHKAN EFEK SEJUK PADATAPAK.

SEBAGAI POHONYANG

BERFUNGSI SEBAGAI

PENEDUH, POHON KETAPANG COCOK UNTUKTEMPAT BERIKLIMTROPIS.

CALATHEALUTEA

PEMILIHANTANAMAN HIAS CALATHEA LUTEAMEMBERIKAN KESAN ESTETIKA DAN RAPIH.TANAMAN CALATHEALUTEA DIGUNAKAN PADABEBERAPAAREA HIJAU PADABANGUNAN.

ISU LOKASI
SITE JL. PANDEAN SARI III
Jalan
Rumah tinggal merupakan salah satu kebutuhan pokok manusia, tetapi setiap manusia memiliki pandangan masing-masing terhadap esensi dari rumahtinggal.Dalamperspektifkami,esensidarirumahtinggalmerupakan tempat sumber kenyamanan dan fungsional yang akan dikemas dengan estetika. 1ST FLOOR
AREAPRIVATHANYADAPATDIAKSES OLEH PEMILIK RUMAH DAN SERVIS.AREASERVIS DILETAKKAN PADALANTAI 2AGAR MENJAGASUASANATETAPPRIVAT(TIDAK DILALUITAMU).
2ND FLOOR 3RD FLOOR SWIMMING POOL DAPATDIGUNAKAN UNTUK MENAMBAHKAN EFEK SEJUK PADATAPAK.

FRONT TERRACE

LIVING ROOM, DINNING ROOM, & KITCHEN

ART HOME STUDIO

MASTER BEDROOM

SWIMMING POOL

2 1 3 4 5 7 8 9 9 10 6 11 11 12 13 13 14 17 16 15 18 19 20 21 22 23 24 26 27 28 29 25 25 1 2 3 4 5 6 7 8 9 10 11 12 13 14 15 16 17 18 19 : Car Port : Front Courtyard :Terrace : Reception Room : Carport Indoor : Powder Room : Living Room : Dining Room : Kitchen : BackTerrace : Back Courtyard : Swimming Pool : Guest Bedroom : Guest Bathroom : Maid Bedroom : Maid Bathroom : Warehouse : Laundry Room : Outdoor Laundry Room 20 21 22 23 24 25 26 27 28 29 : Bedroom 1 : Bedroom 2 : Bathroom : Master bedroom : Bedroom 3 : Balcony :Art Studio : Home office : Gym : Restroom 0 3 6 12 0 3 6 12 AH House Floor Plan -0.05 -0.05 -0.10 ±0.00 ±0.00 ±0.00 -0.58 -0.05 -0.05 -0.60 -0.58 -0.60 -0.60 -0.60 ±0.00 ±0.00 -0.05 14 -0.05 -0.05 ±0.00 -0.05 ±0.00 -0.05 +3.65 22 +3.65 22 +3.65 22 +3.65 +3.70 +3.70 +3.70 +3.70 +3.65 +3.65 +3.70 +3.70 +3.70 +3.70 First Floor AH House Floor Plan Second Floor
DENAH

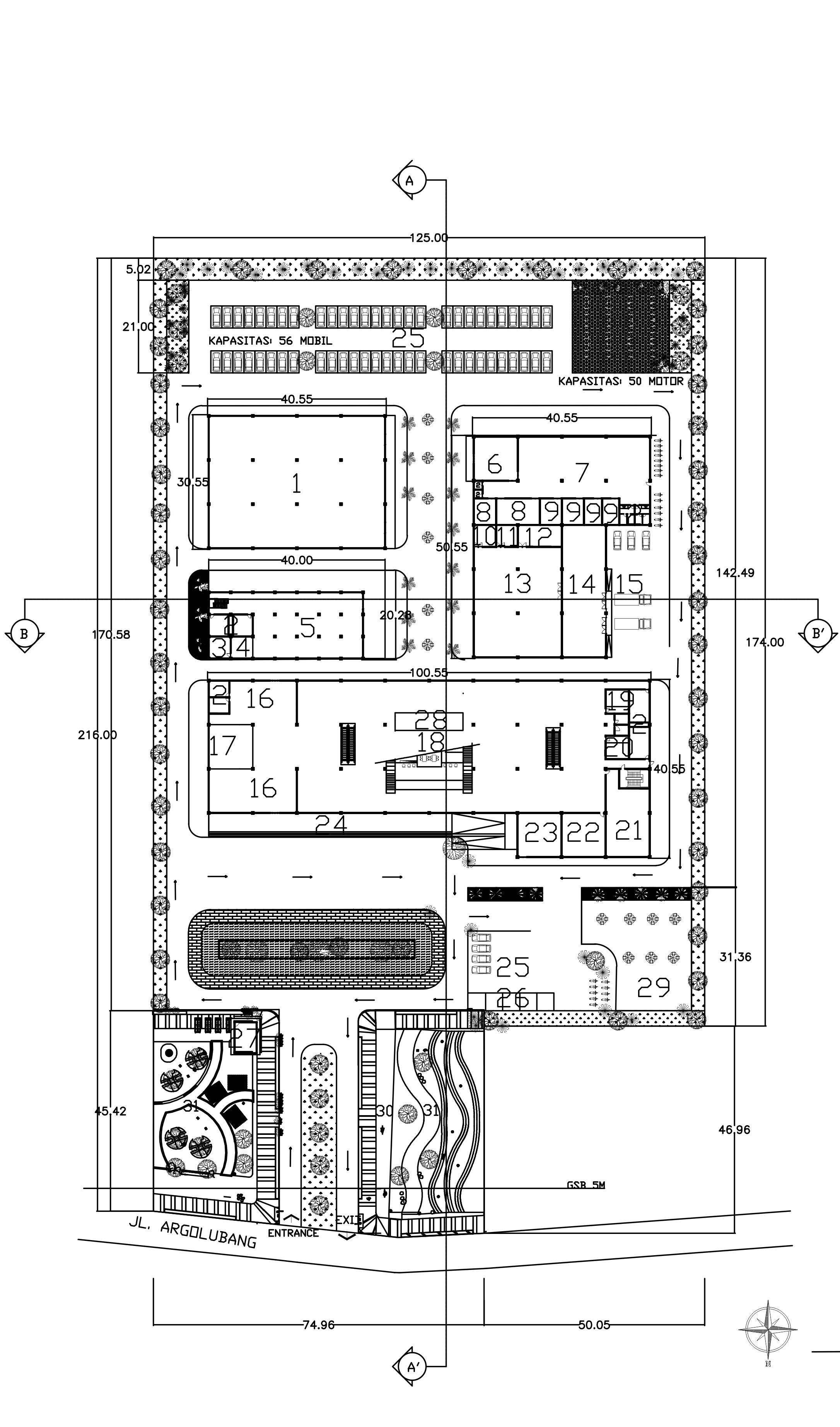
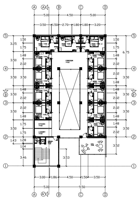
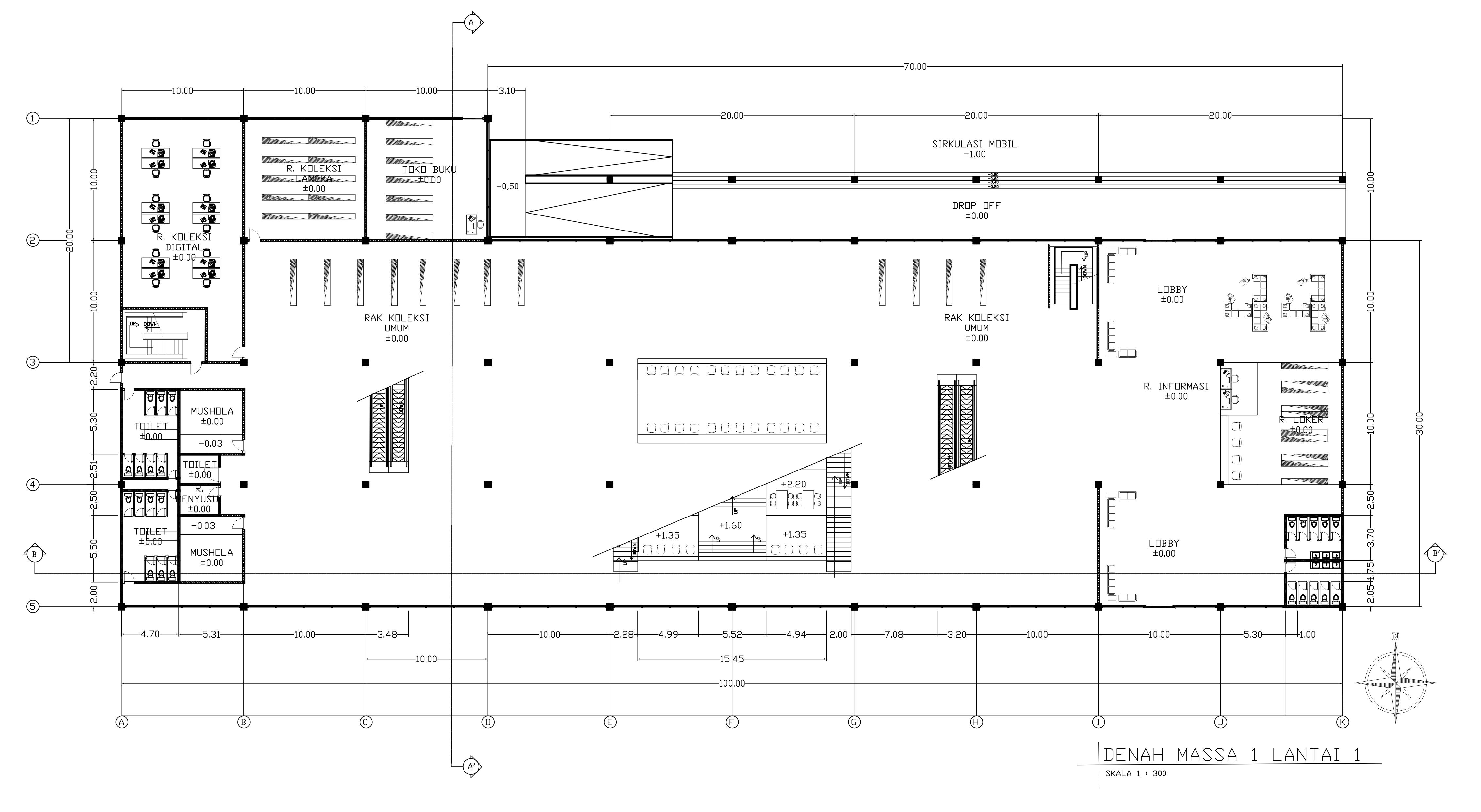
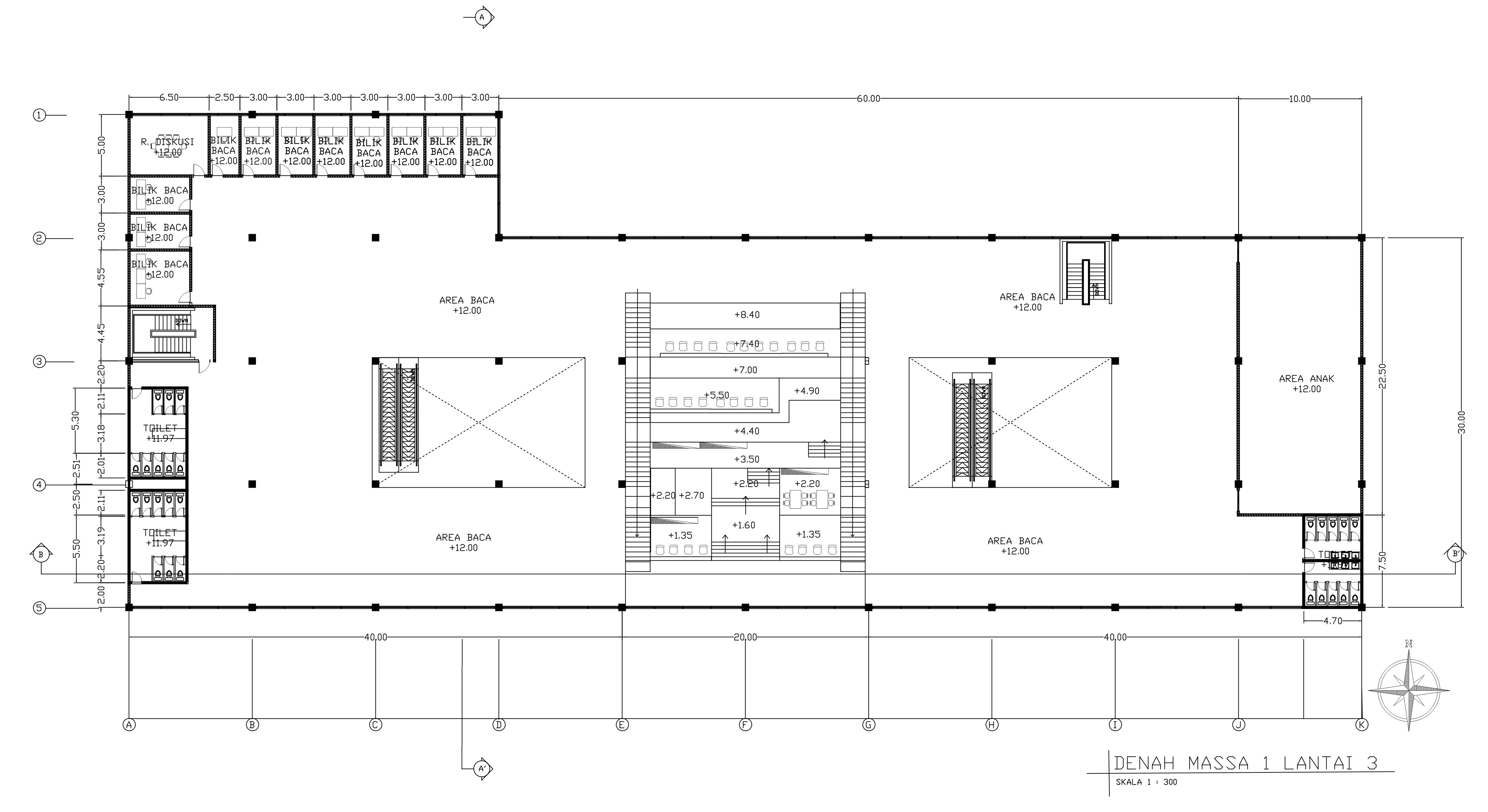
JAGAPUSTAKA

HybridPublicLibrary

Location:JL.Argolubang,Baciro,DaerahIstimewaYogyakarta

JagaPustakaisthefuturelibrarythatusearchitecturebehaviorastheconcept.

11

LATAR BELAKANG

PENDEKATAN

MINAT BACA DI

INDONESIA

HANYA 0,001% JUMLAH PENGUNJUNG

PERPUSTAKAAN MENURUN

SETIAP TAHUNNYA

SEHINGGA PENTINGNYA MEMPERHATIKAN POLA

HIDUP MASYARAKAT AGAR PERANCANGAN

PERPUSTAKAAN BEREVOLUSI SESUAI ZAMAN

DENAH

PENDEKATAN ARSITEKTUR PERILAKU MERUPAKAN PENDEKATAN YANG MENEKANKAN ADANYAKETERKAITAN ANTARA RUANG DAN PENGGUNA (MANUSIA). PERILAKU MANUSIA DIPAHAMI DALAM PENDEKATAN ARSITEKTUR PERILAKU UNTUK MENENTUKAN PEMANFAATAN RUANG. DENGAN MENERAPKAN FUNGSI EDUKATIF, INFORMATIF, DAN REKREATIF.

SITEPLAN

PEMBAGIAN MASSA

MENURUT AKTIVITAS & PERILAKU PENGGUNA

SERBAGUNA

KEBISINGAN TINGGI

TINGKAT FOKUS RENDAH

ARSIP & KANTOR

KEBISINGAN SEDANG

TINGKAT FOKUS SEDANG

CAFÉ

PENERAPAN

KEBISINGAN TINGGI

TINGKAT FOKUS SEDANG

PERPUSTAKAAN

KEBISINGAN RENDAH

TINGKAT FOKUS TINGGI

PEMILIHAN WARNA

BERDASARKAN TEORI ARSITEKTUR PERILAKU, WARNA BERPENGARUH TERHADAP

PSIKOLOGI PENGGUNA RUANG. PEMILIHAN WARNA DALAM RUANGAN INI ADALAH RUANGAN INI ADALAH WARNA PUTIH, COKLAT, KREM, DAN HITAM. WARNA-WARNA YANG

DIPILIH TERGOLONG DALAM WARNA WARM. WARNA WARM DITUJUKAN UNTUK MEMBERIKAN KESAN HANGAT SERTA MEMBERI DAMPAK KETENANGAN TERHADAP PSIKOLOGI PENGGUNA.

VIDEO
KONSEP PADA FASILITAS VIDEO ANIMASI
PRESENTASI
REKREATIF INFORMATIF
LANSKAP SEBAGAI PUBLIC SPACE TEMPAT BACA REKREATIF SIGNAGE PENGGUNAAN SMART DEVICE SMART DEVICE PADA LANSAKAP RUANG INDIVIDU RUANG FUNGSIONAL TAMPAK UTARA KESELURUHAN SKALA 1000 TAMPAK SELATAN KESELURUHAN SKALA 1000 TAMPAK TIMUR KESELURUHAN SKALA 1000 TAMPAK BARAT KESELURUHAN SKALA 1000
EDUKATIF PERILAKU
TAMPAK
KOLEKSI UMUM BILIK BACA RUANG PUBLIK PEDISTRIAN

OTHER PROJECTS

ArchitecturalPanel

STRATEGIES

lebih praktis dan murah

ASPECTS

Menilik petik stroberi DesaAlamendah belum memiliki ciri, BiMBa hadir menjadi buah tangan yang dapat berguna bagi wisatawan. Selain itu, dengan adanya BiMBa dapar meningkatkan pendapatan dari Alamendah.

BiMBa membantu DesaAlamendah dalam mengurangi kemasan plastik yang berpotensi

HAKI

MEREK BiMBa Biomimicry Multifunction Basket untuk Desa Wisata Alamendah

Stroberi terus berbuah Wadah tidak ramah lingkungan Munculnya produk serupa Model lain yang lebih menarik Jumlah peminat menurun

Melakukan evaluasi produk secara berkala Terus memperbaharui produk Memproduksi lebih banyak Membuat paket yang berisi wisata dengan produk

BUSSINESS MODEL CANVAS

BiMBa menghadirkan PAKET WISA A PETIK STROBERI BUAH STROBERI + BiMBa OUR STRATEGIES ECONOMY ECOLOGY kekayaan alamendah yaitu rotan. MATERIAL ROTAN Media Sosial, e-Commerce, Paket wisata BiMBa Rancabali, Bandung, Jawa Barat Biomimicry Multifunction Basket untuk Desa Wisata Alamendah LOCATION BACKGROUND DesaAlamendah merupakan salah satu desa agronomiter maju yang mayoritas mata pencaharian penduduknya adalah petani dan pedagang. Terletak di dataran tinggi dengan ketinggian 1300-2350 mdpl serta dipengaruhi oleh angin muson dengan curah hujan, DesaAlamendah memiliki suhu rata-rata 19-24C. Maka dari itu, penggunaan lahannya banyak didominasi oleh egalan dan ladang untuk komoditas sayur dan buah. ISSUES OF DESA ALAMENDAH Kelompok 4 Maria Zefanya 190117652 Bernadus Vincen 190117671 Stefani Puspa 190117681 Ozana Novone 190117770 Rizky Derian 19011784 Terdampak pandemi, ekonomi kreatif Alamendah membutuhkan pendongkrak. Belum ada ciri khas dalam kebun stroberi Alamendah. Packaging yang digunakan tidak ramah lingkungan. BiMBa M Ba omimicry ultifuction sket PRODUCT SWOT O T Mendukung argowisata di Desa Alamendah Ramah Lingkungan Pasar Baru Masih asing di telinga orang Pengunjung cenderung memilih wadah yang
menjadi limbah dengan menyediakan produk packaging yang dapat digunakan berkali-kali dan dapat dialihfungsikan sebagai pajangan dinding, “SAY NO TO SINGLE USED PLASTIC” Untuk pajangan Untuk wadah Untuk pajangan
PLAN TRANSFORMATION BADAN Digunakan untuk wadah berkepanjangan TUTUP Digunakan untuk pajangan KEWIRAUSAHAAN D Dosen Pengampu Nimas Sekarlangit, ST., MT. Mata Kuliah Kewirausahaan JAGAPUSTAKA PERPUSTAKAAN UMUM HIBRIDA DI KOTA YOGYAKARTA LATAR BELAKANG MINA BACA DI INDONESIA HANYA 0,001% JUMLAH PENGUNJUNG PERPUSTAKAAN MENURUN SETIAP TAHUNNYA SEHINGGA PENTINGNYA MEMPERHATIKAN POLA HIDUP MASYARAKAT AGAR PERANCANGAN PERPUSTAKAAN BEREVOLUSI SESUAI ZAMAN PENDEKATAN DENAH PENDEKATAN ARSITEKTUR PERILAKU MERUPAKAN PENDEKATAN YANG MENEKANKAN ADANYAKETERKAITAN ANTARA RUANG DAN PENGGUNA (MANUSIA). PERILAKU MANUSIA DIPAHAMI DALAM PENDEKATAN ARSITEKTUR PERILAKU UNTUK MENENTUKAN PEMANFAATAN RUANG. DENGAN MENERAPKAN FUNGSI EDUKATIF, INFORMATIF, DAN REKREATIF. SITEPLAN PEMBAGIAN MASSA MENURUT AKTIVITAS & PERILAKU PENGGUNA SERBAGUNA ARSIP KANTOR CAFÉ PERPUSTAKAAN PEMILIHAN WARNA BERDASARKAN TEORI ARSITEKTUR PERILAKU, WARNA BERPENGARUH TERHADAP PSIKOLOGI PENGGUNA RUANG. PEMILIHAN WARNA DALAM RUANGAN INI ADALAH RUANGAN INI ADALAH WARNA PUTIH, COKLAT, KREM, DAN HITAM. WARNA-WARNA ANG DIPILIH TERGOLONG DALAM WARNA WARM. WARNA WARM DITUJUKAN UNTUK MEMBERIKAN KESAN HANGAT SERTA MEMBERI DAMPAK KETENANGAN TERHADAP PSIKOLOGI PENGGUNA. PENERAPAN KONSEP PADA FASILITAS VIDEO ANIMASI 190117652-MARIAZEFANY REKREATIF INFORMATIF EDUKATIF PERILAKU LANSKAP SEBAGAI PUBLIC SPACE BACA REKREATIF SIGNAGE PENGGUNAAN SMART DEVICE SMART DEVICE PADA LANSAKAP RUANG INDIVIDU RUANG FUNGSIONAL TAMPAK KEBISINGAN TINGGI TINGKAT FOKUS RENDAH KEBISINGAN SEDANG TINGKAT FOKUS SEDANG KEBISINGAN TINGGI TINGKAT FOKUS SEDANG KEBISINGAN RENDAH TINGKAT FOKUS TINGGI KOLEKSI UMUM BILIK BACA RUANG PUBLIK PEDISTRIAN
MARKETING

SocialMediaDesign

@swakatakreativa

Sepekan Arsitektur 2021

Sepekan Arsitektur 2022

Sepekan Arsitektur is an annual event

Divisi Dedok

Divisi Dedok (Desain Dokumentasi) is a division on Himpunan Arsitektur Tricaka that handle design and documentation.

Logo
organized by Himpunan Arsitektur Tricaka. Sepekan Arsitektur is an annual event organized by Himpunan Arsitektur Tricaka.

THANKYOU

Turn static files into dynamic content formats.

Create a flipbook
Issuu converts static files into: digital portfolios, online yearbooks, online catalogs, digital photo albums and more. Sign up and create your flipbook.
Zefanya Arien's Architecture Portfolio by Zefanya Arien - Issuu