Portfolio & CV - Zachary Ng

Page 1

a selection of Community, Residential and Urban projects

PORTFOLIO
ZACHARY SOONG YAN NG
CONTENTS 4 ASCENDIS healthcare 12 Community Centre academic academic 2

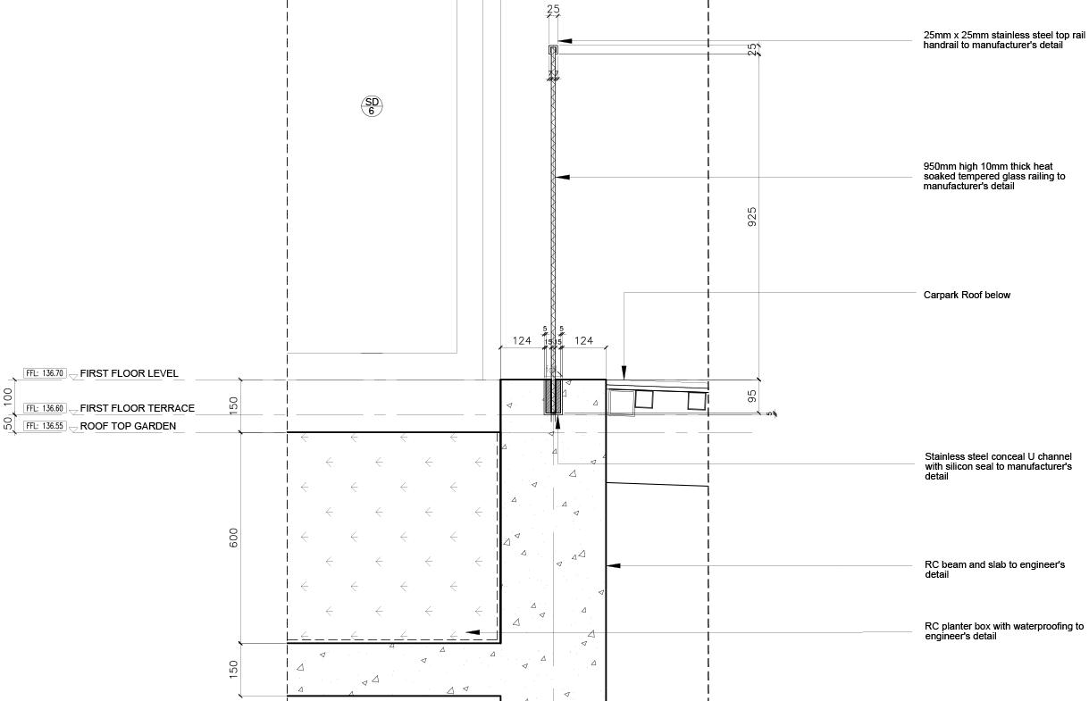
RC gutter to engineer's details coated with Waterproof Lining and finished with Polyurethane coating

Flintlastic sheet accessories to manufacturer's details on steel and trusses to engineer's

9mm thick water-resistant ceiling (C2) with raceways to manufacturer's

260mm thick double-leaf finished with 20mm plaster and 40mm

140mm wide Recessed

Water-resistant suspended ceiling 15mm wide PVC to architect's approval

750x3150 powder-coated Aluminium frame window with fixed

Wall-recessed Quartz to architect's Selection

1200mm high heat-soaked Tempered Glass architect's detail

RC slab to engineer's Waterproof Lining fined with Timber battens to manufacturer's

W 6
RB.6 250x600 RB.5 300x600 FB.8 250x950 FB.9 250x900
BATHROOM SHOWER TERRACE
Toilet Bowl Hand Bidet Shower Mixer Shower Head Overhead Shower Toilet Roll Holder
FB.5 400x750
AA A
Walk-in-Wardrobe and Bathroom
16 Max residence 14 Theatre housing MUCH scheme 18 academic professional extracurricular 3

an MMU Healthcare & NHS partnership

BA3 Studio Project, Hulme, Manchester

Rhino, Grasshopper, Lumion, AutoCAD

Algorithm for optimal building orientation:

Best Incident Sunlight

Mediocre Incident Sunlight

Worst Incident Sunlight

02. ACADEMIC PROJECTS 4
5

Detail of Interior and Exterior walkways

02. ACADEMIC PROJECTS
6

Tactile Detail of Walkways

Exterior walkways

Interior walkways

7

A: Mechanical vents along service core

B: Passive air vents by atrium wall

C: Mechanical vents along Double-Skin facade

Climate Strategies of biophilic design

02. ACADEMIC PROJECTS
8
A B C
B9

A late-night emergency visit in the rain for his sudden lower back pain jolting him wide awake

North-South section showing internal walkways and atrium

02. ACADEMIC PROJECTS
11
East elevation showing external green terraces and landscaped physiotherapy equipment

Community Centre

BA2 Technologies

Glasgow, Scotland

SketchUp, Sefaira, Photoshop

Daylight Factor (DF)

Percentage

Annual Luminance

Overlit and Underlit spaces

02. ACADEMIC PROJECTS
12
13

Residential Complex for theatre performers

BA2 Studio Project

Ancoats, Manchester

SketchUp, Enscape, Photoshop

02. ACADEMIC PROJECTS
14

SITE BOUNDARIES

BUILDING MASSING

LANDSCAPING

ACCESSIBILITY RAMPS

TREES FOR PRIVACY

CIRCULATION WALKWAYS 15

Max Residence

DCA Design Collective Architects

Kuala Lumpur, Malaysia

AutoCAD, Photoshop

110mm thick single-leaf Brickwall with 20mm thick cement plaster finished with full-height wall tiles on bathroom side

900x2700 Hardwood Timber frame with single-leaf Timber panel door

Cabinet Strip Lighting to manufacturer's detail

110mm thick single-leaf Brickwall finished with 20mm thick cement plaster on both sides

03. PROFESSIONAL PROJECTS D 6
WALK IN WARDROBE BATHROOM A BATHROOM TERRACE Toilet Bowl Hand Bidet Toilet Roll Holder Stopcock Basin
RB.5 300x600 FB.5 400x750 FB.3 275x750
VARIABLE REFRIGERANT VOLUME ledge ROOF LEVEL RC FLAT ROOF
TANK / PUMP PLINTH LEVEL FIRST
CORRIDOR Mirror
RB.8 275x600
WATER
FLOOR LEVEL
Scale 1:50
X-X2: Guestroom 1 Walk-in-Wardrobe
Bathroom
SECTION
and
16

LEFT: 1:10 detail of AC 100mm Plenum U-Box

AA Shower Head

RC gutter to engineer's details coated with Waterproof Lining and finished with Polyurethane coating

RIGHT: 1:10 detail of Typical outdoor Safety Railing approved

Flintlastic sheet at 4°pitch with accessories to manufacturer's details on steel roof structure and trusses to engineer's details

RB.6 250x600

Overhead Shower

W 6

9mm thick water-resistant Fibrous Plaster ceiling (C2) with strip lighting and cable raceways to manufacturer's detail

260mm thick double-leaf Brickwall finished with 20mm thick cement plaster and 40mm cavity

140mm wide Recessed Downlight

Water-resistant Plaster Board suspended ceiling (C2) with 15mm wide PVC shadow gap to architect's approval

750x3150 powder-coated Aluminium frame top hung window with fixed glass below

Wall-recessed Quartz Niche to architect's Selection

1200mm high heat-soaked Tempered Glass railing to architect's detail

FB.9 250x900

FB.8 250x950

RC slab to engineer's detail with Waterproof Lining to engineer's detail fined with Timber and Aluminium battens to manufacturer's detail

construction date : 05 August 2022 signature : 05 Aug 2022 YQ WS CADANGAN MEROBOH DAN MEMBINA SEMULA SEBUAH RUMAH BANGLO 2 TINGKAT DENGAN 2 TINGKAT DI BAWAH ARAS JALAN BERSERTA TEMBOK PENAHAN DAN KOLAM RENANG, DI ATAS LOT 6265, TINGGIAN TUNKU, BUKIT TUNKU, 50480 KUALA LUMPUR UNTUK : SIOW LOO SUN & YONG ZHEN WEI DCA/DBKL/278(CO) ARCHITECT / INTERIOR CONSULTANT : PROJECT : DRAWING TITLE : REVISION : SCALE : DRAWN BY : DATE : DESCRIPTION CHECKED BY : Architect Design Collective the work. on site before reported as shown JOB NO : DRAWING NO : DRAWING STATUS For information For construction For tender d.c.a. design collective architecture network sdn bhd Architectural + Interior Design Consultants No. 57, Jalan SS22/19, Damansara Jaya, 47400 Petaling Jaya, Selangor Darul Ehsan. Tel: 03-7727 0199 Fax: 03-7722 3199 REV A/C Plenum Box 01: AC 100m U-BOX SECTIONAL DETAIL DETAIL 02: AC 50m U-BOX SECTIONAL DETAIL Scale 1 : 10 Tie Rods to Ceiling Slab AC Outlet Plaster Ceiling with U-Box Painted Black Portion 17

SHOWER TERRACE Shower Mixer
for

Manchester Urban CoHousing (MUCH) Scheme

04. EXTRACURRICULAR PROJECTS 18

MUCH non-profit organisation

Chorltonville, Manchester

Revit, TwinMotion, Photoshop

19
20

Turn static files into dynamic content formats.

Create a flipbook
Issuu converts static files into: digital portfolios, online yearbooks, online catalogs, digital photo albums and more. Sign up and create your flipbook.