Mr. Yazan Rashed is a fresh graduate Architect from The University Of Jordan.
          
    Mr. Rashed has a genuine interest in environmental sustainability and the integration of the environment in the built space of architecture. Also, interested in preserving heritage and design in a modern way.
          Amman, Jordan
          yazan.rashed11@gmail.com
          00962797391039
          Linkedin QR Code :
          
    Education
          Bachelor of Architecture
          The University of Jordan (2023-2018)
          High School
          Al Hussien College School (2018-2017)
          Experience
          BITARCHITECTS, Washington DC
          Architectural Intern | ( Virtual ) Oct 02 - Dec 2022-22
          Turath: Architecture & Urban Design Consultant, Amman, Jordan
          Architectural Intern | June 27 - Aug 2022 - 29
          Friedrich Ebert Stiftung, Amman, Jordan
          Architect and Urban Researcher | Aug - Nov 2022
          International winter School Curtin University , Australia ( Virtual ) Jan - Feb 2022
          Honors and Awards
          Sustainable Mobility Competition Our mobility is our future
          the top five projects - short listed
          6th Jordan International Architecture Conference
          participated in this conference with a TOD Project along BRT Line in four different Locations certificate of participation
          Arab Engineers Park Compitition
          Architectural Skills Software :
          Most proficient:
          • Revit
          • Autocad
          • Photoshop
          • Lumion
          Intermediate proficient :
          • Sketchup
          • Adobe Illustrator
          • Adobe Indesign
          • Fusion 360
          • Microsoft office
          Volunteering
          Elementary proficient:
          • Rhino
          • Cinema 4D
          • Enscape
          American Institute of )Architecture Students (AIAS)
          Communications and Event Coordinator ( 2022 - present )
          Crown Prince Foundation- Nahno ( 2022 - present)
          Catch 22
          Acadamic leader ( 2020 - present )
          Volunteering member ( 2019 - 2020 )
          YR
        
    
    
    
    
    
    
    
    Contents Internship Projects 02Water Valley CT 03 STOJKOVIC House Remodel 04 Ratcliff Residence Remodel 05 Washington Dc Office Design University Projects 08 Amman Mosaic Museum 07Aromatic plant research center 09 Mecca Gate 06 Afaq Tower 10 Redevelopment of Iwanai 12 Arab Engineer Park 11 Reclaiming the roads of the Ballad 01 Nostalgia Amman 02 05 | 03 04 01|06|07|08|09|11|12 10
        Nostalgia
          Amman
          
    Graduation Project : Museum and Interpretation center
          Location : Ras Al-Ain, Amman
          Supervised by Prof Dr Saleem
          Dahabreh
          Nostalgia Amman Project is designed in a century while the community of Amman is affected by globalization, historical discontinuity, rapidly changing socioeconomic and cultural conditions, and technological advancements.
          while the new generation is distracted and not connected to their heritage and history, the idea of this project become necessary and important to implement to evoke feelings in the new generations by connecting them with the old generation and moving forward with our heritage.
          01
        Theoretical Background
          Contemporary living and globalization have contributed to a growing disconnection between younger generations and their hometowns and histories. Urbanization, globalization, and cultural assimilation have weakened the sense of community and attachment to one›s roots.
          
    Technology and social media have further distracted young people from learning about their past and heritage. To address this issue, efforts should be made to preserve and promote heritage through education, community initiatives, and preserving historical sites. Individuals can also take the initiative to explore their family history, visit local landmarks, and engage with museums and interpretation centers to reconnect with their cultural heritage. Understanding and appreciating one›s past is crucial for a deeper connection to ones city and heritage.
          Site Selection Process
          
    Al-Muhajireen, Al-Shabsough, and Al-Qabartay are among the oldest neighborhoods in Amman. AlMuhajireen was established by Circassian immigrants in the mid19-th century and consists of a residential strip and a services strip, including the cultural strip. The Cultural Strip is home to notable landmarks such as the Museum of Jordan, Greater Amman Municipality, Al Hussain Cultural Center, and Ras Al Ain Park. It also houses the Museum Terminal, a bus rapid transit station.
          Interpretation centers are typically established in areas with natural or cultural significance, along with visitor centers and museums, to provide various forms of information to visitors.
          "The younger generations are growing up in a culture of distraction, where they are constantly bombarded with information and are always looking for the next thing"
          (Turkle, 2011, p. 67)
          Why Interpretation Center is important to have in every city?
          Interpretation centers are crucial in preserving and transmitting cultural heritage. They provide visitors with valuable information about a city›s history, culture, and natural environment. These centers serve as educational and community hubs, offering programs and activities for residents and tourists to learn and engage with the city. They also contribute to sustainable tourism by raising awareness about local ecology and conservation efforts. By studying and preserving cultural heritage, interpretation centers foster a deeper understanding and appreciation of a city›s unique characteristics. They play a vital role in promoting respect, pride, and selfworth among individuals and communities.
          "The younger generations are growing up in a culture of distraction, where they are constantly bombarded with information and are always looking for the next thing"
          (Turkle, 2011, p. 67)
          Additionally, there is an unused area of land located between the Museum of Jordan and the Greater Amman Municipality, which could potentially be utilized
          
    
    
    
    
    
    
    Concept
          Creating dialogue that emphasizes the importance of fostering communication, interaction, and understanding between people and their built environment.
          Functions that describe the three bay houses, which reflect on functions inside the building to descripe the three main functions.the experience inside the building is showing the city and the market under the building is presenting the idea of having retail in the ground floor and above it having houses.
          Morphology
          The connection between the building and the green roof bridge not only encourages physical movement but also promotes a sense of community. It becomes a meeting point, a place for spontaneous encounters, and a shared space for socializing. Visitors can gather on the bridge to enjoy panoramic views of the
          surrounding landscape, fostering a sense of unity and belonging. elevating the building to accommodate a public space. This approach arises from the need to address an existing subterranean torrent that traverses the site. Also, It serves as a catalyst for the creation of an inviting public realm, seamlessly merging the built environment with the surrounding context.Furthermore, the elevated design promotes accessibility and inclusivity.
          Using the three bay houses as a starting point for the underlying order, applying all the ratios that were influenced by the city›s architecture and legacy, adding two main axes to the grid to emphasize the two pathways in the site, and then using the overall grid as a base point and applying forces to it to demonstrate how the building interacts with the surrounding built environment. adding a free-standing wall to the walkway to draw attention to the entry and the pedestrian path.
          
    
    
    
    The decision of where to place the tree on the property was made based on two main considerations. The first was to demonstrate the tree to museum visitors as they left the gate. displaying the tree and the water feature for both users who are utilizing the ramp or the stairs. The Water feasture is the nostalgia element for Amman torrent. Additionally, the tree serves as a metaphor for Amman›s historic homes because locals were planting it there.
          Two ways to reach the entrance of the museum with the same nostalgic experience.
          Designing balconies with specific locations and drawing inspiration from those in Amman’s houses
          
    System of Virtual Circulation across Various Levels
          Green Roof level and the bridge that connects the mountainside and this open public space plans that represent the mountainous terrain in the surrounding built environment
          
    
    
    Site Plan
        
    
    
    
    
    
    
    
    North Elevation
          
    
    
    
    
    
    
              
              
            
            Physical Model
          
    
    
    
    
    Water Valley CT
          Project Location: Springfield, VA
          Project Owner: S. KlaimiProject
          Type : Residential: 1 family
          house Project Valuation: 733,100 $
          Project Year: 2022
          With an unfortunate incident, the residents of the water valley residence experienced an unexpected fire in their main living room from an electrical problem, the fact that left half of their house completely destroyed. Saddened by the unfortunate event, the residents thought that it is time to remodel and create their long-awaited aspired design while adding an accessory dwelling unit, more like an in-law suit for their extended family.
          My responsibilities during this project were to do modeling for the house after the interventions of Bitarchitects in addition to do landscape design and to do architectural visualization.
          
    
    02
        The idea behind the design is to provide the homeowners› backyard space a whole lifestyle, complete with a swimming pool, sunbeds, an outdoor gym where they can exercise, a barbecue where they can prepare lunch, and a stool where they can enjoy a drink while the kids play.
          
    
    
    
    They had large, perennial trees in their backyard, so when I designed the backyard, I thought about retaining those trees and incorporating them into the design by working around them.
          
    
    
    
    
    
    
    
              
              
            
            STOJKOVIC HOUSE REMODEL
          Project Location: Bethesda City, MA
          
    Project Owner: J. Stojkovic
          Project Type : Residential: Multifamily house
          
    Project Valuation: 311,600.00$
          Project Year: 2022
          Mr. and Mrs. Stojkovic bought a new apartment next to their old one. They were hoping to open both apartments to create a residential home for their expanding family. The design is helping them fulfill their aspiration by inspecting the space, altering the interior architecture, and creating the necessary changes to generate harmony and unity in this merging.
          03
        
    
    
    As-Built Floor Plan
          Proposed Floor Plan
          
    
    
    
    
    
    The landscape plants used in this design were chosen based on the trees that are most prevalent in California; the goal was to evoke the feeling of living in California by using palm trees and the idea of touching the water in various sitting
          Ratcliff Residence Remodel
          Project Location: Cameron Park, CA
          Project Owner: FSA | P. Ratcliff
          
    Project Type : Residential: 1 family house
          
    
    Project Valuation: 300,000.00 USD
          
    Project Year: 2022
          Mr. and Mrs. Ratcliffe wanted to build the dream home on their land. Bitarchitects Team helped them create a design that they desire and outlined everything from concept to Permit.
          areas. In addition to the sitting area where you touch the water, the design also includes small open door platforms for gathering and sitting with a view of the pool.
          
    
    04
        Dc Office Design
          Ms. Bitar wanted an office that represents the company. Ms. Bitar is interested in having a designed architectural office at the heart of Washington DC.
          
    Project Location: Washington DC
          Project Owner: Bitarchitects
          
    Project Type : Marketing Office
          Project budget : 2000 $
          Project Year: 2022
          Ms. Bitar was interested in having Bitarchitects Logo integrated into the space, color palette including only achromatic colors, accent color: yellow (referring to the brand) and budget not exceeding $2000.
          
    
    
    
    
    05
        Afaq Tower
          Design 5 : Mixed Use Tower
          Location : Abdali Boulevard
          
    Supervised by Dr Nancy
          In this Design Studio, I had to design a Mixed-used tower that contains apartments and hotels.
          The project location is on the Abdali Boulevard which is the most contemporary modern district in Amman City, It contains other highrise buildings and Shopping Mall.
          06
        
              
              
            
            Concept Concept
          
    the idea began when I wanted to add a new tower to the Amman skyline to show that we are evolving, as well as the architecture. As a result, my tower is shifting from one general form to another. My tower begins with the core, and I chose the tower placement based on the finest views. Next, I began adding masses to the tower based on functions and the best form that we can achieve when we shrinkwrap the whole massing.
          Morphology
          
    
    Structure
          The structure system is supported by main core and columns st the corners of the tower that carry load to the main core which has thick bearing walls and provide vertical circulation for the hotel, apartments and services
          
    
    
    
    
    Core Columns - Main
          
    
    Circulation
          Hotel Services Floor Hotel Services Vertical Circulation
          Hotel Services Vertical Circulation and services floor
          Hotel Horizontal Circulation
          Residential Services vertical circulation
          Emergency Stairs
          Residential vertical circulation core
          Podium - Columns System All Systems
          
    Residential Horizontal Circulation
          Residential vertical allowed drop of area Circulation
          Residential vertical and horizantal Circulation
          
    
    
    
    Plan Ground Floor Cafes and Restaurant Terrace Kitchen Gym WC Shower Room Lockers Room Outdoor Sport Zone Classic Room Classic Room Twin Bed Classic Room Twin Bedroom Crown Suite Royal Suite Premium Double Room Level 21 Level 13 Color Legend Level 1
        
    West Elevation
        Aromatic Plant Research Center
          Design 6 studio
          Location : The University of Jordan, Amman
          Supervised by Dr Nabeel
          The University of Jordan is planing to build a research center inside the campus, this research center will include students, researchers, and visitors from the city to buy the products that should also be produced in this building, the crops, which are the raw material, will be delivered from the University of Jordan Agricultural lands to this building.
          
    07
        Concept
          save as much space as possible from the agricultural area for students and experimentalists for laps, which is why I went vertically and gathered all the functions on one side of our site.
          
    Morphology
          Starting with a single large cube, divide it into zones, and each zone has its privacy based on the user experience as they move through our Narrative.
          For the laboratories, there is a multilevel form. bulk to encompass all labs, demonstrate its significance, and push back the private mass by affecting the force in which it will contain the production line and storage.
          Subtraction from the public mass to identify its entrance and void mass (which is subtraction) to reach the higher possibility of the concept.
          All masses are affected by topography, which creates a hierarchy for the overall compositions.
          Directional rotation for this mass is influenced by site borders. This rotation will act as architectonic elements.
          
    
    
    Entrance Level Level 1 Level 2 Level 3 Level 4
        B1Level
        Parking-
        
    
    
    
    
    
    South Elevation
        West Elevation
          East Elevation
          Section A-A
          Section B-B
          Site Plan
        
    
    
    
    
    
    
              
              
            
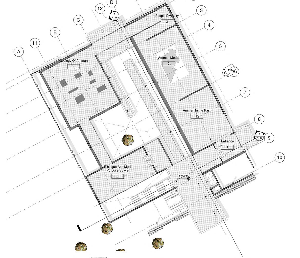
            Amman Mosaic Museum
          Design 5 - Museum
          
    Location :Jabal Amman, Amman
          Supervised by Dr Ahlam
          This project is designed to tell the story of Amman›s diversity in the population through history, the site is in one of the most ancient residential districts in Amman, and it contains an old house which I reserved and includes in the design, this project target user are Families, Tourists, and Local people
          Each visitor will be identified with a special identity upon entering the museum, thus giving each visitor a special identity, a special experience, and a desire to love discovery and know more information about the identity given to them
          In addition to having a fantastic time, visitors can enjoy looking at historic Amman and to see diverse perspectives. Visitors can explore the gallery, and library, wander on the museum›s roof and have a cup of coffee in a historical house.
          08
        Concept
          the site located between local houses that are clustered. which a horizontal linear form will make a the museum attraction between all this clustered forms.
          Morphology
          The timeline of Migrations in the Modern History of Amman, inspired me The Narrative (Timeline) is stretched into a linear spatial experience, then bends to form has Lines Affected by the site and to give more Vistas.
          
    
    the path of the narrative which is the gallery affected by the site slop, in addition, design the end of the narrative in a way that meets the other path on the roof which lets people have the ability to walk on the roof and join Jara souq which is extended from the street to our roof, taking in consideration the level of the roof at the same level of the street to give a smooth experience while moving.
          
    
    
    
    
    
    Ground Floor
          Basement level 1
          Site Plan
        First Floor
          
    
    
    
    
    
    West Elevation East Elevation
        
    
    
    
    
    
    North Elevation
        South Elevation
        Mecca Gate Design 4 - Mixed Use
          
    Location : Mecca ST, Amman
          Supervised by Dr Wael
          Designing a mixed-use building in Mecca Street, one of the busiest streets for people to go shopping, all the commercial buildings there are typical, what I am trying to do in this project is to attract people to the building to make it uniqe among all other commercial buildings. This building contains subtractions which make a sense of light in Day and open to the sky in the night, and natural lighting, in addition offering open places for youth and shoppers in the third level with view on Mecca Street to set in and a path that goes through our building that connects the residential area with the commercial area.
          This building is going from public to private going from down to up, which there are offices on the last floor.
          09
        Concept
          commercial building that contains different functions and open spaces on a high level to attract youth people and locals, making void through our building to make it more ventilated and provided with natural light and interior vegetation.
          Morphology
          Splitting the Main Mass into Platforms which we can do Subtraction in each one Alone.
          Subtraction For Ventilation and to let sun in and to keep the Opening Ratio Fixed Ratio.
          
    
    
    It is integrating as much greenery into the building to attract people. design in a way that could make the uses of the building Integrated with the community and introverted inside the building to Make open Community Spaces Using steps, ramps, and seating areas that could function in multiple ways. designing the entrances to have Mystery and playing with light for developing feelings while moving in the building.
          Full exploitation of the land area
          
    Make The Platforms Connected at some Point in the Upper Levels To Keep the Circulation Net And Clean without Bridges.
          
    Series of openings on all floor plates maximize visual & spatial continuation.
          Create A path between Al Rabieh and Mecca Street ,which increase the Connection with the ResidentialDistrict to link the neighbourhood with Mecca Street, and to didn›t Built the Building as a Physical Edge for Neighborhood residents
          Adding mystery, love of exploration, Interior Place Not Space
          5th Platform 4th Platform 3th Platform 2th Platform 1th Platform All Combined
        
    
    
    
    
    Ground Floor First Floor
        Fourth Floor Fifth Floor Secound Floor Third Floor
        Section A-A Section B-B
          
    
    
    
    Site Plan West Elevation
        North Elevation
          
    
    
    
    
              
              
            
            Redevelopment of Iwanai
          Winter School and Competition - Urban Redevelopment
          
    
    Location : Iwanai , Japan
          Supervised by Luke
          Year:2022
          The Redevelopment of Iwanai port project was designed in the Winter school that I did with Curtin University in Australia.
          Iwanal port has long been a symbol of economic activity in the area, with many ships entering as one of Hokkaido›s leading fishing bases. So it is a potential area for redevelopment sense. it is suffering from many issues like the lack of interaction between residents and the sea due to the lack of urban designed areas and services, the port does not contain any area for tourist attractions, and the port does not represent the Ainu Culture. so we started thinking about how we can reconnect. so as a solution for this, we build along the sea wall in a specific area in the port.
          Site Selection :
          The Site selected near to the center of the Town to be accesseble and to achive the idea of reconnecting between human and nature features.
          relocate Funstiones and Zones :
          We did rezoning for the port and became a port with three zones instead of one zone, one of the three zones is for tourism because it's the nearest one to the city center and Cultural facilities, and for the sea bath location that we suggested for indoor activities in winter like swimming or having a cup of coffee on one of its' balconies with view to the ocean and mountains.
          
    Goals :
          -Reconnect the town to the Ocean
          -Activating tourism and creating job opportunities
          Objectives:
          
    - Create a place to spend time with family, reflect, and be active, a community space.
          -Provide the area with facilities that attract investments and tourists.
          Actions:
          - Build along the sea wall
          - vegetate the coastal area
          - Adding sculptures along the sea, incorporating Ainu culture and perspectives.
          - Separating functions from each other ( commercial, industrial, Urban and tourism area ),Provide the area with more functions ( Visitor center, parks, shops, restaurants and cafes.
          
    
    10
        
    
    
    
    
    Functions Site Selection Commercial Area Industrial Area Tourism and Urban Area Detailed Zoning : Shops / Market Sea Bar Visitore Center ParksSea Bar Warehouses
        path Cycling lane Bridge Sitting Area Verge Garden Amphitheater
        Main
        Pedestrian
        Reclaiming the Roads of the “Ballad”
          The project aims to develop the downtown area «Quraysh Street, King Talal Street and Al Hashemi Street» through transitoriented development (TOD) and strategies of sustainable urban mobility planning (SUMP]. The site area is vital since it connects the Jordan museum bus station and the old Raghadan bus station. As well as encouraging citizens to use sustainable transport.
          
    
    National competition- Top 5 projects
          
    short list
          Location: DownTown Of Amman
          Year : 2022
          11
        Location: Amman, Jordan
          Category: Urban Design
          Role: Group Work
          Site Assessment notes
          Poor sustainable transportation planning.
          Low engaging of the locals with the decision making. A questionnaire has been done in the Downtown of Amman and these are the issues the locals have highlighted in the area.
          Site Assessment notes
          What is the problem?
          Poor sustainable transportation planning.Low engaging of the locals with the decision making. A questionnaire has been done in the Downtown of Amman and these are the issues the locals have highlighted in the area.
          
    
    How Amman is a frozen city in time where the buildings stay the same, the systems stay the same with just little changes. This may have given Amman’s Downtown the identity throughout the years but the world is developing in a rapid pace and the Downtown has to adapt to that change to meet the technological and sustainable standards in 2022.
          
    
    
    What is the problem?
          The Ballad’s roadways have long been ruled by automobiles; it’s time for a change to give the people control of these roads once again. Transit oriented development is the solution for all these problems.
          
    How
          
    
    
    
    
    
    Methodology
          Our plan is to offer the public a strong transportation network in the downtown that serves the city center individually and connects with the transportation terminals. Therefore, automobiles traffic will be reduced radically and the spaces for cars will be redesigned to enhance walkability and other modes of transportations like e-scoters, bicycles and public busses.
          
    How Amman is a frozen city in time where the buildings stay the same, the systems stay the same with just little changes. This may have given Amman’s Downtown the identity throughout the years but the world is developing in a rapid pace and the Downtown has to adapt to that change to meet the technological and sustainable standards in 2022. The Ballad’s roadways have long been ruled by automobiles; it’s time for a change to give the people control of these roads once again. Transit oriented development is the solution for all these problems.
          Methodology
          in the Downtown
          Our plan is to offer the public a strong transportation network in the downtown that serves the city center individually and connects with the transportation terminals Therefore, automobiles traffi will be reduced radically and the spaces for cars will be redesigned to enhance walkability and other modes of transportations like e-scoters, bicycles and public busses.
          Relieving the congestion in the
          Performance Design after the implementation of the action plan:
          
    
    Our costumer arrives to the Downtown via any transportation method. He can use 1 of the 16 bus stops. The maximum waiting time for the bus is 4 min. The bus is equipped with a smart payment method (Magnetic card / Qr Code). He can pay using a 1 card that can be used in all the transportation network in Amman ( Big busses, articulated busses, Costars, service cars, etc). The card can be charged online or at the new Raghadan station. For tourists, they can by a transportation pass that allow them to access everything from tourists sties and transportations. In the end, the costumer can reach the BRT station or Old Raghadan Station where he can access different areas across Amman.
          
    The project aims to develop the downtown area “Quraysh Street, King Talal Street and Al Hashemi Street” through transit-oriented development (TOD) and strategies of sustainable urban mobility planning (SUMP).
          Congestion User experience for pedestrians Confusing internal transportation
          downtown Regulate the streets policy Adding a new articulated bus Network in the Downtown of Amman Redistributing of the mobility lines in Downtown of Amman Change the nature of some streets to be fully pedestrians Reducing the traffic in the Downtown Connecting the Downtown with a strong transportation network Create an internal transportation network for the Downtown More Space for pedestrian network development Enhancing accessibility with the government comprehensive transportation plan Developing an identity of the Downtow Making the streets more pedestrian and other light automobiles friendly
        Plan
        Action
        to implement the transit oriented development plan in the downtown of Amman? Plan Actions Results Vision 1985 2019 2021 2022 1950 1960 1980
        Street Section
          The street sections were redesigned by adding a special lane for an articulated bus and a path for bicycles, the sidewalks were redesigned to satisfy current needs.
          
    
    User Experience
          Finding your way: The locals now have less options to choose from the provided transportations and have different mode of traveling other than walking like e-scooter, bicycles and internal articulated buses.
          Reliability: People now have a clear schedule for the bus and its capacity and the expectancy rate for the service.
          Articulated bus Network
          An internal transport network has been developed that connects the Jordan Museum bus station and the old Raghadan bus station with articulated bus with rapid frequency, which connects public transport complexes, commercial centers, and tourist and heritage areas.
          Transportation lines redestribution
          A redestribution for the existing transit netwrok was needed to let transportation line communicate with each other. This reduced the number of the lines in the site area from 90 line to only 4 while keeping in mind the user expereince and service quality for the locals.
          Travel distance was shortend by %33 for each
          transportation line which means 540 km on average. Gas emissions have been lowered by almost %84 too due to the articulated bus being an electrical bus.
          Pedestrian Lane 3 m Utilities lane, Vegetation, lighting,Cycling stops, Bus Stops 2.2 m Car Lane 2.75 m Car Lane 2.75 m
        90
        Articulated bus lane 3.5 m Cycling, Escooter lane 1.4 m Utilities lane, Vegetation, lighting,Cycling stops, Bus Stops 2.2 m Pedestrian Lane 4 m
        4 transportation lines +the aticulated bus line
        transportation lines
        
              
              
            
            Arab Engineers Park
          National competition
          Landscape - Park
          Location : Deir Gbhar
          Supervised by Dr Deyala
          This is a landscape project for the competition that the Jordan Engineers Association proposed.
          
    
    
    The competition was to design a park that is related to the Arab Engineers. They gave us a selected site and we worked on it for a whole semester.
          
    Our design scored the highest mark in our class. Sadly, we could not join the competition once they announced it due to the restriction they put on the competitors.
          In this project due to our good design, we had a participation certificate from the Jordan Engineers Association.
          
    12
        Concept
          The concept can be divided into two main ideas:
          
    
    -1 The first part that is related to the local site and how the design drivers affected our site, what are the needs of the local community and how we can make a remarkable design.
          
    
    
    
    
    
    
    -2 The second part is related to the Arab engineers association. We resembled the engineering science in our design with sculptures at strategic location. Around these sculptures, there will be colorful trees. This will teach all the local community about the Arab engineers and about there contributes.
          
    Morphology
          We lay a 2*2 meter grid and put attractors induced from our research
        *The other man entrance * To welcome the students from the high school. * Area For Adult's activities * Near the building * It has its own boudries
        *
        * Kids Areas * 4 Areas to please the kids taste. In the center to give sense of security * Not covered with trees o hedges.
        The mian entrance * To welcome the students from the kindergarten. * To give privacy to the residantials due to the narrow streets. Arab Architecture Narrative Symbol Main Circulation Running Path Walking Path Intersection Plants Views
        * Being placed on an intersection between walking and funning * The main mutli-use building. * IT is not covered by trees to show welcoming and provide an easy access.
        Its stuff gonna be very formal
        *
        from the site
        Starting
        We figure the relation ship of these attractors We lay our paths in a pre-fixed order so we get this kind of hierarchy design South Elevation North Elevation East Elevation West Elevation