

![]()











The three-story 46,000-SF Early Childhood and Lower School features indoor areas opening to outdoor play and classroom spaces as well as collaborative spaces that encourage critical and creative thinking. The sweeping staircase located at the entrance is perhaps one of the most eye-catching features of the School. Not just for traveling from one floor to the next, the staircase is also used as learning space and for chapel, parent education, and social events. Formerly located in the main building, a welcome/check-in center greets people upon entering the new building. Additional amenities include two terraces and an outdoor play area outfitted with turf and a playground. The terraces often function as a fun alternative for learning spaces and are also utilized for chapel and special events. The first floor is dedicated to pre-K 3, pre-K 4, and kindergarten as well as the admission offices and the Health Clinic. The second floor includes second grade classrooms, administrative space, and a state-of-the-art music room with sound-absorbent ceilings and walls. The third floor houses the headmaster’s office, academic enrichment department, counselor’s office, learning commons/library, business offices, and third and fourth grade classrooms. The fourth floor is dedicated to the innovation lab, art room, science lab, and fifth grade classrooms.





The 35,000-SF Student Life Center is comprised of the Auditorium and Performance Hall (Meyer Hall), Student Commons, Jamieson/ Chilton Dance Studio, and additional classrooms and parking. The 12,000-SF multi-purpose auditorium seats 1,300 and on the second floor a 3,500-SF balcony doubles as a lecture hall for up to 300 people. The school’s former 7,000-SF auditorium was tranSFormed into a student commons, and the stage is now the Arthur W. Buckley Theatre, a black box with 120 seats, which serves as the theater classroom. The commons area now stands at 8,500 square feet and allows for more group work and socializing, and the Spirit Store was upgraded from a small room to a beautiful space conveniently located off the main driveway. The 4,500-SF dance studio provides multi-purpose space for the school, a home for our yoga and wellness programs, and accommodates up to 87 dancers from their original capacity of only 10. The Student Life Center also includes a speech and debate space with a communications classroom, a health classroom, three multi-purpose practice rooms, three vocal studios, and boys’ and girls’ dressing rooms. The project was completed in October 2018 at a construction cost of $22,400,000.





St. Agnes Academy is intentional about providing their students and staff with an exceptional academic program in a transformational setting. The most recent space to receive attention was the Administrative Wing located in the main campus building constructed in 1963. The Wing serves as a location for offices, library, classrooms, restrooms, small staff kitchen, and conference rooms. This 94,000-SF project consisted of renovating the existing student, staff and public restrooms to become handicap/ADA, accessible; the addition of an exterior handicap accessible ramp that called for replacement of concrete steps and porch with new entry; installation of new cabinets, fixtures and insulated glass windows; replacement of air handling units; installation of new sprinkler and fire alarm systems; and upgraded interior finishes to the floors, walls, ceilings, and lighting. The existing terrazzo floors and brick walls remained and were protected throughout construction. Additionally, all aspects of the Wing were brought up to current handicap code compliance. This project was completed in February 2024 at a construction cost of $10.475MM.





In 2002, Bellows and River Oaks Baptist School began construction on a $19 million, 106,000-SF, seven-phase masterplan aimed at increasing usable facility space at the campus by 65%. The plan included renovations to the chapel, church, administrative office and common areas. Most of the improvements and new construction being aimed at enhancing the quickly growing school. Working around carpool and class schedules was imperative to ensuring a smooth operation.
Improvements to the quickly growing school included: renovations to the pre-school, a new 3-story education building, exterior entrance upgrades, parking lots, athletic fields, a new gym, a detention pond, and converting the old existing gym into a modern common area that serves as school cafeteria, church fellowship space and theater. The 50-year old structure was salvaged and the new multi-purpose building included more windows, after-school care rooms, cafeteria with fully equipped kitchen, private dining area, and performance stage equipped with lighting and sound.




The $52M, 100,000-SF project included a new middle school building for grades 5 - 8, underground parking garage, leadership center, and an artificial turf practice field with a lacrosse wall. The design is based on the 21st century learning curriculum rooted in STEAM education. Jackson & Ryan Architects created a design that includes learning communities; fine arts enhancements, ceramics room, and rooms for both choral and instrumental music; digital media room; tinker labs; roof terraces for outdoor education; and sustainability characteristics to enhance curricular objectives. The new four-story Keith and Alice Mosing Middle School features an advanced robotics lab, large maker space, dedicated music rooms for instrumental and choral groups, visual arts studios, and science labs. An added and exciting bonus is that the middle school has a state-of-the-art performance space with retractable seating in the Petersen Blue Box Theater. Underneath the middle school is a 150-space parking garage designed to improve traffic flow and maximize green space. In recognition of Susan and Fayez Sarofim, The 15,000-SF Sarofim Leadership Center is the new main entrance to the school and administrative wing. The project allowed the school to increase its student population by about 10 students per grade level and decrease the student-teacher ratio in classrooms. Bellows has previously performed extensive work for River Oaks Baptist that included construction of a new education building, library, commons building, and athletic center.





Replacing the 40+ year-old Winston Hall, the 70,000-SF Flores Hall and Campus Center Building project serves as the hub of academic and social activity for the school. The 70,000-SF undertaking includes the Flores Hall dining and meeting space, the Chao Assembly Room, Frankel Balcony, the Fondren outdoor dining areas, a café, counseling and admissions offices, additional fine arts instructional space, Heritage Hall and spirit store, 45 underground parking spaces, and a new Great Lawn that provides an additional 22,000 square feet of green space for students to interact. The project doubled the fine arts curriculum space to 5,000 square feet. The Flores Hall and Campus Center Building is LEED certified (services provided by Kirksey Architecture) and was completed in August 2015 with a $32.2M construction cost.





The St. John’s School $8.8 million athletic expansion called for the creation of a multi-purpose practice facility for softball and 1.86-acre/81,021-SF field hockey, an indoor batting cage, and a 290,834-SF all-sport practice space that is utilized during inclement weather. The multipurpose fields are turf to maximize usage and minimize weather impact. Bellows also added a new 23,000-SF press box and dugout, new sound system, two synthetic turf bullpens, and batting cages. The Ligums Practice Facility is a 10,430-SF indoor batting cage and all-sport facility complete with five batting cage bays, locker rooms, and storage. Also built on the property is a threelevel, 62,500-SF parking garage that is shared with neighboring St. Luke’s United Methodist Church. The field hockey construction was completed in August 2016, the athletic complex in October 2016, and the shared garage in February 2017.




Construction on the new $4.4M, stand-alone building, which is located on the east end of the Molly Smith Courtyard by the Virginia Stuller Tatham Fine Arts Center (VST) on the Brown Campus, began in June 2017 and was completed in March 2018. This building serves as a 6,800-SF multipurpose hall available to the Lower and Middle School communities as a much-needed gathering space and a fine arts rehearsal venue. The project also included new speakers and wireless microphone set ups in the adjacent courtyard for future outdoor productions.





An outstanding example of our ability to work within a fully functioning campus is the 59,000-SF Center for Student Life, Fine Arts, and Administration Building. This $10,400,000 two-story school administration building includes a 250-seat performance hall, student lounge, character education, visual arts, digital lab, and music classrooms. Completed in 2003, this was the last of three buildings constructed on site.
Due to terrific cooperation between our superintendent and the school administration and the diligence of our supervision in upholding the agreed-upon plan, we were able to keep disruption to normal school activities to a minimum and preserve the safety of the staff and students. We built covered pedestrian walkways around the building, we kept the drop-off area open and unobstructed during peak hours, and we carefully scheduled and monitored all work outside of the building to ensure the students and staff were not affected and inconvenienced as little as possible.





The Rise School is a non-profit organization that provides early childhood education to children with Down Syndrome. This 26,000-SF project features a cheerful and bright blue brick building surrounded by playgrounds. The project includes 12 classrooms, outdoor and indoor play spaces, and therapy spaces. The Rise School is located at the Texas Medical Center Leland Campus. It was completed in 2011 with a $6.5 million construction cost.





Gulfton and Sharpstown are two of the most diverse neighborhoods in Houston. However, due to years of disinvestment, this largely immigrant neighborhood has become an area of concentrated poverty. Ever since St. Luke’s merged with Gethsemane UMC in 2009, the Church has made it their mission to be an epicenter of hope. The new 54,335-SF Community Center on the Gethsemane Campus will provide operating spaces for partnerships and programs and a safe, secure space where children can gather and foster a stronger community. The Center will house Legacy Health Care, a client-centered health services clinic; Houston reVision, a ministry dedicated to breaking the cycle of isolation for at-risk youth; the PX Project, a workforce development program; Connect Community, a social services networking organization; and a commercial kitchen.





St. Paul’s United Methodist Church is a fully-functioning church and school campus used as a day school for children during the day and by children and members on weekends. This LEED Silver certified, 56,000-SF project was built in two phases with the school continuing operations throughout the project. Phase I was a 10,000-SF addition to the existing Jones education building, including all sitework, and new terrace. Phase II included major demolition and rebuilding of levels one and two, with some minor work in the basement. This project was completed in 2011 at a construction cost of $5,494,816.
Since this project, we were hired to construct the Bankston Green Plaza arena, and recently completed a major HVAC and exterior facade restoration project, including a fully renovated basement for classrooms, offices, and gathering spaces.





In the fall of 2023, the St. John’s School Board of Trustees finalized the capital priorities for the school’s next campaign. The scope now includes a new Lower School building and renovations to the Skip Lee Football Field. Bellows Construction was delighted to return to the St. John’s campus for these highly anticipated projects.
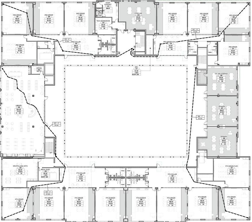
The Lower School building will be positioned on the back athletic field and will include underground parking, K-5 classrooms, library, kitchen/dining space, a new carpool chute and circle, and a new K–5 playground. The groundbreaking ceremony took place on January 9, 2026 with an expected completion date of December 2027.
The Bellows team mobilized for the $10 million Skip Lee Field renovation in November 2025. The football field will have a new underground detention system installed with 267,000 cubic feet of storage capacity, new turf, and a new track. The estimated completion date for this project is August 2026.





Trinity’s campus facilities are located on 22 acres on West Wadley Avenue in Midland, Texas. In the summer of 2016, the School completed construction of the Commons, which includes a lunch room, kitchen, large conference room, study area and offices; two Administration Buildings; and the de Compiegne Building, which houses the Upper School (grades 9-12). During the summers of 2017 and 2018, the School completed the renovation of five Preschool classrooms and the Simmons Building, which houses the Middle School (grades 5-8). All Saints Chapel was renovated in the summer of 2019. The campus includes two gymnasiums, one wood-floor competition gym and one rubber-floor practice gym. Trinity School has experienced increased demand in recent years and needs to expand to accommodate population growth. The first phase of the campus improvements will include three new buildings: a 35,000-SF two-story lower school, a 5,000-SF administrative and library space, a 5,000-SF multi-purpose/dining hall; an 800-SF chapel expansion; and 3,000 SF of minor renovation as well as site and landscape improvements.

