2024-2025

![]()
2024-2025

Étudiante en architecture d'intérieur et design Portfolio

Passionnée d’architecture, je poursuis ma première année de Master Architecture & Design à LISAA. Mes stages m’ont permis de renforcer mon intérêt pour l’utilisation de matériaux locaux et écoresponsables dans la conception des espaces.
Grâce à une expérience professionnelle à l’international, j’ai enrichi ma vision du design en intégrant des influences culturelles variées et des approches environnementales adaptées aux contextes locaux.
Je recherche une alternance à partir de septembre 2025 pour approfondir mes acquis, contribuer à des projets innovants et développer une approche du design alliant créativité, durabilité et exigences du terrain.
Téléphone: (+33) 7 78 03 02 58
Email: Winonaebpro@gmail.com
Architecte d’intérieur stagiaire
Maison Gabinel|Paris|Novembre - Janvier 2025
•Conception de l’aménagement d’une cuisine
•Développement d’un DCE complet
•Élaboration de plans détaillés de mobilier sur mesure
•Élaboration de dossiers de présentation client
•Participation aux réunions de chantier: Prise de note et mise à jour du cahier des charges
Designer d’intérieur stagiaire
Koffi & Diabaté|Abidjan|Février- Mars 2024
•Conception de mobilier pour un musée
•Développement de dessins techniques de mobilier
•Collaboration avec les architectes: Consultation pour aménagements intérieur, création de planche d’ambiance
•Élaboration de dossiers de présentation client
Adobe:
•Illustrator
•Photoshop
•XD
•In Design
Divers:
•Excel
•Anglais (C2)
•Découpe laser
•Corona
•Vray
L'institut Supérieur des Art Appliques
2024-2026 | 1ère Année de Master : Architecture d’Intérieur et Design,
spécialisé en Service Design (cours en anglais).
Projet partenaire : ESG Sport
2021-2024 | Licence : Architecture d’Intérieur et Design (cours en anglais).
Projets Partenaires : Forbo, Verallia
Lycée Gérard de Nerval
2021 | Baccalauréat (Spécialités : littérature anglaise et arts plastiques)
Création de Contenu (UGC)
Pilates Voyages
Autodesk:
•3ds Max
•Autocad
•Adaptabilité
•Apprentissage rapide
•Autonomie
•Écoute active
•Prise d’initiative
Architecture d'intérieur / Design produit

Architecture d’intérieur/ Stage / Gestion de projet / Rénovation
Architecture d’intérieur / Conception de concept
Architecture d’intérieur/ Concours / Projet de groupe / Design produit
Architecture d’intérieur / Stage / Relation client / Construction
Architecture d’intérieur / Design produit / Développement produit
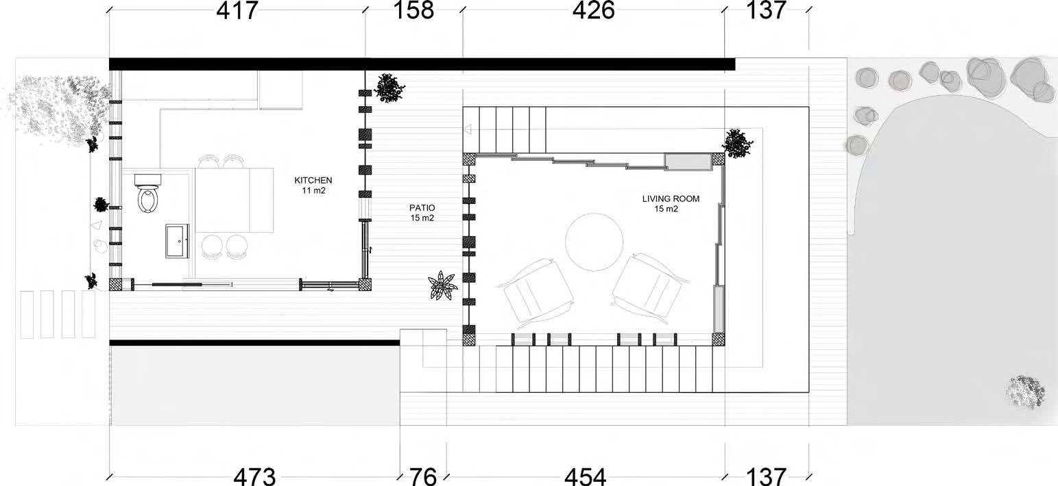
Résidentiel|Stage|2025
Pompe est un projet de rénovation de cuisine pour une famille de trois cherchant à améliorer son espace de vie.
Architecture d’intérieur


















Résidentiel|Projet de groupe|2024
Casa Espe est un appartement conçu pour des locataires étudiants, inspiré par un mélange de la célèbre charpente en bois de Bourgogne et des designs vernaculaires nigérians, le rendant parfait pour le climat de Los Angeles.
Architecture d’intérieur


Créer un espace de vie adapté aux utilisateurs tout en choisissant la structure en bois appropriée pour le projet.
L'ensemble du terrain
Canal Discrit-Venice
Los Angeles,CA
L'espace est limité, et les deux personnes y vivant ont des emplois du temps et des modes de vie différents.
De plus, l'emplacement humide de la maison pourrait poser des défis.
Fusionner deux styles architecturaux traditionnels (nigérien et bourguignon) à travers une vision plus contemporaine, principalement en jouant avec les espaces intérieurs et extérieurs.
Deux étudiants adultes (moi et mon binôme)
Travaillant uniquement pendant les vacances d'été
L'un est un lève-tôt, l'autre préfère la nuit.
Minimaliste mais coloré, grâce à l'utilisation de différentes textures pour obtenir un bon équilibre.



OÙ : Los Angeles
QUOI : Appartement
SURFACE: 72 m²

ELEVATION SUD

ELEVATION NORD


ELEVATION OUEST

ELEVATION EST











Hospitalité | Projet de groupe | 2e au concours Forbo | 2024
Eyidi est un projet conçu pour créer un espace unique au sein d'un environnement, offrant à l'utilisateur la sensation d'être transporté dans un lieu totalement différent.
Architecture d’intérieur

Concevoir un espace adapté à l'environnement, assurant au patient un sentiment de sécurité et de calme.
L'espace est intimidant et trop utilitaire, ce qui le rend encore plus impersonnel.
Hôpital Necker
Bâtiment Laennec
Transformer les salles d'attente en sanctuaires tranquilles avec des designs inspirés de la nature et respectueux de l'environnement. Les pièces à thème réduisent le stress et offrent du confort, améliorant ainsi l'expérience globale.
Femmes enceintes et enfants malades
Personnel hospitalier
Inspiré des paysages de la nature











OÙ: NECKER
PAYSAGE: Forêt
PAYSAGE: Forêt










Résidentiel | Projet de stage | 2024
La Villa Djondji est une maison de vacances chaleureuse, située dans un hôtel près de la plage, offrant un havre de paix privé.
Architecture d’intérieur

Concevoir un espace de vie de vacances pour un locataire accueillant et en accord avec l'esthétique de l'agence.
Créer un design significatif tout en prenant en compte les facteurs économiques et l’esthétique de l’agence.
Hôtel Assinie, Côte d’Ivoire
Concevoir des espaces en utilisant des matériaux locaux afin de créer une atmosphère chaleureuse et accueillante.
Touristes
Un design minimaliste aux tons naturels, enrichi par diverses textures pour créer une ambiance équilibrée.














Design produit
Design de produit | Projet de stage | 2024
Tebedi est une collection à la typologie simple et aux proportions inspirées de la menuiserie sub-saharienne.

Concevoir une collection de mobilier pour un musée en respectant les exigences du client.
Musée Cotonou, Benin
Créer un design significatif tout en prenant en compte les facteurs économiques et l’esthétique de l’agence.
Développer une typologie maîtresse à l’assemblage simple et intuitif pour designer une collection complète tout en assurant une cohésion visuelle à travers le mobilier.
Touristes et Staff
Inspirée par le savoir faire d’Afrique sub-saharienne.
SKETCH DE RECHERCHE

PERSPECTIVE


@
@studio.wdb winona Dia Black07.78.03.02.58 Winonaebpro@gmail.com