Interior Portfolio

Page 1


G B Vishnu Varthan

Architect|InteriorDesigner|RetailDesigner

An Architect with 4+ years of experience in architecture and interior design, currently working as a Project Architect at ESA Middle East. Specializing in luxury retail interiors across the Gulf, I excel in managing projects from concept design to construction documentation.

Software Proficiency

AutoCAD,Revit,Sketchup,V-Ray,Enscape, Photoshop,Indesign,MSOffice

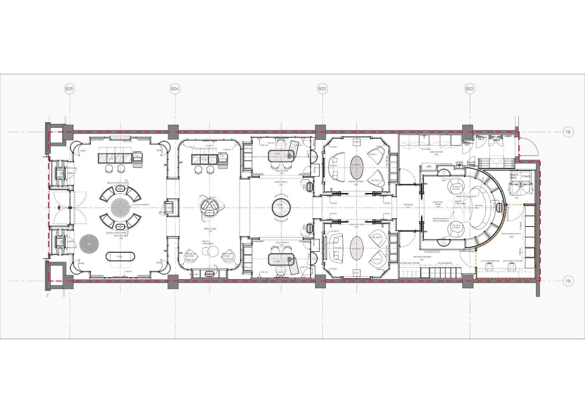
LOUIS VUITTON

Project Responsibilities : Concept design, tender drawings, and shop drawing reviews, along with collaboration with the project manager, client, and contractor, ensure smooth project execution, problem-solving,andsitecoordination.

Centria Mall, Riyadh

Project Responsibilities: Preparing tender drawings, reviewing shop drawings, and collaborating with the project manager, client, and contractor to ensure cohesive project planning, seamless execution, effectiveproblem-solving,andsitecoordination.

MIU MIU
El khayyat, Jeddah

Project Responsibilities: Preparing tender drawings, reviewing shop drawings, and collaborating with the project manager, client, and contractor to ensure cohesive projectplanning,seamlessexecution,effectiveproblem-solving,andsitecoordination.

Van Cleef & Arpels
Marassi Mall, Bahrain

ProjectResponsibilities: Preparingtenderdrawings,collaboratingwith the Design Manager, and reviewing shop drawings to ensure cohesive project planning and seamless execution. Additionally, coordinating withtheProjectManager,client,andcontractortoaddresschallenges, ensuresmoothworkflow,andoverseeeffectivesitecoordination

Mall of the Emirates, Dubai

Mall of the Emirates, Dubai

Project Responsibilities: Develop GUCCI's initial sketch into a detailed design, prepare tender drawings, review shop drawings, and coordinate with the project manager, client, and contractor to ensure seamless site execution. Oversee problem-solving, site coordination, andthepreparationofsnagreports.

GUCCI
Pop-up

SANCTUARY RESIDENCE

Project Responsibilities: Contribution to the conceptualization and refinement of designs, ensuring that the design intent is clearly reflected in the final output. I am responsible for preparing 3D models andConstructiondrawingsthatalignwiththeproject'svision.

SOULFUL SPICE

Project Responsibilities: Contribution to the conceptualization and refinement of designs, ensuring that the design intent is clearly reflected in the final output. I am responsible for preparing 3D models andConstructiondrawingsthatalignwiththeproject'svision.

Project Responsibilities: Contribution to the conceptualization and refinement of designs, ensuring that the design intent is clearly reflected in the final output. I am responsible for preparing 3D models andConstructiondrawingsthatalignwiththeproject'svision.

MAAN HIVE
@ Madurai

Turn static files into dynamic content formats.

Create a flipbook
Issuu converts static files into: digital portfolios, online yearbooks, online catalogs, digital photo albums and more. Sign up and create your flipbook.
Interior Portfolio by Vishnu Varthan - Issuu