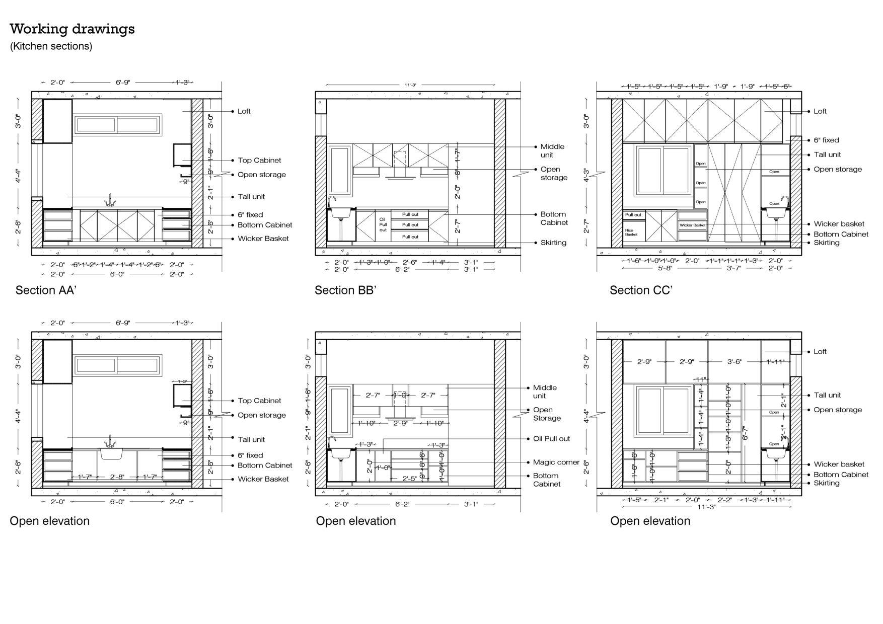
Discover a curated collection of my interior design projects that blend creativity, functionality, and style. Each project showcases my passion for transforming spaces into beautiful, practical, and inspiring environments. From modern minimalism to classic elegance, explore my work to find a diverse range of designs tailored to various tastes and needs.