
Liu ARCHITECTURE PORTFOLIO SELECTED WORKS 2019 - 2024
![]()

Liu ARCHITECTURE PORTFOLIO SELECTED WORKS 2019 - 2024
King + King Architects Integrated Design Studio Jury - First Prize
Partner: Rui Cao
Studio: ARC 409
Instructor: Richard Rosa
Design & Production: All the works are developed collaboratively. I mainly focused on master planning and design and development of the library and church, and final productions of library.
Based on thorough research and analysis of architectural precedences, this project experiments and explores Renaissance and Baroque architectural languages, trying to depict epic imagery of a convent for twelve nuns and potential visitors.
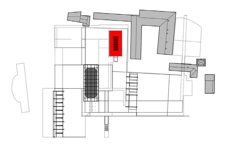
Derived from the concept of translating classical church footprints into separate elements on the landscape, the buildings in the complex represent the Narthex, Nave, and Chapel in sequence. While the master planning includes a complete set of programs, the duality between the library and church is underscored both conceptually and formally, which tells the stories of profane versus divine, knowledge versus spirit, ground versus air, and perfection versus distortion.







The landscape is subdivided by "bars" on the field, shaping spaces with the edges of the existing building complex. The buildings on the field also serve as filters and boundaries to separate outside visitors from the nuns' living space. The public and the private areas intersect at the raised church. While visitors ascend to the church by a ramp, the nuns access the building on the ground level at the side of the dormitory.

Oratory 3 Church
Steel and marble are the two critical materials applied in the design. The open steel frame connects individual buildings on the field and defines spaces in the open landscape to resemble the layout of ancient monasteries. The buildings are clad with translucent marble panels supported by steel structures. By using unconventional materials and structural techniques, this project experiments with the innovative expression of sacred architecture. 1 Bakery
Dormitory


from knowledge to nature.
The library emerged from the concept of symbolic geometries and spatial layering Two staircases and a book collection area present the geometric transformation from rectangle to circle, expressing the force of distortion.





















a marble “solid” in a steel “mesh”
disformation and distortion

























Historical Site Re-development | Grosseto, Italy
Partner: Yaxin Xu, Peiyu Luo
Studio: ARC 308
Instructor: Daniele Profeta
Design & Production: Design, all project aesthetics were done collaboratively. I was primarily focused on designing the area of the geothermal power plant, soil laboratory and soil study field. I was the lead contributor to the production of the map, renderings, and zoom-in plans.
The site is located at Maremma, Italy. Because of local industries, this land has been transformed over time by multiple hydraulic engineering projects. Ponte Tura has an abandoned historical building used for regulating water and reclamation, and its existence on the site provides a connection between architecture and ground transformation.
To celebrate this history and re-develop its scientific and cultural value, this project focuses on land, proposing programs including infrastructure, research, education, and artistic creation. The project was developed with the hope that the public can appreciate the value of integrating existing architecture with new development, and encourage the appreciation of neglected spaces and the communities connected to them.






The research process delves into the history of Maremma, which used to be a marshland abandoned by humans. By launching the Bonifica hydraulic project, the Italian government gradually transformed the land into productive agricultural farmland and a tourist resort destination. The area is also involved in mining and wine production, influencing the soil through physical deformation and chemical input.
The project is developed by exploring figures and forms representing the ground transformation process. The graphic uses circles and loops to express the content movement under and above ground.





The programs include geothermal power plants combined with a soil museum, research laboratory, soil education center, and artist residency.
The ground transformation starts with soil extraction through an underground geothermal power plant and a soil sample machine on the surface. Some of the collected soil will be sent to labs for scientific research. Others are applied for an artist residency, museums, and education centers, converting soil into artifacts, exhibits, and fertile soil for agriculture.


The vertical spatial layering is delivered by series transformation from top to the bottom. One is different accesibility of visitor and scientiest, and the other is the roughness of the interior wall. While the upper zone is smooth and fine, with openness and accessible stairs to visit the plant, the lower zone is covered by rasterized rocks and soils and has no human access.








Partner: Linxi Zhang
Studio: ARC 307
Instructor: Lawrence Davis
Design & Production: Design, all project aesthetics were done collaboratively. I was primarily focused on designing, producing axonometric drawings, diagrams, and part of the plans.

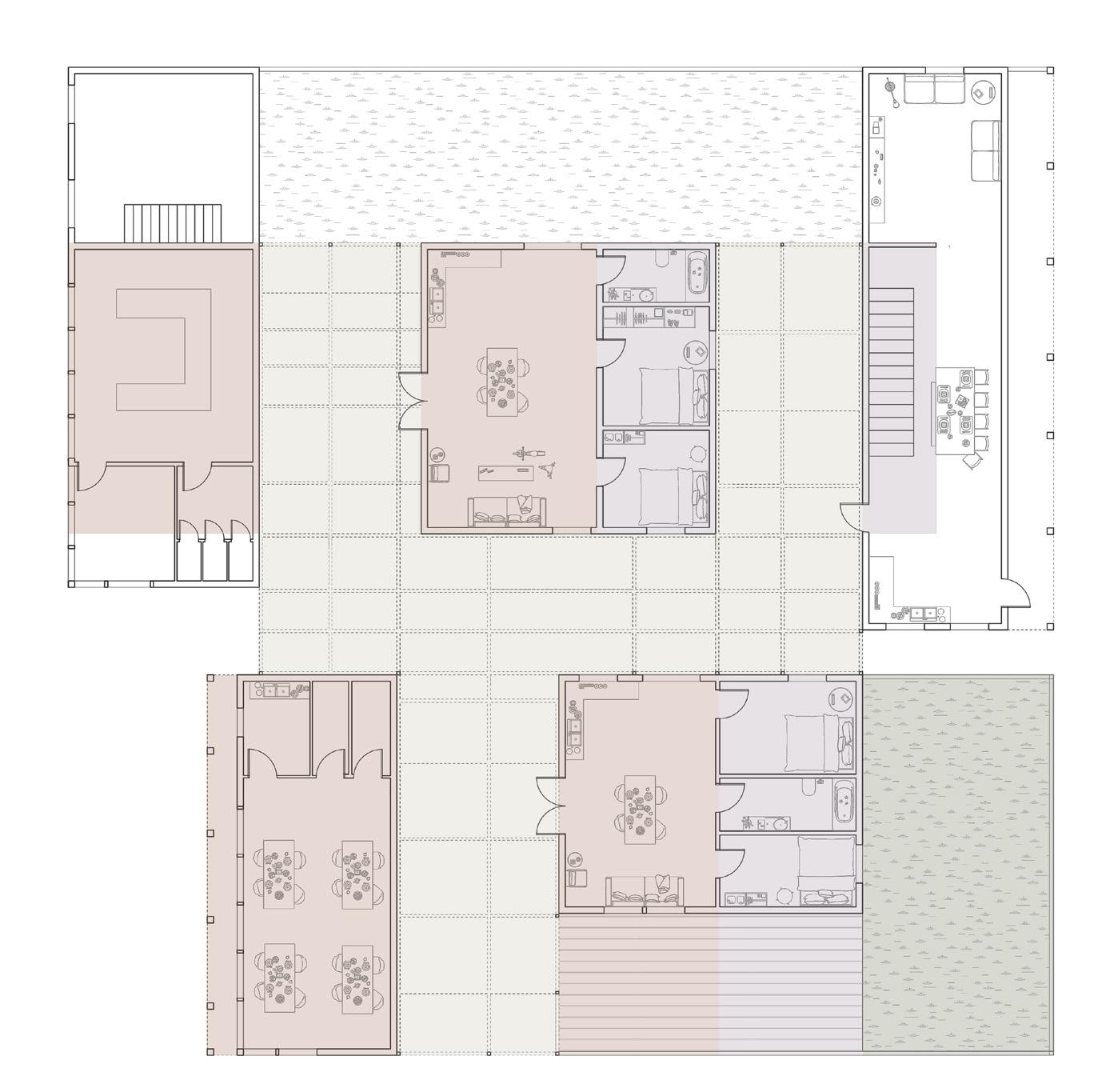
This project is a renovative exploration of a vernacular block in Mattydale, NY. Considering the existing challenges of the aging population and the high unemployment rate in this suburban community, this project aims to energize the environment by attracting young generations and stimulating the local economy
This project increased commercial and residential density by adding units on the re-zoned block. To provide more public services and increase the residents' income, it also introduced new programs such as basketball bars, family restaurants, and individual offices. The three main public spaces along the central spine are embedded into the building volume and are flexible for night markets and dances after dark.



The relocation and re-zoning process invites more programs to plant in this block. The project inverses the back and front yards by pushing the houses to the edges and adding apartment modules facing the street While it uses the original backyard space and transforms it into a public, commercial street along with new retail units, the project creates a private and quiet residential zone on the two sides of the block.










Multi-functional Modules









The public space integrates various public services, including supporting the entertainment areas designed for
Three public spaces are integrated into among neighbors

the urban fabric to foster interaction



Housing | Nigeria
YAC | IOM Finalist
Partner: Qiying Ruan, Ruqaiyah Y Bandukwala, Allison Ann Howard
Competition: YAC (Young Architects Competition) | IOM (the UN
Design & Production: Research, site design and all project aesthetics were done collaboratively. I focused on plan development and final axon production.
At both the individual and community levels, the project employs an integrated system that strikes a balance between communal and individual infrastructure and programs. This approach ensures that urban amenities and communal spaces coexist while respecting individual privacy. Central to the project’s community planning is the expertise of local residents in agriculture and farming.
Sustainability and project longevity are two main goals of this project. The modular design approach with approachable materials gives residents flexibility for future expansion. The slope and sharing roof systems collect rainwater for both individual families and communities.

We proposed three plot sizes to meet the needs of a total of five family types. We provide two ways to expand, economic expansion and modular expansion, which requires infill wall and structurer modular respectively.





































Plan
The project adopts a modular approach, using 3-meter modules for each bay, encompassing the roof, structure, and foundation elements. This design offers flexible spaces within each home and allows for future expansion by adding additional bays for extra rooms




To harness their knowledge effectively, the design clusters 20-30 housing plots around large fields for cultivation and produce growth. The intersections formed by these clusters create shared spaces for the development of public educational, religious, and recreational services.
Sandcrete Block
Concrete Foo�ng
Concrete Foo�ng
A. Backfilled Strip Founda�on
Backfilled Strip Founda�on Sandcrete Block
Screen/Infill Wall
Blocking
B. Isolated Foo�ng w/ Raised
B. Isolated Foo�ng w/ Raised Floor A. Backfilled Strip Founda�on
B. Isolated Foo�ng w/ Raised Floor
Wall
Concrete Foo�ng
Concrete Foo�ng



A. Backfilled Strip Founda�on
B. Isolated Foo�ng w/ Raised Floor A. Backfilled Strip Founda�on
B. Isolated Foo�ng w/ Raised Floor
Secondary Floor Beam
Secondary Floor Beam
Concrete Foo�ng
Secondary Floor Beam
Timber Column
Timber Column
Concrete Pedestal
Concrete Pedestal
Concrete Foo�ng
Concrete Foo�ng
Raised Floor
1:50
Transversal Section
Gu�er Hanger
Transversal Section
Gu�er Hanger
The central courtyard design enhances natural ventilation by promoting air exchange between indoor and outdoor spaces, while the tree canopies provide cooling through shading. Additionally, it creates a secure and private area for women and children to engage in activities.
Metal Gu�er System (1:100 Slope to Drainage)
Corrugated Metal Roof Sheathing
Gu�er Hanger
Metal Gu�er System (1:100 Slope to Drainage)
Metal Gu�er System (1:100 Slope to Drainage)
Corrugated Metal Roof Sheathing
Corrugated Metal Roof Sheathing
2”x6” Roof Purlins @ 16” O.C.
2”x6” Roof Purlins @ 16” O.C.
Concrete Beam (1:100 Slope to Drainage)
2”x6” Roof Purlins @ 16” O.C.
Concrete Beam (1:100 Slope to Drainage)
Double-Wythe
Adobe Dividing Wall
C. Bu�erfly Roof Water Drainage
Concrete Beam (1:100 Slope to Drainage)
Double-Wythe Adobe Dividing Wall
Double-Wythe Adobe Dividing Wall
C. Bu�erfly Roof Water Drainage
C. Bu�erfly Roof Water Drainage
B. Isolated Foo�ng w/ Raised Floor
Wood Flooring
Plywood Subfloor
2” x 6” Timber Floor Joist @ 16” O.C.
Secondary Floor Beam
Secondary Floor Beam
Timber Column
Concrete Pedestal
Concrete Foo�ng







Brewery | Kigali, Rwanda
Mentor: Yutaka Sho
Company: General Architecture Collaborative
This project, aligned with the Green City Kigali Program, combines residential, commercial, and public spaces to create a sustainable neighborhood. The brewery functions both as a beer production facility and a visitor-friendly space, with parks and gardens connecting it to the urban environment.








Residential Renovation | Greenpoint, Brooklyn
Mentor: Aniket Shahane
Company: OA (Office of Architecture)
This house renovation improved circulation and living spaces, featuring a redesigned kitchen with a functional and aesthetic ceiling. The basement entertainment room was revamped with custom furniture, creating a versatile space. A concrete deck with embedded glass blocks enhances natural light for the basement loggia.




