Habitação de Interesse Social

Page 1

Projeto de Habitação de Interesse Social

Aproveitamento do total da fachada norte - Uso amplo da largura do terreno

Varandas em todos os ambientes de repouso para todas as unidades

Maior profundidade na área de lazer e na área pública

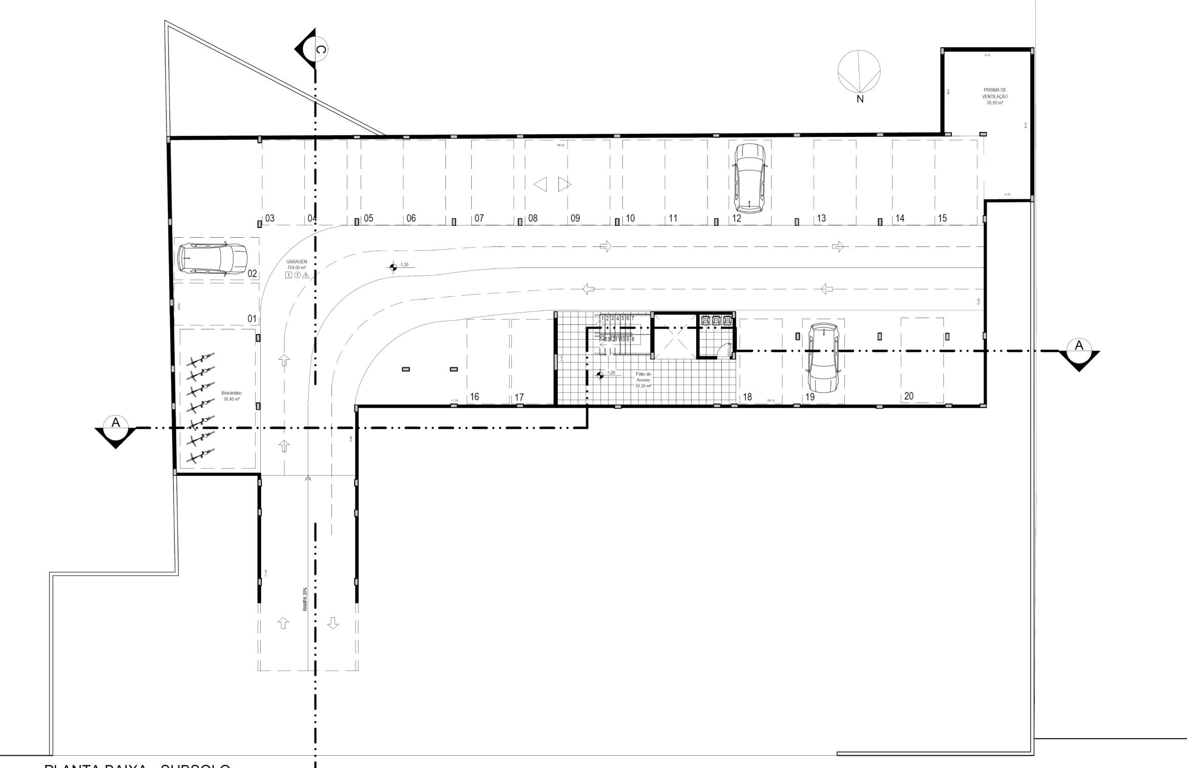
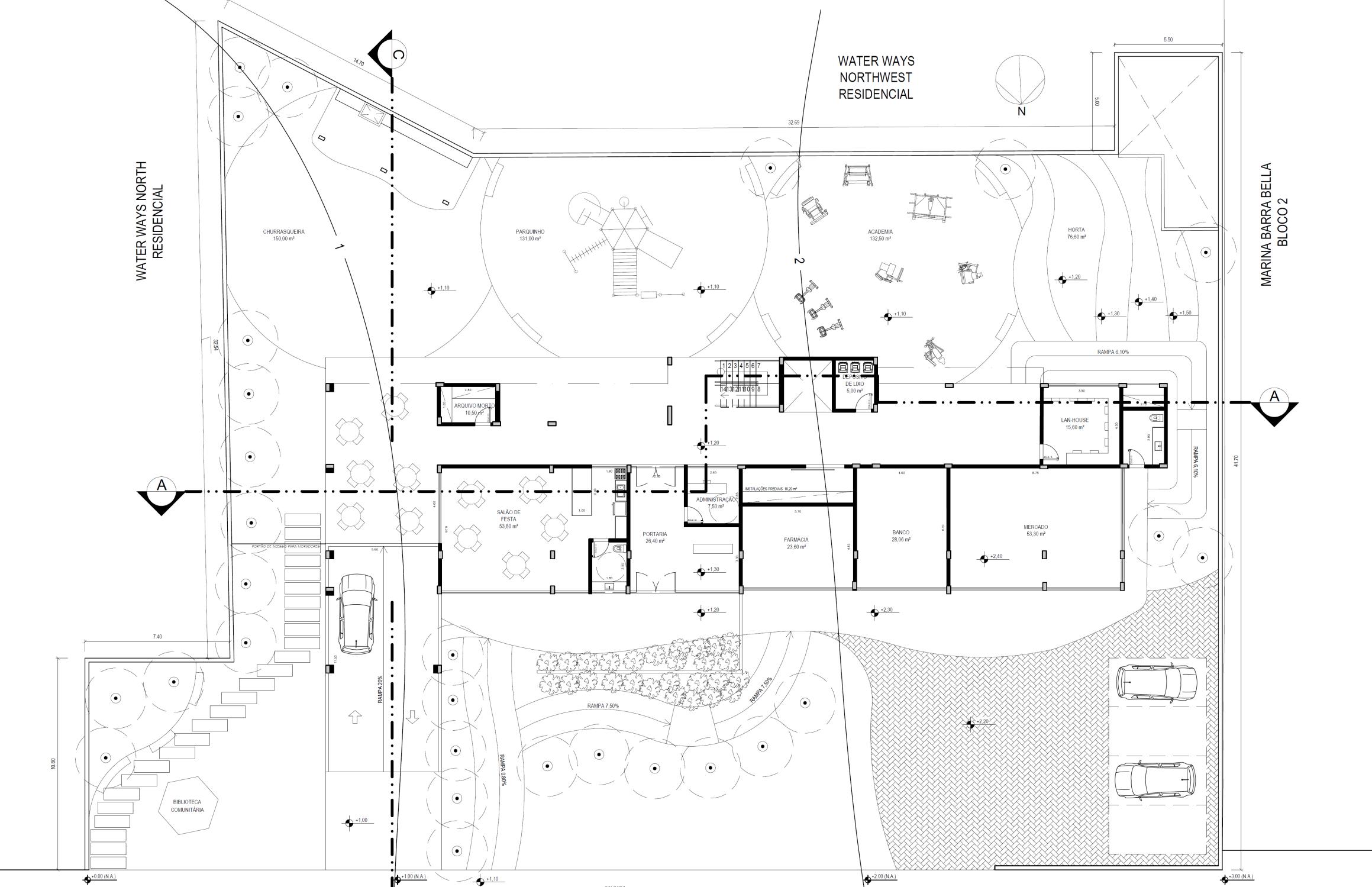
VOLUMETRIA //

Área Pública

Área Residencial

CONFORTO TÉRMICO //

MATERIALIDADE //

Varandões protegem aposentos internos da incidência direta do Sol Ventilação cruzada em todas as unidades em função de todas as unidades serem acessadas por um corredor aberto

Placas de cimento pré moldados com tratamento para conforto térmico Pintura verde nos elementos curvos - Esquadria roxa delineando horizontalidade Pastilha off White para equilibrar composição

Unidade

Habitacional

Corredor

Aberto

Turn static files into dynamic content formats.

Create a flipbook
Issuu converts static files into: digital portfolios, online yearbooks, online catalogs, digital photo albums and more. Sign up and create your flipbook.
Habitação de Interesse Social by Victor Assi Bastos - Issuu