Portfolio - Selected Works 2025 Vol. 1

Page 1


PORTFOLIO

Competitions & Organisations

Education & Internships

Language

Greetings! I am Vigo Vasyiko, a fresh graduate student from The University of Nottingham, Ningbo China. I’ve recently graduated on August 2025 and I’ve had several experience through internships both in Indonesia and China. Looking forward to a future where we work together!

(china) 15158348407 (Indonesia) 081233552838 surabaya.vigo@gmail.com @vasyiko_architecture

Softwares

RESIDENTIAL COMMERCIAL ACADEMIC

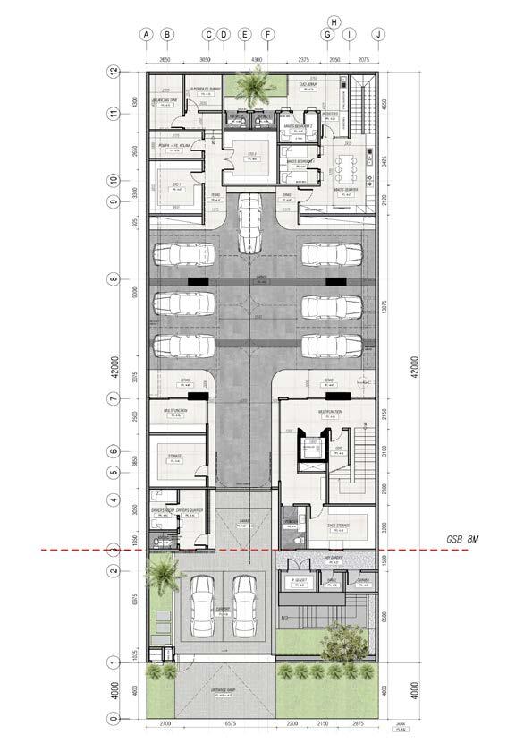
01 KC HOUSE HIGH-END RESIDENTIAL

Year: 2022

Location: Jakarta, Indonesia

Area: 2800 m2

Project Info: Internship @KantorGG

Supervisors: Stephanie Sutikno

Role: 3D Model, Floor Plan CAD, Diagrams & Presentation

KC House is a high-end residential house consisting of 3 levels, located in Jakarta. During my internship at Kantor Gunawan Gunawan, I assisted the project in refining the 3D Model, including the facade design and the interiors. I also assisted in revising the floor plan CAD. My final tasks in this project were to make diagrams and graphical designs for client presentation.

Vigo Vasyiko | 2025

1. WALL | Exterior Textured Painted Wall [Beige Color ex: SKK Paint]

2. WALL | Exterior Textured Painted Wall [Light Beige Color ex: SKK Paint]

3. WALL | Exterior Textured Painted Wall [Black Color ex: SKK Paint]

4. WALL | Travertine Navona Marble Slab [ex: BNB / MM]

5. WALL | Flower Brown Marble Slab [ex: BNB / MM]

6. WALL | Athena Grey Marble Slab [ex: BNB / MM]

7. WALL | Moon Cream Marble Slab [ex: BNB / MM]

8. WALL | Batu Paras Jogja [White Color]

9. WALL | Andesite Bakar [Grey Color]

10. WALL | Besi UNP [Black Color ex: SKK Paint]

11. WALL & CEILING | Solid Wood Lumbersering | Smoked Oak [ex: woodlam / KLI | clear coat finish]

12. CEILING | Solid Wood lumbersering | Walnut [ex: woodlam / KLI | clear coat finish]

13. SCREEN | Hollow Steel Framing (5x5) + Second Skin Weaving [ex: ByoLiving]

14. EXTERIOR FINISHES | Steel Plate 4mm [Marine Grade Finish - Black Color]

15. EXTERIOR FINISHES | Mossaic Tile (10x10cm) [ex: Kuda Laut]

16. EXTERIOR FINISHES | Batu Alam Flower Black

17. LANDSCAPE | Rumput Gajah

Vigo Vasyiko | 2025
Floor 2
Roof Top

Blurring Exterior-Interior Boundary with Minimalism

Modern interior, featuring a double-height living area with floor-to-ceiling glass walls that create a seamless connection to the outdoor environment. The structural design emphasizes exposed beams and recessed lighting that accentuate the ceiling’s depth. The space is furnished with minimalist, modular seating in neutral tones, complemented by a sleek glass coffee table. A vertical garden wall adds a lush, biophilic element, while the pool outside reflects natural light into the space.

Vigo Vasyiko

A modern residential interior with a focus on vertical circulation and refined materiality. The staircase, featuring minimalist white treads and risers with a sleek black railing, creates a striking visual contrast against the textured stone wall. Integrated linear lighting along the handrail and ceiling enhances the spatial depth and accentuates the clean architectural lines. The elevator is seamlessly integrated into a wooden panel feature wall, maintaining material continuity. The use of warm-toned marble flooring and a timber-clad ceiling provides a sophisticated yet inviting ambiance. Strategic lighting and framed artwork add subtle decorative elements to this functional yet elegant space.

High-End Luxury Interior Design

CITRA HARMONI

BUDGET RESIDENTIAL

Year: 2024

Location: Sidoarjo, Indonesia

Area: 212 m2

Project Info: Internship @Studiotigadinding

Supervisors: Michael Fernando

Role: 3D Render, Drafter, Interior Drafter

Citra Harmoni is a unique project where it involves the renovation of an existing house to renew its floor plan and exterior facade. It also includes the renovation of the interior where existing furnitures are kept / improved, minimizing waste as well as being budget efficient. In this project, I learnt how to improve my interior / exterior renders, as well as refining my knowledge in interior / furniture technical drawings.

Vigo Vasyiko | 2025
Vigo Vasyiko | 2025
MARBLE
Vigo Vasyiko | 2025
LED STRIP

PETRA CHRISTIAN UNIVERSITY

FACULTY OF MEDICAL SCHOOL

Year: 2022

Location: Surabaya, Indonesia

Area: 15.775 m2

Project Info: Internship @KantorGG

Supervisors: Guszeus Wisnu

Role: 3D Modelling, Diagram Making, Presentation Board

Petra Christian University - Faculty of Medical School is a contest participated by Kantor Gunawan Gunawan upon the planning of a new medical faculty complex by PCU in West Surabaya. I assisted the porject in refining the 3D model, including the facade design and the floor plan 3D model. My main contribution was to make diagrams of vertical circulation, zoning diagrams, ground circulation for pedestrians and vehicles, as well as a simple section model.

Vertical Circulation

The vertical circulation is designed in response to the zonings of the 3 main segments of programs in the building vertically: the public sector, the service sector, and the educational sector. This segregation of circulation is to allow the user to experience a shift in program function on each level, also to increase privacy for the users of each program. The overall vertical circulation is bounded by a pair of elevators and emergency stairs for safety.

Vigo Vasyiko | 2025

Exterior Design

Ground Floor Circulation & Accesibility

A contemporary architectural design featuring a multi-level structure integrating urban landscaping. A prominent cantilevered volume extends outward, accentuated by sleek horizontal lines and reflective glass façades, creating a striking visual contrast with the greenery below. The building is surrounded by carefully landscaped pathways, incorporating softscape elements like trees and grass, alongside hardscape features such as stone-lined water channels and geometric paving. The roundabout with vehicular access seamlessly integrates with pedestrian walkways, emphasizing the balance between functionality and aesthetics in this mixed-use urban design.

Rock formations serve as the foundation for academic and non-academic activities, forming the podium of the UK Petra Faculty of Medicine building, where the core public activities and shared facilities are centralized.

Vehicular access is conveniently located near the main entrance to the site, necessitating a generously sized drop-off area to accommodate traffic flow efficiently.

There are three pedestrian access options: a green canopy pathway, a ramp, and the main staircase, each designed to provide distinct and accessible routes for users.

UKP - Kedokteran

KDS - GENTENG

BUDGET COMMERCIAL

Year: 2024

Location: Genteng, Indonesia

Area: 3,500 m2

Project Info: Internship @Studiotigadinding

Supervisors: Kurniawan Candra

Role: Facade Design, 3D Model, Interior Technical Drawings

KDS Genteng is a budget commercial project of a grocery store renovation located in Genteng, Indonesia. The client requested a cost-effective design where budget is highly taken into consideration while creating a functional and aesthetic design for both the exterior and interior. While assisting this projecct, a deep research on various alternative budget materials were carried on to come up with a cheap but creative solution.

Budget Materials - Contemporary Design

Vigo Vasyiko | 2025
Commerccial
Perforated Metal Sheet
Polycarbonate Metal Spandex Batu Bobos Hollow Metal 20 x 20 mm Textured Wall

Cashier Counter Design

A sleek, modern retail interior with a professionally designed cashier area and product display zone. The cashier counters are constructed with a combination of wood and bold red panels, segmented into individual workstations with clear numerical indicators for efficient customer navigation. The counters feature clean lines and minimalistic detailing, promoting a contemporary aesthetic while maintaining functionality. Behind the counters, a wall panel integrates branding prominently with the “KDS” logo, framed by a vibrant red and blue color scheme. This branding wall is paired with a warm, neutral-toned shelving display, illuminated by integrated lighting to highlight the luxury handbags and accessories. The overall layout harmonizes bold visual branding with practical retail design, creating an inviting and organized shopping experience.

05

INTER-GENERATIONAL CENTER

University Project

Year: 2024

Location: Ningbo, China

Area: 5,425 m2

Project Info: Academic - Final Year Project

Supervisors: Eugenio Mangi, Andrea Palmioli

Role: Student

The Intergenerational Center promotes rehabilitation and learning through activities spanning multiple generations, typically between elders and children. These activities benefit both generations, particularly psychological and physical health for the elders, and mainly educational and socio-cultural benefits for the children.

Site Location

Towards the south-west side of the building is a wide river with slow stream. The river provides a beautiful natural scenery, perfect for elders rehabilitation. It also enhances cooling during summer. River

Circulation

The landscape is redesigned to facilitate users to circulate around the building and its connectivity to the village pedestrian path.

Greenery

Greenery is added where necessary to facilitate the local ecology as well as the users’ wellbeing.

Overall Landscape

Overall, the landscape is redesigned to enhance what is already there on site. This includes the local species of flora & fauna, as well as integration of the natural landscape.

Vigo Vasyiko

Detailed Section

Vigo Vasyiko
1. hydrotherapy Pool
2. Main Circulation Space
3. Rooftop Greenery
4. Playground & Ball pool
5. Learning Area

New Buildings’ Facade Detail New Buildings’ Exploded Structure

Accessible Green Roof
Cross Laminated Timber Slab
Glulam Frame Structure
Dynamic Louver Shading Mechanism
Dynamic Louver Shading Mechanism
Timber Wall
South Side Glazing Dynamic Louver Shading Mechanism North Side Glazing
Side Glazing
Walls Dynamic Louver Shading Mechanism

Existing Buildings’ Facade Detail

Existing Buildings’ Exploded Structure

Existing Roof
Existing Concrete Structure
Folding Glass Door
South Facade with Ventilation Openings
Louver Shading Mechanisms
Existing Pad Foundation
Existing Concrete Load Bearing Wall
North Facade with Partially Kept Existing
Interior Walls
Double skin Facade Glazing
Vigo Vasyiko |

THE ROLLING HILLS

CENTER FOR HEALTHCARE

Year: 2022

Location: Hangzhou, China

Area: 3,325 m2

Project Info: Academic - year 3 semester 2

Supervisors: Eugenio Mangi Role: Student

The Rolling Hills is a design studio project where I challenge myself with form exploration which suits both the context and the users needs. The massing of the project adapts the surrounding hills landscape as well as for optimum circulation and lighting of the building. It is also adapted according to the program zonings of the building.

Vigo Vasyiko | 2025

Form Development

Elevation
Extrude Push Curve
Sunken

Courtyard View

Vigo Vasyiko | 2025
Reception
Juice Bar 3. Organic Market
Stairs & Lift 5. Storage
6. Male Restroom 7. Disabled Restroom 8. Female Restroom
9. Pharmacy
10. Nurse Post 11. Examination Room 12. Waiting Area
Male Restroom
Female Restroom
Disabled Restroom
Stairs & Lift 17. Multifunction Hall Ground Floor
The Rolling Hills

Ground Floor Slab

Curtain Wall 1. Glass 2. Settling Block 3. Spacer 4. Sealant 5. Transom cap 6. Transom 7. Aluminium Stool Floor Slab 8. Screw 9. Plasterboard 10. Steel web Joist 11. Corrugated Metal Deck 12. Reinfocred Concrete 13. Finishing Floor Screen

14.

16. Flange Plate

17. Screen studs

18. Screen Aluminium Frame

Steel Anchor Connection 15. Screw

Floor

1. Lean Concrete

2. Concrete Ground Slab

3. DPM

4. Thermal Insulation

5. Reinforced Screed

6. Mortar Bed

7. Finishing Floor

Retaining Wall

8. Porous Boards

9. DPM

10. Thermal Insulation

11. Concrete Wall 12. Gypsum Board Foundation

13. Drainage pipe 14. Lean Concrete 15. Coarse Gravel 16. Geotextile Mat 17. Soil
The Rolling Hills

Scan for Linkedin Profile

Instagram: @vasyiko_architecture

Linkedin: Vigo Vasyiko

Whatsapp: +6281233552838

Email: surabaya.vigo@gmail.com

Turn static files into dynamic content formats.

Create a flipbook
Issuu converts static files into: digital portfolios, online yearbooks, online catalogs, digital photo albums and more. Sign up and create your flipbook.