Analisis de sitio y de edificio del Ex fuerte Santa Catalina

Page 1


ANÁLISIS DEL EDIFICO

GRUPO 2: ARANDA ROJAS, CARLOS ENRIQUE

LOPEZ PEDROZA, VALERY JADE

PONTE MARTEL, JUAN MARTIN

MORALES PINEDO WENDY VANESSA

CLINTON PRIMO TIMOTEO

CURSO: CATEDRA

TALLER DE ARQUITECTURA 6

ARQ. LORENA PONTE

ARQ. ESTALIN GUTIERREZ

01

02

03 ANÁLISIS DE SITIO

GENIUS LOCI 1. MOVIMIENTO - QUIETUD 2. ANALISIS SENSORIAL 3. ELEMENTOS CONSTRUIDOS 4. ZONAS VERDES 5.

ESTUDIO ETNOGRAFICO 6. SINTESIS7.

ANÁLISIS DEL EDIFICIO

ANALISIS HISTORICO 1. ANALISIS TIPOLOGICO 2. ANALISIS COMPOSITIVO 3. ANALISIS TECNICOCONSTRUCTICO 4. ANALIS CONSERVACION 5.

BIBLIOGRAFIA

UBICACIÓN

CENTRO HISTORICO DE LIMA

AREA INSCRITA PATRIMONIO

MUNDIAL DE LA HUMANIDAD

BARRIOS ALTOS

LIMITES DISTRITALES

EX CUARTEL SANTA CATALINA

MAPA CENTRO HISTORICO DE LIMA

CENTRO HISTORICO DE LIMA

PATRIMONIO CULTURAL DE LA

HUMANIDAD DECLARADO POR LA UNESCO

BARRIOS ALTOS

EX CUARTEL SANTA CATALINA

MAPA DE BARRIOS ALTOS

BARRIOS ALTOS

EX CUARTEL SANTA CATALINA

UBICACIÓN

DEL TERRENO

BARRIOS ALTOS

EX CUARTEL SANTA CATALINA

JR. INAMBARI

JR ANDAHUAYLAS

AV NICOLAS DE PIEROLA

Fuente Barrios Altos : caracterización de un conjunto de barrios tradicionales en el marco del centro histórico de Lima, ARTICULO.
Fuente Estrategias para interrumpir trampas de riesgo en Barrios Altos. Caso de estudio Quinta Baselli , ARTICULO.
Fuente: Barrios Altos : caracterización de un conjunto de barrios tradicionales en el marco del centro histórico de Lima, ARTICULO.
Fuente: Elaboración propia

HITOS HISTORICOS

El cuartel sigue funcionando con fines militares bajo el nuevo gobierno.

Plano de la cuidad de Lima de ese año se presenta la planta del cuartel.

Fue sede de la Brigada de Artillería de Campaña de Montaña del Ejército del Perú.

Apertura de la prolongación Nicolás de Piérola.

Vista aérea del cuartel en ese año

Se demuele la parte sur por el penal y el colegio

Proceso de intervención escuela de taller.

React vación de la escuela de taller de Lima
El cuartel Santa Catalina es declarado monumento por el INC.

CORTES VIALES

AV. NICOLAS DE PIEROLA - DOBLE VIA CON 3 CARRILES

JIRON INAMBARI

RELACION MOVIMIENTO- QUIETUD

LA UNICA VIA CON 3 CARRILES Y VIA DOBLE ES LA AV NICOLAS DE PIEROLA, AL SER ANCHA ES ADECUADA PARA EL ALTO FLUJO VEHICULAR SIN EMBARGO

EL JR INAMBARI Y JR ANDAHUAYLAS SON DE UN SOLO CARRIL Y VIA DE DOBLE SENTIDO

JIRON ANDAHUAYLAS

IRAMBARI
IRAMBARI
Plaza Alberto Luis Sánchez Reposo
Jr. Abancay
Flujo vehicular intenso Lugar de acceso
Av. Nicolas De Pierola Flujo vehicular moderado
Jr Anda Huaylas
Flujo vehicular moderado Lote
Fuente: Elaboración propia
Fuente Elaboración propia
Fuente: Elaboración propia
Fuente: Google earth

2 FLUJOS Y ACCESIBILIDAD

Flujo Inteso

AV ABANCAY

AV NICOLAS DE PIEROLA

VIA EXPRESA GRAU

Flujo Moderado

JIRON INAMBARI

JIRON ANDAHUAYLAS

JIRON PARURO

PEATONAL

Flujo Leve

JIRON MONTEVIDEO

JIRON AYACUCHO

CARLOS ZAVALA

JIRON INAMBARI

JIRON ANDAHUAYLAS

JIRON PARURO

ACCESIBILIDAD

Flujo Moderado Entrada Principal (A)

Fuente: Elaboración propia

2

PUNTOS DE QUIETUD

PUNTOS DIURNOS

Parque Universitario 10min

EL FLUJO SE VE INTENSIFICADO DEBIDO A QUE EL CUARTEL SANTA CATALINA SE ENCUENTRA EN LA ZONA BASTANTE COMERCIAL, POR LA CUAL SOLO SE PUEDE INGRESAR CAMINANDO POR LA ENTRADA PRINCIPAL

Centro Comercial Mesa Redonda 4min
Iglesia Convento Santa Catalina 2min
Facultad de Farmacia y Bioquímica de la UNSM 10min
Hospital III de Emergencias Grau EsSalud 14min
Fuente: Elaboración propia

2 PUNTOS DE QUIETUD

PUNTOS NOCTURNO

Parque Universitario 10min

Centro Comercial El Hueco 8min

EL FLUJO SE VE INTENSIFICADO DEBIDO A QUE EL CUARTEL SANTA CATALINA SE ENCUENTRA EN LA ZONA BASTANTE COMERCIAL, POR LA CUAL SOLO SE PUEDE INGRESAR CAMINANDO POR LA ENTRADA PRINCIPAL

Centro Comercial Peru Plaza 5min

Centro Comercial Mesa Redonda 4min
Hospedaje Amutsep 7min
Fuente: Elaboración propia

TEMPERATURA Y VIENTOS

ASOLAMIENTO

EL CLIMA EN EL DÍA SE CARACTERIZA POR SER

TEMPLADO Y HÚMEDO, CON CIELOS NUBLADOS.

TEMPERATURAS ENTRE LOS 15°C Y 22°C. HUMEDAD

ALREDEDOR DEL 80%, PERO RARA VEZ LLUEVE. LIGERAS

BRISAS MARINAS QUE MANTIENEN LA SENSACIÓN

TÉRMICA FRESCA.

Amanecer: 6:00 am

Atardecer: 18:10 pm

DURANTE LA NOCHE EL CLIMA SE MANTIENE FRESCO Y HÚMEDO. LA TEMPERATURA

GENERALMENTE DESCIENDE A ENTRE 14°C Y 18°C

LA HUMEDAD SIGUE SIENDO ALTA, LO QUE PUEDE GENERAR UNA SENSACIÓN DE FRÍO.

Fuente: Elaboración propia
Fuente: Elaboración propia
Fuente: Elaboración propia
Fuente: Elaboración propia

3

VISTAS Y TEXTURAS

VISTAS

PODEMOS OBSERVAR EL PAISAJE URBANO JUNTO A LAS CARACTERÍSTICAS

VISUALES YA SEAN EDIFICIOS, PARQUES, CALLES, Y SU IMPACTO EN LA PERCEPCIÓN ESTÉTICA.

Diferentes escalas Publicidad

Colores y texturas

Paisaje

TEXTURAS

COLORES

Concreto Pavimentos
Estuco Revestimientos
Concreto aspero Fachadas
Metal Puertas y rejas
JR . INAMBARI
JR . ANDAHUAYLAS
Fuente: Elaboración propia

OLORES Y SONIDOS

OLORES

Humo Vehicular

Basura y orina

SONIDOS

Ruido Vehicular

Ruido Antropogénico

(Sonido producido por actividades humanas)

Comida
Fuente: Elaboración propia

4

USO DE SUELOS

ZONA DE EDUCACIÓN

USOS COMERCIAL

ZONA TRATAMIENTO

ZONA RESIDENCIAL

HOSPITALES GENERALES

ZONAS DE RECREACION CUARTEL

PATRIMONIO CULTURAL

ÁREA CONSTRUIDA (LLENO)

ÁREA NO CONSTRUIDA (VACIO)

AREAS VERDES

En los alrededores del Fuerte se busca mantener un equilibrio entre el desarrollo urbano y la conservación del patrimonio histórico, promoviendo un uso del suelo que favorezca una convivencia armónica entre los residentes y el entorno cultural del barrio

USO DE SUELOS
MAPA NOLLY
Fuente: Elaboración propia

4

CONSTRUIDOS

USO DE SUELOS

En Jiron Inambari las primeras casas siguen el mismo estilo republicano, sin embargo, en las siguiente se construyeron edificios de 5 pisos a mas, el perfil va variando

En el Jr Andahuaylas se observa que las galerias siguen un estilo alturas similares

ELEMENTOS DE FACHADA

La entradas y ventanas tiene marcos dobles y conrnisas conectadas de color blanco

En el Jr Inanbiri se observan casas con estilo republicano con balcones de rejas de metal y con formas curvas

Las galerias y edificios en jr Andahuaylas tiene un zocalo de 120m Aprox

+14.50 NPT. +13.50
+15.50
NPT. +6.50
NPT. +6.50'
Jiron Inambari
NPT. +12.00
NPT. +3.5
Jiron Andahuaylas
Fuente: Elaboración propia
Fuente: Elaboración propia
Fuente: Elaboración propia
Fuente: Elaboración propia
Fuente Elaboración propia

1 EMPLAZAMIENTO

Plaza San Martin Jurado Nacional de Elecciones

Centro cultural San Marcos

Corte Superior de Justicia de Lima

de Lourdes

Ministerio PúblicoFiscalía de la Nación Galería 5 Continentes

el Hueco Iglesia y Monasterio De Santa Catalina De Siena

Facultad de Farmacia y Bioquímica de la UNMSM

PLAZA LUIS ALBERTO SANCHEZ

PLAZA DE LA DEMOCRACIA

Galería
Capilla de la Gruta
Fuente: Elaboración propia

ZONAS VERDES

5 VEGETACIÓN

EL DESARROLLO DE LA FLORA EN EL CENTRO HISTÓRICO DE LIMA ESTA IMPACTADO POR UNA ZONA COSTERA,LO CUAL SE MUESTRA ESPECIES

RESISTENTES A LOS VIENTOS Y ESTAN ASOCIADOS A UN CLIMA CALIDO DE LO CUAL NO REQUIERE DE MUCHA LUZ SOLAR,POR OTRA PARTE EN LA TEMPORADA DE INVIERNO LE BENEFICIA ,YA QUE NECESITAN HUMEDAD

ALGUNAS ESPECIES EN ESPECIAL LOS ARBOLES .

Hibisco

Ceibo

(Erythrina crista-galli) (Hibiscus tiliaceus)

Palma datilera

(Phoenix dactylifera)

(Celosia Argentea)

Vegetación frente al Monasterio de Santa Catalina de Siena en el jiron Andahuaylas.

Vegetación en la avenida Nicolas de Pierola.

Vegetación en el jiron Ayacucho.

Vegetación en el Parque Universitario

Celosia
Pasto (Pastus)
Fuente: Elaboración propia

ESTUDIO ETNOGRAFICO

AGLOMERACIÓN

El desarrollo de la flora en el centro histórico de lima esta impactado por una zona costera,lo cual se muestra especies resistentes a los vientos y estan asociados a un clima calido de lo cual no requiere de mucha luz solar

Aglomeracion

Comercial

Estas galerías se encuentran llenas de personas y afectan mucho el transito peatonal.

Aglomeracion

Vehicular

Producida por los mismo

Indigentes

comerciantes al no respetar e invadir las pistas Personas con esta de abandono se encuentran rodeadas por el lugar.

Terreno

Fuente: Elaboración propia

COMERCIANTES

Ocupación horaria: 09:00 am - 22:00 pm

Abundan los comercios por la zona designada en especial las galerias

ESTUDIANTES

Ocupación horaria: 07:00 am - 09:00 am 14:00 pm - 17 00 pm

Hay escolares, por que esta el colegio Jose del Carmen Marin Arista

RESIDENTES

Ocupación horaria: Permanente

Habitan en algunas casonas de la zona, que aún se mantienen de pie, o casas remodeladas

VENDEDORES AMBULANTES

Este usuario estaría presente todo el día pero de forma rotatoria

INDIGENTES

Ocupación horaria: Permanente

Se encuentran cerca alas plazas del cercado de lima y en los edificios abandonados.

Fuente: Elaboración propia

CENTRALIDAD

El cuartel está situado en una ubicación céntrica dentro de Lima, lo que facilita el acceso rápido a diversas áreas de la ciudad

ACCESO A VÍAS PRINCIPALES

AREAS VERDES Y RECREATIVOS

Se pueden implementar areas verdes y puntos de quietud a falta de estos en la zonas cercana y demasiada poblacion

PARADEROS PUBLICOS

ACCESO LIMITADO

CONTAMINACION AMBIENTAL

El cuartel puede estar ubicado en un área con accesibilidad limitada, lo que dificulta la movilidad y el acceso rápido en caso de emergencias

CONGESTION URBANA

La cercanía a áreas comerciales densamente pobladas puede generar problemas de contaminación del aire ruido y residuos

FALTA DE ESPACIOS RECREATIVOS

Está cerca de vías principales como la Av NIcolas de pierola, lo que permite una rápida movil zación de personal y equipos en caso de necesidad Esto también facilita la log stica y el transportea zonas viales

ALTAMENTE TRANSITADA

Se pueden implementar parderos de buses y corredores por la afluencia de grandes cant dades de gente que trans ta por el lugar

DARLE UN BUEN USO

El cuartel se encuentra ubicado en una zona comercial muy transitada y la proximidad a las galerias hace que el lugar esté en movimiento prácticamente todo el día.

En lugar de cumplir una función útil o contribuir al b enestar social, el inmueble permanece inactivo, agravando su deterioro y perdiendo su potencial para ser transformado en un recurso que benefic a a la sociedad

La ubicación del cuartel en un área densamente poblada puede llevar a problemas de congestión tanto como vehicular y peatonal

AMBULANTES

Alto comercio ambulatorio que limita el pase en horas puntuales del cia como tambien en dias festivos

Se pueden implementar parderos de buses y corredores por la afluencia de grandes cant dades de gente que trans ta por el lugar

TRAFICO DE LA ZONA

En horas puntas el trafico de la zona se vuelve ruidoso, desordenada hasta incluso peligroso para los niños y personas que pasan ajetreadas por la zona

7 FORTALEZAS Y OPORTUNIDADES SINTESIS

FORTALEZAS

Centralidad: Ubicación céntrica dentro de Lima, lo que facilita el acceso rápido a diversas áreas de la ciudad.

Acceso a Vías Principales: Como la Av NIcolas de pierola, lo que permite una rápida movilización de personal y equipos en caso de necesidad Esto también facilita la logística y el transportea zonas viales

Galería 5 Continentes

Iglesia Convento Santa Catalina 2min

Altamente transitada : Ubicado en una zona comercial muy transitada y la proximidad a las galerias hace que el lugar esté en movimiento prácticamente todo el día.

OPORTUNIDADES

Áreas verdes y recreativas : Se pueden implementar areas verdes y puntos de quietud a falta de estos en la zonas cercana y demasiada poblacion

Iglesia Convento Santa Catalina 2min

Paraderos publicos : Se pueden implementar parderos de buses y corredores por la afluencia de grandes cantidades de gente que transita por el lugar

Paraderos formales

Darle un buen uso : En lugar de cumplir una función útil o contribuir al bienestar social, el inmueble permanece inactivo, agravando su deterioro y perdiendo su potencial para ser transformado en un recurso que beneficia a la sociedad

Corte Superior de Justicia de Lima
Ministerio PúblicoFiscalía de la Nación
Galeria Mesa Redonda
Av. Nicolas de Pierola
Av. Miguel Grau
Abancay
Cuartel Santa Catalina
Cuartel Santa Catalina inactivo en disponibilidad a una restauración
Fuente Elaboración propia

7 DEBILIDADES Y AMENAZAS

DEBILIDADES

Acceso Limitado: El cuartel puede estar ubicado en un área con accesibilidad limitada, lo que dificulta la movilidad y el acceso rápido en caso de emergencias

Flujo Vehicular

Flujo Peatonal

Congestion urbana : La ubicación del cuartel en un área densamente poblada puede llevar a problemas de congestión tanto como vehicular y peatonal..

Aglomeracion Vehicular

Av. Nicolas de Piérola

Ambulantes : Alto comercio ambulatorio que limita el pase en horas puntuales del cia como tambien en dias festivos.

Aglomeracion de vendedores ambulantes

AMENAZAS

Contaminación Ambiental: La cercanía a áreas comerciales densamente pobladas puede generar problemas de contaminación del aire, ruido y residuos

Contaminacion Vehicular

Contaminacion, Basura, desechos

Falta de espacios recreativos : Se pueden implementar parderos de buses y corredores por la afluencia de grandes cantidades de gente que transita por el lugar

Aglomeracion Comercial

Indigentes : En los afueras del lugar se congrega comerciantes informales, puestos de comida ambulante y, durante la noche, indigentes que utilizan el área como refugio. A pesar de la saturación y el desorden que esto genera, las autoridades no intervienen ni toman medidas para desalojarlos

Indigentes

Jr Inambari con Jr Andahuaylas
Jr Inambari
Av Nicolas de Piérola
Av. Miguel Grau
Av. Abancay

02 ANÁLISIS DEL

EDIFICIO

CONSERVACION

EVOLUCION DEL EDIFICIO

1806

Inicio de construcción del Cuartel

Santa Catalina

1963

Se seccionó para prolongar la avenida Nicolas De Pierola

1992

El 4 de setiembre el INC aprobó de caracter intangible a un área de 4520.80 m2, medida aprobada por la Resolución Directorial Ejecutiva N° 715 del 17 de Noviembre del año 2000.

1980

La sección sur fue demolida para la construcción del penal San Jorge.

1981

El área del cuartel disminuye más por la construcción del colegio José del Carmen Marin Arista quedando reducidos los 10000 m2 que restaban a solo 2072.50 m2

Fuente: Elaboración propia

PARAMETROS URBANISTICOS

Artículo 11

REGLAMENTO NACIONAL DE EDIFICACIONES

BIENES CULTURALES INMUEBLES Y ZONAS MONUMENTALES

Tipos de intervención

Ampliación

Anastylosis

Conservación

Consolidación

Reconstruccion

Artículo 13

Traza urbana respetada

Refacción

Remodelación

Restauración

Restitución

Prohibido ensanches de vías

Artículo 21

Se respetará los elementos artisticos y arquitectonicos

Artículo 22

No DEMOLER nada sin previo aviso.

Artículo 23

Se conserva el area paisajista

Preservar la traza urbana, unidad y morfología

No alterar la cualidad arquitectónica

Artículo 24

No USAR colores para distinguir el patrimonio

Presentar cartilla de colores

Artículo 28

Fachada sin

materiales vidriados cuando son atipicos de la zona

Artículo 30

Para la intervención se contara con

Estudio histórico Levantamiento del estado actual

Propuesta de restauraciónconservación

Artículo 34

El nuevo uso será compatible con el respeto que se merece el monumento

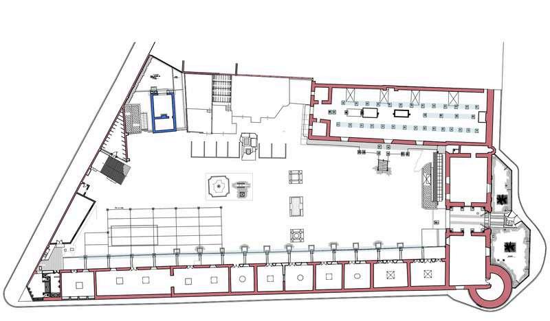
PARAMETROS URBANISTICOS

ZONA DE ADMISION

Taller de carpinteria

Taller de construccion civil

Taller forja

SS. HH Varones y mujeres

17 Capilla

18 Patio de la Capilla

19 Taller de canteria

20. Taller de jardineria

ZONA DE FORMACION ACADEMICA

ZONA DE FORMACION CULTURAL

ZONA COMPLEMENTARIA ENTRADA

21 Deposito 22. Biblioteca

23 Patio general

PLANTA BAJA

PLANTA ALTA

ZONA DE ADMISION

ZONA DE FORMACION ACADEMICA

ZONA DE FORMACION CULTURAL

ZONA COMPLEMENTARIA

Taller de construccion civil

Taller forja

SS HH Varones y mujeres

18

19

20

de carpinteria
Casa
Vigilancia
Deposito del INC
Jardin
Capilla
Patio de la Capilla
Taller de canteria
Taller de jardineria
Deposito
Biblioteca
Patio general

Torre de estructura cuadrada. + 2 niveles

Estructura de madera machinbrada

TORREÓN:

Planta circular

Está hecho completamente de ADOBE

Cubierto de yeso

Los

Ingreso principal

Acabado de la fachada (actualidad)

Tiene 3 divisiones

Estilo neoclásico

Capitel Corintios
Muros de adobe (Parapeto)
ELEVACIÓN FRONTAL
Capitel Jónico
marcos de la ventana son de carpintería metálica, algunas de madera
Fuente: Elaboración

ANALISIS VOLUMETRICO

JERARQUIA POR ALTURA DE LA TORRE QUE SOBRE SALE DEL VOLUMEN

UNIDAD

ASIMETRIA
Fuente: Elaboración propia

ESPACIALIDAD

Fuente: Elaboración propia

ESPACIALIDAD

Fuente: Elaboración propia

ESPACIALIDAD

INGRESO PRINCIPAL

EL ESPACIO SE CONTRAE PARA LUEGO AMPLIARSE CON EL PATIO INTERIOR

PATIO CENTRAL

. ESTOS ESPACIOS ABIERTOS SIRVEN COMO ÁREAS DE CIRCULACIÓN Y MEDITACIÓN, Y PERMITEN UNA DISTRIBUCIÓN FUNCIONAL DE LOS ESPACIOS A SU

ALREDEDOR

PATIO HUNDIDO

UN ESPACIO DEPRIMIDO PARA CREAR UN AMBIENTE DE INTROSPECCIÓN Y RECOGIMIENTO. LUGAR DESTINADO A LA MEDITACIÓN O LA ORACIÓN

Fuente: Elaboración propia
Fuente: Elaboración propia
Fuente Elaboración propia
Fuente: Elaboración propia

ESPACIALIDAD

Fuente: Elaboración propia
Fuente: Elaboración propia
Fuente: Elaboración propia
Fuente: Elaboración propia

MATERIALIDAD

Soporte de madera

Entre piso también es de madera

CORTE + DETALLE

Muros de adobe (Primer nivel)

Escalera: Conexión del patio con las cuadras.

Balcón estilo colonial
Madera y paneles de quincha
Fuente: Elaboración propia

ANALISIS TECNICO CONSTRUCTIVO

SISTEMA CONSTRUCTIVO

El fuerte Santa Catalina representa un ejemplo

típico de la arquitectura militar colonial del siglo

XVIII (18) .

Muros portantes (Adobe, 30 a 50cm de grosor)

Columnas (Madera 10 x 10 cm)

Ladrillo

Principales métodos constructivos:

Adobe:

Bloques de tierra cruda mezclada con agua, y a veces paja o fibra vegetal, que se moldean en moldes rectangulares y se dejan secar al sol

Quimcha:

Consiste en un entramado de cañas o varas entrelazadas, que se recubre con barro o arcilla

Fuente: Elaboración propia

SISTEMA CONSTRUCTIVO

En los techos, sobre el entablado final, se coloca la ‘’torta de barro’’, una capa de aproximadamente 0.10m de espesor de tierra que se utiliza a modo de capa protectora.

Techo de quincha

Fuente: Elaboración propia

DETALLES CONSTRUCTIVOS

Encuentro entre muro de adobe y viguetas de madera Detalle techo de quimcha

MAPEO DE DETERIOROS

Fuente: Elaboración

MAPEO DE DETERIOROS

PUERTA DEL ZAGUAN DETERIORADO MOTIVO DAÑO

ASOLEAMIENTO, HUMEDAD 2

MURO EXTERIOS DESPRENDIMIENTO DE PINTURA

MOTIVO DAÑO SALITRE, HUMEDAD.

CAPILLA RAJADURAS MOTIVO DAÑO ASENTAMIENTO DE LA EDIFICACIÓN, MATERIALIDAD

PUERTA POR AV. NICOLAS DE PIEROLA MADERA PICADA MOTIVO DAÑO FALTA DE CONSERVACIÓN Y MANTENIMIENTO.

MURO ALMENADO CON PARAPETO DETERIORADO MOTIVO DAÑO ASENTAMIENTO DEL MURO, MAL MANTENIMIENTO 4

BALCÓN DE CAJON DETERIORADO MOTIVO DAÑO

HUMEDAD, MAL MANTENIMIENTO, ABANDONO

MUROS DE ADOBE CAÍDOS, RAJADOS MOTIVO DAÑO ANTIGÜEDAD, MATERIAL NO REFORZADO.

MUROS DE QUINCHA MAL ESTADO MOTIVO DAÑO FALTA DE MANTENIMIENTO Y DE REFORZAMIENTO

Fuente: Elaboración propia

MAPEO DE DETERIOROS

Fisura
Fuente

MAPEO DE DETERIOROS

Fisura

Fuente: Elaboración propia

CUADRO RESUMEN

UBICACION CENTRICA

CENTRO EDUCATIVO

El cuartel está situado en una ubicación céntrica dentro de Lima, lo que facilita el acceso rápido a diversas áreas de la ciudad

El cuartel cuenta con 2 fachadas hacia principales avernidad con diferente tipo de flujo. Ademas esto trae gran ventaja para poder real zar el y las entradas

Existen programas gubernamentales que financian proyectos de conservac ón y rehabilitación de patrimon os histór cos. Aprovechar estos fondos podría facilitar a realización de la intervención

El cuartel ya se conoce porque Limatec reliza taller y voluntarios para realizar adobe. lo que se asocia al cuuartel como un centro educativo

el cuartel no tienen mantenimiento del estado yaque solo s rve como almacen de caral y para algunos talleres que se hacen esporad camente Tampoco esta abierto al publico

CUADRILLA Y CAPILLA EN MAL ESTADO

la cuadrillla que se ubica en el lado izqu erdo esta en muy mal estado, sujetada de columnetas en el primer piso iugal que la capilla y el torreon que es el corazon de la edificación

AREA DE CONSTRUCCION

Elñ cuartel tiene un patio central gigante, lo que podria aportar para una futura construccion sin afectar la estructura original

VALOR PATRIMONIAL

TECNOLOGIAS RENOVABLES

MUROS

TIENE TRES FACHADAS NO TIENE MANTENIMIENTO

PERIMETRALES

los muros perimetrales son planos y sin gracia, la falta de mantenimiento hace qye las personas la vandalizen u orinen ahi

VANDALISMO

pozos de agua subterránea en mal estado, pueden provocar hundimiento del edificación, representar un peligro para futuras intervenciones

POZOS SUBTERRANEOS

PISO CON DESNIVELES Y EN DETERIODO

Nos da la oportunidad de usar nuevas tecnologias renovables que benficie de manera sostenible y eficiente al nuevo edificacion

Al estar en un área con problemas de seguridad el cuartel puede ser susceptible a actos de vandalismo o intrusiones, lo que podría d f cultar su conservación y uso hasta que se implementen medidas efectivas de segur dad

la mayoria de p sos externos estan carcomidos y con desniveles devido al deterioro por el clima

4 SINTESIS FODA

FORTALEZAS Y OPORTUNIDADES

Ubicación centrica : El cuartel está situado en una ubicación céntrica dentro de Lima, lo que facilita el acceso rápido a diversas áreas de la ciudad.

Tiene tres fachadas : El cuartel cuenta con 2 fachadas hacia principales avernidad con diferente tipo de flujo Ademas esto trae gran ventaja para poder realizar el y las entradas.

Jr. Inambari

Valor patrimonial : Existen programas gubernamentales que financian proyectos de conservación y rehabilitación de patrimonios históricos. Aprovechar estos fondos podría facilitar la realización de la intervención

Área de construccion : El cuartel tiene un patio central gigante, lo que podria aportar para una futura construccion sin afectar la estructura original

AvenidaNicolasdePierola

Tecnologias renovables : Nos da la oportunidad de usar nuevas tecnologias renovables que benficie de manera sostenible y eficiente al nuevo edificacion

Centro educativo : El cuartel ya se conoce porque Limatec reliza taller y voluntarios para realizar adobe. lo que se asocia al cuuartel como un centro educativo

Jr. Inambari
Jr Andahuaylas
Av Nicolas de Pierola

4 SINTESIS FODA DEBILIDADES Y AMENAZAS

DEBILIDADES

No tiene mantenimiento : El cuartel no tienen mantenimiento del estado, yaque solo sirve como almacen de caral y para algunos talleres que se hacen esporadicamente. Tampoco esta abierto al publico

Muros perimetrales : Los muros perimetrales son planos y sin gracia, la falta de mantenimiento hace qye las personas la vandalizen u orinen ahi

Vandalismo : Al estar en un área con problemas de seguridad, el cuartel puede ser susceptible a actos de vandalismo o intrusiones, lo que podría dificultar su conservación y uso hasta que se implementen medidas efectivas de seguridad

Cuadrilla y capilla en mal estado : La cuadrillla que se ubica en el lado izquierdo esta en muy mal estado, sujetada de columnetas en el primer piso, iugal que la capilla y el torreon que es el corazon de la edificación

Torreon en deterioro : lo que un dia fue el corazon y lo mas resaltante de la edificacion, ahora esta en completo abandono y sin mantenimiento

Piso con desniveles y en deterioro : la mayoria de pisos externos estan carcomidos y con desniveles devido al deterioro por el clima

Fuente: Elaboración propia

03 REGISTRO DE FOTOS

FOTOGRAFICO

Fuente: Elaboración propia
Fuente: Elaboración propia

3

BIBLIOGRAFIA

Angulo, J. (2024, julio 4). Cuartel Santa Catalina: del motín de 1931 hasta ser la prisión de Montesinos, sede ahora es amenazada por el deterioro del tiempo. infobae. https://www.infobae.com/peru/2024/07/04/cuartel-santa-catalina-del-motin-de-1931-hasta-ser-la-prisionde-montesinos-sede-ahora-es-amenazada-por-el-deterioro-del-tiempo/

No, O. (s/f). Reglamento de la administración del Centro Histórico de Lima. Ipdu.pe. Recuperado el 20 de septiembre de 2024, de https://www.ipdu.pe/legislacion/ordenanza/062.pdf

Reglamento Nacional de Edificaciones. (s/f). Construccion.org. Recuperado el 20 de septiembre de 2024, de https://www.construccion.org/normas/rne2012/rne2006.htm?srsltid=AfmBOorJG sqO3XIgoBKWXPrMkioiDn9Si5yxjYp5U3e1sCxX57vAb7B

Shimabukuro, A. (2015). Barrios altos: caracterización de un conjunto de barrios tradicionales en el marco del centro histórico de lima. Revista de arquitectura, 17(1), 6–17. https://www.redalyc.org/articulo.oa?id=125143817002 1

Vista de Estrategias para interrumpir trampas de riesgo en Barrios Altos. Caso de estudio Quinta Baselli. (s/f). Edu.pe. Recuperado el 20 de septiembre de 2024, de https://revistas.ulima.edu.pe/index.php/Limaq/article/view/2655/2563

(S/f). Academia.edu. Recuperado el 20 de septiembre de 2024, de https://www.academia.edu/6608015/Excavaciones arqueol%C3%B3gicaa en el Cuartel de Santa Catalina Lima PERU https://www.arcgis.com/apps/webappviewer/index.html?id=750f2dfc69f54ca796505045ba448fa5

Turn static files into dynamic content formats.

Create a flipbook
Issuu converts static files into: digital portfolios, online yearbooks, online catalogs, digital photo albums and more. Sign up and create your flipbook.