TALLER-PRODUCTO FINAL

Page 1

UNI VERSIDAD T ECNOLÓGICA INDOAMERICA

FACULTAD DE ARQUI T ECTURA, ART ES Y DISEÑO CARRERA DE ARQUI T ECTURA

TALLER DE QUIN TO SEMEST RE PROYECTO MERCADO COMUNI TARIO

¨SANTA ANITA - RIOBAMBA¨

IN T EGRAN T ES: VALERIO CAL APUCHA

TUTOR: Arq. JUAN CABRERA

AMBATO - ECUADOR

PERIODO B22

ÍNDICE

PARTIDO ARQUITECTÓNICO

CONCEPTO

PLAN MASA

ZONIFICACIÓN

SENTIDO DEL LUGAR

PREGUNTA DIAGRAMA

CIRCULACIÓN VERTICAL Y HORIZONTAL

PROMENADE O RECORRIDO

JERARQUIAS ESPACIAL

IMPLANTACIÓN

PLANTA BAJA GENERAL

2CORTES CON TERRENO Y CURVAS DE NIVEL ACTUALES MODIFICADAS

2 PERSPECTIVAS

2 DETALLES CONSTRUCTIVOS

AMBATO - ECUADOR

PERIODO B22

INTEGRANTES: ARQ. JUAN CABRERA

INTEGRANTES: CALAPUCHA VALERIO

FECHA: 31/01/2023

PARTIDO ARQUITECTÓNICO

Como partido arquitectónico le hago una sustracción del terreno ya que es una forma rectangular y también podemos observar vivienda en forma cuadrado que también me permite dar una forma al sentido de mi proyecto.

MODULACIONES

CUADRADO

RECTÁNGULO

UTI
B22
UBICACIÓN
1/1 2893 2894 2895 2892 2891 2890 2896 2897 2898 2899 2900 2901
TÍTULO DESCRIPCIÓN:

CONCEPTO

FORMA

MERCADO

INTERRELACION

DUALIDAD VOLUMETRIA INTERRELACION CONEXION

Comercial

Urbano

Relacion con el entorno Comercial y Administrivo Interralacion

COMPRA VENTA FLUIDEZ
ESTRATEGIAS FLUIDEZ TRANSPARENCIA CONEXIÓN

DOCENTE : ARQ. JUAN CABRERA

INTEGRANTES: CALAPUCHA VALERIO

FECHA: 31/01/2023

Verduras

Frutas

Jugos

PLAN MASA UTI

PUESTO DE VENTA

Áreas creativo Áreas verde Áreas de juegos

ÁREA COMPLEMENTARIOS

PARQUEADERO

Autos

Camiones

Bicicletas

SERVICIOS SANITARIOS

DESCRIPCIÓN: 1/1

Hombres

Mujeres

UBICACIÓN

ADMINISTRACIÓN

Contabilidad Administración Oficinas

Sala de juntas

B22
TÍTULO

DOCENTE : ARQ. JUAN DANIEL CABRERA

ESTUDIANTE: CALAPUCHA VALERIO

FECHA: 31/01/2023

DESCRIPCIÓN: 1/1

ZONA PRIVADA

ZONA PUBLICA

AREA SOCIAL

AREA DE SERVICIO

UBICACIÓN

ZONIFICACIÓN UTI
B22
TÍTULO

DOCENTE: ARQ. JUAN DANIEL CABRERA GÓMEZ

INTEGRANTES: CALAPUCHA VALERIO

FECHA: 27/01/2023

MATRIZ DE ANÁLISIS FODA UTI

FODA

FORTALEZA DEBILIDADES

Espacio de comercio que ayuda a la economía de la población del sector y gastronómicos.

Falta de atención en elcuidado estético del barrio.

OPORTUNIDADES AMENAZA

Acceso con transportes publico y privado.

Inseguridad delincuencia debido a que la zona es desértica.

DESCRIPCIÓN: 1/1

UBICACIÓN B22
TÍTULO

DOCENTE: ARQ. JUAN DANIEL CABRERA GÓMEZ

INTEGRANTES: CALAPUCHA VALERIO

FECHA: 27/01/2023

PREGUNTA

Como acceder al lugar puede ser afectado y cómo la ubicación de edificios puede reducir caminos y trabajos a un mínimo mientras al mismo tiempo permite una fácil circulación de gente y vehículos.

FORTALEZA

Espacios de comercio que ayuda a la economía de la población del sector y gastronómicos.

Es necesario realizar una edificación que cuenta con servicios necesario que cumplan con las necesidades del sector, de esta esta forma se aumenta la calidad de vida del usuario. El proyecto debe tener acceso e ingreso al transporte publico como las parada de bus santa

Anita, luego estar bien ubicado para que a los usuarios se facilitan el ingreso a esta lugar o área.

Tener una buena circulación en el lugar que le puede facilitar al usuario con escalas adecuados dando así la continuidad a las vías principales.

Lo cual se trata de poder diseñar un buen edificación en el lugar dado su forma al contexto escogido de su forma y tener una buena circulación a los espacio distribuido en el lugar.

DESCRIPCIÓN: 1/1

B22
ANÁLISIS DE PREGUNTAS UTI UBICACIÓN
TÍTULO

DOCENTE : ARQ. JUAN CABRERA

INTEGRANTES: CALAPUCHA VALERIO

FECHA: 31/01/2023

AREAS COMPLEMENTARIOS

ADMINISTRACIÓN

ACCESIBILIDAD

PUESTO DE VENTA

ENTRADA

DESCRIPCIÓN: 1/1

SERVICIO SANITARIOS

PARQUEADERO

UBICACIÓN

DIAGRAMA UTI
B22
TÍTULO

DOCENTE : ARQ. HUARACA DIEGO

ESTUDIANTE: CALAPUCHA VALERIO

FECHA: 05/02/2023

CIRCULACIONES HORIZONTAL Y VERTICAL UTI

CIRCULACIÓN HORIZONTAL

CIRCULACIÓN VERTICAL

CIRULACION HORIZONTAL

CIRCULACIÓN VERTICAL

INGRESO PRINCIPAL INGRESO SECUNDARIO

DESCRIPCIÓN: 1/1

UBICACIÓN

B22
TÍTULO

DOCENTE : ARQ. JUAN CABRERA

ESTUDIANTE: CALAPUCHA VALERIO

FECHA: 8/12/2022

PARQU EADERO

AU TOS

CAMIONES

MOTOS

CONTABILIDAD

ADMINISTRACION

TERRAZA

AREA COMU NITARIO- ACTIVIDADES

HALL

PATIO DE COMIDA

JU G OS

BAÑOS

CONTABILIDAD

ADMINISTRATIVA

AREAS COMPLEMENTARIOS

SEVICIOS SANITARIOS

OFICINAS

SALA DE JU NTAS

AREA CREATIVO

AREA VERDE

AREA DE JU EG OS

HOMBRE

MU JERES

VERDU RAS

FRU TAS

ADMINISTRACION

SALA DE REU NIOES

ESCALERA DE ACCESO

PU ESTOS DE VENTAS

HALL- ING RESO

PU ESTOS DE VENTAS VERDU RAS

PU ESTOS DE VENTAS FRU TAS

BAÑOS

PU ESTOS DE VENTAS

JU G OS

COMIDAS

TERRAZA

ACCESIBILIDAD

TRAMPA

ESCALERA

PARQU EADERO DE CAMIONES

RAMPAS DE ACCESIBILIDAD

ESCALERAS DE ACCESO

PU ESTOS DE VENTAS

OFICINAS

SEDU RIDAD Y MONITOREOS

AREA DE JU EG OS

AREA VERDE

DESCRIPCIÓN: 1/1

B22
PROGRAMACIÓN UTI UBICACIÓN
TÍTULO
PLANTAALTA
PLANTABAJA
2893 2894 2895 2892 2891 2890 2896 2897 2898 2899 2900 2901 PARQUEADERO AREA DE JUEJOS INFANTIL AREA SOCIAL PARADA DE BUS IMPLANTACIÓN
AREAVERDE AREADEJUEGOS INFANTILES AREADEDESCARGA PARQUEADERO INGRESO SALIDA INGRESO SALIDA ÁREASVERDES ÁREASVERDES ÁREASVERDES INGRESO AREADEDESCANSO
BAÑOS PUESTODEVERDURAS PUESTODEFRUTAS ANDENDEDESCARGA Papel Plástico Vidrio Orgánico Orgánico AREAVERDE AREADEJUEGOS AREADEDESCANSO N+0.20 AREADEJUEGOS INFANTILES AREADEDESCARGA INGRESO INGRESO PARQUEADERO INGRESO SALIDA INGRESO SALIDA ÁREASVERDES ÁREASVERDES 40.00 ÁREASVERDES MONITOREO OFICINA INGRESO

DOCENTE : ARQ. JUAN DANIEL CABRERA

ESTUDIANTE: CALAPUCHA VALERIO

FECHA: 31/01/2023

DESCRIPCIÓN: 1/1

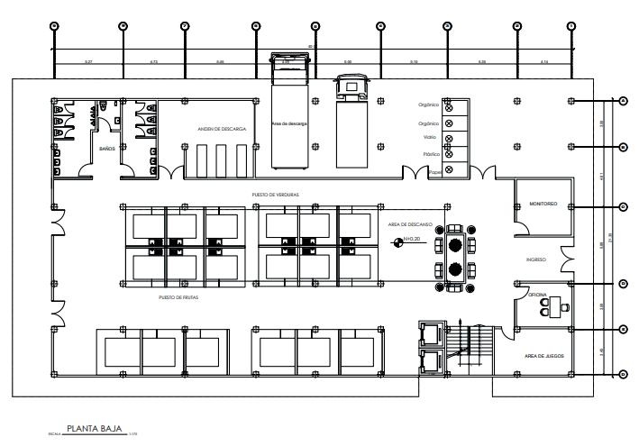
AREA DE JUEGO OFICINA

INGRESO PRINCIPAL

INGRESO SECUNDARIO

AREA DE DESCANZO

MONITORREO

PUESTO DE VERDURA

PUESTO DE FRUTAS

ANDEN DE DESCARGA

BAÑOS

AREA DE DESECHO

UBICACIÓN

UTI
PLANTA BAJA
B22
TÍTULO

DOCENTE : ARQ. JUAN DANIEL CABRERA

ESTUDIANTE: CALAPUCHA VALERIO

FECHA: 31/01/2023

DESCRIPCIÓN: 1/1

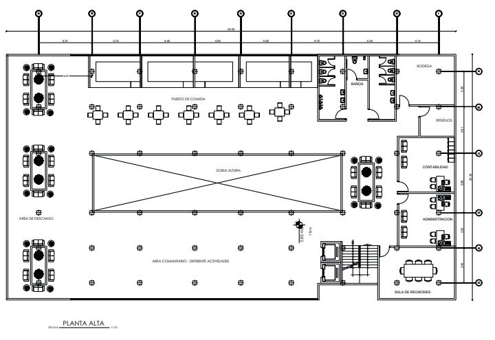
PUESTOS DE COMIDA

BAÑO

RESIDUO

BODEGA

CONTABILIDAD

ADMINISTRACIÓN

SALA DE RUNIÓN

AREA COMUNITARIO - DIFERENTE ACTIVIDADES

AREA DE DESCANSO O TERRAZA

UBICACIÓN

PLANTA ALTA UTI
B22
TÍTULO

DOCENTE : ARQ. JUAN CABRERA

INTEGRANTES: VALERIO CALAPUCHA

FECHA: 07/02/2023

FACHADAS GENERALES UTI

DESCRIPCIÓN: 1/1

UBICACIÓN B22
TÍTULO

DOCENTE : ARQ. JUAN CABRERA

INTEGRANTES: VALERIO CALAPUCHA

FECHA: 07/02/2023

FACHADAS GENERALES UTI

DESCRIPCIÓN: 1/1

UBICACIÓN B22
TÍTULO

DOCENTE : ARQ. JUAN CABRERA

INTEGRANTES: VALERIO CALAPUCHA

FECHA: 07/02/2023

CORTES LONGITUDINAL

CORTES GENERALES

CORTES TRANSVERSAL

DESCRIPCIÓN: 1/1

UBICACIÓN

UTI
B22
TÍTULO

DOCENTE : ARQ. JUAN CABRERA

ESTUDIANTE: CALAPUCHA VALERIO

FECHA: 31/01/2023

DESCRIPCIÓN: 1/1

UBICACIÓN

UTI
DETALLES
B22
TÍTULO

DOS DETALLES CONSTRUCTIVO

UTI
B22
TÍTULO
UBICACIÓN
FECHA: 05/02/2023 ESTUDIANTE: CALAPUCHA VALERIO
: ARQ. MARIA AUGUSTA ROJAS MOLINA
DESCRIPCIÓN: 1/1 DOCENTE

INTEGRANTES: ANDY OCAÑA

FECHA: 8/12/2022

MAQUETA DE LA ENTREGA FINAL UTI

DESCRIPCIÓN: 1/1

UBICACIÓN

B22
TÍTULO

INTEGRANTES: VALERIO CALAPUCHA

FECHA: 07/02/2023

PARTIDO ARQUITECTÓNICO

El lugar se encuentra en la ciudad de Riobamba al norte de la ciudad más que todo conocido como la parada de buses mas conocido como Santa Anita, es el lugar donde se proyectara el proyecto.

mas que todo dar una forma al proyecto dando soluciones que se ve en el lugar que tipos de necesidad dar al lugar. de esa forma partimos de una sustración del terreno ya que es una forma rectangular y tambien observamos viviendas cuadrados de esa manera me da forma al sentido de mi proyecto.

REFERENTE

Mercado en Bergen

El mercado mas que todo es muy importante ya que es un lugar animado deja su marca en la ciudad tan bien como lo hace el monumento histórico que son atracciones muy importante hacia la ciudad. ya que su en la histora de la arquitectura es fundamental de como se ira evolucionado de formas hacia el futuro de esa forma crear una plaza hacia una nuena arquitectura moderna.

UBICACIÓN

MODULACIONES

CONCEPTO Y SOLUCIONES

DESCRIPCIÓN: 1/1

UBICACIÓN

HISTORIA
MEMORIA DESCRIPTIVA -
UTI
B22
TÍTULO
DOCENTE : ARQ. ANDRES CORDOVA FEIJOO

DOCENTE : ARQ. JUAN CABRERA

ESTUDIANTE: CALAPUCHA VALERIO

FECHA: 8/12/2022

ANÁLISIS ESTRUCTURAL

DESCRIPCIÓN: 1/1

UBICACIÓN

UTI
B22
TÍTULO

ARQ. JUAN DANIEL CABRERA

ESTUDIANTE : CALAPUCHA VALERIO

FECHA: 08/02/2023

MEMORIA DESCRIPTIVA FODA

Mi propuesta arquitectónica parte de un análisis de los contextos físico, social y ambiental en el terreno y también que tipo de clima se puede observar en el lugar, también qué tipo de terreno es en el lugar, uso de los suelos en el lugar y mediante la topografía. Una vez tenido los resultados de los estudios procedemos a poder diseñar que tipo de espacios requerido puede aportar al proyecto y de esa manera también ver que tipos de materiales podemos observar en el lugar y de esa manera tener la facilidad a la construcción del diseño en nuestro proyecto y que sea económica.

FORTALEZA DEBILIDADES

Espacio de comercio que ayuda a la economia de la población del sector y gastronomicos.

Falta de atención en el cuidado estético del barrio.

OPORTUNIDADES AMENAZA

Acceso con transportes publicony privado.

Inseguridad delincuencia debido a que la zona es desértica.

DETALLES CONSTRUCTIVO

DESCRIPCIÓN: 0/0

TALLER DE PROYECTOS III - PARALELO 02 UTI
UBICACIÓN B21
TÍTULO
PLANTA BAJA PLANTA ALTA IMPLANTACIÓN GENERAL CORTES TRANVERSAL Y LONGITUDINAL FACHADAS DE DIFERENTE LADO RENDER DEL PROYECTO FINAL

PROPUESTA DE ESPACIOS PÚBLICOS EN EL CASO DE ESTUDIO

ANÁLISIS DE LA ESTRUCTURA BARIIAL

se

luminaria, algunas de las aceras se observa solo con bordillos y en la parte interna solo es pasto y tierra, al mismo

existe espacios en las aceras con desniveles y muy pegadas a las casas lo cual hace que transitar por esos lugares sea muy limitado, para el acceso al terreno a implantar las vías son amplias pero sin una correcta iluminación, ademas de la vegetación que existe al llegar al sitio que lo hace dificil. Como se puede evidenciar, la calidad de vías del sector se encuentra en un estado deteriorado donde caminar por las aceras presenta obstrucciones por luminaria o su mismo tiempo existe material de construcción como escombros lo que hace que el usuario camine en medio de la calle, al mismo se puede evidenciar vías solo de tierra lo que alza la tierra y para los transeuntes es una molestia transitar por esos espacios

ANÁLISIS DE PROBLEMATICAS A ESCALA BARRIAL Y SOLUCIONES

PROBLEMATICA: En el sector se encuentran vias de tierra ,las aceras tienen dimenciones no aptas para transitar y los ciudadanos deben bajarse a la calle para poder caminar libremente.La iluminacion publica se encuentra deteriorada y en zonas no existe alumbrado público.

SOLUCIÓN: Generar vias aptas para los vehiculos e implementar aceras de dimenciones adecuadas (2m),e implementar luminarias públicas que usen paneles solares

DIAGNOSTICO DEL LOTE A INTERVENIR

PROYECTO PROPUESTO DE ESPACIO PÚBLICO

PROBLEMATICA: El barrio no tiene unas vias adecuadas ni definidas, para la movilidad vehicular y no cuenta con aceras en ciertas partes y las aceras que existen son de dimenciones pequeñas. SOLUCIÓN: Generar vias aptas y bien pavimentadas,generar una ciclovia que conecte con la via principal(Estatal) y genrar haceras amplias para que las personas puedan transitar correctamente y puedan tomar el bus sin miedo a ser arrollados.

Adicionalmente, hay que mencionar que, en el Código Urbano vigente, aprobado mediante Ordenanza Nro. 013-2017, expresa “que la proyección de ejes viales de la ciudad de Riobamba fueron aprobados mediante resolución del Concejo Municipal, y actualmente se encuentran abiertas y en muchos casos con infraestructura de aceras y bordillos, alcantarillado y agua potable además de servicio de energía eléctrica y telefonía.

QUINTO SEMESTRE UTI 1 Vía a Quito E35 Av. Edelberto Bonilla Olea Av. 09 de Octubre Av. Pedro Vicente Av. Leonidas Proaño Av. Canonimo Ramos N 0 500 1000 3000 2 Estadio Olímpico Arco de Bellavista 1 Estadio Olímpico 3 Escuela Politecnica UNACH ESPOCH 4 5 6 CALLE DE ADOQUIN CALLE DE TIERRA CALLE SIN DELIMITAR 1 3 0 0 1 3 0 LATITUD: 1°37'51.48"S LONGITUD: 78°41'37.81"O ALTURA: 2757 msnm UBICACIÓN DEL BARRIO Lote de Intevención Producción Agricola Comercial Residencial Residencial Densidad 1 USO DE SUELO
DE LA ESTRUCTURA URBANA
ANÁLISIS
EQUIPAMIENTOS Zonas de Comercio Parada de buses Hitos Religiosos Escuelas Colegios VÍA ARTERIAL PRINCIPAL VÍA COLECTORA SEGUNDO ORDEN VÍA EXPRESA TERCER ORDEN SENTIDO DE VÍAS DOBLE VÍA SENTIDO DE VÍAS DOBLE VÍA SENTIDO DE VÍAS DOBLE VÍA NÚMERO DE CARRILES #4 CARRILES NÚMERO DE CARRILES #2 CARRILES NÚMERO DE CARRILES # 2 CARRILES UBICACIÓN DEL BARRIO TIPOS DE VIAS EN EL SECTOR ESTADO DE LAS VIAS
FALTA DE ACERAS ADECUADAS E ILUMINACIÓN PUBLICA FALTA
VIARIA
TODO
MOVILIDAD . . . . . . . ZAMORA CHINCHIPE Y TRONCAL SIERRA ESQUIMALES VÍA LICAN El Cantón Riobamba está situado a 2.754 metros sobre el nivel del mar, a 1º 41´ 46” latitud Sur; 0º 3´ 36” longitud Occidental del meridiano de Quito. Se encuentra a 175 km. al sur de la ciudad de Quito, en la región Sierra Central y es la capital de la Provincia de Chimborazo. - LÍMITE RIOBAMBA - NODOS - SENDAS N E O 10 11 12 13 14 15 S
CORTE ESTADO ACTUAL CORTE PROPUESTA/SOLUCIÓN CORTE ESTADO ACTUAL CORTE PROPUESTA/SOLUCIÓN VIENTO Media MÁXIMA MEDIA ENE 1 3 4 5 6 8 9 0.50 1.00 1.50 2.00 2.50 3.00 4.00 4.50 FEB MAR ABR MAY JUN JUL AGO SEP OCT NOV DIC AÑO PRECIPITACIÓN ENE 10 20 30 40 60 70 80 90 100 110 120 2 4 6 8 12 14 16 18 20 22 24 JUN JUL AGO SEP OCT NOV DIC AÑO PRECIPITACIÓN mm Total Max. en 24 horas 532 17.1 ANÁLISIS SOLAR VIENTOS PREDOMINANTES CALLE SIN NOMBRE PARADA DE BUS TERRENO A INTERVENIR TOPOGRAFIA DE LUGAR 1 0 4 0 4 10 3 VIA EN LOTIZACIÓN En la parada de Santa Ana se evidencia vías de
pero a su vez
exite
donde
DE RED
PARA
TIPO DE
tierra
no
un espacio consolidado por completo
presenta poca
tiempo
VIAS SIN TRATAR VIAS CON ACERAS PEQUEÑAS VIAS SIN PISO TRATADO
INTEGRANTES: VALERIO CALAPUCHA EDWIN NUÑEZ CARLA ESCONAR ANDRES GARCIA

Turn static files into dynamic content formats.

Create a flipbook
Issuu converts static files into: digital portfolios, online yearbooks, online catalogs, digital photo albums and more. Sign up and create your flipbook.
TALLER-PRODUCTO FINAL by valerio calapucha - Issuu