TALLER DE PROYECTO

Page 1

UNI VERSIDAD T ECNOLÓGICA INDOAMERICA

FACULTAD DE ARQUI T ECTURA, ART ES Y DISEÑO CARRERA DE ARQUI T ECTURA

TALLER DE QUIN TO SEMEST RE PROYECTO MERCADO COMUNI TARIO

¨SANTA ANITA - RIOBAMBA¨

IN T EGRAN T ES: VALERIO CAL APUCHA

TUTOR: Arq. JUAN CABRERA

AMBATO - ECUADOR

PERIODO B22

ÍNDICE

PARTIDO ARQUITECTÓNICO

CONCEPTO PLAN MASA

ZONIFICACIÓN

SENTIDO DEL LUGAR

PREGUNTA DIAGRAMA

CIRCULACIÓN VERTICAL Y HORIZONTAL

PROMENADE O RECORRIDO

JERARQUIAS ESPACIAL

IMPLANTACIÓN

PLANTA BAJA GENERAL

2CORTES CON TERRENO Y CURVAS DE NIVEL ACTUALES MODIFICADAS

2 PERSPECTIVAS

2 DETALLES CONSTRUCTIVOS

AMBATO - ECUADOR

PERIODO B22

INTEGRANTES: ARQ. JUAN CABRERA

INTEGRANTES: CALAPUCHA VALERIO

FECHA: 31/01/2023

PARTIDO ARQUITECTÓNICO

Como partido arquitectónico le hago una sustracción del terreno ya que es una forma rectangular y también podemos observar vivienda en forma cuadrado que también me permite dar una forma al sentido de mi proyecto.

MODULACIONES

CUADRADO

RECTÁNGULO

UTI
B22
UBICACIÓN
1/1 2893 2894 2895 2892 2891 2890 2896 2897 2898 2899 2900 2901
TÍTULO DESCRIPCIÓN:

CONCEPTO

FORMA

MERCADO

INTERRELACION

DUALIDAD VOLUMETRIA INTERRELACION CONEXION

Comercial

Urbano

Relacion con el entorno Comercial y Administrivo Interralacion

COMPRA VENTA FLUIDEZ
ESTRATEGIAS FLUIDEZ TRANSPARENCIA CONEXIÓN

DOCENTE : ARQ. JUAN CABRERA

INTEGRANTES: CALAPUCHA VALERIO

FECHA: 31/01/2023

Verduras

Frutas

Jugos

PLAN MASA UTI

PUESTO DE VENTA

Áreas creativo Áreas verde Áreas de juegos

ÁREA COMPLEMENTARIOS

PARQUEADERO

Autos

Camiones

Bicicletas

SERVICIOS SANITARIOS

DESCRIPCIÓN: 1/1

Hombres

Mujeres

UBICACIÓN

ADMINISTRACIÓN

Contabilidad Administración Oficinas

Sala de juntas

B22
TÍTULO

DOCENTE : ARQ. JUAN DANIEL CABRERA

ESTUDIANTE: CALAPUCHA VALERIO

FECHA: 31/01/2023

DESCRIPCIÓN: 1/1

ZONA PRIVADA

ZONA PUBLICA

AREA SOCIAL

AREA DE SERVICIO

UBICACIÓN

ZONIFICACIÓN UTI
B22
TÍTULO

DOCENTE: ARQ. JUAN DANIEL CABRERA GÓMEZ

INTEGRANTES: CALAPUCHA VALERIO

FECHA: 27/01/2023

PREGUNTA

Como acceder al lugar puede ser afectado y cómo la ubicación de edificios puede reducir caminos y trabajos a un mínimo mientras al mismo tiempo permite una fácil circulación de gente y vehículos.

FORTALEZA

Espacios de comercio que ayuda a la economía de la población del sector y gastronómicos.

Es necesario realizar una edificación que cuenta con servicios necesario que cumplan con las necesidades del sector, de esta esta forma se aumenta la calidad de vida del usuario. El proyecto debe tener acceso e ingreso al transporte publico como las parada de bus santa

Anita, luego estar bien ubicado para que a los usuarios se facilitan el ingreso a esta lugar o área.

Tener una buena circulación en el lugar que le puede facilitar al usuario con escalas adecuados dando así la continuidad a las vías principales.

Lo cual se trata de poder diseñar un buen edificación en el lugar dado su forma al contexto escogido de su forma y tener una buena circulación a los espacio distribuido en el lugar.

DESCRIPCIÓN: 1/1

B22
ANÁLISIS DE PREGUNTAS UTI UBICACIÓN
TÍTULO

DOCENTE : ARQ. JUAN CABRERA

INTEGRANTES: CALAPUCHA VALERIO

FECHA: 31/01/2023

AREAS COMPLEMENTARIOS

ADMINISTRACIÓN

ACCESIBILIDAD

PUESTO DE VENTA

ENTRADA

DESCRIPCIÓN: 1/1

SERVICIO SANITARIOS

PARQUEADERO

UBICACIÓN

DIAGRAMA UTI
B22
TÍTULO

DOCENTE : ARQ. HUARACA DIEGO

ESTUDIANTE: CALAPUCHA VALERIO

FECHA: 05/02/2023

CIRCULACIONES HORIZONTAL Y VERTICAL UTI

CIRCULACIÓN HORIZONTAL

CIRCULACIÓN VERTICAL

CIRULACION HORIZONTAL

CIRCULACIÓN VERTICAL

INGRESO PRINCIPAL INGRESO SECUNDARIO

DESCRIPCIÓN: 1/1

UBICACIÓN

B22
TÍTULO
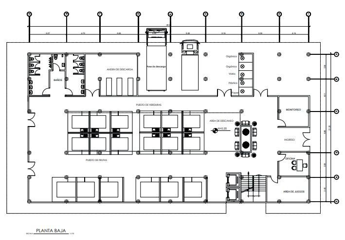
2893 2894 2895 2892 2891 2890 2896 2897 2898 2899 2900 2901 PARQUEADERO AREA DE JUEJOS INFANTIL AREA SOCIAL PARADA DE BUS IMPLANTACIÓN
AREAVERDE AREADEJUEGOS INFANTILES AREADEDESCARGA PARQUEADERO INGRESO SALIDA INGRESO SALIDA ÁREASVERDES ÁREASVERDES ÁREASVERDES INGRESO AREADEDESCANSO
BAÑOS PUESTODEVERDURAS PUESTODEFRUTAS ANDENDEDESCARGA Papel Plástico Vidrio Orgánico Orgánico AREAVERDE AREADEJUEGOS AREADEDESCANSO N+0.20 AREADEJUEGOS INFANTILES AREADEDESCARGA INGRESO INGRESO PARQUEADERO INGRESO SALIDA INGRESO SALIDA ÁREASVERDES ÁREASVERDES 40.00 ÁREASVERDES MONITOREO OFICINA INGRESO

DOCENTE : ARQ. JUAN DANIEL CABRERA

ESTUDIANTE: CALAPUCHA VALERIO

FECHA: 31/01/2023

DESCRIPCIÓN: 1/1

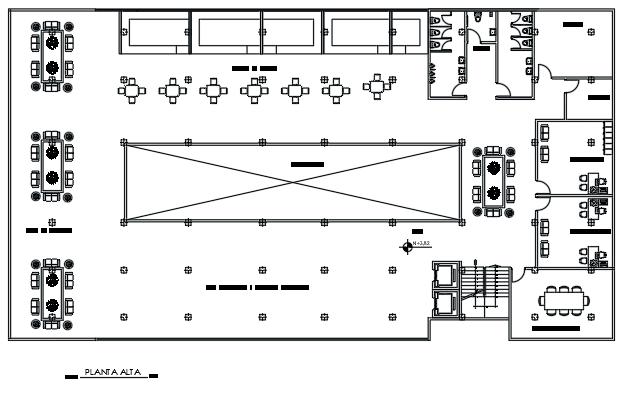
AREA DE JUEGO OFICINA

INGRESO PRINCIPAL

INGRESO SECUNDARIO

AREA DE DESCANZO

MONITORREO

PUESTO DE VERDURA

PUESTO DE FRUTAS

ANDEN DE DESCARGA

BAÑOS

AREA DE DESECHO

UBICACIÓN

UTI
PLANTA BAJA
B22
TÍTULO

DOCENTE : ARQ. JUAN DANIEL CABRERA

ESTUDIANTE: CALAPUCHA VALERIO

FECHA: 31/01/2023

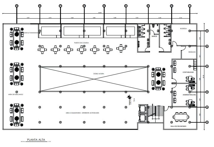
DESCRIPCIÓN: 1/1

PUESTOS DE COMIDA

BAÑO

RESIDUO

BODEGA

CONTABILIDAD

ADMINISTRACIÓN

SALA DE RUNIÓN

AREA COMUNITARIO - DIFERENTE ACTIVIDADES

AREA DE DESCANSO O TERRAZA

UBICACIÓN

PLANTA ALTA UTI
B22
TÍTULO

DOCENTE : ARQ. JUAN CABRERA

INTEGRANTES: VALERIO CALAPUCHA

FECHA: 07/02/2023

FACHADAS GENERALES UTI

DESCRIPCIÓN: 1/1

UBICACIÓN B22
TÍTULO

DOCENTE : ARQ. JUAN CABRERA

INTEGRANTES: VALERIO CALAPUCHA

FECHA: 07/02/2023

FACHADAS GENERALES UTI

DESCRIPCIÓN: 1/1

UBICACIÓN B22
TÍTULO

DOCENTE : ARQ. JUAN CABRERA

INTEGRANTES: VALERIO CALAPUCHA

FECHA: 07/02/2023

CORTES LONGITUDINAL

CORTES GENERALES

CORTES TRANSVERSAL

DESCRIPCIÓN: 1/1

UBICACIÓN

UTI
B22
TÍTULO

DOCENTE : ARQ. JUAN CABRERA

ESTUDIANTE: CALAPUCHA VALERIO

FECHA: 31/01/2023

DESCRIPCIÓN: 1/1

UBICACIÓN

UTI
DETALLES
B22
TÍTULO

DOS DETALLES CONSTRUCTIVO

UTI
B22
TÍTULO
UBICACIÓN
FECHA: 05/02/2023 ESTUDIANTE: CALAPUCHA VALERIO
: ARQ. MARIA AUGUSTA ROJAS MOLINA
DESCRIPCIÓN: 1/1 DOCENTE
UTI
B22
02/02/2023
VALERIO CALAPUCHA TÍTULO
RENDER EXTERIOR
UBICACIÓN
FECHA:
ESTUDIANTE:
DOCENTE : ARQ. DIEGO HUARACA
DESCRIPCIÓN: 1/1
UTI
B22
02/02/2023
VALERIO CALAPUCHA TÍTULO
RENDER EXTERIOR
UBICACIÓN
FECHA:
ESTUDIANTE:
DOCENTE : ARQ. DIEGO HUARACA
DESCRIPCIÓN: 1/1

DOCENTE : ARQ. DIEGO HUARACA

ESTUDIANTE: VALERIO CALAPUCHA

FECHA: 02/02/2023

DESCRIPCIÓN: 1/1

UBICACIÓN

RENDER INTERIOR UTI
B22
TÍTULO

DOCENTE : ARQ. DIEGO HUARACA

ESTUDIANTE: VALERIO CALAPUCHA

FECHA: 02/02/2023

DESCRIPCIÓN: 1/1

UBICACIÓN

UTI
RENDER INTERIOR
B22
TÍTULO

Turn static files into dynamic content formats.

Create a flipbook
Issuu converts static files into: digital portfolios, online yearbooks, online catalogs, digital photo albums and more. Sign up and create your flipbook.
TALLER DE PROYECTO by valerio calapucha - Issuu