Nathaniel Sisco Portfolio

Page 1

Architecture & Design

Portfolio

Nathaniel
Content Central Avenue Master Plan.....4 Kansas State Spiritual Center.....8 Hearth Housing.....12 Vacation House.....16 Wamego Fire Department.....18

Kansas City, Kansas - Central Avenue Master Plan

This master plan is designed on a site along Central Avenue in Kansas City, Kansas which includes Bethany Park. The Southern end of the site is lined with a permanent canopy, which provides a space for food trucks, temporary stalls, and venders to set up for large events that are held throughout the year. A meandering path leads visitors past basket ball courts, dining spaces, shuffleboards, and up into the residential section of the site. The residential portion of the site is connected by six nodes, each with their own use, creating a walkable neighborhood for those living in Kansas City, Kansas.

Garden Space
Outdoor Art Gallery
Centrally Located Greenhouse Viewing Deck

Kansas City, Kansas - Central Avenue Dingbat

The lots along Central Avenue required creative use of the limited land, and as such, dingbat designs were chosen to allow for their parking spot to double as a front porch for residents. It was inte gral to the neighborhood that this design created public spaces and easily walkable paths through the neighborhood where residents can interact and meet with their neighbors to help residents engage with the community, while not losing the privacy of their homes. These homes look to accomplish both goals so that the communi ty will ultimately benefit.

The privacy of the yards would be created by using the retaining walls as locations to plant greenery, which both increases the privacy and also provides a nicer atmosphere for those outside in the neighborhood. Master Plan

Street View of Dingbat Homes Floorplan
Sectional Perspective
Interior View of Living Room Interior View of Kitchen and Dining Room

Kansas State Spiritual Center

This building was designed for the Kansas State University campus to act as a non-denominational spiritual center for students and faculty to use. The design of this space was to provide a worship space for individuals of all spiritual practices, classrooms to teach theology classes, and a library for literature on these topics.

To host large groups of people for campus events, the lobby space was made to be open and well-lit by natural light and an adjoining kitchen to cater to the space. This allows for the building to be used throughout the school year not only for learning, but recreational events.

The main spiritual space is designed to be flexible and provide a space that may be accommodating for any number of people and their beliefs.

View of North Side of Site Courtyard Walkway Courtyard

Library and Lobby Space

Library Lobby Space
Main Worship Space
Main Spiritual Space
First Floor Second Floor N
Floorplans and Sections

Hearth Housing

Hearth Apartments were designed for Harlem, New York. The design includes 36 apartments, broken up between 9 two-bedroom apartments and 27 studio units, with the first floor including space for commercial businesses, including a bike shop, hobby store, grocery store, coffee shop and bakery. These shops will service the surrounding neighborhood and give residents a place to shop right at home.

Inside the apartment building is a daycare, a private gym and an outdoor courtyard for residents. These private amenities will add to the residents quality of life. The building has a concrete structure with a brick facade, which was selected to harmonize with the historic buildings in Harlem.

Floorplans and Apartments

Communal Interior Spaces and Sections

Elevation and Circulation

Nancy Holt Vacation House

This house was designed in 2018 for Nancy Holt, a landscape artist located in Kansas City, Missouri. The use of skylights and large windows is used throughout the building to refrence Ms. Holt’s landscape art, which utilizes light in different ways to show the passing of time. The Vacation House was built for when Nancy visits Kansas City to gather inspiration. It was built in a large park that contains butterfly gardens and beautiful natural views. The house contains a sizable exterior porch, comfortable living room, a closet, and a seating room for viewing the surrounding park. This is all complemented by the constant, calming sound of the creek in the background.

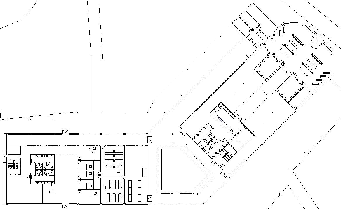
Wamego Fire Department Exterior

The Wamego Fire Station is located and will serve downtown Wamego. This firestation hosts a 200 person meeting room for Wamego residences to join town hall meetings. This gives the citizens of Wamego easy accessibility to the fire department at any time they are open to ask questions, bring concerns to the fire department, or to visit family members who serve the station. Having this major role in the community, both as a fire department and as a center for the community, makes this building the heart of Wamego.

Gym City Meeting Room View of the Back of the Building

Wamego Fire Department Interior

Kitchen and Living Room View of Main Entrance
Structure Model Basement Ground Floor Upper Floor N
Floorplans
East - West Section Sections North - South Section Site
2024
Nathaniel Sisco

Turn static files into dynamic content formats.

Create a flipbook
Issuu converts static files into: digital portfolios, online yearbooks, online catalogs, digital photo albums and more. Sign up and create your flipbook.