Portfolio of selected works 2014-2021

Page 1

VAIDEHI AJAY JOSHI

Undergraduate & Professional Works

2014 - 2021

CONTENTS Hampton Inn, El Cerrito, USA 04 01 ITO Skywalk 08 02 Jindal Textile Institute, Barhi 12 03 Resilient Housing System Flood Kerela 18 04
Resilient Housing System For Flood Prone Kerela Pavilion Prototype 26 06 Miscellaneous 28 07 Dwarka Metro Station 22 05

HAMPTON INN, EL CERRITO, CA 01

ProfessionalWork

Firm : Biney Design Studio - Architecture

(Confidential)

SupervisingArchitect-Ar.

BineyjotSinghSagoo

October 2019 - Present

Team - 3 members (1 principalarchitect,2 junior architects)

Location : El Cerrito, California, USA

Climate : Summers - warm, and wet; the winterscold and snowy

Biney Design Studio - Architecture (BDS-A) is a small firm that specializes in ‘Hospitality Projects’ and I had the amazing opportunity to work on and eventually lead this project under the guidance of the Principal Architect, Mr. Bineyjot Singh Sagoo.

Hampton Inn is designed at the intersection of San Pablo Avenue and Cuttings way. The San Pablo Avenue (SPA) specific plan uses a form based method of compliance for this project. The project site is in a zone designated as a major commercial street (San Pablo Avenue) and as a commercial street (cutting). Deck parking is provided as an additional space along with site parking.

Responsibilities :

My primary responsibilities included making the presentation and planning drawings, construction drawings and details, co-ordinating with the consultants and completion as well as submission of the drawing packages (submittals) to the ‘Hilton’ brand and ‘El Cerrito Building Department, California’.

4 HamptonInn,ElCerrito
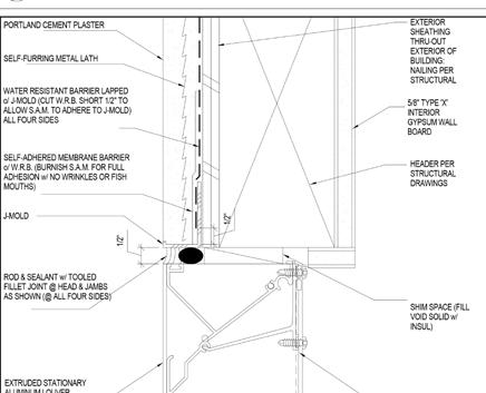
5 ProfessionalWork ISOMETRIC VIEW R1 R1 R1 B B

TYPICAL (EXT.) WALL SECTION

ENLARGED DETAILS

PARAPET DETAIL

EXTRUDED STATIONARY LOUVRE

SUSPENDED CEILING DETAIL

6 HamptonInn,ElCerrito

WALL DETAILS

EXTERIOR WALL - EXT-1 EXTERIOR WALL

FLOOR DETAILS

7 ProfessionalWork
TO FOOR JOINT

ITO SKY WALK, NEW DELHI 02

In the heart of Delhi, the ITO Sky-walk makes a striking visual impression, interlacing architecture, public infrastructure and the urban context.

Internship at Design Forum International (Confidential)

June - November, 2017

Team - 4 Members (3 architects, 1 intern)

Location : New Delhi, India

Conceived along one of the city’s most active stretches, the 535m long sky-walk and foot-over bridge connects four principal streets and integrates numerous nodes. Proposed to unclog intersections and ease pedestrian flow at major junctions that witnesses a high footfall, the serpentine tube is a cohesive solution to the area’s increasing commuter concerns.

Responsibilities:

As a part of the core design team at Design Forum International, New Delhi I had the opportunity to work on the sky-walk project at ITO, New Delhi. My role in this project was to develop the construction drawings for the overall site plan, staircases and junctions in the Sky-walk. I collaborated with the Team Leader and consulted the project’s structural engineer. I was also responsible for producing presentation drawings and model the junction and staircases of this project in SketchUp.

8 ITO,Skywalk
ProfessionalWork

FORM EVOLUTION

Single Unit Made of Rings Intersecting at 450

SITE PLAN

Rings Joined to Make The Skeleton of Skywalk

Final Form Consists of Skin Made of Tensile Fabric

SALIENT FEATURES:

• Length of the skywalk is 525m.

• Steel Structure

• Granite Flooring

• CCTV

• WI-FI

• 20 Passenger Capacity Lift

• Solar Panels

• Tensile Fabric covered structure

• Lighting and Illumination in the entire FOB and Junction Points

9 ProfessionalWork

The Mild Steel staircase proposed at Zone ‘A’ is located next to “Lady Irwin College”. This site experiences heavy footfall as students commute to and from the college to the “Pragati Maidan” metro station on a daily basis.

I was responsible for making the construction drawings of the plan of the staircase as well as two sections (horizontal and vertical) and additional construction details which were sent on site for construction.

10 ITO,Skywalk
250 DIA MS CIRCULAR HOLLOW SECTION 2425 JOINING LINE JOINING LINE 490 3615 R3365 R3490 R3615 125 125 3615 7230
FORM DETAILS
5000 250 DIA MS CIRCULAR HOLLOW SECTION HOLLOW SECTION FOB FINISH LVL. LVL. +6800 5500 1290 2425 2425 2425 2425 JOINING LINE JOINING LINE 490 R3365 125 125 7230 490 49 0
Typical Elevation of Intersecting Tensile Circular Frame Section
A
Ground Floor Plan
ZONE A
B X X
Section

ENLARGED SKYWALK DETAILS

IMAGES

11 ProfessionalWork
Typical Plan of Tensile Circular Frame Section
A
Junction at Skywalk Post construction view of Skywalk
Section XX

JINDAL TEXTILE INSTITUTE, BARHI 03

StudioProject

Instructor:Dr.Satpal

Semester6,Spring2017

Location : Barhi, Haryana, India

Climate:Drysummers and cold winters

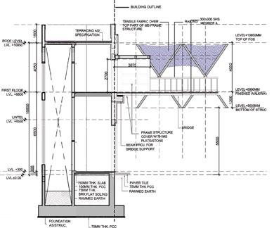
The aim of the project was to design an institute which provides specialization to students to enable them to build a career in the textile and clothing sector. The institute is designed to offer programmes that equip students to build careers in business, management and technical positions both in the retail and manufacturing industries.

The institute was designed to be climate conscious and various passive design elements such as louvres, double roof structure, orientation of the building etc. help to passively cool the building which in turn reduces the overall carbon footprint of the entire campus. As brick is the cheapest and readily available option in India, thus it has been used as the main building material. The curved double roof structure has provisions for installing Solar Panels to further make the campus energy efficient.

TextileInstitute,Barhi 12

FORM EVOLUTION

StudioProject 13
Removing excess mass to create form of the workshop building. Adding lobby as horizontal transition space between different blocks. 3) Adding Curved roof supported by columns over the terrace of the building to enable passive cooling by allowing wind to flow through the structure. 4) Removing parts of the circular structures to form spaces in textile institute. Addition of a rectangular building structure 2) Circular structures inspired by thread spools. The three block were placed keeping in mind the existing trees on site. 1) View of the Internal courtyard area

SITE PLAN

Location - Barhi, Haryana, India

Site Area - 31565.5 sq. m

Floor Area Ratio - 100

Permissible Height - 26m

Proposed Height - 16m

Parking Spaces (Nos.) - 300

LEGEND

Vehicular Movement

Pedestrian Movement

PHYSICAL MODEL

TextileInstitute,Barhi 14 A
A’
C
VIEW - C

EXPLODED AXONOMETRIC

Double Roof structure proposed for shading and to allow passage of air which in turn promotes passive cooling and helps to keep building cool.

LEGEND

Staff Rooms

Studios

Lecture halls / classrooms

Laboratories

Toilets

Staff Rooms

Studios

Lecture halls / classrooms

Cafeteria

Laboratories

Toilets

Administration

Reception Lobby

Workshops

Lecture halls / classrooms

Toilets

StudioProject
Double Roof structure

SECTION AA’

TextileInstitute,Barhi 16
StudioProject 17

RESILIENT HOUSING SYSTEM FOR FLOOD PRONE KERELA 04

Undergraduate

Thesis

Instructor : Dr. Chitrarekha Kabre Semester 10, Spring 2019

Location : Aluva, Kerala, India

Climate : Wet and Maritime tropical

On August 2018, Kerala & some parts of Kodagu, India faced one of the worst Floods of the century. 300+ deaths and infrastructure damages over Rs. 8,000 crores were recorded.

The goal of the project is to reduce the loss of life and property incurred in case of floods that could occur in Kerala in the future. The design is aimed to build a unit micro-neighbourhood for 100 families, with a case of use established in Aluva.

The project consists of a study and analysis of techniques, materials and mechanisms that will be involved in building a flood resilient community system that will be able to withstand floods.

The site taken into consideration is 5 acres, (20,000 Sq. m) and the design includes building of a flood wall, individual houses for people as well as a Community Flood Refuge Area.

18 ResilientHousingSystemForFloodProneKerala

INITIAL CONCEPT SKETCHES

19 UndergraduateThesis PERIYARRIVER PERIYAR RIVER FLYOVER ULLIYANOOR DISTRICT ALUVA PROPOSED SITE FLYOVER BRIDGE FERRY TERMINAL BUS STAND
The site is located on the banks of the Periyar river next to the bridge connecting to the Ulliyanoor District. A flyover runs parallel to the site which further connects to the city of Kochi where most of the fishermen sell their fish.
SITE LOCATION LEGEND Flood Affected Areas Houses damaged due to floods
Diagram showing Flood affected areas Exterior view of the Community Centre during Floods

Boat Rides Enjoyed By Many For Leisure

Community Centre Hall Used As Workshop For Making Fish Nets

Walled Playground For Kids

20 ResilientHousingSystemForFloodProneKerala
Personal Activities
Shared Outdoor Space
In
Activities Woman Drying Fish Informal Gathering Space b/w Two Adjacent Houses Personal Use Farms b/w 2-3 Households ACTIVITIES IN THE COMMUNITY
Regular Fishing

FLOOD RESILIENCE STRATEGIES

1)

2)

Natural vegetation can be supported with rammed earth. Additionally, short height plants and trees can be added to the existing flora to increase the impact of absorption of the current soil. Large stones can be added to provide additional reinforcement.

3)

Amphibious houses have been designed to function both on land and water. The houses are built on top concrete trenches that accommodate flowing water and a tight hollow space is formed enabling the houses to rise and float above water.

4)

The houses are designed to enable floatation up-to 3m from the ground level. Beyond this, the structures becomes highly unstable and have a chance of collapse.

The community centre is a four storey structure and can house up to 300 people.

21 UndergraduateThesis
Construction of a flood wall at the base of the contours to withstand the first impact of the floods especially in case of “Flash floods”.

METRO STATION, DWARKA 05

StudioGroupProject

4 Members - Vaidehi, Ritu, Vidhi and Diksha. Instructor : Dr. Ravi Vaish

Semester8Spring2018

Location : Dwarka, New Delhi, India

Climate : Monsooninfluenced humid subtropical

The Delhi metro is a metro system serving Delhi and its satellite cities of Faridabad, Gurgaon, Noida and Ghaziabad in the National Capital Region of India.

The Dwarka Metro Station is located on the Blue Line of the Delhi Metro. This station was built as an extention together with the Dwarka Sector in order to serve Dwarka residents better and provide interchange with the Delhi Airport Express.

Responsibilities:

I led a team of four for the Metro Station design studio project. I was responsible for designing the structure (steel space frame with Switch Glass Tech) and the facade of the Metro Station. I also devised the internal plans of the building i.e. the concourse level, planning strategic circulation of commuters throughout the building. Also, the 3D model and the final renders of this structure were created by me.

22 Dwarka Metro Station

INITIAL CONCEPT SKETCHES

SITE LOCATION SITE CONTEXT

The site for the metro station is proposed in Dwarka Sector - 21, close to the New Delhi Airport (IGI T3 Terminal). An ISBT (Inter-State Bus Terminal) and Railway station have been proposed as a part of multi-commute project proposed by the Delhi Government.

The proposed site is situated in South Delhi, approximately 8 Kms from the Airport. The Aravali Hills are approximately 20 kms away in the South East direction and form the backdrop of the Metro Station.

23 StudioProject PROPOSED SITE - METRO PROPOSED SITE - ISBT PROPOSED SITERAILWAY STATION NEWDELHIAHMEDABAD RAILWAYLINE SHAHABAD MOHAMMADPUR DDA FLATS IGI TERMINAL -3 AIRPORT
Railway Station Connectivity Airport Aravali Hills ISB Terminal Educational Institutions

SITE PLAN

PROPOSED SITE FOR BUS TERMINAL

PROPOSED SITE FOR RAILWAY STATION

Site plan showing circulation of vehicles throughout the site.

SECTION XX

Dwarka Metro Station SECTION Unpaid Paid Area - Blue line Blue Line (Platform Level) Administrative Area
LEGEND
Car circulation for departure and arrival Taxi circulation for departure and arrival Fire Emergency Route Car Parking Circulation X X Y Y
25 StudioProject TOP OF STRUCTURE +10 M HEIGHT OF ENTRYWAY +4 M GROUND LEVEL +0 M PLATFORM LEVEL -8 M METRO TRACK LEVEL -9 M Paid Area - Airport Line Paid Area - Blue Line SECTION
TOP OF STRUCTURE +10 M HEIGHT OF ENTRYWAY +4 M GROUND LEVEL +0 M PLATFORM LEVEL -8 M METRO TRACK LEVEL -9 M Area
YY

PAVILION PROTOTYPE 06

Interntional Competition

Individual Entry

June 2020

Organizer: Archasm

Individual project

Prototype design

The installation is meant to be a place where youngster have a place to meet up and talk. It is inspired by the sine wave curve. The concept behind the pavilion was to create an atmosphere that is unique and pleasing to be around.

It is especially designed to cater as a ‘hot-spot’ for the generation Z which like to get pictures for the social media. This is a concept model and the materials used are circular steel rods to provide structural support and aluminium rectangular elements that form the pavilion.

These boxed channels are light weight and rigid, especially good to sit under and take pictures.

26 PavilionPrototype

CONCEPTUAL SKETCHES

ELEVATIONS

27 Competition ELEVATION A
SITE PLAN
FORM EVOLUTION

MISCELLANEOUS

DOCUMENTATION DRAWINGS

Studio Project

Instructor : Dr. Jyoti Pandey Sharma

Semester 8, Spring 2018

Team : 6 members

Vaidehi, Vidhi, Ritu, Eti, Diksha, Divya

Building : Rewari Railway Station

Location : Rewari Haryana, India

Climate : Dry summers and cold winters

Responsibilities : On-site measurements, Drafting of the front and right elevations in AutoCAD.

FRONT ELEVATION

RIGHT ELEVATION

28 DocumentationDrawings
07

URBAN SKETCHES

Medium - Pen on paper; Inspiration from the internet

29 Sketches

THANK YOU

Turn static files into dynamic content formats.

Create a flipbook
Issuu converts static files into: digital portfolios, online yearbooks, online catalogs, digital photo albums and more. Sign up and create your flipbook.